COMFOAIR 200 - Système de ventilation ZEHNDER - Notice d'utilisation et mode d'emploi gratuit
Retrouvez gratuitement la notice de l'appareil COMFOAIR 200 ZEHNDER au format PDF.
| Type de produit | Ventilateur récupérateur de chaleur |
| Débit d'air | 200 m³/h |
| Dimensions approximatives | 600 x 600 x 400 mm |
| Poids | 25 kg |
| Alimentation électrique | 230 V / 50 Hz |
| Puissance | 150 W |
| Fonctions principales | Récupération de chaleur, ventilation contrôlée, filtration de l'air |
| Entretien et nettoyage | Filtres à air remplaçables, nettoyage des échangeurs de chaleur recommandé tous les 2 ans |
| Pièces détachées et réparabilité | Disponibilité de pièces de rechange, manuel de réparation fourni |
| Compatibilités | Compatible avec les systèmes de ventilation standard |
| Sécurité | Protection contre les surcharges, conforme aux normes CE |
| Informations générales | Idéal pour les maisons passives et les rénovations énergétiques |
FOIRE AUX QUESTIONS - COMFOAIR 200 ZEHNDER
Téléchargez la notice de votre Système de ventilation au format PDF gratuitement ! Retrouvez votre notice COMFOAIR 200 - ZEHNDER et reprennez votre appareil électronique en main. Sur cette page sont publiés tous les documents nécessaires à l'utilisation de votre appareil COMFOAIR 200 de la marque ZEHNDER.
MODE D'EMPLOI COMFOAIR 200 ZEHNDER
Ventilation mécanique double flux
Zehnder ComfoAir 200
Utilisation
L'appareil de ventilation double flux Zehnder ComfoAir 200 a ete devellope pour des applications exigeantes residentielles et collectives. Le syste allie comfort, des commandes conviviales, un haut rendement, une integration flexible et compacte dans le cadre d'applications murales ou au plafond. Le Zehnder ComfoAir 200 dispose de debits d'air de 30 à 265 m³/h à une pression externe de 100 Pa.
Dans le cadre d'applications résidentielles, l'air vicié est extrait de la cuisine, des salles de bains, des toilettes et de tout autre piece humide. De l'air neuf, provenant de l'extérieur est introduit dans les pieces de vie (salon,SEDJ, chambres...). Un transfert de chaleur, avec récepération d'énergie, a lieu entre l'air extrait de l'habitation et l'air pulsé dans l'habitat provenant de l'extérieur.
Rendement
L'échangeur de chaleur à contre-courant atteint un rendement à 98%. Le comport de l'utilisateur est amélioré :aucun courant d'air désagréable n'est perché car l'air pulsé est tempéré même lors de températures extérieures avoirinant les zéro degrés.
Ventilateurs
Les deux ventilateurs de pulsion et d'extraction sont pilotés par des moteurs à courant continu performants. Grace à la régulation, les différences de pression dans le système de distribution d'air peuvent être compensées. Les ventilateurs peu bruyants peuvent être ajustés par pas d'1% au débit volumique souhaïte. Les régimes des débits d'air du Zehnder ComfoAir 200 peuvent être régliés entre 30 m^3/h et 265 m^3/h .
Régulation
La ventilation mécanique double flux Zehnder ComfoAir 200 est proposée en 3 versions en fonction du type de régulation :
- Zehnder ComfoAir 200 : pilotage par boîtier déported SA 1-3V (3 vitesses + survitésse minutée réglable) ou Flash SAI 1-3V (3 vitesses + survitésse minutée réglable + indicateur d'encrassement du filtre par LED)
- Zehnder ComfoAir 200 RF : pilotage par boîtier déporte radioféquences RFZ (3 vitesses + survitesse minutée régable)
- Zehnder ComfoAir 200 Luxe : pilotage par boîtier déportedélectronique ComfoControl Ease. Fonctionnalités du ComfoControl Ease : 4 vitesses,programmateur hebdomadaire, indicateur d'encrassement des filtres/pannes/température int./ext.
Filtres
Le Zehnder ComfoAir 200 est équipé, en standard, d'un filtré G4 sur l'air neuf et l'air vicié et dispose d'un indicateur d'encrassement des filtrés. Le changement de ces filtrés, accessibles par la face avant de l'appareil, ne nécessite aucun outillage.
Installation
L'appareil de ventilation Zehnder ComfoAir 200 se désigne par des dimensions compactes. Afin de facilititer son installation en position murale/verticale ou au plafond/horizontale, les raccordements pour les prises d'air extérieures sont situés du même côte et les prises d'air pour le côte habitat sont situées sur la face opposée. Les raccordements aérauliques isolés offrent des possibilités de jonctions adaptables (DN 125, 150 ou 160 mm).


SA 1-3V
Ventilation mécanique double flux
Zehnder ComfoAir 200
Entretien
L'entretien de l'appareil de ventilation Zehnder ComfoAir 200 se limite au remplacement régulier des filtres intégrés sur la face avant de l'appareil. L'échangeur de chaleur doit être nettoyé tous les 3 - 4 ans en fonction du début de l'air neuf. Il suffit dePTRer I'échangeur de chaleur de I'appareil. Dans le mode d'emploi vous trouvrez d'autres indications concernant I'entretien.
Protection antigel
Quand le système de ventilation est utilisé sans préchauffage, les condensats de l'air evacué peuvent geler. Le gel des condensats est évité par une réduction-temporaire du volume d'air pulsed.
By-pass
Pendant les nuits d'été et à la mi-saison, lors d'un fort rayonnement solaire durant la journée, il fait souvent trop chaud dans la maison la nuit tandis que l'air extérieur est/agréablement frais. Dans ce cas, l'évacuation de la chaleur par "ventilation libre" est une solution et l'air extérieur plus frais est pulsé directement dans la piece. A cet effet, le système de ventilation Zehnder ComfoAir 200 est équipé d'un by-pass automatique. Le by-pass fait partie de l'équipement en série et permet à l'air vicié de contourner l'échangeur de chaleur. La température d'enclenchement est régiable.
Options
- Préchauffeur électrique.
Utilisé pour les zones où la température atteint régulièrement -10°C en hiver et où le Zehnder ComfoAir 200 n'est pas équipé d'un puits canadien. - Siphon. Un siphon pour l'évacuation des condensats est disponible.
- Filtre F7 sur air neuf. Installation possible d'un filtré F7 sur l'air neuf.
- Minuterie pour salles de bains. Interrupteur placé en salle de bains afin d'apporter une surventilation temporisée.
Ventilation mécanique double flux
Zehnder ComfoAir 200
Avantages
- Ventilation douce de 30 jusqu'à 265 m³/h
Installation murale/verticale ou au plafond/horizontale - Récupération de chaleur avec un rendement supérieur à 90%
- Faible consommation d'énergie grâce aux moteurs à courant continu
- By-pass automatique 100% - mode établi
- Régulation par boîtiers déportés mécanique, radioféquences ou électronique
3 à 4 vitesses de ventilation disponibles (fonction de la régulation utilisée) - Fonction antigel : Egalement efficace lors de températures très basses
- Filtres G4 sur air neuf et air vicié. F7 en option sur air neuf
Montage et maintenance rapides et sécurisés
Utilisation facile - Indicateur d'obturation du filtré intégré dans l'appareil ou sur le boîtier de régulation
Débits d'air réglibres en fonction du dimensionnement de chaque projet - Minuterie hebdomadaire sur ComfoControl Ease (ComfoAir 200 Luxe)
- Siphon approprié (optionnel)
Sens de circulation de l'air
Les illustrations à droite montrent le sens de la circulation de l'air, vue de face.
Flèche placée à l'intérieur de la maison vers extérieur = air vicié (habitat)
Flèche placée à l'intérieur de la maison vers intérieur = air pulsé (habitat)
Flèche placée à l'extérieur de la maison vers extérieur = air rejeté (extérieur)
Flèche placée à l'extérieur de la maison vers interieur = air neuf (extérieur)
Numeros d'article
ComfoAir 200 = régulation via boîtier déporté SA 1-3V ou Flash SAI 1-3V
ComfoAir 200 RF = Idem ComfoAir 200 + régulation via boîtier déporté
radioféquences RFZ
ComfoAir 200 Luxe = Idem ComfoAir 200 + régulation via boftier électronique déporté ComfoControl Ease
ComfoAir 200 Luxe VV = Idem ComfoAir 200 Luxe + préchauffeur intégré
| Désignation | Air de pulsion à gauche (L) | Air de pulsion à droitie (R) |
| Zehnder ComfoAir 200 | 471 224 010 | 471 224 015 |
| Zehnder ComfoAir 200 RF | 471 224 020 | 471 224 025 |
| Zehnder ComfoAir 200 Luxe | 471 224 210 | 471 224 215 |
| Zehnder ComfoAir 200 Luxe VV | 471 224 310 | 471 224 315 |

Execution air pulse à doite (R)

Execution air pulse à doite (R)
OBJECT PAST NIET
Spécifications
Système de ventilation mécanique double flux Zehnder ComfoAir 200
Débit d'air de 265 m3/h à une pression externe de 100 Pa, régulation via boftier déportede SA 1-3V (3 vitesses+survitesse minutée) ou Flash SAI 1-3V (3 vitesses+survitesse minutée+indicateur d'encrassement des filtres par LED), by-pass automatique 100% , échangeur de chaleur contre courant, rendement thermique >90% , moteurs à courant continu EC, fonction antigel continu, indicateur de panne et encrassement des filtres sur l'appareil, diamètre des raccords DN 125, DN 150 ou DN 160mm.
Dimensions: LxHxP: 1200x534x317mm, incl. 1 filtré G4 air vicié + 1 filtré G4 air pulsé, incl. 1 paire de filtres G4 de rechange sur demande la première année.
Système de ventilation mécanique double flux Zehnder ComfoAir 200 RF
Débit d'air de 265 m3/h à une pression externe de 100 Pa, régulation via boîtier déported radioféquences RFZ (3 vitesses + survités minutée), by-pass automatique 100%, échangeur de chaleur contre courant, rendement thermique > 90%, moteurs à courant continu EC, fonction antigel continu, indicateur de panne et encrassement des filtres sur l'appareil, diamètre des raccords DN 125, DN 150 ou DN 160mm.
Dimensions: LxHxP: 1200x534x317mm, incl. 1 filtré G4 air vicié + 1 filtré G4 air pulsé, incl. 1 paire de filtrés G4 de rechange sur demande la première année.
Système de ventilation mécanique double flux Zehnder ComfoAir 200 Luxe
Débit d'air de 265 m3/h à une pression externe de 100 Pa, régulation électronique via boîtier déported ComfoControl Ease (4 vitesses+programmateur hebdomadaire+indicateur encrassement des filtres, pannes, température int./ext.+réglages de l'appareil de ventilation), by-pass automatique 100%, échangeur de chaleur contre courant, rendement thermique > 90%, moteurs à courant continu EC, fonction antigel continu, indicateur de panne et encrassement des filtres sur boîtier de régulation électronique, diamètre des raccords DN 125, DN 150 ou DN 160mm.
Dimensions: LxHxP: 1200x534x317mm, incl. 1 litre G4 air vicié + 1 litre G4 air pulsé, incl. 1 paire de filtres G4 de rechange sur demande la première année.
Système de ventilation mécanique double flux Zehnder ComfoAir 200 Luxe VV
Idem ComfoAir 200 Luxe + préchauffeur électrique
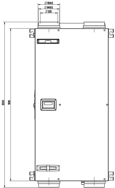
Dimensions





| Dimensions de l'appareil (mm) | |
| Hauteur | 1200 |
| Largeur | 534 |
| Profondeur | 317 |
Niveau acquaintique
Geluid
| Ventilator | Geluidsvermogen dB ref. 10-12 W | |||||||
| Type | Stand | 125Hz | 250Hz | 500Hz | 1000Hz | 2000Hz | 4000Hz | 8000Hz |
| Zehnder ComfoAir 200 | 9 | 76 | 76 | 68 | 66 | 65 | 60 | 58 |
| Zehnder ComfoAir 200 | 8 | 75 | 75 | 66 | 65 | 64 | 59 | 57 |
| Zehnder ComfoAir 200 | 7 | 73 | 72 | 64 | 63 | 61 | 56 | 54 |
| Zehnder ComfoAir 200 | 6 | 69 | 69 | 61 | 61 | 57 | 53 | 49 |
| Zehnder ComfoAir 200 | 5 | 67 | 65 | 58 | 59 | 52 | 48 | 44 |
| Zehnder ComfoAir 200 | 4 | 61 | 60 | 55 | 55 | 46 | 42 | 36 |
| Zehnder ComfoAir 200 | 3 | 56 | 55 | 51 | 48 | 39 | 34 | 25 |
| Zehnder ComfoAir 200 | 2 | 50 | 49 | 44 | 39 | 30 | 22 | 18 |
| Zehnder ComfoAir 200 | 1 | 41 | 40 | 35 | 30 | 21 | 13 | 9 |
Zehnder ComfoAir 200 - Efficacité énergétique : 98 %
| Dômenaine D'emploi | ||||||
| Type de logement | salle de bain | WC | Salle d'eau | Débit de base m3/h | Débit de pointe m3/h | Puisance Consommée W-Th-C |
| T2 | 1 | 1 | 0 | 60 | 120 | 20.71 |
| 1 | 2 | 0 | 75 | 135 | 26.78 | |
| T3 | 1 | 1 | 0 | 90 | 150 | 31.36 |
| 1 | 2 | 0 | 105 | 165 | 37.77 | |
| 1 | 2 | 1 | 120 | 180 | 45.41 | |
| 2 | 2 | 0 | 135 | 195 | 51.79 | |
| 2 | 2 | 1 | 150 | 210 | 57.40 | |
| T4 | 1 | 1 ou 2 | 0 | 105 | 180 | 38.15 |
| 1 | 1 ou 2 | 1 | 120 | 195 | 45.98 | |
| 2 | 1 ou 2 | 0 | 135 | 210 | 52.30 | |
| T5 et + | 1 | 1 ou 2 | 0 | 105 | 195 | 38.72 |
| 1 | 1 ou 2 | 1 | 120 | 210 | 46.49 | |
| Puisance électrique consommée en WTh dans la plus petite configuration | ||||||
| Type de logement | salle de bain | WC | Salle d'eau | Débit de base m3/h | Débit de pointe m3/h | Puisance Consommée W-Th-C |
| T2 | 1 | 1 | 0 | 60 | 120 | 21.9 |
| Puisance électrique consommée en WTh dans la plus grande configuration | ||||||
| Type de logement | salle de bain | WC | Salle d'eau | Débit de base m3/h | Débit de pointe m3/h | Puisance Consommée W-Th-C |
| T3 | 2 | 2 | 1 | 150 | 210 | 57.4 |
Notice Facile