TRC 630 C - Plaque de cuisson SCHOLTES - Notice d'utilisation et mode d'emploi gratuit
Retrouvez gratuitement la notice de l'appareil TRC 630 C SCHOLTES au format PDF.
| Type de produit | Table de cuisson à induction |
| Nombre de foyers | 3 foyers à induction |
| Dimensions approximatives | 60 cm x 52 cm |
| Poids | 10 kg |
| Alimentation électrique | 230 V / 400 V |
| Puissance totale | 7200 W |
| Fonctions principales | Boost, minuterie, réglage de la température |
| Entretien et nettoyage | Surface en vitrocéramique, nettoyage facile avec un chiffon humide |
| Pièces détachées et réparabilité | Disponibilité de pièces détachées sur demande |
| Sécurité | Arrêt automatique, sécurité enfants, indicateur de chaleur résiduelle |
| Compatibilités | Compatible avec des ustensiles de cuisson en fer, acier inoxydable et fonte |
| Garantie | 2 ans |
FOIRE AUX QUESTIONS - TRC 630 C SCHOLTES
Téléchargez la notice de votre Plaque de cuisson au format PDF gratuitement ! Retrouvez votre notice TRC 630 C - SCHOLTES et reprennez votre appareil électronique en main. Sur cette page sont publiés tous les documents nécessaires à l'utilisation de votre appareil TRC 630 C de la marque SCHOLTES.
MODE D'EMPLOI TRC 630 C SCHOLTES
Raccordement électrique
Description de l'appareil, 18-19
Tableau de bord
Foyers extensibles
Mise en marche et utilisation, 20-23
Mise sous tension de la table de cuisson
Allumage des foyer
Extinction des foyers
Fonction power
Les éléments chauffants
Programmation de la durée de cuisson
Le minuteur
Verrouillage des commandes
Extinction de la table de cuisson
Mode Demonstration (demo)
Conseils d'utilisation de l'appareil
Les sécurités
Conseils utiles pour la cuisson
Précautions et conseils, 24
Sécurité générale
Mise au rebut
Nettoyage et entretien, 25
Mise hors tension
Nettoyage de l'appareil
Démontage de la table
Description technique des modèles, 26

! Conserver ce mode d'emploi pour pouvoir le consulter à tout moment. En cas de vente, de cession ou de déménagement, veiller à ce qu'il suive l'appareil pour informer le nouveau propriétaire sur son fonctionnement et lui fournir les consels correspondants.
! Lire attentivement les instructions : elles contiennent des conseils importants sur l'installation, l'utilisation et la sécurité de cet apparéil.
Positionnement
! Les emballages ne sont pas des jouets pour enfants, il faut lesmettre au rebut en respectant la réglementation sur le tri sélectif des déchets (voir Précautions et conseils).
! L'installation doit être effectuee par un professionnel du secteur conformement aux instructions du fabricant. Une mauvaise installation peut cause des dommages a des personnes, des animaux ou des biens.
Encastrement
Pour garantir le bon fonctionnement de l'appareil, il faut que le meuble possède des caractéristiques bien précises :
- le matériel du plan d'appui doit pouvoir résister à une température d'environ 100^ ;
- en cas d'installation de la table de cuisson audressus d'un four, il faut que ce dernier soit équipé d'un dispositif de refroidissement par ventilation forcee;
- éviter d'installer la table de cuisson au-dessus d'un lave-vaisselle : si c'est le cas, prévoir une séparation étanche entre les deux apparèils ;
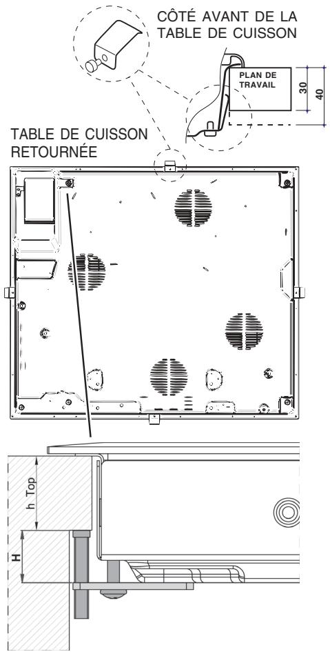
- selon la table de cuisson à installer (voir figures), la découverte du meuble doit avoir les dimensions suivantes :


Aération
Pour permettre une bonne aération et pour éviter toutes surchauffe des surfaces autour de l'appareil, la table de cuisson doit être positionnée :
- à au moins 40 mm de distance du mur arrêté;
- de manière à ce qu'il reste au moins 20 mm de distance entre la découpe d'encastrement et le meuble en dessous.



- Les meubles jouxtant la table, dont la hauteur dépasse cette du plan de cuisson,doivent être placés à au moins 600~mm du bord du plan.
Fixation
Il est impératif d'assurer l'encastrement de l'appareil sur un plan d'appui parfaitement plat. Les déformations provoquées par une mauvaise fixation risquent d'alterer les caractéristiques de la table de cuisson ainsi que ses performances.
La longueur de la vis de réglage des crochets de fixation doit être réglée avant leur montage selon l'épaisseur du plan d'appui :
- épaisseur 30 mm : vis 17,5 mm;
- épaisseur 40 mm : vis 7,5 mm
Pour sa fixation, procéder comme suit :
- Se servir des vis courtes sans pointe pour visser les 4 ressorts de centrage dans les troups prévus sur chaque côte de la table, en leur milieu;
- insérer la table de cuisson dans la découvert prévue, bien au centre et bien appuyer tout autour du cadre pour que la table adhérite parfaitement au plan d'appui.
- pour les tables avec profils latéraux : après avoir encastré la table de cuisson dans la découvert, insérer les 4 crochets de fixation (chacun avec son goujon) sur le périmètre inférieur de la table de cuisson et visser avec les vis longues à pointe jusqu'à ce que le verre adhérite bien au plan d'appui.
! Il faut absolument que les vis des ressorts de centrage soient accessibles.
! Conformément aux normes de sécurité, après encastrement de l'appareil, il ne doit plus y avoir possibilité de contact avec les parties electriées.
! Toutes les parties qui servent de protection doivent être fixées de manière à ne pouvoir être enlevées qu'avac l'aide d'un outil.
Raccordement électrique
! Le branchement électrique de la table de cuisson et celui d'un évientuel four à encastrer doivent être effectués séparément, pour des raisons de sécurité électrique et pour pouvoir démonter plus facilement le four en cas de besoin.
Bornier

TABLE DE CUISSON RETOURNEE
L'appareil est équipé, sur le dessous, d'un boîtier de raccordement à plusieurs types d'alimentation électrique (la figure n'est qu'indicative, elle peut ne pas correspondre au modele acheté).
Raccordement monophasé
La table est fournie deja équipée d'un cordon d'alimentation prévu pour raccordement monophasé. Proceder au raccordement des fils en suivant les indications du tableau et des dessins suivants :
| Tension type et fréquence réseau | Cordon électrique | Raccordement fils |
| 220-240V 1+N ~ 50/60 Hz | ½N:L | ½: jaune/vert; N: les 2 fils bleus ensemble L: le marron avec le noir |
Autres types de branchement
Si l'installation électrique correspond à une des caractéristiques suivantes : Tension type et fréquence réseau
- 400V - 2+N ~ 50/60 Hz
- 220-240V 3 ~ 50/60 Hz
- 400V - 2+2N ~ 50/60 Hz
Déparer les câbles et procéder au raccordement des fils en suivant les indications du tableau et des dessins suivants :
| Tension type et fréquence réseau | Cordon électrique | Raccordement fils |
| 400V - 2+N ~ 50/60 Hz | N L1 L2 | ½: jaune/vert; N: les 2 fils bleus ensemble L1: noir L2: marron |
| 220-240V 3 ~ 50/60Hz | ||
| 400V - 2+2N ~ 50/60 Hz | N L1 N2 L1 L2 | ½: jaune/vert; N1: bleu N2: bleu L1: noir L2: marron |
Si l'installation électrique correspond à une des caractéristiques suivantes :
Tension type et fréquence réseau
- 400V 3 - N ~ 50/60 Hz
proceder comme suit :
! Le cable eventuellement fourni n'est pas prévu pour ces types d'installation.
- Utiliser un cable d'alimentation approprié, type H05RR-F ou supérieur, aux dimensions adéquates (section cable : 25 mm).
- Faire levier à l'aide d'un tournevis sur les languettes du couvercle du bornier pour l'ouvoir (voir figure Bornier).
- Dévisser la vis du serre-câble et les vis des bornes correspondant au type de raccordement nécessaire et positionner les cavaliers de raccordement conformément aux indications du tableau et des figures ci-dessous.
- Positionner les fils conformément aux indications du tableau et des figures ci-dessous et procéder au raccordement en serrant à fond toutes les vis des bornes.
| Tension type et fréquence réseau | Raccordements électriques | Bornier | ||||
| 400V 3-N ~ 50/60 Hz | 1 L1 | 2 L2 | 3 L3 | 4 N | 5 | Triphasé 400 |
- Fixer le cable d'alimentation dans le serre-cable correspondant et fermer le couvercle.

Triphase 400
Branchement du cable d'alimentation au réseau électrique
En cas de raccordement direct au réseau, il faut intercaler entre l'appareil et le réseau un interrupteur à coupure omnipolaire ayant au moins 3 mm d'écartement entre les contacts.
! L'installateur est responsable du bon raccordement électrique de l'appareil et du respect des normes de sécurité.
Avant de procéder au branchement, s'assurer que :
- la prise est bien munie d'une terre conforme à la loi;
- la prise est bien apte à supporter la puissance maximale de l'appareil, indiquée sur la plaque signalétique de l'appareil ;
- la tension d'alimentation est bien comprise entre les valeurs indiquées sur la plaque signalétique;
- la prise est bien compatible avec la fiche de l'appareil. Si ce n'est pas le cas, replacer la prise ou la fiche, ne pas utiliser de rallonges ni de prises multiples.
!Après installation de l'appareil, le cable électrique et la prise de courant doivent être facilement accessibles
! Le cable ne doit être ni plié ni excessivement écrasé.
! Le cable doit être contrôle périodiquement et ne peut être remplaced que par un technicien agréé.
! Nous déclinons toute responsabilité en cas de non respect des normes énumérées ci-dessus.
Tableau de bord
Le tableau de bord qui est décrit n'a qu'une valeur d'exemple : il peut ne pas correspondre au modele acheté.

- Touche AUGMENTATION DE PUISSANCE pour allumer le foyer et régler sa puissance (voir Mise en marche et utilisation).
- Touche DIMINUTION DE PUISSANCE pour régler la puissance et étèindre le foyer (voir Mise en marche et utilisation).
- Voyant FOYER SELECTIONNcé pour signaler que le foyer correspondant a été sélectionné et que les régulations sont donc possibles.
- Touche SELECTION FOYER pour selectionner le foyer souhaite
- Indicateur de PUISSANCE : une colonne lumineuse pour signaler le niveau de puissance atteint.
- Touche ON/OFF pour allumer ou éteindre l'appareil.
Voyant ON/OFF : il signale si l'appareil est allumé ou éteint. -
Touche PROGRAMMATEUR* pour programmer la durée d'une cuisson (voir Mise en marche et Utilisation).
-
N'existe que sur certains modèles
-
Afficheur PROGRAMMATEUR*: pour afficher les choix correspondant à la programmation (voir Mise en marche et utilisation).
- Voyants FOYER PROGRAMME*: ils indiquent les foyers quand une programmation est lancée (voir Mise en marche et utilisation).
- Touche VERROUILLAGE DES COMMANDES pour empêcher toute intervention extérieure sur les réglages de la table de cuisson (voir Mise en marche et Utilisation).
- Voyant COMMANDES VERROUILLEES : pour signaler le verrouillage des commandes (voir Mise en marche et Utilisation).
Voyant MINUTEUR* il signale que le minuteur est activé
! Ce produit est conforme à la nouvelle Directive Européenne sur la réduction de la consommation d'énergie en mode standby.
Sans opérations pendant 2 minutes, après l'extinction des voyants de chaleur résiduelle et l'arrêt du ventilateur (si existants), l'appareil se place automatiquement en "off mode".
Pour remettre l'appareil en mode de fonctionnement normal, appuyer sur la touche ON/OFF.
Foyers extensibles
Certain modèles sont équipés de foyers extensibles. Ces derniers peuvent avoir soit une forme circulaire soit une forme ovale et s'étendre pour former des foyers doubles ou triples. Illustration des commandes générées sur les modèles équipés de ces options.
Foyer extensible circulaire

- Touche ALLUMAGE FOYER DOUBLE pour activer le foyer double (voir Mise en marche et Utilisation).
- Voyant FOYER DOUBLE ALLUMÉ : il signale l'allumage du foyer double.
Mise en marche etutilisation
FR
! La colle utilisée pour les joints laïssé des traces de graissse sur le verre. Nous conseillons de les éliminer avant d'utiliser l'appareil à l'aide d'un produit d'entretien non abrasif. Une odeur de caoutchouc peut se dégager au cours des premières heures d'utilisation, elle disparaître très vite.
! Un bip retentit quelques secondes après la mise sous tension de la table de cuisson. A partir de ce moment-là, l'allumage de la table est possible.
!Une pression prolongee sur les touches et + accélere l'avancement rapide des niveaux de puissance et des minutes du minuteur.
Mise sous tension de la table de cuisson
Pourmettre la table de cuisson sous tension,appuyersur la touche 1 pendant une seconde environ.
Allumage des foyer
Chaque foyer est activé par une touche de sélection et par un dispositif de réglage de la puissance à double touche - et +.
- Pourmettre en marche un foyer,appuyer sur la commande correspondante et selectionner la puissance voulue a l'aide des touches -et +.
Extinction des foyer
Pour éteindre un foyer, le sélectionner à l'aide de la touche de sélection correspondante et:
- Appuyer sur la touche : la puissance du foyer descend progressivement jusqu'à extinction.
Fonction power
Une fonction power permet d'accélérer la montée en température des foyers. Allumer le foyer désiré et régler sa puissance comme décrit dans le paragraphe précédent.. Appuyer pendant au moins 2 secondes de suite sur la touche de selection du foyer choisi L'afficheur, indicateur de puissance, affiche alternatively la dette "P" et le niveau de puissance sélectionné précédemment jusqu'à ce que le niveau de puissance youlu soit atteint. Dès qu'il est atteint, l'afficheur returne à l'affichage du niveau de puissance sélectionné. Pour désactiver cette fonction, appuyer pendant au moins 2 secondes de suite sur la
touché de sélection du foyer où la fonction est activée, ou bien désirsir un autre niveau de puissance à l'aide des touches - et +.
Les éléments chauffants
La table de cuisson, selon les modèles, peut être équipée de deux types d'éléments chauffants : halogènes et radiants.
Les halogènes transmettent la chaleur par irradiation de la lampe halogène qu'ils contiennent.
Ils se caractérisent par leurs propriétés qui rappellent celles du gaz : unerompte réponse aux commandes, visualisation immédiate de la puissance.
Les radiants sont composés d'une multitude de spires qui garantissent une répartition uniforme de la chaleur sur le fond du écipient pour réussir parfaitement toutes les ciussons lentes et le mijotage : daubes, sauces ou plats à réchauffer.
Programmation de la durée de cuisson
Il est possible de programmer simultanément tous les foyers pour une durée comprise entre 1 et 99 minutes.
- Sélectionner le foyer à l'aide de la touche de sélection correspondante.
- Régler sa température.
- Appuyer sur la touche de programmation
- Sélectionner la durée de cuisson désirée à l'aide des touches - et +.
- Appuyer sur la touche (√) pour valider.
Le compte à rebours du minuteur démarre aussitôt. La fin de la cuisson programmée est indiquée par un signal acoustique (durée 1 minute) et le foyer s'eteint. Proceder de même pour tous les foyers devant être programmés.
Affichage en cas de programmation multiple
En cas de programmation d'un ou de plusieurs foyers, l'écran affiche le temps restant pour le foyer qui se rapproche le plus de la fin du tempsprogrammé, dont la position est indiquée par clignotement duvoyant correspondant. Les voyants des autres foyers programmes sont allumés.Pour afficher le temps restant des autres foyersprogrammés, appuyer plusieurs fois de suite sur la touche :il yaura affichage à la suite et dans le
sens des aiguilles d'une montre des temps de tous les foyers programmés, en partant du foyer avant gauche
Modifier la programmation
- Appuyer plusieurs fois de suite sur la touche
jusqu'à affichage du temps correspondant au foyer devant être modifié. - Sélectionner un nouveau temps à l'aide des touches
-et+
- Appuyer sur la touche pour valider.
Pour annuler une programmation, procéder comme indiqué plus haut. Au point 2, appuyer sur la touche - : la durée diminue progressivement jusqu'à l'extinction - La programmation est remise à zéro et l'afficheur quitte le mode programmation.
Le minuteur
La table de cuisson doit être allumée.
Le minuteur permet de seLECTIONner une durée de 99 minutes maximum.
- Appuyer sur la touche de programmation

jusqu'acecque levoyant minuteur s'allume.
2. Sélectionner la durée désirée à l'aide des touches
et +.
- Appuyer sur la touche pour valider.
Le compte à rebours du minuteur démarre aussi.
Une fois le temps écoué, un signal sonore retentit (pendant 1 minute).
Verrouillage des commandes
Pendant le fonctionnement de la table, il est possible de verrouiller les commandes pour empêcher toute intervention extérieure sur le réglage (enfants,
nettoyage...). Appuyer sur la touche ( = 0 pour verrouiller les commandes, le voyant situé au dessus de la touche s'allume.
Pour pouvoir modifier les réglages (interrompre la cuisson par ex.) il faut déverrouiller les commandes :
appuyer sur la touche (pendant quelques instants, levoyant s'eteint et les commandes sont déverrouillées.
Extinction de la table de cuisson
Appuyer sur la touche ① pour eteindre l'appareil. Si les commandes de I'appareil ont ete verrouillées, elles le seront encore au rallumage de la table. Pour pouvoir rallumer la table de cuisson, il faut d'abord déverrouiller les commandes.
Mode Demonstration (demo)
Il est possible de selectionner une utilisation en mode démonstration où le tableau de bord fonctionne normalement (y compris les commandes concernant la programmation) mais où les éléments chauffants ne s'allument pas. Pour activer le mode démonstration (demo), il faut que la table soit sous tension et que tous les foyers soient éteints :
-
Appuyer simultanément sur les touches + et - et les garder enforcées pendant 6 secondes. Au bout de 6 secondes, levoyant ON/OFF et levoyant VERROUILAGE DES COMMANDES se mettent à clignoter pendant une seconde. Lâcher les touches
-
et - et appuyer sur la touche
-
il y a affichage de DE et de MO et la table s'eteint;
au rallumage successif, la table se trouvera en mode démonstration (demo).
Pour quitter ce mode de fonctionnement, suivre la procédure déscribe plus haut. Il y a affichage de DE et de OF et la table s'eteint. Au rallumage successif, la table fonctionnera normalement.
Conseils d'utilisation de l'appareil
Pour obtenir deailles performances de la table de cuisson :
Utiliser des casseroles à fond plat et de force épaisseur pour qu'elles adhérent parfaitement à la zone de chauffe


Utiliser des casseroles dont le diamètre couvre complètement la zone de chauffe de façon à ce que toute la chaleur disponible puisse être utilisée.



- Veiller à ce que la base des casseroles soit toujours parfaitement sèche et propre pour garantir un bon contact et une longue durée de vie des foyers mais aussi des casseroles.
- Eviter d'utiliser les mêmes casseroles que sur les brûleurs à gaz. la concentration de chaleur sur les brûleurs à gaz peut déformer le fond de la casserole qui perd de sonadhérence.
Les securités
Détéction de récipient
Chaque foyer est équipé d'une détction de casserole. Le foyer ne délivre de puissance qu'en présence d'une casserole adaptée au foyer. Levoyant clignotant peut signaler :
- une casserole incompatible
- une casserole de trop petit diamètre
- que la casserole a ete soulevee
Indicateurs de chaleur résiduelle
Chaque foyer est équipé d'un indicateur de chaleur résiduelle. Cet indicateur signale les foyernts dont la température est encore élevé. Si l'afficheur de
puissance affiche H, c'est que le foyer est encore chaud. On peut par exemple s'en servir pour garder un plat au chaud ou faire fondre du beurre ou du chocolat. Lors du refroidissement du foyer, l'afficheur de
puissance affiche n. L'afficheur s'eteint des que le foyer a suffisamment refroidi.
Surchauffe
En cas de surchauffe de ses composants électroniques, la table s'est int automatiquement et l'afficheur indique F suivi d'un chiffre clignotant. Cet affichage disparait et la table est a nouveau usable des que la température est redescendue à un niveau acceptable.
Interrupteur sécurité
L'appareil est équipé d'un interrupteur de sécurité qui interrupt instantanément le fonctionnement des foyersès qu'un temps limite de fonctionnement à un niveau de puissance donné est atteint. Pendant l'interruption de sécurité, l'afficheur indique "0".
Exemple : le foyer arrêté droit est réglé sur 5, tandis que le foyer avant gauche est réglé sur 2. Le foyer arrêté droit s'eteindra au bout de 5 heures de fonctionnement tandis que le foyer avant gauche s'eteindra au bout de 8 heures.
| Puisance | Durée limite de fonctionnement |
| 1 | 9 |
| 2 | 8 |
| 3 | 7 |
| 4 | 6 |
| 5 | 5 |
| 6 | 4 |
| 7 | 3 |
| 8 | 2 |
| 9 | 1 |
Signal sonore
Des anomalies, comme par exemple :
- un objet (casserole, couvert, ...) place plus de 10 secondes sur la zone de commande,
- un débordement sur la zone de commande,
- une pression prolongée sur une touche, peuvent déclencher un signal acoustique. Eliminer la cause de dysfonctionnement pour stopper le signal sonore. Si la cause de l'anomalie n'est pas éliminée, le signal sonore continue à retentir et la table s'eteint.
Conseils utiles pour la cuisson
FR
| Cuisson très vivie | 90 | Mise en pression Autocuisser Grillade | Friture Ebullition |
| Cuisson vivie | 100 | Crepes | Saise et coloration (Rotis, Steack, Escalope, Filets de poisson, Oeufs au plat) |
| Cuisson moyenne | 87 | Réduction rapide (Sauce liquides) Eau Frémissante (Pates, Riz, Légumes) Lait | |
| 86 | Réduction lente (Sauce épaisSES) | ||
| 85 | Cuisson au bain-marie | Cuisson Autocuiseur après chuchotement | |
| Cuisson douce | 84 | Mijotage (Ragouts) | Réchauffage des préparations |
| Cuisson très douce | 83 | Sauce chocolat | Maintien au chaud |
Précautions et consels
FR
! Cet apparéil a été concu et fabriqué conformément aux normes internationales de sécurité. Ces consignes de sécurité sont très importantes et doivent être lues attentivement.
Cet apparéil est conforme aux Directives Communautaires suivantes :
- 2006/95/CEE du 12.12.06 (Basse Tension) et modifications successives
- 2004/108/CEE du 15/12/04 (Compatibilité électromagnétique) et modifications successives
- 93/68/CEE du 22/07/93 et modifications successives.
- 1275/2008 stand-by/off mode.
Sécurité générale
! S'assurer que la prise d'air à travers la grille du ventilateur ne soit jamais bouchée. La table à encastrer exige en effet une bonne aération pour le refroidissement des composants électroniques.
- Cet apparéil a été créé pour un usage familial, de type non professionnel.
- Cet apparéil ne doit pas être installé en extérieur, même dans un endroit abrité, il est en effet très dangereux de le laisser exposé à la pluie et aux orages.
- Ne pas toucher à l'appareil si l'on est pieds nus ou si l'on a les mains ou les pieds mouillés ou humides.
- Cet apparéil qui sert à cuire des alimentés ne doit être utilisé que par des adultes conformément aux instructions du mode d'emploi. Ne pas utiliser la table comme plan de dépose ou comme planché à découvert.
- Le plan vitrocéramique résiste aux chocs mécaniques, il peut toute fois se fendre (ou même se briser) sous l'effet d'un choc provoqué par un objet pointu, tel qu'un ustensile par exemple. Dans ce cas, débrancher immédiatement l'appareil du réseau électrique et s'adresser à un centre d'assistance technique.
- Eviter que le cordon d'alimentation d'autres petits électroménagers touche à des parties chaudes de la table de cuisson.
- Ne pas oublier que la température des foyer reste assez élevé pendant trente minutes au moins après leur extinction. La chaleur résiduelle est aussi signalée par unvoyant (voir Mise en marche et Utilisation).
Garder àonne distance de la table de cuisson tout objet qui pourrait fondre, des objets en plastique ou en aluminium par exemple, ou des produits à haute teneur en sucre. Faire très attention aux emballages, au film plastique et au papier aluminium : au contact des surfaces encore chaudes ou tièdes, ils risquent d'endommager gravement la table.
- S'assurer que les manches des casseroles soient toujours tournés vers l'intérieur de la table de cuisson pour éviter tout risque d'accident.
- Ne pas tirer sur le cable pour débrancher la fiche de la prise de courant.
- N'effectuer aucune opération de nettoyage ou d'entretien sans avoirAAPARAVANT débranché la fiche de la prise de courant.
- Il n'est pas prévu que cet apparéil soit utilisé par des personnes (enfants compris) représentant des capacités physiques, sensorielles ou mentales réduites ou qui n'ont pas l'expérience ou les connaissances indispensablees, à moins qu'elles ne le fassent sous la surveillance de quelqu'un responsable de leur sécurité ou qu'elles aient été dûment formées sur l'utilisation de l' apparéil.
- Si des foyers halogènes équipent votre apparéil, ne les fixez pas des yeux trop longtemps.
- S'assurer que les enfants ne jouent pas avec l'appareil.
Mise au rebut

- Mise au rebut du matériel d'emballage : se conformer aux réglementations locales, les emballages pourront ainsi être recyclés.
- La directive européenne 2002/96/CE relative aux déchets d'équipements électriques etlectroniques (DEEE), prévoit que les électroménagers ne peuvent pas être traités comme des déchets solides urbains courants. Les apparciels usagés doivent faire l'objet d'une collecte séparée pour optimiser le taux de récapération et de recyclage des matériaux qui les composent et empêcher tout danger pour la santé et pour l'environnement. Le symbole de la poubelle barrée est appliqué sur tous les produits pour rappeler qu'ils font l'objet d'une collecte sélective.
Pour de plus amples renseignements sur la mise au rebut des électroménagers, les possesseurs peuvent s'adresser au service public prévu à cette effet ou aux commercants.
Mise hors tension
Avant toute opération de nettoyage ou d'entretien couper l'alimentation électrique de l'appareil.
Nettoyage de l'appareil
! Ne jamais utiliser de détergents abrasifs ou corrosifs, tels que des bombes aérosols pour grilloirs et jours, des détacheurs et des anti-rouille, des poudres à récurer ou des éponges à surface abrasive : ils risquent de rayer irrémédiablement la surface.
! Ne jamais nettoyer l'appareil avec des nettoyeurs vapeur ou haute pression.
- Pour un entretien courant, passer une éponge humide sur la surface de la table et essuyer avec du papier essuie-tout.
- Si la table est particulièrement sale, frottier avec un produit d'entretien adapté au verre vitrocérément, rincer et essuyer.
- Pour enlever les salissures en relief, utilisez le grattoir livre avec l'appareil. Intervenez des que possible, n'attendez pas que l'appareil ait refroidi afin d'eviter toute incrustation des salissures. L'utilisation d'une éponge en fil d'acier inoxydable, spéciale verre vitrocéramique, imprégnée d'eau savonneuse donne d'excellents résultats.
! Le grattoir fourni est coupant : utilisez-le avec précaution.
- Tout objet, matière plastique ou sucre ayant accidentellement fondu sur la table de cuisson doit être aussitôt enlevé à l'aide du grattoir tant que la surface est encore chaude.
-
Une fois que la table est propre, elle peut être traitée avec un produit d'entretien et de protection spécial : celui-ci forme un film invisible qui protège la surface en cas de débordement accidentel. Opérer de préférence quand l'appareil est tiède ou froid.
-
Prendre soin de tousjors bien rincer à l'eau claire et d'essuyer la table : les résidus des produits pouraient en effet s'incruster lors d'une prochaine cuisson.
Cadre en acier inox(uniquement pour les modèles avec encadrement)
Un contact prolongé avec une eau très calcaire ou l'utilisation de nettoyants contenant du phosphore peuvent tacher l'acier inox.
Nous conseillons de rincer abondamment et de bien essuyer après entretien. Il est préférible d'éliminer aussitôt tout débordement d'eau.
! Certaines tables ont un cadre en aluminium ressemblant à de l'acier inox. Ne pas utiliser de produits d'entretien et de dégraissage ne convenant pas pour l'aluminium.
Démontage de la table
Si le démontage de la table de cuisson s'avéré nécessaire :
- enlever les vis qui fixent les ressorts de centrage sur les côtés;
- desserrer les vis des crochets de fixation dans les coins;
- dégager la table de cuisson du meuble.
Il est vivement déconseilé d'essayer d'acceder aux mécanismes internes pour tenter une réparation. En cas de panne, contacter le service d'assistance technique.
Description technique des modèles
FR
Ces tableaux indiquent, modèle par modèle, les valeurs d'absorption d'énergie, le type d'élement chauffant et le diamètre de chaque foyer.
| Tables de cuisson | TEC 645 L | TRC 641 D L | ||
| Foyers | Puisance (en W) | Diametre (en mm) | Puisance (en W) | Diametre (en mm) |
| Arrière gauche | A 2500 | 210 | HD 2200/1000 | 210/140 |
| Arrière droit | H 1400 | 160 | H 1400 | 160 |
| Avant gauche | H 1200 | 145 | H 1200 | 145 |
| Avant droit | H 1800 | 180 | H 1800 | 180 |
| Puisance totale | 6900 | 6600 | ||
| Tables de cuisson | TRC 630 C | TRC640C/ TRC 740C | ||
| Foyers | Puisance (en W) | Diametre (en mm) | Puisance (en W) | Diametre (en mm) |
| Arrière gauche | H 2300 | 210 | H 2300 | 210 |
| Arrière droit | H 1400 | 160 | H 1400 | 160 |
| Avant gauche | - | - | H 1200 | 145 |
| Avant droit | H 1800 | 180 | H 1800 | 180 |
| Puisance totale | 5500 | 6700 | ||
Legende :
H = hilight simple
HD = hilight double
A = halogène simple

Italiano, 1

Français, 14

English,27

Deutsch, 40

Espanol, 53
TEC 645 L
TRC 641 D L
TRC 630 C
TRC 640 C
TRC 740 C
Contents
Installation, 28-30
Positioning
Antes de effetuar la connexion verifique que:
Notice Facile