NSH 115 - Verwarming AEG - Gratis gebruiksaanwijzing en handleiding
Vind de handleiding van het apparaat gratis NSH 115 AEG in PDF-formaat.
Download de handleiding voor uw Verwarming in PDF-formaat gratis! Vind uw handleiding NSH 115 - AEG en neem uw elektronisch apparaat weer in handen. Op deze pagina staan alle documenten die nodig zijn voor het gebruik van uw apparaat. NSH 115 van het merk AEG.
GEBRUIKSAANWIJZING NSH 115 AEG
Natuursteenverwarming
Gebruiks- en Montagehandleiding
Nederlandsls
Deutsch
Inhaltsverzeichnis
1. Gebruiksaanwijzing 16
1.1 Beschrijving van het toestel 16
1.2 Bediening 16
1.3 Veiligeidsvoorschriften 16
1.4 Onderhoud en reiniging 16
1.5 Wat te doen indien ...? 16
1.6 Belangrijke aanwijzing 16
2. Montageaanwijzing 17
2.1 Opbouw van het toestel 17
2.2 Technische gegevens 17
2.3 Voorschriften en bepalingen 18
2.4 Plaats van montage 18
2.5 Montage van het toestel 18
2.6 Eerste ingebruikneming 19
2.7Overdracht 19
2.8 Speciale accessoires 19
3.Garantie 19
3.1 Milieu en recycling 19




1. Gebruiksaanwijzing
1.1 Beschrijving van het toestel
De natuursteenverwarming bestaat uit een elektrisch verwarmde natuursteenplaat, die m.b.v. een aan de wand gemonteerde kamerthermostaat geregeld worden.
Daartoe wordt in dechterzijde van een kwalitatief hoogwaardige natuursteenplaat (1) van 30 mm dikte een verwarmingsdraad ingebracht, die deplaat gelijkmatig verwarmt.
De in de natuursteenplaat opgeslagen warmte worden in de vorm van langgolvige stralen (vergelijkbaar met zonnestralen) afgegeben en verwarmt aldus in gelijke mate de Personen en voorwerpen die zich in de kamer bevinden, zonder dat de lucht gaat wervelen.
Door het gebruik van speciale pluggen ter bevestiging van de wandholders (2) aan de natuursteenplaat zijn de bevestigingspunten van voren Niet zichtaar, zodat de structuur van de planta net onderbroken worden. De wandholders können zodenig gereconstruereeerd worden, dat de natuursteenverwarming zowel horizontaal als verticaal gemonteerd kan worden.
1.2 Bediening
De natuursteenverwarming worden uitsluitend geregeld m.b.v. de aan de wand gemonteerde kamerthermostat (opbouw- of inbouwmontage).
Daar bij dient men de gebruiks- en montagevoorschriften van de betreffende thermostat in acht te nemen.
1.3 Veiligheidsvoorschriften
- De montage (elektrische installment), de eerste ingebruinkeming en het onderhoud van dit toestel mogen alleen door een erkende installerateur overeenkomstig deze handleiding uitgevoerd worden.
- Het toestel mag in geen geval gebruikt worden als er in de opstellingruimte werkzaamheden zoals het leggen, schuren, lakken, reinigen met benzine en het onderhouden (met spray, boenwas) van vloeren en dergelijk je uitgevoerd worden.
- De behuizing van het toestel kan op sommige plekken verhit raken tot temperaturen van circa 80^ . Daarom希望大家能从现在开始,把我们带到这个地方。
Ook mogen er in de directe nabijheid van het toestel geen brandbare, Licht ontvlambare of warmte-isolerende voorwerpen of materialen zoals wasgoed, dekens, tijdschriften, blinkken boenwas of benzine, spuitbussen en dergelijkne neergelegd worden. Brandgevaar!
- Voor allerlei soorten voorwerpen zoals meubels, vitrages, gordijnen en textiel of overige brandbare of onbrandbare materialen dient tot de voorzijde van het toestel een minimale afstand van 500~mm aangehonden te worden, en tot de overige zijden minimaal 100~mm .
1.4 Onderhoud en reiniging
Voor het onderhoud en de reiniging volstaat een vochtige doek. De natuursteenverwarming dient afgekoeld teijken.
Vermijd schurende en bijtende reinigingsmiddelen.
1.5 Wat te doein indien...?
Wordt de natuursteenverwarming Niet warm, kijk dan in de zekeringkast of de bijgehorende zekeringen of de Fi-schakelaar uitgeschakeld zich.
Oorzaak verhelpen!
Kan de oorzaak Niet verholpen worden, neem dan contact op met de installateur.
1.6 Belangrijke aanwijzing

Deze instructies zorgvuldig bewaren en.altijd aan een volgende gebruiker overhandigen.
Bij eventuele reparatiewerkzaamheden aan de installateur terinzagegiven.
2. Montageaanwijzing
De opstelling, elektrische aansluiting en eerste inbedrijfstelling dienen door een installmentaar plaat te vinden die erkend is door het verantwoordelijke energiebedrijf. De installmenteur dient deze installmentaanwijzing in ache te nemen.
2.1 Opbouw van het toestel
1 Natursteenplaat
2 Wandholders
3 Verwarmingskabel, ingebed
4 Netaansluitsnoor
5 Afstandsbouten
6 Bevestigsschroef wandhouser
7 Zeskantschroef
In dechterzijde van de natuursteenplaten is een kanaalsysteme ingefreesd, waarin een verwarmingsdraad met twee automatisch veiligheidstemperatuurbegrenzer is ingebracht. Ten slotte worden het kanaalsysteme met marmeren kleefstof opgevuld.
2.3 Voorschriften en bepalingen
- Het toestel mag alleen gemonteerd worden aan een verticale wand die bestand is gegen temperaturen van tenminste 90^ .
- Er dieren minimale afstanden tot oppervlakken van aangrenzende objecten aangehouden te worden.
- Let op het typeplaatje! De aangegeven spanning要去 overeenkomen met de netspanning.
- Alle elektrische aansluit- en installmentgewerkzaamheden dieren overeenkomstig de VDE-bepalingen (DIN VDE 0100T520 A3), de voorschriften van het verantwoordelijkere energiebedrijf en de betreffende nationale en regione voorschriften uitgevoerd te worden.
- Alleen een vaste netaansluiting is möglichk.
- Het toestel mag nicht direct onder een wandcontactdoos worden aangebracht.
- Het toestel要去 over een minimale afstand van 3mm alpolig van het net kuren worden losgekoppeld. Installatie met een vast aangelegde aansluitleiding is Niet toegestaan.
- Bij de installmentie van het verwarmingstoestel in ruimten met een badkuip en/of douche dient rekening gezchoolen te worden met de veiligheidszone conform VDE 0199 deel 701 in overeenstemming met de gegevens op het typeplaatje.
- Het toestel dient zodenig aangebrachte te worden, dat de schakel- en regelsystemen nicht aangeraakt nutzen worden als men zich in de badkuip of onder de douche bevindt.
- De bedrijfsmiddelen dienen op de nominale opname van de toestellen berekend teijken.
- Installatie van de contactdoos in ruimten met een badkuip en/of douche is Niet toegestaan in de veiligheidszones 1 en 2.
2.4 Plaats van montage
De natuursteenverwarming is uitsluitend voor de vaste wandmontage bedoeld. Er dient waar bij op gelet te worden, dat de wand over voldoende draagvermogen beschikt.
Montage is möglich in alle ruimten. In badkamers kan de natuursteenverwarming in veiligheidszone 2 gemonteerd worden.
2.5 Montage van het toestel
Fabrieksmatig is de natuursteenverwarming voor horizontale montage ontworpen.
Bij verticale montage van de natuursteenverwarming dient men voordat men daarmee begint de volgende wijzigingen aan te brengen:
de zich boven de netaansluitleiding bevindende wandhouser (2) dient met de diagonalzittende afstandsbout (5) verwangen te worden;
Er dient op gelet te worden, dat het netaansluitsnoer zich alkijd aan de onderkant bevindt.
beside wandholders met de langgatopeningenaar beneden draaien.

De bevestigingschroeven (6) in de natuursteenverwarming voorzichtigig aandraaien, waar dat anders de pluggen in de natuursteenverwarming stukgedraaid kannen worden!
De natuursteenverwarming dient alleen aan een egale wand bevestigd te worden, onwardat er anders door spanningen scheurtjes in de natuursteenplaat konnen ontstaan.
Bij een oneffenheid dient voor het aandraaien van de bevestigingschroeven het oppervlak geegaliseerd te worden!
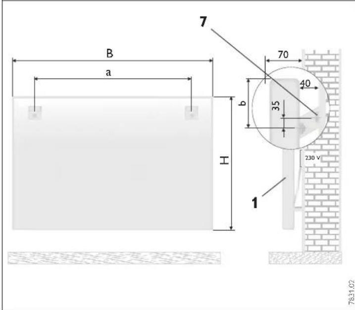
De maten a en b voor de boorgaten aan de natuursteenverwarming opmeten;
Boor de gaten volgens de berekende maten in een wand met voldoende draagvermogen. Houd hierbij voor de veiligheid aan alle zijden een afstand aan van 100~mm (b.v. maat b + 100mm );
Zeskantschroeven (7) zover in de boorgaten schroeven dat de natuursteenverwarming met de open langgaten van de wandholders (2) nog acheer de schroefkop kan worden vastgehaakt;
Natursteenverwarming erin hangen (niet kiepen of kantelen - breukgevaar) en zeskantschroeven aandraaien. Eventuele spannings die optreden kunnen weggenomen worden door de bevestigingschroeven (6) in de natursteenplaat ieis losser te draaien. Daarna dienen deze schroeven weeet tot aan de aanslag vastgedraaid worden (pluggen kunnen bij te strak aandraaien losraken);
2.5.2 Elektrische aansluiting
De natuursteenverwarming alleen op wisselspanning 230V 50 Hz aansluten.
Let er bij het inkorten van de netaansluitleiding op, dat het loshaken van de natuursteenverwarming ook zonder afklemmen van de aansluitleiding möglichk is.
2.6 Eerste ingebruikneming

Wordt de natuursteenverwarming voor het eerst opgewarmd, dan mag de opwarmtijd Niet longer duren dan 20 minutes. Daarna要去 de plaat tenminste 60 minutes afkoelen.
Deze voorzorgsmaatregel dient nog eenmaal herhaald te worden.
Het toestel dient gedurende de eerste twee dagen trapsgewijs opgewarmd te worden totdat de gewenste kamertemperatuur is bereikt. Zo worden voorkomen dat er haarscheurtjes optreden. Ontstaan er toch haarscheurtjes, dan is dat Niet gevaarlijk en Niet van invloed op het functioneren en de verilgheid van de natuursteenverwarming.
2.7 Overdracht
Leg aan de gebruiker de toestelfunctiesuit. Maak hem vooral attent op de veiligheidsvoorschriften. Overhandig de gebruiks- en installmentaanwijzing aan de gebruiker.
2.8 Speciale accessoires
De natuursteenverwarming worden m.b.v. de kamerthermostat geregeld.
RT 500: kamerthermostat met thermische teruggeleiding, schakelvermogen 10 A 250 V.
RT 600: kamerthermostat met thermische teruggeleiding, schakelvermogen 10 A 250 V.
RT 601 SN: kamertemperatuurregelaar met thermische terugvoer, met netschakelaar AAN/UIT, schakelvermogen 10 A 250 V.
RTE 900 SN: elektrische tweepuntregelaar met netschakelaar AAN/UIT, schakelvermögen 16 A 250 V.
3. Garantie
Aanspraak op garantie bestaat uitsluitend in het land waar het materiaal gekocht is. U dient zich te wenden tot de vestiging van AEG of de importeur hiervan in het betreffende land.

De montage, de elektrische installmentie, het onderhoud en de eerste inbedrijfname maguitsluitend worden uitgevoerd door een gekwalificeerd persoon.
De fabrikant is nicht aansprakelijk voor defecte toestellen, welke Niet volgens de bijgeleverde gebruiks- en montageaanwijzing zijn aangesloten of worden gebruikt.
3.1 Milieu en recycling
Wij verzoeken u ons bij de bescherming van het milieu behulpzaam te+zijn. Verwijder de verpakking waarom overeenkomstig de voor de afvalverwerking geldende nationale voorschriften.
3.1.1 Recycling van oude toestellen
Toestellen met dit kenmerk horen Niet thus in de vuilnisbak en zich apart in te zamelen en te recyclen. De recycling van oude toestellen要去 steeds vakkundig en volgens de terplaatse geldende voorschriften en wetgeving plaats vinden.
Stiebel Eltron Nederland b.v.
Daviottenweg 36
SimpelGids