KF 198 55 - Riscaldamento Wamsler - Manuale utente e istruzioni gratuiti
Trova gratuitamente il manuale del dispositivo KF 198 55 Wamsler in formato PDF.
Domande frequenti - KF 198 55 Wamsler
Questions des utilisateurs sur KF 198 55 Wamsler
0 question sur cet appareil. Repondez a celles que vous connaissez ou posez la votre.
Poser une nouvelle question sur cet appareil
Scarica le istruzioni per il tuo Riscaldamento in formato PDF gratuitamente! Trova il tuo manuale KF 198 55 - Wamsler e riprendi in mano il tuo dispositivo elettronico. In questa pagina sono pubblicati tutti i documenti necessari per l'utilizzo del tuo dispositivo. KF 198 55 del marchio Wamsler.
MANUALE UTENTE KF 198 55 Wamsler
Istruzioni per uso e INSTALLazione

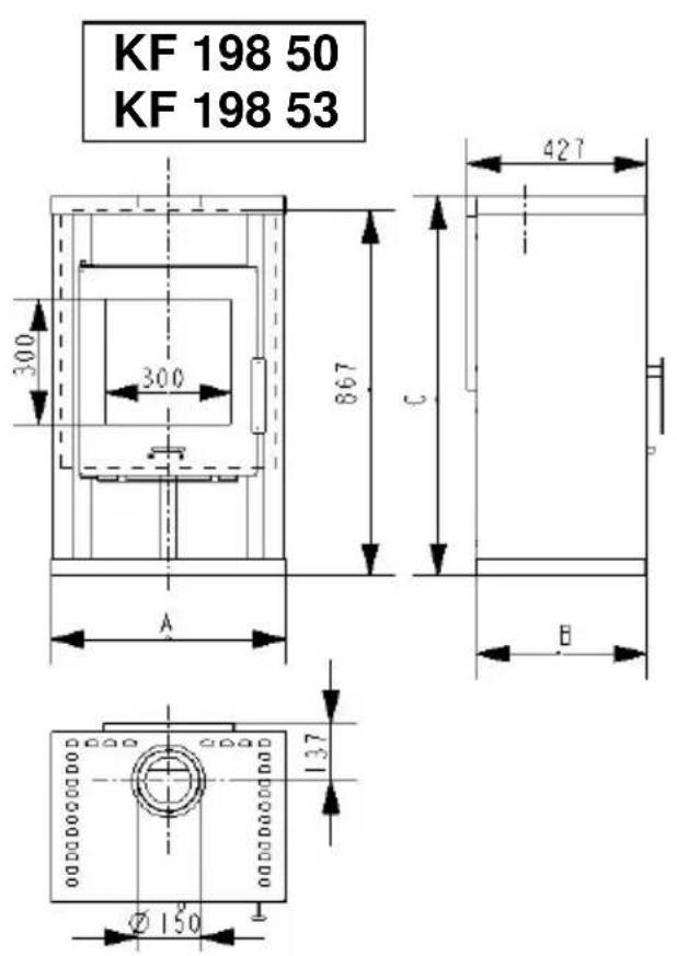
KF 198 50 / 53
LUXOR


KF 19856
ci complimentiamo con Lei per aver acquistato esta stufa da riscaldamento e per l'ottima scelta effettuata!
Questo prodotto Le garantisce
- qualità elevata grazie all'utilizzo di ottimi materiali testati
- funzionamento sicuro grazie alle avanzate technologie verificate in modo rigoroso in base alla norma europea DIN EN 13240
- lunga durata nel tempo grazie alla robusta struttura
Per garantire un lungo funzionamento nel tempo della Sua stufa è importante leggere attendamente le seguenti istruzioni, nelle quali troverà tutte le informazioni necessarie或者其他 che utili suggerimenti.
ATTENZIONE
Per la richiesta di pezzi di ricambio indicate il N^ di articolo/Article No. e il N^ di serie/Serial No. riportati sulla targa di identificazione dell'apparecchio.
INDICE
Gentilissimo CLIENTE 58
INDICE 58
AVVERTENZE DI SICUREZZA 59
- Istruzioni per l'uso 62
1.1 Struttura stufa 62
1.2 Accensione 63
1.3 Spegimento 65
1.4 Generalità sul funzionamento 65
1.5 Pulizia e manutenzione 66
1.6 Cause e risoluzione anomalie 69
2.Installazione 70
2.1 Prescrizioni e norme 70
2.2 Distanze di sicurezza 71
2.3 Collegamento alla canna fumaria 72
- Schede tecniche 77
3.1 Disegno dimensionale e dati....Fehler! Textmarke nicht definiert.
3.2 Informazioni sul peso e dati technici 80
3.3 Dichiarazione di conformità CE 82
AVVERTENZE DI SICUREZZA
- L' apparecchio e i loro dispositivi sono stati testati sulla base della norma DIN EN 13240 o secondo DIN EN 12815 (vedi targa di identificazione).
- Per un funzionamento ottimale della Sua stufa è fondamentale che la canna fumaria alla quale volete effettuare il collegamento sia in condizioni perfette.
- L'installazione e l'uso delle apparecchiature, deve avvenire esclusivamente in ambiente giudicato idoneo dagli enti preposti e soprattutto in conformità alle norme e prescrizioni vigenti in materia.
Gli impianti technologici e l'installazione degli appearecchi devono essere effettuati da personale professionalmente qualificato, autorizzato a rilasciare certificato di conformità e rispondenza alle norme in vigore. - Nel luogo di installmente devono essere rispetto delle leggi, norme e direttive in vigore, in materia di edilizia civile e/o industriiale, utilizzando sempre i dispositivi di sicurezza individuale e gli altri mezzi di protezione previsti per legge.
Devono inoltre essere rispettate tutte le leggi, norme, direttive in vigore in materia di impiantistica, canne fumarie, elettricità, acqua, ventilazione/aspirazione. - Prima di procedere all'accensione dell'apparecchio, leggere attendamente tutte le istruzioni per l'uso e contattare un technique specializzato.
- Per il posizionamento degli appearecchi si consiglia di indossare quanti puliti di cotone per evitare di lasciare impronte digitali difficili da rimuovere in sequito.
- Per mantenere l'aria pulita e garantire un funzionamento sicuro dell'apparecchio, il carico del combustibile non deve superare le quantità massime indicate nelle istruzioni per l'uso. Gli sportelli devono inoltre ri manere sempre chiusi per evitare un surriscaldamento che danneggerebbe la stufa. Eventuali danni come quello appena descriptors non sono coperti alla garanzia.
- Quando l'apparecchio è in funzione gli sportelli devono sempre rimanere chiusi.
-
Sono ammessi i seguenti combustibili:
-
ceppi di legna allo stato naturale (lunghezza max 35 cm)
- mattonelle di lignite (v. tabella dei combustibili ammessi nelle istruzioni per l'uso)
- Non utilizzato combustibili liquidi per l'accensione. Utilizzato solo apposti accendi fuoco o bricchetti di legno.
-
É vietato bruciare rifiuti, minuzzoli di legna, corteccia, polverino di carbone, trucioli, legna umida e trattata con antisettici, carta, cartone e simili.
-
Durante la prima accensione la stufa potrebbe emanare fumi e odori sgradevoli. Provedere subito ad arieggiare bene il locale (aprire porte e fine-stre) e riscaldare alla potenza termica nominale massima per almeno un'ora. Se non viene raggiunta la temperatura massima con il primo riscaldamento, quosti fenomeni potrebbero ripresentarsi anche in seguito.
- Gli elementi di commando e i dispositivi di impostazione sono da regolare secondo le istruzioni per l'uso. Se l'apparecchio è caldo si raccomanda di servirsi di attrezzi speciali o dei guanti di protezione.
- Aprendo lo sportello del focolare potrebbe verificarsi un'uscita di fumo dovuta ad un utilizzo improprio o ad uno scarso tiraggio della canna fumaria. Si raccomanda pertanto, di aprire lo sportello lentamente e solo di quale centimetro, prima di aprirlo completeness. Prima di aprire lo sportello per la ricarica di combustibile, assicurarsi che nel focolare vi sia solo il letto di brace e che le fiamme siano tutte spente.
- Quando la stufa è in funzione tutte le superfici, in particolare i vetri, le maniglie e i dispositivi di commando, possono raggiungere temperature elevate. è importante controllare che bambini, adolescenti, persone anziane e animali domestici mantengano una distanza di sicurezza dall'apparecchio quando questo è in funzione. Per manipolare la stufa servirsi del quanto di protezione o degli attrezzi speciali forniti. Bambini e adolescenti al di sotto dei 16 anni possono utilizzato la stufa solo se sorvegliati da uomini.
- Assicurarsi che il cassetto cenere venga sempre spinto nella sua sede fino al raggiungimento dello scatto e, soprattutto, che non vengano smaltiti tizzoni/braci ardenti (pericolò di incendio).
- Nei periodi di mezza stagione possono verificarsi anomalie della canna fumaria che possono compromettere la corretta espulsione dei gas combusti. In questo caso è opportuno riempire la camera di combustione con una quantità minore di combustibile, meglio se con trucoli o bricchetti di legno. Quindi mettere in funzione la stufa e con attenzione, stabilizzarne il tiraggio. Per un buon funzionamento della stufa la Griglia Focolare deve essere pulita quotidianamente.
- Dopogni accensione stagionale è opportuno far ispezionare la stufa da tecnici qualificati ed effettuare una pulizia completa di tubi e giro fumi.
- Per eventuali riparazioni o sostituzioni contattare tempestivamente il proprio rivenditore avendo cura di comunicare l'esatto n^ di articolo e di series dell'apparecchio. Tutti i componenti dovanno essere sostituiti esclusiva-mente con pezioni originali Wamsler.
- Eventuali lavori, in particolare l'installazione, il montaggio, la prima accensione, nonché i servizi di assistenza e di riparazione sono essere eseguiti solo da una ditta specializzata (in impianti di riscaldamento o riscaldamento ad aria). Eventuali installazioni errate faranno decadere agli forma di garanzia.
-
É importante che vengano rispetto le distance di sicurezza ai lati e sul retro per tutti i componenti e materiali infiammabili. Le distance sono riportate nelle istruzioni per l'uso o sulla targa dell'apparecchio.
-
É vietato apportare qualsiasi tipo di modifica all'apparecchio.
Non è amesso il collegamento ad una canna fumaria con altezza utile inferiore ai 4 metri.
In caso di incendio della canna fumaria chiudere subito tutte le aperture dell'apparecchio e avvertire i Vigili del Fuoco. Non provare in nessun caso a spegnerlo autonomamente. Dop o l'incendio è assolutamente necessario far ispezionare la canna fumaria da un technician specializzato. - Poiché i combustibili solidi bruciando producono fuliggine, sul vetro della stufa potrebbero formarsi depositi; ciò non è da considerarsi un difetto dell'apparecchio.
- Essendo la pietra ollare/arenaria pietre naturali, eventuali alterazioni cromatiche sono normali e non costituiscono motivo di reclamo.
- L'apparecchiatura deve essere impiegata solo per l'uso per il quale è stata eslicitamente concepita, altri impieghi sono improprie e pertanto pericolosi.
- L'apparecchiatura non deve essere utilizzata come inceneritore.
- In caso di vetro del portello focolare rotto e/o incrinato, casi come in caso di anomalie di funzionamento, l'apparecchio non può essere什么意思 in funzione, se non dopo aver rimioso l'anomalia.
- Non ostruire le aperture o feritoie di aspirazione o di smaltimento del calore.
- Tutti i regolamenti locali, inclusi quelli riferiti alle Norme Nazionali ed Europee devono essere rispetto nell'installazione dell'apparecchio.
- Il funzionamento dell'apparecchio è di tipologia intermittente, quando richiede che il combustibile venga caricato manualmente durante il funzionamento.
1. Istruzioni per l'uso
1.1 Struttura stufa

Fig. 1
1.2 Accensione
Combustibili
Per garantire un corretto funzionamento della stufa e una formazione minima di fumo devono essere utilizzati esclusivamente i combustibili elencati di seguito: legna secca allo stato naturale con umidità massima del 20%.
| Tipodi combustibile | Valore calorico ca. KJ/kg |
| Legna dura | 14.600 |
| Legna morbida | 11.500 |
É vietato bruciare i seguenti combustibili:
Rifiuti, minuzzoli di legna, corteccia, polverino di carbone, trucioli, legna umida e trattata con antisettici, carta, cartone e simili. Per l'accensione utilizzare bricchetti di legno o accendi fuoco da grill.
N.B. Per I' accensione non utilizzato mai : alcohol, benzina, o altri combustibili liquidi.
Attenzione!
Durante la prima accensione la stufa potrebbe emanare fumi e odori sgradevoli. Provedere subito ad arieggiare bene il locale (aprire porte e finestre) e riscaldare alla potenza termica nominale massima per almeno un'ora. Se non viene raggiunta la temperatura massima con la prima accensione, questi fenomeni potrebbero ripresentarsianche in seguito.
Mediante la leva dell'aria primaria è possibile impostare in continuo i valori compresi nel Campo di regolazione per ottenere la potenza calorica desiderata.
Impostazione aria di combustione:
Le leve devono sempre trovarsi al centro dei symboli.
Tabella 1
| Combustibile | Posizione leva aria primaria | |
| Accensione | A | |
| Ceppi di legna | Potenza termica nominale | H |
| Spegnimento | H | |
Quantità di carico orario:
Per il legno non superare una quantità di due ceppi (lunghezza max 35 cm) per un carico di circa 1,8 kg.
Prima accensione
- Prima di procedere all'accensione rimuovere il materiale di imballaggio del parafiamma sopra il focolare (fig. 5) ed eventualmenteanche il nastro adesi- vo del vetro alla lasciare residui.
Aprière lo sportello del focolare sollevando la maniglia verso l'alto (fig. 2). Se l'apparecchio è caldo, utilizzato un dato di protezione isolato. Impostare l'aria primaria e la scelta di combustibile (fig. 3) secondo quello indicate alla tabella 1.
Posizione sulla griglia focolare bricchetti di legno o accendi fuoco e aggiungervi sopra dei trucoli di legno. Procedere con una piccola carica di legna per poi aumentarne la quantità, accendere, e poi richiudere lo sportello del focolare. Quando la fiamma si è ben sviluppata, e si è formato un buon strato di brace, aggiungere un'ulteriore carica di combustibile. In seguito impostare l'aria primaria secondo quando indicato alla tabella 1.
Per la prima accensione è opportuno procedere in modo "lieve" con piccole quantità di combustibile, per consentire ai componenti di abituarsi al calore. Durante esta fase la stufa potrebbe emanare fumi e odori sgradevoli. Provedere subito ad arieggiare bene il locale (aprire porte e finestre) e riscaldare alla potenza termica nominale massima per almeno un'ora. Se non viene raggiunta la temperatura massima con la prima accensione, quosti fenomeni potrebbero ripresentarsianche in seguito.
Il combustibile non deve esseregettato, ma appoggiato nel focolare con delicatezza per evitare di danneggiare la parte in muratura dell'apparecchio.
Attenzione!
Aprendo lo sportello del focolare potrebbe verificarsi un'uscita di fumo dovuta ad un utilizzo improprio o ad uno scarso tiraggio della canna fumaria. Si raccomanda pertanto di aprire lo sportello lentamente, e solo di quale centimetro, prima di aprirlo completeness. Prima di aprire lo sportello per la ricarica di combustibile, assicurarsi che nel focolare vi sia solo il fatto di brace e che le fiamme siano tutte spente.
1.3 Spegnimento
Chiudere gli sportelli e portare la regolazione dell'aria primaria in posizione chiusa. Lasciar consumare la brace rimasta e far raffreddare la stufa. Pulire e svuotare il focolare e il cassettocene solo quando la stufa si è raffreddata a temperatura ambiente! Raccomandiamo di far attenzione alla possibile presenza di braci o tizzoni caldi.
1.4 Generalità sul funzionamento
Gli sportelli del focolare devono rimanere sempre chiusi nelle stufa è in funzione. É possibile aprirli per l'accensione, l'aggiunta di carico o per la pulizia del focola.
Un adeguato apporto di aria secondaria consente di bruciare又能 i componenti combustibili dei gas di scarico. Non più essere escludo un eventuale deposito di sporco sul vetro dovuto ai combustibili solidi e cui non è da considerarsi come un difetto dell'apparecchio. Grazie a questoistema la combustione genera molto e fuliggine garantendo il rispetto dell'ambiente. Qualora la stufa venga utilizzata nei periodi di mezza stagione è necessario prima controllare il tiraggio della canna fumaria, che potrebbe essere scarso se la temperature esterna è elevata. A quello scopo avvincare un fiammifero acceso allo sportello del focolare leggermente aperto. Se la fiamma non dovesse tirare sufficientemente in direzione dell'apertura, bruciare per breve tempo dei trucoli o bricchetti di legno nella stufa o nell'apertura di ispezione della canna fumaria. Per consentire un buon apporto di aria, prima di agli combustione pulire e scuotere la griglia focolare. Svuotare regolarmente il cassetto cenere ad apparecchio freddo (fig. 4). Se l'apparecchio è ancora caldo, indossare il quanto di protezione fornito. Accertarsi che durante QUESTra procedura non vengano smaltiti residui di combustione ardenti (braci o tizzoni caldi).
Assicurarsi che il cassetto cenere venga sempre spinto nella sua sede fino al raggiungimento dello scatto.
Attenzione!
Per garantire aria pulita e una buona resa dell'apparecchio, il carico del combustibile non deve superare le quantità max indicate nelle istruzioni per l'uso per evitare un surriscaldamento che danneggerebbe la stufa. Eventuali danni come quello appena descripto non sono coperti alla garanzia. Una minore resa termica si ottiene soltanto riducendo le quantità di carico e non mediante diminuzione dell'aria primaria.
1.5 Pulizia e manutenzione
Un buon utilizzato dell'apparecchio associato ad un'accurata pulizia e manutenzione garantiscono la stabilità dei valori e una lunga durata nel tempo dell'apparecchio. Ciò consente di risparmiare preziose risorse, rispetto l'ambiente ed evitare ulteriori spese. Per procedere alla pulizia tirare in avanti il parafiamma. In quello modo è possibile pulire il giro fumi dall'interno o, rimuovendo il tubo di scarico, dall'alto.
Al terme dell'operazione di pulizia reinserire il parafiamma nella posizione iniziale.
Attenzione!
A fine stagione è opportuno sottoporre la stufa a una pulizia completa. Per eventuali riparazioni o sostituzioni contattare tempestivamente il proprio rivenditore avendo cura di comunicare l'esatto n° di articolo e di serie dell'apparecchio (v. targa di identificazione).
La pulizia delle superfici esterne è da effettuare a stufa fredda. Devono essere pulite con acqua corrente o, in casi particulari, pretrattate con acqua saponata o detersivo per piatti, e poi strofinate fino a complete asciugatura.
Prima del primo utilizzato pulire il vetro ROBAX S della stufa con un panno umido e pulito e aggiungere poi delle gocce di detergente per vetroceramica su entrambi i lati del vetro mediante carta da cucina.
La pregiata superficie di ROBAX S è rivestita con una pellicola invisibile che consente di mantenere il vetro pulito e che agevola le operazioni di pulizia sequeste sono svolte regolarmente.
I combustibili solidi bruciando producono fuliggine e la formazione sul vero di eventuali depositi non cui assere mai del tutto esclusa; perché non è da considerarsi un difetto dell'apparecchio.
Pulizia delle ceramiche: sporco e grasso possono essere rimossi con acqua e sapone.
Pulizia di pietra ollare e arenaria: essendo pietra ollare e arenaria pietre naturali, eventuali alterazioni cromatiche sono normali e non costituiscono motivo di reclamo! Sporco e grasso possono essere rimossi con acqua e sapone, piccoli graffi con carta abrasiva a umido (grana 240).
Importante: non utilizzare in nessun caso spugne, abrasivi e detergenti aggressivi o che potrebbero graffiare le superfici!
Eventuali lavori, in particolare l'installazione, il montaggio, la prima accensione, nonché i servizi di assistenza e di riparazione possono essere eseguiti solo da una ditta specializzata (in impianti di riscaldamento o riscaldamento ad aria).
Eventuali installazioni errate faranno decadere agli forma di garanzia.

Fig. 2

Fig. 3

Fig. 4

Fig. 5
Rimuovere carta ondulata di imballaggio
1.6 Cause e risoluzione anomalie
| Tipodi di anomalia | Cause possibili Rimedi | |
| Formazione di odori: | Asciugatura della vernice utilizzata ed evaporazione dei residui diolio. | Lasciare la stufa in funzione per diverse ore sulla posizione minima sono comeindicato nelle istruzioni per l'uso. In seguito lasciare riscaldare per diverse ore a potenza massima. |
| Scarsa emissione di calore: | •È stata scelta una potenza troppo Bassa•Tiraggio troppo basso | •Far verificare il Suo fabbisogno termico da un technician esperto.•La stufa richiede un tiraggio min di 11 Pa e più arrivare ad un max di 20 Pa per breve tempo. Controllare la tenuta della canna fumaria. Verificare soprattutto le aperture della canna fumaria e di pulizia. Se necessario collegare un tratto verticalie.•Tutti i collegamenti dei tubi di scarico devono averera una buona tenuta stagna ed essere isolati con materiale refrattario.•Controllare la tenuta e chiudere bene gli sportelli. In caso far sostituire i nastri signillanti.•Utilizzare solamente legna ben asciutta. |
| •Tubo di scarico troppo lungo e non sigillato | ||
| •Sportelli vetro, focolare ocene non ermetici | ||
| •Combustione di legna troppo umida |
Provvedimenti da attuare in caso di incendio di canna fumaria
Una pulizia non completa della canna fumaria, l'utilizzo di combustibile non idoneo (per esempio legna troppo umida) o l'impostazione sbagliata dell'aria della combustione potrebbero provocare un incendio della canna fumaria. In quello caso chiudere la presa d'aria della stufa e chiamare immediatamente i Vigili del Fuoco.
N.B. Non provare mai ad estinguere il fuoco con acqua.
2. Installazione
2.1 Prescrizioni e norme
- Leggere attendamente il contentuto del presente manuale, in quanto fornisce importanti significazioni ed istruzioni riguardanti l'installazione, l'uso, la manutenzione e soprattutto la sicurezza del prodotto.
- L'installazione e l'uso delle apparecchiature, deve avvenire esclusivamente in ambiente giudicato idoneo dagli enti preposti e soprattutto in conformità alle norme e prescrizioni vigenti in materia.
- Gli impiani technologici e l'installazione degli apparecchi devono essere effettuali da personale professionalmente qualificato, autorizzato a rilasciare certificato di conformità e rispondenza alle norme in vigore.
- Nel luogo di installatione devono essere rispetto delle leggi, norme e direttive in vigore, in materia di edilizia civile e/o industriiale, utilizzato sempre i dispositivi di sicurezza individuale e gli altri mezzi di protezione previsti per legge.
- Devono inoltre essere rispetto delle leggi, norme, direttive in vigore in materia di impiantistica, canne fumarie, elettricità, acqua, ventilazione/aspirazione.
- Il costruttore declina agli responsabilità derivante da installazione errata, manomissione, utilizzo non corretto dell'apparecchio, uso improprio, cattiva manutenzione, inossevanza delle normative vigenti e imperizia d'uso.
Operazioni preliminari
- Togliere delicatamente l'imballo.
- Il materiale che compone l'imballo va riciclato mettendolo negli apposti contentitori o conferito al site preposto nel comune di residenza.
- Prima dell'installazione assicurasi dell'integrità dell'apparecchio, in caso di dubbio non utilizzato e rivolgersi al rivenditore.
Posizionamento apparecchio
-
Il除去 dell'apparecchio deve prevedere:
-
Una pavimentazione di adeguata capacité di carico, superiore al peso dell'apparecchio. Se la costruzione esistente non soddisfa quello requisito, misure appropriate dovanno essere prese (Es. piastra di distribuzione di carico).
- Una pavimentazione adatta all'irraggiamento calorico che garantisce l' edificio contro i rischi di incendio.
- L'installazione dell'apparecchio deve garantire facile accesso per la pulizia dell'apparecchio stesso, dei condotti dei gas di scarico e della canna fumaria.
2.2 Distanze di sicurezza
Proteggere dall'effetto del calore tutti gli elementi costruttivi, mobili o tessuti di arredamento infiammabili situati nelle vicinanze della stufa.
Oggetti all'interno della zona di irraggiamento
Per gli elementi costruttivi, i mobili e i tessuti di arredamento infiammabili situati nella zona di irraggiamozione della stufa è necessario rispetto una distanza minima di 80 cm (A), misurati dal bordo anteriore dell'apertura del focolare. La distanza di sicurezza si riduce ai 40 cm (B) qualora di fronte all'elemento sua installata una protezione areata (v. fig. 6).
Oggetti al di fuori della zona di irraggiamento
Le pareti laterali e quella posteriore all'apparecchio non possono essere realizzata o rivestite con materiale infiammabile qualora la distanza laterale sia inferiore ai 30 cm e quella posteriore ai 20 cm.
Anche per mobili in legno o in plastica deve essere rispettata una distanza laterale di 30 cm (v. fig. 7).

Fig. 6

Fig. 7
Pavimento sotto e davanti alla stufa
I pavimenti in materiale infiammabile come moquette, parquet o sughero devono essere sostituiti o protetti sotto la stufa, davanti fino a 50 cm dal bordo del focola re e lateralmente fino a 30 cm da un rivestimento in materiale non infiammabile, come ceramicica, pietra, vetro o da una base salva-pavimento in acciaio.
2.3 Collegamento alla canna fumaria
ATTENZIONE!
Prima di procedere al collegamento dell'apparecchio consultare un technician specializzato di zona!
I tratti di collegamento della stufa devono essere ben saldati e sigillati e non devono essere insertiti in profundità nella sezione trasversale libera della canna fumaria. Il tratto di collegamento tra stufa e canna fumaria deve averere un diametro equivalente a quella del bocchettone di uscita fumi della stufa. Tratti orizzontali superiori ai 0,5 metri devono averere una pendenza di 10 gradi rispetto alla canna fumaria. Tubi non isolati termicamente o con andamento orizzontale non devono averere una lunghezza superiore ad un metro.
La Misura X (distanza da elementi costruttivi/materiali in-fiammabili) da rispetto è quella indica dal produttore dell'apparecchio.
ATTENZIONE!
Per il dimensionamento della canna fumaria consultare i dati relativi all'apparecchio nella sezione 3.


CAMINO O CANNA FUMARIA
-
Il camino o canna fumaria deve rispondere ai seguenti requisiti:
-
Essere a tenuta dei prodotti della combustione, impermeabile ed adeguate tamente isolato e coibentato alla stregua delle condizioni di impiego (UNI 9615);
- Essere realizzato in materiali adatti a resistere alle normali sollecitazioni meccaniche, al calore, all'azione dei prodotti della combustione e alle eventuali condense;
- Avere andamento prevalente verticale con deviazioni dell'asse non superiori a 45^ ;
- Essere adeguatamente distanziato da materiali combustibili o infiammabili mediate intercapedine d'aria od opportuno isolante;
- Avere sezione interna preferibilmente circolare; lesezioni quadrate o rettangolari devono averengoli arrotondati con raggio non inferiore a 20 mm;
- Avere categoria interna costante, libera e independente;
- Avere lesezionirettangolari con rapporto massimo tra i lati di 1,5;
- Dovranno essere rispetto leindicazioni del costruttore dell'apparecchio per quanto concerne la sezione e le caratteristiche costruttive della canna fumaria/camino. Persezioni particolari, variazioni di sezione o di percorso dovrè essere effettuata una verifica del funzionamento delsystema di evacuatione fumi con appropriato tipo di calcolo fluidodinamico (UNI 9615).
- E' consigliato che il condotto funario sia dotato di una camera per raccolta materiali solidi ed eventuali condense, situata sotto l'imbocco del canale da fumo, in modo da essere facilemente apribile ed ispezionabile da sportello a tenuta d'aria.
- In caso di incendio della canna fumaria munirsi di adeguati sistemi per soffocare le fiamme (es. utilizzato un estintore a polvere o ad anidride carbonica) e richiedere l'intervento dei Vigili del Fuoco.
COLLEGAMENTO DELL'APPARECCHIO ALLA CANNA FUMARIA ED EVACUAZIONE DEI PRODOTTI DELLA COMBUSTIONE (vedi ancche normativa UNI 10683)
- Il collegamento tra l'apparecchio di utilizzazione e la canna fumaria deve ricevere lo scarico da un solo generatore di calore.
- E' ammensa la realizazione di apparecchio composto da caminetto e fornò di cottura con un unico punto di scarico verso il camino, per il quale il costruttore dovrà fornire le caratteristiche costruttive del raccordo dei canali da fumo.
- E' vietato convogliare nelle stesso canale da fumo lo scarico proveniente da cappe sovrastanti gli appearecchi di cottura.
-
E' vietato lo scarico diretto verso spazi chiusianche se a cielo libero.
-
Lo scarico diretto dei prodotti della combustione deve essere previsto a fatto ed il condotto fumario deve ave le caratteristiche previste precedentente.
COMIGNOLO
-
Il comignolo deve rispondere ai seguenti requisiti:
-
Avere sezione interna equivalente a quella del camino;
- Avere sezione utile di uscita non inferiore al doppio di quella interna del camino;
- Essere costruito in modo da impedire la penetrazione nel camino di pioggia, neve, corpi estranei e in modo che anche in caso di venti di agli direzione e inclinazione sia comunique assicurato lo scarico dei prodotti della combustione;
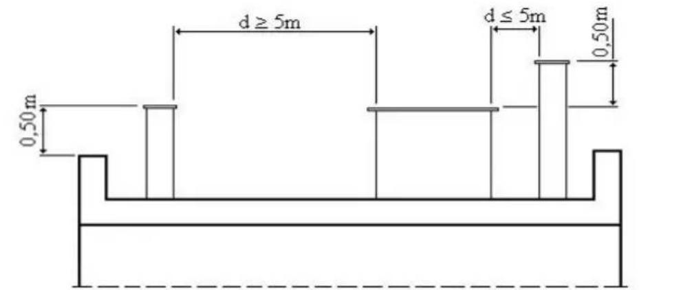
- Essere posizionato in modo da garantire una adeguata dispersione e diluizione dei prodotti della combustione e comunique al di fuori della zona di reflusso in cui è favorita la formazione di contropressioni. Tale zona ha dimensioni e conformazioni diverse in funzione dell'angolo di inclinazione della copertura, per cui risulta necessario adottare le altezze minime indicate negli schemi seguenti:


| Inclinazione del fatto C (°) | A H | Altezza della zona di reflusso Z (m) | |
| 15 1,85 | 1,00 | 0,50 | |
| 30 1,50 | 1,30 | 0,80 | |
| 45 1,30 | 2,00 | 1,50 | |
| 60 1,20 | 2,50 | 2,10 |






REALIZZAZIONE DELL'ALLACCIAMENTO ALLA CANNA FUMARIA
- Eseguire il collegamento dell'apparecchio alla canna fumaria del camino esti stente, assicurandosi che il tubo di uscita fumi non occupi la sezione libera della canna fumaria.
- Utilizzare esclusivamente tubi adatti allo smaltimento dei fumi della combustione.
- Limitare i tratti orizzontali del condotto di raccordo alla canna fumaria (max 1 metro) e l'uso di curve.


PRESA ARIA COMBUSTIONE DALL'AMBIENTE DI INSTALLAZIONE
- L'apparecchio deve poter disporre dell'aria necessaria a garantirne il regolare funzionamento mediante prese d'aria esterna.
- Le prese d'aria devono rispondere ai seguenti requisiti:
a) Avere sezione libera totale minima di 200~cm^2
b) Essere comunicanti direttamente con l'ambiente di installmente;
c) Essere protette con griglia, rete metallica o idonea protezione parché non riduca la sezione minima di cui al punto a) e posizionate in modo da evitare che possano essere ostruite.
-
L'afflusso dell'aria può essere ottentutoanche da un locale adiacente a quello di installatione, purché tale flusso possa avvenire liberamenteattraverso aperture permanenti comunicanti con l'esterno. Il locale adiacente rispetto a quello di installatione non deve essere messo in depressione rispetto all'ambiente esterno per effetto del tiraggio contrario, provocato alla presenza in tale locale di altri apparecchio di utilizzazione o di dispositivo di aspirazione.
-
Nel locale adiacente le aperture permanenti devono rispondere ai requisiti di cui alle lettere a) e c).
- Il locale adiacente non può essere adibito ad autorimessa, magazzino di materiale combustibile né comunique ad attività con pericolo d'incendio.
NOTA : Ventilatori di estrazione aria, quando usati nella stessa stanza o spazi vicini dell'apparecchio, potrebbero causare problemi di funzionamento.
NOTA : Il locale di installatione non deve essere什么意思 in depressione da apparecchiature quali ad esempio: cappe di aspirazione,camini, canne fumarie,ecc., presenti nel locale stesso o nei locali adiacenti posti in Communicatione.
3. Schede tecniche
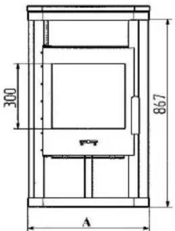
3.1 Disegni dimensionalati dati

KF 19852

KF 19855


PLUTO PANorama
COUNTRY

LUXOR




COUNTRY-H







PLUTO RADIANT

KF 198 56

PLUTO RONDO


KF 19857






3.2 Informazioni sul peso e dati tecnici
| Tipo 198 50/51/52/53/55/56/57 | |
| Potenza nominale termica 6,5 kW | |
| Volume riscaldabile per utilizzo non continuo in m3- in condizioni favorevoli, - normali e - molto favorevoli secondo DIN 18893/TAB. 2 | 1327852 |
| Valori delle emissioni per combustibile: Portata fumi: Temperatura dei fumi: Depressione minima con rendimento nominale Polveri (in riferimento ad un tenore O2 del 13%) CO (in riferimento ad un tenore O2 del 13%) Rendimento | ceppi di legna6 g/s300 °C11 Pa< 40 mg/m30,12 %>78% |
| N° art. | Lar-ghezza(mm) | Pro-fondità(mm) | Altezza(mm) | Peso netto(Kg) | Peso brutto(Kg) |
| 001985000 | 557 427 | 904 88 98 | |||
| 001985004 | 557 427 | 904 88 98 | |||
| 001985005 | 557 427 | 904 88 98 | |||
| 001985006 | 557 427 | 904 88 98 | |||
| 001985009 | 557 427 | 904 88 98 | |||
| 001985010 | 557 468 | 1057 85 95 | |||
| 001985011 | 557 468 | 1057 131 | 141 | ||
| 001985012 | 588 531 | 904 84 97 | |||
| 001985014 | 557 427 | 904 93 103 | |||
| 001985015 | 588 435 | 904 80 92 | |||
| 001985020 | 557 427 | 904 114 124 | |||
| 001985022 | 588 531 | 924 96 109 | |||
| 001985024 | 588 531 | 924 96 109 | |||
| 001985026 | 588 531 | 924 96 109 | |||
| 001985030 | 557 516 | 924 151 163 | |||
| 001985035 | 557 516 | 904 87 99 | |||
| 001985038 | 557 516 | 924 98 110 | |||
| 001985040 | 851 408 | 1254 112 | 132 | ||
| 001985045 | 557 468 | 904 130 140 | |||
| 001985048 | 593 468 | 1032 135 | 145 | ||
| 001985050 | 557 427 | 904 123 133 | |||
| 001985051 | 557 427 | 904 101 111 | |||
| 001985052 | 557 427 | 904 101 111 | |||
| 001985053 | 557 427 | 904 101 111 | |||
| 001985054 | 557 427 | 904 101 111 | |||
| 001985055 | 557 427 | 904 123 133 | |||
| 001985060 | 557 427 | 904 88 98 | |||
| 001985066 | 557 427 | 1022 85 100 | |||
| 001985070 | 557 427 | 904 88 98 | |||
| 001985080 | 557 427 | 904 101 111 | |||
| 001985085 | 557 427 | 904 101 111 | |||
| 001985100 | 557 427 | 1022 85 100 |
| N° art. | Lar-ghezza(mm) | Pro-fondità(mm) | Altezza(mm) | Peso netto(Kg) | Peso brutto(Kg) |
| 001985101 | 557 427 | 1022 85 100 | |||
| 001985103 | 610 452 | 1050 103 118 | |||
| 001985140 | 557 427 | 1022 118 133 | |||
| 001985160 | 557 427 | 1022 115 130 | |||
| 001985175 | 557 427 | 1022 103 118 | |||
| 001985170 | 557 427 | 1022 85 100 | |||
| 001985185 | 610 452 | 1050 103 118 | |||
| 001985190 | 610 452 | 1050 103 118 | |||
| 001985200 | 557 427 | 980 86 88 | |||
| 001985201 | 557 427 | 980 86 88 | |||
| 001985202 | 557 427 | 980 86 88 | |||
| 001985203 | 557 427 | 980 86 101 | |||
| 001985204 | 557 427 | 980 86 101 | |||
| 001985205 | 557 427 | 980 86 88 | |||
| 001985211 | 557 427 | 980 | |||
| 001985221 | 557 427 | 980 112 114 | |||
| 001985222 | 557 427 | 980 117 119 | |||
| 001985225 | 557 427 | 980 86 101 | |||
| 001985241 | 557 427 | 980 124 126 | |||
| 001985242 | 557 427 | 980 124 139 | |||
| 001985245 | 557 427 | 980 124 126 | |||
| 001985252 | 557 427 | 940 89 104 | |||
| 001985255 | 557 427 | 940 112 127 | |||
| 001985260 | 557 427 | 940 | |||
| 001985300 | 557 427 | 904 83 85 | |||
| 001985301 | 557 427 | 904 83 85 | |||
| 001985302 | 557 427 | 904 83 85 | |||
| 001985304 | 557 427 | 929 119 129 | |||
| 001985305 | 557 427 | 904 88 90 | |||
| 001985306 | 557 427 | 904 83 85 | |||
| 001985307 | 557 427 | 904 83 85 | |||
| 001985310 | 557 427 | 924 131 133 | |||
| 001985340 | 557 427 | 929 152 | 162 | ||
| 001985344 | 557 427 | 904 131 | 133 | ||
| 001985345 | 557 427 | 904 131 | 133 | ||
| 001985346 | 557 427 | 929 119 | 129 | ||
| 001985348 | 557 468 | 904 118 | 120 | ||
| 001985380 | 557 427 | 904 101 | 111 | ||
| 001985500 | 557 427 | 1023 88 | 96 | ||
| 001985505 | 557 427 | 1023 88 | 96 | ||
| 001985508 | 557 427 | 1023 88 | 96 | ||
| 001985520 | 557 427 | 1023 119 | 9 127 | ||
| 001985525 | 557 427 | 1023 119 | 9 127 |
| N° art. | Lar-ghezza(mm) | Profon-dità(mm) | Altezza(mm) | Peso netto(Kg) | Peso brutto(Kg) |
| 001985540 | 557 427 | 1023 119 | 127 | ||
| 001985550 | 557 427 | 1023 102 | 12 | ||
| 001985610 | 557 492 | 930 113 | 126 | ||
| 001985615 | 557 492 | 930 113 | 126 | ||
| 001985621 | 557 492 | 930 | |||
| 001985701 | 557 516 | 905 85 | 98 | ||
| 001985711 | 557 516 | 929 | |||
| 001985715 | 557 516 | 929 147 | 160 | ||
| 001985721 | 557 516 | 929 | |||
| 001985740 | 557 516 | 905 122 | 135 |
Questi dati relativi alle dimensioni sono indicati a solo scopo informativo! Ci riserviamo il diritto di apportare eventuali modifiche strutturali avantaggio del progresso technologico o del miglioramento qualitativo!
3.3 Dichiarazione di conformità CE

Wamsler
Dichiarazione di conformità CE
Prodotto: Stufacamino
Tip0: 19850; 19851; 19852; 19853; 19854; 19855; 19856; 19857
Si dichiara con la presente che i prodotti di cui sopra risultano in conformità a quanto previsto dalle seguenti direttive comunitarie:
89/106/CEE: Direttiva prodotti da costruzione
La conformità dei prodotti elencati alle normative delle direttive summenzionate viene comprovata dal rispetto delle seguenti norme:
EN 13240: 2005
Monaco d.B., 11/04/2008


Firma del Responsabile Legale
Questa dichiarazione certifica la conformità alle direttive summenzionate, ma non contiene alcuna garanzia delle proprieta del prodotto. è opportuno consultare le avventenze di sicurezza allegate alle istruzioni del prodotto. Questa dichiarazione perde validità nel caso in cui gli appearechi descritti sopra vengano modificati da parte di terzi.
Ci riserviamo il diritto di apportare modifiche avantaggio del progresso technologico e/o del miglioramento qualità. Non ci assumiamo nessuna responsabilità per eventuali errori di battitura o modifiche successive alla messa in stampa.
ManualeFacile