KF 198 55 - Heizung Wamsler - Kostenlose Bedienungsanleitung
Finden Sie kostenlos die Bedienungsanleitung des Geräts KF 198 55 Wamsler als PDF.
Häufig gestellte Fragen - KF 198 55 Wamsler
Benutzerfragen zu KF 198 55 Wamsler
0 Frage zu diesem Gerät. Beantworten Sie die, die Sie kennen, oder stellen Sie Ihre eigene.
Eine neue Frage zu diesem Gerät stellen
Laden Sie die Anleitung für Ihr Heizung kostenlos im PDF-Format! Finden Sie Ihr Handbuch KF 198 55 - Wamsler und nehmen Sie Ihr elektronisches Gerät wieder in die Hand. Auf dieser Seite sind alle Dokumente veröffentlicht, die für die Verwendung Ihres Geräts notwendig sind. KF 198 55 von der Marke Wamsler.
BEDIENUNGSANLEITUNG KF 198 55 Wamsler
Kaminofen Bedienungs- und Aufstellanleitung

KF 19851
PLUTO PANorama


PLUTO RONDO

KF 19852
PLUTO RADIANT


COUNTRY - H

KF 19855

COUNTRY

KF 19857
Vorwort
Sehr verehrter Kunde,
wir beglückwünschen Sie zum Erwerb unseres Kaminofens.
Sie haben die richtige Wahl getroffen.
Mit dem Kauf diesen Produktes haben Sie die Garantie für
Hohe Qualität durch Verwendung bester und bewährter Materialien
- Funktionssicherheit durch ausgereife Technik, die streng nach der europäischen Norm DIN EN 13240 geprüft ist (Geräte sind für die Mehrfachbelegung geeignet)
- Lange Lebensdauer durch die robuste Bauweise
Damit Sie reckt lange Freude an Ihrn neuen Kaminofen haben, sollen den Sie die folgende Bedienungsanleitung studieren. Hierin finden Sie alles Wissenschafte sowie eine zusätzliche Tipps.
ACHTUNG
Bei Ersatzteilbestellungen die am Typschild des Gerätes eingetragene Antikel-Nr./Article No. und Fertigungs-Nr./Serial No. angeben.
Inhaltsverzeichnis
Vorwort 2
Inhaltsverzeichnis 2
SICHERHEITSHINWEISE 3
- Bedienung
1.1 Geräteaufbau 5
1.2 Inbetriebnahme 6
1.3 AuBerbetriebnahme 7
1.4 Hinweise zum Heizen 7
1.5 Reinigung und Pflege 8
1.6 Störungsursachen, Behebung 11
- Aufstellung
2.1 Vorschriften 12
2.2 Aufstellräume 12
2.3 Geräteabstände 12
2.4 Schornsteinanschluss 13
- Technische Daten
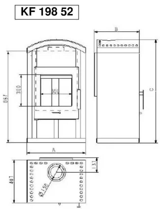
3.1 Maßzeichnungen 15
3.2 Maße und Gewichte 18
3.3 EG-Konformitätserklarung 20
SICHERHEITSHINWEISE
- Die Geräte sind nach DIN EN 13240 oder nach DIN EN 12815 geprüft (Typenschild).
- Für die Aufstellung und den abgasseitigen Anschluss sind die Forderungen der Feuerungsverordnung (FeuVO), die jeweiligen Länderbauordnungen sowie die DIN 4705, DIN EN 13384, DIN 18160, DIN EN 1856-2 und der DIN EN 15287 zu beachten. Zur einwandfrei den Funktion Ihres Gerätes muss der Schornstein, an den sie das Gerät anschließen wollen, in einwandfreiem Zustand sein.
- Vor Erstinbetriebnahme und vor dem Schornsteinanschluss, die Bedienungsanleitung grundlich durchlesen und den zuständigen Schornsteinfegermeister informieren.
- Es wird empfohlen bei Aufstellung der Geräte saubere Baumwollhandschuhe zu tragen, um Fingerabdrücke, die später schwierig zu entfernen sind, zu vermeiden.
- Im Interesse der Luftreinhaltung und der sicheren Funktion des Gerätes sollenn die in der Bedienungsanleitung angegebenen max. Brennstoffaufgabemengen nicht übersritten werden und die Turen der Geräte geschlossen sein, da sonst die Gefahr des Überheizens besteht, was zu Beschädigungen am Gerät führen kann. Beschädigungen solcher Art, unterliegen nicht der Garantiepflicht.
- Die Turen der Geräte müssen während des Betriebes immer geschlossen sein.
-
Die zugelassenen Brennstoffe sind:
-
Naturbelassenes Scheitholz (bis max. 35cm Länge)
-
Braunkohlebriketts (siehe zulässige Brennstoffe in der Bedienungsanleitung)
-
Keine flüssigen Anzündhilfen verwenden. Zum anzünden sollenn spezielle Anzünder oder Holzwolle verwendet werden.
- Die Verbrennung von Abfallen, Feinhackschnitzeln, Rinden, Kohlegruß, Spanplattenresten, feuchtem und mit Holzschutzmitteln behandeltem Holz, Papier, Pappe o.a. ist verboten
- Beim ersten Anheizen könnte es zu Rauchentwicklung und Geruchsbelastigung kommt. Unbedingt für gute Raumbelüfung sorgen (Fenster und Turen öffnen) und mindestens eine Stunde auf max. Nennwärmeleistung heizen. Sollte beim ersten Heizvorgang die max. Temperatur nicht erreicht werden, so konnen diese Erscheinungen auch später noch auftreten.
- Die Bedienelemente und die Einstelleinrichtungen sind entsprechend der Bedienungsanleitung einzustellen.itte benutzen sie bei freiem Gerat die Hilfswerkzeuge oder einen Schutzhandschuhe zur Bedienung.
- Beim Offnen der Heiztür kann es bei Fehlbedienung oder bei nicht ausreichen dem Schornsteinzug zu Rauchaustritt kommt. Es ist unbedingt zu beachten, dass die Heiztür nur langsam, zuerst einen Spalt und nach ein paar Sekunden ganz geöffnet werden darf. Außendem soll vor dem Offnen der Heiztür zum nachlegen von Brennstoff nur noch das Glutbett im Brennraum vorhanden sein, dass heißt, es dürfen keine Flammen mehr sightbar sein.
- Im Heizbetrieb konnen alle Oberflächen und besonderss die Sichtscheiben sowie die Griffe und Bedieneinrichtungen sehr heißt werden. Machen sie Kinder und Jugendliche, Ältere Menschen und Tiere auf diese Gefahren aufmerksam, und
halten sie sie während des Heizbetriebes von der Feuerstätte fern. Verwenden Sie zur Bedienung den beigelegten Schutzhandschuh oder das Hilfswerkzeug. Kinder und Jugendliche unter 16 Jahren dürfen den Ofen ohne Aufsicht Erziehungsberechtigter nicht bedieren.
- Es ist darauf zu achten, dass der Aschekasten immer bis Anschlag eingeschoben ist und besonderss darauf zu achten, dass keine weitere Asche entsorgt wird (Brandgefahr).
- In der Übergangszeit kann es zu Störungen des Schornsteinzugeskommen, so dass die Abgase nicht vollständig abgezogen werden. Die Feuerstätte ist dann mit einer geringen Brennstoffmenge, am besten mit Holzspane/-Wolle zu befullen und unter Kontrolle in Betrieb zunehmen, um den Schornsteinzug zu stabilisieren. Der Rost sollte sauber sein.
- Nach jeder Heizperiode ist es angebracht, die Geräte durch einen Fachmann kontrollieren zu halten. Ebenfalls sollte eine grundliche Reinigung der Abgaswege und der Abgasrohre erfolgen.
- Wenn Ausbesserungen oder Ernueierungen vorgenommen werden müssen, wenden sie sichitte rechzeitig unter Angabe der genauen Art.-Nr. und Fert.-Nr. an ihren Fachhändler. Es sind nur Original Wamsler-Ersatzteile zu verwenden.
- Arbeiten, wie insbesondere Installation, Montage, Erstinbetriebnahme und Servicearbeiten sowie Reparaturen, * dürfen nur durch einen ausgebildeten Fachbetrieb (Heizungs- oder Luftheizungsbau) durchgeführt werden. Bei unsachgemäß Eingriffen erlösen Gewährleistung und Garantie.
- Da der Festbrennstoff-Ofen/Herd die zur Verbrennung benöttigte Luft dem Aufstellungsraum entnimmt, ist damit zu sorgen, dass über die Undichtheiten der Fenster oder Außentüren stets genugend Luft nachströmt. Man kann davon ausgehen, dass dieser durch ein Raumvolumen von mind. 4m^3 je kW Nennwärmeleistung gewährleistet ist. Ist das Volumen geringer, kann über Lüftungsöffnungen ein Verbrennungsluftverbund mit anderen Räumen hergestellt werden (min. 150~cm^2 ).
- Es ist darauf zuchten, dass die Abstände zu brennbaren Bauteilen und Materiai-alien -seitlich und halten- eingehalten werden. Diese Abstände entnehmer sie der Bedienungsanleitung oder dem Typenschild.
- Die Feuerstätte darf nicht verändert werden.
- Der Anschluss an einem Schornstein, dessen wirksame Höhe unter 4 m, bei Mehrfachbelegung 5 m liegt, ist unzulässig. An dem zum Anschluss des Ofens vorgesehenen Schornstein dürfen hochstens zwei weitere Feuerstätten ange-schlossen sein.
- Bei einem Schornsteinbrand verschlieben sie族自治e Öffnungen am Gerät und verständigen sie die Feuerwehr. Versuchen sie auf keinen Fall selbst zu Löschen. Danach unbedingt den Schornstein vom Fachmann überprüfen setzen.
- Festbrennstoffe erzeugen naturgemäß Ruß, ein Verschmutzen der Sichtscheibe ist dadurch niemals vollig ausgeschlossen und stellt keinen Mangel dar.
- Speck- und Sandstein ist ein Naturstein,ecause sind Farbabweichungen und Farbänderungen normal und kein Grund zur Reklamation!
1. Bedienung
1.1 Geräteaufbau

Bild 1
1.2 Inbetriebnahme
Brennstoffe
Das Gerät ist für den Betrieb mit nachfolgend aufgeführten Brennstoffen geeignet. Nur damit ist ein rauchcharmer und störungsfreier Betrieb gewährleistet. Verwenden Sie nur natur belassenes, trockenes Scheitholz mit einer Restfeuchte von max. 20%.
| Brennstoffart Heizwert ca. KJ/kg | |
| Hartholz | 14.600 |
| Weichholz | 11.500 |
Nicht zulässige Brennstoffe sind z.B.:
Die Verbrennung von Abfallen, Feinhackschnitzeln, Rinden, Spanplattenresten, Kohlegruß, feuchtem oder mit Holzschutzmitteln behandeltem Holz, Papier und Pappe o. a. ist verboten. Zum Anzünden sollen Holzwolle oder Grillanzünder verwendet werden. Keine flüssigen Anzündhilfen verwenden!
Achtung!
Beim ersten Anheizen könnte es zu Rauchentwicklung und Geruchsbelastigung kommt. Unbedingt für gute Raumbelüfung sorgen (Fenster und Turen öffnen) und mindestens eine Stunde auf max. Nennwärmeleistung heizen. Solle beim ersten Heizvorgang die max. Temperatur nicht erreicht werden, so konnen diese Erscheinungen auch später noch auftreten.
Mit dem Primäreluftschieber konnen Sie innerhalb des Regelbereiches alle gewündten Heizleistungen stufenlos einstehen.
Verbrennungslufteinstellung:
Die Schiebereinstellungen müssen immer in der Mitte der Bezeichnungen
Tabelle 1
| Brennstoff Primäreluftschieber-Stellung | |
| Scheitholz | Nennwärmeleistung H |
| Scheitholz | Anheizen A |
Füllmengen:
Füllmenge bei Holz (Scheitholz, max. Länge 35 cm) max. 2 Scheite pro Füllung ca. 1,8 kg
Holzbrikett max. 1,4 kg
Erstes Anheizen
- Vor Inbetriebnahme sind die Transportsicherungen auf der Umlenkplatte über dem Feuerraum (Bild 5) hersauszunehmen und evtl. Aufkleber auf der Sichtscheibe ruckstandsfrei zu entfernen.
Die Heiztür öffnen durch Hebden des Griffes nach oben (Bild 2). Bei weißem Gerät ist dazu ein isolierter Handschuh zu benutzen. Den Primäreluftschieber (Bild 3) entsprechend der Tabelle 1 in Kapitel 1.2 einstellen.
Kohleanzünder oder Holzwolle auf den Rost legen, darüber Holzpane geben. Darauf erst kleineres, dann größeres Holz geben, anzüden und Tur wieder verschlieben. Wenn das Feuer lebhaft brennt und eine ausreichende Grundglut vorhanden ist erneut Brennstoff aufgeben. Danach den Primäreluftschieber entsprechend der Tabelle 1 „Verbrennungsluftstellung" einstellen.
Das erstige Anheizen sollen „sanft" verlaufen, mit geringer Menge Brennmaterial, damit sich die Ofenteile an die Hitze gewöhnen konnen. Beim ersten Anheizen könnte es zu Rauchentwicklung und Geruchsbelastigung kommt. Unbedingt für gute Raumbelüfung sorgen (Fenster und Turen öffnen) und mindestens eine Stunde auf max. Nennwärmeleistung heizen. Sollte beim ersten Heizvorgang die max. Temperatur nicht erreicht werden, so konnen diese Erscheinungen auch später noch auftreten.
Den Brennstoff nicht in den Brennraum einwerfen, sondern einlagen, da sonst die Ausmauerung beschädigt werden kann.
Achtung!
Beim Öffnen der Heiztür kann es bei Fehlbedienung oder bei nicht ausreichen dem Schornsteinzug zu Rauchaustritt kommt. Es ist unbedingt zu beachten, dass die Heiztür nur langsam, zuerst einen Spalt und nach ein paar Sekunden ganz geöffnet werden darf. Außendem soll vor dem Öffnen der Tur zum Nachlegen von Brennstoff nur noch das Glutbett im Brennraum vorhanden sein, das heißt, es)durren keine Flammen mehr sightbar sein.
1.3 Außerbetriebnahme
Türen schreiben, Primäreluftschieber in geschlossene - Stellung bringen. Restglut ausbrennen und Ofen abkühlen halten. Feuerraum und Aschenkasten bei kaltem Gerä Reinigen und entleeren!
1.4 Hinweise zum Heizen
Der Kaminofenarf nur mit geschlossener Fülltür (Heiztür) betrieben werden. Diesedarf nur zum Anheizen, Nachlegen oder Reinigen des Feueraums geöffnet werden(evtl.Zugprobleme bei weiteren am Schornstein angeschlossenen Geräten).
Eine abgestimmt zugeführte Sekundärluft sorgt für die Nachverbrennung der im Abgas enthaltenen brennbaren Bestandteile. Ein Verschmutzen der Scheibe kann aber bei Festbrennstoffen nicht ausgeschlossen werden und stellt keinen Mangel dar. Dies bedeutet eine rauch- und russarme Verbrennung zur Schonung der Umwelt. Sollten Sie ihren Ofen in der Übergangszeit in Betrieb erhönen, dann prüfen Sie vorher den
Schornsteinzug, da dieser bei hohen Außentemperaturen sehr gering sein kann. Zu diesen Zweck halten Sie ein brennendes Zündholz in die ein weniger geöffnete Heiztür. Wenn die Flamme nicht deutlich angesaugt wird, ist zunachst ein sogenannten Lockfeuer zu erzeugen. Hierzu wird kurzzeitig Holzpane/-Wolle im Ofen oder in der Reinigungsoffnung des Schornsteins entzündet. Der Rost sollte vor jeder Brennstoffaufgabe gereinigt werden, um eine gute Verbrennungsluftzufahr zu gewährleisten. Der Aschenkasten ist regelmäß im kalten Zustand zu entleeren (Bild 4). Bei freiem Gerät beiliegenden Handschuh verwenden.itte beachten Sie damit, dass keine glühenden Verbrennungsrückstände in die Mülltonne gelangen.
Es ist darauf zu achten, dass der Aschenkasten immer bis Anschlag eingeschoben wird.
Achtung!
Im Interesse der Luftreinhaltung und dem Ofen sollen die angegebenen max. Brennstoffaufgabemengen nicht übersritten werden, da sonst die Gefahr des Überheizens besteht, was zu Beschädigungen am Gerät führen kann. Beschädigungen solcher Art, unterliegen nicht der Garantiepflicht. Bei Kaminöfen ist nur eine einlagige Brennstoffaufgabe gestattet. Eine reduzierte Heizleistung sollt nur durch Verringerung der Aufgabemenge und nicht durch Reduzierung der Primäreluft erfolgen.
1.5 Reinigung und Pflege
Mit richtigem Betrieb/Bedienung undgreater Pflege/Wartung erhöhen Sie die Wertstabilität und Lebensdauer ihrer Geräte. Sie sparen wertvollen Ressourcen und schonen unsere Umwelt und ihren Geldbeutel. Nach Beendigung der Heizperiode empfehltsich, eine gründliche Reinigung des Ofens und der Abgasrohre vorzunehmen. Nachlassen der Heizleistung, ist fast immer eine Folge starker Verschmutzung der Abgaswege.
Zur Reinigung, ist die Umlenkplatte (Bild 5) nach vorne zuziehen. Dadurch kann der Abgasweg voninnen, oder wenn das Abgasrohr entfernt wird, von oben gereinigt werden.
Die Umlenkplatte (Bild 5) ist nach dem Reinigen wieder ganz nach hinten zu schieren.
Achtung!
Wir empfehlen, zum Ende jeder Heizperiode Ofen und Abgasrohre gründlich zu kontrollieren und bei Bedarf zu reinigen. Ein Nachlassen der Heizleistung, ist fast immer eine Folge starker Verschmutzung der Abgaswege. Wenn Ausbesserungen oder Erneuerungen vorgenommen werden müssen, wenden Sie sichitte rechtzeitig unter Angabe der Antikel-Nr. und der Fertigungs-Nr. (siehe Typschild) an ihren Fachhändler.
Die Pflege der äußerten Flächen ist nur bei kaltem Ofen zu empfehlen. Die Flächen werden mit klarem Wasser gereinigt oder in besonderen Fällen vorher mit Seifenlauge oder Geschirrspulmittel gehandelt und dann trocken gerieren.
Reinigen Sie ihre ROBAX-S-Sichtscheibe vor der ersten Benutzung mit einem feuchten sauberen Tuch. Verreiben Sie danach eine Tropfen eines Pflegemittels für Glaskeramik Scheiben mit einem Kuchenpapier auf beiden Seiten der Scheibe.
Nach dem Nachwischen und Trockenpolieren ist die hochwertige Oberfläche von ROBAX S mit einem unsichtbaren Film überzogen, dieser hilft die Scheibe sauber zu halten und erleichtert bei regelmäßiger Wiederholung die Reinigung.
Pflege von Keramikteilen: Schmutz und Fett kann mit Seite und Wasser entfernt werden.
Pflege von Speckstein und Sandstein: Speck- und Sandstein ist ein Naturstein, daßher sind Farbabweichungen und Farbänderungen normal und kein Grund zur Reklamation! Schmutz und Fett kann mit Seite und Wasser, keine Kratzer mit Nassschleifpapier (Körnung 240) halten.
Hinweis: Auf keinen Fall sollenn Sie Schwämme, Scheuermittel, aggressive oder kratzende Reinigungsmittel verwenden!
Arbeiten, wie insbesondere Installation, Montage, Erstinbetriebnahme und Servicearbeiten sowie Reparaturen, dürfen nur durch einen ausgebildeten Fachbetrieb (Heizu-zungs- oder Luftheizungsbau) durchgeführt werden. Bei unsachgemäß Eingriffen erlösen Gewährleistung und Garantie.

Bild 2

Bild 3

Bild 4

Bild 5
Transportsicherung Kartonpapier entfernen
1.6 Störungsursachen, Behebung
| Art der Störung mögliche Ursache Behebung | ||
| Geruchbildung: Ausstehung der ange-wendeten Schutzfarbe. Verdampfung von Ölresten | Den Ofen entsprechend der Bedienungsanleitung mehrere Stunden in Kleinstellung betreiben. Danach für mehrere Stunden auf maximale Leistung heizen. | |
| Zu geringe Wärme-abgabe: | Geräteleistung zu Klein gewählt. Zu geringer Schornsteinzug | Lassen Sie ihren Wärmebe-darf vom Fachmann kontrol-lieren. Der erforderliche Schorn-steinzug muss mind. 11 Pa und damit kurzzeitig max. 20 Pa haben. Kontrollieren Sie ihren Schornstein auf Dicht-heit. Die Türen anderer an diesen Schornstein ange-schlossenen Feuerstätten dicht verschreiben. Vor allem auf undichte Schornstein-bzw. Reinigungsverschlüsse achen. Eventuell mit senk-rechteter Anlaufstrecke an-schreiben. Die gesamten Abgasrohr-verbindungen müssen gut abgedachtet sein und feuer-fest isoliert werden. Dichtung kontrollieren, Türen gut verschreiben. Eventuell Dichtschnur erneumann setzen. Nur gut getrocknetes Holz verwenden. |
| Zu langes und undich-tes Abgasrohr | ||
| Undichtheiten an der Glas-/Heiz-/Aschentür | ||
| Verbrennung von zu feuchtem Holz | ||
Maßnahmen bei Schornsteinbrand
Bei ungenügender Reinigung des Schornsteins, bei falschem Brennstoff (z.
B. zu feuchtes Holz) oder falscher Verbrennungslufteinstellung kann es zu einem Schornsteinbrand kommt. Schließen sie in so einem Fall die
Verbrennungsluft an der Feuerstätte und rufen Sie die Feuerwehr.
Niemals selbst versuchen mit Wasser zu Löschen.
2. Aufstellung
2.1 Vorschriften
Für die Aufstellung und den abgasseitigen Anschluss sind die Forderungen der Feuerungsverordnung (FeuVO), die jeweiligen Länderbauordnungen sowie die DIN 4705, DIN EN 13384, DIN 18160, DIN EN 1856-2 und der DIN EN 15287 zu beachten. Zur einwandfreiern Funktion Ihres Gerätes muss der Schornstein, an den sie das Gerät anschließen wollen, in einwandfreiem Zustand sein.
2.2 Aufstellräume
Da der Kaminofen die zur Verbrennung benötige Luft dem Aufstellungsraum entnimmt ist damit zu sorgen, dass über die Undichtheiten des Fensters oder Außentüren stets genügend Luft nachströmt. Zusätzlich ist sicherzustellen, dass ein Raum-Leistungsverhältnis von mind. 4m^3 je kW Nennwärmeleistung gewährleistet ist. Für den Kaminofen bedeutet dies, dass der Aufstellungsraum mindestens 26m^3 groß sein muss. Ist das Volumen geringer, muss über Lüftungsöffnungen ein Verbrennungsluftverbund mit anderen Räumen hergestellt werden (Verbundöffnungen mind. 150cm^2 ).
2.3 Geräteabstände
Alle brennbaren Bauteile, Möbel oder auch z.B. Dekostoffe in der erharen Umgebung des Ofens sind gegen Hitzeeinwirkung zu schützen.
Einrichtungsgegenstände im Strahlungsbereich
Im Sichtbereich (Strahlungsbereich) des Feuers muss zu brennbaren Bauteilen, Möbel oder auch z.B. zu Dekostoffen ein Abstand von mindestens 80 cm (A), gemessen ab Vorderkante Feuerraumöffnung eingehalten werden. Der Sicherheitsabstand reduziert sich auf 40 cm (B), wenn ein belufteter Strahlungsschutz vor das zu schützende Bauteil montiert wird (Beispiel siehe Bild 6)
Einrichtungsgegenstände außerhalb des Strahlungsbereichs
Die Stellwände seitlich und hinter dem Gerät dürfen nicht aus brennbaren Baustoffen hergestellt, oder mit brennbaren Baustoffen verkleidet sein, sofern ein Abstand von seitlich 30 cm und halten 20 cm untersritten wird.
Der Seitenabstand zu Möbelteilen aus Holz oder Kunststoff muss ebenfalls 30 cm betragen (Bild 7).

Bild 6

Bild 7
Boden unter und vor dem Ofen
Fußböden aus brennbarem Material, wie Teppich, Parkett oder Kork, mösen unter dem Ofen sowie von der Feuerraumöffnung 50 cm nach Vorne und 30 cm seitlich durch einen Belag aus nicht brennbaren Baustoffen, z.B. Keramik, Stein, Glas oder einer Bodenplatte aus Stahl, ersetzt oder geschützt werden.
2.4 Schornsteinanschluss
ACHTUNG!
Vor dem Anschluss des Gerätes ist in jedem Fall der zuständige Bezirks-Schornsteinfegermeister zu Rate zuziehen!
Verbindungsstücke müssen am Gerät und untereinander fest und dicht verbunden sein. Sie dürfen nicht in den freien Schornsteinquerschnitt hineinragen. Das Verbindungsstück zwischen Kaminofen und Schornstein soll den gleichen Querschnitt haben wie der Rohrstutzen am Ofen. Waagerechte Verbindungsstücke über 0,5 m sollen zum Schornstein hin um 10 Grad ansteigen. Rohre, die nicht
wärmegeschützt oder senkrecht geführt sind, sollen nicht länger als einen Meter sein.
Es sind die Forderungen der Feuerungsverordnung (FeuVO), die jeweiligen Länderbauordnungen sowie für den Schornstein die DIN 4705, DIN EN 13384, DIN 18160 und der DIN EN 15287 zu beachten. Verbindungstücks ⇒n nach DIN EN 1856-2 geprüft sein.
Das Maß X (Abstand zu brennbaren Baustoffen / Materialien) muss nach Angaben des Herstellers des Verbindungsstückes eingehalten werden.

Bild 8
ACHTUNG!
Der Anschluss an einem Schornstein, dessen wirksame Höhe unter 4 m, bei Mehrfachbelegung 5 m liegt, ist unzulässig. Beachten Sie die Daten zur Schornsteinberechnung in Kapitel 3.1. An dem zum Anschluss des Ofens vorgesehenen Schornstein)durren hochstens zwei weitere Feuerstätten angeschlossen sein.

Bild 9

3. Technische Daten
3.1 Maßzeichnungen




PLUTO PANorama
COUNTRY

LUXOR




COUNTRY-H







PLUTO RADIANT

KF 198 56

PLUTO RONDO


KF 19857






| Typ 198 50/51/52/53/55/56/57 | |
| Nennwärmeleistung 6,5 kW | |
| Ruumheizvermögen bei Zeitheizing in m3- bei gänstigen,- - weniger gänstigen und- - umgünstigen Heizbedingungen nach DIN 18893/TAB. 2 | 132 78 52 |
| Abgaswerte: Brennstoff: Abgasmassenstrom Abgastemperatur min. Forderdruck bei Nennwärmeleistung Staub (bezogen auf 13% O2) CO (bezogen auf 13% O2) Wirkungsgrad | Scheitholz 6 g/s 300 °C 11 Pa < 40 mg/m3 0,12 % > 78% |
3.2 Maße und Gewichte
| Art.Nr. | Breite (mm) A | Tiefe (mm) B | Höhe (mm) C | Gewicht netto: (Kg) | Gewicht brutto: (Kg) |
| 001985000 | 557 427 | 904 88 | 98 | ||
| 001985004 | 557 427 | 904 88 | 98 | ||
| 001985005 | 557 427 | 904 88 | 98 | ||
| 001985006 | 557 427 | 904 88 | 98 | ||
| 001985009 | 557 427 | 904 88 | 98 | ||
| 001985010 | 557 468 | 1057 85 | 95 | ||
| 001985011 | 557 468 | 1057 131 | 141 | ||
| 001985012 | 588 531 | 904 84 | 97 | ||
| 001985014 | 557 427 | 904 93 | 103 | ||
| 001985015 | 588 435 | 904 80 | 92 | ||
| 001985020 | 557 427 | 904 114 | 124 | ||
| 001985022 | 588 531 | 924 96 | 109 | ||
| 001985024 | 588 531 | 924 96 | 109 | ||
| 001985026 | 588 531 | 924 96 | 109 | ||
| 001985030 | 557 516 | 924 151 | 163 | ||
| 001985035 | 557 516 | 904 87 | 99 | ||
| 001985038 | 557 516 | 924 98 | 110 | ||
| 001985040 | 851 408 | 1254 12 | 132 | ||
| 001985045 | 557 468 | 904 130 | 140 | ||
| 001985048 | 593 468 | 1032 135 | 145 | ||
| 001985050 | 557 427 | 904 123 | 133 | ||
| 001985051 | 557 427 | 904 101 | 111 | ||
| 001985052 | 557 427 | 904 101 | 111 | ||
| 001985053 | 557 427 | 904 101 | 111 | ||
| 001985054 | 557 427 | 904 101 | 111 | ||
| 001985055 | 557 427 | 904 123 | 133 | ||
| 001985060 | 557 427 | 904 88 | 98 | ||
| 001985066 | 557 427 | 1022 85 | 100 | ||
| 001985070 | 557 427 | 904 88 | 98 | ||
| 001985080 | 557 427 | 904 101 | 111 | ||
| 001985085 | 557 427 | 904 101 | 111 | ||
| 001985100 | 557 427 | 1022 85 | 100 |
| Art.Nr. | Breite(mm)A | Tiefe(mm)B | Höhe(mm)C | Gewicht netto:(Kg) | Gewicht brutto:(Kg) |
| 001985101 | 557 427 | 1022 85 | 100 | ||
| 001985103 | 610 452 | 1050 103 | 118 | ||
| 001985140 | 557 427 | 1022 118 | 133 | ||
| 001985160 | 557 427 | 1022 115 | 130 | ||
| 001985175 | 557 427 | 1022 103 | 118 | ||
| 001985170 | 557 427 | 1022 85 | 100 | ||
| 001985185 | 610 452 | 1050 103 | 118 | ||
| 001985190 | 610 452 | 1050 103 | 118 | ||
| 001985200 | 557 427 | 980 86 | 88 | ||
| 001985201 | 557 427 | 980 86 | 88 | ||
| 001985202 | 557 427 | 980 86 | 88 | ||
| 001985203 | 557 427 | 980 86 | 101 | ||
| 001985204 | 557 427 | 980 86 | 101 | ||
| 001985205 | 557 427 | 980 86 | 88 | ||
| 001985211 | 557 427 | 980 | |||
| 001985221 | 557 427 | 980 112 | 114 | ||
| 001985222 | 557 427 | 980 117 | 119 | ||
| 001985225 | 557 427 | 980 86 | 101 | ||
| 001985241 | 557 427 | 980 124 | 126 | ||
| 001985242 | 557 427 | 980 124 | 139 | ||
| 001985245 | 557 427 | 980 124 | 126 | ||
| 001985252 | 557 427 | 940 89 | 104 | ||
| 001985255 | 557 427 | 940 112 | 127 | ||
| 001985260 | 557 427 | 940 | |||
| 001985300 | 557 427 | 904 83 | 85 | ||
| 001985301 | 557 427 | 904 83 | 85 | ||
| 001985302 | 557 427 | 904 83 | 85 | ||
| 001985304 | 557 427 | 929 119 | 129 | ||
| 001985305 | 557 427 | 904 88 | 90 | ||
| 001985306 | 557 427 | 904 83 | 85 | ||
| 001985307 | 557 427 | 904 83 | 85 | ||
| 001985310 | 557 427 | 924 131 | 133 | ||
| 001985340 557 427 9 | 29 152 | 162 | |||
| 001985344 557 427 9 | 04 131 | 133 | |||
| 001985345 557 427 9 | 04 131 | 133 | |||
| 001985346 557 427 9 | 29 119 | 129 | |||
| 001985348 557 468 9 | 04 118 | 120 | |||
| 001985380 557 427 9 | 04 101 | 111 | |||
| 001985500 557 427 1 | 023 88 | 96 | |||
| 001985505 557 427 1 | 023 88 | 96 | |||
| 001985508 557 427 1 | 023 88 | 96 | |||
| 001985520 557 427 1 | 023 119 | 127 | |||
| 001985525 557 427 1 | 023 119 | 127 |
| Art.Nr. | Breite(mm)A | Tiefe(mm)B | Höhe(mm)C | Gewicht netto:(Kg) | Gewicht brutto:(Kg) |
| 001985540 557 427 | 1023 119 | 127 | |||
| 001985550 557 427 | 1023 102 | 112 | |||
| 001985610 557 492 | 930 113 | 126 | |||
| 001985615 557 492 | 930 113 | 126 | |||
| 001985621 557 492 | 930 | ||||
| 001985701 557 516 | 905 | 85 98 | |||
| 001985711 557 516 | 929 | ||||
| 001985715 557 516 | 929 147 | 160 | |||
| 001985721 557 516 | 929 | ||||
| 001985740 557 516 | 905 122 | 135 | |||
Die angeführten Abmessungs- und Gewichtangaben sind nur zur Information! Wir behalten uns das Recht von Konstruktionsdänderungen vor, falls diese das technische Niveau erhöhen, oder die Qualität verbessern!
3.3 EG-Konformitätserkläragung

Wamsler Haus- und Kuchentechnik GmbH
EG-Konformitätserklarung
Hersteller: Wamsler Haus- und Kuchentechnik GmbH, Gutenbergstr. 25, 85748 Garching
Produktbezeichnung: Kaminofen
Typ: 19850;19851;19852;19853;19854;19855;19856;19857
Die bezeichneten Produkte stimmen mit den Vorschriften folgender Europascher Richtinien überin:
89/106/EWG: Bauprodukten-Richtlinie
Die Übereinstimmung der bezeichneten Produkte mit den Vorschriften der o. g. Richtlinien wird nachgewiesen durch die Einhaltung folgender Nomen.
EN 13240:2005
Munchen, den 11.04.2008

Die Erklarung bescheinigt die Übereinstimmung mit den genannten Richtlinien, beinhaltet jedoch keine Zusicherung von Eigenschaften. Die Sicherheitsunwerte der mitgelieferten Produktdokumentation sind zu beachten. Bei Änderungen an den o. g. Geräten durch Dritte, verliedt diese Erklarung ihre Gültigkeit.
Wir halten uns Änderungen vor, die dem technischen Fortschritt dienen und/oder Qualitätssverbesserungen bewirken. Für Druckfehler und Änderungen nach Drucklegung übernehmen wir keine Haftung.
Foreword
Dear Customer!
Wamsler Haus- und Kuchentechnik GmbH EC Declaration of Conformity
Manufacturer: Wamsler Haus- und Kuchentechnik GmbH, Gutenbergstr. 25, 85748 Garching Description of the product: fireplace
Type: 19850
19851
19852
19853
19854
19855
19856
19857
Wamsler Haus- und Kuchentechnik GmbH Déclaration de conformité CE
Fabricant: Wamsler Haus- und Kuchentechnik GmbH, Gutenbergstr. 25, 85748 Garching Denomination du produit: Cheminée
Types 19850
19851
19852
19853
19854
19855
19856
19857
Haus- und Kuchentechnik GmbH
Produkt: Wamsler Haus- und Kuchentechnik GmbH, Gutenbergstr. 25,
D-85748 Garching
EinfachAnleitung