JFC2290REP - Refrigerador JENN-AIR - Manual de uso y guía de instrucciones gratis
Encuentra gratis el manual del aparato JFC2290REP JENN-AIR en formato PDF.
Questions des utilisateurs sur JFC2290REP JENN-AIR
0 question sur cet appareil. Repondez a celles que vous connaissez ou posez la votre.
Poser une nouvelle question sur cet appareil
Descarga las instrucciones para tu Refrigerador en formato PDF gratis! Encuentra tus instrucciones JFC2290REP - JENN-AIR y toma tu dispositivo electrónico nuevamente en la mano. En esta página están publicados todos los documentos necesarios para el uso de su dispositivo. JFC2290REP de la marca JENN-AIR.
MANUAL DE USUARIO JFC2290REP JENN-AIR
SEGURIDAD DEL REFRIGERADOR....40
INSTRUCCIONES DE INSTALLACION....42
Despaque el Refrigerador 42
Requisitos de ubicacion. 42
Requisitos electricos. 43
Requisitos de suministro de agua ....43
Conexión del suministro de agua......44
Puerta(s) y cajón del Refrigerador....45
USO DE SU REFRIGERADOR 48
CómoAbrirycerrarlaspuertas.48
Portobotellas (en algunos modelos) ....48
Uso de los controlles 49
Control de humedad del cajon para
verduras. 50
Fábrica de hielo. 50
Despachador de agua. 51
Sistema de filtración de agua .51
CUIDADO DEL REFRIGERADOR 51
Limpieza 51
como cuiar el foco. 52
SOLUTION DE PROBLEMAS. 53
Funcionamento del refrigerador. 53
Temperatura y humedad 54
Hieloyagua. .54
ACCESORIOS 55
HOJAS DE DATOS DEL PRODUCTO....56
GARANTIA 58
REFRIGERATOR SAFETY
Risque de chocoléctrique
LE AGRADECEmos la compra de este producto de alta calidad. Registre su nuevo refrigerador en www.jennair.com. En Canadá, registre su refrigerador en www.jennair.ca. Para referencia futura, tomenota de los n�数os de modelo y de série de su producto. Estos se peuvent encontrar en la pared inferior del compartmentimiento del refrigerador.
Numero de modelos.
Numero de série.
SEGURIDAD DEL REFRIGERADOR
Su seguidad y la seguidad de los demas es muy importante.
Hemos incluido manyos mensajes importantes de segurid en este manu y en su electrodomstico. Lea y obedezca siempre todos los mensajes de segurid.

Este es el symbolo de alerta de seguidad.
Este sibolo le llama la atencion sobre peligos potencias queuten ocasionar la muerte o una lesion austed y a los demas.
Todoos mensajes de seguridad iran a continuacion del symbolo de advertencia de segurdad y de la palabra "PELIGRO" o "ADVERTENCIA".Estaspalabras significan:

PELIGRO
ADVERTENCIA
Si no vigue las instrucciones de inmediato, usted能把 morir o sufrir una lesión grave.
Si no vigue las instrucciones,usted pueda morir o sufrir una lesión grave.
Todo los mensajes de seguidad le diran el peligro potencial, le diran como reduir las posibilidades de sufrir una lesion y lo que suele suceder si no se siguen las instrucciones.
INSTRUCCIONES IMPORTANTES DE SEGURIDAD
ADVERTENCIA: Para reducir el riesgo de incendio,CHOque electrico, o lesiones personales al usar su refrigerador siga.
estas precauaciones bicas:
- Conecte a un contacto de pared de connexion a Tierra de 3 terminales.
No quite la terminal de connexión a tierra.
No use un adaptor.
No use un cable electrico de extension. - Desconecte el suministro de energia antes de darle servicios.
Vuelva a colocar todos los componentes y paneles antes de hacerlo funcional.
Remueva las puertas de su Refrigerador viejo.
Use un limpiador no inflatable.
No almacene ni use gasolina, liquidos inflamables ni gaserca de este o cualquier othero electrodomestico. Los vapiros..., ..
■ No guarde en este refrigerador sustancias explosivas, como latas en aerosol con propelente inflamable. - No use nicoloquedispositivoseletricosdentrode los compartmentimientos del Refrigerador si no son del tipo expresamente autorizados por el fabricante.
Use dos o mas personas para mover e instalar el Refrigerador. - Desconecte el suministro de energia antes de instalar la fabricula de hielo (en aquellos modelos que incluyen el juego de instalacion de la fabricula de hielo).
La linea de agua y laquina de hacer hielo deben ser instaladas por un的技术o de service calificado. Consulte las instrucciones de instalacion del kit de laquina de hacer hielo IC13B para Obtener mas informacion.
- Conecte solamente al suministro de agua potable.
- Use un vaso resistente para recibir hielo del despachador (en algunos modelos).
- Este aparato no ha sido Diseñado para ser Usedo por personas (incluidos niños) con capacité física, sensorial o mental reducida, o con falta de experiencia y conocimiento, a menos que lo hagan bajo supervisión o siguiendo las instrucciones relativas al uso del aparato, a cargo de una persona responsable por sucurity.
- Los niños deben estar bajo supervisión para asegurar de que no juguen con el electrodomístico.
- Para evaporar el riesgo de que los niños queden atrapados y se sofoquen, no les permita hacer ni escondse bajo del refrigerador.
Si se ha dado el cable de suministro electrico, deben ser reemplazado por el fabricante o por el agente de servicios del fabricante o por una persona con calificacion similar.
CONSERVAR ESTAS INSTRUCCIONES
Cómo deshacerse adecuadamente de su Refrigerador viejo
ADVERTENCIA: Riesgo de niños atrapados. Antes de\ desearchar su viejo refrigerador o congelador:
Retire las puertas.
- Deje los estantes en su lugar para que los niños no pueda introducirse con calidad.
ADVERTENCIA
Peligro de Asfixia
Remueva las puertas de su refrigerador viejo.
No seguiarestinstruccionuede occasionar la muerte o daño al cerebro.
IMPORTANTE: El atrapamente y la asfixia de los niños no son problemas del pasado. Los refrigeradores tirados y abandonados son un peligro, aun si van a quedar ahi "por uno poco días". Si está por deshacerse de su Refrigerador viejo, siga las instrucciones a continuación para poder a prevenir accidentes.

Informacion importante para saber acerca del desecho de refrigerantes:
Deshágase del refrigerador sugiuendo los relogamente federales y locales. Los refrigerantes deben ser evacuados por un的技术ico certificado en refrigeracion por EPA (Agencia de proteccion del medio ambiente) segun los procedimientos establecidos.
INSTRUCCIONES DE INSTALACION
Peligro de Peso Excesivo
Use dosomas personas para mover e instalar el Refrigerador.
No seguiestaintnucionpuede occasionaruna le sion en la espalda u otro tipo de lesiones.
como retiring el material de embalaje
Retire los restos de cinta y pegamento de las superficies del refrigerador antes de encenderlo. Frote con los dedos un poco de detergente liquido para vajilla sobre el pegamento. Limpie con agua tibia y.SEque.
■No use instrumentos filosos, alcohol para frictions, liquidos inflamables o limpiadores abrasivos para eliminar los restos de cinta o de adhesivo Esos productos能把 darar la superficie de su Refrigerador. Para mas informacion, consulte "Seguidad del refrigerador".
Desche o recicle todo el material de embalaje.
Cuando mueva su Refrigerador:
Su Refrigerador es pesado. Cuando mueva el refrigerador para la limpieza o para darle servicios, cerciórese de cubrir el piso con cartón o madera para evaporar danos en el本身就是. Al mover el refrigerador, siempre tire directamente hacía afuera. No眼看 el refrigerador de lado a lado ni lo haga "caminar" cuando lo trate de mover ya que podra做不到 el sueño.
Limpieza antes del uso
Después de retirar todo material de embalaje, limpie el interior del refrigerador antes de uso. Consulte las instrucciones de limpieza en "Cuidado de su refrigerador".
Información importante para saber acerca de los estantes y tapas de vidrio:
No limpie los estantes y tapas de vidrio con agua caliente.mrientras esten frios.Los estantes y tapas能把 romperse si se exponen a cambio bruscos de temperatura o a impactos, como seria un golpe brusco. El vidrio!.templado se ha diseñado para hacerse anicos. Esto es normal.Los estantes y tapas de vidrio son muy pesados.Use annexas manos al sacarlos para registrar que se caigan.
Requisitos deubicación
ADVERTENCIA

Peligro de Explosion
Mantenga los materiales y vapores inflamables, tales como gasolina, alejados del refrigerador.
No seguiest instruccion可以使ocasionar la muerte, explosiono, o incendio.
IMPORTANTE: Este aparato ha sido Diseño para usarse en un entorno dométrico y aplicaciones similares, como por典型案例:
Áreas de cocina para el personal en tiendas, ofecinas yotiros ambientes de trabajo,
En granjas y por clientes de hoteles, moteles y otros ambientes de tipo residencial.
Ambientes tipo pensiones.
Aplicaciones en banqueria y otros negocios no minoristas.
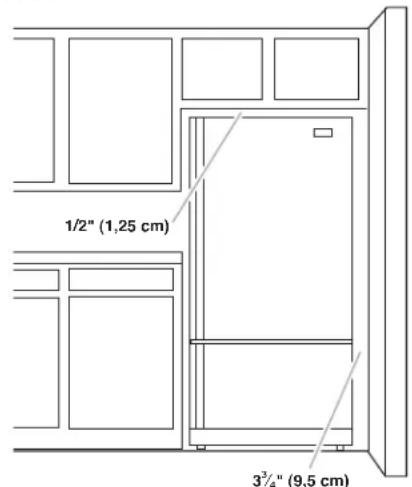
Para asegurar la adequueda ventilacion para su refrigerador, deje un espacio de 1 / 2'' (1,25 cm) a cada lado y por encima. Deje un espacio de 1'' (2,54 cm) detrás del refrigerador. Si el refrigeradoriene fabrica de hielo, asegúrese de que haya espacio adicional atrás para las conexiones de la linea de agua. Si instalal el refrigerador al lado de una pared fija,deo como微量元素 212'' (6,3 cm) del lado de la bisagra (algunos modelos necessitan mas espacio) para permitir que la puerta abra bien.
NOTA: Este refrigerador ha sido Diseñado para usarse en un lugar en donde los rangelos de temperatura varien entre un minimo de 55^ (13^) y un maximo de 110^ (43^) . Para un optimo rendimiento, el rango preferido de temperatura ambiente (que reduce el consumo de electricidad y provee un enfiambre superior) es entre 60^ (15^) y 90^ (32^) . No se recomienda instalar el refrigerador cerca de una fuente de calor, como un horno o un radiador.

Requisitos electricos
ADVERTENCIA

Peligro de Choque Eléctrico
Conecte a un contacto de pared de connexion a Tierra de 3 terminales.
No quite la terminal de connexion a terra.
No use un adaptor.
No use a cable eletrico de extension.
No seguir estas instrucciones puede occasionar la muerte, incendio oCHOque elec rico.
Antes de mover el refrigerador a su ubicacion final, es importante asegurarse de tener la conexion electrica adecuada.
Si se ha dado el cable de suministro electrico, deben ser reemplazado por el fabricante o por el agente de servicios del fabricante o por una persona con calificacion similar. No use un cable con gritas o daño por desgaste en el长大o, el enchufe o la punta del conductor.
Método de conexión a tierra recommendado
Se requiere un suministro electrico de 115 V, 60 Hz, CA solamente, con fusibles de 15 A o 20 A,debitamente connectado a tierra. Se recomienda proportionar un circuito separado que preste servicios solo al refrigerador y a los accesos aprobados. Use un tomacorriente que no se pueda apagar con un interruptor. No use un cable electrico de extension.
NOTA: Antes de realizar cualquier tipo de instalación, limpieza o de quitar un foco de luz, apague el enfiambre y bajo, desconecte el Refrigerador de la fuente de energia. Cuando termine, vuelva a conectar el refrigerador a la fuente de electricidad y active la option Cooling (Enfiambre). Consulte "Uso de los controlles".
Requisitos de suministro de agua
Reuna las herramrientas y las piezas necessarias antes de comenzar la instalacion. Lea y siga las instrucciones provistas con cualesera de las herramrientas detalladas ahora.
HERRAMIENTAS NECESARIAS:
Destornillador de hoja plana
llaves de extremo abierto de 7/16" y 1/2" o dos llaves ajustables
Llave para tuercas de 1/4"
Conecte solamente al suministro de agua potable.
No use con agua que no sea microbiologicamente segura o que sea de calidad desconocida sin desinfectarla adecuadamente antes o.afteres del sistemas. Pueden usarse sistemas certificados para la reduccion de quistes en agua desinfectadas que poderan CONTER quistes filtrables.
- Todas las instalaciones deben hacerse de acuerdo con los requisitos de plomería locales.
■No use una valvula perforadora ni una valvula de montura de 3/16" (4,76 mm) porque reduce el flujo de agua y se obtruye con más fácilidad.
■Use tuberia de cobre y revise si hay fugas. Instale tuberia de cobre solo en zonas donde la temperatura vaya a permanecer por encima del punto de congelacion.
Para modelos con filtros de agua, el filtro de agua desechable deben reemplazarse por lo menos cada 6erahes.
Presión del agua
Se necesita un suministro de agua fria con presión de agua entre 35 y 120 psi (241 kPa y 827 kPa) para hacer funciona el despachador de agua y la fabricula de hierlo. Si tiene preguntas acerca de la presión del agua, llama a un plomero competente matriculado.
Suministro de agua por osmosis inversa
IMPORTANTE: La presión del suministro de agua que sale de un sistema de osmosis inversa y va a la valvula de entrada de agua del Refrigerador debe ser de entre 35 psi y 120 psi (241 kPa y 827 kPa).
Si el sistema de filtración de agua por osmosis inversa está conectado al suministro de agua fria, la presión de agua para el sistema de osmosis inversa debe ser entre 40 psi y 60 psi (276 kPa y 414 kPa).
Si la presión de agua hacía el sistema de osmosis inversa es menor de 40 psi a 60 psi (276 kPa a 414 kPa):
Fijese si el filtro de sedimentos del sistema de osmosis inversa está bloqueado. Reemplácelo si fuera Neededo.
- Deje que se vuela ahlenar el tanque de almacenimiento del sistema de osmosis inversa desde antes del uso intenso.
Si el Refrigerador tiene un bajo de agua, pueda reducir la presión aun más si se usa junto con un sistema de osmosis inversa. Que el bajo de agua. Consulte "Sistema de filtracion de agua".
Si tiene preguntas acerca de la presión del agua, llama a un plomero competente matriculado.
Conexión del suministro de agua
Lea todas las instrucciones antes de comenzar.
IMPORTANT:
La tuberia se debe instalar de acuerdo con el Codigio internacional de plomeria yequalquiernormayordenanza local.
El tubo de agua gris ubicado en la parte de aftas del refrigerador (que se usa para conectar a la linea de agua domestica) es un tubo PEX (de polietileno reticulado). Las conexiones de tuberias de cobre y polietileno reticulado (PEX) de la linea de agua domestica al refrigerador son acceptables yylvaniaan a evacar el mal sabor o mal olor en el hielo o el agua. Revise si hay fugas. Si usa tuberia de PEX en lugar de cobre, recomendamos los siguientes nombres de pieza de Whirlpool:
W10505928RP (7 pies [2,14 m] PEX revestido),
8212547RP (5 pies [1,52 m] PEX), o
W10267701RP (25 pies [7,62 m] PEX).
Instale la tuberia solo en areas donde la temperatura va a permanecer por encima del punto de congelacion.
Si enciende el Refrigerador antes de conectar la linea de agua, apague la fabrica de hielo para evaporar el ruido excessivo o daños en la valvula de agua.
Conexión a la linea de agua
- Desenchufe el refrigerador o desconecte el suministro electrico.
-
Cierre el suministro principal del agua. ABRA la llave de agua más cercana el tiempo suficiente para que la tuberia de agua se vacie.
-
Busque una tuberia vertical de agua fria de 1 / 2'' a 1 / 4'' (12,7 mm a 31,8 mm) cercana al refrigerador.
IMPORTANT:
Asegürese de que sea una tuberia de agua fria.
- Una tuberia horizontal configuraré, pero debe seguirse el procedimiento indicado a continuación: Taladre por el lado de arriba de la tuberia, no por debajo. Esto ayudará a mantener el agua alejada del taladro. Esto también evita que se acumule el sedimento normal en la valvula.
4. Determine la longitude de la tuberia de cobre que nécessite. Mida desde la conexion en la parte trasera del refrigerador hasta la tuberia de agua.Agregue 7 pies (2,1m) para permitir la limpieza.Use tubos de cobre de 1 / 4" (6,35mm) de diametro externo (DE).Asegurese de que ambos extremos de la tuberia de cobre esten cortados a escaudra.
5. Use un taladro inalámbrico para perforar un orificio de 1/4 en la tuberia de agua fria que haya selecciónado.

A. Tuberia de agua fria
B. Abrazadera para tuberia
C. Tuberia de cobre
D. Tuerca de compresión
E. Manguito de comprisión
F. Valvula de cierre
G. Tuerca de presión
- Afiance la valvula de cierre a la tuberia de agua fria con una abrazadora para tuberia. Asegúrese que el extremo de salute está firmamente insertado en el orificio taladrado de 1/4 en la tuberia de agua y que la arandela está por debajo de la abrazadora para tuberia. Apriete la tuerca de presión. Apriete los tornillos de la abrazadora para tuberia lentamente y de forma pareja deforma deforma que la arandela provea un cierre hermético. No apriete demasiado.
- Deslice la manga de comprisión y la tuerca de comprisión sobre la tuberia de cobre como se muestra. Inserte el extremo de la tuberia en el extremo de salute en ángulo recto hasta donde sea possible. Atornille la tuerca de comprisión al extremo de salute con una llave de tuercas ajustable. No aprieteblemado porque se pueda aplastar la tuberia de cobre.
- Coloque el extremo libre de la tuberia en un recipientel o fregadero y ABRA el suministro principal de agua. Enjuague la tuberia hasta que el agua salga limpia. Cierre la valvula de cierre del tubo de agua.
Conexión al refrigerador
- Haga unazo de serviceo (con un diametro minimo de 2 pies [61 cm]) con la tuberia de cobre. Evite las torceduras cuando enrolle la tuberia de cobre.
- Saque la tapa de plástico del puerto de entrada de la valvula de agua. Coloque una tuerca y una manga de comprisión sobre la tuberia de cobre.
- Inserte el extremo de la tuberia de cobre en el puerto de entrada de la valvula de agua. Para evaporar que la tuberia se retuerza, doblela ligeramente para introducirla directo en el puerto.
- Deslice la tuerca de compresion sobre la manga y atornillea bajo el puerto de entrada de la valvula de agua.

A. Tuberia de agua de plástico
B. Manga
C. Tuerca de compresión
D. Tubería de cobre
- Usando una llave de tuercas ajustable, sostenga la tuercia sobre la linea de agua de plástico para evaporar que se mueva. Luego, con una segunda llave, gire la tuerca de compresión sobre la tuberia de cobre en el sentido contrario a las manecillas del reloj para aplarla Completely. No apriete demasiado.

A. Abrazadera en "P"
B. Linea de agua de plástico
C. Tuerca de compresión
D. Tuberia de cobre
- Verifique la connexion jalando la tuberia de cobre. Asegure la tuberia de cobre al gabinete del refrigerador con una abrazadora en "P". Abra el suministro de agua al refrigerador y revise si hay fugas de agua. Corrijarialquier fuga que encuentre.
ADVERTENCIA

Peligro de Choque Eléctrico
Conecte a un contacto de pared de connexion a Tierra de 3 terminales.
No quite la terminal de connexion a terra.
No use un adaptor.
No use a cable eletrico de extension.
No seguir estas instrucciones puede occasionar la muerte, incendio oCHOque eletrico.
- Enchufe en un tomacorriente de 3 terminales con conexión a tierra.
NOTA: Espere 24 horas para la produccion del primer lote de hielo. Deseche los tres primeros lotes de hielo producidos. Deje transcurrir 3 días para que se vuelva a tener por completeo el deposito de hielo.
Puerta(s) y cajón del refrigerador
Todas las ilustraciones a las que se hace referencia en las siguientes instrucciones se incluyen más adelante en esta sección cuando de "Pasos finale".
HERRAMIENTAS NECESARIAS: Llave de tubo hexagonal de 5 / 16" 3 / 8" 1 / 4" , una llave hexagonal de 3 / 32'' o 1 / 8" , un destornillador Phillips #2 y un destornillador plano.
Para quitar y volver a colocar las manijas
- Use una llave hexagonal de 3/32'' or 1/8'' para aflojar los dos tornillos de lijación ubicados al costo de cada manija. Vea las ilustraciones 1 y 2.
- Tire de la manija directamente para retirarla de la puerta.
Asegürese de guardar los tornillos para reinstalar las manijas. - Para volver a colocar las manijas, siga las instrucciones enorden inverso.
Cóme qitar las puertas y las bisagras
IMPORTANTE: Quite los alimentos y cualquier recipientajeajustable o de uso general de las puertas.
ADVERTENCIA

Peligro de Choque Eléctrico
Desconecte el suministro de energia antes de sacar las puertas.
No seguir esta instruccion可以使 occasionar la muerte oCHOQUE ELECTRico.
- Desenchufe el refrigerador o desconecte el suministro electrico.
- Mantenga las puertas del refrigerador cerradas hasta que esté lista para levantarlas y quitarlas del gabinete.
NOTA: Mientras retira las bisagras, siempre disponga de un soporte adicional para la puerta del refrigerador. NoDEPENDA de los imanes de la junta de las puertas para sostener la puerta en su lugar cuando trabajo.
- Comenzando por la puerta derecha, saque las piezas de la bisagra superior, como se muestra en la ilustracion Bisagra superior. Levante la puerta del refrigerador para retirarla del pasador de la bisagra inferior.
NOTA: Saque la cubierta del pasador de la bisagra inferior y guardela para usarla mas tarde. Vea la ilustracion Bisagra inferior.
- Antes de sacar la puerta del lado izquierdo, desconecte el enchufe de cableado que está ubicado sobre la bisagra superior introduciendo un destornillador de hoja plana o la una entre las dos secciones. Vea la ilustracion Enchufe de cableado.
- Quite los componentes de la bisagra superior como se muestra en la ilustracion Bisagra superior. Levante la puerta izquierda del pasador inferior de la bisagra.
NOTA: Saque la cubierta del pasador de la bisagra inferior y guardela para usarla mas tarde. Vea la ilustracion Bisagra inferior.
como volver aponer las puertas y las bisagras en su lugar
- Ensemble los componentes de la bisagra superior, como se muestra en la ilustración Bisagra superior. No apriete los tornillos por complete.
- Vuelva a colocar los componentes de la bisagra inferior, como se muestra en la ilustracion Bisagra inferior. Apriete los tornillos. Vuelva aponer en su lugar la puerta del refrigerador.
NOTA: Mientras quita las bisagras siempre disponible de un soporte adicional para la puerta del refrigerador. NoDEPENDA de los imanes de la junta de las puertas para sostener la puerta en su lugar cuando trabajo.
- Alinee la puerta de modo que la base de la puerta del refrigerador esté alineada en forma pareja con la parte superior del cajón del congelador. Apriete todos los tornillos.
- Vuelva a conectar el enchufe de cableado sobre el lado izquierdo de la puerta del refrigerador.
- Vuelva a colocar las cubiertas de la bisagra superior.
como quitar y volver a colocar elANTE del cajon del congelador
IMPORTANT: Tal vez se necesiten dos personas para quitar y volver a colocar elANTE del cajón del congelador. Las ilustraciones aparecen más adelante en esta sección.
Para guitar el frente del cajón
- Abra el cajón del congelador en toda su extension.
- Afloje los quatre tornillos que susujan las guías del cajón al fronte del cajón. Consulte la ilustración Remoción del fronte del cajón.
NOTA: Afloje los tornillos girandolos tres o quatre vezes. Mantenga los tornillos en el frontend del cajon.
- Levante elANTE del cajon hacia arriba y fuera de los tornillos. Consulte la ilustracion Remocion delante del cajon.
Para volver a colocar elANTE del cajon
- Deslice las guías fuera del compartmentío del congelador. Inserte los tornillos en la parte superior del fronte del cajón, bajo de las ranuras que están en los soportes del cajón. Consulte la ilustración Como volver a colocar el fronte del cajón.
- Jale los soportes del Cajón hacía usted para colocar los dos tornillos en la base delante del Cajón, bajo de los soportes. Consulte la ilustración Como volver a colocar elante del Cajón.
- Apriete por complete los cuales tornillos.
Pasos finales
ADVERTENCIA

Peligro de Choque Eléctrico
Conecte a un contacto de pared de connexion a Tierra de 3 terminales.
No quite la terminal de conexión a tierra.
No use un adaptor.
No use un cable eletrico de extension.
No seguir estas instrucciones puede occasionar la muerte, incendio oCHOque eletrico.
- Enchufe en un tomacorriente de 3 terminales con conexión a tierra.
- Regrese todas las partes desmontables a las puertas y la comida al refrigerador.

ADVERTENCIA
Peligro de Choque Eléctrico
Desconecte el suministro de energia antes de sacar las puertas.
No seguir esta instruccion possible occasionar la muerte oCHOque electrico.

como quitar y volver a colocar la puerta




Cómo quitar elANTE del cajón Cómo volver a colocar elante del cajón



Ajuste las puertas
IMPORTANT:
■Su Refrigerador tiene dos tornillos delanteros niveladores ajustables, uno a cada lado de la base del refrigerador. Si su refrigerador parece poco firme o si usted deseña que la puerta se cierra con más fácilidad, siga las instrucciones a continuación.
■Antes de mover el Refrigerador, levante los tornillos niveladores de modo que los rodillos frontales toquen el piso.
- Extraiga los dos tornillos que ajustan la rejilla de la base al gabinete y deben los tornillos a un lado. Tome la rejilla con firmeza y jalela hacía usted.

- Levante o baje la carcasa.
Con un destornillador hexagonal de 1/4" , gire el tornillo nivelador que está en cada lado para levantar o bajo ese lado del Refrigerador.
NOTA: Para qutar un poco de pe.so de los tornillos niveladores, haga que algoien empujte la parte superior del refrigerador. Esto facilita el giro de los tornillos. Puede precisar darle varias vueltas al tornillo nivelador para ajustar la inclinacion del refrigerador.
Para levantar, gire el tornillo nivelador hacía la derecha.
Para bajo, gire el tornillo nivelador hacía la izquierda.

A. Tornillo nivelador
B. Rodillo delantero
- Abra la puerta-Newamente para vericar que se cierra con la calidad que usted desea. De lo contrario, incline el refrigerador ligeramente mas hacia la parte posterior, girando ambos tornillos niveladores hacia la derecha. Puede tomar varias vueltas mas, y usted deberagirar ambos tornillos la mesmacantidad de veces.
- Vuelva a colocar la rejilla de la base.
USO DE SU REFRIGERADOR
CómoAbrir ycerrar las puertas
El compartmento del Refrigeradoriene dos puertas. Las puertas peuvent abrirse y cerrarse por分开 o juntas.
Hay una junta con bisagras verticales en la puerta izquierda del refrigerador.
Cuando abide la puerta izquierda del refrigerador, la junta con bisagras se pliega automatistically hacía adentro para quedar fauna del paso.
Cuando ambas puertas está cerradas, la junta con bisagras forma automatically un sello entre las dos puertas.

A. Junta con bisagras
Portobotellas
(en algunos modelos)
Debrero de un estante hay escuadas instaladas en los soportes (una escuadra en cada soporte). El portobotellas se apoya sobre estas escuadras.
Para retirar y volver a colocar el portobotellas:
- Para extraer el portobotellas, levante y retire de las escaladas. Presione elazo derecho de la bandeja hacia adentro hasta que se libre de su escaladra. Descienda elazo derecho ligeramente y desenganche elazo izquierdo de su escaladra.
- Para volver a colocar el portobotellas, inserte elazo izquierdo en su escaudra. Presione hacia adento sobre elazo derecho hasta que se deslice mas alla del borde de la escaudra y se instale bajo de la escaudra.

Uso de los controlles
El centro de control está ubicado en la parte superior del compartmentimiento del refrigerador.
Controles de temperatura
Para su convenencia, los controlles de temperaturaienen preferijados de fabrica. Cuando instale el Refrigerador por primera vez, asegúrese de que los controlles estén todas fijados en los+puntos de ajuste recomendedos, como se muestra.
Ajustes recomendados




IMPORTANT:
■Los ajustes recomendados deben ser los correctos para un uso dométrico normal del refrigerador. Los controlles estánAJustadoscorrectamente cuando la leche o los jugos estan tan fríos como眼看 y cuando el helado Tiene consistencia firme.
Cuando este encendido, la pantalla de temperatura muestra la temperatura real del compartmento.
■Espere 24 horas para que el refrigerador se enfrie completenesse antes deregar alimentos. Si agrega alimentos antes de que el refrigerador se haya enfiado porcomplete, poder echarse a perdier.
NOTA: Poner los controlles de temperatura del refrigerador y del congelador en un ajuste más frio que el recomendado no enfriarás más rápidos los componentes.
Si la temperatura está demasiado elevada o demasiado bajo en el Refrigerador o en el congelador, antes de regular los controlles, revise primero los orificios de ventilacion para cerciorarse de que no esten obstruidos.
Cooling On/Off (Enfriamento encendido/apagado):
El boton Cooling On/Off (Enfriamento encendido/apagado) apaga el enfiambre parareds compartimentos. No desconecta el suministro de energia al refrigerador.
■Mantenga presionado Cooling On/Off (Enfriamento encendido/apagado) durante 3 segundos. La luz LED se encenderá para indicar que el enfiambre está apagado. Presione el botónNuevoamente para encender el enfiambre. La luz LED se apagará.

comoajustarloscontroles
El control del REFRIGERADOR regula la temperature del compartmento del refrigerador. El control del CONGELADOR regula la temperature del compartmento del congelador.
Si necesita regular la temperatura en el compartmento del refrigerador o del congelador, utilise como guía los ajustes que se enumeran en la tabla.
Para regular las temperatas de punto de ajuste:
Al primer toque del boton tactil de (+) o de (-) , se做不到 en la pantalla el punto de ajuste actual de temperatura.
■Presione los botones táctiles (+) o (-) hasta que aparezca en la pantalla el punto fijo deseado de temperatura.
NOTA: No ajuste ningún control de temperatura en más de un ajuste por vez, excepto cuando enciende el refrigerador por primera vez. Espere 24 horas entre los ajustes para que se estabilice la temperatura.


CONDICION/MOTIVO: AJUSTE:
| REFRIGERADOR demasiado caliente | Control del REFRIGERADOR 1º más bajo |
| CONGELADOR demasiado caliente/muy poco hielo | Control del CONGELADOR 1º más bajo |
| REFRIGERADOR demasiado frio | Control del REFRIGERADOR 1º más alto |
| CONGELADOR demasiado frio | Control del CONGELADOR 1º más alto |
Funciones adiconiales del centro de control
Control de humedad
La función de control de humedad enciende un calentador para poder a reducir la humedad en el sello de la bisagra de la puerta. Uselo en ambientes humedes o cuando note humedad en el sello de la bisagra de la puerta. El refrigerador utilizes mas energia cuando el Control de humedad (Humidity Control) está encendido.
Presione Humidity Control (Control de humedad) cuando el ambiente esté calido y más humedo, o sinota humedad en el sello de la bisagra de la puerta. Se encenderá la luz indicadora cuando el control de humedad está ENCENDIDO.
■Presione Humidity Control (Control de humedad)-Newamente, para APAGARLO y ahorrar energia cuando el ambiente este menos humedo.

Modo Sabbath (Día de descanso)
El modo Sabbath (Día de descanso) ha sido Diseñado para aquellas personas cuyas practicas religiosas requisieren apagar las luces y los despachadores.
ON (Encendido) - Se desactivarás todas las luces interiores y los tonos de alarma.
OFF (Apagado) - Seactivaran todas las luces interiores y los tonos de alarma.
■Presione y sostenga el botón tíctil Sabbath Mode (Modo Día de descanso) durante 3 días o hasta que se encienda la luz indicadora para activar esta característica. Presione y sostenga-Newamente el botón tíctil Sabbath Mode (Modo Día de descanso) para apagar esta característica.

Door Alarm (Alarma de la puerta)
La característica de Door Alarm (Alarma de la puerta) hace sonar una sealsadafewoosegundocuandola puerta del refrigerador ha quedado abierta durante 5minutoseguidos.La sealsonarahasta que se cierra la puerta o se apague la alarmade la puerta.
Presione Door Alarm (Alarma de la puerta) para encender o apagar esta caracteristica. La luz indica se encenderá cuando está encendida la característica Door Alarm.
Door Alarm
Max Cold (Frio maximo)
La función de Max Cold (Frio máximo) funciona en los periodos de alto uso del refrigerador, cargas completas de comestibles o temperatas ambientales temporallmente calientes.
Presione Max Cold (Frio máximo) para fjar el congelador y el refrigerador en los ajustes de temperatura mas bajo. Presione-Newamente Max Cold para volver al punto fijo normal del refrigerador.
NOTA: La caracteristica Max Cold (Frio máximo) se apagará automatistically en aproximamente 12 horas.

Max Cold
Reposicion del filtró
El control de reposión del filtro le permite volver a起初ar la característica de control de estado del filtró de agua cada vez que estudié reemplace el filtró de agua. Consulte "Sistema de filtración de agua".
Presione y sostenga el botón táctil de Filter Reset (Reposicion del filtro) durante 3segundos, hasta que se apague la luz de Order (Pedir) o Replace (Reemplazar).

Filter Reset
Press & Hold
Preferencias del usuario
El centro de control le permite fjjar sus preferencias, si usted lo desea.
Pantalla de temperatura (F_C)
Con esta preferencia, usted可以选择 pagar la pantalla de la temperatura.
F - Temperatura en grados Fahrenheitit
C - Temperatura en grados centigrados
Alarma (AL)
Con esta preferencia, usted可以选择 apagar el sonido de todas las alarmas.
ON (Encendido) - Usted eschucará el sonido de la alarma.
OFF (Apagado) - Usted no escuchará el sonido de laalarma.
Para Obtener acceso al menu de preferencias del usuario:
- Presione y sostenga el boton táctil de Door Alarm (Alarma de la puerta) durante tres segundos. El nombre de preferencia aparecería en la pantalla del congelador y el estado de preferencia (F o C) u (ON - Encendido u OFF - Apagado) aparecerán en la pantalla del refrigerador.
- Use los botones táctiles (+) o (-) del congelador para hacer avanzar los nombres de las preferencias. Cuando aparezca en la pantalla el nombre de la preferencia deseada, presione los botones (+) o (-) del refrigerador, paraCambiar el estado de esa preferencia.
- Fije sus preferencias presionando y sostiene lo boton de Door Alarm (Alarma de la puerta) durante 3 segundos o cerrando la puerta del refrigerador o del congelador.
Control de humedad del cajón para verduras
Usted puede controlar el nivel de humedad en el cajon hermético antihumedad para verduras. Dependiendo de su Modelo, regule el control arialquier ajuste entre Fruta (FRUIT) y Vegetales (VEGETABLES) o Bajo (Low) y Alto (High).
FRUIT/LOW (Fruta / Bajo - posicion abierta) para el mejor almacenimiento de frutas y verduras con cascaras.
VEGETABLES / HIGH (Vegetales / Alto - posicion cerrada) para el mejor almacenimiento de vegetales de hoja frescos.
Fábrica de hielo
IMPORTANTE: Enjuague el sistema de agua antes de encender la fabricula de hiero. Consulte "Despachador de agua".
Para encender y apagar la fabrica de hielo
Para poner a functionar la fabricula de hielo, sencillamente bajo el brazo de control de alambre.
Para apagar la fibricula de hielo, levante el brazo de control de alambre hasta la
posicion OFF (Apagado) (hacia arriba) hasta que se oiga un click.
NOTA: La fabrica de hielo tiene apagado automatico. A medida que se produce el hielo, los cubitos de hielo llenaran el deposito para hielo y ellos levantarán el brazo de control de alambre a la posicion OFF (Apagado - brazo elevado). No fuerce el brazo de control de alambre hacía arriba o hacía abajo.

Depóstito automatístico de hielo
Su deposto de hielo tiene una palanca que permite que este se deslice hacía fuera con el cajón cuando se jala para abrirlo o para que permaneceza en su lugar.
■Mueva la palanca hacía la derecha para fjar el depóstito de hielo al cajón del congelador.
■Mueva la palanca hacía la izquierda para liberar el deposito de hielo del cajón del congelador.


A. Palanca del deposito de hielo
Ritmo de produccion de hielo
La fabrica de hieloDebe producir un lote completo de hielo aproximamente cada 3 horas.
Para augmentar la produccion de hielo, bajo la temperatura del congelador y del refrigerador. Consulte "Uso de los controlleds". Dejeasar 24 horas entre cada ajuste.
Recuerde
■Espere 24 horas para la produccion del primer lote de hielo. Deseche los tres primeros lotes de hielo producidos. Espere 3 días para tener por completeo el deposito de almacenamento de hielo.
La calidad del hielo dependerá de la calidad del agua que se suministre a la fabrica de hielo. Evite la connexion de la fabrica de hielo a un suministro de agua ablandada. Las sustancias químicas realizadas para ablandar el agua (como la sal) peuvent darar componentes de la fabrica de hielo y producir hielo de calidad deficiente. Si no se可以选择 evaporar el uso de un suministro de agua ablandada, asegúrese de que el ablandador de agua está fácilando correctamente y que reciba un buena mantenimiento.
■No guarde nada encima de la fabricula de hielo o en el deposto de hielo.
Despachador de agua
IMPORTANT:
- Después de haber connectado el refrigerador a un suministro de agua o de haber reemplazado el filtro de agua, enjuague el sistema de agua. Use un recipiente resistente paraocrimir y sostenler la barredespachador por 5 segundos,iego sueltela por 5 segundos. Repita hasta que el agua comience a correr. Una vez que el agua haya comenzado a correr, continu presionando y soltando la paleta del despachador (5seguidosactivado,5seguidosdesactivado)hasta despachar un total de 4 galones (15 L).Esto eliminaráel aire del filtróy del sistemasde despachado de agua y prepararale filtróde agua para el uso.
En algunos casas se pueda requisir un enjuague adicional.
A medida que sale aire del sistema, es posible que salgan chorros de agua repentinos del despachador.
NOTA: Después de 5 Minutes de despacho continuo, el despachador se detendra para evaporar derrames. Para segir despachando, presione nuevomente la paleta del despachador.
■Espere 24 horas para que el Refrigerador se enfié y pueda enfiar el agua. Haga pagar suficiente agua cadamana para mantener un suministro fresco.
Despacho de agua
- Sostenga un recipiente por debajo del pico del despachador,mIJas presiona el boton.
- Suelte el botón paradefer de despachar.

Sistema de filtración de agua
El filtro de agua está ubicado en la esquina superior derecha del compartmentimiento del refrigerador.
No use con agua que no sea microbiologicoamente segura o que sea de calidad desconocida sin desinfectarla adequamente antes o.after del sistemas. Puede usarse sistemas certificados para la reduccion de quistes en aguas desinfectadas que poderan CONTER quistes filtrables.
Luces de estado del filtró de agua
Cuando se ha instalado un filtro de agua en el refrigerador, las luces de estado del filtró de agua le recordarán cuando deben solicitar yCambiar su filtró de agua.
La luz Order (Pedir) se iluminará cuando el 90 % del volumen de agua para elrial se ha clasificado el filtro haya pasado a工程技术 de este, O BIEN si han pasado 5 meSES desde que se instaló el filtr.
La luz de Replace (Reemplazar) (roja) se iluminará cuando el volumen nominal de agua haya pasado a工程技术 del filtro O BIEN si han pasado 6 meSES desde que se instalo el filtro. Se debe instalar un nuevo filtró inmediamente afterwards de que se illumine la luz de Replace (Reemplazar).
El filtro de agua deseachable deben reemplazarse al menos cada 6 pesos O BIEN antes, si el flujo de agua hacía el despachador de agua o hacía la fabrica de hielo disminuye notablemente.
Estado de reajuste del filtró de agua
Después de reemplazar el filtro de agua, presione y sostenga RESET FILTER (Reponer filtro) o FILTER RESET (Reposicion de filtró) durante 3 segundos. Las lucesindicadoras Order (Pedir) y Replace (Reemplazar) destellarán y bajo se apagarán cuando elsystema es reajustado.Consulte "Uso de los controlles".
Reemplazo del filtró de agua
Para comprar un bajo de agua de repuestos, modelo UKF8001AXX-200 / EDR4RXD1, consulte "Accesorios".
IMPORTANTE: El aire que quede atrapado en el sistema de agua puede hacer que se salga agua y el filtro. Siempre despache agua por lo menos durante 2 horas antes de quitar el filtró o la tapa azul de paso.
- Gire el filtro en el sentido contrario a las manecillas del reloj para sacarlo.
- Saque la etiqueta de sellado del filtro de reemplazo e inserte el extremo del filtro bajo del cabezal del filtrio.
- Gire el filtro hacía la derecha hasta que se detenga. Encaje la cubierta del filtro en su lugar para cerrarla.
- Enjuague el sistema de agua. Vea "Despachador de agua" o "Despachador de agua y hielo".
NOTA: La característica del despachador se pueda usar sin tener un filtro de agua instalado. El agua no está filtrada. Si elige estaopsis, reemplace el filtro con la tapa azul de paso.
CUIDADO DEL REFRIGERADOR
Limpieza
ADVERTENCIA

Peligro de Explosion
Use un limpiador no inflatable.
No seguiarestinstuccion pueede occasionar la muerte, explosion o incendio.
Tanto la sección del Refrigerador como la del congelador se descogelan automatistically. No obstarce, limpie ambas secciones más o menos una vez al mes para evaporar la acumulación de olores. Limpie los cerrames de inmediato.
IMPORTANT:
- Debido a que el aire circula entre ambas secciones,在哪quier olor que se forme en una seccion pasara a la othera. Debe limpiar meticulosamente ambas secciones para eliminar olores. Para evaporar la transferencia de olores y la deshidratacion de los alimentos, envuelva o tape herméticamente los alimentos.
■Para los modelos de acero inoxidable, el acero inoxidable es resistente a la corrosion y no a prueba de corrosion. Para poder a evaporar la corrosion del acero inoxidable, mantenga las superficies limpias, siguiendo las instrucciones de limpieza a continuacion.
Para limpiar su refrigerador:
NOTA: No use products of limpieza abrasivos o asperos, como arosoles para ventanas, produits de limpieza para pulir, liquidos inflamables, acido muriatico, ceras para limpieza, detergentes concentrados, blanqueadores o produits de limpieza que contengan produits derivados de petróleo en las superficies exteriores (puertas y carcaja), partes de plástico, revestimientos interiores o de la puerta, o juntas. No use toallas de papel, estropajos para fregar nithers utensilios de limpieza asperos.
- Desenchufe el refrigerador o desconnecte el suministro electrico.
-
Lave a mano, enjuague yooteras las partes desmontables y las superficies interiores metriculosamente. Use una esponja limpia o un paño liso y un detergente suave en agua tibia.
-
Limpie las superficies exteriores.
Metal pintado: Limpie el exterior de metal pintado con un pañolimpio y liso, o una esponja y detergente suave en agua tibia. Enjuague las superficies con agua tibia limpia y séquelas inmediamente para evaporar las manchas de agua.
Acero inoxidable: Lave las superficies de acero inoxidable con un paño limpio y liso o una esponja y un detergente suave en agua tibia.
Enjuague las superficies con agua tibia limpia y sequelas inmediamente para evaporar las manchas de agua.
NOTA: Cuando limpie el acero inoxidable, siempre talle en la direccion de la veta para evaporar rayar a工程技术 del本身就是.
-
No se necesita una limpieza rutinaria del condensador en ambientes de funcionaimiento de casas normales. Si el ambiente es particulamente grasoso o polvoriento, o si haybastante trasnito de mascotas en el hogar, el condensadordeferá limpiarse cada dos o tres días para asegurar la maxima eficiencia. Si es necessario limpiar el condensador:
Retire la rejilla de la base.
Use a aspiradora con un cepillo suave para limpar la rejilla, las zonas abiertas detrás de la rejilla y la superficie frontal del condensador.
Vuelva a colocar la rejilla de la base cuando termine. -
Enchufe el refrigerador o reconnecte el suministro de energia.
comocaeiarelfoco
IMPORTANTE: El Sistema de iluminacion en este electrodomesticouede constar de:
Modulos LED sellados
■Focos LED
■Focos incandescentes
O una combinación de这些东西.
Si el modulo LED sellado no enciende cuando abre la puerta del refrigerador y/o congelador, llame para solicitaronga o servicios技术和. Consulte "Garantia" para Obtener la informacion de contacto.
Si un foco LED no enciende cuando abide la puerta del refrigerador y/o congelador, cambielo por unismo bajo y siga elsiguiente procedimiento para hacerlo:
- Desenchufe el refrigerador o desconecte el suministro de energia.
- Quite el protector de luz (en algunos modelos).
■Quite las piezas que sostienen el protector de luz en su lugar.
- Parte superior del compartmentio del refrigerador - Deslice el protector de luz汇集 la parte posterior del compartmentio para liberarla del ensamblaje de luz.
- Cambie los focos quemados por focos del mesmo<tamaño, forma y vataje.
■Pida la pieza número W10565137 (3,6 W).
NOTA: Algunos focos LED de repuesto no se recomienda para ambientes humedes. Los compartmentimientos del refrigerador y congelador se consideran ambientes humedes. Si utilizes un bajo LED de unamarca diferente a la recomendada, antes de la instalacion, lea y siga todas las instrucciones del empaque del LED.
- Vuelva a colocar el protector de luz insertando las lengüetas del protector en los orificios interiores, ubicados a cada lado del montaje de la luz. Deslice el protector hacía el frente hasta que encaje en su lugar.
NOTA: Para evaporar Causea gn al protector de luz, no lo fuercce mas alla del punto de bloqueo. - Vuelva a colocar las piezas que sostienen al protector de luz en su lugar.
- Enchufe el refrigerador o reconnecte el suministro de energia. Si unAGO incandescende no enciende cuando abre la puerta del refrigerador y/o congelador, c的身体 por un foco igual y siga el本身就是 procedimiento detallado arriba para hacerlo. Reemplace el foco quemado solo con focos incandescentes del本身就是 forma y vataje (maximo 40 W), diseñados para electrodomesticos del hogar.
- Desenchufe el refrigerador o desconnecte el suministro electrico.
- Quite el foco quemado y reemplacelo por un foco para electrodomesticos que no sea de mas de 40 W.
Modelos con Tecnología LED únicamente:
Para reemplazar unAGOLED por otro foco LED, pida la pieza numero W10565137 (3,6 W).
NOTA: Algunos focos LED de repuesto no se recomienda para ambientes humedes. Los compartmentimientos del refrigerador y congelador se consideran ambientes humedes. Si utilizes unAGOLED de unamarca diferente a la recomendada por Whirlpool,antes de la instalacion,lea y sigas todas las instrucciones del empaque del LED.
Para reemplazar el foco LED por un foco incandescente, use solo focos incandescentes para electrodométricos con un máximo de 40 W.
3. Enchufe el refrigerador o reconecte el suministro de energia.
SOLUTION DE PROBLEMAS
Prue be primo las soluiones sugeridas aui. Si necesita asistencia adiconal o mas recomendaciones que podan aidarlo a evitar una llamada de service tcnico, consulte la pagina de la garantia de este manual o visite http://jennair.custhelp.com. En Canadavisite www.jennair.ca (es possible que el situ web no sea compatible con algunos dispositivos).
Si Tiene preguntas o dudas, contactenos por correo a la direccion que aparece a continuacion:
En los EE. UU.: En Canadá:
Incluya en su correspondencia un número de téléphone en el que se le pueda localizar durante el día.
El refrigerador no funciona
ADVERTENCIA

Peligro de Choque Eléctrico
Conecte a un contacto de pared de conexión a tierra de
3 terminales.
No quite la terminal de conexión a tierra.
No use un adaptor.
No use a cable eletrico de extension.
No seguir estas instrucciones puede occasionar la muerte, incendio oCHOque elec rico.
Está desenchufado el cable de suministro de energia? Enchufe en un tomacorriente de 3 terminales con conexión a tierra.
- Funciona el contacto? Enchufe una lámpara para ver si funciona el tomacorriente.
Hay un fusible de la casa fundido o se disparó el cortacircuitos? Reemplace el fusible o restablezca el disyuntor. Si el problema continua, llama a un electricista.
Están encendidos los controlles? Asegúrese de que los controlles del refrigerador estén encendidos. Consulte "Uso de los controlles".
Es nuevo la instalacion? Espere 24 horas après de la instalacion para que el Refrigerador se enfierte por complete. NOTEA: El ajustar los 控les de temperatura en la posic-. mAs fria no enfiira ningun compartmento mas rapiido.
El motor parece funcionar demasiado
Es posible que su nuevo refrigerador funciona por periodos mas largos que su refrigerador anteriormente debo al compresor y los ventiladores de alto rendimiento. Es posible que la unidad funcie por mas tiempo si la habitacion esta caliente, si se ha aggregado una grancantidadde alimentos,si se abren las puertas con Frequencia o si se han dejado las mismas abiertas.
El refrigerador parece ser ruidoso
El ruido del Refrigerador se haido reduciendo a lo largo de los años. Debido a esta reduccion, es possible que escuche ruidos intermitentes en su nuevo refrigerador que no había notado en el modelos viejo. A continuacion se enumeran algunos sonidos normales con explicaciones.
Zumbido - se escucha cuando la valvula de agua se abre para llenar la fabricula de hielo
■Sonido pulsante - los ventiladores/el compresor se está ajustando para Obtener el máximo desempeño
■ Sonido sibilante/vibraciones - flujo de liquido refrigerante, movimiento de la tuberia de agua o articulos guardados arriba del refrigerador
Chisporroteos/Gorgoteos - agua gozteando en el calentador durante el ciclo de descongelacion
Estallido - contracción/expansion de las paredes interiores, especially durante el enfiambre inicial
- Agua corriendo - pueda eschuchense cuando el hielo se derrite durante el ciclo de descogelación y el agua correía la bandeja recollectora
Chirridos/Crujidos -esto occursuwhen el hieloes expulsado del molde de la fabrica de hielo.
Las puertas no cierran completeness
Están bloqueadas las puertas? Aleje los paquetes de alimentos de la puerta.
- Hay un recipient e un estante bloqueando el paso? Empuje el recipient e el estanteNuevoamente a la posicion correcta.
Es dificil abrir las puertas

Están las empaquetaduras sucías o pegajosas? Limpie las juntas y las superficies de contacto con jabón suave y agua tibia. Enjuague y seque con un paño suave.
Temperatura y humedad
La temperatura está demasiado elevada
Es nuevo la instalacion? Espere 24 horas après de la instalacion para que el Refrigerador se enfierte por complete.
Las puertas se abren a dato o quedan abiertas? Este permite el ingresso de aire caliente al refrigerador. Reduzca al minimo el numero de veces que abide la puerta y mantenga las puertas Completely cerradas.
Se ha aggregado una grancantidad de alimentos? Espere varias horas para que el refrigerador vuelva a la temperatura normal.
Se han ajustado los controlles correctamente de acuerdo con las conditiones circundentes? Regule los controlles un ajuste más frío. Fijese en la temperatura en 24 horas. Consulte "Uso de los controlles".
Hay acumulación de humedad en el interior
NOTA: Cierta acumulación de humedad es normal.
Está humeda la habitación? Este contribuye a la accumulator de humedad.
Las puertas se abren a dato o quedan abiertas? Esto hace que entre aire humedo al refrigerador. Reduzca al minimum el numero de vezes que abide la puerta y mantenga las puertas Completely cerradas.
Hieloyagua
La fabricula de hielo no produce hielo o no produce suficiente hielo
i. Se ha connectado el Refrigerador a un suministro de agua y se ha abierto la valvula de cierre? Conecte el refrigerador al suministro de agua y abra Completely la valvula de cierre.
Hay an estrechamiento en la tuberia de suministro de agua? Una retorcedura en la linea可以选择 reducir el flujo de agua. Enderece la linea de origen de agua.
Está encendida la fabricula de hielo? Asegúrese de que el brazo o interruptor de control de alambre (dependiendo del modelos) está en la posición de ON (Encendido).
Es nuevo la instalacion? Espere 24 horas afterwards de la instalacion de la fabrica de hielo para que empiece a producir hielo. Deje transcurrir 72 horas para la produccion total de hielo.
Está Completely cerrada la puerta del congelador? Cierre con firmeza la puerta del compartmento del congelador. Si la puerta del compartmento del congelador no se cierra Completely, consulte "Las puertas no cierran Completely" antes en esta sección.
■ Se acaba de sacar una gran*cantidad de hielo? Deje transcurrir 24 horas para que la fabrica de hielo produzca más hielo.
■Se trabó un cubo de hielo en el brazo eyector de la fabricula de hielo? Saque el hielo del brazo eyector con un utensilio plástico.
Tiene un filtro de agua instalado en el refrigerador? Quite el filtro yonga a functionar la fabricula de hielo. Si el volumen de agua augente, el filtro能把 estar obstruido o haberse instalado Incorrectamente. Reemplace el filtro owhelminga instalarlo correctamente.
Se hacketado un Sistema de filtracion de agua de osmosis inversa al suministro de agua fria? Este peut hacer que disminuya la presion de agua. Consulte "Requisitos del suministro de agua".
Los cubos de hielo son huecos oPEGUEOs
NOTA: Este es una indicación de bajo presión de agua.
No está abierta por completeness la valvula de cierre de agua? Abra completeness la valvula de cierre de agua.
Hay an estrechamiento en la tuberia de suministro de agua? Una retorcedura en la linea可以选择 reducir el flujo de agua. Enderece la linea de origen de agua.
Tiene un filtro de agua instalado en el refrigerador? Quite el filtro yonga a funciona la fábrica de hierelo. Si mejora la calidad del hierelo, el filtro可以选择 estar obstruido o haberse instalado incorrectamente. Reemplace el filtro owhelming a instalarlo correctamente.
Se hacketado un Sistema de filtracion de agua de osmosis inversa al suministro de agua fria? Este peut hacer que disminuya la presion de agua. Consulte "Requisitos del suministro de agua".
Aún Tiene preguntas acerca de la presión de agua? Llamé a un plomero competente matriculado.
El hielo tiene mal sabor, mal olor o un color grisaceo
■ Son新品as conexiones de plomería? Las conexiones新品as de plomería poder producir un hielo descolorido o de mal sabor.
Se han guardado los cubos de hielo por mucho tiempo? Deseche ese hielo. Lave el recipiente de hielo. Espere 24 horas para que la fabrica de hielo haga hielo nuevo.
Ha habido una transferencia de olor de los alimentos? Use recipientes herméticos contra humedad para almacenar comida.
Contiene el agua minerales (como el azufre)? Puede sernecessary instalar un filtro de agua para eliminar los minerales.
Tiene un filtro de agua instalado en el refrigerador? Un descoloramento oscuro o un color gris del hielo indican que el sistema de filtrado de agua necesita enjuagarse mas. Enjuague el Sistema de agua antes de usar un nuevo filtrto. Reemplace el filtrto de agua cuando se indique. Consulte "Sistema de filtracion de agua".
El despachador de agua no funciona debidamente
Se ha connectado el Refrigerador a un suministro de agua y se ha abierto la valvula de cierre? Conecte el refrigerador al suministro de agua y abra Completely la valvula de cierre.
Hay un estrechamiento en la tuberia de suministro de agua? Enderece la linea de origen de agua.
Es nuevo la instalacion? Enjuague y llene el sistemas de agua. Consulte "Despachador de agua".
Está la presión de agua a por lo menos 35 psi (241 kPa)? La presión de agua a la casa determina el flujo del despachador. Consulte "Requisitos del suministro de agua".
Tiene un filtro de agua instalado en el refrigerador? Saque el filtro yonga a functionar el dispensador. Si mejor el flujo de agua, el filtro可以选择 estar obstruido o haberse instalado incorrectamente. Reemplace el filtro o vuelva a instalarlo correctamente.
- ¿Está Completely cerrada la puerta del refrigerador? Cierre la puerta con firmeza. Si no se cierra Completely, consulte "Las puertas no cierran Completely" anteriorsmente en esta sección.
■ Se han quitado las puertas recentemente? Asegúrese que el montaje del alambre/tubo del dispensador se ha vuelto a conectar como es debido. Consulte "Puerta(s) y cajón del refrigerador".
Se ha connectado un Sistema de filtracion de agua de osmosis inversa al suministro de agua fria? Este peut hacer que disminuya la presion de agua. Consulte "Requisitos del suministro de agua".
Hay fugas de agua en el sistema del dispensador
NOTA: Es normal que caigan una o dos gotas de agua antes de servir agua.
■No se ha puesto el vaso bajo del despachador el tiempo suficiente? Sostenga el vaso bajo del despachador durante dos a tressegundos despues de soltar la palanca del despachador.
Es nuevo la instalacion? Enjuague el sistemas de agua. Consulte "Despachador de agua".
Haentiethocentementelilftrdeagua?Enjuague el
sistema de agua.Consulte"Despachador de agua".
Hay agua en el piso cerca de la rejilla de la base? Asegúrese de que las conexiones de la tuberia del dispensador de agua estén bien ajustadas. Consulte "Puerta(s) y Cajón del refrigerador".
El agua del despachador está tibia
NOTA: El agua del despachador se enfiía solamente a 50^ F (10^)
Es nuevo la instalación? Espere 24 horas après de la instalación para que el suministro de agua se enfié Completely.
Se ha despachado recentemente una grancantidad de agua?Deje transcurrir 24 horas para que el suministro de agua se enfrie completeness.
No se ha uso el despachador de agua recientemente? Puede ser que el primer vaso de agua no este frio. Descarte el agua del primer vaso.
Se ha connectado el refrigerador a una tuberia de agua fria? Asegürese de que el refrigerador está conectado a una tuberia de agua fria. Consulte "Requisitos del suministro de agua".
ACCESORIOS
Los siguientes accesos están disponibles para su Refrigerador. Para poder un accesorio, contactenos y Solicite el número de pieza.
En los EE. UU., visite{nuestra网页 www.jennair.com/accessories oIlame al 1-800-JENNAIR (1-800-536-6247).
En Canadá, visite nthustra página web www.jennair.ca o llame al 1-800-JENNAIR (1-800-536-6247).
Limpiador para acero inoxidable affresh:
En EE. UU., pida la pieza N° W10355016
En Canadá, pida la pieza N° W10355016B
Toallitas humidas para acero inoxidable affresh:
En EE. UU., pida la pieza N° W10355049
En Canadá, pida la pieza N° W10355049B
En EE. UU., pida la pieza N° W10355010
En Canadá, pida la pieza N° W10355010B
Filtro de agua:
Pida la pieza n. UKF8001AXX-200
Preservador de alimentos frescos (en algunos modelos):
Pida la pieza n.° W10346771A
HOJAS DE DATOS DEL PRODUCTO
Sistema de filtración de agua
Modelo P8WB2L/P8RFWB2L (EDR1RXD1, Filter 1) Capacidad de 200 galones (757 liters)

Sistema probado y certificado por NSF International, según las normas NSF/ANSI 42, 53, 401 y CSA B483.1** para la reducción de los elementos asignificados en la Hoja de datos de rendimiento.
Este sema h sdo probado segun las normas NSF/ANSI 42, 53, 401 y CSA 483.1^ para la reduccion de las sustancias citadas a continuacion. La concentricn de las sustancias indicadas en agua que entra el sema fue reducida a una concentracion menor o igual al limite permitted para agua que sale del sema, como se especifica en las normas NSF/ANSI 42, 53, 401 y CSA 483.1^
**Certificado en CSA B483.1 solo para uso en aplicaciones de Refrigerador.
| Reducción de sustancias Effectos estéticos | Concentración en el agua entrada | Concentración Máxima permitted del producto en el agua | % promedio de reducción |
| Cloro, saber/orlor | 2,0 mg/L ± 10 % | 50 % de reducción | 97,2% |
| Clase de particulas I* | Por lo menos 10.000 partículas/mL | 85 % de reducción | 99,9% |
| Reducción de contaminantes Concentración en el agua aatar Concentración | máxima permitted del producto en el agua | % promedio de reducción | |
| Plomo: a pH 6,5/a pH 8,5 0,15 mg/L ± 10% | 0,010 mg/L 96,0% | ||
| Benceno 0,015 mg/L ± 10% 0,005 mg/L | 99,8% | ||
| P-Diclorobenceno 0,225 mg/L ± 10% 0,075 mg/L 91,9% | |||
| Carbofurano 0,08 mg/L ± 10% 0,040 mg/L | 92,4% | ||
| Toxafeno 0,015 mg/L ± 10% 0,003 mg/L | >99% | ||
| Atrazina | 0,009 mg/L ± 10% 0,003 mg/L >99,99% | ||
| Asbesto | 10a a 10b de fibras/L† | 99% | 99,0% |
| Quistesi | 50.000/L min. | 99,95 % | >96,6% |
| Turbidez 11 NTU ± 10% | 0,5 NTU >99,8% | ||
| Lindano | 0,002 mg/L ± 10% 0,0002 mg/L | 99,4 % | |
| Tetracloroetileno | 0,015 mg/L ± 10% 0,005 mg/L >99,8% | ||
| O-Diclorobenceno | 1,8 mg/L ± 10% | 0,60 mg/L | 93,8 % |
| Ethylbenceno | 2,1 mg/L ± 10% | 0,70 mg/L | 99,8 % |
| 1,2,4-Trichlorobenceno | 0,210 mg/L ± 10% 0,07 mg/L | 87,9 % | |
| 2,4-D | 0,210 mg/L ± 10% 0,07 mg/L | >96,6 % | |
| Styreno | 2,0 mg/L ± 10% | 0,1 mg/L 95,9 % | |
| Tolueno | 3,0 mg/L ± 10% | 1,0 mg/L | >96,9 % |
| Endrin | 0,006 mg/L ± 10% 0,002 mg/L >96,4 % | ||
| Atenolol | 200 ± 20 % | 60 ng/L | >97,0 % |
| Trimetoprima | 140 ± 20 % | 20 ng/L | >97,4 % |
| Linurón | 140 ± 20 % | 20 ng/L | >97,9 % |
| Estrona | 140 ± 20 % | 20 ng/L | 93,8 % |
| Nonifenol | 1400 ± 20 % | 200 ng/L 96,1 % | |
| Carbamazepina | 1400 ± 20 % | 200 ng/L 99,20 % | |
| Phenytoino | 200 ± 20 % | 30 ng/L | 99,3%/98,6 % |
| Naproxeno | 140 ± 20 % | 20 ng/L | 93,3 % |
| Bisfenol A | 2000 ± 20 % | 300 ng/L 98,9 % |
Parimetros de la prueba: pH = 7,5± 0,5 a menos que se indique ocra casa. Flujo = 0,5 gpm (1,89 Lpm). Presion = 60 lb/pulg2 (413,7 kPa).
Temp. = 68 °F a 71,6 °F (20 °C a 22 °C). Capacidade de的服务i o nominal = 200 galones (757 litros).
Los compuestos certificados segun NSF 401 se han considerado "compuestos emergentes/contaminantes incidentales". Los compuestos emergentes/contaminantes
incidentales son aquellos compuestos que se detectaron en suministros de agua potable en niveles detectables. Avec solo se presentan en niveles de traza,esticos
compuestos能把 aceptacion/percepion publica de la calidad del agua para beber.
Es importante que los requerimientos de operación, mantenimiento y replazos del filtró se lleven a cabo para que el producto se desempene tal como se ofrece en la publicidad. Pueden occurrir daños a la propidad si no se siguen todas las instrucciones.
El cartucho desechabledeferacambiarse almenos cada 6 meSES.
Use el filtro de repuestos UKF8001, No. de pieza EDR4RX D1/EDR4RXD1B. ElPRECIO sUGERIDO DE VALE al por menor durante el afo 2015 es de 49,99 en EE.UU./49,95 en Canad.A LosPRECIOS estan susjetos a cambio sin previo aviso.
El sistemas de monitoreo del filtró mide la cantidad de agua que atráviesa el filtró y emite una alerta cuando llega el momento de Cambiar el filtró.
Elistema de monitoreo del filtro mide la calidad de agua que atraviesa el filtr y le alerta cuandoriba el momento de Cambiar el filtr. Para saber como revisar el estado del filtr de agua, vea "Uso de los controlles" o "Sistema defiltracion de agua" en las Instrucciones del usuario o la Guia del usuario.
- Después dechangiar el filtró de agua, enjuague el Sistema de agua. Consulte "Despachadores de agua y hielo" o "Despachador de agua" en las Instrucciones del usuario o el Manual del usuario.
Estos contaminantes no se encontrartran necessitiesamente en su suministro de agua. Si bien se realizaron las pruebas bajo conditiones de laboratorio estandar, el desempeño realuedevariar.
El producto es para uso con agua fria unicamente.
El sistemas de agua deben instalarse conforme a las leyes y normativas estatales y locales.
No lo use con agua que no sea microbiologicamente segura o que sea de calidad desconocida sin desinfectarla adecuadamente antes o.afteres delsystema. Pueden usarse sistemas certificados para la reduccion de particulas en aguas desinfectadas que poderan tener particulas filtrables. EPA Est. N° 082047-TWN-001.
■ Consulte la sección de la "Garantía" (en las Instrucciones del usuario o la Guía del usuario) para ver la garantía limitada, el nombre y el número de téléphone del fabricante.
Pautas de aplicacion / Paramedros para el suministro de agua
Suministro de agua Municipal o de pozo potable
Presión del agua 30 psi-120 psi (207 kPa - 827 kPa)
Temperatura del agua 33^ - 100°F (0,6° - 37,8°C)
Flujo nominal de service 0,6 GPM (2,27 L/min) a 60 psi (413,7 kPa)
Su sistemas de filtración de agua soportará una presión de agua de hasta 120 libras por pulgada cuadrada (psi). Si el suministro de agua es superior a 80 psi, instale una valvula reductora de presión antes de instalar el sistemas de filtración de agua.

GARANTÍA LIMITADA DEL REFRIGERADOR JENNAIR®
ADJUNTE SU RECIBO AQUI. SE REQUIERE LA PRUEBA DE COMPRA PARA OBTENER SERVICIO BAJO LA GARANTIA.
Tenga a mano la asigniente informacion cuando llame al Centro para la eXperiencia del cliente:
Nombre, direccion y número de téléphone
Numerator de modelo y de série
- Una descripción clara y detallada del problema
- Prueva de compra incluido el nombre y la direccion del distribuidor o vendedor
SI NECESITA SERVICIO TECNICO:
- Antes de contactarno for obtener service, determine si el producto requiere reparacion. Algunas consultas能把nderse sin service tcnico. Tomese unos minuto para revisar la section de Solucion de problemas o Problemas y soluiones del Manual de uso y cuidado, o visite https://jennair.custhelp.com.
- Todlos los servicios bajo la garantia los brindan exclusivamente Prestadores autorizados de service de Jenn-Air Para EE.UU y Canada, dirija todas las solicitudes de service bajo la garantia a:
Centro para la eXperiencia del cliente de Jenn-Air
1-800-JENNAIR (1-800-536-6247).
Si usted se encuentra fuera de los cincunta Estados Unidos o Canadapongase en contacto con su distribuidor autorizo de Jenn-Air para determinar si corresponde othera garantia.
GARANTÍA LIMITADA DE DIEZ ANOS
LO QUE ESTÁ CUBIERTO LO QUE NO ESTÁ CUBIERTO
GARANTIA LIMITADA DE DOS ANOS (PIEZAS Y MANO DE OBRA)
Durante dos años a partir de la Fecha de compra, siempre y cuando este electrodométrico principal haya sido instalado, mantenido y operado según las instrucciones adjuntas o provistas con el producto, lamarca Jenn-Air de Whirlpool Corporation o Whirlpool Canada LP (en lo sucesivo denominado "Jenn-Air") se hará cargo del costo de las piezas espécicas de fabrica y del trabajo de reparación para corregir defectos en los materiales o en la mano deoba existentes en el momento de la compra de este electrodométrico principal o, a su sola discrección, reemplazaré el producto. En el caso de reemplazar el producto, su electrodométrico estará cubierto por la garantía por el tiempo restante del periodo de garantía de la unidad original.
GARANTIA LIMITADA DEL TERCER AL QUINTO ANO EN EL REVESTIMIENTO DE LA CAVIDAD Y EL SISTEMA DE REFRIGERACION SELLADO
Durante el tercer al quinto año desde la Fecha de compra, cuando este electrodométrico principal sea instalado, operado y mantenido de acuerdo a las instrucciones adjuntas o provistas con el producto, lamarca Jenn-Air pagará por las piezas de repuestos specificadas de fabrica y mano de obr de reparación para los seguidentes componentes, para corrigir defectos no estéticos de material y de mano de obr en esta pieza que evite el funcionaimiento del refrigerador, y que haya existido en el momento de la compra de este electrodométrico principal:
Recubrimiento de la cavidad del refrigerador/congelador, si la pieza se quebrara debido a materiales defectuosos o mano deobra.
- Sistema de refrigeracion sellado (incluye compresor, evaporador, condensador, secador y tubos conectores).
GARANTIA LIMITADA DEL SEXTO AL DECIMO ANO (UNICAMENTE EN EL SISTEMA DE REFRIGERACION SELLADO MANO DE OBRA NO INCLUDEA)
Durante el sixtho al decimo afo de la fecha de compra, cuando este electrodomestico principal sea instalado, operado y mantenido de acuero a las instrucciones adjuntas o provistas con el producto, la marca Jenn-Air pagar para las piezas de repuesto especificadas de fabrica para los seguidentes componentes, para corrigir defectos de material o de mano de obra en elistema de refrigeracion sellado (incluye compresor, evaporador, condensador, secador y tubos connectores), existentes en el momento de la compra de este electrodomestico principal.
SU UNICO Y EXCLUSIVE RECURSO SEGUN LOS TERMINOS DE ESTA GARANTIA LIMITADA SERA EL DE REPARAR EL PRODUCTO SEGUN SE ESTIPULA EN LA PRESENTE. El serviceo deberá ser suministrado por una companía de serviceo designada por Jenn-Air.Esta garantía limitada es valida solamente en Estados Unidos o en Canadá y se aplica solamente cuando el electrodométrico principal se use en el pais en el que se ha comprado.Esta garantía limitada entrada en vigor a partir de la Fecha de la compra del consumidor original. Se requiere una prueba de la Fecha de compra original para Obtener serviceo bajo esta garantía limitada.
- Uso comercial, no residencial o familiar multiple o uso diferente delindicado en las instrucciones del usuario, del operador o de instalacion publicadas.
- Instruccion a domicilio sobre como usar el producto.
- Servicio para corregir el mantenimiento o la instalación incorrecta del producto, la instalación que no esté de acuerdo con loscottos electricos o de plomería o corrección de plomería o instalación electrónica domestica (por exemple, instalación electrónica, fusibles o mangueras de entrada de agua del hogar).
- Piezas de consumo (por exemple, focos de luz, baterias, filtros de agua o de aire, soluciones de conservacion, etc.).
- Defectos o daños causados por el uso de piezas o accesorios no legitimos de Jenn-Air.
- Danio causado por accidente, uso indebido, abuso, incendio, inundacion, actos fortuitos o el empleo de products no aprobados por Jenn-Air.
- Reparaciones a piezas o sistemas para corregir el dano o los defectos del producto a causa de reparaciones por servicios no autorizzato, alteraciones o modificaciones en el electrodomestico.
- Danos estéticos, incluyendo rayaduras, abolladuras, desportilladuras y other daio al acabado del electrodométrico a menos que el本身就是 sea bajo a defectos en los materiales o la mano de obr y se le informe a Jenn-Air en un lapso de 30 días.
- Decoloración, Herrumbre u oxidación de las superficies producto de entornos corrosivos o causticos que incluyen, entre otheras cosas, altas concentraciones de sal, humedad elevada o exposión a productos químicos.
- Pédida de comida o medicamentos debido a la falla del producto.
- Recogida o entrega. Este produit está destinado para ser reparado en su hogar.
- Gastos de viaje o de transporte para prestar增值服务 en lugares remotos en los cuales no haya disponible un先进技术 de service autorizado por Jenn-Air.
- Remoción o reinstalación de electrodomesticos en lugaras inaccessibles o dispositivos empotrados (por exemple, adornos, panteles decorativos, pisos, armarios, Islas, mostradores, paredes, etc.) que interferan con el service, la remoción o el reemplazo del producto.
- Servicio técnico o piezas para electrodométricos con números de série/modelo originales Removedos, alterados o no identificados con fácilad.
El costo de la reparación o del reemplazo bajo estas circunstancias excluidas correrá por cuenta del cliente.
EXCLUSION DE GARANTIAS IMPLICITAS
LAS GARANTIÁS IMPLÍCITAS, INCLUYENDO CUALQUIER GARANTÍA IMPLÍCITA DE COMERCIABILIDAD O GARANTÍA IMPLÍCITA DE CAPACIDAD PARA UN PROPOSITO PARTICULAR, SERAN LIMITADAS A UN ANO O AL PERIODO MAS CORTO PERMITIDO POR LEY. Algunos Estados y provincias no permiten la duración de las garantías implicitas de commerciedad o capacité, de modo que la limitación arriba indica quiza no le corresponda.Esta garantía le otorga derechos legales espécificos y es posible que ustedonga tambiénthersculos que varian de un estado a othero or de una provincia a othera.
EXCLUSION DE DECLARACIONES FUERA DE LA GARANTIA
Jenn-Air no hace declaraciones acerca de la calidad, durabilitad o necessities de serviceo tcnico or reparacion de este electrodomestico principal aparte de las declaraciones incluidas en esta garantia. Si usted desea un garantia con una duracion mas prolongada o mas completa que la garantia limitada que se incluye con this electrodomestico principal,derabadirse a Jenn-Air o a su distribuidor acerca de la compra de una garantia extendida.
LIMITACION DE RECURSOS; EXCLUSION DE DANOS INCIDENTALES Y CONSECUENTES
SU UNICO Y EXCLUSIVE RECURSO SEGUN LOS TERMINOS DE ESTA GARANTIA LIMITADA SERA EL DE REPARAR EL PRODUCTO SEGUN SE ESTIPULA EN LA PRESENTE. JENN-AIR NO SE RESPONSABILIZARA POR DANOS INCIDENTALES O CONSECUENTES. Algunos Estados y provincias no permiten la exclusion o limitacion de daños incidentales o consecuentes, de modo que estas limitaciones y excluiones quizas no le correspondan.Esta garantia le otorga derechos legalespecificos y es posible que usted tengatambiánthersrechosque varian de un estado a othero o de una provincia a orla.
12/14
ManualFácil