KIN30PROX - Capucha BERTAZZONI - Manual de uso y guía de instrucciones gratis
Encuentra gratis el manual del aparato KIN30PROX BERTAZZONI en formato PDF.
Descarga las instrucciones para tu Capucha en formato PDF gratis! Encuentra tus instrucciones KIN30PROX - BERTAZZONI y toma tu dispositivo electrónico nuevamente en la mano. En esta página están publicados todos los documentos necesarios para el uso de su dispositivo. KIN30PROX de la marca BERTAZZONI.
MANUAL DE USUARIO KIN30PROX BERTAZZONI
Ha comprado una campana extractor de prestigio y calidad segura. Para que pueda tener las mejoras prestaciones, le sugerimosooting con atencion las instrucciones contentsas en este manual para el uso y el mantenimiento. Para poder los filtros de recambio de carbón activo, utilise el cupón adjunto a la cubierta.












OPTIONAL: Duct transition kit (only for 2 motors version) (Seulement pour modele 2 moteurs) (Solo por versión 2 motores)





WARNING

MANUAL DE INSTRUCCIONES

ADVERTENCIAS

Es muy importante conservar este libro de instructuciones junto al aparato para cadaquier consulta futura.
Si el aparato tuviera que ser vendido o traspaso a另一 persona, asegúrese que el libro vaya incluido, de modo que el nuevo usuario能把 ponerse al corriente del funcionaimiento de la campana y de las advertencias correspondientes.
Estas advertencias han sido redactadas para su seguridad y para la de los demas, les rogamos, por tanto, de leerlas atentamente antes de la instalacion y la utilizacion del aparato.
Este aparato no debe ser uso por niños o personas enfermas a menos que no esten controladas por una persona responsable que se asegure que el aparato sea utilisé con seguridad.
Los niños deben controlados por una persona responsable que se asegure que no playan con el aparato.
El montaje tiene que ser realizado por personalrial significado siguiendo la normalitativa nacional y local vigente en materia de seguidad.
Si el cable de alimentacion está dañado, debe ser sustituido por el fabricante, por el Servicio Asistencia Técnica o por un personalrial significado con el fin de evaporar posibles riesgos.
Cualquier modificacion que se debiera realizar en el montaje eletrico para instalar la campana debe ser supervisada por personal competente.
Es peligioso modificar o intentar modificar las caracteristicas de esta instalacion. En caso de reparacion o mal functionamento del aparato, no intentar resolver el problema directamente.
Las reparaciones efectudas por personas no cualesidas poder千元 provoked daños.
Para Manipulaciones eventuales dirijase a un Centro de Asistencia Técnica autorizzato.
Controlar siempre que todas las piezas electrolyticas (luces, aspirador) queden apagadas cuando no se use el aparato. Leer todo el libro de instructuciones antes de efectuaronga operation en la campana.
El fabricante no seouldarconsiderarresponsible en caso de operaciones no autorizadas.Aseguese que la alimentacionelectrica de la instalacion estepagada durante las operaciones de instalacion o de arreglo.
Antes de proceder a la instalacion de la campana averigue que la tension de red corresponda a las specifications de voltaje, energia y circuito indicadas en la placac de los datos (detras del filtro antigrasa).
El uso de la campana no pueda ser(other que el aspirar humos de cocccion en cocinas domesticas.
Cualquier uso diverso exime al fabricante derialquier responsabilidad.
El peso máximo permitted de objetos eventualmente colocados o colgados (en su caso) sobre la campana no debe superar 1,5 kilos.
Una vez instaladas, las campanas en acero inoxidable deben limpiarse para
eliminar los residuos de plásticos protecto y eventuales manchas de-grasa y aceite. Para esta operation aconsejamos la utilizacion de nuestro producto especialico disponible a la vente.
La realizacion de other tipologia de detergentes exime al fabricante de la responsabilidad de los daños que se pueda derivar.

CHARACTERISTICAS TÉCNICAS
Los datos技术和 del electrodomóstico están contentsados en las placas, situadas en la parte inferior de la campana extractor.

INSTALLACION
(Parte reservada exclusivamente a personas cualesicasadas).
Distancia minima: distancia entre la superficie del soporte de los recipientes de cocccion y la parte mas inferior de la campana. Si la campana se coloca encima de una aparato de gas, esta distancia debe ser como minimum 65 cm (25,6") (ver fig. C). Si las instrucciones de la placac de coccion a gas especifica una distancia mayor, necesita tenerlo en cuestion.
En la version aspirante, el tubo de salute de los humos debe tener un diametro no inferior al del empalme de la campana extractor (ver fig.). En los tramosizontales, el tubo debe presentar una leve inclination (del 10% aproximamente) hacer arriba para transporte fácilmente el aire hacia el exterior del ambiente.
Reducir las curvas al minimo; controlar que los tubos tengan la longitudmina indispensable.
Respetar la normativa vigente sobre salute de humos al exterior.
En caso de usar a la vez otros utensilios (calefacción, estufas, chimeneas, etc) alimentadas a gas o conOthers combustibles,proveer al local de una ventilacion adecuada de aspiracion de humos, segun la normativa vigente.
Instrucciones de montaje de la campanas: punto "O".

CONEXION ELECTRICA
(Parte reservada exclusivamente a personas cualesidas).
ATENCLION!
Antes de efectuar cualquier operation en el interior de la campana extractor, desenchufe el aparato de la red electrica.
Asegúrese de no desconectar oURTAR los hilos electricos en el interior de la campana extractor; si se producen estas circunstancias pongáse en contacto con el centro de asistencia más cercano. Para la connexion electrica solicite la intervención de personalriallicado.
Debe efectuar la connexion en conformidad con las disponeciones de ley en vigor. Controle que la valvula de sobrepresion y la instalacion electrica能把 soportar la energia del aparato (vease la placa de las caracteristicas sociales en el punto B).
HAY QUE EQUIPAR Este APARATO DE UNA INSTALLACION DE PUESTA A TIERRA.
Important: La campana está equipada de un cable de alimentacion de 1,5 metros (5 pies) con un enchufe NEMA 5-15 para la connexion a una toma de 120 VAC, 60Hz , 15 A. Hay que colocar esta toma en el area de cobertura del tubo de escape sobre la campana.
Algunos temas de aparatos peuvent equiparse con un cable sin clavija, en este caso, use un tipo de clavija «normalizzato» teniendo en consideracion que:
- doitear hilo amarillo -verde para la puesta a tierra.
- debe utiliser el hilo azul/blanco para el neutro.
- debe utilizar el hilo marrón/n Negro para la fase, el cable no debe entrada en contacto con partes calientes con temperatas superiores a los 75^
- monte en el cable de alimentacion un enchufe apto para la energia que debe conectar a una clavija de seguidad adequada.
Si las disponeciones locales lo permiten, es possible remover el cable de alimentacion y conectar la campana a una connexion electrica con hilo.
En caso de dudas sobre la connexion de la instalacion a la red electrica se aconseja consultar a un electricista autorizzato.
El cable de tierra amarillo / verde noDebe ser interrupido por el interruptor.
Antes de proceder a la connexion, contrôle que:
- la tension de alimentacion corresponda a la indicada en la placar de las ca- racteristicas Tecnicas.
- la toma de tierra sea correcta y funciona.
- el equipo de suministro está equipado con una connexion de tierra eficaz según las normas en vigor.
- la toma o el interruptor omnipolar usados Sean fácilmente accesibles con la instrumentacion instalada.
El fabricante declina cualquier responsabilidad en caso de no Respectar las normas para la prevencion de accidentes.

CAMPANA EXTRACTORA EN LA VERSION CON EVACUACION EXTERIOR (aspirante)
En esta version los humos y los vapeores de la cucina son transportados hacer el exterior mediante un tubo de salute.
El tubo de salute que sobresale por la parte superior de la campana extractor debe estar acoplado a un tubo que conducce los humos y los vapeores hacer una salute exterior.
Cuando
la campana extractor de cocina se usa contemporaneamente con otros aparatos que emplean gas uthers combustibles, el local debe disponible de una ventilacion sufiente.
Indicación para Alemania:
Si la campana y los aparatos alimentarios con energia不一样 a la electrica está en funciona bajo el control de la local no debe superar los 4 Pa (4x10-5 bar).

FUNCTIONAMENTO
BOTONERA ELECTRónica
Pulsador de la luz

Pulsando la tecla se reduce la velocidad del motor
La velocidad 1, 2 y 3 se visualiza en el n° de led encendido, excluyendo el led de la luz y del timer.
Pulsador +
Pulsando la tecla se aumento la velocidad del motor
La velocidad 1, 2 y 3 se visualiza en el n° de led encendido, excluyendo el led de la luz y del timer (en la version a 4^a velocidad, el pulsador + presente una luz intermitente. La 4^a velocidad o intensiva se temporiza y después de 15关键时刻 aproximamente, el motor pasa automaticamente a 3^a velocidad.
Pulsador de modalidad
Función: encendido y apagamente del motor de la campana.
La funciona velocidad deseada permite arrancar el motor con la ultima velo.cidad seleccionada antes del apagamento anterior.
Optional: version con telemando (sólo disponible en todas versions).
ADVERTENCIAS:
Posicionar el aparato lejos de fuentes electromagnéticas que podrián interferir con la electrónica de la campana.
Distancia Tmaxima de funciona de 5 metros.Esta distancia peut variar en defecto en func tion de las interferencias electromagnéticas deculos aparatos.
Luz pulsador del temando: ON/OFF
Pulsador - y + disminución/incremento velocidad (para arrancar el motor pulsar indiferente pulsador + o -
Pulsador timer: ver instrucciones a continuacion
Instruccion de cambio de@cgo (solo en caso de mal funciona aay interferencias):
Desenchufar el aparato de la red electrica.
Abrir la cubierta del telemando, modifier el número relacionando sobre la leva. Enchufar el aparato a la red electrica y verificar que luces y motor estén apagados.
Pulsar la tecla timer durante 2segundos y cuando se ilumine el led rojo de la botonera aparear una teclaequalquiera de la botonera.
Pulsador del temporizador y de saturacion de los filtros
-Esta funciona permite el apagamento automatico de la campanaupones de 15 instantos de functionamento a la velocidad planteada anteriorsmente (pulsador con luz parpadeante).
- Después de 30 horas de configuraciónapproximadamente el pulsador propone el lavado de los filtros metálicos (pulsador iluminado de rojo). Para desactivar la alarma pulsar el pulsador por algunossegundos hasta que la luz roja se apaga. A continuaciónpare la campana y vuelva a ponerla en marcha para comrpobar que la alarma ha quedado anulada.


FILTROS INSTRUCCIONES PARA EXTRACCION Y SUSTITUCION
1. FILTROS METÁLICOS
Para extraer el filtro metalico antigrasa solo debe actuar en la manilla A hasta hacerlo salir por la guía delantera. Para su colocacion invierta la operacion A.


ILUMINACION MONTAJE Y SUSTITUCION
FARO
Para sustituir la lampara halógena cuadrada:
a) Asegurar que el aparato está desconectado de la red electrica.
b) Abrir Completely la ventanilla hasta un ángulo de 90^ (ver figura) après lo PUSH.
c) Sustituir la lampara por una similar (dicroica max 20 W, 12 Volt conexión G4).
d) Cerrar la ventanilla. Si la ventanilla no se cierra correctamente repetir la operación del punto B).



MANTENIMIENTO Y LIMPIEZA
Un mantenimiento constante garantiza un buen funciona y un buena rendimiento a lo largo del tiempo. Preste una atencion especial a los filtros metallicos antigrasa y a los filtros de carbón activo, en efecto la limpieza freciente de los filtros y de sus soportes garantiza que no se acumulen grasas, que son peligrosas por la calidad de incendio, en la campana extractor.
1. FILTROS ANTIGRASA METÁLICOS
Su funciona es retener las particulas grasas en suspENSION, por lo tanto le aconsejamos lavarlos mensualmente en agua caliente y detergente sin plegarlos. Espere hasta que esténperfectamente secs para remontarlos.
Para las operaciones de descentmontaje - montaje le rogamos consultar las instrucciones facilitadas en el punto H1. Le recomendamos efectuar esta operacion con una Frequencia constante.
3. LIMPIEZA EXTERIOR
En el caso de material con tratamiento antihuellas (FASTEEL) la limpieza se debe efectuar solo con agua y jabon neutro utilizing un paño suave, siendo importante enjuagar y secar bien. No se deben utilizar productos que contengan substancias abrasivas, paños con superficies asperas o paños que se adquieren en el commercio para la limpieza del acero. La utili
¿cación de substancias abrasivas o páños ásperos dañarán irrepárablemente el tratimiento superficial del acero.
La consecuencia directa de no respetar estasindicaciones sera el deterioro irreversible de la superficie del acero. Estasindicaciones deben conservarse bajo al libro de instructaciones de la campana.
El fabricante declina cualquier responsabilidad en el caso de no respetarse estas instrucciones.
4. LIMPIEA INTERIOR
Se prohíbe limpiar las partes electricas o las partes relativas al motor del interior de la campana extractor, con liquidos o solventes.

No use productos que contengan substancias abrasivas. Realice todas estas operaciones desenchufando previamente el aparato de la red electrica.

SEGURIDAD ADVERTENCIAS


La instalacion electrica está equipada de toma de tierra de acuerdo a las normas internzonales de seguidad y conforme a la normativa Europea de compatibilidades electromagnéticas.
No conectar el aparato a conductos de salute de humos derivados de combustión (calefacción, chimeneas, etc). Verificar que la tensión de la red electrónica corresponde a la que indica la etiqueta localizada en el interior de la campana.
La distancia minima de seguridad desde la encimera a la campana debe ser de al menos 65~cm (25,6^ )
No cocinar a fuego "abierto" bajo la campana. Controlar las freidoras durante su uso, el aceite recalentado pueda incendiarse.
Asegurar que haya una ventilación adecuada en la estancia si la campana se utilizes junto con algunos aparatos que usesan combustión a gas u除外.
No encender fuego abierto bajo la campana.
No conectar el aparato a conductos de salute de humos derivados de la combustión (calefacciónes, chimeneas, etc).
Asegürese que se cumple la normativa vigente sobre salute de humos al exterior del local antes del uso de la campana.

Antes de proceder arialquier operacion de limpieza o manutencion,apagar el aparato desenchufandolo o actionando el interruptor general. El fabricante declina qualquier responsabilitad por eventuales daños que pudieran, directa o indirectamente,ser causados a personas,erras o animales domesticos derivados de la omision de las prescripiones indicadas en el libro de instrucciones adjunto y concernientes especially, a lasindicaciones en tema de instalacion,uso yostenimiento del aparato.

GARANTÍA
La nuevo instrumentación está cubierta por una garantía.
Recurrir al distribuitor.

El fabricante no responde por las posibles inexactitudes, imputables a erros de imprinta o de tradiccipacion, containidas en este manual. Se reserva el decho de poder aportar a los propios productos aquellas modificaciones que considere necessarias o utiles, sin perjudicar las caracteristicas esencias de funcionalidad y de seguidad.

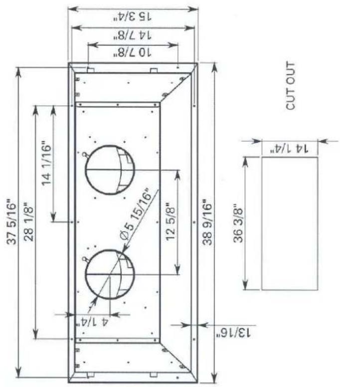
INSTRUCCIONES DE MONTAJE (fig. O)
Fase 1
- Sacar las rejillas metálicas de su lugar.
Fase 2
- Sacar el fondo de acero inoxidable desenroscando los 4 tornillos autoroscantes (A).
Fase 3
- Introducir por debajo el grupo que se Tiene que empotrar en el mueble y fijarlo con 10 tornillos autoroscantes para madera (B) que se suministran para los agujeros existentes.
Fase 4
- Efectuar la connexion électrique tras haber desconectado la alimentacion electrica.
- Volver a montarlo todo siguiendo el procedimiento inverso al descririto en las fases 1-2.
ManualFacil