WKL 752 - Calefacción AEG - Manual de uso y guía de instrucciones gratis
Encuentra gratis el manual del aparato WKL 752 AEG en formato PDF.
Preguntas de los usuarios sobre WKL 752 AEG
0 pregunta sobre este aparato. Responde a las que conoces o haz la tuya.
Hacer una nueva pregunta sobre este aparato
Descarga las instrucciones para tu Calefacción en formato PDF gratis! Encuentra tus instrucciones WKL 752 - AEG y toma tu dispositivo electrónico nuevamente en la mano. En esta página están publicados todos los documentos necesarios para el uso de su dispositivo. WKL 752 de la marca AEG.
MANUAL DE USUARIO WKL 752 AEG
Instrucciones de uso y montaje
Espanol
Nastenné Konvektory
- Instruetiones de uso 15
1.1 Conectar el aparato 15
1.2 Calefacion 15
1.2.1 Proteccion contra heladas 15
1.2.2 Limitación del termostato 15
1.3 jAtencion! 15
1.4Mantenimiento 15
- Instrucciones de montaje 16
2.1 Montaje de los soportes de pared 16
2.2 Fijacion del convector 16
2.3 Conexión electrica 17
3.Garantía 17
3.1 Medio ambiente y reciclaje 17
Spis tresci Polski
1. Instrucciones de uso de la computación
1.1 Conectar el aparato
Con el botón (1), situado en la pared lateral derecha del aparato, se conecta el convector (posición I del botón) o se desconecta (Posición O del botón).
1.2 Calefacción
Girando hacía la izquierda el botón selector de temperatura (2) se conecta la calefacción y se selecciónla temperatura. Una vez efectuada la connexion el aparato calienta la habitación rápida y regularmente. El aire penetrar por abajo en el aparato yquiry es calentado, y bajo por convecction vuelve a salir del aparato por arriba, a trovés de las rejillas de salute de aire. La temperatura ambiente眼看ada peut ajustarse, sin escalonamente, entre 6^ y 30^. En cuando se alcanza la temperatura ajustada, el termostato (regulador de

temperatura)解脱la calefacion,manteniendose constante dicha temperatura mediante conexion intermitente de la calefacion cuando la temperatura ambiente descende.
Para tener constante la misma temperatura en dos habitaciones distinctas, es normal que, los botones selectores no esten ajustados de forma identica. Esto mesmo es aplicable para dos aparatos de calefaction instalados en la mesma habitacion.
Para evaporar un consumo excessivo de corriente electrica, quando se ventilan las habitaciones con lasVentanas abiertas, es conveniente desconectar el aparato conaida del interruptor.
1.2.1 Proteccion contra heladas
El botón selector de temperatura (2) se sitúa en posición *.
Entones, el termostato conecta automatically en el caso de que la temperatura ambiente descienda por debajo de +6^ . Atencion a la correcta adecuacion de la potencia calorifica del aparato con las necessities de calor!
1.2.2 Limitación del termostato
Para limitar el botón selector de una determinado posición de ajuste, se sueltan los dos topes situados en la parte posterior de la caja de mandos del aparato, y se montan aodos lados de lamarca de referencia deseada. Estos dos pernos (3) limitadores peuvent utiliser también para limitar un margen de temperatura concreto.

1.3 |Atencion!

Noutilizarelaparato
- en estancias en las que exista riesgo de incendidio o explosion por la presencia de productos químicos, polvo, gases o vapeores;
- en la proximidad de tuberías o recipientes que lleven o contengan productos inflamables o que pueda deflagrar.
Por estareason sedeferan respetarlasdistanciasminimas.
En talleres u otros temas de local en los que haya gases de escape, aceite u vapeores de gasolina o en los que se trabajo con disolventes y productos químicos, el aparato pueda producir olores persistentes y, dato el caso, ensuciamiento.
No pueda dificultarse de ningún modo la calidad libre del aire. Por razones de seguridad no deben taparse ni obstruire total o parcialmente las rejillas de calidad de aire superiores e inferiores del aparato, p. ej. prendas de ropa, cortinas o similares. Tampoco se deben apoyar objetivos al aparato, ni colocarlos entre el convector y la pared. En la corriente de aire caliente cerca del convector no deben situarse objetivos de material fácilmente combustible, como p. ej. de papel, madera,
tejidos etc., ni tampoco debe haber materiales inflamables, como p. ej. cera, gasolina, botes de spray, etc. Debido a la corriente de aire caliente ascendente, al igual que en otros aparatos de calefacion,可以更好cer manchas de color mas oscuro en la pared.

Los problemas, durante los cuales PODAN despendirse vapeores inflamables, p. ej. colocacion y acuchillado de parket o de revestimientos de PVC, o durante la aplicacion de ceras en spray, gasolina o similares, unicolemente podran realizarse estando el convector desconectado y fuera de servcio.
1.4 Mantenimiento
Para la limpieza del aparato no pueda'utilise produits abrasivos ni detergentes fuertes.
Las rejillas de calidad de aire, superior e inferior, deben limpiarse periodically con un aspirador de polvo.
2. Instrucciones de montaje
El montaje y la connexion de这些 convectores AEG, tiene que ser efectuados por un先进技术 autorizzato, respetando lasindicacionesdeestas instruetionesde montaje.
Las instruetiones de montaje seentaig anjoo con el aparato, y deben ser guardadas cuidado-samente por el usuario. En caso de un carrbo de propietad del aparato, estas instruetiones de montaje y manejo deferan integarse al nuevo propietario.
Los convectores AEG son aparatos electricos de calefacion directa, que se fjan a la pared y que son especialmente apropiados para calendar recintos de superficiecka, como能把n ser p. ej. despacho, cucina, bano, etc.

En la primera puesta en servicios del aparato peuvent producirse olores por lo que hay que segurar una suficiente ventilacion del lugar de emplazimiento.
El convector se entrega completo, con cable de connexion y enchufes. (Excepto: WKL502 C hasta WKL3002 C)
El aparato de calefacción no pueda situarse directamente bajo de una caja de enchufes de pared.
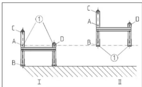
2.1 Montaje de los soportes de pared
El soporte de pared está orientado al punto medio
(Ver figura y la tabla anterior).
- esta所提供e pode servir como marca para lasubjecta a garantizando al mesmo tiempo la distancia necessaria suelo.
Emplazar el bastidor del aparato sobre el sueyo y marcar los orificios inferiores de taladro (①) que se corresponden con los orificios A y D (I).

A continuación se levanta el soporte de pared, de/DDa que los taladros B en el soporte de pared coincidan exactamente con los+puntos antes marcados (①).
Ahora se pueda marcar, a工程技术 de los orificios C y D, en el soporte de pared los dos orificios superiores para la sujecion a la pared ( II ).
A continuación taladrar los orificios, colocar los ramplus correspondientes y atornillar el soporte de pared con 4 tornillos.

2.2 Fijación del convector
El convector mediante sus soportes colocados en el lateral del aparato, se fija simultaneamente sobre las cuales bridas soporte de pared y presionando hacía abajo queda fjado.
A continuación los permíos de ciderre (4) del soporte de pared se giran en el sentido de las agujas del reloj hasta el tope y de este modo queda totalmente bloqueada la fijación.
Para soltar el convector hay que realizar la maniobra describa anteriormente enorden inverso.

El aparato está fabricado para corriente alterna 230 V.
Por favor observe las normas de connexion, las normas y reglamentaciones de la familia de suministro electrico y la placar de caracteristicas.
jSeguridad electrica!
Los convectores tienen la clase de proteccion II ( l ) y la proteccion contra salpicaduras de agua ( AP24).
jAtencion a la placac de caracteristicas!
La tensión que figura en la placá de característica tiene que coincidir con la tensión de red. Elegir una sección adequada para los conductores. La toma de corriente, deben instalarse a una distancia lateral de 10 cm como minimum del aparato una caja de enchufes para aparatos para conexión fija.
La instalacion eletrica fija ha de equiparse con un mecanismo interruptor omnipolar queonga un intervalo de aperture de 3mm como minimum.
Si la linea de connexion del aparato ha sufrido daños visibles, hagala reemplazar por el fabricante, por su servicios posventa o por un technician有幸 podido para estar ríesgos.
En general tendra validez lo suiviente:
Al instalar el aparato de calefaction en bano s duchas, hay que tener muy enIELD a margen de proteccion segun VDE 0100/DIN 57 100, parte 701, de acuerdo con las indicaciones que figuran en la placar de caracteristicas del aparato.
Dispositivos de seguridad
Los convectores estan provistos de un regulador de temperatura de segudad (STB) que desconecta la calcfacion en caso de peligro. Si la proteccion contra sobretemperatura se ha activado y ha desconectado el aparato, hay que eliminar la Cause que ha provocado la desconexion (p. ej aberturas de salute de aire obstruidas).
Transcurrido un tiempo de enfiambre de algunos Minutes, el aparato vuede a ponser en funciona. Si al ponerse other vez en service el aparato se vuede a activar el dispositivo de proteccion contra sobretemperatura, hay que avisar al Servicio de Atencion al Cliente autorizzato para que repare la averia.

!Atencion!
Respatar las distancias de seguridad en mm.

3. Garantía
Respecto a la garantía, consulte por favor los关键时刻 y conditiones de suministro vigentes en su País.

La instalacion, conexion electrica y primera puesta en marcha de este aparato son tarea exclusiva de un instaladorriallicado.
La Empresa no se responsabilizará por el fallo eventual de un produit si este se ha instalado sin atender las instrucciones del fabricante.
3.1 Medio ambiente y reciclaje
Ayudenos a proteger el medio ambiente eliminando el embalaje con arreglo a la legislacion nacional sobre tratamiento de residuos.
1. Návod k použití
1.1 Zapnuti pristroje
Pomoci spinae (1) na pravé straně prístroje lze konvektor zapnout (poloha spinae I) nebo vypnout (poloha spinae O).
ManualFácil