Cilindro PC110E HPCS11U3H - Heating HARVIA - Free user manual and instructions
Find the device manual for free Cilindro PC110E HPCS11U3H HARVIA in PDF.
User questions about Cilindro PC110E HPCS11U3H HARVIA
0 question about this device. Answer the ones you know or ask your own.
Ask a new question about this device
Download the instructions for your Heating in PDF format for free! Find your manual Cilindro PC110E HPCS11U3H - HARVIA and take your electronic device back in hand. On this page are published all the documents necessary for the use of your device. Cilindro PC110E HPCS11U3H by HARVIA.
USER MANUAL Cilindro PC110E HPCS11U3H HARVIA
EN Owner's/Operator's Manual
Sauna heater installation, wiring, operating instructions, troubleshooting, maintenance and guarantee.
IMPORTANT! This manual must be left with owner, manager, or operator of Sauna after it is used by electrician!
14010-B S.W. 72nd Avenue,
Portland, OR 97224-0088 | 1 800-354-3342
Email info@finlandiasauna.com | www.finlandiasauna.com
EN
FR
CONTENTS
WARNING 3
1. INSTRUCTIONS FOR USE 4
1.1. Piling of the Sauna Stones.. 4
1.1.1. Maintenance
1.2. Heating of the Sauna 4
1.2.1. Using the Heater 4
1.2.2. Throwing Water on Heated Stones 5
1.3. Instructions for Bathing 5
1.4.Troubleshooting 5
2. THE SAUNA ROOM 6
2.1. Insulation and Wall Materials of the Sauna Room..6
2.1.1. Room construction -
general information. 6
2.1.2. Darkening of the Sauna Walls.. 6
1. Sauna Room Floor 6
1. Heater Output.. 6
Sauna Room Ventilation. 6
Hygienic Conditions of the Sauna Room. 7
3. INSTRUCTIONS FOR INSTALLATION 8
3.1. Prior to Installation 8
3.2. Place and Safety Distances 8
3.3. Heater fence.. 8
3.4.Installation of the Control Unit and Sensor..8
3.4.1. Suitable control units.. 8
3.5. Electrical Connections 8
3.6.Installing the Heater 10
3.7. Electric heater insulation resistance 10
3.8. Resetting the Overheat Protectors 11
4. SPARE PARTS 12
GUARANTEE 23
MAINTENANCE INSTRUCTIONS 24
TABLE DES MATIERS
Avertissements. 13
1. MODE D'EMPLOI 14
Overheat protector of the device can go off also at temperatures below -5^ / 23^ (storage, transport, environment). Before installation take the device to the warm environment. The overheat protector can be reset when the temperature of the device is approx 18^ / 64^ . The overheat protector must be reset before using the device. See the user manual > Resetting the Overheat Protector.
-
Keep away from the heater when it is hot. The stones and outer surface of the heater may burn your skin.
-
Do not throw too much water on the stones. The evaporating water is boiling hot.
- Do not let young, handicapped or ill people bathe in the sauna on their own.
- This appliance is not intended for use by persons (including children) with reduced physical, sensory or mental capabilities, or lack of experience and knowledge, unless they have been given supervision or instruction concerning use of the appliance by a person responsible for their safety. Children should be supervised to ensure that they do not play with the appliance.
- Consult your doctor about any health-related limitations to bathing.
- Parents should keep children away from the hot heater.
- Consult your child welfare clinic about taking little babies to the sauna.
-age?
- temperature of the sauna?
-
time spent in the warm sauna?
-
Be very careful when moving in the sauna, as the platform and floors may be slippery.
- Do not smoke, use alcohol, or exercise in the sauna.
- Do not exceed 30 min. in the sauna at one time, as excessive exposure can be harmful to health. The sauna should not be used as an endurance test.
- Persons with poor health should consult their physicians before using the sauna.
- Do not place any combustible material over the sauna heater (towels, bathing suits, wooden bucket or ladle)!
- Hyperthermia occurs when the internal temperature of the body reaches a level several degrees above the normal body temperature of 98.6^ . The symptoms of hyperthermia include an increase in the internal temperature of the body, dizziness, lethargy, drowsiness, and fainting.
The effects of hyperthermia include:
A. Failure to perceive heat
B. Failure to recognize the need to exit the room
C. Unawareness of impending hazard
D. Fetal damage in pregnant women
E. Physical inability to exit the room
F. Unconsciousness
WARNING - the use of alcohol, drugs, or medication is capable of greatly increasing the risk of fatal hyperthermia.
- Use only clean tap water on the stones - do not use pool or spa water, as chlorine gas can be produced and the heating elements can be damaged!
- Sea air and a humid climate may corrode the metal surfaces of the heater.
- No such objects or devices should be placed inside the heater rock space or near the heater that could change the amount or direction of the air flowing through the heater, thus causing the resistance temperature to rise too high, which may set the wall surfaces on fire!

Watch out for the hot surface!
- Do not operate heater without stones or if the stones has been piled incorrectly. Inadequately filled stone space causes fire risk.

Purpose of the electric heater:
The HPC electric heater is intended for use in a well heat-insulated family sauna. It is forbidden to use the heater for any other purposes.
The guarantee period of an HPC electric heater in family use is one year and in communal use, 3 months.
Please read the user's instructions carefully before using the heater.
NOTE!
These instructions for installation and use are intended for the owner or the person in charge of the sauna, as well as for the electrician in charge of the electrical installation of the heater.
1.1. Piling of the Sauna Stones
The piling of the sauna stones has a great effect on both the safety and the heating capability of the heater.
Important information on sauna stones:
- The stones should be 2 - 4^ (5-10 cm) in diameter.
- Use solely angular split-face sauna stones that are intended for use in a heater. Peridotite, olivine-dolerite and olivine are suitable stone types.
- Neither light, porous ceramic "stones" nor soft soapstones should be used in the heater. They do not absorb enough heat when warmed up. This can result in damage to heating elements.
- Wash off dust from the stones before piling them into the heater.
Please note when placing the stones:
- The aim is to pile a dense layer of stones against the steel grid and pile the rest of the stones loosely. The dense layer prevents the direct heat radiation from overheating materials around the heater. Be especially careful with the corners where the heating elements are near the grid. The loose piling of stones in the middle lets the air flow through the heater, resulting in good heating of sauna and sauna stones.
- Do not drop stones into the heater.
- Do not wedge stones between the heating elements.
- Pile the stones so that they support each other instead of lying their weight on the heating elements.
- Support the heating elements with stones so that the elements stay vertically straight.
- Do not form a high pile of stones on top of the heater.
- No such objects or devices should be placed inside the heater stone space or near the heater that could change the amount or direction of the air flowing through the heater.

Figure 1. Piling of the sauna stones
A bare heating element can endanger combustible materials even outside the safety distances. Check that no heating elements can be seen behind the stones.
1.1.1. Maintenance
Due to large variation in temperature, the sauna stones disintegrate in use.
Rearrange the stones at least once a year or even more often if the sauna is in frequent use. At the same time, remove any pieces of stones from the bottom of the heater and replace any disintegrated stones with new ones. By doing this, the heating capability of the heater stays optimal and the risk of overheating is avoided.
Pay attention especially to the gradual settling of the stones. Be sure that the heating elements do not appear with time. The stones settle most rapidly within the first two months of piling.
1.2. Heating of the Sauna
When operating the heater for the first time, both the heater and the stones emit smell. To remove the smell, the sauna room needs to be efficiently ventilated.
If the heater output is suitable for the sauna room, it will take about an hour for a properly insulated sauna to reach the required bathing temperature ( 2.3. ). The sauna stones normally reach the bathing temperature at the same time as the sauna room. A suitable temperature for the sauna room is about 149 - 167^ (65 - 75^)
Before switching the heater on always check that there isn't anything on top of the heater or inside the given safety distance.
1.2.1. Using the Heater
- Heater is controlled from a separate control unit.
See the instructions for use of the selected control unit model.

Figure 2. Installing the safety grid
Table 1. Water quality requirements
| Water properties Effect Recommendation | ||
| Humus concentration Colour, taste, precipitates <12 mg/l | ||
| Iron concentration Colour, odour, taste, precipitates <0,2 mg/l | ||
| Manganese (Mn) concentration Colour, odour, taste, precipitates <0,10 mg/l | ||
| Hardness: most important substances are magnesium (Mg) and lime, i.e. calcium (Ca) | Precipitates Mg: <100 mg/l | Ca: <100 mg/l |
| Chloride-containing water Corrosion Cl: <100 mg/l | ||
| Chlorinated water Health risk Forbidden to use | ||
| Seawater | Rapid corrosion | Forbidden to use |
| Arsenic and radon concentration | Health risk Forbidden to use | |
1.2.2. Throwing Water on Heated Stones
The air in the sauna room becomes dry when warmed up. Therefore, it is necessary to throw water on the heated stones to reach a suitable level of humidity in the sauna. The effect of heat and steam on people varies - by experimenting, you can find the levels of temperature and humidity that suit you best.
You can adjust the nature of the heat from soft to sharp by throwing water either to the front of the heater or straight on top of the stones.
The maximum volume of the ladle is 0,05 gal (0.2 litres). If an excessive amount of water is poured on the stones, only part of it will evaporate and the rest may splash as boiling hot water on the bathers. Never throw water on the stones when there are people near the heater, because hot steam may burn their skin.
The water to be thrown on the heated stones should meet the requirements of clean household water (table 1). Only special aromas designed for sauna water may be used. Follow the instructions given on the package.
1.3. Instructions for Bathing
- Begin by washing yourself.
- Stay in the sauna for as long as you feel comfortable.
- Forget all your troubles and relax.
- According to established sauna conventions, you must not disturb other bathers by speaking in a loud voice.
- Do not force other bathers from the sauna by throwing excessive amounts of water on the stones.
Cool your skin down as necessary. If you are in good health, you can have a swim if a swimming place or pool is available. - Wash yourself after bathing.
- Rest for a while and let your pulse go back to normal. Have a drink of fresh water or a soft drink to bring your fluid balance back to normal.
1.4. Troubleshooting

All service operations must be done by professional licensed maintenance personnel.
The heater does not heat.
- Check that the breakers to the heater are in good condition.
- Check that the connection cable is connected.
-
Check that the control panel shows a higher figure than the temperature of the sauna.
-
Check that the overheat protectors have not gone off. See figure 9.
- Check that the breaker is switched on. Also, breaker should be correct size.
The sauna room heats slowly. The water thrown on the sauna stones cools down the stones quickly.
- Check that the breakers to the heater are in good condition.
- Check that all heating elements glow when the heater is on.
- Turn the temperature to a higher setting.
- Check that the heater output is sufficient (p2.3.).
- Check that the sauna room ventilation has been arranged correctly (2.4.).
The sauna room heats quickly, but the temperature of the stones remain insufficient.
Water thrown on the stones runs through.
- Check that the heater output is not too high (p2.3.).
- Check that the sauna room ventilation has been arranged correctly (2.4.).
Panel or other material near the heater darkens quickly.
- Check that the requirements for safety distances are fulfilled (3.2.).
- Check the sauna stones (1.1.). Too tightly piled stones, the settling of stones with time or wrong stone type can hinder the air flow through the heater, which may result in overheating of surrounding materials.
- Check that no heating elements can be seen behind the stones. If heating elements can be seen, rearrange the stones so that the heating elements are covered completely (1.1.).
- Also see section 2.1.2.
The heater emits smell.
See section 1.2.
- The hot heater may emphasize odours mixed in the air that are not, however, caused by the sauna or the heater. Examples: paint, glue, oil, seasoning.
The heater makes noise.
Occasional bangs are most likely caused by stones cracking due to heat.
- The thermal expansion of heater parts can cause noises when the heater warms up.
2.1. Insulation and Wall Materials of the Sauna Room
In an electrically heated sauna, all the massive wall surfaces which store plenty of heat (such as bricks, glass blocks, plaster etc.), must be sufficiently insulated in order to keep the heater output at a reasonably low level.
A wall and ceiling construction can be considered to have efficient thermal insulation if:
the thickness of carefully fitted insulating wool inside the structure is 4^ (100 mm) minimum 2^ (50 mm).
- the moisture protection consists of e.g. aluminium paper with tightly taped edges. The paper must be fitted so that the glossy side is towards the inside of the sauna.
- there is a 1/4'' (10 mm) vent gap between the moisture protection and panel boards (recommendation).
the inside is covered by 1 / 2^ - 5 / 8^ (12-16 mm) thick panelling.
- there is a vent gap of a few millimetres at the top of the wall covering at the edge of the ceiling panelling.
When aiming at a reasonable heater output, it may be advisable to lower the ceiling of the sauna, (minimum height 75^ 1900 mm)). As a result, the volume of the sauna is decreased, and a smaller heater output may be sufficient. The ceiling can be lowered so that the ceiling joists are fixed at a suitable height. The spaces between the joists are insulated (minimum insulation 4^ 100 mm)) and surfaced as described above.
Because heat goes up wards, a maximum distance of 47^ (1200 mm) is recommended between the bench and ceiling.
NOTE! The protection of the walls or ceiling with heat protection, such as mineral board fitted directly on the wall or ceiling, may cause the temperature of the wall and ceiling materials to rise dangerously high.
2.1.1. Room construction - general information FRAMING
2^ × 4^ (50× 100mm) any suitable wood material, 16^ (406mm) o.c.
CEILINGHEIGHT
No higher than 7^6^ (2300 mm).
INSULATION
R11 Fiberglas with foil back in walls and ceiling, foil facing into room.
DRYWALL
See local codes. Is not required in most residences. See local codes for commercial. If drywall is used apply 1^ × 2^ (25× 50mm) nailers so that wall and ceiling boards can be attached to solid wood.
PANELING
Use kiln-dried softwood (with moisture content not exceeding 11% ).
BENCHES
Use matching softwood. Fasten from bottom to prevent burning of bathers.
DOOR
Must open out and should not have a lock. Types of door fastenings that may be used are magnetic catches, friction catches, spring-loaded or gravity loaded door closers, and the like.
ROOM LIGHT
Should be a vapor proof, wall mounted type, with rough-in box mounted flush with inside paneling. It should be mounted 6^ (150 mm) from ceiling, not directly over the sauna heater, and not over upper benches. It could be installed under benches. Light bulb should not exceed recommended watts of the light manufacturer.
Note! Receptacles OR PLUGS are not allowed in a Sauna room. If a speaker is installed in a Sauna room, it should not be installed higher than 3^ (914 mm) from floor, away from the Sauna heater (consult manufacturer for ratings).
2.1.2. Darkening of the Sauna Walls
It is perfectly normal for the wooden surfaces of the sauna room to darken in time. The darkening may be accelerated by
- sunlight
heat from the heater - protective agents on the walls (protective agents have a poor heat resistance level)
2.2. Sauna Room Floor
Due to a large variation in temperature, the sauna stones disintegrate in use.
Small pieces of stone are washed down on the sauna room floor along with the water thrown on the rocks.
To prevent aesthetic damage only dark joint grouts and floor coverings made of rock materials should be used underneath and near the heater.
2.3. Heater Output
When the walls and ceiling are covered with panels, and the insulation behind the panels is sufficient to prevent thermal flow into the wall materials, the heater output is defined according to the cubic volume of the sauna. See table 2.
Because log walls are heated slowly, the cubic volume of a log sauna should be multiplied by 1.5, and the heater output should then be selected on the basis of this information.
2.4. Sauna Room Ventilation
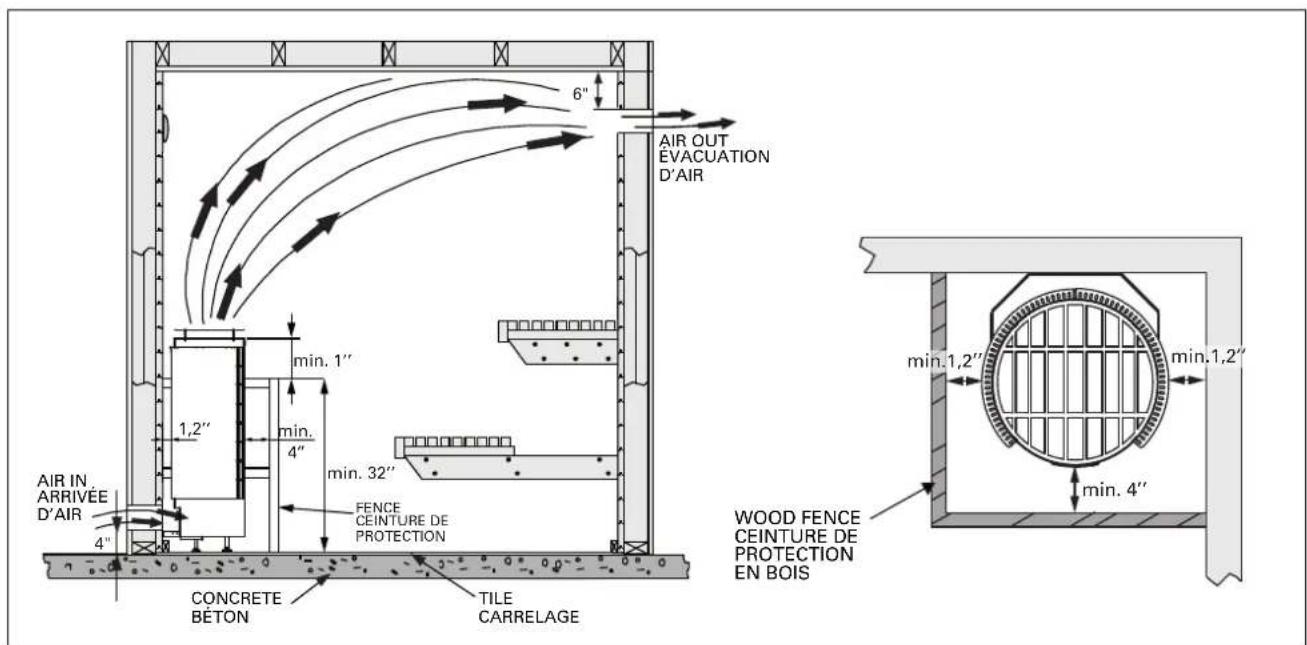
Should be provided by lower vent close to heater, 4^ (100 mm) from floor, and upper vent on opposite wall (if possible) 6^ (150 mm) from ceiling or as low as 24^ (600 mm) from floor. Vents should be adjustable and should allow air to change 5 times per hour. Sauna shall be provided with intended ventilation as required per the local code authorities. See figure 3.
2.5. Hygienic Conditions of the Sauna Room
Good hygienic standards of the sauna room will make bathing a pleasant experience.
The use of sauna seat towels is recommended to prevent sweat from flowing onto the platforms. The towels should be washed after each use. Separate towels should be provided for guests.
It is advisable to vacuum or sweep the floor of the sauna room in connection with cleaning. In ad
dition, the floor may be wiped with a damp cloth.
The sauna room should be thoroughly washed at least every six months. Brush the walls, platforms and floor by using a scrubbing-brush and sauna cleanser. Then rinse the saunaroom by using clean household water. Remove lime stains from the heater using a 10% citric acid solution and rinse.
Wipe dust and dirt from the heater with a damp cloth.

Figure 3. Ventilation of the sauna room and min. clearances from wall and fence

Figure 4. Sensor's minimum distance from an air vent
3. INSTRUCTIONS FOR INSTALLATION
3.1. Prior to Installation
Prior to installing the heater, read all the instructions for installation (figure 8), as well as checking the following points:
- The heater volume should be suitable for the sauna room volume. Table 2 shows the minimum and maximum volumes for each heater output. A precondition for the given values is that the sauna room is well heatinsulated. Walls and ceiling are covered with wood panel.
- Check that supply voltage and amperages are available for the heater.
- The breakers and the connection cables conform with valid regulations and their dimensions are in accordance with table 3.
The location is suitable for the heater (3.2.). - 3.8. Resetting the Overheat Protector
Note! Only one electrical heater may be installed in the sauna room. Multiple heaters can be installed and used in the sauna room only if they share the same control unit (Multidrive)
3.2. Place and Safety Distances
The minimum safety distances are described in figure 3 and 5.
It is absolutely necessary to install the heater according to these values. Neglecting them causes a risk of fire. (3.6.)
- Hot pieces of stone can damage floor coverings and cause a risk of fire. The floor coverings of the installation place should be heat-resistant.
3.3. Heater fence
It is necessary for safety and should be constructed of softwood to match sauna interior. See figures 3 and 5 for clearances from sauna heater. Fence should be attached to wall and should not be placed higher than top of heater below rock line.
3.4. Installation of the Control Unit and Sensor
- The control unit includes detailed instructions for fastening the unit on the wall.
Install the sensor (WX248), which comes with the heater, as shown in figure 6. Do not place the supply air vent so that the air flow cools the temperature sensor. Figure 4.
3.4.1. Suitable control units
Harvia CX30-U1-U3
Harvia CX45-U1-U3
See more detailed information from table 3.
Heater grade setting of the control unit: C1
Please read the instructions of the control unit.
3.5. Electrical Connections
The heater may only be connected to the electrical network in accordance with the current regulations by an authorised, licensed professional electrician.
The wiring diagrams are included in the control unit's installation instruction.
Further instructions concerning exceptional installations can be obtained from local electrical authorities.
- Remove heater from carton and place in proper location in sauna room. Observe proper clearances as per figures 3 and 5. After final hookup, electrical contractor should secure heater to floor with at least two screws or bolts.
- See applicable wiring diagram for heater model (figure 7, see control unit manual for detailed instructions how to connect the heater and the control unit). Heater must be permanently installed by using seal tight conduit between the heater and the wall of the sauna room (pigtails or plugs are not allowed in the sauna room). Wiring must be done by a licensed electrician, who must follow wiring diagram provided and adhere to local codes. Use proper AWG rated wire size and use copper wire suitable for 194^ (90^) within sauna walls. Use grounding terminals provided in sauna heater and control unit to properly ground the equipment as per NEC and local codes.
- Inside the heater box there are two signs. Please place the metal "CAUTION" sign on the interior wall of the sauna room directly above the heater in a visible place (screws and nails included). Place the metal "WARNING" sign outside, on the door of the sauna room. "MAINTENANCE INSTRUCTIONS" are at the end of this manual.
Table 2. Installation details of the heater
| Heater Output Dimensions | Tones Sauna room | Bic vol. Floor | ||||||||||
| Width/Depth/Height | Weight Cubic vol. Floor | Area Height | ||||||||||
| kW inch mm lb/kg | max. lb/kg | 2.3! min. CuFt/m3 | max. CuFt/m3 | min sqft | max sqft | min. inch/mm | ||||||
| HPCS6U1H 6,0 | 14/13/40 | 37,5 | 17 | 200 | 90 | 141 | 4 | 294 | 8 | 23 | 47 | |
| 360/340/1010 | ||||||||||||
| HPCS7U1H 6,8 | 14/13/40 | 37,5 | 17 | 200 | 90 | 141 | 4 | 354 | 10 | 23 | 57 | |
| 360/340/1010 | ||||||||||||
| HPCS8U1H HPCS8U3H | 8,0 | 14/13/40 | 37,5 | 17 | 200 | 90 14 | 4 | 431 | 12 | 23 | 69 | |
| 360/340/1010 | ||||||||||||
| HPCS9U1H | 9,0 | 14/13/40 | 37,5 | 17 | 200 | 90 | 141 | 4 | 494 | 14 | 23 | 79 |
| 360/340/1010 | ||||||||||||
| HPCS11U1H HPCS11U3H | 10,5 | 16/15/45 395/380/1150 | 46,3 | 21 | 265 | 120 | 141 | 4 | 636 | 18 | 23 | 98 |
| Heater | A B C | |||||
| inch | mm | inch | mm | inch | mm | |
| HPCS6U1H | 1,2 | 30 | 4 100 | 35 | 890 | |
| HPCS7U1H | 1,2 | 30 | 4 100 | 35 | 890 | |
| HPCS8U1H | 1,2 | 30 | 4 100 | 35 | 890 | |
| HPCS8U3H | ||||||
| HPCS9U1H | 1,2 | 30 | 4 100 | 35 | 890 | |
| HPCS11U1H | 1,2 | 30 | 4 100 | 35 | 830 | |
| HPCS11U3H | ||||||

Figure 5. Minimum safety distances and sauna controls.

Figure 6. Installing the temperature sensor
Table 3. Supply wires (from the power unit to the heater)
| Heater model | Input kW | Voltage | Ph | Amperage | Min. 90 °C Copper supply wire AWG No. | Suitable control units | |||
| 1-Group connection | 2-Group connection | 1-Group connection | 2-Group connection | 1-Group connection | 2-Group connection | ||||
| HPCS6U1H | 6,0 | 240 | 1 | 25 | 16,7 | 12 | 14 | CX30-U1-U3 / CX45-U1-U3 | CX30-U1-U3 / CX45-U1-U3 |
| HPCS7U1H | 6,8 | 240 | 1 | 28,25 | 18,9 | 10 | 12 | CX30-U1-U3 / CX45-U1-U3 | CX30-U1-U3 / CX45-U1-U3 |
| HPCS8U1H 8,0 | 240 | 1 | 33,4 22,3 | 8 | 12 | CX45-U1-U3 | CX30-U1-U3 / CX45-U1-U3 | ||
| HPCS9U1H | 9,0 | 240 | 1 | 37,5 | 25 | 8 | 10 | CX45-U1-U3 | CX30-U1-U3 / CX45-U1-U3 |
| HPCS11U1H | 10,5 | 240 | 1 | 43,75 | 29,2 | 6 | 8 | CX45-U1-U3 | CX30-U1-U3 / CX45-U1-U3 |
| HPCS8U3H 8,0 | 208 | 3 | 22,2 | n/a | 10 | n/a | CX30-U1-U3 / CX45-U1-U3 | n/a | |
| HPCS11U3H | 10,5 | 208 | 3 | 29,2 | n/a | 8 | n/a | CX30-U1-U3 / CX45-U1-U3 | n/a |
3.6. Installing the Heater
See figure 8.
- Install the wall-mounting device.
- Connect cables to the heater.
- Place the heater and adjust the heater vertically straight using the adjustable legs.
- Use fixing kits (2 pcs) to fix the heater to sauna's structures.
3.7. Electric heater insulation resistance
When performing the final inspection of the electrical installations, a "leakage" may be detected when measuring the heater's insulation resistance. The reason for this is that the insulating material of the heating resistors has absorbed moisture from the air (storage, transport). After operating the heater for a few times, the moisture will be removed from the resistors.
Do not connect the power feed for the heater through the RCD (residual current device)/GFI (Ground Fault Interruptions)!

HPCS6U1H / HPCS7U1H /
HPCS8U1H / HPCS9U1H / HPCS11U1H
240V 1-Phase heater

HPCS8U3H / HPCS11U3H
208V 3-Phase heater
Figure 7. Electrical connections of the heater




4.




Figure 8. Installing the wall-mounting device (1.) and the heater (2.-4.)
3.8. Resetting the Overheat Protectors
If the temperature of the sauna room becomes dangerously high, the overheat protector will permanently cut off the supply of the heater. The overheating protectors can be reset after the heater has cooled down. See figure 9. Please check that the stones are piled properly and the sensor is installed according the installation instructions. See also the installation instructions for control unit.
Overheat protector of the device can go off also at temperatures below -5^ / 23^ (storage, transport, environment). Before installation take the device to the warm environment. The overheat protector can be reset when the temperature of the device is approx 18^ / 64^ . The overheat protector must be reset before using the device.


Figure 9. Reset buttons for overheat protectors
4. SPARE PARTS



Use only parts approved by the manufacturer!
| 1 | Heating element 2000 W/240 V | Y10-0018 | HPCS6U1H | 3 |
| Heating element 2250 W/240 V | Y10-0005 | HPCS7U1H | 3 | |
| Heating element 2650 W/240 V | Y10-0017 | HPCS8U1H | 3 | |
| Heating element 3000 W/240 V | Y10-0004 | HPCS9U1H | 3 | |
| Heating element 3500 W/240 V | Y10-0002 | HPCS11U1H | 3 | |
| Heating element 2650W/208 V | Y10-0019 | HPCS8U3H | 3 | |
| Heating element 3500 W/208 V | Y10-0001 | HPCS11U3H | 3 | |
| 2 Overheat protector ZSK-764 1 | ||||
| 3 Temperature sensor WX248 | 1 | |||
LIRE ATTENTIVEMENT LES CONSIGNES D'UTILISATION AVANT LA MISE EN SERVICE DE L'APPAREIL.

Avertissements
Attention aux surfaces chaudes!
The manufacturer gives a one year guarantee for this heater. The guarantee starts from the date of purchase and includes all the parts of the heater (heating elements, controls, contactors, etc.).
The guarantee covers faults from the manufacture and material only. The guarantee includes a supply of spare parts by the manufacturer or importer after the faulty parts have been returned. Replacing any parts in the heater does not extend the original guarantee period of one year.
The guarantee does not cover defects caused by normal wear and tear, defects caused by improper installation, poor maintenance or failure to follow the manufacturer's instructions for installation, use and care, or alterations made to the product. The guarantee is void if the heater is used improperly. The guarantee does not cover delivery costs of the faulty part or repair costs on the field. If the heater is returned to the manufacturer or importer within five years from the date of purchase, the importer will provide free repair work, but may charge for spare parts if the one-year guarantee has expired.
The guarantee is void if installation and wiring has not been carried out by licensed electrician or authorized and licensed service representative. Please not that the installers signature is needed below.
The guarantee is void if the information below is not filled out and returned to the manufacturer or importer within 15 days of purchase. The guarantee applies only to the first installation of the product and to the original purchaser.
GARANTIE
Date of electrical installation /
Signature of the installer /
Licensed number of installer /
EasyManual