HMC34C5M0 - Microwave Oven HOOVER - Free user manual and instructions
Find the device manual for free HMC34C5M0 HOOVER in PDF.
User questions about HMC34C5M0 HOOVER
0 question about this device. Answer the ones you know or ask your own.
Ask a new question about this device
Download the instructions for your Microwave Oven in PDF format for free! Find your manual HMC34C5M0 - HOOVER and take your electronic device back in hand. On this page are published all the documents necessary for the use of your device. HMC34C5M0 by HOOVER.
USER MANUAL HMC34C5M0 HOOVER
natural_image
Simple geometric diagram with two horizontal lines inside a rectangle (no text or symbols)
HOOVER
TROUBY
ÖFEN
OVENS
HORNOS
FOURS
FORNI
PIEKARNIKI
FORNOS
RÚRY
OVENS
CS POKYNY PRO UŽIVATELE
natural_image
Two glassware illustrations: a spoon inside and a cross symbol crossed out of the glass (no text or symbols present)Nebezpečí výbuchu
natural_image
Pure mechanical diagram showing intersecting lines and a rectangular block (no text or symbols)natural_image
Technical line drawing of a device front panel with no visible text or symbolsnatural_image
Line drawing of an open oven with a grater inside (no text or symbols)
natural_image
Line drawing of an open oven with a rack inside (no text or symbols)
natural_image
Line drawing of a kitchen appliance with a tray and oven (no text or symbols)
natural_image
Line drawing of hands inserting a rack into an oven (no text or symbols)
text_image
Displej Microwave Oven Combined Zámek [ ] 10 3 My Taste Mínus - △ + << ▽ ► 9 5 6 4 Nahoru Plus Vypínač ①text_image
Technical diagram of a mechanical assembly with labeled components and a magnified inset showing internal components.natural_image
Line drawing of a cabinet with smoke rising from top, no text or symbols present
text_image
1 H₂Onatural_image
Simple line drawing of a glass with a spoon inside, no text or symbols present
natural_image
Simple line drawing of a glass with a black X mark crossed out (no text or symbols)Explosionsgefahr
natural_image
Pure electrical circuit lines without any symbolsnatural_image
Technical line drawing of a device front panel with no visible text or symbolsnatural_image
Line drawing of an open oven with a grater inside (no text or symbols)
natural_image
Line drawing of an open oven with a rack inside (no text or symbols)
natural_image
Line drawing of hands placing a tray into an oven with a grater inside (no text or symbols)
natural_image
Line drawing of hands installing a rack inside an oven (no text or symbols)
text_image
Technical diagram of a mechanical assembly with labeled components L, N, and I, showing internal components and alignment.natural_image
Line drawing of a cabinet with swirling smoke or vapor rising from the top (no text or symbols)
text_image
1 H₂O41 Important safety instructions
43 Warnings for microwave ovens
46 Respecting the environment
47 Oven identification plate
48 First use
49 The control panel
50 Main product functions
52 Microwave cooking modes table
53 For the installer
55 Solving traditional baking problems
56 Troubleshooting
Dear Customer,
We would like to thank you and congratulate you on your choice. This new product has been carefully designed and built using high-quality materials, and meticulously tested to ensure that it meets all your culinary requirements. Please read and observe these simple instructions, which will enable you to achieve excellent results from the very first use. This state-of-the-art appliance comes to you with our very best wishes.
- This product is designed for domestic use. The manufacturer declines all responsibility for personal injury or property damage deriving from incorrect installation or improper, erroneous or unsuitable use.
- The appliance must not be used by people (including children) with physical, sensorial or mental impairments, or by people without the necessary experience or knowledge, unless they are supervised or instructed in the use of the appliance by a person responsible for their safety.
- Children must be supervised to ensure that they do not play with the appliance. Do not place aluminium foil, pots or similar objects in contact with the base inside the oven for cooking. The heating action of the lower heating element may cause overheating of the lower part of the oven, resulting in damage and serious consequences (risk of fire), also for the counter under the oven.
• The appliance gets very hot during use. - WARNING: don't touch the heating elements inside the oven.
ATTENTION:
- If the door or the gasket seals of the door are damaged, the oven may not be used until it has been repaired by a qualified service technician.
- It dangerous for anyone other than a service technician to perform any maintenance or repairs that involve the removal of any cover that protects against exposure to microwaves.
- Liquids or other foods must not be heated in air-tight containers because they could explode.
- Children may not use the oven without supervision until they have been adequately instructed in its safe use and understand the dangers of using it incorrectly.
- Use only utensils appropriate for microwave ovens.
- When heating food in plastic or paper containers, check the oven frequently because of the risk of fire.
-
If you see smoke coming out of the oven, turn off or unplug the appliance, and keep the door closed to extinguish any flames.
-
Heating beverages in the microwave oven may cause a delayed boil-over, so be careful when handling the container.
- The contents of baby bottles and baby food in jars must be stirred or shaken, and their temperature must be checked before feeding to avoid scalding.
ATTENTION:
- Eggs in the shell and whole hard-boiled eggs must not be heated in microwave ovens because they could explode, even after heating in the microwave has ended.
- A detailed explanation of how to clean the gasket seals of the doors of the oven cavity and adjacent parts.
- The oven must be cleaned periodically and all food residues must be removed.
- Failure to keep the oven clean could cause deterioration of the surfaces, which could reduce the lifespan of the appliance and cause dangerous conditions.
- Do not use rough abrasives or sharp metal scrapers to clean the glass door of the oven, as they could scratch the surface and cause the glass to shatter.
- Do not use steam cleaners to clean the appliance.
FOOD PREPARATION
Danger of fire
Use the microwave function only for preparation of food to be eaten. Any other use may be dangerous or cause damage. For example, heating slippers or pillows filled with grain or cereals could cause these items to catch fire, even after several hours.
POTS AND PANS
Danger of injury
Porcelain and ceramic crockery may have small holes in the handles and cover. There could be cavities hidden behind these holes. If water gets into these cavities, the crockery could break.
Do not use crockery that is unsuitable for microwave ovens.
Danger of burns
The heat of the food can heat the dish. Always use a pot-holder to remove dishes and accessories from the cooking chamber.
Never set values that are too high for the microwave power or the cooking time. The food could catch fire and damage the appliance. Follow the rules in these instructions.
PACKAGING
Danger of fire
Never heat food in thermal packaging. Food in containers made of plastic, paper or other inflammable materials must be watched constantly.
Danger of burns
Airtight packaging can explode. Follow the instructions shown on the package. Always use a pot-holder to remove dishes.
BEVERAGES
Danger of burns
When heating liquids, boiling may be delayed. This means that the boiling temperature has been reached without forming the typical little steam bubbles. Even a slight knock could cause liquid to overflow suddenly or splash. When heating liquids, always put a spoon in the container to prevent delayed boiling.

natural_image
Two glassware illustrations: a spoon inside and a cross symbol crossed out (no text or symbols present)Danger of explosion
Never heat beverages or other types of food in covered containers.
Never heat alcoholic beverages excessively.
BABY FOOD
Danger of burns
Never heat baby food in a covered container. Always remove the cover or nipple.
When finished heating, always shake or stir carefully to ensure that heat is evenly distributed.
Test the temperature before giving the food to the baby.
FOODS WITH SKIN OR PEEL
Danger of burns
Never cook eggs in the shell.
Never heat hard-boiled eggs, as they could explode even after the microwave is turned off. The same applies to shellfish and crustaceans.
When frying eggs, pierce the yolk first. In the case of foods with a hard peel or skin like apples, tomatoes, potatoes or sausage, the peel or skin could explode. Pierce the peel or skin before cooking.
DRYING FOODS
Danger of fire
Never dry food in the microwave.
FOODS WITH LOW WATER CONTENT
Danger of fire
Never defrost or heat foods with low water content, such as bread, for too long or at an excessive power level.
OIL
Danger of fire
Never use the microwave to heat oil alone.
CAUSES OF DAMAGE
Juice leaking from fruit
When preparing desserts containing very juicy fruit, do not overfill the baking dish. Fruit juice overflowing the baking dish can leave indelible stains.
Technical breakdown
Never use enamelled baking dishes in the microwave as they could cause a technical breakdown.
Cooling with the door of the appliance open
The cooking chamber must only be cooled with the door closed. Check that nothing is stuck on the door of the appliance.
Even if the door is only ajar, nearby cabinets could be damaged over time.
Very dirty gasket seal
If the gasket seal is very dirty, the door of the appliance will not close correctly during operation. The surfaces of nearby cabinets could be damaged. Always keep the gasket seal clean.
Using the door of the appliance as a support surface
Do not rest or lean on the open door of the appliance and do not put dishes or accessories on it.
Using the microwave without food inside
Only turn on the microwave after you have put the food in the cooking compartment. Without food inside, the appliance can become overloaded.
The only exceptions allowed are brief tests of dishes (in this regard, refer to the warnings about pots and pans).
Moist foods
Do not leave moist foods in the cooking compartment for extended periods of time.
The documentation for this appliance is printed on paper bleached without chlorine or recycled paper to contribute to protecting the environment.
The packaging was designed to prevent damage to the environment; these are ecological products that can be re-used or recycled.
Recycling the packing saves raw materials and reduces the volume of industrial and domestic waste.
THE PACKING MATERIAL is 100% recyclable and marked with the recycling symbol.
Dispose of in compliance with local laws. The packing material (plastic bags, polystyrene parts, etc.) must be kept out of the reach of children as it is potentially dangerous.

THIS APPLIANCE is marked in compliance with European Directive 2002/96/EC - Waste Electrical and Electronic Equipment (WEEE).
By making sure that this product is disposed of correctly, the user contributes to preventing potential negative consequences for the environment and health.
THE SYMBOL on the product or accompanying documentation indicates that this product must not be treated as domestic waste, but must be delivered to a suitable collection point for the recycling of electrical and electronic equipment.

natural_image
Pure electrical circuit lines without any symbolsDISPOSAL MUST BE MADE in compliance with local laws on waste disposal.
FOR ADDITIONAL INFORMATION regarding the treatment, recovery and recycling of this product, contact the local office of competence, domestic waste collection service or the store where the product was purchased.
BEFORE SCRAPPING, make it unusable by cutting the electrical cord.
SERIAL TAG LOCATION:

natural_image
Technical line drawing of a device front panel with no visible text or symbols| SERVICE DATA RECORD | |
| Model Number | ............ |
| Serial Number | ............ |
| Date of Installation or Occupancy | ............ |
First use
• The oven should be thoroughly cleaned with soap and water, and carefully rinsed.
- Heat the oven for about 30 minutes at the maximum temperature; this eliminates all the residual manufacturing oils that could cause unpleasant odours during cooking.
- Use the circular plus fan function without accessories in the oven. Before using the accessories for the first time, clean them carefully with a very hot alkaline washing solution and a soft cloth.
ASSEMBLING AND DISASSEMBLING THE FLAT GRILL
To remove the flat grill, pull the grill towards you until it stops and then lift, by pulling upwards, until it comes fully out. To put the flat grill back in, insert it at a 45-degree angle and then position it horizontally and push it all the way in to the end of the grill track. If the flat grill has a drippan (tray), to remove it, lift slightly and slide it towards you. To insert it again, slide it back until it is correctly seated.
IMPORTANT: As a safety precaution, before cleaning the oven, always disconnect the plug from the outlet or remove the appliance's power cord. In addition, avoid using acid or alkaline substances such as lemon, vinegar, salt, tomatoes, etc. Avoid using products containing chlorine, acids or abrasives, especially for cleaning the painted walls.

natural_image
Line drawing of an open oven with a grater inside (no text or symbols)
natural_image
Line drawing of an open oven with a rack inside (no text or symbols)
natural_image
Line drawing of hands placing a tray into an oven with a grater inside (no text or symbols)
natural_image
Line drawing of hands inserting a rack into an oven (no text or symbols)
text_image
Display Microwave Oven Combined Lock [ ] 7 MinusMy Taste Plus 1 Plus On/Off - + << ▽ Back Down OK 9 5 61 Turn on / off the oven.
2 Multifunction display with scrolling text.
3 Access your latest settings or saved recipes (this only works from the first screen).
4 - 5 Use the arrows to scroll vertically through the menu and choose from the available options: Microwave, Oven, Combined, Settings.
6 Confirm your choice and start cooking.
7 - 8 Use the + and - symbols to increase and decrease the temperature, power and time values, and in some cases activate and deactivate functions (e.g. preheating).
9 Back to previous screen.
10 Lock: hold together for 5 seconds to activate and deactivate.
* Pre-heating and delay-start functions are located in the options menu, below the temperature and time settings.
DEMO MODE

text_image
ON / OFF 00:11 STAND-BY PRESS 6 SECOVEN COOKING
| Symbol | Description Suggestions | |
![]() | Multi-levelPre-set: 165°CRange: 50-230°C | IDEAL FOR: pastries, biscuits, cakes, stuffed and braised dishes. Use this function to cook different foods at the same time on one or more shelf positions. Heat is distributed better and penetrates food better, thus reducing both pre-heating and cooking times. Aromas are not mixed. Allow about 10 minutes extra when cooking different foods together. |
![]() | GrillPre-set: 230°CRange: 50-230°C | IDEAL FOR: grilled meat, fish, vegetables.This function only uses the top heating element and the grill level can be adjusted. Use with the door closed. Do not place white meats too close to the grill. |
![]() | Multi-level + GrillPre-set: 210°CRange: 50-230°C | IDEAL FOR: gratins and crispy food.This function combines the benefits of multi-level cooking with the capacity to evenly cook multi-layer recipes and thicker pieces of food, grilling to lightly crisp the external surface. |
![]() | Grill + FanPre-set: 165°CRange: 50-230°C | IDEAL FOR: whole pieces of meat (roasts).The top heating element is used with the fan to circulate the air inside the oven. Ideal for cooking thicker food items and whole pieces of meat, such as roast pork, poultry, etc.Turn the food halfway through cooking.WARNINGS:Make sure that the food is not too close to the grill.Pre-heating is necessary for red meats but not for white meats. |
![]() | Microwave Grill | Use this function to cook meals quickly and at the same time give the meal a brown crust (or gratin). The microwave and the grill operate together. The microwave is cooking and the grill is roasting. |
![]() | Microwave + Convection + Fan | IDEAL FOR: roasts, stuffed and baked dishes.This function combines the microwave and convection functions, which means instead of just heating the inside of the food, it also browns and cooks the outside of your food. This function can help you cook baked dishes quickly.WARNINGS:·Always place food on the grill so that the air can circulate well around it. |
MICROWAVE COOKING
| Symbol Description Suggestions | ||
![]() | Microwave | Use the microwave function to cook and reheat vegetables, potatoes, rice, fish and meat. |
![]() | Timed Defrost Use this function to quickly defrost food by the specified time. | |
![]() | Weight Defrost | Use this function to quickly defrost different types of food (i.e. bread, vegetable, meat, fish) by setting the weight. |
Microwave cooking modes table
150 W 150 W 200°C
Microwave Grill
300 W 300 W
450 W 450 W
150 W 150 W 50°C 100°C 200°C
Microwave + Convection + Fan
300 W 300 W
450 W 450 W
Microwave
150 W 900 W 900 W
Timed Defrost
150 W
Bread 100 g 500 g 600 g 150 W
Weight Defrost
Vege-table 100 g 500 g 1000 g 150 W
Meat 100 g 500 g 1500 g 150 W
Fish 100 g 500 g 800 g 150 W
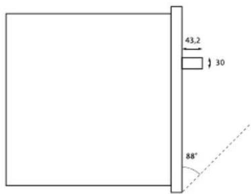
INSTALLING THE OVEN IN THE COUNTER
- The oven must be installed under a cooker top, in a column, or combined with the corresponding food-warmer drawer.
- The dimensions of the space must be those shown in the figure.
- The cabinet material must be able to withstand the heat.
- The oven must be centred within the walls of the cabinet and fixed with the screws and bushings provided.

text_image
the heat. oven must be centred within the walls e cabinet and fixed with the screws and ings provided. 560 560 450 542 546 110 446 455 22 596
text_image
43,2 30 88°TECHNICAL DATA
| Power supply | 220-240 V~, 50 Hz |
| Maximum absorbed power | 3200 W |
| Microwave power | 900 W |
| Grill | 1500 W |
| Hot air | 1500 W |
| Microwave frequency | 2450 MHz |
TYPE AND MINIMUM DIAMETER OF THE CABLES
| SASO | |||
| H05RR-F 3x | 1.5 mm ^2 H05RR-F 3x2.5 mm ^2 | ||
| H05VV-F 3x | 1.5 mm ^2 H05VV-F 3x2.5 mm ^2 | ||
| H05RN-F 3x | 1.5 mm ^2 H05RN-F 3x2.5 mm ^2 | ||
| H05V2V2-F 3x | 1.5 mm ^2 H05V2V2-F 3x2.5 mm ^2 | ||
ELECTRICAL CONNECTION
Before connecting the appliance to the mains, make sure that:
- the characteristics of the electrical system satisfy what is shown on the serial number plate applied to the front of the oven:
- the electrical system has an effective earth connection conforming to standards and current law.
The earth connection is required by law.
The cable must not, at any point, reach a temperature greater than 50^ C above the ambient temperature.
This oven must be connected to the power supply by a supply cord fitted with an appropriately rated plug compatible with the socket in the final sub-circuit of the wiring powering the oven. If a fixed appliance does not have a power cord and plug, or another device that ensures disconnection from the mains with a contact opening distance that allows for complete disconnection under the conditions of excessive voltage category III, such disconnection devices must be provided by the mains power supply and must conform to the installation rules.
The omnipolar socket or switch must be easy to reach when the appliance is installed.
NOTE: The manufacturer declines all liability if the usual accident prevention standards and the above instructions are not followed.

text_image
Technical diagram of an electrical switch mechanism with labeled components and a magnified view showing internal components.Solving traditional baking problems
Poor results can occur with either Bake or Convection Bake for many reasons other than malfunctioning of the oven. Check the chart below for the causes of the most common problems. Since the size, shape and material of baking
utensils directly affect baking results, the best solution may be to replace old baking utensils that have darkened and warped with age and use.
| BAKING PROBLEM | CAUSE |
| Food browns unevenly | Oven not preheatedAluminum foil on oven rack or oven bottomBaking utensil too large for recipePans touching each other or oven walls |
| Food too brown on bottom | Oven not preheatedUsing glass, dull or darkened metal pansIncorrect rack positionPans touching each other or oven walls |
| Food is dry or has shrunk excessively | Oven temperature too lowOven not preheatedOven door opened frequentlyTightly sealed with aluminum foilPan size too small |
| Food is baking or roasting too slowly | Oven temperature too lowOven not preheatedOven door opened frequentlyTightly sealed with aluminum foilPan size too small |
| Pies do not brown on bottom or have a soggy crust | Baking time not long enoughUsing shiny steel pansIncorrect rack positionOven temperature is too low |
| Cakes are pale, flat, and may not be done inside | Oven temperature too lowIncorrect baking timeCake tested too soonOven door opened too oftenPan size may be too large |
| Cakes are high in the middle and cracked on the top | Baking temperature too highBaking time too longPans touching each other or oven wallsIncorrect rack positionPan size too small |
| Pie crust edges are too brown | Oven temperature too highEdges of crust too thin |
Troubleshooting
ERROR

text_image
ERROR
text_image
1SMOKE

natural_image
Line drawing of a cabinet with swirling smoke or vapor rising from the top (no text or symbols)
text_image
1 H₂Onatural_image
Two glassware illustrations: a spoon inside and a cross symbol crossed out of the glass (no text or symbols present)natural_image
Pure electrical circuit lines without any symbolsnatural_image
Technical line drawing of a device front panel with no visible text or symbolsnatural_image
Line drawing of an open oven with a grater inside (no text or symbols)
natural_image
Line drawing of an open oven with a rack inside (no text or symbols)
natural_image
Line drawing of hands placing a tray into an oven with a grater inside (no text or symbols)
natural_image
Line drawing of hands inserting a rack into an oven (no text or symbols)
text_image
2 Pantalla Microwave Oven Combined 3 7 MenosMy Taste MásA Enbendido/ Apagado 4 + - << Atrás 9 5 OKAbajo 6 10 Itext_image
Technical diagram of an electrical switch mechanism with labeled components and a magnified view showing internal components.natural_image
Line drawing of a cabinet with swirling smoke or vapor rising from the top (no text or symbols)
text_image
1 H₂Onatural_image
Two glassware illustrations: one with a spoon inside, the other with a crossed-out black X (no text or symbols)Risque d'explosion
natural_image
Pure electrical circuit lines without any symbolsnatural_image
Technical line drawing of a device front panel with no visible text or symbolsnatural_image
Line drawing of an open oven with a grater inside (no text or symbols)
natural_image
Line drawing of an open oven with a rack inside (no text or symbols)
natural_image
Line drawing of hands placing a tray into an oven with a grater inside (no text or symbols)
natural_image
Line drawing of hands inserting a rack into an oven (no text or symbols)
text_image
2 Affichage Microwave Oven Combined 3 My Taste Moins Haut Plus Marche/ Arrêt 7 - + + << Retour Bas OK 9 5 6 10 Verrouillage [ ]INSTALLATION DU FOUR DANS LE MEUBLE
text_image
Technical diagram of a mechanical assembly with labeled components L and N, including a magnified inset showing internal components.natural_image
Line drawing of a cabinet with swirling smoke or vapor rising from the top (no text or symbols)
text_image
1 H₂Onatural_image
Two glass illustrations: one with a spoon inside, the other with a black X symbol crossed out (no text or symbols present)natural_image
Pure electrical circuit lines without any symbolsnatural_image
Technical line drawing of a device front panel with no visible text or symbolstext_image
Technical diagram of a mechanical assembly with labeled components L and N, including a magnified inset showing internal components.natural_image
Line drawing of a cabinet with swirling smoke or vapor rising from the top (no text or symbols)
text_image
1 H₂Onatural_image
Two glassware illustrations: a spoon inside and a cross symbol crossed out of the glass (no text or symbols present)natural_image
Pure electrical circuit lines without any symbolsnatural_image
Technical line drawing of a device front panel with no visible text or symbolsnatural_image
Line drawing of an open oven with a grater inside (no text or symbols)
natural_image
Line drawing of an open oven with a rack inside (no text or symbols)
natural_image
Line drawing of a kitchen appliance with a hand placing an oven into a rack (no text or symbols)
natural_image
Line drawing of hands inserting a rack into an oven (no text or symbols)
text_image
2 Wyświetlacz Microwave Oven Combined 3 My Taste 7 Minus 4 Wgóre 8 Plus 1 Wt./Wyt. Blokada [ ] 9 Wstecz 5 Wdól OK 6text_image
Technical diagram of an electrical switch mechanism with labeled components and a magnified view showing internal components.natural_image
Line drawing of a cabinet with smoke rising from its top, no text or symbols present
text_image
1 H₂Onatural_image
Two glassware illustrations: one with a spoon inside, the other with a crossed-out X sign (no text or symbols)Perigo de explosão
natural_image
Pure mechanical diagram showing intersecting lines and a rectangular block (no text or symbols)natural_image
Technical line drawing of a device front panel with no visible text or symbolsnatural_image
Line drawing of an open oven with a grater inside (no text or symbols)
natural_image
Line drawing of an open oven with a rack inside (no text or symbols)
natural_image
Line drawing of hands placing a tray into an oven with a grater inside (no text or symbols)
natural_image
Line drawing of hands inserting a rack into an oven (no text or symbols)
text_image
Visor Microwave Oven Combined Fechadura [ ] 7 MenosMy Taste + MaisCin On/Off Retroceder OKBaixo 9 5 6text_image
Technical diagram of a mechanical assembly with labeled components and a magnified inset showing internal components.natural_image
Line drawing of a cabinet with swirling smoke or vapor rising from the top (no text or symbols)
text_image
1 H₂Onatural_image
Two glass illustrations: one with a spoon inside, the other with a crossed-out X (no text or symbols)natural_image
Pure electrical circuit lines without any symbolsnatural_image
Technical line drawing of a device front panel with no visible text or symbols| ZÁZNAM SERVISNÝCH ÚDAJOV | |
| Číslo modelu | ............ |
| Sériové číslo | ............ |
| Dátum inštalácie alebo činnosti | ............ |
Prvé použitie
natural_image
Line drawing of an open oven with a grater inside (no text or symbols)
natural_image
Line drawing of an open oven with a rack inside (no text or symbols)
natural_image
Line drawing of hands placing a tray into an oven with a grater inside (no text or symbols)
natural_image
Line drawing of hands inserting a rack into an oven (no text or symbols)
text_image
Displej Microwave Oven Combined Zámok [ ] 10 3 7 MínusMy Taste - + Plus Zap/vyp Spät OKDole 9 5 6text_image
Technical diagram of a mechanical assembly with labeled components and a magnified circular view showing internal structure.natural_image
Line drawing of a cabinet with smoke rising from top, no text or symbols present
text_image
1 H₂Onatural_image
Two glass illustrations: one with a spoon inside, the other with a crossed-out X sign (no text or symbols)Explosiegevaar
natural_image
Pure electrical circuit lines without any symbolsHET
natural_image
Technical line drawing of a device rear panel with internal grid layout and an upward arrow indicator (no text or symbols)natural_image
Line drawing of an oven with a grater inside (no text or symbols)
natural_image
Line drawing of an open oven with a rack inside (no text or symbols)
natural_image
Line drawing of a kitchen appliance with a hand placing a tray into an oven (no text or symbols)
natural_image
Line drawing of hands inserting a grating into an oven (no text or symbols)
flowchart
graph TD
A["Display"] --> B["Microwave"]
B --> C["Oven"]
B --> D["Combined"]
E["My Taste"] --> F["+"]
G["Min"] --> F
H["Omhoog"] --> F
I["Plus"] --> F
J["Aan/uit"] --> K["①"]
L["Vergren-delen [ "]] --> M["9"]
L --> N["5"]
L --> O["6"]
P["7"] --> Q["-"]
P --> R["△"]
P --> S["+"]
T["<<"] --> U["▽"]
V["Terug"] --> W["OK"]
text_image
AAN/UIT 00:11 STAND-BY DRUK 6 SEC.BEREIDING IN DE OVEN
text_image
Technical diagram of an electrical switch mechanism with labeled components and a magnified inset showing internal structure.Traditionele bakproblemen oplossen
natural_image
Line drawing of a cabinet with smoke rising from top, no text or symbols present
text_image
1 H₂OCandy Hoover Group srl
Via Comolli, 16
20861 Brugherio (MB)
Włochy

HOOVER
EasyManual








