EDR2SPAN - Kessel INVENTUM - Kostenlose Bedienungsanleitung
Finden Sie kostenlos die Bedienungsanleitung des Geräts EDR2SPAN INVENTUM als PDF.
Questions des utilisateurs sur EDR2SPAN INVENTUM
0 question sur cet appareil. Repondez a celles que vous connaissez ou posez la votre.
Poser une nouvelle question sur cet appareil
Laden Sie die Anleitung für Ihr Kessel kostenlos im PDF-Format! Finden Sie Ihr Handbuch EDR2SPAN - INVENTUM und nehmen Sie Ihr elektronisches Gerät wieder in die Hand. Auf dieser Seite sind alle Dokumente veröffentlicht, die für die Verwendung Ihres Geräts notwendig sind. EDR2SPAN von der Marke INVENTUM.
BEDIENUNGSANLEITUNG EDR2SPAN INVENTUM
Gebruikers- en installmentehandleiding Manuel d'utilisation et d'installation Betriebs- und installationsanleitung

| De Inventum boiler | Chauffe-eau Inventum | InventumWamwasserspeicher |
| Met de aanschaf van deze boilerverschaft u zich een veilig envertrouwd kwaliteitproduct. DeInventumboilerlevertuivorraad warm water van eenconstante temperaatur. Een groetapsnelheid zonder hinderlijketemperatuurvorschillen biedt u eenhoog warmwatercomfort. | En achetant ce chauffe-eau, youaveszacquis un produit deliquite, sur et fiable. Lechauffe-eauInventumyou fournit de l'eauchaude, à une températureconstante. Le comfort est élevé:l'eauchaude, stockée dans unecueva, rapidement et sardiférences de températurincommodantes. | Mit dem Kauf desses Wamwasser-speichers haben Sie sich für einsicheres und zuverlüssiges Qualitätszerzeugnis entschieden. DerInventumWamwasserspeicher liefertWarmwasser mit einer gleich-bleibenden Temperatur aus dem imGerät vorhandenen Wamwasser-vorrat. Die hohe Entnahmegaschwin-digkeit ohne störende Temperaturschwankungen bietet Ihnen einen hohen Wamwasserkomfort. |
| AlleInventumboilers voldoenaan de zwaarstekwaliteitseisen, ook waar hetgaat om energieverbruik. Zowordt hoogwaardig CFK-vrijmaterial gebrukt voor deisolatie van de boilers. Hierdoorwordt energieverlies tot eenminimum bepertk. | Tous les chauffe-eau Invenutumsatisfont aux normes les plussevères en matière de qualité, celaégressément pour ce qui est de laconsommation énergétique. C'estainsque, pour isoler les chauffe-eau, nous utilisions des matériauxde qualité supérieure, exemplés offa sorté, de limiter autant quepossible les pertes d'énergie. | AlleInventumWamwasserspeichererfußlen strengste Qualitätsanforderungen, auch hinsichtlich des Ener-gieverbrauchs. So wird z.B. für dieIsolation der Wamwasserspeicher Hochwertiges FCKW-freies Material verwendet. Dadurch wird der Ener-gieverlust auf ein Mindestmaβbegrenzt. |
| Verklaring van overeenstemming | Déclaration de conformité | Konformitätserklärgung |
| Inventumbv is een ISO 9001-gecertificierde onderneming.Inventumbv verkaart dat deaan de Voorzijde vermeldeboiler in overeenstemming ismet: | Inventumbv est une sociétécertifiée ISO 9001. Inventumbv déclaré que le chauffe-eaumentionné sur la page decouverture est conforme auxdirectives et normes suivantes: | Inventumbv ist ein gemäß ISO-9001zertifiziertes Unternehmen. Inventumbv erklär, daß der an der Vorderseite genannte Wamwasserspeicherfolgenden Richtlinien und Normenentspricht: |
| Laagspanningsrichtlijn 73/23/EEGEMC-richtlijn 89/336/EEG | Directive relative à la bassetension 73/23/CEEDirective relative à lat compatibilité électromagnétique(CEM) 89/336/EE | Niederspanningsrichtlinie 73/23/EEGEMC-Richtlinie 89/336/EEG |
| Geharmoniseerde normen:EN 60335-1EN 60335-2-21EN 50082-1EN 55014EN 61000-3-3EN 61000-4-5 | Normes harmonisées:EN 60335-1EN 60335-2-21EN 50082-1EN 55014EN 61000-3-3EN 61000-4-5 | Harmonisierte Normen:EN 60335-1EN 60335-2-21EN 50082-1EN 55014EN 61000-3-3EN 61000-4-5 |
| Bilthoven, 1 april 2004 | Bilthoven, le 1er avril 2004 | Bilthoven, den 1. April 2004 |
| Inventumbv | Inventumbv | Inventumbv |
| © 2004Nietsuit deze handleiding mag worden verveelvoudigend en/of openbaar worden gemaakt door middel van druk, fotokopie,microfilm of op welke andere wijze dan ook, zonder voorafgaande toestemming van Inventumbv. Dit geldt ook voor de bijbehorende illustraties.Aucune partie du présent mode d'emploi ne doit être reproduite et/ou publiée, sous la forme d'imprimés, de photocopies, de microfilms ou parquelque autre procédé que ce soit, sans le consentement prétable de la société Inventumbv. Cetteinterdiction s'applique également aux illustrations accompannant ce document.Ohne die vorherige Einwilligung von Inventumbv darf diese Anleitung weder gaz nach auszugswisse durch Druck,Fotokopie,Mikrofilm oder auf andere Weise vervielfältigt und/oder veröffentlich werden. Dies gilt具有良好 für diedazugehöriger Abbildungen. | ||

Abb. 1 Hauptbauteile
A Wandübel
B Wandbugel
C Einstellscheibe aus Kunststoff
D SchlieBring
E Schlüsselschrauben
F Aufhängebügel
G Typenschild
H Warmwassergerat
I Dichtungsprofil
J Thermostatknopf
K Zeitschalter/Lampe (Option)
L Abdeckung
M Uberwurfmutter
N Klemmring
O Schutzbuchse
P Kaltwasseranschluß
Q Warmwasseranschluß
R Einstellschraube
S Stützbügel
Inhoudsopgave
GEBRUIKERSHANDLEIDING
1 Gebruik
- Stilstandsverlies
Gewicht leeg
* Gewicht vol

1 Benutzung der Anleitung de - 4
1.1 Bestimmungsgemälter
Gebrauch de - 4
1.2 Garantie de - 4
1.3 Haftung de - 5
2 Beschreibung de - 5
2.1 Hauptbauteile de - 5
2.2 Produktidentification de - 5
2.3 Prüfzeichen de - 5
2.4 Funktionsprinzip de - 5
3 Bedienung und Gebrauch de - 5
3.1 Bedienung de - 6
3.2 In Betriebnehmen/ außer Betrieb setzen de -6
3.3 Funktionsprüfung de -6
3.4Arbeiten an der Wasserleitung de-6
3.5 Wasser- und Energieeinsparung de -6
4 Wartung de - 7
4.1 Reinigen de-7
4.2 Sicherheitsgruppe de-7
5 Störungen de -7 störungstabelle de -8
6 Endeder Lebensdauer de-7
INSTALLATIONSANLEITUNG
7 Lagerung und Transport de - 9
7.1 Inhalt der Verpackung de - 9
7.2 Umweltfreundliche Entsorgung der Verpackung de - 9
8 Technische Angaben de - 9
9 Installations-vorbereitung de - 10
9.1 Ortliche Installationsvorschriften de - 10
9.2 Installationsbedingungen de - 10
9.3 Anschlußbedingungen de - 10
9.4 Zu benutzende Zubehörteile (nicht mitgeliefert) de - 10
10 Installation de - 11
10.1 Montage des Gerats de - 11
10.2 Anschlüsse an die Wasserleitung de-11
10.3 Anschluß der Abflüsseitung de-11
10.4 Gerät füllen de-11
10.5 Elektroanschluß de-11
11 In Betriebnehmen/außer Betrieb setzen de - 12
11.1 In Betriebnehmen de- 12
11.2 Funktionsprüfung de - 12
11.3 Außer Betrieb setzen de - 12
11.4 Speicher leeren de-12
1 Benutzung der Anleitung
These Anleitung ist als Leitfaden für den Benutzer und den Installateur gedacht. Mit dieser Anleitung kann der auf der Vorderseite genannte Warmwasserspeicher auf sichere Weise installiert, benutzt und gewartet werden. Bewahren Sie die Anleitung bei dem Warmwasserspeicher auf. Der erstige Teil ist sowohl für den Benutzer als für den Installateur gedacht, während der zweite Teil ausschließlich für den Installateur bestimmt ist. Lesen Sie den für Sie bestimmten Teil der Anleitung sorgfältig durch. Der Benutzer wird darauf hingewiesen, daß er den Installateur britten sollte,ihn über den sicheren Gebrauch des Warmwassergerätes zu informieren.
In der Anleitung werden die folgenden Piktogramme und Symbole benutzt:

Achtung!

Installateur
Maßnahme
These Anleitung wurden von Inventum by mit außerster Sorgfalt verfaßt, allerdings konnen keine Rechte auf diese Anleitung gegrundet werden. Im Zusammenhang mit der kontinuierlichen Produktinnovation behält Inventum bv sich jederzeit das Recht vor, die Spezifikationen ohne vorherige Ankündigung zu ändern.
1.1 Bestimmungsgemäßer Gebrauch
These Warmwasserspeicher ist dazu geeignet, Brauchwasser unter Druck zu speichern und zu erwarten. Der Warmwasserspeicher muß an ein Wasserleitungsnetz mit einem Wasserdruck von hochstens 700 kPa (7 bar) angegeschlossen werden. Jede andere oder weitergehende Form des Gebrauchs entspricht nicht der Bestimmung. Installieren und benutzen Sie das Warmwassergerät nur, wenn es sich in technisch perfectem Zustand befindet.
1.2 Garantie
These Warmwasserspeicher ist mit großer Sorgfalt hergestellt worden, und wir geben eine Garantie auf alle Material- und/oder Herstellungsehler.
Garantiegewährung
Die Verantwortlichkeit für die Ausführung der Garantie ruht in erster Linie auf dem Installateur/ Lieferanten, bei dem der Warmwasserspeicher erworben wurde.itte behmen Sie auch zuerst mit Ihr Hem Installateur/Lieferanten Kontakt auf.
Garantiezeitraum
-5 Jahre auf den Innenbehälter (ohne Zubehör),
-2 Jahre auf die sonstigen Teile, ab dem Datum des Ankaufs gerechnet.
Garantiebedingungen
- Bei Inanspruchnahme der Garantie muss die Typen- und Seriennummer des Warmwassergeräts angegeben werden.
- Der Kaufettel für den Warmwasserspeicher muss unter Angabe des Kaufdatumsvorgelegt werden können.
Die Garantie gilt nur fur Material- und Herstellungsehler (dies obliegt der Beurteilung des Herstellers).
- Der Warmwasserspeicherarf ausschließlich gemäß der Installations- und Bedienungsanleitung installiert,benutz und gewartet worden sein.
- An dem Warmwasserspeicher)duren in konstruktiver Hinsicht keine Änderungen oder Anpassungen vorgenommen worden sein.
- Der Defektarfkeine Folge von Trockenkochen, zu hartem oder zu aggressivem Trinkwasser, aggressiven Flüssigkeiten und/oder Stoffen, Dampfen oder Gasen sein und nicht auf Korrosion oder Kalkablagerungen innen oder außenzurückzuführn sein.
- Der Defektarfkeine Folge von eigener Schuld, Nachlassigkeit oder unsachgemäßen Benutzung sein.
Garantieausschluss
- Arbeitslohn
- Anfahrstkosten
-Versand Kosten - Verwaltungskosten
- Transportschaden
-Folgeschaden wie Brandschaden, Betriebsschaden, Wasserschaden und körperlicher Schaden.
Service
Bitte erhnen Sie immer erst mit ihrem Installateur oder Lieferanten vor Ort Kontakt auf, wenn Sie Probleme mit dem Gerät und/oder der Bedienung des Warmwasserspeichers haben. Auch für die Nachbestellung von Ersatzteilen ist dies die richtige Adresse. Inventum verfügt über einen eigenen Wartungs Dienst, an den sich der Installateur unter den vorstehend genannten Bedingungen wenden kann.
Bitte beachten
Der Defekt von einem oder mehreren Teilen des Warmwasserspeichers rechtfertigt in keinem Fall den Ersatz oder die Rücksendung des gesamten Warmwasserspeicher. Alle Inventum-Ersatzeile sind kurzfristig lieferbar.
1.3 Haftung
Inventum bv oder Ihr Installateur/Lieferant übernehmen keine Haftung fur Schaden oder Verletzungen gleich welcher Art, die verursacht wurden durch:
- die Nichtbeachtung der Anweisungen in dieser Anleitung;
- Unvorsichtigkeit bei der Installation, beim Gebrauch, bei der Wartung und Reparatur theses Geräts;
- nicht bestimmungsgemäßen Gebrauch;
- die Verwendung von Ersatzteilen, die nicht vom Hersteller gefelfert wurden;
-Folgeschäden durch Leckage.
2 Beschreibung
Dieses Gerät wurde zur Speicherung und Erwärnung von Brauchwasser entwicken. In dem Warmwasserspeicher befindet sich ein isolierter Innehälter, der je nach ausführung zwischen 30 und 150 Liter Wasser enthalten kann. Eine eingebaute Heizquelle erwartet das Wasser. Über den Warm- und Kaltwasseranschluss kann der Warmwasserspeicher in ein Wasserleitungsnetz aufgenommen werden
2.1 Hauptbauteile
Abb. 1 (Seite 2) zeigt die Hauptaubeile.
2.2 Produktidentification
Das Typenschild enthalt folgende Angaben:
- Produktbezeichnung
- Typenummer
- Seriennummer
-Inhalt [L] - Prüfzeichen
- Betriebsdruck [kPa oder bar]
- Leistung [W]
- elektrischer Anschlußwert [V]
- Feuchtebeständigkeit
2.3 Prüfzeichen
Auf dem Typenschild befinden sich eines oder mehrere der folgenden Prüfzeichen:
- CE
- KEMA
-CEBEC
-VDE - NF
2.4 Funktionsprinzip
Über die Sicherheitsgruppe strömt kaltes Leitungswasser in das Gerät.
Ein Thermostat und eine Heizquelle sorgen darauf, daß das Wasser erwartt wird, bis es die eingestellte Temperatur erreicht hat. In dieser Fall besteht die Heizquelle aus einem oder mehreren elektrischen Heizelementen. Bei der Erwärungdehynt sich das Wasser aus, wodurch der Druck im Gerät steigt. Diese Überdruck wird durch das Überlaufventil der Sicherheitsgruppe begrenzt.

Abb. 2 Funktionsprinzip
A Warmwasserspeicher
B Warmwasserleitung
C Kaltwasserleitung
D Sicherheitsgruppe
E Uberlaufventil
F Absperrhahn
G Trichter
3 Bedienung und Gebrauch
These Warmwasserspeicher ist in verschieden Ausführungen lieferbar.
Alle Ausführungen eignen sich zur Wassererwärung mit "Normaltarifstrom" oder verbrieftem "Nachstrom"
(Niedrigtarif). Mit Nachtstrom wird das Gerät nachts vollständig aufgewärmt. Das E-Werk kann Sie über die Mänglichkeiten eines Nachtstromanschlusses;naher informieren.

ED

EDR/EDOR..0 + EDR/EDOR..2

EDR/EDOR...1

EDR/EDOR..3
Abb. 3 Bedienelemente
3.1 Bedienung
ED
Das Wasser wird nachts auf 73^ erwartt (Abb. 3).
EDR/EDOR..0 + EDR/EDOR..2
Mit dem Thermostatkopf können Sie die Wassertemperatur zwischen 65 und 88^ einstellen.EDOR.2 ist für den Anschluß an einen externen Zeitschalter (z.B.im Zährerschrank) geeignet (Abb.3).
EDR/EDOR...1
Mit dem Zeitschalter (links) konnen Sie das Warmwassergerät für die Dauer von 120 Minuten auf Tagstrom umschalten. Mit dem Thermostatknopf (rechts) konnen Sie die Wassertemperatur auf einen Wert zwischen 65 und 88^ einstellen (Abb.3).
EDR/EDOR..3
Das Wasser wird nachts auf 88^ erwartt. Mit dem Thermostatknopf konnen Sie das Gerät auf Normaltarifstrom (Tagstrom) umschalten, so daß das Wasser die eingestellte Temperatur besteht. Die Einstellung "Küche" entspricht 55^ , die Einstellung "Dusche" 40^ . Die Einstellung "aus" bedeutet, daß tagsüber keine Warmwasserbereitung erfolgt (Abb. 3).
3.2 In Betriebnehmen/außer Betrieb setzen
Das Gerät kann ein-/ausgeschaltet werden, in dem man den Strom (im Zählerschrank) ein- bzw. ausschaltet.
3.3 Funktionsprüfung
Das Gerät erwartet das Wasser, wenn die Anzeigelampe (Option) aufleuchtet und wenn Expansionswasser aus dem Überlaufventil tropf. Berücksichtigten Sie die Aufheizzeit, wenn Sie das Gerät wieder in Betrieb nehmen. Je nach dem Inhalt und der Leistung des Gerats liegt die Aufheizzeit zwischen mehreren Minuten und einigen Stunden (Abb. 6).
3.4 Arbeitsen an der Wasserleitung
Wenn der Wasserdruck wegfällt, beispelsweise infolge von Arbeiten am Wasserleitungsnetz, führen Sie folgende Handlungen durch:
- Schlieben Sie den Absperrhahn der Sicherheitsgruppe (Abb. 2).
Sobald der Wasserdruck wieder vorhanden ist: - Offnen Sie den Absperrhahn den Sicherheitsgruppe.
- Offnen Sie einen Kaltwasserhahn in der Nähe des Haupthahns.
- Schlieben Sie diesen Hahn, wenn das Wasser klar bleibt.
3.5 Wasser- und Energieeinsparung
Durch einen bedachtsamen Umgang mit (warmem) Wasser schonen Sie die Umwelt und konnen Sie Wasser-und Energiekosten einsparen.
So führz.B. ein Sparduschkopf zu einer durchschnittlichen Einsparung von 7500 Litern Warmwasser pro Person pro Jahr. Durch den Einsatz wassersparender Hähne ist eine jährliche Einsparung von durchschnittlich 1000 Litern pro Person möglich. Thermostatische Mischbatterien tragen zu einem sicheren Gebrauch von Warmwasser bei, erhöhen den Komfort und senken den Warmwasserverbrauch.
4 Wartung
Es empfeht sich, einen Wartungsvertrag mit einem anerkannten Installeur zu schlieben, damit das Gerät in regelmäßigen Abständen kontrolliert wird. Auf diese Weise stellen Sie sicher, daß Ihr Gerät (betriebs-))sicher Funktioniert. Wenn Sie das Gerät mieten oder lease, wird die Wartung im allgemeinen durch den Vertrag geregelt. Für Informationen über spezifische Einstellungen, Wartungs- oder Reparatur arbeiten, die in dieser Benutzieranleitung nicht behandelt werden, wenden Sie sichitte an einen staatlich anerkannten Installaur. Diese ist immer bisher bereit, Ihnen zu halten.

Lassen Sie ihren Warmwasserspeicher jährlich entkalken, wenn Sie in einem Gebiet mit hartem Wasser wohnen (mehr als 12^ ).
4.1 Reinigen
Die Außenseite des Gerats kann mit einem weichen Tuch und einem nicht aggressiven Haushaltsreiniger gereinigt werden.
4.2 Sicherheitsgruppe
Prufen Sie regelmäßig, ob das Expansionswasser ungehindert durch das Überlaufventil (Abb.2) aus dem Gerät abgeleitet wird. Um Kalkablagerung im Überlaufventil zu verhindern, ist thises in regelmäßigen Abständen zu bedieten.

Das Tropfen von Expansionswasser darf keinesfalls verhindert werden. Wenn das Tropfen unterbunden wird, kann sich im Gerät ein unzulässiger Druckaufbau entwickeln.
ACHTUNG!

Bei Speichern, die auf eine hohe Temperatur eingestellt sind, besteht
Verbruhungsgefahr (insbesondere für Kinder). Wir empfehlen den Gebrauch einer Thermostat-Mischarmatur.
5 Störungen
Inventum Warmwasserspeicher werden mit großer Sorgfalt hergestellt, so daß eine hohe Zuverlösigkeit gewährleistet werden kann. Soltten unverhoff dennoch Störungen an dem Warmwasserspeicher auftreten, beachten Sie dann die Störungstabelle (Tabelle 1).
INFORMIEREN SIE IHREN INSTALLATEUR, WENN DIE STÖRUNG MIT DEN VORGESCHRIEBEN HANDLUNGEN NICT BEHOBEN WERDEN KANN!!
Sorgen Sie dazu, daß Sie damit folgende Angaben zur Hand haben:
- Produktbezeichnung
- Typenummer
- Seriennummer

Repairen Sie das Gerät auf keinen Fall selbst. Dadurch entstehen möglicherweise eine unsichere Situation, außer dem entfällt die Garantie.
6 Ende der Lebensdauer
Alle von Inventum by benutzten Materialien enthalten keinerlei Stoffe, die sich bei der Demontage und/oder Vernichtung umweltschädlich auswirken.
LEGIONELLEN-PRÄVENTION!

Nach längerer Abschaltung des Speichers, z.B. während des Urlaubs, müssen Sie den Speicher
vor der Wiederinbetriebnahme als Vorsichtsmaßnahme gegen einen eventuellen Legionellenbefall_vollständig bis auf die Maximaltemperatur aufheizen.
Vor dem ersten Gebrauch nach einer längeren Stillstandszeit ist es ratsam, die Leitungen eine Minute lang durchzuspulen und darauf möglichst nicht den Duschkopf zu verwenden.
Tabelle 1 Störungstabelle
| STÖRUNG ERKLÄRUNG MASSNAHME | ||
| Die Anzeigelampe - Strum leuchtet nicht. | omzufahr ist unterbrochen. • Sicherungen kontrollieren. | |
| - Gerät hat die eingestellte • Sie bareauchen nicht zu tun. | ||
| (Zu) kaltes Wasser. - Thermostat zu niedrig eingestellt. • Thermostatknopf anders einstellen. | ermostatknopf anders einstellen. | |
| - Warmwasserleitung (zu) lang • Isoeder nicht isoliert. serleitung. | ||
| Zu weiß Wasser. - Thermostat zu hoch eingestellt. • Thermostatknopf anders einstellen. | werden Sie die Warmwas- mostatknopf anders einstellen. | |
| Zu weniger Wasser. | - Wasserdruck zu niedrig. | Prufen Sie, ob die Kaltwasser- hähne desselbe Problem haben. Wenden Sie sich an das Wasserwerk. |
| - Absperrhahn nicht gut geöffnet. | Öffnen Sie den Absperrhahn. | |
| Überlaufventil leckt ständig. | - Wasserleitungsdruck ist zu hoch. | Montieren Sie vor der Sicherheitsgruppe ein Reduzierventil. |
| - Überlaufventil schließt nicht gut. | Das Überlaufventil mehrmals bedienen. | |
| Das Gerät leckt. | - Wasserleitungen nicht gut andas Gerät angeschlossen oder Dichtung undicht oder Innenbehälter undicht. | Schalten Sie die Stromzufuhr zum Gerät aus. Schließen Sie den Absperrhahn. Öffnen Sie den Warmwasser- hahn, um den Druck im Gerät zu senken. Fangen Sie das Leckwasser auf. Informieren Sie ihren Installateur. |
| Aus dem Gerät sind Kochgeräusche hörbar. | - Kalkablagerung im Gerät. | Informieren Sie ihren Installeur. |
INSTALLATIONSANLEITUNG
7 Lagerung und Transport
Das Gerät muß immer in der Originalverpackung des Herstellers gelagert werden. Alle auf der Außenseite dieser Verpackung genannten Anweisungen müssen eingehalten werden. Der Lagerraum muß trocken und so eingerichtet sein, daß Beschädigungen an der Verpackung vermieden werden.
Zum Schutz des Gerätes muß beim Transport die Originalverpackung intakt bleiben. Stellen Sie den Karton so in das Transportfahrzeug, daß er sich nicht verschieben kann. Lassen Sie das Gerät so lange wie möglich in der Verpackung, bis Sie die Montagestelle erreicht haben.

Stellen Sie das Gerät niemals direkt auf den Boden. Lassen Sie das Gerät so lange wie möglich in dem Fußstuck der Verpackung stehen.
7.1 Inhalt der Verpackung
Die Verpackung enthalt die folgenden Teile:
- Warmwasserspeicher
- Wandbügel (im Polystyrol-Deckel der Verpackung
- Beutel mit Befestigungsmaterial
- Anleitung
7.2 Umweltfreundliche
Entsorgung der Verpackung
Zur Schonung der Umwelt sollenn Sie:
die Karton- und Polystyrol-Teile getrennt bei einer lokalen Sammelstelle abgeben, um eine Wiederverwertung zu ermögen.
die Bandagen und sonstigen Verpackungsreste mit dem normalen Abfall entsorgen.
8 Technische Angaben
Für die technischen Angaben diesen Warmwassergeräts verweisen wir Sie auf:
-das Typenschild (Abb.1)
- die Maßskizze (Abb. 6)
- die Graphik mit Aufheizteiten (Abb. 5). These Graphik zeigt die Aufheizzeit (hr) als Funktion des Volumens (L) und der Leistung (W) des Geräts. Die Aufheizzeit ist die Zeit, die das Gerät besteht, um den gesamten Inhalt von 15^ auf 88^ zu erwärmen.


Abb. 5 Aufheizteiten


Fig.6 Maßskizze
| Inhalt | 30 50 | 80 1 | 20 150 | L | ||
| Amin | 820 | 1005 | 1155 | 1455 | 1645 | mm |
| B | 535 | 725 | 865 | 1160 | 1330 | mm |
| C | 244 | 432 | 576 | 876 | 1066 | mm |
| Dmin | 130 | 130 | 130 | 130 | 130 | mm |
| E | 470 | 470 | 525 | 525 | 525 | mm |
| F | 430 | 430 | 485 | 485 | 485 | mm |
| G | 340 | 340 | 340 | 340 | 340 | mm |
| H | 367 | 555 | 705 | 1005 | 1195 | mm |
| I | 100 | 100 | 100 | 100 | 100 | mm |
| J | 60 | 60 | 60 | 60 | 60 | mm |
| * | 31 | 37 | 42 | 57 | 66 | W/h |
| ** | 16 | 21 | 28 | 39 | 50 | kg |
| *** | 46 | 71 | 108 | 159 | 200 | kg |
- Stilstandsverlust ** Gewicht leer *** Gewicht voll
9 Installationsvorbereitung
9.1 Örtliche Installationsvorschriften
Bitte halten Sie bei der Installation des Warmwasserspeichers die Installationsvorschriften des örtlichen E-Werks, des Wasserwerks u.a. ein.
9.2 Installationsbedingungen
Bestimmten Sie anhand der Geräteabmessungen (Abb. 5), wo das Gerät angebracht werden soll. Dabei sind die folgenden Punkte zu berücksichtigten:
Gerat, Sicherheitsgruppe, Wasser- und Abflüsseitungen befinden sich in einem frostfreien Raum;
Die Wand oder der Boden ist flach und kann das Gewicht des gefüllten Speichers,tragen;
-Rund um das Gerät ist ausreichend Platz fur Service- und Wartungsarbeiten.
9.3 Anschlußbedingungen
- Stromanschlüsse sind vorhanden oder konnen angelegt werden;
-Im Stromanschluß des Geräts muß ein allpoliger Schalter mit einem minimalen Kontaktabstand von 3 mm montiert werden. - Wasserleitungen sind vorhanden, oder können angelegt werden.
-Zwischen der Sicherheitsgruppe und dem Gerät wird niemals ein Absperrhahn angebracht. - Eine frostfreie Abflüsseitung ist vorhanden oder kann angelegt werden.
- Direkt hinter dem Überlaufventil kommt ein offener Trichter in die Abflüsseitung.
-Das Expansionswasser aus dem Entlastungs-ventil wird unter gleichmäßigem Gefalle zu einer Badewanne, einem Waschbecken oder in die Kanalisation abgeleitet.
9.4 Zu benutzende Zubehörteile (nicht mitgeliefert)
- Für die Wand geeignete Befestigungsmaterialien: drei Keilbolzen (M10) oder Schlüsselschrauben (10× 60mm)
- Eine Sicherheitsgruppe* mit einem Überlaufventil, wobei der Öffnungsdruck dem Betriebsdruck des Geräts entspricht oder niedriger und mindestens 100kPa (1 bar) hoher ist als der Wasserleitungsdruck.
-Ein Drosselventil*, wenn der Wasserleitungsdruck hoher ist als der Schließdruck des Überlaufventils. -
Ein mehrpoliger Schalter zur Montage im Stromanschluß.
-Ein Siphon, wenn die Abflüsseitung direkt an die Kanalisation angeschlossen wird. -
Ein Gerätesockel*, wenn das Gerät auf den Boden gestellt wird.
-Rohrisolationsmaterial zur Isolation der Warmwasserleitung. -
Zu bestellen bei Inventum bv
10 Installation
10.1 Montage des Geräts
- Befestigen Sie den Aufhängebügel mit drei Bolzen an der zuvor festgelegten Stelle.
- Durch Drehen der Kunststoffscheiben kann der Wandbügel horizontal und vertical verstellen werden.
- Drehen Sie die Stellschrauben in den Stützbügel.
Hängen Sie das Gerät an den Wandbügel. - Richten Sie das Gerät mit Hilfe der Stellschrauben vertikal ein.
10.2 Anschlüsse an die Wasserleitung

Benutzen Sie bei der Montage von Überwurfmuttern und Klemmkupp-lungen immer 2 Gabelschlüssel, um zu verhindern, daß Leitungen und Armatau ren verbogen oder verdrecht werden.
Vor dem Anschluß sind alle Leitungen, die an das Gerät angeschlossen werden, gut durchzuspälen (vor allem wichtig bei Neubauten).
- Schlieben Sie den Haupthahn der Wasserleitung.
- Montieren Sie die Sicherheitsgruppe am Kaltwasseranschluß des Geräts.
- Schließen Sie den Absperrhahn der Sicherheitsgruppe.
- Montieren Sie ein Drosselventil stromaufwärts zur Sicherheitsgruppe wenn der Wasserleitungsdruck hoher als der Schließdruck der Sicherheitsgruppe ist.
- Verbinden Sie die Kaltwasserleitung mit der Sicherheitsgruppe oder dem Drosselventil und die Warmwasserleitung mit dem Warmwasseranschluß unter am Gerät. Benutzen Sie zu diesen Zweck die mitgelieferten Klemmringe mit Überwurfmattern.
10.3 Anschluß der Abflüsseitung
- Montieren Sie direkt hinter dem Überlaufventil einen offenen Trichter in der Abflüsseitung.
- Montieren Sie ein Siphon an der Abflüsseitung, wenn diese direkt an die Kanalisation angeschlossen wird.
10.4 Gerät füllen
- Offnen Sie den Warmwasserhahn.
- Offnen Sie den Absperrhahn der Sicherheitsgruppe
- Offnen Sie den Haupthahn der Wasserleitung.
- Lassen Sie den Warmwasserspeicher gut durchlaufen.
- Entfernen Sie die Abdeckung und kontrollieren Sie die Installation auf undichte Stellen.
- Isolieren Sie die Warmwasserleitung.
10.5 Elektroanschluss

Der Warmwasserspeicher muß ganz mit Wasser gefüllt sein und die Anlage muß leckfrei sein, bevor das Gerät an die Stromzufuhr angeschlossen wird.
- Schalten Sie den Strom im Zählerschrank aus, so daß der Anschluß spanningslos erfolgen kann.
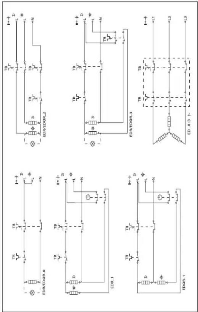
Schlieben Sie das Gerät gemäß dem richtigen Anschlußschema an (Abb. 7). - Montieren Sie die Abdeckung mit dem Dichtungsprofil.


Abb. 7 Elektrische Anschlußschemas
TR = Temperaturregler
TB = Temperaturbegrenzer
L ⑦ PhaseNachtstromanschluB
LPhase Normaltarifstromanschluß
N = Nullanschluß
L1-L2-L3=3-Phasenanschluß
11 In Betriebnehmen/ außer Betrieb setzen
11.1 In Betriebnehmen
- Kontrollieren Sie, ob das Gerät ganz mit Wasser gefüllt und dicht ist.
Schalten Sie die Stromzufahr zum Gerät ein.

Nachdem der Warmwasserspeicher installiert und mit Wasser gefüllt wurde, muß er innerhalb von drei Monaten in Betrieb genommen werden, um ein gutes Funktionieren gewährleisten zu können.
11.2 Funktionsprüfung
Nach der Inbetriebnahme des Gerats sind die folgenden Punkte zu überprüfen:
Das Tropfen von Expansionswasser aus dem Überlaufventil oder dem drucklosen Mischhahn. Dies ist notwendig, um zu hohen Druck im Gerät beim Aufwärmen zu verhindern;
Die gesamte Anlage auf undichte Stellen überprüfen, auch 30 Minuten nach der Inbetriebnahme.
11.3 Außer Betrieb setzen
Schalten Sie die Stromzufahr zum Gerät aus. Der Haupthahn der Wasserleitung kann geöffnet bleiben.
11.4 Speicher leeren
- Schalten Sie die Stromzufuhr zum Gerät aus.
- Lassen Sie aus einem Warmwasserhahn mehrere Liter Wasser laufen.
- Schließen Sie den Haupthahn der Wasserleitung.
- Schlieben Sie den Absperrhahn der Sicherheitsgruppe.
- Offnen Sie einen Warmwasserhahn und schreiben Sieihn wieder, wenn kein Warmwasser mehr ausströmt.
- Treffen Sie die notigen Maßnahmen, um eventuelles Leckwasser aufzufangen.
- Schrauben Sie die Sicherheitsgruppe vom Speicher ab.
- Schlieben Sie einen Entleerungsschlauch an den Kaltwasseranschluss des Geräts an und legen Sie das Schlauchende an eine Stelle, wo das Wasser gut abflieben kann.
- Offnen Sie einen Warmwasserhahn oder losen Sie die Überwurfmutter des Warmwasseranschusses.
Geinstalleerd door:
Installé par:
Installiert durch:
Inventum by
Postbus 4
3720 AA Bilthoven
EinfachAnleitung