TH 3030 - 凉棚 HABRITA - 免费用户手册
免费查找设备手册 TH 3030 HABRITA PDF格式.
下载您的设备说明 凉棚 免费PDF格式!查找您的手册 TH 3030 - HABRITA 并重新掌握您的电子设备。本页发布了使用您的设备所需的所有文档。 TH 3030 品牌 HABRITA.
用户手册 TH 3030 HABRITA
| NOTICE DE MONTAGE de la pergola THONON p2 / 8 Référence TH 3030 | |||||||
| Vérifier que vous avez bien toutes les pièces avant d'effectuer le montage | Demande sav | ||||||
| Réf. | Qté. | Dessin pièce | Dimensions (en mm) | Observation | Qté. | ||
| 1 | 4 | 40 | 70 | 2235 | |||
| 2 | 4 | 40 | 70 | 2310 | |||
| 3 | 2 | 40 | 70 | 3000 | |||
| 4 | 5 | 40 | 70 | 2962 | |||
| 5 | 8 | 40 | 70 | 650 | |||
| q1 | 68 | ∅6 | 70 | ||||
| q2 | 10 | ∅5 | 80 | ||||
| A compléter impératifement pour toute demande SAV et à envoyer par mail à sav@foresta.fr + photo des pieces abîmées | |||||||
| Colis n°: | TH 3030 Colis n°: | NOM DU MAGASIN (ou l'auvent a été acheté) | |||||
| NOM DU CLIENT | |||||||
| PRENOM DU CLIENT | |||||||
| N° de téléphone | |||||||
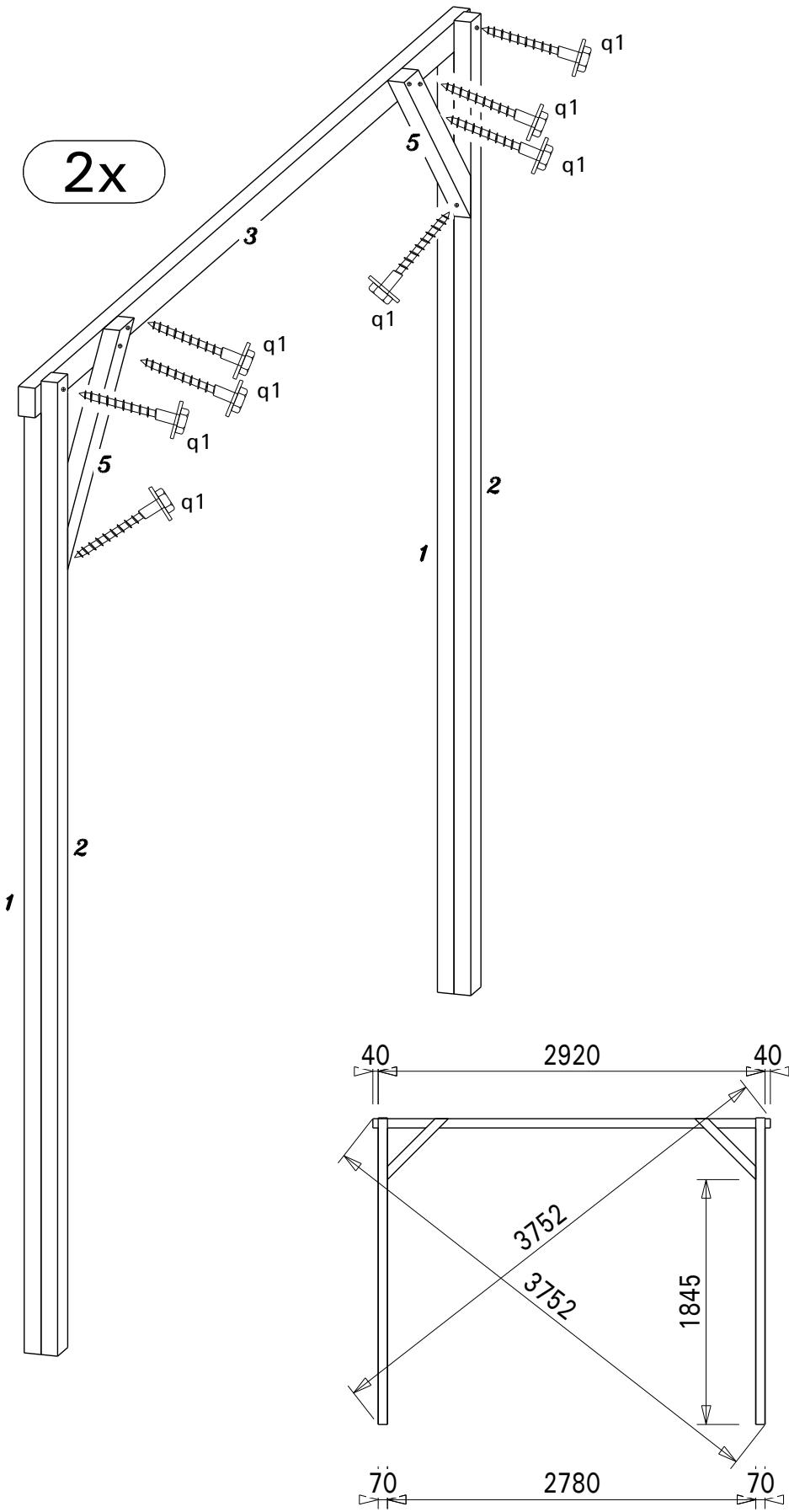
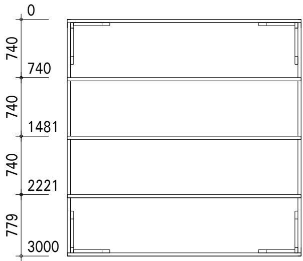
Dimensions en mm

Emplacement des poteaux
4x
q1
q1
q1
q1
q1


| Réf. | Qté. | Dimensions (mm) | ||
| 1 | 4 | 40 | 70 | 2235 |
| 2 | 4 | 40 | 70 | 2310 |
| q1 | 40 | ∅6 | 70 | |
NOTICE DE MONTAGE de la pergola THONON p5 / 8
Référence TH 3030
pergola THONON p5 / 8
NOTICE DE MONTA RÉFERENCE TH 3030

FORESTANOVA

03 mm

Dimensions en mm


| Réf. | Qtê. | Dimensions (mm) | ||
| 3 | 2 | 40 | 70 | 3000 |
| 5 | 4 | 40 | 70 | 650 |
| Réf. | Qtré. | Dimensions (mm) | ||
| q1 | 16 | Ø6 | 70 | |
Dimensions en mm



| Réf. | Qtê. | Dimensions (mm) | ||
| 4 | 2 | 40 | 70 | 2962 |
| 5 | 4 | 40 | 70 | 650 |
| q1 | 12 | ø6 | 70 | |
| q2 | 4 | ø5 | 80 | |

Dimensions en mm




| Réf. | Qtê. | Dimensions (mm) | ||
| 4 | 3 | 40 | 70 | 2962 |
| q2 | 6 | ø5 | 80 | |


简易说明书