HVG74WC5B - Sporák HOOVER - Bezplatný návod na obsluhu
Nájdite návod k zariadeniu zdarma HVG74WC5B HOOVER vo formáte PDF.
Stiahnite si návod pre váš Sporák vo formáte PDF zadarmo! Nájdite svoj návod HVG74WC5B - HOOVER a vezmite svoje elektronické zariadenie späť do rúk. Na tejto stránke sú zverejnené všetky dokumenty potrebné na používanie vášho zariadenia. HVG74WC5B značky HOOVER.
NÁVOD NA OBSLUHU HVG74WC5B HOOVER
Veskerá prace se musí provadét s odpojeným prívodem elektriny.
Deti vo veku do 8 rokov sa nesmú zdržiavat v blízkosti spotrebica, ak nie su pod neustálym dohladom.
VAROVANIE: používajte iba ochranné kryty
varnych dosiek navrhnuté vyrobcom kuchynského
spotrebica alebo uvedené vyrobcom spotrebica
v navode na použitie ako vchodné alebo ochranné
kryty varnej dosky zabadované do spotrebica.
Použitie nevhodných ochrannych krytov moze spôsobit'nehodu.
VAROVANIE: varenie s tukom alebo olejom na varnej doske bez doh'adu moze byt' nebezpecné a moze sposobit poziar.
Požiar sa NIKDY nepokúšajte hasit' vodou. Spotrebič majpriv vypnite a plamen zakryte napr.Pokrievkou alebo hasiacou prikrývkou.
VAROVANIE: nebezpečenstvo požiaru: na povrch varnej dosky neodkladajteŽiadne predmety.
VAROVANIE: ak je povrch popraskany, nedotykajte sa skla a spotrebic vypnite, aby sa yvlucilo riziko zasahu elektrickym prudom.
Deti starsie než 8 rokov a osoby s obmedzenými fyzickými, zmyslovými alebo duševnými schopnostami alebo nedostatkom skúsenosti Či vedomostí možuarto pristroj používat pod dohladom, pripadne po poučeni a oboznámé sa s bezpečnám spôsobom používania a ak porozumeli možnám nebezpečenstvám. Deti by malbyt pod dozoram, aby ste sa ubezpečili, Že sa nahrajú so spotrebicom. Čistenie a udrzbu nesmú vykonávat deti bez dozoru.
UPOZORNENIE: na priapravu jegla vzdy dohliadajte. Na kratkodoby postup varenia je potrebne dohliadat nepretrzite.
Dórazne vám odporúçame, aby ste det'om nedovolili príblížit sa do blízkosti varn'ych zón poças prevádžky alebo po ich vypnuti, kym svieti indicatorzvyškového tepla. Predidete tak riziku vázneho popálenia.
Tento spotrebic nie je urceny na ovladanie externym casovačom ani samostatnýd dialkovým ovladanim. Ak je k dispozicii halogenová ziarovka varnej dosky, nepozeraje sa na nu priamo.
Zástrčku pripojte k napajciemu káblu, ktorý dokáze uniestnapatie, prud a zataženie uvedené na stitku, a ktorý má uzemnovaci kontakt. Zásuvka musi byt vchodná pre zataž uvedenu na stitku a musí mat zapojeny a funkčné uzemnovaci kontakt. Uzemnovaci vodicné zltó-zelenú farbu. Tuto Činnostné mye vykonávat iba odborník svchodnou kvalifikaciou. V pripaděnekompatability medzi zásuvkou a zástrčkou spotrebica požiadajte kvalifikovaného elektrikárá, aby zásuvku vymenil za iný vchodný typ.
Zástrčka a zásuvka musia zodpovedat' platnám normám krajiny instalácie. Pripojenie k zdroju energie sa dá tiež vytvorit umiestnením omnipolarného istica medzi spotrebic a zdroj energie, ktorý znesie maximálne pripojené zaťazenie, a ktorý je v sulade s platnými právnymi predpismi.
Zlto-zeleny uzemnovaci kabel nesmie byt preruseny isticom. Zasuvka alebo omnipolarny istic pouzite na pripojenie musia byt po instalacii spotrebica lahko pristupné.
Odojenie sa moze dosiahnut spristupenim zastroky alebo zaclenenim spinaca do pevneho zapojenia v sulade s pravidlami zapojenia.
Ak je poskodeny vonkajsi napajci kabel, v zaujme eliminacia akehokolvek rizika ho musi vymenit vyrobca, jeho servisny zastupca alebo rovnako kvalifikovaná osoba. Uzemnovaci vodič (žlto-zelený) musi byt' na strane svorkovnice dlhši než 10 mm. Cast's vnutornymi vodičmi by mala zodpovedat príkonu varnej dosky (vyznacenému na stitku). Typ napajacieho kábla musi byt' H05 V2V2-F pre 60-75cm varné dosky (rozlozenie L1 a L2) a H05 GG-F pre 75cm varné dosky (rozlozenie L3).
Na varnú dosku neklad'te kovóve predmety,
ako su noze, vidlicky, lyžice aleboPokrievky.
Mohli sa zahriat'.
Na ohrievacie zony nesmiete klast' albal ani plastové panvice.
Po každom použiti treba varnú dosku vycistit, aby sa zabránilo hromadeniu nečistot a mastnoty. Ak nečistoty necháte na doske, pri opatovnom použiti dosky sa začné zvyšky pripalovat, dymit' a vydavat neprijemny zapach, nehoviorac o rizikách širenia požiaru. Na cistemie spotrebica nikdy nepoužívajte paru ani spotrebic posobiaci prudom vody pod tlakom.
Poças prevalzky alebo chvilu po pouzitii sa nedotykajte tepelnych zon.
Jedlo nikdy nepripravujte priamo na sklokeramickej doske.
Vždy použivajte vchodný riad. Panvicu vždy umiestnite do stredu Jednotky, na ktorj varîte. Na ovladaci panel nic neukladajte.
Varnú dosku nepoužívajte ako pracovné povrch.
Povrch nepoužívajte akodosku na krájanie.
Nad varnú dosku neukladajte t'ázke predmety.
Ak by spadli na varnú dosku, mohli by ju poskodit.
Varnú dosku nepoužívajte na skladovanie ziadnyc predmetov.
Riad po varnej doske neposuvajte.
Na prevádzku spotrebica pri menovitych frekvenciach nie su potrebné ziadne d'alsie cinnosti/nastavenia.
V prípade Rozbitia skla varnej dosky:
Okamžite vypnite vsetky horáky a elektrické vykurovacie teleso a odpojte spotrebič od zdroja napajania.
Nedotykajte sa povrchu spotrebica.
Spotrebi nepouzivaje.
1. POKNY PRE INSTALATÉRA
INSTALACIA DOMACEHO SPOTREBICA MOZE BYT KOMPLIKOVANA. AK SA NEVYKONA SPRAVNE,MOZE VAZNE OHROZIT BEZPECNOST SPOTREBITELA. PRAVE PRETO BY TUTO ULOHU MALA VYKONAT ODBORNE SPOSOBILAO SOBAKTORA JU VYKONAVSULADE S PLATNYMI TECHNICKYMI PREDPISMI. AK BUDE TOTO ODPORUCANIE IGNOROVANE, A INSTALACIU VYKONAKEKNVALIFIKOVANOsoBA, VYROBCA ODMITA AKUKOLVEK ZODPOVEDNOST ZA TECHNICKU PORUCHU VYROBKU BEZ OHLADU NA TO, CI DOSLO K JEHO POSKODENIU ALEBO ZRANENIU OSOB.
1.1 ZABUDOVANIE
Varna doska sa moze nainstaloval't do alejkolvek pracovnej dosky, ktora je odolna voci teplate 100^ a ma hrubku 25 - 45 mm. Rozmery otvoru na zabadovanie, ktory treba vyrezat v pracovnej doske, su uvedené na obrazku 2.
Ak je medzi zabadovanou varnou doskou a skrinkou pod nou vofny priestor, treba medzi ne vlozit priečku z izolačného materialu (drevo alebo podobny materiali) (obraz 2).
Ak je varná doska upevně medzi skrinkami, vzdialenost medzi varnou doskou a stenou skinky musi byt' aspon 17 cm (60 cm) alebo 25 cm (75 cm) (pozri obrázok 2), zatial' co vzdialenost medzi varnou doskou a zadnou stenou musi byt' aspon 70 mm.
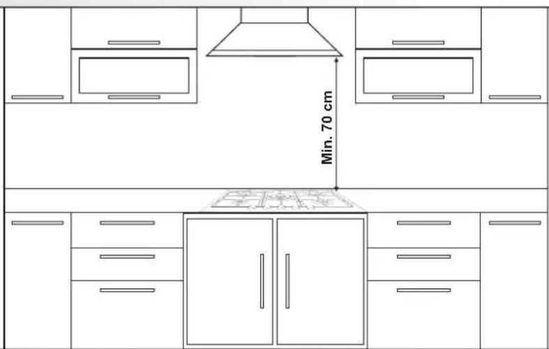
Vzdialenost medzi varnou doskou a akoukolvek inou jegnotkou alebo spotrebiom nad nou (napr. odsavoacom par) nesmie byt mensia nez 70 cm (obrazok 4).
Kovove predymy v zasuvke mozu dosiahnut' vysoke teploty v dosledku recirculatie vzduchu. Preto sa odporuca pouizt medzivrstvu z dreva.
Dolezite - Schema na obrazku 1 ukazuje, ako sa ma aplikovat tmel. Varna doska sa montuje pripojenim dodanjch upevnovacich svoriek vyuzitim otvorov na zakladni Jednotky.
Ak je nad zabudovanou rúrou namontována 60 cm alebo 75 cm varná doska, musi byt chladena ventilatórom.
1.2 VHODNÁ POLOHA
Tento spotrebič musí byt nainstalovaný v sulade s platnymi predpismi a použivaný iba v dobre vetranom priestre. Pred instalaciou alebo použivaním tohto spotrebiča si prečitajtePokyny.
Plynovy kuchynsky spotrebič produktu teplo a vlhkest v oblasti, v ktorej je instalovaný. Z tohto dovodu musite zabezpečit dobru ventiláciu bud otvorením větkych prirodzenych vžduchovych priechodov, alebo namontovanim odsávača pár s odvodom spalin. Intenzívne a dlhodobé použivanie spotrebiča moze vyžadovat dodatočnú ventiláciu, napřklad otvoretenie okna alebo zvyšenie rychlosti elektrického ventilátora, ak ho mate.
Ak nie je możné namontovat digestor, na vonkajśiu stenu alebo okno by ste mali namontovat elektricky ventilator, ktory zabezpeci dostatochnu ventiláciu.
Elektricky ventilator by mal byt schopny vykonat kompletnu vymenu vzduchu v kuchyni 3 až 5-krát každu hodinu. Instalater musi dodrziavat prisluşné vnúrostátne normy.
2. ELEKTRICKÉ PRIPOJENIE (LEN PRE VEL'KU BRITÁNIU)
Varovanie - tento spotrebic musi byt'uzemneny
Tento spotrebic je urceniy iba na pouzitie v domacnosti. Pripojenie k elektrickej sieti musi vykonat kompetentny elektrikar, ktoy zabezpeci, aby boli dorzane vsetky platne predpisy tykajuce sa takychto zariadeni.
Spotrebić sa moze pripojit len k vchodne dimenzovanej zasuvke, 3-kolikova 13 amperova zastrčka/zasuvka nie je vchodná. Musi byt k dispozifici dvojitý spinač a obvod musi mat vchodné ochranu poistiek. Dalsie podrobnosti o poziadavkach na napajanie jegnotlivych vyrobkov najdete vPokynoch pre použivatelá a na stitku spotrebiča s udajmi o vykone. Ak mate zabadovaný vyrobok, odporúcame, aby ste v pripadé, ze chcete použit dlhí ako dodávaný kabel, použili vchodne dimenzovaný tepelne odolný typ.
Elektroinstalácia musi byt' pripojéná k sietovému napájaniu nasledovne: PRIPOJIT KU KONCOVKE SIETE
Zeleno-žltý vodic
Modrý vodič
Uzemnenie
Neutrally vodic
Hnedy vodič
Pripojenie pod napatim
Poznámka: Nepodporujeme použivanie zariadien na zvodovej zemi s elektrickymi varmymi spotrebičmi nainstalovanými zapojenim do siete, pretoze by sa mohli vyskytoval neprijemné „kopnutia“ zvodovým prudom. Znovu pripomíname, ze spotrebič musí byt' správné uzemněv. Vyrobca odmieta akúkofvek zodpovednost za akúkofvek udalost', ktorá nastane v dosledku nesprávné elektrickej instalacie.
2.1 ELEKTRICKÉ PRIPOJENIE
- Skontrolujte udaje na typovom stitku umiestnomen na vonkajsej strane jednotky, aby ste sa uistili, ze napajacie a vstrupné napatie su vchodné.
- Pred pripojenim skontrolujte uzemnovaci systém.
Tento spotrebič musi byt zo zákona uzemnený. Ak toto nariadenie nebude dodržané, vyrobca nebude zodpovedný za ziadne skody spösobene osobám alebo na majétku. Ak zastrčka este nie je pripojena, namontujte zastrčku zodpovedajúcu zaženiu uvedenému na typovom stitku. Uzemnovaci vodic je Žlo-zelený. Zastrčka by mala byt vždy pristupna. Ak je varná doska zapojena do elektrickej siete priamo, musi byt nainstalovaný istorc.
Ak je napájaci kabel poskodeny, musi ho vymenit' kvalifikovany technik, aby sa predislo akémukolvek moznému riziku.
Uzemovaci vodic (zeleno-ztly) musi byt aspon o 10 mm dlhsi ako vodic pod napatim a neutraly vodic.
Ak spotrebic nie je vybaveny napajacim kablom a zastrckou alebo inymi prostriedkami na opojenie od elektrickej siete s oddelenim kontaktu vo vsetkych poloch, ktoré zabezpečuju upné opojenie za podmienok prepátia kategorie III, vPokynoch sa musi uviest, ze prostriedky na opojenie musia byt zacleneno do pevného vedenia v sulade s pravidlami zapojenia.
2.2 PRIPOJENIE PLYNU
TietoPokyny su urcenepre kvalifikovany personal,instalacia zariadenia musi byt v sulade s prislu-snou vnutrostatnou normou. (Len pre Vel'kubritaniu: podla zakona musi plynovu instalaciu/ucedeniod prevadzky vykonat'instalater,Gas Safe")
Vsetky prace sa musia vykonavat's odpojenym elektrickym napajanim. Typovy stlitok na varnej doske zobrazije typ plynu, s ktorym je urcená na pouzitie. Pripojenie k hlavnemu privodu plynu alebo plynovej tlkovej flasi sa moze vykonat až po kontrole, ā je spotrebic regulovaný pre typ plynu, ktorý sa bude dodávát. Ak nie je spotrebic správné regulovaný, postupujte pod'laPokynov v nasledujúcích odsekoch azměnte nastavenie plynu.
Pre kvapalny plyn (plyn z tlakovej flase) pouzivajte regula taki, ktoré splñaju prisluşné vnutrostatne normy.
Používajte len rúry, podložky a tesniace podložky, ktoré spiñajú prislušnévnútrostátne normy.
U niektorych modelov sa dodava kuzeLOve pripojenie na instalaciu v krajinach, kde je tento typ okazu povnny; na obrazku 8 je uvedenene, aka rozpoznat Rozne typy prepojeni (CY = valcovite, CO = kuzeLOve). V kaZdom pripade musi byt'valcovita ccast'clanku pripojena k varnej doske.
Pri pripajani varnej dosky k privodu plynu pomocou flexibilnych hadic sa uistite, ze maximalna vzdialenost' hadice nepresiahne 2 metre.
Ohybná rurka musi byt' namontovaná tak, aby sa nemohla dostat do kontaktu s pohyblivou Čast'ou krytu (napr. zásuvkou) a neprechodzala ziadnym priestorom, v ktorom by sa mohla pomliaždit/ zalomit alebo akymkofvek sposobom poskodit'.
Aby ste zabrani moznemu poskodeniu varnej dosky, vykonajte instalaciu podla nasledujuceho postupu (obrozok 6):
1) Diely montujte postupne ako je znázornene:
A: 1/2 Valcovity zástrčkový adaptor
B:1/2 Tesnenie
C: 1/2 Zásuvkové plynové adaptor kužel-caleb alebo valec-calec
2) Spoje utiahnite k'ucom; nezabudnite otocit' rurky do predpisanej polohy.
3) Pripojte spojku C k rozvodu plynu, pouzite neohybnu medenururku alebo ohybnu ocelovu rurku.
DOLEZITE: vykonajte konečnu kontrolu netesností na potrubnych spojoch pomocou mydlového roztoku. NIKDY NEPOUŽIVAJTE PLAMEN. Tiež sa uistè, ze ohbyně potrubie nemože príst' do kontaktu s pohyblivou ľast'u skrinky (napr. so zásuvkou) a ze ne je umiestné tam, kde by sa mohlo poškodit'.
Varovanie: Ak v blizkosti toto spotrebica cfitte plyn, vypnite privod plynu do spotrebica a kontaktujte priamo technika. Ünik nehladajte otvorenym plameñom.
2.3 PRISPOSOBENIE VARNEJ DOSKY ROZNYM DRUHOM PLYNU
Pri uprave varnej dosky na pouzitie s roznymi druhmi plynov postupujte podla nasledujucichPokynov:
- Odstrante mriežky a horáky
Vlozte na sesthranny kIuc (7 mm) do drziaka horaka (obrazok 7) - Odskrutkujte vstrekovač a vyměnte ho za vstrekovač vchodný pre použivaný plyn (pozrite tabulku s typmi plynov)
2.4 REGULOVANIE NA MINIMÁLNY PLAMEN
Po zapaleni horakov otocte ovladaci gombk na minimalu hodnotu a potom gombik vyberte (da sa l'ahko odstranit jemnym tlakom).
Pomocou malého skrutkovača na „koncovy“ sa da regulačná skrutka staváť podla obrázku 9. Žácaním skrutky v smere hodinovych ruciciek sa znižuje prietok plynu a otacanim proti smeru hodinovych ruciciek sa zvyšuje prietok. Toto nastavenie pouzije na ziskanie plameña s džkou príblíne 3 až 4 mm a potomznovu nasadte ovládacj gombík.
Ak je k dispozicii privod skvapalneneho LPG plynu - skrutku na nastavenie plameña musite otočit (v smere hodinovych ručiciek) až na doraz.
Po vykonani novej regulacie plynu vymente stary stitok s oznacenim plynu na vaśom spotrebicza stitok (dodávaný s varnou doskou) vchodný pre typ plynu, pre ktorý bol regulovaný.
3. POUZIVANIE VARNEJ DOSKY - NÁVOD NAPOUŽITIE
Tento spotrebič sa moze používat' iba na učel, na ktorý je určeny, a to je domáce varenie a akékofvek iné použitie bude povázované za nevhodné a preto moze byt' nebezpečné. Vyrobca nepreberá zodpovednost' za ziadne skody alebo straty v dősledku nesprávneho použītia.
Ak používate liatinové mriežky - pod mriežkou je uvedená jej poloha.
Uistite sa, ze správn mriežka je použitá v nesprávnjej polohe.



Pred zapnutim plynovej varnej dosky sa uistite, cisukrytky horakov spravne umiestnene vo svojej polohe. Tato varna doska je vybavena elektronickym zapafovanim horaka.
Horaky sa zapafuju nasledovne:
Zatlache ovladac a otocte proti smeru hodinovych ruciciek k symbolu vacsieho plamaa alebo do polohy 10 a drzte stlaceny este 5 sekund po zapaleni. Zapalovaci system bude nadalej vytvarat iskry, kym bude stlaceny ovladaci gombik.
Varovanie: Ak na spotrebici nie je elektrina na zapalenie horaka, mala by sa pouzit zapalka alebo zapalovač, pričom je potrebné vykonat nasledujúce kroky:
- Umiestnite zapalenu zapalku alebo zapafovač do blizkosti horaka
Zatlacte a otocte gombik proti smeru hodinovych ruiciek k symbolu vaccieho plamaea Aalebo do polohy 10 a drzte stlaeny este 5 sekund po zapaleni. Varovanie: V kaizdom priade, ak sa po 5 sekundach horak nezapali, preruste cinnost a pockajte najmenej 1 minutu a a potom saPokuste o dalsie zapalenie horaka.
OVLADANIE GOMBIKOV
Kazdy gombik ovlada jeder horak, aka je znazornene graficky.
Gombíky majú 10 urovní, od najnilnejšieho plameña po najslabsí plameñ. Nikdy sa nepokušajte prepínat' z 0 na 1 (v smere hodinovych ruciciek)

Ukazovatele
Ak po rokoch plynové kohútky stuhnu a budu sa dat 'tažko otáčaf, musite ich namazat'.
Tuto cinnost' mozu vykonavat' iba kvalifikovani servisni technici.
Pred Čistenim varnej dosky sa uistite, Že spotrebic vychladol. Vythiñnite zástrčku zo zásuvky alebo (ak je pripojená priamo) vypnite elektrické napájanie.
Cistenie a udrzbu nesmu vykonavat deti bez dozoru.
Nikdy nepouzivajte abrazivne prostriedky, korozivne cistiance prostriedky, bieliace prostriedky ani kyseliny. Nedovol'te, aby na smaltované a lakované casti alebo casti z nehrdzavejucej ocele posobili akekol'vek kyseliny alebo zasadite latky (citron, st'ava, ocot atf.).
Pri Čistení smaltovaných, lakovaných alebo chromovaných Časti použite teplú mydlovú vodu alebo neagresivny Čistiaci prostriedok. Na nehrdzevjuću ocel použite vchodné Čistiaci roztok.
Horaky mozte cistit vodou so saponatom. Na obnovenie povodneho lesku pouzite cistiaci prostriedok na nehrdzavejucu ocel' pre domacnost'. Po yvciisten ho ryky osuste a vratte spat' na miesto.
Je dôlezité, aby ste horaky vràtili spàt' na miesto správné.
Pochromovane mriezkya a horaky
Pochromované mriežky a horaky majú pri používaní tendenciu k zmene farby. Neohroží to však funkčnost'varnej dosky.
V pripe de potreby mozte o nahradne diely poziadat v nasom popredajnom servisnom centre.
5. NÁSLEDNÁ STAROSTLIVOST
Toto zariadenie je označene v sulade s europskou smernicou 2012/19/EU o elektrických a elektronickýc zariadieniach (OEEZ - odpad z elektrických a elektronických zariadienl). OEEZ obsahuje znečistujuce látky (ktoré možu mat negativny vplyv na zivotné prostredie) a základné prvyk (ktoré sa daj opatovne použit). Je dōlezité, aby sa OEEZ likvidov správné použitim špecifikych postupov s ciefom zaistí správné odstránenie a likvidáciu věstkých znečistujúcích látok, ako aj obnovenie ostatné materialov.
Jednotlivci prispievaju vyraznou mierou k minimalizáci vplyvov OEEZ naŽivotné prostredie. Bezpodmienečne treba dodržiavat urcité základné pravidlá:
-
OEEZ sa nesmie spracovávat' ako bežný domáci odpad;
-
OEEZ treba odovzávat na príslušnych zbernych miestach, ktoré su riadene prislušnou samosprávnou obcou alebo registroványmi spolocnost'am.
V mnohych krajinach je k disposicii domaci zber velkych zariadeni spadajucich do kategorie OEEZ. V priade zakupenia noveho spotrebica mozete vritat starly spotrebi maloobchodnemu predajcovi, ktory musi zabezpecit jeho beplatzny odvoz, pokial ide o spotrebi rovnakeho typu a disponjuceho rovnakymi funkciami ako zakupene zariaidenie.
OCHRANA ZIVOTNEHO PROSTREDA
Pokial je to mozné, pouzite na zakrytie panvice veko. Plamen regulujte tak, aby nepresahoval priemer panvice.
Označením tohto produktu značkou potvrdruzjeme zhodu so věstkými prislužnými europskymi bezpečnostnými, zdravotnými a ekologickými požiadavkami, ktoré platia v rámci právnych predispov pre tento produkt.
Tabulka 1
| Plata ha ráka | 4 plyn - L1 - Diamond | 5 plyn-L2 - CENTRAL WOK | 5 plyn - L3 - 4+1 |
| Horák | AUX/SR/2R | AUX/SR/2R/DC | AUX/2SR/R/DC |
| Typ | PVUH60MF | PVUH75MF | PVUH75MF |
| FFD | ÁNO | ÁNO | ÁNO |
| AUX 1KW | 1 | 1 | 1 |
| SR 1,75 kW | 1 | 1 | 2 |
| R 2,7 kW | 2 | 2 | 1 |
| DC 4,5 kW Mono | - | 1 | 1 |
| Nominálny tepelný príkon | 8,15 kW | 12,65 kW | 11,70 kW |
| G20/20 mbar | 776 l/h | 1205 l/h | 1115 l/h |
| G30/28-30 mbar | 592 g/h | 919 g/h | 850 g/h |
| Inštalačná trieda | 3 | 3 | 3 |
| Napatie V/frekvencía Hz | 220-240 V 50/60 Hz | 220-240 V 50/60 Hz | 220-240 V 50/60 Hz |
| Elektrický príkon | 1 | 1 | 1 |
| Elektrické zapařovanie | ÁNO | ÁNO | ÁNO |
| Rozmer výrobku | 595x505x42 | 745x505x42 | 745x505x42 |
Tento spotrebic bol navrhnuty na neprofessionale pouzitie, teda iba na pouzitie v domacnosti.



Figure 3


Figure 4



Figure 5






GAS TYPE HOBS
|  | GasType | G20 | G20 | G25.1 | G25.3 | G30/G31 | G30/G31 | G30/G31 | |
| GasPressure | 20 mbar | 25 mbar | 25 mbar | 25 mbar | 28-30 mbar | 37 mbar | 50 mbar | ||
| Burners | Max(kW) | Min(kW) | Injector NG Max - Min | Injector NG Max - Min | Injector NG Max - Min | Injector NG Max - Min | Injector LPG Max - Min | Injector LPG Max - Min | Injector LPG Max - Min |
| AUX | 1 | 0,3 | 72X (1kW-0,3kW) | 70X (1kW-0,3kW) | 74F1 (1kW-0,3kW) | 72F1 (1kW-0,3kW) | 50 (73g/h-22g/h) | 46 (73g/h-25g/h) | 46H2 (73g/h-29g/h) |
| SR | 1,75 | 0,5 | 97Z (1,75kW-0,5kW) | 91Z (1,75kW-0,5kW) | 98Y (1,75kW-0,5kW) | 102F3 (1,75kW-0,5kW) | 65 (127g/h-36g/h) | 61 (127g/h-40g/h) | 58M (127g/h-44g/h) |
| R | 2,7 | 0,8 | 112Y (2,7kW-0,8kW) | 110F3 (2,7kW-0,8kW) | 120F2 (2,7kW-0,8kW) | 115F2 (2,7kW-0,8kW) | 83 (196g/h-58g/h) | 78 (196g/h-62g/h) | 73S (196g/h-69g/h) |
| DC4,5kWMONO | 4,5 | 2,4 | 155H3 (4,5kW-2,4kW) | 150H3 (4,5kW-2,4kW) | 157F3 (4,5kW-2,4kW) | 150F3 (4,5kW-2,4kW) | 107 (327g/h-167g/h) | 100 (327g/h-175g/h) | 95type6 (327g/h-189g/h) |
| GasCategories | I12E+3+ | I12H3+ | I12H3B/P |
| G20/G2520/25mbar2E+ | G2020mbar2H | G2020mbar2H | |
| G30/G31 28-30/37mbar 3+ | G30/G31 28-30/37mbar 3+ | G30/G31 30/30mbar 3B/P | |
| Countries | BE,FR | CY,CZ,GB,GR,IE,I,T,PT,SI,ES,TR,CH | BG,HR,DK,EE,FI,LV,LT,NO,RO,SK,SE,CZ,SI,TR |
| GasCategories | II2H3B/P | II2EK3B/P | II2HS3B/P | II2E3B/P | II2E3B/P |
| G20 20mbar 2H | G20 20mbar 2E | G20 20mbar 2H | G20 20mbar 2E | G20 20mbar 2E | |
| G30/G3150/50mbar3B/P | G25.325mbar2K | G25.125mbar2S | G30/G3137/37mbar3B/P | G30/G3150/50mbar3B/P | |
| G30/G3130/30mbar3B/P | G30/G3130/30mbar3B/P | ||||
| Countries | AT,CH | NL | HU | PL | DE |
Notice-Facile