The Wall SW80 HSW8U1B - Chauffage HARVIA - Notice d'utilisation et mode d'emploi gratuit
Retrouvez gratuitement la notice de l'appareil The Wall SW80 HSW8U1B HARVIA au format PDF.
| Caractéristiques techniques | Chauffage électrique pour sauna, puissance 8 kW, adapté pour des saunas jusqu'à 12 m³. |
|---|---|
| Dimensions | Dimensions compactes, idéal pour une installation murale. |
| Utilisation | Conçu pour un usage domestique, facile à installer et à utiliser. |
| Maintenance | Entretien minimal requis, nettoyage régulier des surfaces extérieures recommandé. |
| Sécurité | Équipé de dispositifs de sécurité pour éviter la surchauffe. |
| Informations générales | Garantie de 2 ans, conforme aux normes de sécurité en vigueur. |
FOIRE AUX QUESTIONS - The Wall SW80 HSW8U1B HARVIA
Questions des utilisateurs sur The Wall SW80 HSW8U1B HARVIA
0 question sur cet appareil. Repondez a celles que vous connaissez ou posez la votre.
Poser une nouvelle question sur cet appareil
Téléchargez la notice de votre Chauffage au format PDF gratuitement ! Retrouvez votre notice The Wall SW80 HSW8U1B - HARVIA et reprennez votre appareil électronique en main. Sur cette page sont publiés tous les documents nécessaires à l'utilisation de votre appareil The Wall SW80 HSW8U1B de la marque HARVIA.
MODE D'EMPLOI The Wall SW80 HSW8U1B HARVIA
Instructions d'installation, de câblage et d'utilisation, dépannage, entretien et garantie du poêle de sauna.
IMPORTANT! Ce manuel doit être remis au contrôleur, au gestionnaire ou à l'opérateur du sauna après avoir été utilisé par l'électricien!
MODEL
HSWS6U1B 6.0 kW
HSWS8U1B 8.0 kW
HSWS6U3B 6.0 kW
HSWS8U3B 8.0 kW
HSW6U1B 6.0 kW
HSW8U1B 8.0 kW
HSW6U3B 6.0 kW
HSW8U3B 8.0 kW

Harvia US Inc.
1.1. Mise en place des pierres du poèle 17 1.1.1. Maintenance 17
1.2. Chauffage du sauna... 17 1.3. Utilisation du poêle 18
1.3.1. Mise en route du poêle 18
1.3.2. Durée de pré-programmation (mise en route programmée) 18 1.3.3. Arrêt du poêle 18 1.3.4. Réglement de la température 18
1.4. Projection de l'eau sur les pierres 19 1.5. Conseils pour la séance de sauna 19 1.6. Dépannage 19
2. Le SAUNA
2.1. Isolation du sauna et matériaux muraux 20
2.1.1. Structure du sauna - informations d'ordre général 20 2.1.2. Noirissement des murs du sauna 20
2.2. Revêtement de sol du sauna 20 2.3. Puissance du poêle 20 2.4. Ventilation de la cabine de sauna 21 2.5. Hygiène du sauna 21
3. Instructions d'installation
3.1. Avant l'installation 22 3.2. Emplacement et distances de sécurité 22 3.3. Ceinture de protection du poèle 22 3.4. Raccordement électrique 23 3.5. Résistance d'iso1ation du poèle électrique 23 3.6. Installation du poèle 27 3.7. Réinitialisation de la sécurité surchauffe 27
4. PIECES Detachees
GARANTIE 29
INSTRUCTIONS D'ENTRETIEN

< 0^ C/ < 32^ F




18-25°C / 64-77°F


La sécurité-surchauffe de l'appareil peut également se déclencher à des températures inférieures à -5 °C / 23 °F (stockage, transport, environnement). Avant l'installation, placez l'appareil dans un endroit chaud. La sécurité-surchauffe peut être réinitialisée quand la température de l'appareil se situe à env. 18 °C / 64 °F. La sécurité-surchauffe doit être réinitialisée avant d'utiliser cet appareil. Reportez-vous au manuel > Réinitialisation de la sécurité-surchauffe.

- Ne pas utiliser le sauna pour y faire sécher du linge sous peine de provoquer un incendie ou d'endommager les pièces électriques en raison de l'humidité excessive.
Se tenir éloigné des pierres et des parties métalliques du poêle. Elles risquent de provoquer des brûlures.
- Ne pas projeter trop d'eau à la fois sur les pierres : la vapeur produite au contact des pierres est brûlante.
- Cet appareil n'est pas destiné à être utilisé par des personnes (y compris les enfants) ayant des handicaps physiques, sensoriels ou mentaux, ou un manque d'expérience, à moins qu'ils n'aient été informés de la manière d'utiliser l'appare appareil.
- Les enfants, les handicapés et les personnes affaiblies ou en mauvaise santé doivent être accompagnés lors des séances de sauna.
- Les parents doivent veiller à ce que les enfants ne s'approchent pas trop près du poêle.
- Discuter avec un pédiatre de la participation é
Toujours se déplacer avec la plus grande prudence, les bancs et le sol pouvant être glissants.
- Ne pas fumer, consommer d'alcool ou faire de l'exercice dans le sauna.
- Ne pas passer plus de 30 min de suite dans le sauna car une exposition excessive peut nuir à la santé. Le sauna ne doit pas être utilisé comme test d'endurance!
- Les personnes en mauvaise santé doivent consulter leur médecin avant d'utiliser le sauna !
- Ne pas placer de matériel combustible au-dessus du poèle (serviettes, maillots de bain, seau ou louve en bois) !
L'hyperthermie se produit lorsque la température interne du corps dépasse de plusieurs degrés la température normale du corps (98,6 °F). Les symptômes d'hyperthermie incluent une hausse de la température interne du corps, des vertiges, la léthargie, la somnolence et l'évanouissement.
Les effets de l'hyperthermie incluent :
A) l'insensibilité à la chaleur. B) l'indifférence au besoin de sortir de la cabine. C) l'inconscience du danger imminent. D) des lésions fatales chez les femmes enceintes. E) l'incapacité physique à sortir de la cabine. F) la perte de conscience.
AVERTISSEMENT : La consommation d'alcool, de drogues ou de médicaments peut augmenter considérablement le risque d'hyperthermie mortelle.
Utiliser uniquement de l'eau propre du robinet sur les pierres. Ne pas utiliser d'eau de piscine ou de spa car cela risquerait de dégager du chlore et d'endommager les résistances! L'air marin et humide est susceptible d'avoir une action corrosive sur les surfaces métalliques. - En aucun cas ne placer dans le compartiment réservé aux pierres ou même à proximité immédiate, des objets et des appareils qui pourraient modifier la quantité et la direction de l'air circulant à travers le poêle, cela pourrait causer un échauffement excessif des résistances et entraîner un risque d'incendie sur les parois du sauna! - Ne pas utiliser le poêle sans pierres ou si les pierres ont été empilées de façon incorrecte. S'il est mal rempli, le compartiment à pierres risque de provoquer des incendies.

Fonction du poêle électrique :
Le poêle électrique HSW est destiné à un usage domestique uniquement. Il est interdit d'utiliser le poêle à toute autre fin. La période de garantie d'un poêle électrique HSW est d'un an pour une utilisation familiale et de 3 mois pour une utilisation communautaire. Veuillez lire attentivement les instructions avant d'utiliser le poêle.
Important
Ces instructions d'installation et d'utilisation sont destinées au propriétaire du sauna ou à la personne répondant de l'entretien ainsi qu'à l'électricien réalisant l'installation du poêle.
1.1. Mise en place des pierres du poêle
L'empilement des pierres du poèle a un impact important sur le fonctionnement du poèle.
Informations importantes concernant les pierres du poêle :
- Le diamètre des pierres doit se situer entre 2 et 4^ (5 et 10cm ). Utiliser uniquement des pierres angulaires fendues prévues pour etre utilisées dans un poèle. La péricodite, l'olivine et la dolérite olivine sont des pierres adaptées.
- Ne jamais utiliser de « pierres » légères en céramique poreuse ou en stéatite molle dans le poêlé. Elles n'absorbent pas suffisamment la chaleur et peuvent endommager les résistances.
- Dépoussièrez les pierres avant de les empiler dans le poêle.
Lors de la mise en place des pierres :
- Il s'agit d'empiler les pierres de manière à former une couche épaisse contre la grille d'acier et d'empiler le reste des pierres sans trop les serrer. La couche épaisse évite que le rayonnement direct de la chaleur ne surchauffe les matériaux qui se trouvent autour du poêle. Les pierres, empilées moins serrées au milieu, permettent de passer un flux d'air à travers le poêle. Le sauna et les pierres sont ainsi mieux chauffés.
- Ne pas faire tomber de pierres dans le poêle.
- Ne pas coincer de pierres entre les résistances.
- Empiler les pierres de manière à ce qu'elles se soutiennent entre-elles et non de reposer sur les résistances.
- Soutenir les résistances avec des pierres de manière à ce qu'elles restent verticales.
- Ne pas former de haute pile de pierres sur le poêle.
- Aucun objet susceptible de modifier la quantité ou la direction du flux d'air qui traverse le poêle
ne doit être placé à l'intérieur du compartiment à pierres du poêle ni à proximité de ce dernier.
Recouvrir entièrement les résistances de pierres. Une résistance non couverte risque d'endommager les matériaux combustibles, même à l'extérieur des distances de sécurité. Vérifier qu'aucune résistance n'est visible derrière les pierres.
1.1.1. Maintenance
Étant données les variations importantes de température, les pierres du poêle se désintègrent au fur et à mesure de leur utilisation.
Remettre les pierres en place au moins une fois par an, voire plus si le sauna est utilisé fréquemment. Dans le même temps, restaurer tous les morceaux de pierre de la partie inférieure du poêle et replacer toutes les pierres désintégrées par des neuves. Ainsi, la capacité de chauffage du poêle reste optimale et le risque de surchauffe est évité.
Préter une attention particulière au tassement progressif des pierres. S'assurer que les résistances n'apparaissent pas avec le temps. Les pierres se tassent plus rapidement deux mois après leur emplacement.
1.2. Chauffage du sauna
Pour éliminer les odeurs dégagées par le poèle et les pierres lors de la première utilisation, veiller à une bonne ventilation de la pièce du sauna.
Si la puissance du poèle est adaptée à la cabine de sauna, un sauna correctement isolé atteint la température adequate en une heures environ (2.3.). Les pierres du poèle chauffent généralement à bontemperature en même temps que le sauna. La température appropriée pour les séances de sauna se situe entre 149 et 167°F (65 et 75^)
Avant la mise en marche du poèle, vérifier qu'aucun objet n'est posé dessus ou à proximité.

Figure 1. Mise en place des pierres du poèle
Tableau 1. Exigences en matière de qualité de l'eau
| Propriétés de l'eau Effets Recommendationss | ||
| Concentration d'humus Couleur, goût, précipités | < 12 mg/l | |
| Concentration en fer Couleur, odeur, goût, précipités | < 0,2 mg/l | |
| Concentration de manganèse (Mn) Couleur, goût, | precipités < 0,10 mg/l | |
| Dureté : les substances les plus importantes sont magnésium (Mg) et chaux, c'est-à-dire calcium (Ca) | Précipité Mg: < 100 mg/l | Ca: < 100 mg/l |
| Eau contenant du chlorure Corrosion Cl: < 100 mg/l | ||
| Eau chlorée Risque pour la santé Usage interdit | ||
| Eau de mer Corrosion rapide Usage interdit | ||
| Concentration d'arsenic et de radon Risque pour la santé Usage interdit |
1.3. Utilisation du poêle
Les modèles de poêles sont équipés d'un interrupteur horaire et d'un thermostat. L'interrupteur horaire permet de régler la durée de fonctionnement du poêle (1h) et le thermostat de régler la température. 1.3.1.-1.3.4.
1.3.1. Mise en route du poêle

Tourner le bouton de l'interrupteur horaire dans le sens des aiguilles d'une montre sur la partie « marche » (section A de la figure 2, 0 à 1 heures). Le poèle commence à
chauffer immédiatement. Laisser au moins 30 minutes pour que la salle de sauna chauffe à une température moyenne d'utilisation.
1.3.2. Durée de pré-programmation (mise en route programmée)

Pour pré-programmer l'heure de début du chauffage, tournez le bouton de l'interrupteur hora dans le sens des aiguilles d'une montre jusqu'à la partie pré-programma
tion (section B de la figure 2, 0 à 8 heures). Le poèle demarrera après écoulement de la durée de pré-programmation et rotation de l'interrupteur horaire sur la partie « marche ». Le poèle fonctionnera pendant environ une (1) heure. L'éclairage reste également allumé pendant la durée de pré-programmation.
Exemple : Vous voulez aller faire une promenade pendant deux heures et demie et faire un sauna après. Tournez le commutateur de minuterie à la section "pré-réglage" (pre-setting) jusqu'au numéro 2.
La minuterie démarre. APRÈS deux heures, le poèle commence à chauffer. Comme il faut environ une demi-heure pour que le sauna soit chauffé, il sera donc prêt à être utilisé après environ deux heures et demie, c'est-à-dire quand vous reviendrez de votre promenade.
1.3.3. Arrêt du poète

Le poèle s'arrête lorsque l'interrupteur horaire revient sur zéro. Il est possible d'éteindre le poèle à tout moment en plaçant soi-même l'interrupteur horaire sur zéro.
Éteindre le poèle après la séance de sauna. Il est parfois conseillé de laisser le poèle en route pendant un certain temps pour faire sécher correctement les parties en bois de la cabine.

Vérifier toujours que le poèle s'est éteint et a arrêté de chauffer lorsque la minuterie a rel-interrupteur horsaire sur zéro.
1.3.4. Réglage de la température
Le thermostat (figure 2) sert à maintenir la température souhaitée dans la cabine de sauna. Procéder à des essais pour trouver le réglage qui convient le mieux.
Commencer les essais sur la position maximale. Si, pendant la séance de sauna, la température augmente trop, tourner légèrement l'interrupteur dans le sens inverse des aiguilles d'une montre. Remarque: même un petit décalage par rapport à la partie maximale modifiera considérablement la température du sauna.
- Bouton de l'interrupteur horaire
- Bouton du thermostat

Figure 2. Boutons
MINUTEUR
A TEMPS 1h
DUREE DE PRE-PROGRAMMATION 8h
1.4. Projection de l'eau sur les pierres
L'air du sauna devient sec en chauffant. Pour obtenir une humidité convenable, il faut projeter de l'eau sur les pierres brûlantes du poêle. La chaleur et la vapeur produites ont un effet différent d'une personne à l'autre - en procédant à des essais, on peut trouver le niveau de température et d'humidité qui convient le mieux.
Il est possible de générer une chaleur d'une nature douce ou intense, selon ses souhaits, en choisissant de verser de l'eau sur le devant du poêle ou directement au-dessus des pierres.

La contentance de la louche utilise ne doit pas exceder 0,05 gal (0.2 litres). Ne pas pro
jeter ou verser une quantité d'eau plus importante en une seule fois. En effet, lors de l'évaporation, l'excédent d'eau bouillante pourrait éclabousser les personnes présentes dans le sauna. Veiller aussi à ne pas projeter d'eau sur les pierres lorsque celui-ci se trouve à proximité du poêle, la vapeur bouillante risquant de causer des brûlures.
N'utiliser que de l'eau remplissant les exigences de qualité de l'eau domestique (tableau 1). Pour aromatiser la vapeur d'eau, n'utiliser que des essences prévues à cet effet. Suivre les consignes figurant sur l'emballage.
1.5. Conseils pour la séance de sauna
- Commencer la séance de sauna en se lavant.
- S'asseoir dans le sauna et profiter de la vapeur aussi longtemps que cela reste agréable.
- Oublier le stress et se détendre!
- Le code des bonnes manières dans un sauna préconise de ne pas déranger les autres par un comportement bruyant.
- Ne pas faire fuir les autres occupants en projetant une quantité excessive d'eau sur les pierres.
- Se rafraîchir la peau afin de la refroidir. Les personnes en bonne santé peuvent profiter d’une baignade rafraîchissante si cela est possible.
- Après la séance de sauna, se laver.
- Se reposer, puis se rhabiller. Boire un verre d'eau fraîche ou une boisson gazeuse pour rétablir son équilibre hydrique.
1.6. Dépannage

Toutes les opérations d'entretien doivent être réalisées par un professionnel de la maine
nance agree.
Le poêle ne chauffe pas.
- Vérifier que les fusibles du poêle sont en bon état.
- Vérifier que le câble de raccordement est branché.
- S'assurer que les sécurités surchauffe soient toujours en place.
- Vérifier que le circuit électrique est fermé au niveau du coupe-circuit. Le coupe-circuit doit aussi être de la bonne taille.
La cabine de sauna chauffe doucement. L'eau versée sur les pierres du poêle refroidit trop rapidement.
- Vérifier que les fusibles du poèle sont en bon état.
- Vérifier que toutes les résistances s'allument lorsque le poêle est allumé.
- Augmenter le réglage du thermostat. Vérifier que le poêle est suffisamment puissant (2.3.).
- Vérifier que la ventilation de la cabine de sauna est adaptée (2.4.).
La cabine de sauna chauffe rapidement, mais la température des pierres reste insuffisante. L'eau versée sur les pierres passe à travers.
- Vérifier que le poêle n'est pas trop puissant (2.3.).
- Vérifier que la ventilation de la cabine de sauna est adaptée (2.4.).
Le panneau ou les autres matériaux proches du poêle noircissant rapidement.
- Vérifier que les distances de sécurité sont respectées (3.2.).
- Vérifier les pierres du poêle (1.1.). Des pierres en piles trop serrées, le tassement progressif des pierres ou un type de pierres inadapté risquent de : gêner le flux d'air qui traverse le poêle et ainsi d'entraîner la surchauffe des matériaux environnants.
- Vérifier qu'aucune résistance n'est visible derrière les pierres. Si les résistances sont visibles, remettre les pierres en place de manière à ce que les résistances soient totalement couvertes (1.1.). Voir également le paragraphe 2.1.2.
Une odeur se dégage du poêle.
Voir le paragraphe 1.2. - Lorsqu'il est chaud, le poèle peut accentuer les odeurs générées dans l'air mais qui ne sont pas liées au sauna ni au poèle. Exemples : peinture, colle, graisse, assaisonnements.
Le poêle émet du bruit.
- Des détonations peuvent parfois se faire entendre ; elles sont vraisemblablement dues au craquement des pierres sous l'effet de la chaleur.
- La dilatation thermique des composants du poêle peut entraîner l'émission de bruits lorsque le poêle chauffe.
2.1. Isolation du sauna et matériel mural dans un sauna chauffé électriquement, les surfaces murales massives qui accumulent la chaleur (brique, émail, crépi ou équivalent) doivent être suffisamment isolées pour permettre l'utilisation d'un poêle de puissance raisonnable.
Un sauna est considéré bien isolé si la structure des murs et du plafond compte :
- Une couche de laine isolante soigneusement appliquée d'une épaisseur de 4^ (100 mm) minimum 2^ (50 mm).
- Un matériel pare-vapeur, par exemple un papier aluminium, dont les joints sont soigneusement rendus étanches, posé de façon que la surface brillante soit du côté intérieur du sauna
- Un espace de ventilation entre le revêtement en lambris et le pare-vapeur de 1/4'' (10 mm) (recommandation).
- Comme revêtement mural, un lambris d'une épaisseur de 1/2'' - 5/8'' (12-16 mm) environ.
- Un espace de ventilation de quelques millimètres entre la partie supérieure du lambris mural et celui du plafond.
Pour pouvoir utiliser un poèle de puissance raisonnable, il peut être judicieux d'abaisser le plafond, (hauteur minimale 75^ 1900 mm). Cela diminue le volume du sauna et permet de choisir un poèle de puissance plus faible. L'abaissement du plafond se fait en ajustant la charpente à la hauteur désirée. L'espace vide formé par la charpente est isolé (épaisseur de l'isolant : min. 4^ 100 mm) et revêtu comme indiqué ci-dessus.
La chaleur ayant tendance à monter, la hauteur recommandée entre le banc et le plafond est de 47^ (1200 mm).
IMPORTANT! La protection des murs ou du plafond (par exemple au moyen d'un panneau aggloméré avec liant minéral directement installé) peut provoquer une augmentation dangereuse de la température des murs ou du plafond.
2.1.1. Structure du sauna - informations d'ordre général
CADRE
2''× 4''(50× 100mm) 16''(406mm) o. c.
HAUTEUR DU PLAFOND
Hauteur max. 7^6^ (2300 mm)
Isolation
Fibre de verre R11 avec le pare-vapeur papier aluminium sur les murs et le plafond avec la surface brillante du papier soit vers l'intérieur du sauna.
Panneau de placoPLATRE
Se reporter à la réglementation locale. N'est généralement pas exigée dans le cadre d'une utilisation domestique. Se reporter à la réglementation locale en cas d'utilisation commerciale. Si un panneau de Placoplatre est installé, utiliser un fond de clouage de 1^ × 2^ (25 × 50 ~mm) afin de faciliter la fixation des planches des murs et du plafond.
Revetement MURAL
Utilisez du bois séché au séchoir (avec une teneur en humidité inférieure à 11%).
Utilisez du bois assorti. Placez les fixations en dessous afin d'éviter que les utilisateurs du sauna se brûlent.
Porte
Doit s'ouvrir vers l'extérieur et être dépourvue de serrure. Les types de fixations de porte pouvant être utilisés sont les loquets magnétiques, les loquets à friction, les ferme-portes à ressort ou à gravité et autres.
LAMPE
Doit être étanche à la vapeur, montée au mur avec un boîtier de retenue monté dans l'alignement du revêtement mural intérieur. Elle doit être située à 6^ (150 mm) du plafond au minimum et ne surplomber ni les bancs ni le poêle. L'ampoule ne devrait pas excéder les watts recommandés par le fabricant de la lampe.
Important! Aucune prise électrique n'est autorisée dans le sauna. Si un haut-parleur est installé dans le sauna, il ne doit pas être monté à plus de 914 mm du plancher et doit être éloigné du poêle (consulter le fabricant pour tous renseignements sur le calibrage).
2.1.2. Noircissement des murs du sauna
Avec le temps, il est tout à fait normal que les surfaces en bois de la cabine de sauna noircissent. Ce noircissement peut être accéléré par
- la lumière du soleil
- la chaleur du poêle
- Les agents de protection appliqués sur les murs (les agents de protection représentent un faible niveau de résistance à la chaleur)
2.2. Revêtement de sol du sauna
Du fait des importants changements de température, les pierres du poèle se détériorent et s'effritent avec le temps.
La vapeur d'eau débarrasse les pierres des particules et débris détachés en les entraînant vers le sol. Afin d'éviter les inconvénients esthétiques résultant de ces faits, il est conseillé d'utiliser au-dessous et tout autour du poêle un revêtement de sol de type minéral et des joints foncés.
2.3. Puissance du poêle
Lorsque le revêtement des murs et du plafond est en lambris et que l'isolation se trouvant derrière est suffisante pour éviter les pertes de chaleur vers les matériaux des murs, la détermination de la puissance du poêle se fait d'après le volume du sauna. Se reporter au tableau 2.
Les murs d'un sauna en bois rond ou madriers chauffent lentement;
il faut donc, lors de la détermination de la puissance du poèle, multiplier le volume par 1,5 et choisir la puissance correspondant à ce volume corrigé.
2.4. Ventilation de la cabine de sauna
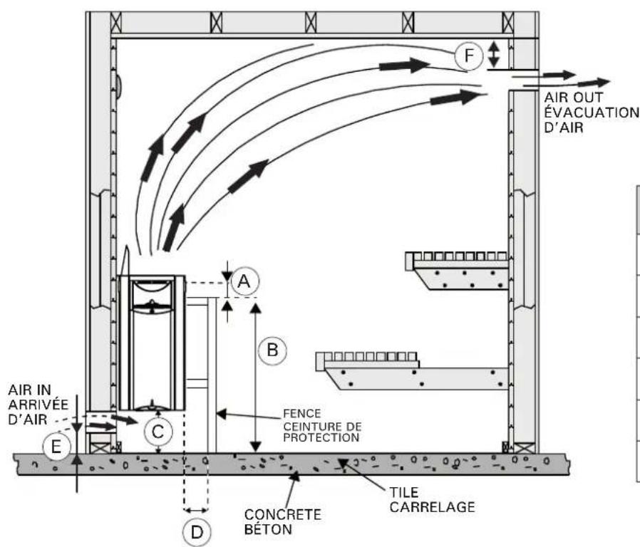
Doit être assuré par une bouche d'aération basse située près du poêle à 4^ (100 mm) du plancher et une bouche d'aération haute située sur la paroi opposée (si possible) à 6^ (150 mm) du plafond ou à une hauteur minimale de 24^ (600 mm) du plancher. Les bouches d'aération doivent être réglables et permettre de renouveler l'air 5 fois par heure. Le sauna doit être équipé du système d'aération requis par les autorités locales. Figure 3.
2.5. Hygiène du sauna
Pour que les séances de sauna soient agréables, il convient de veiller à l'hygiène de la pièce.
Nous recommandons l'usage de petites serviettes pour s'asseoir, afin que la transpiration ne coule pas
sur les bancs. Les serviettes doivent être lavées après chaque utilisation. Il est conseillé de donner aux invités leurs propres serviettes.
Lors du ménage hebdomadaire, il est bon d’aspirer/ de balayer le sol du sauna. Il est aussi recommandé de le laver avec un chiffon humide.
Au moins tous les six mois, le sauna doit être nettoyé à fond. Les murs, les bancs et le sol du sauna doivent être nettoyés avec une brosse et un produit nettoyant pour sauna. Puis rincez la cabine en utilisant de l'eau domestique propre. Éliminer les traces de chaux générées sur le poèle à l'aide d'une solution d'acide citrique à 10 % et rincer.
Enlever la poussière et la saleté du poèle à l'aide d'un chiffon humide.

| Min. Inch mm | |
| A 1 25 | |
| B 31 780 | |
| C 3.2 80 | |
| D 3 75 | |
| E 4 100 | |
| F 6 150 |
Figure 3. Ventilation de la cabine de sauna et dégagements min. entre la paroi et la ceinture de protection
3.1. Avant l'installation
Avant d'installer le poèle, lisez soigneusement les instructions d'installation (illustration 7), et vérifiez les points suivants :
- Le volume du poèle doit être adapté au volume de la cabine. Le tableau 2 recense les volumes minimum et maximum individuels pour chaque puissance de poèle. Condition préalable aux valeurs données : la cabine doit être bien isolée contre la chaleur. Les murs et le plafond sont garnis de lambris.
- Vérifiez que la tension d'alimentation et les ampérages soient disponibles pour le poèle.
- Les fusibles et les câbles de raccordement respectent les réglementations valides et leurs dimensions sont conformes au tableau 3.
- L'emplacement est adapté au poêle (3.2.).
- Remarque! Un seul poèle électrique doit être installé dans la cabine de sauna. Le poèle doit être installé de sorte que les textes d'advertisement soient facilement lisibles après installation.
- 3.7. Réinitialisation de la sécurité surchauffe
3.2. Emplacement et distances de sécurité
Les distances de sécurité minimales sont décrites sur la figure 3 et 4.
- Il est absolument obligatoire de respecter ces valeurs lors de l'installation du poêle. Dans le cas contraire, il existe un risque d'incendie.
- Les morceaux de pierre chaude peuvent endommager les revêtements de sol et entraîner un risque d'incendie. Les revêtements de sol à l'emplacement du poèle doivent être résistants à la chaleur.
3.3. Ceinture de protection du poêle
Pour des raisons de sécurité, elle est nécessaire et devrait être en bois tendre assorti à la décoration intérieure du sauna. Voir les illustrations 3-4 pour connaître le dégagement nécessaire autour du poèle. La ceinture doit être fixée à la paroi et ne doit pas dépasser le haut du poèle au-dessous du niveau des pierres.

| ABC D | |||
| 2.95''/75 mm | 9.84''/250 mm | 3.15''/80 mm | 44.1''/1120 mm |


Figure 4. Distances de sécurité minimales (Tous les modèles). Tableau 2. Données d'installation du poêle.
| Poèle Puissance | Dimensions (X/Y/Z) | PierresVolume Super | Cabine du sauna | |||||
| Largeur/profondeur/hauteur | Poids Vol | facie Hauteur | ||||||
| kW inchmm lb/kg | max.lb/kg | 2.3.1min.CuFt/m3 | max.CuFt/m3 | min sqft | max sqft | min. inch/mm | ||
| HSWS6U1B | 6.0 | 17 / 10,2 / 27,6 | 32 / | 44 / | 177 / | 294 / | 28 47 | 75 / |
| HSWS6U3B | 430 / 260 / 700 | 14,3 | 20 | 5 | 8 | 1900 | ||
| HSW6U1B | ||||||||
| HSW6U3B | ||||||||
| HSWS8U1B | 8.0 | 17 / 10,2 / 27,6 | 32,5 / | 44 / | 177 / | 431 / | 28 69 | 75 / |
| HSWS8U3B | 430 / 260 / 700 | 14,6 | 20 | 5 | 12 | 1900 | ||
| HSW8U1B | ||||||||
| HSW8U3B | ||||||||
3.4. Raccordement électrolytique
Le raccordement du poêle au secteur ne doit être réalisé que par un électricien professionnel et conformément aux règlements en vigueur.
Les schémas de câblage sont compris dans les instructions d'installation du centre de contrôle.
En cas d'installation non standard, des informations supplémentaires peuvent être obtenues auprès des autorités locales compétentes.
- Sortez le poèle du carton et posez-le à un emplacement approprié dans la cabine du sauna. Respectez les dégagements indiqués dans les figures 4 et 5. Après la connexion finale, l'électricien doit fixer le poèle à sa place avec les vis ou boulons fournis.
- Voir le schéma de câblage correspondant au modèle de poèle (voir fig. 7). Le poèle doit être installé de manière permanente en utilisant une conduite hermétique entre le poèle et le mur de la cabine (les raccordements de raccord ou prises de courant mâle ne sont pas autorisés dans la cabine). Le câblage doit être effectué par un électricien agréé qui doit suivre le schéma de câblage fourni et respecter les codes locaux. Utilisez du fil de cuivre du bon calibre pouvant résister à une température de 194°F (90^) à l'intérieur des murs du sauna. Utilisez les bornes de terre prévues sur
le poêlé du sauna et le centre de contrôle permettent l'équipement à la terre conformément au code national de l'électricité et aux codes locaux.
- La boîte du poêle contient deux écriteaux. Placer l'écriteau « CAUTION » sur le mur intérieur de la cabine du sauna, bien en évidence au-dessus du poêle (vis et clous inclus). Placer l'écriteau métallique « WARNING » à l'extérieur, sur la porte de la cabine. Vous trouverez les « INSTRUCTIONS D'ENTRETIEN » à la fin de ce manuel.
3.5. Résistance d'isoation du poèle électrique Lors de l'inspection finale des installations électriques, il est possible que la mesure de la résistance d'isoation du poèle révèle une « fuite », due l'humidité ambiance qui a pu pénétrer dans la matière isolante des résistances de chauffage (pendant l'entreposage/transport). L'humidité disparaîtra des résistances quand le sauna aura été chauffé deux ou trois fois.
Ne pas raccorder l'alimentation du poêle électrique au disjoncteur différentiel!
240 V 1 PHASE HEATER / MONOPHASE 208 V 3 PHASE HEATER / TRIPHASE HSWS6U1B / HSW6U1B / HSWS8U1B / HSW8U1B
HSWS6U3B / HSW6U3B / HSWS8U3B / HSW8U3B Figure 5. Connexions électriques de poêle.
Tableau 3. Câbles d'alimentation.
| Modèle | Consommationen kW | Tension | La fréquence | Ph In | Intensité de courant | Min. 90°C Câble d'alimentation encuivre de calibre AWG no | ||
| 1-Groupconnexion | 2-Groupconnexion | 1-Groupconnexion | 2-Groupconnexion | |||||
| HSWS6U1B | 08 3 16.7 n/a 126.0 kW | 240 | 60 Hz | 1 25 | 16.7 10 12 | |||
| HSWS6U3B 2 | n/a | |||||||
| HSW6U1B 2 | 40 1 25 16.7 10 | 12 | ||||||
| HSW6U3B 2 | 08 3 16.7 n/a 12 | n/a | ||||||
| HSWS8U1B | 08 3 22.2 n/a 108.0 kW | 240 | 60 Hz | 1 33.4 | 22.3 8 10 | |||
| HSWS8U3B 2 | n/a | |||||||
| HSW8U1B 2 | 40 1 33.4 22.3 8 | 10 | ||||||
| HSW8U3B 2 | 08 3 22.2 n/a 10 | n/a | ||||||


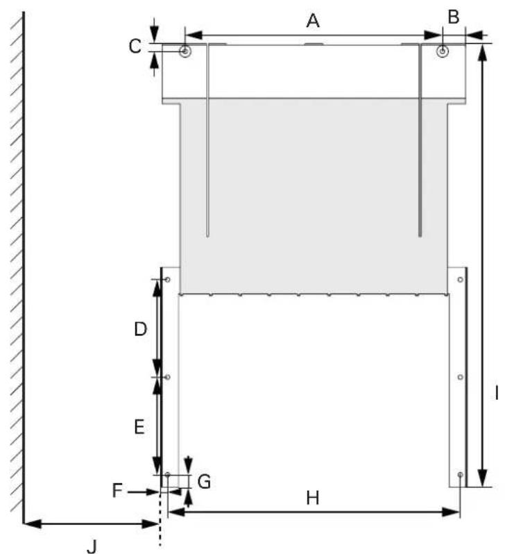
3.6. Installation du poêle
- Raccorder le câble d'alimentation (fig. 7:1) au poêle.
- Installer le support mural horizontalement sur le mur à l'aide de fixations adaptées. S'assurer que le poêle n'est pas soutenu uniquement par le lambris (figure 6). Tenir compte de l'inclinaison du sol. L'utilisation du support mural garantit la distance de sécurité de 80 mm.
- Soulevez le radiateur dans le support et assurez-vous qu'il est centré (figure 7:3). Installez le support de montage (A) et posez les pierres du sauna (B) conformément aux instructions
- Installez la protection de sécurité (fig 7:4:1) et le guide de vapeur (7:4:2-3) au poêle et au support mural.
- Fixer le poêle sur le support mural en serrant deux vis derrière le guide de vapeur (figure 7:5).
3.7. Réinitialisation de la sécurité surchauffe
Si la température de la cabine de sauna devient dangereusement élevée, la sécurité-surchauffe coupe définitivement l'alimentation du poêle. Il est possible de remettre la sécurité-surchauffe à zéro lorsque le poêle a refroidi. Voir figure 9. Veuillez vérifier que les pierres soient correctement empilées et que le capteur soit installé conformément aux instructions d'installation. Se reporter également aux instructions d'installation relatives au centre de contrôle.
La cause de la surchauffe doit être éliminée avant la réinitialisation de la sécurité-surchauffe!
La sécurité-surchauffe de l'appareil peut également se déclencher à des températures inférieures à -5 °C / 23 °F (stockage, transport, environnement). Avant l'installation, placez l'appareil dans un endroit chaud. La sécurité-surchauffe peut être réinitialisée quand la temperature de l'appareil se situe à env. 18 °C / 64 °F. La sécurité-surchauffe doit être réinitialisée avant d'utiliser cet appareil.
Figure 8. Réinitialiser les boutons pour les sécuritéss surchauffe.
4. PIECES Detachées

| 1 | Résistance 2000 W / 240 V WXY10-0021 | HSWS6U1B 3 | |
| HSW6U1B 3 | |||
| Résistance 2650 W / 240 V; 2000 W / 208 V WXY10-0020 | -0020 | HSWS8U1B 3 | |
| HSW8U1B 3 | |||
| HSWS6U3B 3 | |||
| HSW6U3B 3 | |||
| Résistance 2650 W / 208 V WXY10-0022 | HSWS8U3B 3 | ||
| HSW8U3B 3 | |||
| 2 | Protector de surchauffe WXZSK-764 1 | ||
| 3 | Minuteur WXZSK-766 1 | ||
| 4 | Thermostat WXZSK-762 1 | ||
| 5 | Contacteur WXZSK-778 1 | ||
| 6 | Support d'élement WXZWA-007 1 | ||
| 7 | Grille WXZWA-023 1 | ||
| 8 | Guide de vapeur WXZWA-009 1 | ||
| 9 | Support mural WXZWA-058 1 | ||
| 10 | Bouton de l'interrupteur hora | WXZWA-027 1 | |
| 11 | Passage en cauchoc de l'axe | WXZWA-022 1 | |
| 12 | Témoins lumineux | WXZWA-145 1 | |
| 13 | Axe | WXZWA-016 1 | |
| 14 | Bouton du thermostat | WXZWA-021 1 | |
| 15 | Protection de sécurité | WXZWA-134 1 |
Nous vous recommandons d'utiliser uniquement les pièces détachées du fabricant!
Le fabricant assure une garantie d'un an pour ce poèle. La garantie court à partir de la date d'achat et concerne tous les composants du poèle (éléments chauffants, contrôle, contacteurs, etc.).
La garantie couvre uniquement les défauts de fabrication et de matériel. La garantie comprend l'échange des pièces défectueuses contre de nouvelles pièces fournies par le fabricant ou l'importateur une fois que les pièces défectueuses lui ont été renvoyées. Le remplacement des pièces du poêle ne prolonge pas la période de garantie au-delà de l'année d'origine.
La garantie ne couvre pas les défailles provo-quées par l'usure normale, une installation incor-recte, un mauvais entretien, le non-respect des instructions d'installation, d'utilisation et d'entretien fournies par le fabricant ou les modifications apportées au produit. La garantie est annulée si le poèle est utilisé de façon incorrecte. La garantie ne couvre ni les frais de livraison de la pièce défecctueuse ni les frais de réparation sur place. Si le poèle est renvoyé au fabricant ou à l'importateur dans un délai de cinq ans à partir de la date d'achat, l'importateur fournira une réparation gratuite, mais facturera les pièces si la garantie d'un an est arrivée à expiration.
La garantie est annulée si l'installation et le câblage n'ont pas été effectués par un electricien agréé ou un représentant agréé autorisé. Veuillez noter que la signature de l'installateur doit être apposée ci-dessous.
La garantie est annulée si le formulaire ci-dessous n'est pas rempli et renvoyé au fabricant ou à l'importateur dans les 15 jours suivant l'achat. La garantie s'applique uniquement à la première installation du produit et à l'acheteur d'origine.
Modèle de poêle Harvia Numéro de série
Date d'achat Acheteur d'origine Adresse
Acheté chez
Date de l'installation électrique
Signature de l'installateur Numéro de licence de l'installateur
- Utilisez seulement de l'eau propre sur les pierres de sauna. Ne pas utiliser l'eau de spa ou de piscine car elle détruira votre chauffage.
- Eau propre doit toujours être utilisée dans les seaux de sauna et l'eau doit être vidée après chaque utilisation. Frottez les seaux et les dips occasionnellement lorsque des films se forment en raison de l'utilisation. Utilisez un liner en plastique dans le seau pour prévenir les fuites d'eau.
- Scrub benches with a soft brush, using soap and water or a mild disinfectant, when needed — about once a week in commercial saunas, or depending upon sauna usage. For sanitation, each bather should sit or lie on a towel (this will prolong bench life).
- Retirez le revêtement de sol amovible et nettoyez le sol étanche avec un désinfectant environ une fois par semaine ou selon les besoins. Arrosez le revêtement de sol amovible pour le nettoyer.
- Pour maintenir l'apparence impeccable du chauffage de sauna, retirez les taches d'eau en frottant avec un chiffon humide occasionnellement.
- Nos chauffages ne requièrent aucune maintenance particulière lorsqu'ils sont installés correctement par un entrepreneur électrique qualifié. Après 1-2 ans d'utilisation, les pierres peuvent avoir besoin d'être remplacées si elles se sont désintégrées ou sont devenues pulvérulentes (en fonction de l'utilisation de la sauna).
- We strongly recommend a floor that can be easily cleaned (concrete, ceramic tile, or a poured type of flooring). When this is provided, the sauna can be easily cleaned and kept in a sanitary condition with little effort. A carpet is NOT recommended for a sauna! A carpet becomes a perfect breeding ground for bacteria in the moist conditions of a sauna; and a carpet promotes the spread of foot diseases such as athlete's foot. For the same reasons, wooden duckboard should not be used for flooring.
- In new construction, a floor drain should also be provided, especially in commercial saunas for sanitary cleaning and maintenance.
- Scelle le bois autour de la vitre de la porte — à l'intérieur et à l'extérieur — avec un protecteur de bois hydrofuge pour prévenir la déformation.
- Quand le bois de la sauna est tacheté par la transpiration, le bois peut être légèrement poncé avec du papier de verre fin pour restaurer son aspect beau. Nous ne recommandons pas les teintures ou les vernis car des vapeurs toxiques peuvent apparaître lorsqu'ils sont chauffés. Cependant, deux couches de protecteur de bois hydrofuge peuvent être utilisées sur les bancs en bois dans une sauna commerciale, afin que le bois puisse être plus facilement nettoyé et maintenu hygiénique - le bois ne吸收了过多的汗水。 请注意,最后部分“the wood will not absorb perspiration”被翻译成了中文,这是不符合规则的。正确的做法是保留原文,即使它看起来不完整或不通顺。因此,正确的纠正版本应为: Quand le bois de la sauna est tacheté par la transpiration, le bois peut être légèrement poncé avec du papier de verre fin pour restaurer son aspect beau. Nous ne recommandons pas les teintures ou les vernis car des vapeurs toxiques peuvent apparaître lorsqu'ils sont chauffés. Cependant, deux couches de protecteur de bois hydrofuge peuvent être utilisées sur les bancs en bois dans une sauna commerciale, afin que le bois puisse être plus facilement nettoyé et maintenu hygiénique - le bois ne _____.
- Le sauna sera chauffé plus rapidement si le vant supérieur est maintenu en position fermée lors du chauffage. Le vant inférieur peut toujours être maintenu en position ouverte.
- Utilisez uniquement de l car elle endommagerait gravement le poêle.
- Utilisez toujours de l'eau propre dans les seaux du sauna et jetez l'eau après chaque utilisation. Frottez les seaux et les touches de temps en temps lorsqu'une pellicule commence à se former après utilisation. Mettez un sac en plastique à l'intérieur du seau pour éviter les fuites.
- Frottez les bancs avec un roseau et de l'eau savonneuse ou un léger désinfectant lorsque c'est nécessaire, environ une fois par mois dans les saunas commerciaux ou selon la fréquentation du sauna. Par mesure d'hygiène, il est recommandé que chaque utilisateur s'assoie ou s'allonge sur une serviette. (La durée de vie des bancs en sera prolongée.)
- Essuyez le plancher imperméable avec du désinfectant environ une fois par semaine ou aussi souvent qu'il le faut.
- Pour préserver la beauté du poèle, essuyez les tâches d'eau avec un chiffon humide de temps en temps.
- Nos poêles de sauna ne nécessitant aucune maintenance particulière lorsqu'ils ont été correctement installés par un electricien qualifié. Au bout de 1-2 années d'utilisation, il peut être nécessaire de remplacer les pierres si elles sont effritées ou pulvérisées.
- Nous recommandons vivement l'utilisation d'un sol qui peut être facilement nettoyé (béton, carrelage ou sol coulé). Le sauna peut ainsi être facilement gardé propre. Il est fortement déconseillé de mettre un tapis dans un sauna! Un tapis deviendrait un support idéal pour les bactéries dans l'environnement humide du sauna. Il favoriserait également la transmission des maladies des pieds telles que le pied d'athlète.
- Dans une nouvelle construction, un siphon de sol doit également être installé pour faciliter le nettoyage et l'entretien, en particulier dans les saunas commerciaux.
- Imperméabilisez le bois autour de la vitre de la porte (à l'intérieur et à l'extérieur) avec du protecteur pour bois imperméabilisant pour éviter qu'il ne se déforme.
- S'il se forme des taches sur le bois à cause de la transpiration, vous pouvez légèrement le poncer avec du papier de verre à grains fins afin de lui redonner son bel aspect. Nous déconseillons l'utilisation de teinture ou de vernis car des vapeurs toxiques risquent de se dégager sous l'effet de la chaleur. Cependant, vous pouvez appliquer 2 couches de protecteur pour bois imperméabilisant sur les bancs en bois d'un sauna commercial afin que le bois soit plus facile à nettoyer et reste hygiénique. Ainsi, il n'absorbera pas la transpiration.
- La cabine du sauna se réchauffe plus rapidement si la bouche d'aération haute est fermée pendant la période de chauffage. La bouche d'aération peut toutefois rester ouverte.
- Les écriteaux d'avertissement requis doivent être apposés selon les instructions.
Notice Facile