Compact A 700 - Chaudière de chauffage central ACV - Notice d'utilisation et mode d'emploi gratuit
Retrouvez gratuitement la notice de l'appareil Compact A 700 ACV au format PDF.
| Caractéristiques | Détails |
|---|---|
| Type de chaudière | Chaudière à gaz à condensation |
| Puissance nominale | 700 kW |
| Rendement énergétique | Jusqu'à 109% |
| Dimensions (L x P x H) | Dimensions compactes pour un gain de place |
| Poids | Variable selon l'équipement |
| Utilisation | Chauffage central pour bâtiments résidentiels et commerciaux |
| Entretien | Maintenance annuelle recommandée par un professionnel |
| Sécurité | Équipée de dispositifs de sécurité intégrés |
| Garantie | Garantie constructeur de 2 ans |
| Normes | Conforme aux normes européennes en matière d'efficacité énergétique |
FOIRE AUX QUESTIONS - Compact A 700 ACV
Questions des utilisateurs sur Compact A 700 ACV
0 question sur cet appareil. Repondez a celles que vous connaissez ou posez la votre.
Poser une nouvelle question sur cet appareil
Téléchargez la notice de votre Chaudière de chauffage central au format PDF gratuitement ! Retrouvez votre notice Compact A 700 - ACV et reprennez votre appareil électronique en main. Sur cette page sont publiés tous les documents nécessaires à l'utilisation de votre appareil Compact A 700 de la marque ACV.
MODE D'EMPLOI Compact A 700 ACV
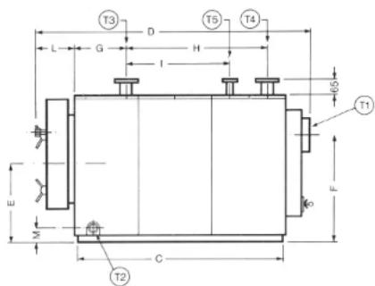
Caratéristiques techniques 3 - 4 Technische kenmerken
Données des brûleurs 5 Kenmerken van de branders
Raccordement électrique 8 Elektrische aansluiting
Montage de la jaquette 9 - 10 - 11 - 12 Montage van de ommanteling
Instructions de mise en service et d'entrtien 14
Pièces de rechange chaudière 15 - 16
ACV sa réserve le droit de modifier, sans préavis les caractéristiques techniques et l'équipement de tous les apparels.

text_image
CERTIFIED BY TECHNIGAZ BELGIUM 0461Température maximale de service: 110°C
Pression de service: 6 bar (EN 303)
Largeur avec jaquette: ajouter 70 mm aux dimensions reprise en "A"


- Porte foyère amovible gauche / droite.
- Tapiceau de commande
- Helical circuit primière.
- Rescuerdavant acupens de alocuata
b. D'apac circuit primaire - Topes de lenciços, Equipés de turbulates
- l'apation laine de verre
- Recordement robinet videnge
9 Chambric de conexión
(1) Ischaich phe 2004
Corps de chauffe
Chaudière construite on tôle d'acier ST 37/2 de l'orte épaisseur suivant NBN D 06001 et DIN 4702 Tell1 avec chambre de combustion refroidie par eau. Chaudière pressurisée à tubes de fumées avec chicanes amovibles. Le corps de chaudière est éprouvé hyorauliquement après fabrication à une pression de 7,5 bar.
Chambre de combustion
Foyer à libre dilatation construit suivant DIN 4702 Le foyer est construit en acier de forte épaisseur: -type 250 - 350: épr. 6 mm -type 400 - 500: épr. 7 mm -type 600 - 1250: écr. 8 mm
Tubes de fumées
Las tubes de lumées dépassent de 10 mm la plaque arrière pour éviter les condensations. Ceci provoque une surchauffe de l'extrémité des tubes et l'évaporation des condensats qui pourraient s'y produire.
Circulation d'eau
L'eau du retour est dirigée vers la plaque tubulaire avant par une chicare. La bas de la chaudière ne comporta pas de lubas pour éviter que des dépôts de boues éventuels ne réduisant l'échange thermique.
Porte foyère
Porte foyère à ouverture gauche ou droite de construction lourde. Isolation par brique en fibre céramique cosée sur un matelas de laine de roche. Etanchéité par cordon de fibre céramique et serrage par quatre crous M 12.
Boîte à fumées
Boîte à fumées démontable réalisée en acier épr. 3 mm, et fixée par 6 coulons M 10. La boîte à fumées comporte au point bas un regard de nettoyage avec une ouverture de ∅150 mm.
Jaquette
L'habillage est entièrement réalisé en acier et subit avant peinture un traitement de dégrissage et de phosphatation. La peinture en ooudre époxy polyester est culte au four (200°C) ce qui donne une garantie de longévité et une finition de grande qualité.
Isolation
La chaudière COMPACT A comperte une double isolation;
- une première appliquée sur le coros de chauffe par un matelas de laine de verre de 80 mm d'épaisseur.
- La seconde appliquée sur les panneaux de la jaquelle par un malcelles de lain de vorre de 25 mm d'épaisseur avec film d'aluminium.
Sécurité
- La chaudère COMPACT A est équipée d'un dispositif de misa en sécurité en cas de non fermeture de la porte foyère.
- Un thermostat de sécurité à réarmement manuel assure la sécurité contre toute surchaule, prerégé à 103°C.
Emballage
La chaudière est livrée sur socle en bois avec dans le foyer le tableau de commande, les chicanes et la laine de verre pour l'isolation du corps de chaudière. L'ensemble jaquette est fourni dans une crête en bois.
Régulation de base
• thermomètre
• thermostat de réogage - l'ère et seconde allure
- thermostat de sécurité à réarmement manuel
- interrupteur général
• prise de courant
• voyant lumineux de fermeture de porte
• voyant lumineux de1ère et seconde allure
• emplacement pour compteur horaire
Ketellchaam
Les chaudière COMPACT A sont conformes à la norme EN 303
Elles peuvent donc être combinées avec des brûleur conformes à la norme EN 267 pour le fioul, ou à la norme EN 676 pour le gaz.
Contactez votre distributeur ACV local pour plus de renseignements
IMPORTANT : la rampe du brûleur doit respecter les exigences ci-dessous
| ChaudièreKatal | A mmGaz - Gas | A mmFioul - Ola | A mmFoul lourdZwearolic | B mm C mm D mm |
| 250 - 350 345 300 245 190 185 350 | ||||
| 400 - 500 375 325 245 200 205 350 | ||||
| 600 - 700 425 370 320 250 240 450 | ||||
| 800 - 1250 425 370 320 250 265 450 | ||||
Bride de fixation du brûleur / Vasthechtingsfiens van de brander

text_image
Emplacement du cordon isolant Isoleran dichling Y B A CIl est indispensable d'isoler le guculard à l'aide du fourreau isolant prévu à cet effet (Rep. Y).
Après entretien du brûleur, bien replacer l'isolation, au bascin la remplacer.
BELANGRIJK:
Bride de fixation du brûleur / Vasthechtingsflens van de brander

- IMPORTANT: L'installation et l'entretien du produit seront exécutés par des techniciens qualifiés, en conformité avec les réglementations en vigueur.
- Se conformer aux normes locales en vigueur (Belgique NBN B 61-001) pour toutes caractéristiques particulières, relatives aux dimensions, résistance au feu des parois, portes d'acier, cheminées et ventilations hautes et basses.
- La chauferie sera suffisamment grande pour permettre une bonne accessibilité et l'entrée de la chauferie sera suffisamment large pour permettre la pose ou la dépose du corps de chaudière.
Distance minimale latérale: 600 mm.
Distance minimale avant: 1250 mm.
Distance minimale arrière: 600 mm.
Distance minimale au-dessus: 1000 mm. - La chaufferie comportera impérativement une ventilation basse pour l'arrivée d'air au brûleur; une ventilation haute pour l'aération du local et un épout pour la vidange de la chaudière.
- Le tableau ci-dessous est donné à titre indicatif, les réglementation pouvant varier d'un pays à l'autre.
STOOKRUIMTE
Caractéristiques des cheminées et ventilation Kenmerken van de schouw en van de ventilatie
| Type de chaudière | 250 | 300 | 350 | 400 | 500 | 600 | 700 | 800 | 900 | 1000 | 1250 | Ketel type | |
| Apport d'air frais min. m | ^3h | 296 | 363 | 417 | 493 | 604 | 714 | 835 | 956 | 1077 | 1210 | 1500 | Min. Irisse luchlaanvoer m^3/h |
| Ventilation haute | dm^2 | 3 | 3 | 3 | 3 | 4 | 4 | 4 | 6 | 6 | 6 | 8 | Bovenventilatie dm^2 |
| Ventilation basse | dm^2 | 18 | 22 | 25 | 30 | 37 | 43 | 50 | 58 | 65 | 73 | 90 | Benedenventilatie dm^2 |
| Cheminée traditionnelle | Nuttig nominaal vermogen | ||||||||||||
| Hauteur 10 m - ∅ min. | mm | 270 | 300 | 330 | 360 | 400 | 430 | 470 | 490 | 520 | 550 | 600 | Hoogte 10 m - ∅ min. mm |
| Hauteur 15 m - ∅ min. | mm | 250 | 270 | 300 | 330 | 360 | 380 | 420 | 450 | 470 | 500 | 550 | Hoogte 15 m - ∅ min. mm |
| Hauteur 20 m - ∅ min. | mm | 240 | 260 | 290 | 310 | 310 | 360 | 380 | 420 | 440 | 470 | 500 | Hoogte 20 m - ∅ min. mm |
| Hauteur 25 m - ∅ min. | mm | 230 | 250 | 270 | 290 | 290 | 350 | 370 | 430 | 420 | 440 | 470 | Hoogte 25 m - ∅ min. mm |
| Cheminée métalique à double paroi | Dubbelwandige metalen schouw | ||||||||||||
| Hauteur 10 m - ∅ min. | mm | 230 | 240 | 260 | 270 | 300 | 330 | 350 | 370 | 390 | 410 | 470 | Hoogte 10 m - ∅ min. mm |
| Hauteur 15 m - ∅ min. | mm | 220 | 230 | 250 | 260 | 290 | 310 | 330 | 350 | 370 | 390 | 440 | Hoogte 15 m - ∅ min. mm |
| Hauteur 20 m - ∅ min. | mm | 220 | 230 | 240 | 250 | 280 | 290 | 310 | 330 | 350 | 370 | 420 | Hoogte 20 m - ∅ min. mm |
| Hauteur 25 m - ∅ min. | mm | 210 | 220 | 230 | 240 | 270 | 280 | 300 | 320 | 330 | 350 | 400 | Hoogte 25 m - ∅ min. mm |
- La section du conduit de cheminée traditionnelle est calculée suivant la formule: S = 5,6Qc /
S en cm 2 Qc= KW (input) H en m
• La cheminée métallique est déterminée suivant la DIN 4705
Ce type de chaudière doit impérativement être équipé d'une boucle de circulation primaire (A) afin d'éviter des surchauffes locales au corps de chauffe et pour contrôler la température du retour à la chaudière qui ne pourra être inférieure à 60°C.
Un thermostat situé sur le retour et réglé à min. 60°C empêchera la mise en service des circulateurs chaullage si a température du retour est trop basse.

Caractéristiques du circulateur de la boucle primaire (A) Kenmerken van de circulator van de primaire kring (A)
Type CA 250:
• Pomp(e) type UMC 32-30 F 06
• ∅ 6/4" - DN 32 - PN 6
- 6.25 m³/h - 0.05 bar
Type CA 300 -CA 400:
• Pomple(e) type UMC 50-30 F 06
- ∅ 2" - DN 50 - PN 6
- 12.5 m³/h - 0.06 bar
Type CA 500 - CA 1250:
■ Forma1 (vpa) LMC 80-30 E D6
Caractéristiques des soupapes de sécurité Kenmerken van de veiligheidskleppen
| Type de chaudière | 250 | 300 | 350 | 400 | 500 | 600 | 700 | 800 | 900 | 1000 | 1250 | Ketel type |
| Soupape de sécurité pré-réglée à 6 bar max. | DN 50 | DN 50 | DN 50 | DN 65 | DN 65 | DN 65 | DN 65 | DN 80 | DN 80 | DN 80 | DN 80 | Võiligheidsklep vooraf ingesteid op 6 bar |

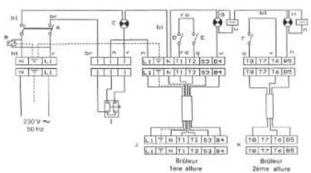
RACCORDEMENT ÉLECTRIQUE / ELEKTRISCHE AANSLUITING

text_image
230 V ~ 50 Hz Brôneur 1ere allure Brôneur 2ème allureSchéma électrique de la chaudière Compact A de grande puissance Elektrisch schema van de ketel Compact A - groot vermogen
A = Interrapieur général A = Hooldschakelaar
B = Erise de occuant. B = Stockcontact
C = Veyant luminaux de aescuité de pode. C = Kaltroclamps vica d'oeuvergrenduiting
D = Thermostat de aescuité. D = Volighecalberrepsial
E - Thermosial premature flare: E - Thermosial 1c trapsverking
F - Thermosial seconda allure: F - Thermosial 2d trapsverking
G = Compieur horaire avec voyant urineaux 1ère allure G = Umsler mel kontrolclamp 1ste trapswecking
H = Compieur horaire avec voyant urineaux 2ème allure H = Uursler rie kon relamp 2de trapswecking
1 = l'encapleur de pour c
K = Brülear scaxonde allure
Montages des sondes
Positie van de voelers

L'interupoleur de pècle est un organie de sécurité de la chaudière.
Il empêchera le tonctornement du brûteur si la porte loyère n'est pas correctement fermée. Son placement si son réglage doivent donc la re l'objet d'une attention particulière.
Les différentes pièces à utiliser sont
- équerre de positionnement de l'intérêtsur
- interrupteur (raccordé électriquement au laublesau)
- outée de l'interrupteur (type 250 -1250) en d'écrous et de boulons de 'ical en.
Ficar los diféren s ékamen s comre suit:
- Fixar 'interrupteur sur son équerc et adapter l'ense-mente sur la plaque tubulaire avant (dans les trois prévus à cet effet). Il sera placé du côté opposé à l'axe pavlant (à choisir).
- Fixer a bulée sur le support intérieur ce la Paris dans le prolongement de la roulette de l'interrupteur.
- Régier la poisson de l'incrup sur nilou de la butée pour garantir une réaction de l'incrupoisar lors d'une ouverture minimale de la porte.
- Teste son bon forclctionement (brûleur déconnecté).

A : thermocrière
B. thermostat de réglage première allure
C. l'heptimal de révise revondreature
D - thermostat de sécurité (100°C) à réâmenant van,el
F : interrupteur général
H : prise de courant
1. voyant lurrinaux de sécurité de partie
J : voyant lumineux de l'encice connentier le première allure
K : verzant lumines de locé d'interpencil en seconds allure
L : compteur horaire de première allure (option)
5) Compacts from the electronic charge (50kN)
Pré-réglage des thermostats de commande
Il es possible de presecer à une limitation de température min. ou max. du themostat. Pour cela, poetigner un ressort de blocage dans le ocutor de régage tel que repris sur le croqus ci-dessous.
Procedure de déblocage du thermostat IMIT
A. Retiver le boulen de commande (1)
B. Retiver la versant métalique (2)
C. Replaces le boulou de commande
Hue de IMIT thermostal hogar instelene
A. De regellkop sttreken (1).
B. Het metalen voorje kognierben (2)
C. De regelcrop terugolaaten.


mONtaGe de La Jaquette / mONtaGe VaN de OmmaNteLING
1) La livraison de la chaudière CA contient les sous-ensembles suivants.
- Corps de chauffe non isolé
- Les chicanes sont emballées. l'ensemble est fixé aux tubulures de la chaucière.
- Dans le foyer sont disposées
L isolation du corps de chauffe avec protection en alu (Laine de roche en rouleau).
L isolation du tube de combustion (fibre céramique)
Sel d'assemblage (avec vis, écrou, butée de l'interrupteur de perle,...).
Un cerclage bleu permettant de fixer l'isolation au corps.
- Crête en bois comprenant:
• La jaquelle isolée
- Le tableau de commande (avac interrupteur porle pré-câblé), emballé avec cette notice
- une isolation supplémentaire pour le corps de chauffe.

2) Enrouler l'ésolation, recouverle d'une feuille d'alu, autour du corps de la chaudière.
Entailier l'isolation pour qu'elle puisse épouser les tubulures. Fixer l'isolation à l'aide des cerclages livrés à cet effet.
3) Placer les positionneurs de faces latérales sur les profils de renfort inférieurs de la chaudière.

4) Placer un panneau latéral arrière.
Pour un placement correct, il faut que:
- son rebord supérieur vienne s'épauler sur le profil de renfort supérieur
l'entaille du rebord du panneau vienne chevaucher la plaque tubulaire arrière.
6) Clipser le tableau de commande sur les panneaux latéraux avant. Embrocher les fiches électriques (brûleur) à l'arrière du tableau de commande, et les faire ressortir de la jaquette par les passe câbles prévus à cet effet.

7) Installer l'interrupteur porte (voir page 8)
8) Fixer les panneaux arrières.
9) Visser le raidisseur entre les parties inférieures des panneaux latéraux avant.
10) Clipser les panneaux supérieurs. 10) De bovenste panelen fixeren.

11) Présenter le panneau recouvrant la porte foyère, faire correspondre les trous de la jaquette aux taraudages de la porte (non loin des charnières), visser

12) Clipser les garnitures de coin après avoir réglé et serré la porte foyère.

- Chaudières en acier à haut rendement, conformes aux prescriptions de la NBN D 06.000, du cahier des charges 105 de l'AR belge de mars 1988 et à la DIN 4702 - Tell1
• pression de service: 6 bar (EN303)
• pression d'épreuve: 7,5 bar - Chaudière construite en tôles de forte épaisseur
• Plaques tubulaires épr. 6 mm. - loyer:
6 mm.: type 250-350
7 mm.: type 400 -500
8 mm.: type 600 -1250 - Chaudière pressurisés à lubus de lumiées avec chicanes amovibles.
- Chambre de combustion à libre dilatation refroidie par eau.
- Porte foyère à ouverture gauche ou droite et à double isolation. Matelas de laine de roche et brique en fibre céramique.
• Elanchéité par cordon de libre céramique. - Boîte de furnées démontable en acier épr: 3 mm, avec regard de nettoyage ∅150 mm au point bas.
- La chaudière comporte une isolation laine de verre appliquée sur le corps (épr. 100 mm.) et une seconde sur les panneaux de la jaquette.
- Jaquette métallique laquée au four après dégraissage et phosphatation de la tôle. Dispositif de mise à l'arrêt du brûleur en cas de non fermature dela plaque foyère.
• Régulation
thermomètre
thermostat de réglage: 1e et 2e allure
voyant lumineux de fonctionnement 1e et 2eallure
compteur horaire 1e et 2e allure (option)
thermostat de sécurité à réarmement manuel
interrupteur général
prise de courant
• Chaudière COMPACT A
Typo:
Code:
puissance utile (kW)
surface de chauffe (m 2)
volume foyer (m 3)
Rincer le corps de chaure et les tuyauteries pour élimmer les impurcés.
mise eN seRVICE
1. Remplissage de l'installation
- Vérifier et au besoin traiter l'eau d'alimentation. Celle-ci doit avoir les caractéristiques suivantes durité clône < 15°F, P-H compris entre 7 et 8. Oxygène libre < 0,5 ppm est absences de boux.
- Assurez vous que toutes les vannes de l'installation scient ouvertes sauf cela de vidange. Mestre la vanre rélangeuse à 3 n. 4 voies en position intermédiaire.
- Purger l'installation et surveiller la pression, hauteur hydroéctrique dans les installations à vase ouvert ou hauteur hydroéctrique + 0,5 bar dans les installations fermées.
- Contrôer les amenses de a.u. et laisser apparentes les vidanges et rcp-pliens.
2. Mise en service de la chaudière
Vérifier si les turbulateurs sont correctement places dans les tubes, la partie avant doit effleurer la plaque tubulaire avant.
- Assurez-vous de la bonne terneture de la porte toyère (serrage muyant).
Oblique suigneuxement. L'espace compris entre la brique réfractaire et le queillard du brûleur. Utilisez pour ce a un isolant couple à base de l'ore ceramique.
- Vérifier si la longueur de la tête de combustione du brûleur est conferte aux indications réprises en page 5.
Contrôter le hœr osailurement et le serrage du repre de l'armes
- La première mise en régime coit être progressive, si possible à faible allure
Feilé des lieurs à une température inférieure à 60°C. S'assurer que la circularité d'eau dans les chaudières est effective.
- Ne jamais injecter dans la croucière de l'eau à basse température
3. Mise en service du brûleur
- Vénifier la puissance ou brûleur par rapport à la puissance nominale de la chauxière.
- Verifier que tous les organes de sécurité soient bien callibrés et correctement riscocrées, acquées de sécurité vase
c'expansion et thermotats.
Verifie le non-fonciatement des circulaires
- Ouvre les vanres de l'installation
- Démamer le brûleur.
4. Verification
Après avoir vérifié la charge ou brûleur, faire ces réglages et contrôler les caractéristiques de combustion température de furnées. CO2, CO et indice de noircissement Vérifier le non fonctionnement des thermostats de réglage et de sécurité, le thermostat minimum et l'Interrupteur d'ouverture de pointe.
- Vérifier le fonctionnement de la soupape de sécurité (pression max. 6 bar) en l'actionnant manuellement.
Verifie le centre ventilée en du local de enoule et la centromité de la échéminée.
- Vérifier si la température ou retour n'est pas intérieure à 60°C
et si is, ocule de recyclage primaire est raccordée et a son l'ancienement est correct (page 7)
5. Recommendations
Pour éviter la détermination du rétractaire de porte, laisser la chaudière fond creter à faible allure pendant 24 heures.
6. Réglage des thermostats
Régier le thermostat (B) de la petite allure à la température de fonctionnement désirée.
Régier le thermostat (C) de grande allure à une température inférieure de 10°C à la consigne du thermostat de petite suture
eNtRetleN
L'entretien de la chaudière doit se faire au moins une fois par an. Un entretien régulier diminue votre consommation et augmentera la durée de vie de votre chaudière. Pour nettoyer la chaudière, procéder comme sur:
- Déconnecter le brûleur (déclencher l'interrupteur général) - Ouvir la porte loyère
• Extraire les chicanes en acter
- Nettoyer les tubes de turnées avec une brousse en ter
• Remeltre les chiosnes en place
- Nelloyer le loyer et extraire des résidus
- Devisse la boîle de l'arrées de la boîle de l'arrées - Nelleyer la boîle de l'arrées et revisse la trappe (vérifier son d'anchéile)
- Nettoyer la tête de combustion du prûleur et les électrodes d'allumage
- Nellayer ou remplacir les gelsurs.
• Vérifier le réglage de Is. tête de combustion
- Re hammer a porte loyers et mise en service
- Effectuer un contrôle de combustion - Effectuer des purges périocicours pour éliminer les dépêts de bœques en carles basas de la chaudière
- Ne jamais v danger l'installation sans nécessité absolue.
Remarque:
Dans le cas d'utilisation de fuel lourd, prévoir un nettoyage tous les mois et dès que la température des fumées augmente de 30°C.
"VOOR" IN dleNst steLLING
• de retarders citnemen
Notice Facile