R25 - Chauffage NESTOR MARTIN - Notice d'utilisation et mode d'emploi gratuit
Retrouvez gratuitement la notice de l'appareil R25 NESTOR MARTIN au format PDF.
| Caractéristique | Détails |
|---|---|
| Type de chauffage | Chauffage à bois |
| Puissance nominale | 8 kW |
| Rendement | 80% |
| Volume de chauffage | Jusqu'à 200 m³ |
| Dimensions | H 1100 mm x L 600 mm x P 450 mm |
| Poids | 150 kg |
| Matériaux | Acier et fonte |
| Système de combustion | Double combustion |
| Émissions de CO | 0,12% |
| Normes de sécurité | Conforme aux normes CE |
| Entretien | Nettoyage régulier du foyer et des conduits |
| Garantie | 2 ans |
FOIRE AUX QUESTIONS - R25 NESTOR MARTIN
Questions des utilisateurs sur R25 NESTOR MARTIN
0 question sur cet appareil. Repondez a celles que vous connaissez ou posez la votre.
Poser une nouvelle question sur cet appareil
Téléchargez la notice de votre Chauffage au format PDF gratuitement ! Retrouvez votre notice R25 - NESTOR MARTIN et reprennez votre appareil électronique en main. Sur cette page sont publiés tous les documents nécessaires à l'utilisation de votre appareil R25 de la marque NESTOR MARTIN.
MODE D'EMPLOI R25 NESTOR MARTIN
- Notre apparéil de chauffage a été construit avec soin pour vous procurer satisfaction et le meilleur service.
- Le可以选择 que vous aze fait ne pouvait etre plus judicieux.
- L'efficacité de votre apparéil dépendra de la bonne observance des recommandations suivantes.
Avant l'installation, vérifier que les conditions de distribution locale (l'identification de la catégorie de gaz et de la pression) et les réglages de l'appareil sont compatibles.
EQUIPMENT
Cet apparéil est équipé de la vanne MERTIK-MAXITROL N° GV60 et de la veilleuse MERTIK MAXITROL
N° G30-ZP1
COMMENT ACCEDER A L'INTERIEUR DU FOYER
- Ouvrir la porte à l'aide de la poignée située à gauche du foyer.
- Refermer la porte pour le fonctionnement.
Remarques:
- L'appareil ne peut fonctionner si les imitations buches sont brises et reposent sur le bruleur.
- L'appareil ne peut pas fonctionner porte ouverte.
COMMENT ACCEDER A LA VANNE
La vanne se trouve derriere la porte inférieure de foyer. Pour ouvrir celle-ci tirez-la vers soi du cote gauche.
REEMPLACEMENT DE LA VITRE
N.B.: il est interdit de faire fonctionner l'appareil avec la vitre brisée. Ouvrir la porte comme indiqué ci-dessus.
Dévisser et enlever les supports vitre.
Remetre le nouveau verre. Remplacer eventuellement les joints. Remetre les supports. Serrer sans excès.
BRULEUR CERAMIQUE
Votre appareil est equipé d'un brûleur gaz entièrement en fibres céramiques. Le brûleur céramique Nestor Martin présente de nombreux avantages techniques et esthétiques :
- Rougeoiement et flammes proche d'un feu de bois.
- Absence de rayonnement vers les organes de contrôle (vanne, récepteur, etc.)
- Rendement de combustion exceptionnel.
Le brûleur céramique a trois plots de positionnement pour vous aider à placer correctement les bûches en céramique.

plots de positionnement pourbuches
ceramiques
encoches pour la buche D
Brûleuré ceramique
CONTENU DU KIT BUCHES
Le kit est composé de six buches en fibres céramiques. Ces pieces étant fragiles, elles sont emballées séparément pour éviter tout dommage durant le transport. Le placement d'un type de buches non fourni par le constructeur est interdit, cela peut nuir à la combustion.

PLACEMENT DES BUCHES CERAMIQUES
Ouvrir la porte pour acceder à l'intérieur du foyer et placer les buches sur le bruleur selon les images cidesous. Il est imperatif de positionner les buches correctement.

Placer la bùche A sur le brûleur sur les plots de positionnement arrière.

Placer la bùche B sur le plot de positionnement avant.

Placer la bùche C entre les deux autres

Placer une bùche D sur le côte droit du brûleur dans les encoches, et appuyée contre la bùche A

Placer une bùche D à gauche du brûleur, appuyée contre la bùche A

Placer une bùche D à droite du brûleur.
PLACEMENT DES CUBES CERAMIQUES :
Un sachet de cubes céramiques est fourni pour usage avec le brûleur céramique. A l'échauffement, ces cubes rougoyent et scintillent comme de vraies braises. Le sachet fourni contient plus de cubes que nécessaire. Garder les cubes restants pour le remplacement ultérieur.
Conserver les cubes dans un endroit sec, loin de toute liquide inflammable. Il est conseilé de porter des gants dans la manipulation des cubes céramiques. Bien se laver les mains immédiatement après pour éviter irritation.
Le placement correct des cubes est important car l'effet de rougeoiement n'est possible que si elles sont en contact avec les flammes. Ne pas forcer les fibres dans les trou s du bruleur au risque de les boucher.
Zones de placement des cubes céramiques :

SPECIFICATIONS
de raccordement gaz : 1 / 2 "ou 38 ^
| Gaz Pres | s. du réseauPascal mm | Ø inject brûleur | Allure nominale Allure réduite n° inject. | veilleuse | |||
| débit horsaire | pression brûleur Pascal | débit horsaire | pression brûleur Pascal | ||||
| G20H 2000 | 4 x 1.07 0,662 m | 3 | 1330 0,488 m3 | 720 27.2 | |||
| G25L 2500 | 4 x 1.07 0,687m | 3 | 1450 0,475m3 | 690 27.2 | |||
| G31 | 3700 | 4 x 0.66 | 0,474 kg | 3640 | 0,314 kg | 1660 | 22.1 |
G20 = gaz naturel METHANE - G25 = gaz naturel - G31 = gaz propane N.B.: 1mbar = 10mm CE
N.B.: 1mbar = 10mm CE = 100 Pa. Les appareils sont scellés en usine pour l'utilisation du gaz naturel (G20 et G25).
UTILISATEURS
INSTALLATION
L'appareil doit être raccordé à une cheminée d'évacuation et donc place à proximé de celle-ci. Placer et raccorder chez radiateur, c'est l'affaire d'un homme de métier. Vote installateur veillera à ce que tout se passse conformément aux règles de la technique et de la sécurité. Il prendra soin de vérifier le bon fonctionnement de l'appareil selon la nature du gaz. Pour raccorder le convecteur à la canalisation, il évitera d'utiliser un tuyau flexible en caoutchouc, formellement interdit pour des raisons de sécurité. Le radiateur sera place à 15 cm au moins du mur arrêté et 20 cm des murs lateraux. Si ceux-ci sont constitués de matériaux inflammables, nous conseillons le placement d'une plaque en tôle aluminée (min.0,7mm d'épaissur) de 600 mm de largeur et de 800mm de hauteur, décollée du mur de 5mm. Elle sera placée en face des parties rayonnantes de l'appareil. Dans tous les cas, l'appareil doit être place à au moins 40cm de tous matériaux combustibles (rideaux, tentures, bois...).
MISE EN SERVICE
Afin de conserver à l'appareil son aspect impeccable, il conviendra de prendre les précautions suivantes lors de la mise en service : avant l'allumage, nettoyer à l'eau légèrement savonneuse toutes les pieces et parties extérieures et essayer avec un chiffon doux; pendant que l'appareil s'échauffe, essayer régulierement avec un chiffon doux et sec les exsudations et condensations qui apparaissent sur les surfaces. Le fonctionnement du radiateur obéit à une vanne thermostatique.
SECURITE
La veilleuse des convecteurs gaz est equipée d'une sécurité thermoélectrique. Si la veilleuse s'est int pour une raison ou l'autre, l'alimentation en gaz du brûleur et de la veilleuse sera automatiquement coupée. Il n'y a donc aucun risque d'échéappement de gaz non brûlé.
L'appareil devra etre remis en service pour fonctionner a nouveau. Il est bon d'attendre quelques minutes avant de proceder au rallumage de la veilleuse. En aucun cas, le rallumage ne peut etre effectue endeans les trois minutes. Nos appareils sont munis d'un hublot garni d'une vitre en verre refractaire. Lorsque la vitre est cassee ou fissuree, l'appareil ne peut etre utilise que lorsque la reparation a ete efectuée.
ENTRETIEN
Quelques conseils: pour nettoyer la vitre souillée extérieurement, arrêté l'appareil et attendre son refroidissement complet. Utiliser un chiffon humide ou imbibé d'alcool et laisser sécher (dans le cas d'alcool, attendre dix minutes avant de rallumer). Les pieces émailées et les pieces chromées doivent être nettoyées froides. Pour l'émail, utiliser une éponge humide, légarement savonneuse. Rincer et sécher soigneusement. Ne pas laisser des taches de liquides acides (vinaire, citron). Enlever les taches deGRAISSÉ à l'eau très chaude, additionné de cristaux deSoude ou de tout autre produit commercial recommendé pour l'entretien de l'émail. N'utilise jamais sur les pieces chromées ou dorées de produits mordants, abrasifs, chiffons métalliques, sous peine de les rayer. Aucun encrassement interieur de votre convecteur n'est à craindre.
Remarque :
La première mise à feu entraine toutes une oedur de brûlé qui disparait définitivement après quelques heures de fonctionnement. Àpres cette première mise à feu, il convient donc parfois de nettoyer la vitre avec un chiffon doux et un produit de nettoyage standard pour vitre.
RECOMMANDATIONS
Raccorder l'appareil à l'aide de tubes métalliques uniquement. L'emploi d'un tuyau flexible en caoutchouc est strictement interdit. Lorsque l'appareil est mis hors service, fermer le robinet d'arrêt sur la canalisation de gaz. Faut-il rappeler que toute fuite de gaz se signale par une odeur caractéristique. Il faut procéder comme suit: fermer le robinet d'arrêt général: ouvrir portes et fenêtres; vérifier si aucun robinet n'est resté ouvert. Si ces opérations s'avertient insuffisantes, fermer le compteur et prévenir l'installateur ou le service du gaz. Il est formellement interdit de rechercher les fuites au moyen d'une flamme. L'étanchéité des canalisations sera vérifiée à l'aide d'eau savonneuse ou d'un produit spécifique du commerce.
Important: En pénétrant dans un local ou l'on perçoit une oedur de gaz, il est essentiel de ne pas fumer, de ne pas produit de flamme, de ne pas manœuvrer un interrupteur ou un apparéil électrique quelconque.
La puissance de l'appareil ne doit pas etre surevaluee par rapport au volume a chauffer.
VERSION EMAILLEE
Les fendillements qui se produit sur une piece émailée et qu'en terme de métier nous appelons « trésaillures » ne peuvent enaucun cas constituer un défaut de fabrication.
Ces fendillements sont le résultat d'une différence de coefficient de dilatation entre la fonte et l'email; ils ne nuisent du reste en rien à la parfaite adhérence de l'émail.
ATTENTION: POUR VOTRE SECURITE
Faites installerer votre apparéil par un professionnellement compétent. En cas de problèmes, adressez-vous directement à lui. Demandez-lui de vous procurer des pieces originales NESTOR MARTIN, attention aux contréfaçons. Dans le cas d'une'utilisation dans une crèche ou tout autre local où la présence d'enfants, de personnes âgées et/ou d'infirmes est possible, il est recommendé de prévoir une protection afin d'éviter les contacts avec les surfaces actives.
FONCTIONNEMENT DE L'APPAREIL
Allumage manuel de la veilleuse
Vérifiez que le cable d'allumage est raccordé à la cosse piezo

(NOTE: pour l'utilisation avec télécommande, ce cable doit être raccordé au récepteur et non pas à la cosse piezo).
Basculer l'interrupteur sur la vanne en position d'allumage (1).

Tourner le sélecteur en position "MAN". Une douille métallique est visible.

Enconcer la douille à l'aide d'un stylo ou autre outil pour amener le gaz à la veilleuse. Tout en tenant la douille enfoncée, appuyer l'allumeur piezo une ou plusieurs fois pour allumer la veilleuse. (au cas où le piezo n'est pas raccordé, il est également possible d'allumer la veilleuse avec une allumette).

allumeur piezo
Maintenir la douille enfoncée encore 10 secondes. Répéter évientuèlement si la veilleuse ne reste pas allumée. Si l'étinçelle ne se produit pas avec le piezo, vérifier le conducteur, les raccords et la bougie.
Lorsque la veilleuse est allumée, laisser remonter le douille et le tourner le selectorateur jusqu'à la position "ON"

Allumage manuel du bruleur
Tourner le bouton de commande pour allumer le brûleur et ajuster l'allure voulue.


Extinction manuelle du bruleur
Tourner le bouton de commande dans le sens horologique jusqu'à la position "OFF" pour éteindre le brûleur et remettre l'appareil en mode veilleuse. La veilleuse d'allumage peut toujours rester allumée, elle vous permet alors une utilisation rapide de votre apparéil.

Extinction de la veilleuse
Si you prévoyez de ne pas utiliser l'appareil pour une longue durée, appuyer sur l'interrupteur (position O) pour éteindre la veilleuse.

2. FONCTIONNEMENT AVEC TELECOMMANDE
Télécommande Mertik Maxitrol G6R-H3
ATTENTION: lisez attentivement ces instructions avant utilisation. La G6R-H3 doit être installée et utilisese selon les normes en vigueur dans votre région.
Composants du kit G6R-H3:
Commande à distance (avec thermostat et programmateur hora intégrés)

Récepteur Câble

Utiliser des vis 2,9 type DIN7981, longueur max. 5mm Attention: Lors de l'installation du recepteur, vérifie que l'ouverture du capteur est positionnée de façon a pouvoir receivevoir les ondes de son.

Données techniques
Transmission par ultrason Portée 1-10m (3'-33')
Fréquence ON 40,5 KHz; OFF 40 kHz
Température ambiente
Télécommande et récepteur: Câbles max. 180^ (356°F)
max. 60^ (140°F)
Files
Télécommande
Récepteur
1x9V 4x1,5V
Connexions

Télécommande: mode d'emploi
La télécommande peut être utilisé dans trois modes de fonctionnement différents: Manuel, Thermostatique et Timer
Manuel: dans ce mode de fonctionnement, tout les réglages d'allure du feu se font manuellement avec les touches et
Thermostatique: dans ce mode de fonctionnement, tout les réglages d'allure du feu se font automatiquement pour maintainir la température programmée. Il est possible de programmer une température de jour et une de nuit.
Timer: dans ce mode de fonctionnement, tous les réglages d'allure du feu se font automatiquement et par périodes. Vous avez la possibilité de programmer deux températures désirées ainsi que les heures des cycles de fonctionnement de votre apparéil. Ce système convient bien, si, par exemple, vous souhaitez qu'il fasse 20^ entre 7h00 et 15h00 et qu'il fasse 22^ entre 18h00 et 6h00.
Meme si vous utilisez votre kit télécommande en mode TIMER, vous avez toujours la possibilité de commande manuelle avec les touches et

Configuration de l'affichage
- Appuyer les touches OFF et en même temps pour chaque secondes pour basculer entre l'affichage anglo-saxon (degrés Fahrenheit et horloge à 12 heures) ou l'affichage international (degrés Celsius et horloge à 24 heures)
Réglage de l'heure
Appuyer les touches et en meme temps, et l'affichage commence a clignoter.
Utiliser la touche pour changer l'heure et la touche pour changer les minutes.
Appuyer sur OFF pour valider votrechoix ou attendre le retour automatique après environ 15 secondes.
Allumage automatique de l'appareil
- Appuyer les touches & et ▲ simultanément. Un signale sonore confirme le début du séquence d'allumage.
- Si la veilleuse était déjà allumée, il suffit d'appuyer la touche et le brûleur s'allume directement.
Extinction du brûleur
- Appuyer la touche et tener quelque secondes pour eteindre le bruleur principal et passer en mode veilleuse. La mode veilleuse yous permect un rallumage rapide a la prochaine utilisation.
Extinction complet de I'appareil (brûleur et veilleuse)
- Si vous prévoyez de ne pas utiliser l'appareil pour une longue durée, appuyer la touche OFF pour éteindre le brûleur principal ainsi que la veilleuse.
Sélection du mode d'opération
Appuyer la touche SET plusieurs fois pour changer le mode d'opération. Vous pouvez désirer entre Manuel (MAN), Température de jour (TEMP), Température de nuit (TEMP), ou Timer (TIMER)
Réglage manuel de la hauteur des flammes
Appuyer pour augmenter l'allure du feu. Le symbole MAN s'affiche a I'ecran, qui signifie que youes en mode manuel.
Appuyer pour diminuier l'allure du feu.
Le symbole (transmission) apparait a Iecran quand I'un de ces deux boutons est appuye.
- Des petites impulsions rapides permettent un changement progressive de la hauteur de flamme.
Programmation de la temperature désirée
Appuyer SET pour selectionner le mode d'opération: tempereure de jour (TEMP) ou de nuit (TEMP)
Appuyer SET et tener enforcé quelque secondes jusqu'à ce que l'affichage commence à clignoter.
Utiliser les touches et pour regler la température désirée.
Appuyer sur OFF pour valider votrechoix ou attendre le retour automatique après environ 10 secondes.
Si you souhaitez que l'appareil s'éteigne la nuit, appuyer jusqu'à ce que -- s'affiche sur l'écran.
- Un capteur à l'intérieur de la télécommande mesure la température ambiente. Le contrôle comparé la température ambiente avec la température désirée et envoi un signal au récepteur de régler l'allure du feu.
Réglage du programmeur horsaire
- Appuyer SET pour sélectionner le mode d'opération TIMER
Appuyer SET de nouveau pendant environ quatre secondes jusqu'à ce que le symbole P1 clignote (ceci signifie période 1 de jour) - Régler l'heure du début de la première période de chauffage, en utilisant pour changer l'heure et pour changer le minutes.
Appuyer TIMER de nouveau; le symbole P1D apparait. (ceci signifie période 1 de nuit) - Régler l'heure du début de la première période de nuit.
- Maintenant appuyer TIMER pour programmer le début de la deuxième période de jour P2 et le début de la第二种 période de nuit P2).
- Enregister les deux périodes que vous venez de programmer en appuyant TIMER encore une fois.
Si you ne désirez qu'une seule période de chauffage, programmer la même heures pour P2 et P2.
Contrôle de Température en mode d'opération TIMER.
- Si vous étés en mode d'opération Thermostatique (TEMP), vous pouvez contrôler à tout moment la température programmée
Appuyer une fois sur la touche SET. La température programmée s'affichera à l'écran. - ÀpRES environ trois secondes, la température ambiente reviendra à l'écran.
Entretien du kit Telekomande
Pour prolonger la durée de vie des piles, passer en Manuel en appuyant avant d'eteindre complètement votre apparéil de chauffage. Si vous laissez la télécommande en mode thermostatique ou TIMER, les piles continueront à s'userpendant que l' apparéil est étéint.
Si le symbole BATT apparait sur I'ecran ou si I'affichage devient moins visible, changer les piles de la telecommande ou du recepteur.
Notes
L'emplacement de la telecommande est important pour assurer un reglage précis de la temperature. Généralement, une température plus constante sera assurée si la telecommande n'est pas trop loin de l'appareil de chauffage. Néanmoins, il est déconseilé d'utiliser la telecommande à moins d'un mètre du récepteur car dans de rares cas, ceci pourrait produit une erreur de commutation électronique. Cette erreur pourrait bloquer le moteur quand le bouton arrive aux l'extrémités de sa course. Pour le débloquer, tourner le bouton manuellement.
Pour que les fonctions TEMP et TIMER puissant être efficaces, il faut que la télécommande soit dans sa portée (de 1m à 10 m)
La température est contrôle par l'activation du moteur pendant une durée spécifique pour atteindre la hauteur de flames nécessaire. Cette durée est déterminée par la télécommande et dépend des dimensions de la pierce, de la capacité de votre apparéil de chauffage, du combustible, etc. Quelques cycles sont nécessaires avant que la durée optimale soit atteinte. Si une petite flâme est suffisante pourCHAuffer cette puèce à la température désirée, alors l' apparéil basculera entre une petite flâme et l'extinction. Ceci permet des périodes prolongées de fonctionnement où la flâme est visible, et permet aussi une température plus constante.
INSTALLATEURS
OBJET
Cette partie est destinée à donner les instructions générales de placement de nos radiateurs. Elle s'ausses aux installateurs qualifiés qui seuls pourront réaliser l'installation suivant les règes de l'art.
TYPES D'INSTALLATIONS
Votre apparéil est certifié pour plusieurs types d'installation:
A.) Sortie de buse verticale et a travers un mur extérieur.
B.) Sortie de buse horizontally et a travers un mur extérieur.
C.) Sortie de buse verticale et a travers le toit.
Dans toutes les installations, il faut respecter une distance minimum de 20cm entre l'arriere de l'appareil et le mur

A. B.


C.
S25##3700A
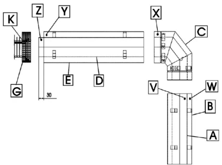
MONTAGE DES BUSES
- Tracer sur le mur le centre et le bas du trou à percer (pour installations de type A ou C, voir page 35). Il faut que le sol interieur soit à niveau définitif, si non en tener compte lors des mesures.
Percer le trou d'évacuation de diam. 150 mm perpendicular to au mur ou de préférence avec une pente de 1 à 3% vers l'extérieur.
Remarque : les dimensions de ces buses correspondant à une épaissieur de mur de +/- 583 mm.
Si la dimension de votre mur est inférieure a 583 mm il conviendra de recouper les buses E et D; pour ce : - mesurer exactement l'épaissur de votre mur M (enduits et crépis inclus)
- couper la buse E du côté opposé au trou Y à une longueur égale à l'épaisseur M du mur + 17 mm.
- couper la buse D du côté opposé au trou Z à une longueur égale à l'épaissur M du mur + 47 mm.
Si la largeur de votre mur est supérieure à 583 mm et/ou si la hauteur du trou a pearch dans le mur est supérieure à 1026 mm vous pouvez commander des rallonges d'un metre.


Emboiter la buse A (89 L 330mm) sur le buselot int. de l'appareil (le trou V always vers le haut).
- Emboiter la buse B (Ø 145 L 330 mm) sur le buselot ext. de l'appareil (le trou W vers le haut).
- Emboiter l'ensemble coude C sur ces deux buses (le trou X vers le haut).
- Placer la tete de ventouse G sur la petite buse D (Ø 89 L 630 mm), pousser la à butée, repérer et percer les 3 trous de fixation K de la tete de ventouse sur cette buse (forage Ø 2 mm).
- Emboiter cette buse sur le coude C (le trou Z vers la ventouse) ainsi que la buse E (Ø145 L 600 mm) (le trou Y vers la ventouse), replacer et fixer la ventouse G.
- Tracer et forer sur la buse E, 2 trous opposés 2 mm correspondant à 2 trous du treillis de la ventouse, y visser les 2 vis inox.
- Emboiter les buses dans le trou 150 mm du mur, réaliser un joint entre la buse et le mur.
-Faites le raccordement gaz.
Remarque : Verifier si les cotes de montage sont bien respectees ainsi que le bon placement de la ventouse. Le mur ou sera place l'appareil devra supporter une temperture de 75^ . Si pas, prévoir une protection thermique.

Dans le cas d'une installation à travers un mur (type A), respectez une distance de 12mm entre le mur et le conduit interieur, et une distance de 42mm entre le mur et le bord de la grille.
RACCORDEMENT GAZ
Il est indispensable de prévoir un robinet de barrageq facilement accessible sur la canalisation de gaz avant le radiateur. Le raccordement se fera en tuyaux metalliques rigides et sera d'un diametre suffisant pour assurer, à l'entrée de l'appareil, la pression prevue au tableau des caractéristiques de fonctionnement du radiateur.
PLACEMENT
Avant leur sortie de l'usine tous nos radiateurs sont minutieusement controlés et scellés pour le gaz dont le type est indiquée par une étiquette placé au dos de l'appareil. Si les conditions de distribution correspondent aux normes admises pour ce gaz, nos appareils peuvent être directement installés et mis en service. Voici les dispositions particulières à prendre pour cette installation qui, par ailleurs, se fera en conformité avec les règlements existants pour tout raccordement d'appareil gaz.
Belgique:norme N.B.N.D 51003. Placer un robinet d'arrêt agre A.R.G.B.
France : Arrêté du 2 août 1977 relatifs aux Règles de sécurité applicables aux installations de gaz combustible
- Norme DTUP45-204 - Règlement Sanitaire Départemental
VEILLEUSE
Les flammes de la veilse doivent avoir une longueur suffisante pour depasser la sonde de ± 10mm . Si la sonde du thermocouple est insuffisament chauffee, soit par une baisse anormale de pression soit par suite d'une coupure de gaz ou par deviation de la flamme de veilse, I'appareil se met en securite. On peut regler la veilse par action sur la vis 5 de la vanne. Visser = diminuier et inversement.

BRULEURS
Les apparèils gaz naturels sont régés et scellés en usine, et ne nécessitantaucun réglage. La pression du brûleur doit être conforme aux indications des caractéristiques de fonctionnement du radiateur. Utiliser un manomètre de pression permettant une lecture de pression allant jusqu'à 5000 Pascal au moins. Le brûleur étant à l'arrêt, dévisser la vis interieure de l'embout de la prise de pression se trouvant sur le bloc porte-injecteur ou à la sortie de la vanne.
Y'brancher le flexible du manometre.
- Allure nominale: la température du bulbe doit être inférieure à 25^ . Mettre le bouton de la vanne sur la position d'ouverture maximale. Contrôler la pression indiquée par le manomètre. Pour changer cette pression, suivre les instructions données au paragraph qui déscrit la vanne et la veilleuse.
- Allure réduite: la température du bulbe doit être supérieure à 18^ . Mettre la manette de la vanne sur la position qui précède l'extinction du brûleur. Le brûleur doit à ce moment fonctionner au début réduit. Contrôler la pression sur le manomètre. Si elle n'est pas conforme à cette du tableau des caractéristiques de fonctionnement du radiateur, suivre les instructions données par celui-ci.
DESCRIPTION DE LA VANNE Vanne MERTIK MAXITROL GV

- bouton de commande
- selecteur d'allumage manuel
- vis de réglage ralenti
- vis de réglage début maxi
- vis de réglage du début de veilleuse (avec tournevis)
- prise de pression alimentation
- prise de pression brûleur
- cosse de raccordement pour allumeur piezo (tab 2,8 x 0,8mm)
- Réglage de l'allure nominale
Si la pression au bruleur est inférieure a celle qui est indiquee dans le tableau des caractéristiques du radiateur, tourner la vis 4 dans le sens anti-horologique. Si la pression est trop elevée, tourner dans le sens contraire. N.B.: la vanne est munie d'un réglage de début pour le gaz naturel scelled en usine à la pression conforme.
- Réglage de l'allure réduite
Cette position est fixée par la vis de réglage n^3 . Visser = diminuér et inversement.
- Réglage de la veilleuse
La vis 5 permet l'ajustement du débit veilleuse (dévisser = augmenter le débit - visser = diminuer le débit). Tourner le sélecteur en position "ON" pour acceder à la vis 5. N.B.: les prérogliages sont effectués en usine. Un débit trop faible peut entraîner de légères explosions tandis qu'un débit trop élevé engendre une grande consommation. Le réglage doit s'effectuer à l'aide d'un tournevis.
Remarque: lorsque l'appareil est arrêté durant la période d'inertie du thermocouple (30 à 50 secondes), une sécurité empeche le rallumage immédiat de l'appareil.
- Conversion
Les apparèils sont fournis d'usine en catégorie gaz naturel.
N.B.: Avant l'expédition, les apparêls sont vérifiés et scellés par une touche de couleur. Nous ne pouvons plus garantir le bon fonctionnement de l'appareil si l'un ou l'autre des sceaux a été détruit. Les apparêls sont vérifiés et scellés pour tous les gaz G20 et G25 (pour ces gaz, aucun réglage n'est nécessaire, seul un contrôle des pressions et de l'étanchéité doivent être effectuels après installation).
VEILLEUSE MERTIK MAXITROL G30-ZP1

CONVERSION
Les apparèils sont agrés en catégorie II_2E + 3P . Si l'appareil doit fonctionner avec un gaz différent de celui pour lequel il a été scellé en usine (G20 et G25), il faut faire les modifications suivantes:
- remplacer l'injecteur par l'injecteur conforme (voir tableau des caractéristiques de fonctionnement). Le perçage des injecteurs est renseigné en centièmes de mm. Ne pas oublier les joints d'étanchéité, bloquer convenablement l'injecteur.
- remplacer l'injecteur de veilleuse
verifier et faire les reglages MAX et MIN suivant les pressions du tableau des caractéristiques. - régler la bague d'air.
Coller l'étiquette « REGLE PROPANE »
N.B.: Avant l'expédition, les apparêls sont vérifiés et scellés par une touche de couleur. Nous ne pouvons plus garantir le bon fonctionnement de l'appareil si l'un ou l'autre des sceaux a été détruit. Les apparêls sont vérifiés et scellés en gaz naturel (voir plaquette signalétique). En cas de transformation, ne pas outlier de coller l'étiquette « REGLE PROPANE »
BAGUE D'AIR
La bague d'air limite la quantite d'air de combustion entrant dans le bruleur. Elle doit etre ouverte au maximum pour usage avec les gaz G20 (naturel), G25 (naturel) et G31 (propane). Tourner le vis de reglage dans le sens anti-horologique pour ouvrir.


$$ X = $$
$$ \mathrm {G} 2 0 = 8 \mathrm {m m} $$
$$ \mathrm {G} 2 5 = 3 \mathrm {m m} $$
Votre appareil est equipé d'un loquet de porte reglable. Pour un fonctionnement correct, la fermeture de la porte doit etanche lorsqu'elle est fermée. Pour regler le loquet, deviser l'écrou de serrage puis avancer ou reculer l'écrou de réglage selon le besoin. Ensuite resserrez l'écrou de serrage. Régler de façon à ce que la porte soit etanche lorsque la poignée est complètement fermée.

GARANTIE
NESTOR MARTIN garantit aux propriétaires de cet apparéil pendant la période de garantie stipulée plus bas que l' apparéil est dépourvu de défaut de matière et de fabrication. Cette garantie est assortie des conditions spécifiées ci-dessous.
La carte de garantie ci-dessous doit nous parvenir dans les 15 jours qui suivent l'installation de l'appareil. Cette garantie est limitée au remplacement des pieces et ne couvre pas la main d'oeuvre. Tous les frais de main d'oeuvre pour le remplacement des pieces sont à votre charge.
| 1 AN 5 ANS | |
| VANNE BRULEUR VEILLEUSE PIECES EMAILLEES OU LAQUEES | CHAMBRE COMBUSTION |
Exclusions :
La rouille due à la condensation n'est pas couverte.
- Les bruits de dilatation ou rétraction lors de l'allumage et de l'extinction ne sont pas couverts
- Les éclats ou les dommages des surfaces émailées ou laquées déclarés plus de 7 jours après l'installation ne sont couverts par aucune garantie. Inspectez cette poèle avant de l'accepter pour déceler tout défaut de l'émail.
La garantie ne couvre pas le thermocouple, les injecteurs, la vitre, les imitations buches.
Toutes les opérations de maintenance et/ou de remplacement de pieces doivent être effectuees pour vous par une société d'entretien ou un spécialiste, reconnu par les distributeurs NESTOR MARTIN. Pour obtenir une intervention de la garantie pour une piece defectueuse, faites replacer la piece et renvoyez la piece defectueuse au distributeur NESTOR MARTIN pour inspection. Si le defaut est couvert par la garantie, la piece de rechange ne vous sera pas facturée. Les frais de transport de la piece de rechange et le retour de la piece defectueuse sont a toue charge. Ce remplacement ou cette réparation en garantie sera soumis aux termes et conditions de cette garantie pour le restant de la période couverte d'origine.
Cette garantie ne couvre aucun defaut ni problemes de fonctionnement dus a un accident, un usage abusif, inapproprié, des modifications, une mauvaise installation ou un mauvais entretien ou maintenance. Le nettoyage du bruleur ou de la veilleuse et les frais de déplacement d'un agent NESTOR MARTIN auprès d'un utilisateur ne sont pas couverts par la garantie. Un apparil achete emporté dans un magasin n'est pas garanti par l'usine.
Toute intervention sous garantie ne peut s'effectuer que via un installateur reconnu par NESTOR MARTIN. Dans le cas contraire, les frais d'intervention sont dus de plein droit.
V
CARTE DE GARANTIE A DETACHER ET A RENVOYER A THERMIC DISTRIBUTION. GARANTIEKAART TERUG TE STUREN NAAR THERMIC DISTRIBUTION.
NOM/NAAM.
ADRESSE/ADRES.
MODELE/MODEL
DATE D'ACHAT/ AANKOOPDATUM.SERIE/REEKS.
VEUILLEZ GARDER UNE COPIE POUR VOTRE USAGE PERSONNEL GELIEVE EEN KOPIJ TE BEWAREN VOOR UW PERSOONLIJK GEGRIUK
Cachet de l'installateur/Stempel van installerateur
Notice Facile