EMILIA - Serre PALMAKO - Notice d'utilisation et mode d'emploi gratuit
Retrouvez gratuitement la notice de l'appareil EMILIA PALMAKO au format PDF.
| Type d'appareil | Serre de culture |
| Matériau | Verre et métal |
| Structure | Cadre en aluminium |
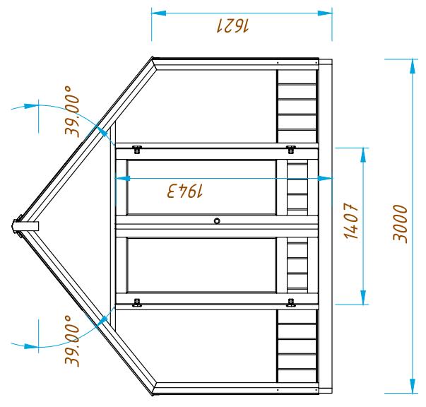
| Dimensions | Non précisé |
| Traitement de surface | Non précisé |
| Options de traitement | Disponibles |
| Code article | GYVPI 109532 |
| Inspection d'usine | Contrôle qualité effectué |
| Type de vitrage | Verre transparent |
| Installation | Auto-assemblage possible |
| Maintenance | Manuel fourni |
| Utilisation | Culture sous serre |
| Résistance aux intempéries | Adaptée |
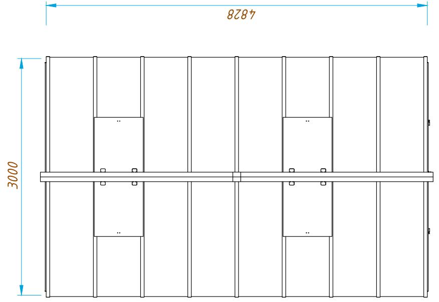
| Poids | Non précisé |
| Accessoires inclus | Non précisé |
| Garantie | Non précisé |
FOIRE AUX QUESTIONS - EMILIA PALMAKO
Comment assembler le PALMAKO EMILIA ?
Veuillez suivre les instructions détaillées fournies dans le manuel d'assemblage inclus dans l'emballage. Assurez-vous d'avoir tous les outils nécessaires avant de commencer.
Quels matériaux sont utilisés pour le PALMAKO EMILIA ?
Le PALMAKO EMILIA est fabriqué en bois de haute qualité, traité pour résister aux intempéries, et est disponible avec une finition durable.
Comment entretenir le PALMAKO EMILIA ?
Pour entretenir votre PALMAKO EMILIA, nettoyez-le régulièrement avec de l'eau savonneuse douce et appliquez une couche de protection pour bois tous les ans.
Quelle est la garantie pour le PALMAKO EMILIA ?
Le PALMAKO EMILIA est couvert par une garantie de 2 ans contre les défauts de fabrication. Conservez votre reçu pour toute demande de garantie.
Quel est le poids maximum supporté par le PALMAKO EMILIA ?
Le PALMAKO EMILIA peut supporter un poids maximum de 200 kg. Veuillez respecter cette limite pour garantir la sécurité et la durabilité du produit.
Le PALMAKO EMILIA est-il résistant aux intempéries ?
Oui, le PALMAKO EMILIA est conçu pour résister aux intempéries. Cependant, il est recommandé de le protéger des conditions extrêmes lorsque cela est possible.
Où puis-je acheter des pièces de rechange pour le PALMAKO EMILIA ?
Les pièces de rechange pour le PALMAKO EMILIA peuvent être commandées directement sur notre site web ou auprès de votre revendeur local.
Comment puis-je contacter le service client concernant le PALMAKO EMILIA ?
Vous pouvez contacter notre service client par téléphone au 01 23 45 67 89 ou par email à support@palmako.com pour toute question ou problème.
Téléchargez la notice de votre Serre au format PDF gratuitement ! Retrouvez votre notice EMILIA - PALMAKO et reprennez votre appareil électronique en main. Sur cette page sont publiés tous les documents nécessaires à l'utilisation de votre appareil EMILIA de la marque PALMAKO.
MODE D'EMPLOI EMILIA PALMAKO
| Pos. | Description | Measures (mm) | Pcs |
| EL1 | 657 x 390 x 45 | 2 | |
| EL2 | 2810 x 390 x 45 | 1 | |
| EL3A | 2370 x 390 x 45 | 2 | |
| EL3B | 2370 x 390 x 45 | 2 | |
| KUL-145 KUL-145-2 | 693 x 1818 x 40 | 1+1 | |
| 1 | □ : : : : : : : : : : : : : : : : : : : : : : : : : : : : : : : : : : : : : : : : : : : : : : : : : : : : : : : : : : : : : : : : : : : : : : : : : : : : : : : : : : : : : : : : : : : : : : : : : : : : | 4828 x 120 x 45 | 2 |
| 2 | □ : : : : : : : : : : : : : : : : : : : : : : : : : : : : : : : : : : : : : : : : : : : : : : : : : : : : : : : : : : : : : : : : : : : : : : : : : : : : : : : : : : : : : : : : : : : : : : : : : | 2910 x 120 x 45 | 2 |
| 3 | □ : : : : : : : : : : : : : : : : : : : : : : : : : : : : : : : : : : : : : : : : : : : : : : : : : : : : : : : : : : : : : : : : : : : : : : : : : : : : : : : : : : : : : : : : : : : : : : : : : / | 1502 x 95 x 44 | 2 |
| 4 | □ : : : : : : : : : : : : : : : : : : : : : : : : : : : : : : : : : : : : : : : : : : : : : : : : : : : : : : : : : : : : : : : : : : : : : : : : : : : : : : : : : : : : : : : : : : : : : : : : : 1502 x 95 x 44 | 2 | 2 |
| 5 | □ : : : : : : : : : : : : : : : : : : : : : : : : : : : : : : : : : : : : : : : : : : : : : : : : : : : : : : : : : : : : : : : : : : : : : : : : : : : : : : : : : : : : : : : : : : 1562 x 95 x 44 | 14 | 2 |
| 6 | □ : : : : : : : : : : : : : : : : : : : : : : : : : : : : : : : : : : : : : : : : : : : : : : : : : : : : : : : : : : : : : : : : : : : : 1879 x 95 x 44 | 2 | 2 |
| 7 | □ : : : : : : : : : : : : : : : : : : : : : : : : : : : : : : : : 1879 x 95 x 44 | 2 | 2 |
| 8 | □ : : : : : : : : : : : : : : : : : : 554 x 45 x 45 | 4 | 4 |
| 9 | □ : : : : : : : : : : : : : : 1879 x 95 x 44 | 14 | 4 |
| 10 | □ : : : : : : : : : 1893 x 95 x 44 | 3 | 3 |
| 11 | □ : : : : : : : 1893 x 95 x 44 | 1 | 1 |
| 12 | □ : : : : : 1893 x 95 x 44 | 1 | 1 |
| 13 | □ : : : : 2182 x 95 x 44 | 1 | 1 |
| 14 | □ : 2182 x 95 x 44 | 1 | 1 |
| 15 | □ 661 x 91 x 44 | 2 | 2 |
| 16 | □ 4976 x 240 x 80 | 1 | 1 |
| nelipaplev. 25. august 2022 11:10:09 | |||
| Greenhouse specification 1(3) | |||
| 20 | 1502 x 45 x 12 | 20 | |
| 21 | 1827 x 45 x 12 | 7 | |
| 22 | 1478 x 45 x 12 | 4 | |
| 23 | 1814 x 45 x 12 | 4 | |
| 24 | 1910 x 45 x 12 | 18 | |
| 25 | 1895 x 45 x 12 | 2 | |
| 26 | 2410 x 45 x 12 | 4 | |
| 27 | 1383 x 45 x 12 | 2 | |
| 28 | 1818 x 45 x 12 | 1 | |
| 33 | 360 x 173 x 15 | 32 | |
| 101 | Glass - clear, tempered | 578 x 1115 x 4 | 16 |
| 102 | Glass - clear, tempered | 578 x 1895 x 4 | 12 |
| 103 | Glass - clear, tempered | 578 x 1030 x 4 | 4 |
| 104 | Glass - clear, tempered | 680 x 1458 x 4 | 4 |
| 105 | Glass - clear, tempered | 704 x 1458 x 4 | 2 |
| 106 | Glass - clear, tempered | 700 x 1862x 4 | 2 |
| 107 | Glass - clear, tempered | 620 x 910 x 4 | 4 |
| Greenhouse specification 2(3) | |||
| F1 | QHP15x57Zr | Thermovent 7kg | 4 |
| F2 | 55 x 60 | 8 | |
| F3 | 62 x 40 x 13 | 18 | |
| F4 | QHP15x57Zr | 15 x 57 | 4 |
| F5 | QKRPP6x120RVTX | Ø 6 X 120 | 8 |
| F6 | QKRPP5x90RVTX | Ø 5 X 90 | 115 |
| F7 | QKRYP5x55RVTX | Ø 5 X 55 | 410 |
| F8 | QKRYP4_2x38RVTX | Ø 4.2 X 38 | 330 |
| F9 | QKRPP3_5x40RVTX | Ø 3.5 X 40 | 12 |
| F10 | QKRPP4x25RVTX | Ø 4 X 25 | 20 |
| F11 | Polt M6 | Ø 6 X 200 | 9 |
| F12 | QMUKK6Zr | M6 | 9 |
| F13 | QSE6x18Zr | Ø 6 X 18 | 18 |
| F14 | 2488 x 120 x 30 | 2 | |
| F15 | 100 x 121 x 31 | 1 | |
| F16 | QHA150Zr | 150 mm | 2 |
| F17 | QUNAL | 1set | |
| F18 | QRUAu | 1set | |
| F19 | QLIKA | 1set | |
| F20 | QTI3x8MU | 0.8 m | 1 |
| F21 | QR35100Zr | 35 x 100 | 2 |
| F22 | QKRYP3x16Zr | Ø 3 X 16 | 16 |
| Greenhouse specification 3(3) | |||




Notice Facile