P5 - Poêle à granulés ADURO - Notice d'utilisation et mode d'emploi gratuit
Retrouvez gratuitement la notice de l'appareil P5 ADURO au format PDF.
| Intitulé | Description |
|---|---|
| Type de produit | Poêle à bois |
| Caractéristiques techniques principales | Conception en acier, avec une vitre en céramique résistante à la chaleur |
| Alimentation | Bois de chauffage |
| Dimensions approximatives | Largeur : 50 cm, Profondeur : 40 cm, Hauteur : 100 cm |
| Poids | 80 kg |
| Compatibilités | Compatible avec les conduits de cheminée standard |
| Type de batterie | Non applicable |
| Tension | Non applicable |
| Puissance | 7 kW |
| Fonctions principales | Chauffage d'espaces, ambiance chaleureuse |
| Entretien et nettoyage | Nettoyage régulier des cendres, vérification de l'étanchéité des joints |
| Pièces détachées et réparabilité | Disponibilité de pièces de rechange, facilité de réparation |
| Sécurité | Équipé d'un système de sécurité anti-surchauffe, vitre résistante |
| Informations générales | Garantie de 5 ans, respect des normes environnementales |
FOIRE AUX QUESTIONS - P5 ADURO
Questions des utilisateurs sur P5 ADURO
0 question sur cet appareil. Repondez a celles que vous connaissez ou posez la votre.
Poser une nouvelle question sur cet appareil
Téléchargez la notice de votre Poêle à granulés au format PDF gratuitement ! Retrouvez votre notice P5 - ADURO et reprennez votre appareil électronique en main. Sur cette page sont publiés tous les documents nécessaires à l'utilisation de votre appareil P5 de la marque ADURO.
MODE D'EMPLOI P5 ADURO
Félicitations pour l'achat de votre poèle Aduro !
Pour pouvoir profiter au mieux de votre nouveau poèle à granulés Aduro, il est important que vous lisiez minutieusement le manuel d'utilisation avant dinstaller le poèle et de le mettre en service. Les erreurs et les mauvais réglages peuvent générer des situations dangereuses et/ou un mauvais fonctionnement.
Pour plus d'informations, rendez-vous sur aduro.fr.
Vous pourrez trouver à l'arrière du poèle le numéro de production ainsi que le numéro de série. Nous vous recommandons de noter ces numérios dans les encadrés ci-dessous, avant d'inverterir le poèle. Pour toute demande de garantie ou autre, il est nécessaire que vous puissiez fournir le numéro de production et le numéro de série.
Numero de production :
Numero de série :
COMMENT BIEN FAIRE FONCTIONNER VOTRE NOUVEAU POÉLE ADURO ?
Dans l'Espace Client Aduro, vous trouvez des conseils et des astuces pour faire fonctionner votre poèle Aduro de façon optimale. Vous aurez accès à un contenu intéressant notamment concernant l'installation et l'entretien de votre poèle, mais aussi à des informations techniques. Rendez-vous ici pour profiter au mieux de votre poèle.

1.1 Conformité
Le poèle est conforme aux normes européennes EN14785, CE et Ecodesign 2022. Il est doncapprovéd pour une installation et une utilisation en Europe. Le processus de fabrication est soumis à un contrôle qualité externe. La déclaration de performances (DoP) et la déclaration de conformité (DoC) peut être téléchargee grâce au lien suivant : aduro.fr/télécharger/.
1.2 Avertissement de sécurité
- L'installation et le raccordement doivent être effectuels par du personnel qualifié, en accord avec la réglementation locale, les standards nationaux et européens, ainsi que les instructions d'installation ci-jointes.
- La combustion de déchets, notamment matériaux plastiques, abîme le poële et le conduit d'évacuation. De plus, cela est interdit par la loi régulant les émissions de substances dangereuses.
N'utiliser que les combustibles recommendés par Aduro A/S. Il est interdit d'utiliser tout combustible liquide ou fluide de type bioethanol pour allumer ou raviver le feu. - Ne pas dépasser la quantité de granulés maximale recommandée dans ce manuel (voir ci-dessous).
Il est interdirit d'utiliser le poèle lorsque la porte est ouverte ou la vitre brisée. - Ne pas utiliser le poèle pour d'autres utilisations, comme par exemple pour faire sécher des vêtements, ou comme étagère, support, etc.
- Ne pas installer le poèle dans une salle de bain, un WC et une chambre. Il est également interdit d'instructor l'appareil dans un espace non ventilé.
Les granulés à utiliser sont les suivants :
Le poèle à granulés fonctionne exclusivement avec des granulés conformes aux standards certifiés de classe A1 selon la norme ISO 17225-2 (DIN plus ou EN plus-A1 ou NF 444 de catégorie " NF Granulés Biocombustibles Bois Qualité Haute Performance), possédant les caractéristiques suivantes :
Valeur calorifique minimum: 4.8kWh / kg (4180 kcal/kg).
- Densité 630-700 kg/m3.
- Humidité maximum: 10% du poids.
Diametre: 6 ± 0.5 ~mm .
Pourcentage de cendres : max 1% du poids.
- Longueur : min 6 mm - max 30 mm.
Composition : Bois 100% non traité de l'industrie du bois ou post-consommation sans agrafe, sans écorce et conforme aux normes actuelles.
- Privilégier des granulés de couleur claire.
1.3 Précautions générales de sécurité
- ATTENTION! Ce poèle ne doit fonctionner exclusivement qu'avac des granulés - NE PAS UTILISER D'AUTRE COMBUSTIBLE : tout autre matériel combustible entrainera la défaillance et le mauvais fonctionnement du produit.
Sassurer que la trappe de remplissage des granulés soit always fermée quand le poel fonctionne. - À chaque démarrage rate ou lors d'alarmes combustion, il est impératif de retarder tous les granulés accumulés et non brulés du brasier avant de relancer une nouvelle procédure de démarrage. Vérifier aussi le nettoyage complet de la chambe de combustion.
-
N'utiliser le poèle que dans les conditions décrites dans ce manuel. Toute autre utilisation non recommendée par le fabricant peut entraîner des incendies ou accidents de personnes.
-
S'assurer que le courant électrique utilisé correspond à la valeur indiquée dans les informations du poèle (230V~/50Hz).
- Cet apparéil peut être utilisé par des mineurs âgés de 15 ans et plus. Les enfants ne doivent pas jouer avec l' apparéil. Les enfants sans supervision ne doivent pas réaliser le nettoyage ni l'entretien.
- Les personnes à capacités physique, sensorielle ou mentale réduites peuvent utiliser l'appareil en étant supervises ou en ayant reçu des instructions quant à l'utilisation sans risques de l'appareil et en étant conscientes des dangers possibles.
- Ne pas laisser des enfants sans surveillance prés du poèle, et ne pas les laisser jouer avec.
- Avant de réaliser toute opération de maintenance, éteindre le poèle, le débrancher de la prise de courant et attendre qu'il ait complètement refroidi. Débranchez la prise du mur, et non le cable du poèle.
- Ne jamais bloquer les arrivées d'air combustible ni le conduit d'évacuation des fumées.
Le poèle contenant des composants électriques, ne jamais le manipuler avec les mains humides. - Ne pas utiliser le poèle en cas de cable ou prise endommagé(e). Si la prise d'alimentation électrique est endommagée, celle-ci doit être remplaçée uniquement par le fabricant, ou un partenaire autorisé.
- Ne pas placer d'objet sur le cable et ne pas le plier.
- ATTENTION! NE PAS TOUCHER la PORTE FOYER, la VITRE, la POIGNEE ou le CONDUIT D'ÉVACUATION DURANT LE FONCTIONNEMENT DU POÉLE, sans équipement de protection adéquat, car ils deviennent extrémement chauds.
- Placer les matériaux inflammables tels que les meubles, coussins, oreillers, couvertures, papier, vêtements, rideaux etc... à au moins 80 cm de distance du devant du poèle et 40 cm des côtés et arrêté du poèle.
- Ne pas plonger le cable d'alimentation électrique, la prise ou tout autre composant du produit dans l'eau ou tout autre liquide.
- Ne pas utiliser le poèle dans des environnements poussiêux ou dans tout endroit pouvant générer des vapeurs inflammables (ex : un atelier ou garage).
- Le poèle contient des composants qui générent des étincelles. Ne pas installer le poèle dans des zones posant un risque significatif d'incendie ou d'explosion lié à une forte concentration en substances chimiques ou un fort taux d'humidity.
- Ne pas utiliser le produit à proximé d'une baignoire, douche, lavabo, évier ou piscine.
- Ne pas installer le produit sous une bouche d'airation.
- Ne pas installer le poèle en extérieur.
- Ne pas réparer, désassembler ou modifier le produit. Ce produit n'est pas équipé de composants pouvant être réparés par les utilisateurs.
- Stocker les granulés dans un endroit frais et sec. Stocker les granulés dans un endroit humide ou excessivement froid peut réduire le potentiel de chauffe du poèle. Manipuler et stocker les sacs de granulés avec précaution, afin d'empêcher l'écrasement des granulés et la production conséquence de poussière.
L'utilisation de différents types de granulés peut conduire à des légers changements notamment sur l'efficacité du poèle, pas toujours déetectables ou sur la puissance du poèle. - Nettoyer le brasier de façon régulière à chaque allumage ou replissage de granulés.
- Ne pas allumer et eteindre le poele de façon excessive et intermittente, ain d'eviter l'endommagement des composants electriques et electroniques.
- Ne pas utiliser de comburant liquide.
Utiliser uniquement des pieces détaches d'origine fournies par Aduro A/S. - Éviter tout transport inapproprié ou chic qui puisse endommager la structure ou les composants.
- Le poèle est recouvert d'une peinture haute température. Lors des premières utilisations du poèle, des odeurs désagréables peuvent se dégager dues au durissement de la peinture : ceci n'est enaucun cas dangereux et si cela se produit, il suffit d'aérer a piece à vivre. Àpres les premiers cycles de chauffage, la peinture atteindre son adhérence maximale et toutes ses caractéristiques chimiques et physiques sur la structure du poèle.
Pour recharger le réservoir a granulés, ouvrir simplement le couvercle et verser les granulés. - Éviter toutes de verser directement le sac etURT les poussières du fond du sac dans le réservoir. Utiliser de reference un bac intermédiaire ou des pelles à granulés spécifiques.
-
Cette opération de replissage peut être réalisée durant le fonctionnement normal. Ne pas rentrer en contact avec les parties chaudes.
-
Dès que le réserve à granulés et la ou les vis sans fin sont complètement vides, le poèle s'eteindra automatiquement. Au prochain allumage, vous devez charger les granulés dans la vis sans fin (voir 7.7).
Il est vivement recommandé d'installer un détecteur de fumée dans la pierce ou se trouve l'appareil. - Si l'appareil n'est pas utilisé sur une période de plus de 2 semaines, il faut vider complètement le brasier et la trémie de stockage pour éviter toute reprise d'humidité des granulés stockés.
- L'entretien annuel par un professionnel est impératif et obligatoire pour la sécurité et le bon fonctionnement de l'appareil, quels que soit la durée d'utilisation dans l'année (voir 10.5).
- ATTENTION! Si le poèle n'est pas installé correctement, des coupures de courant peuvent entraîner une dispersion de fumées. Dans certaines circonstances spécifiques, il peut être nécessaire d'installer une source de courant ininterrompue.
- L'acceptation de la machine de la part de l'utilisateur doit être « intégrale», niveau de bruit compris, comparable à celui d'un électroménager. Le fabricant n'acceptera pas de contestations relatives à des caractéristiques non mentionnées dans ce manuel.
Aduro A/S décline toute responsabilité pour tout dommage infilgé directement ou indirectement aux personnes, animaux, ou objets et libre l'entreprise de toute responsabilité civile ou pénale, notamment pour les cas suivants :
a) Non-respect des instructions de ce manuel, particulièrement des mises en garde concernant l'installation, l'utilisation et la maintenance du poèle
b) Utilisation incorrecte de I'appareil.
c) Usage non prévu par la réglementation nationale.
d) Utilisation de combustible ayant des caractéristiques différentes de celles recommandées par la presente notice.
e) Modifications ou interventions non autorisées.
f) Utilisation de pieces de rechange d'une autre origine ou d'un autre modele.
q) Entretien insuffisant par rapport aux prescriptions de la presente notice.
h) Défauts dans les raccordements électrique ou de connexion au système d'évacuation des fumées et/ou à celle de canalisation de l'air de combustion.
i) Dégats causés par des pannes de courant, des sautes de tension, des champs electromagnétiques.
La garantie est annulée pour les cas enumeratedres ci-dessus (non exhaustifs).
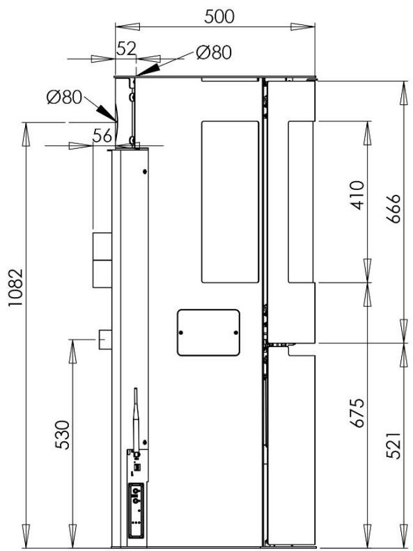
2. Données techniques
2.1 Tableau des données
| Puisance nominale | 3,4 kW | 6,8 kW |
| Dimensions (H x L x P) | 120 x 50 x 56 cm | |
| Poids | 120 kg | |
| Combustible (dimensions) | Granulés de bois (Ø6 mm L≈30 mm) | |
| Diamètre de buse / Arrivée d'air externe | Ø80 / Ø50 mm | |
| Tirage | 12±2 PA | |
| Capacité du réservoir à granulés | 14 kg | |
| Voltage | 230V ± 15% | |
| Fréquence | 50 Hz | |
| Puisance électriche durant le fonctionnement | 37 – 81W | |
| Puisance électriche durant l'allumage | 400 – 460W | |
| Rendement maximum | >=87% | >87% |
| Utilisation nominale de granulés | 0,8 kg | 1,6 kg |
| Utilisation minimale de granulés | 0,8 kg | |
| Réduction des émissions de CO à 13% | <0,02% | <0,02% |
| Température des fumées | 128°C | 176°C |
| Quantité de poussière émise | <20 mg/m3 | <20 mg/m3 |
| Débit massique | 4,6 g/s | 5,2 g/s |
| Température de fonctionnement | 10 - 60°C | |
| Température de stockage | Max 65°C | |
| Flamme verte | ★★★★★★★ | |
| Index d'Efficacité Énergétique (EEI) / Classe | 122,8 / A+ | |


2.2 Transport
Lorsque you transportez voire poel e jusqu'a your domicile, veuillez-vous assurer qu'il est en position verticale. L'emballage doit etre triedelon les regles nationales concernant le traitement des dechets.
3. Fonctions de base du poèle

- Réglage de l'air seconde
- Accès au panneau de contrôle
- Brasier en fonte
- Cendrier
- Interrupteur d'ouverture de porte
- Trappe de replissage des granulés

- Évacuation supérieure des fumées
- Évacuation arrêté des fumées
- Buse d'amnéé d'air
- Alimentation 220 V
- Accès bougie d'allumage
- Antenne Wi-Fi
- Connexion Wi-Fi
- Interrupteur principal
4.1 Installation
L'UTILISATEUR et/ou le PROPRIÉTAIRE de l'APPAREIL EST TENU, SUIVANT LES LOIS EN VIGUEUR, DE CONFIER L'INSTALLATION ET L'ENTRETIEN A UN PROFESSIONNEL QUALIFIE ET HABILITE, ET A PRENDRE CONNAISSANCE DES RISQUES ET PERILS DERIVANTS DE LEUR NON-OBSERVATION.
L installation du poèle doit respecter les lois et normes du pays, région ou localité où l'appareil est installé.
- L'installateur est responsable de l'installation, est donc tenu à la réalisation de l'oeuvre dans son intégrité dans les règles de l'art.
- L'utilisateur et l'installateur ont l'obligation de vérifier avant l'installation que le réseau électrique auquel sera connecté le poèle, corresponde bien à la tension rapportée sur la plaque d'identification de ce dernier (voir page 10) et qu'il soit pourvu de toutes les sécurités de mise aux normes du réseau électrique à tous les effets.
- Le poèle doit être relié à un conduit d'évacuation des résidus de la combustion suivant les normes en viqueur et certifié par une Déclaration de Conformité.
- En complément de la plaque signalétique du conduit, la fiche d'identification du conduit de fumée neuf ou renové devra être remise au client lors de la réception des travaux.
- Selon les lois et normes du pays, région ou localité où l'appareil est installé, une attestation de conformité doit être remise à l'utilisateur et/ou propriétaire de l'installation.
- La notice de l'appareil doit être représentée et expliquée par l'instituteur, et conservée par l'utilisateur même en cas de cession.
4.2 Les zones d'implantation du terminal d'évacuation des fumées
En France selon le Cahier des Prescriptions Techniques Communes du CSTB (3708_V2 - Mai 2016), il existe 3 zones d'implantation de la sortie des fumées.
Ce poèle peut être installé :

Attention : En France, ce poèle à granulés peut être installé seulement en ZONE 1
Respecter les différentes conditions d'installation et aux normes et règlementations régionales ou nationales en vigueur.
4.3 Positionnement du poèle / distances de sécurité requisés
4.3.1 Distances de sécurité de l'appareil
Les distances de sécurité requises s'appliquent seulement si le poèle est placé proche de matériaux inflammables. Notamment des murs d'adossement qui doivent être considérés comme inflammbles ou inflammables sur la totalité de leur épaisseur.
Voir le tableau et l'illustration ci-dessous :
| Distance aux matériaux inflammables (voir aussi illustration ci-dessous) | |||
| Derrière le poèle | Sur les côtés | Jusqu'aux meubles | Au-dessus |
| 100 mm | 400 mm | 700 mm | 400 mm |
| Si ininflammable =100 mm | Si ininflammable =400 mm | ||
4.3.2 Distances de sécurité des conduits de fumées ou de raccordement derrière le poèle
Selon la norme NF DTU 24.1 P1/A1, lorsque le conduit de raccordement sort derrière l'appareil, il est lui-même soumis au respect de distances minimales de sécurité si les matérielles sont inflammables.
Ces distances sont definies par le fabricant ou constructeur des conduits. Généralement, elles sont :
- 3 fois le diamètre du conduit de raccordement avec un minimum de 37.5~cm .
1,5 fois le diamètre du conduit de raccordement avec un minimum de 20 cm si un panneau anti-rayonnement ou un habillage avec un espace ventilé de 2.5 cm a été mis en place derrière le poële sur toute sa projection sur l'adossement.
4.3.3 Protection au sol
Si le poèle est placé pres de matériaux inflammables tels que plancher en bois, tapis ou moquette, il est impératif qu'il soit place sur un socle non inflammable.
Ce socle doit couvir au moins 30 cm devant le poèle et 15 cm de chaque côté – mesure par rapport à l'ouverture de la porte du foyer.
Le démontage des conduits de raccordement et la rotation de l'appareil s'avéreront nécessaires pour les opérations de contrôle et d'entretien. Il faudra protégger le sol et l'environnement pour ces opérations.

Le poèle doit être installé sur un sol pouvant supporter son poids. Si la construction existante ne remplit pas ces conditions, il est nécessaire d'adapter le socle (par exemple avec une plaque de répartition du poids).
4.3.4 Vérification avant montage
L'emplacement d'installation du produit doit etre besoin en fonction de la piece, de I'evacuation et du conduit de fumées.
- Vérifier que le système d'évacuation des fumées ne soit pas utilisé par d'autres apparèils (1 seul par conduit).
- Vérifier auprès des autorités locales l'existence de normes restrictives concernant la prise d'air comburant, la prise d'aération, le dispositif d'évacuation des fumées y compris le conduit de fumées et le terminal de cheminée.
- Vérifier l'existence de la prise d'air comburant (§ 5).
- Vérifier une éventuelle présence d'autres apparèils qui mettent la piece en dépression.
- Vérifier que la cheminée ait le tirage nécessaire.
- L'installation de l'appareil doit permettre un nettoyage facile de ce dernier, des tuyaux de raccord des fumées et du conduit de fumées.
- L'installation doit également permettre un accès facile à la prise d'alimentation électrique.
5. Amenée d'air carburant
Afin d'assurer une combustion propre et efficace, le poèle nécessite un apport d'air constant et ininterrompu. Ce point est important, notamment avec les habitations modernes ou renovées, économes en Energie, qui sont étanches à l'air.
La quantité d'air nécessaire pour la combustion des granulés est de 25 m3 / h minimum. Cet apport d'air :
Est obligatoire.
- Est spécifique affecté à l'appareil ; les autres ventilations ou entrées d'air pour d'autres applications ne peuvent suffire.
- Et doit venir de l'extérieur.
Selon l'installation, cette amenée d'air peut se situer selon le principe d'évacuations des fumées :
- Soit à proximé de l'appareil provenant d'un perçage dans le mur donnant sur l'extérieur, avec grillés et gainage dans la traversée du mur
- Soit à proximé de l'appareil provenant d'une pièce attenante (1) sous conditions
- Soit directement connectee de I'extérieur au poele a granulés par la buse d'amenee d'air (2)
a. Dans ce cas, la gaine d'amnée d'air ne pourra excéder une longueur supérieure à 1 m avec un Ø 50 mm,
b. Ou une longueur maxi de 3 metres avec un 100 mm
1) Si l'amenée d'air se fait par un local attenant (garage, cave...) directement ou indirectement, celui-ci doit impératifement être sans risque et bien ventilé (500 cm² mini).
2 Pour les habitations récentes et étanches (BBC ou RT 2012 et plus), il est souvent nécessaire d'apporter l'air nécessaire à la combustion dans le poèle, par une gaine raccordée directement derrière le poèle jusqu'à l'extérieur de l'habitation.
La prise d'air se fait dans le vide sanitaire est interdite par ADURO, et sera sous l'entiere responsabilité de l'instandateur (risques d'un apport d'humidité et de pertes de charges importantes).
Les différentes possibilités d'amnéée d'air :




Les autres situations seront à faire valider systématiquement par une note de calcul et resteront de l'entière responsabilité de l'instructor.
6.1 Généralités :
Le système d'évacuation des fumées (ou le conduit de cheminée) est l'un des éléments essentiels au bon fonctionnement du poèle.
L'installateur doit respecter impératifement l'application des normes européennes et en particulier les normes et les règles françaises concernant l'adaptation du système d'évacuation des fumées au poèle à granulé.
(NF. DTU 24.1; NF. EN 15287; NF EN 13384; NF EN 1443; CPT 3708 v2; Arrêté du 22-10-1969; ...)
Il lui apparlient de valider le conduit de fumée existant ou la création d'un conduit neuf, en fonction de ces règles et de la notice ci-dessous.
Si des anomalies ou des non-conformités avec le conduit d'évacuation des fumées sont observées, il est impératif de les éliminer avant d'instructor le poèle.
Dans le système d'évacuation des fumées, il y a notamment une distinction fondamentale entre le conduit de fumée et le conduit de raccordement qui amène les fumées de l'appareil au conduit de fumée lui-même. Les règles ne sont pas les mêmes pour chacune de ses fonctions, et en fonction des conditions d'implantation du terminal en ZONE 1, en ZONE 2 ou en ZONE 3.

6.2 Le raccordement de l'appareil au conduit de fumées
- Le poèle est équipé d'une buse d'évacuation des fumées ronde de 80mm de diamètre ainsi que d'un joint connecteur à joindre à la buse.
Le diametre du raccordement doit etre identique a la buse de sortie de l'appareil. (0 80) - Les matériaux constituents le raccordement doivent être résistants aux intempéries, aux températures élevées (>1000^) , à la condensation. Les liaisons entre éléments doivent être étanches aux fumées.
- Il n'est pas nécessaire d'isoler le conduit de raccordement si celui-ci se situe dans des parties habitables, rechauffées. En revanche, si le raccordement passe dans des zones humides et froides, avant de se connecter au conduit de fumée, il sera obligatoire d'isoler ce conduit de raccordement.
-
La distance horizontale en reprise derriere le poèle ne peut excéder 1 mètre. Elle doit avoir une inclinaison >3^ vers le poèle.
-
La reprise verticalie est assuree par un Te de reprise, qui doit composer un tampon de vidange en partie inférieure, facilement demontable pour nettoyage ou contrôle.
- Si le raccordement doit être dévocé, la somme des changements de direction ne peut dépasser 180^ . (Le premier changement (Té) ne compte� pas.
- Il faut privilégier des Té avec regard plûtot que des coudes dans le cas de dévoiement.
- La longueur totale du raccordement (toute déployée) ne peut excéder 3 mètres. Et s'il y a une partie horizontale, celle-ci doit être inclinée à >3^ vers le poêle.
L'accès au raccordement doit se faire facilement pour toutes les opérations de nettoyage, de ramonage et de contrôle. - Si cette partie de l'installation avait été habillée, il faut impératifement une trappe de visite de dimension permettant l'accès facile pour le ramonage et le contrôle.
- De plus cet habillage sera obligatoirement ventilé par des grilles haute et BASSE de 50~cm^2 mini.
- Des conduits téléscopiques permettent de faciliter le raccordement au conduit de fumées.
- Les éléments du raccordement doivent être étanches. Vérifier les joints de connexion.
- Il faut vérifier impératifement les distances de sécurité du conduit de raccordement aux éléments et matérielles inflammables à proximate du conduit (selon les préconisations de fabricants/constructeurs des conduits).
- Ne jamais traverser un plafond ou un mur avec un conduit de raccordement.
- Ne pas utiliser le conduit de raccordement en tubage.
- Respecter les règles de pose suivant les normes NF DTU 24.1 et 24.2.
6.3 Le conduit de fumées
- Le conduit de cheminée doit être conforme CE, selon la norme EN1443.
- Se conformer à la règlementation en vigueur : DTU24.1 ou Avis technique.
Le conduit de fumée doit être stable, solide, isolé sur toute sa longueur, avec une bonne vacuité. - Le parcours du conduit de fumée doit être le plus rectiligne possible (2 coudes à 45^ maximum), sans étranglement (meme section sur toute la hauteur du conduit de fumée). Un seul apparéil par conduit de fumée.
- Les matériaux constituents l'évacuation des fumées doivent être isolés, résistants aux intempéries, aux températures élevées ( >1000^ ), à la condensation. Ils doivent aussi favoriser le tirage et limiter d'accumulation de résidus de combustion. Les liaisons entre éléments doivent être étanches aux fumées
- Pour l'habillage du conduit lors des traversées d'étages : ventiler et utiliser des matérieliaux M0 et M1 (incombustibles).
- La longueur minimum du conduit de fumée est de 3 metres (Hors conduit de raccordement et sauf spécifique en fonction de la position du terminal ci-après).
- La section du conduit des fumées doit être vérifiée par le calcul de dimensionnement des conduits de fumée (NF EN 13384).
Rappel: L'entrée du conduit doit se trouver dans la même piece que l'appareil et obligatoirement dépasser au-delà des faux plafonds ou des habillages muraux. - Il faut vérifier impératifement les distances de sécurité du conduit de fumée aux éléments et matériaux inflammables à proximate du conduit ( selon les préconisations de fabricants/constructeurs des conduits).
6.3.1 Installation en ZONE 1 :
Généralités en ZONE 1 :
- Le terminal des fumées doit dépasser de 40 cm de la faitière ou de tout obstacle dans les 8 mètres environnants (ou de 1.2 m si la pente du toit est < 15°, ou de 1 m au-dessus des acrotères de terrasse).
- En condition normale, la section du conduit de fumée est identique au raccordement soit 80 mm pour une longueur de conduit de 3 à 8 metres.
- Valider par note de calcul pour toute autre section ou longueur différente.
Pour les installations à des altitudes supérieures à 1200 metres a.s.l., il faut impératifement faire des calculs avant toute réalisation.
Conduit de fumées à l'extérieur :
Si le conduit est à l'extérieur en grande majorité de son parcours, il doit obligatoirement être isolé, pour éviter toute condensation.
Il doit aussi pénétrer dans l'habitation en respectant les règles du NF. DTU 24.1 (sans liaison dans la paroi, dépassant dans la pierce, etc....)
Conduit de fumée, traditionnel maçonné :
Il est préconisé de réaliser un tubage dans le conduit maçonné pour avoir la bonne section d'évacuation des fumées.
Si le conduit maçonné est de section trop importante (>25× 25cm) , pour éviter tout refroidissement des fumées, il est impératif de tuber le conduit avec un conduit flexible isolé.
Rappel : Il est obligatoire d'avoir une trappe de visite de la liaison entre le raccordement et le conduit de fumée. De même il est obligatoire d'avoir une trappe de ramonage en pied de conduit, même si tubage (trappe facilement démontable).
Conduit de fumées métallique composite existant :
Si la section du conduit existant n'est pas conforme aux preconisations, il faut alors modifier le conduit ou tuber le conduit pour etre conforme selon les preconisations des fabricants.
Réglementation pour tuber un conduit existant :
ADURO preconise que tous les tubages soient a double peau, a paroi interieure lisse et si possible isolé.
Le conduit doit être ramonné avant la mise en place du tubage.
Le conduit doit être tubé sur toute la longueur.
Le conduit maconné tubé doit être ventilé (ventilation haute et BASSE).
La plaque d'étanchéité et le chapeau sont nécessaires.
- Il est indispensable d'utiliser les accessoires compatibles (collier, plaque d'étanchéité...) pour une installation conforme et sûre.
6.4 La condensation et le point de rosee
Les poêles à granulés de dernierie génération ont un rendement très élevé afin de réduire au minimum les émissions et garantir le chauffage le plus efficace possible.
Cependant, les températures de sortie des fumées d'un poèle à granulés sont inférieures à celle des poêles à bùches. Ainsi, la condensation qui peut apparaitre parfois dans les conduits ou au bas du conduit de raccordement a pour cause une isolation insuffisante du conduit de fumées, la température trop BASSE des fumées engendrant ce phénomène.
Le poèle n'est donc pas imputable dans ces cas où de la condensation se produit dans le conduit de fumée. Ces inconveniens de condensation peuvent être évités lors le début par un dimensionnement et une isolation correcte du conduit de fumée.
Un réglage peut être suggéré par les services techniques ADURO, pour améliorer ces phénomènes mais reste de la responsabilité de l'installateur.
6.5 Tirage
C'est la caractéristique d'une bonne installation de chauffage à pellet.
Le tirage est le déplacement des fumées dans les conduits partant de l'appareil, jusqu'à la souche à la sortie des fumées.
Plusieurs types d'intempéries affectent le fonctionnement du conduit de cheminée, comme par exemple la pluie, le brouillard, la neige et le plus important, le vent, car il créé une pression négative dans le conduit de cheminée.
Un tirage excessif peut entrainer une hausse de la température de combustion, conduisant à une perte d'efficacité du poèle. De plus, une température de combustion trop élevé, due à un excès d'oxygène, endommage le foyer de façon prématurée. Un tirage important dans la cheminée peut également entrainer des vibrations du ventilateur.
À l'inverse, un mauvais tirage ralentit la combustion, conduisant à une baisse de la température dans le poèle, des fumées qui se rependent dans la pièce, une perte d'efficacité du poèle et une accumulation dangereuse de suie dans le conduit. Apprenez-en plus sur aduro.fr.
6.6 Exemples de systèmes d'évacuation des fumées :




7.1. Télecommande
Le poèle peut être commandé avec la télécommande, l'application poèle à granulés Aduro ou les fonctions les plus basiques via le panneau de commande sur le côté du poèle.
Commencez par vous assurer que le poèle est connecté à une source d'alimentation électrique et à la cheminée. Nous vous recommendons d'utiliser la télécommande pour le démarrage initial et la configuration du poèle.
7.2 Contrôle par la télécommande
L'écran de la télécommande affiche des informations de base sur le fonctionnement du poèle et dispose de 5 boutons pour différents réglages (voir l'illustration ci-dessous).
Sur la télécommande, vous pouvez définir la température ambiente souhaiée et/ou le niveau de puissance (1-5), sur lequel le poèle doit demarrer.
Appuyez sur le bouton "+" pour sélectionner le réglage de la température ambiente et utilisez les boutons "+" et "-" pour augmenter ou diminuer la température. Maintenez le bouton "ON/OFF" pour allumer le poèle. Utilisez ensuite le bouton "-" pour sélectionner le niveau de chaleur. Plus le niveau de chaleur est élevé, plus la température souhaitée sera atteinte rapidement. Une fois la température atteinte, le poèle régulera le niveau de chaleur pour maintainir la température souhaitée.
Pour activer le chauffage sans contrôle de la température, cliquez une fois sur "-" pour afficher le niveau de chaleur actuel, puis utilisez les boutons "+"/"" pour augmenter ou diminuer le niveau de chaleur. Maintenez enforcé le bouton "ON/OFF" pour allumer le poèle

Réglage de la température - Augmentation des valeurs température ou puissance - Changement de menu « + »

Réglage du niveau de puissance - Diminution des valeurs température ou puissance - Changement de menu « - »

Retour en arrête - Sortie « ESC »

Validation de commande - Accès au menu « OK »

Marché/Arrêt-Sortie du menu «ON/OFF

Lorsque le poèle fonctionne à température ambiente, il utilisera la sonde de température placée sur la partie arrrière inférieure du poèle. La télécommande contient également une sonde de température qui peut être utilisée à la place. La sonde est activée via la télécommande en choisisant OK -> RÉGLAGES UTILISATEUR -> CHOISIR LA SONDE -> À BORD (sur le poèle) / À DISTANCE (sur la télécommande).
Le panneau de contrôle reprends les fonctions basiques du poèle.
BOUTON 1: ON/OFF En maintainant cette touche enfoncée, le poèle s'allumera/s'éteindra.
BOUTON 2: Appuyez sur ce bouton pour augmenter/diminuer le niveau de puissance.

7.4 Appairage de la télécommande
La télécommande est déjà jumelée avec le poèle à la livraison. Si la télécommande ne se connecte pas automatiquement au poèle, veuilles suivre les étapes suivantes :
Assurez-vous que votre poèle est branché.
Sur la télécommande, appuyez sur les touches « OK » et « Marche/Arrêt » jusqu'à ce que le menu identifient radio apparaisse.
À ce stade, appuyez sur le bouton « - ». Le mot "NOUVEAU" apparait à l'écran.
Appuyez sur la touche "OK" et sélectionné le numéro de chaîne souhaité (touches + et -).
Appuyez sur les boutons 1 et 2 du panneau de commande d'urgence jusqu'à ce que toutes les LED commencent à clignoter.
À ce stade, appuyez sur le bouton "OK" de la télécommande pour confirmer l'appairage.
7.5 Connexion Wi-Fi
Il est indispensable de-disposer d'un smartphone(téléphone portable,tablette) relié à INTERNET pour faire la connexion WIFI,et d'un bon reseauINTERNETstable.
Pour se connecter au Wi-Fi, il est nécessaire de télécharger l'application Aduro Pellet Stove, qui est disponible sur Google Play et sur l'App Store. Suivez les directives pour étabir la connexion Wi-Fi sur notre site Web : adurofire.com/aduro-pellet-stoves/frequently-asked-questions/

Si vous rencontres des problèmes pourmettre le poèle en ligne, cela peut etre du àvoitre reseau Wi-Fi local, àvoitre routeur ou à la configuration du téléphone. Il n'est pas de la responsabilité d'Aduro d'assurer la connexion.Certains de nos revendeurs proposent le service de connexion du poèle au Wi-Fi.
7.6 Application Aduro Pellet Stove
Lorsque vous avez configuré le poèle avec l'application Aduro Pellet Stove, vous pouvez démarrer le poèle (appuyez sur l'icone d'engrenage) et le régler pour qu'il fonctionne par niveau de chaleur, température ambiente ou calendrier. La configuration du calendrier s'effectue sur la télécommande.




7.7 Précharge initiale des granulés
Après avoir rempli le réserve à granulés pour la première fois, les vis sans fin doivent être remplies de granulés. Déplacez le brasilien en fonte de manière à voir le haut de la vis sans fin interne. Fermez la portepour que le capteur de porte soit activé et utilisez le menu CHARGEMENT INITIAL sur la télécommande etappuyez sur "+" pour démarrer les vis sans fin pendant 6 minutes. Appuyez sur ARRÉT CHARGEMENT INITIAL lorsque les premiers granulés sont visibles en haut de la vis sans fin. Lors de la première utilisation,il peut être nécessaire d'exécuter CHARGEMENT INITIAL plusieurs fois (10-12 minutes).
Chaque fois que le réserve à granulés se vide après un fonctionnement, l'ALARME 6 s'affichera à l'écran (voir également Erreurs potentielles) et il peut être nécessaire de relancer le CHARGEMENT INITIAL.
7.8 Allumage et arrêt du poêle
Rappel : À chaque démarrage raté ou lors d'alarmes combustion, il est impératif desterol tous les granulés accumulés et non brulés du brasier avant de relancer une nouvelle procédure de démarrage. Vérifier aussi le nettoyage complet de la chambre de combustion.
Allumer le poèle par l'application téléphone, en appuyant sur "ON/OFF" sur la télécommande ou sur le panneau de contrôle du poèle.
Dès que les températures de fumées auront atteint 80^ , l'écran de la télécommande indiquera l'état du poèle en fonctionnement « FONCTIONNEMENT ».
Eteindre le poèle via l'application ou en maintainant enforcé « ON/OFF » sur la télécommande ou le panneau de contrôle jusqu'à ce que l'écran de la télécommande indique la procédure de nettoyage « NETTOYAGE FINAL ».
La procédure d'arrêt se déclenché alors et les granulés cesseront de monter dans le brasier pendant que la ventilation force à travers la chambre de combustion s'enclenché pour nettoyer le brasier. Cette procédure peut prendre 10 à 20 minutes.
8. Paramètres de réglages
Pour acceder au menu général de programmation, appuyez sur la touche « OK ». Utilisez les boutons « + » et « - » pour naviguer dans le menu et le bouton « OK » pour confirmer et enter. Utilisez les boutons "+" et "-" pour modifier les paramètres dans le menu sélectionné. Appuyez sur le bouton "ESC" pour revenir en arrêté et quitter
8.1 Aperçus des menus
MENU UTILISATEUR:
REGL CHRONO (Ajuster la fonction calendrier)
REGL HORLOGE (Réglage de l'horloge)
CHOIX LANGUE
MODE STAND-BY (Le poèle se mettra en stand-by ou en Puisssance 1 si la température de la pièce est atteinte)
MODE BUZZER (Son si une alarme apparait)
MENUDISPLAYMenu panneau de contrôle uniquement)
CHARGE INITIALE (Lancement des vis sans fin pour les charger en granulés)
ETAT DU POÉLE (Démontré le statut du poêle et les organes internes)
PARAMÉTRES UTILISATEUR
PARAMÉTRES TECHNIQUES
MENUPARAMÉTRES UTILISATEUR:
PARAM VENTILATEUR EXTRACTEUR (Modifie les paramètres du ventilateur extracteur des fumées)
RéGLAGES VIS SANS FIN (Modifie les paramètres de la vis sans fin et d'apport en granulés sur toutes les puissances)
PARAM VENTILATEUR CONVECTION (Modifie les paramètres du ventilateur de convection sur toutes les puissances)
CHOIX SONDE (Choix sonde de température)
8.2 Réglages des paramètres techniques
IMPORTANT!
Ce point du menu (TECHNICAL MENU) est réservé à l'installateur du poèle ou aux partenaires autorisés. Toute modification faite par des personnes nonapprovées entrainera la perte de toutes les garanties.
9. Message d'erreur possible
En cas de défaut de fonctionnement, la LED d'alarme s'allume et le poèle se met automatiquement en arrêt.
Le message d'alarme correspondant au début s'affichera sur l'écran de la télécommande. Plusieurs alarmes peuvent survenir pendant le fonctionnement ; elles sont décrites en détaïl ci-dessous.
| Causes possibles | Message de la télécommande |
| Alimentation électricque : Cette alarmé peut se produit en raison d'une panne de courant ou d'une alimentation électricque interrompue du poèle. Si cette erreur se produit, assurez-vous de rétablit l'alimentation électricquedu poèle et attendez que le poèle refroidisse avant de redémarrer. | ALARM 1 BLACK-OUT |
| Défaut du capteur de température : Cette alarmé se produit lorsqu'une température de fumée supérieure à 283° est mesurée. Le capteur de température des fumées doit être remplaced. Appelez l'assistance technique si nécessaire. | ALARM 2 SONDE FUMEE |
| Fumées trop chaudes : Cette alarmé peut se produit en raison de : 1. Une quantité excessive de granulés. 2. Un capteur de température de fumée défectueux. 3. Un ventilateur de convection défectueux. Si cette erreur se produit, vérifier le fonctionnement du capteur de température des fumées et du ventilateur de convection et évientuellesment réduire la quantité de granulés dans les niveaux de puissance respectifs. Appelez l'assistance technique si nécessaire. | ALARM 3 CHAUD FUMEE |
| Ventilateur évacuation fumée ou encoder en défaut : Cette alarmé peut se produit en cas d'un encoder défectueux ou déconnecté, ou d'un ventilateur d'extraction défectueux. Dans les deux cas, la carte mère reçoit l'information que le ventilateur d'extraction ne tourne pas correctement. Appeler l'assistance technique pour vérifier l'encodeur et l'échanger si nécessaire. | ALARM 4 ASPIRAT- PANNE |
| Défaut d'allumage : Cette alarmé peut se produit en raison d'une quantité insuffisante de granulés dans le brasier pendant la phase d'allumage ou d'une bougie défectueuse. Vérifier s'il y a bien des granulés dans le brasier et évientuellesment charger les granulés manuellement. Puis retenter le démarrage. Apperez l'assistance technique si nécessaire. | ALARM 5 MANQUE ALLUMAGE |
| Manque de granulé : Cette alarmé se produit en raison d'une quantité insuffisante de granulés à cause de : 1. Une trémie de granulés vide, 2. Un tube de vis bloqué 3. Un moteur de vis défectueux. Vérifiez si des granulés arrivent bien dans le brasier. Apperez l'assistance technique si nécessaire. | ALARM 6 NO PELLET |
| Température de sécurité dépassée : Cette alarmé se produit lorsqu'elle thermostat de sécurité est activé en raison de températures elevées à l'intérieur du poèle. 1. Dévisser le couvercle du thermostat de sécurité (1) 2. Repousser le pointeau (2) 3. Refermer le couvercle. Vouces pouvez redémarrer le poèle après refroidissement complet. | ALARM 7 SECURITE THERM- |
| Absence de dépression (ou de tirage): Cette alarme peut se produit en raison de: 1. Une,chambre de combustion pas assez étanche (joint défectueux) ou une porte ouverte. 2. Un conduit de fumée ou une cheminée bouchée ou encrassé. 3. Une vitesse trop faible du ventilateur d'extraction. 4. Des mauvaises conditions météorologiques. Souvent en cause,assurez-vous que la porte de la chambe de combustion est bien fermée. Appelez un technicien agréé pour vérifier le conduit de fumée et la cheminée. | ALARM 8 MANQUANT DEPRESS |
| Vis sans fin en défaut : Cette alarme se produit la vis externe tourne en continu (pendant plus de 60 secondes). Le moteur à engrenage extérieur doit être remplaceé et la carte mère vérifiée. Appelez l'assistance technique si nécessaire. | ALARM 9 TRIAC COC EN PANNE |
10. Nettoyage et entretien

Tout entretien et nettoyage du poèle doit être réalisés sur un poèle à froid et déconnecté de la source d'électricité
Avant d'utiliser un aspirateur à cendres, s'assurer qu'il n'y ait plus de braises.
Pendant les phases de nettoyage journaliers ou hebdomadaires, il faut débrancher le poèle de toute source d'électricité. De plus il faut attendre au moins 30 minutes que le poèle refroidissement et pour ne pas se bruler au contact des parties chaudes du poèle.
En cas d'utilisation d'un aspirateur, vérifier l'absence total de braise dans le poèle.
Le poèle a besoin d'être entretenu et nettoyé fréquèment pour garantir son fonctionnement optimal. L'entretien annuel sera fait si possible avant le redémarrage de la saison.
10.1 Entretien général
Vitre
Vouss pouvez aisément nettoyer suie et poussiere en passant un chiffon légèrement humide trempe dans des cendres froides, sur la vitre. Il existe également des outils spéciaux de nettoyage afin de nettoyer efficacement la suie sur la vitre, par exemple nos éponges Aduro Easy Clean. Ces éponges ne rayent ni n'abiment la vitre, et sont réutilisables. De plus, elles ne nécessitant ni eau ni autre liquide de nettoyage.
Il est important de resserrer les fixations des vitres après l'installation du poèle, et vérifier que les joints sont correctement placés.
Joints
Les joints de la vitre et de la porte s'usent au fil du temps. Nous vous recommendons de les inspecter régulièrement. Si vous constatiez des fuites, il est nécessaire de replacer les joints.
Période d'arrêt
Si vous prévoyez une longue période d'inutilisation du poège, il est important après la première utilisation de s'assurer de :
Nettoyer minutieusement le poèle
- Retirer le restant des granulés du réservoir à granulés
Vider complètement la vis sans fin
- Débrancher la prise de courant
10.2 Conduit d'évacuation des fumées
Le ramonage du conduit de fumée est obligatoire 2 fois par an en France. Se reporter aux régles nationales et régionales.
Ce nettoyage biannuel du conduit d'évacuation des fumées est primordial, car de la poussière peut être presente et boucher différentes parties du conduit d'évacuation – particulièrement les parties horizontales.
Utiliser les trappes d'inspection et sections en Te afin d'atteindre toutes les parties du conduit.
Assurez-vous que la poussière qui sortira du conduit durant le nettoyage n'atteigne pas le ventilateur, ce qui pourrait le bloquer.
10.3 Entretien de la surface du poèle

Ne pas jamais utiliser de l'eau pour nettoyer les surfaces du poèle. L'humidité risque d'entraigner des traces de rouille.
La surface du poèle est recouverte d'une peinture thermorésistante qui peut supporter des températures allant jusqu'à 500^ . Lors du nettoyage du poèle, éviter les déterments puissants ou abrasifs, et tous produits contenant alcools, acides ou autre solvant.
Les parties peintes et en plastique peuvent etre nettoyees à l'aide d'un chiffon légèrement humide et seulement avec un produit détergent doux dilué légèrement avec de l'eau.
Si la surface du poèle est rayée ou usée, elle peut facilement être renouvelée en utilisant le même type de peinture en spray. La peinture est disponible en noir métallisé auprès de votre revendeur local ou sur aduroshop.com.
10.4 Entretien/nettoyage du corps de chauffe
Utiliser un aspirateur à cendres et, si nécessaire une Brosse douce ou un chiffon sec.
Quotidien
Nettoyer le brasier minutieusement afin de retirer tous les résidus de cendres et les granulés partiellement brûlés.
Nous vous recommendons de vider le dendrier et de passer l'aspirateur dans le foyer et sur la porte (autour des joints) de façon quotidienne.
Lors de chaque allumage, vérifier le brasier afin desterolir les cendres et les granulés partiellement ou non brûlés.
Hebdomadaire
Retirer le brasier et nettoyer la vis supérieure avec un aspirateur. Cela peut se faire plus facilement en fabriquant un rouleau en papier, à poser autour de l'ouverture de la vis. Ensuite, ajuster la buse d'aspiration de l'aspirateur sur ce tube en papier et aspirer les cendres et les granulés non brûlés.
Nettoyer aussi le fourreau de la bougie. Des cendres et du mâchefer peuvent obstruer le trou d'allumage, placé à gauche, dans le tube de la vis, juste sous le brasier, et empêcher le démarrage. Il faut donc bien nettoyer ce trou d'allumage, à l'aide, par exemple d'un petit tournevis droit.
Mensuel
Chaque mois, retirer les plaques d'isoation en vermiculite dans la chambre de combustion. Ouvrir les trappes d'inspection dans la paroi arrête et le fond et nettoyer avec un aspirateur. tous les conduits servant à l'évacuation des fumées. Nettoyer aussi les ventilateurs et l'extracteur de fumée.
Après le nettoyage, refermer les trappes d'accès et remettre en place soignement les plaques de vermiculite.

Lors des phases de nettoyage du brasier, s'assurer qu'il n'y ait plus aucune braise dans les cendres, etURT ne jamais aspirer des cendres chaudes ou braises avec un aspirateur.
Des braises peuvent encore être trouvées dans le cendrier jusqu'à 24h après l'extinction des feuels.
10.5 Visite de service annuelle
La visite de service annuelle obligatoire doit être effectuee par un technician autorise. Contacter votre revendeur pour plus d'information.
10.6 Pièces détachées et algérations non autorisées
Seules des pieces détachées d'origine peuvent être utilisées sur votre poèle. Toute altération du poèle non autorisée est strictement interdite, car le poèle ne serait plus conforme. Vous pouvez retrouver toutes les pieces détachées d'origine pour votre poèle sur aduroshop.fr.
11. Accessoires
Nos proposons une large selection d'accessoires afin d'optimiser l'utilisation de votre poèle Aduro : Kits de cheminée, plaques de protection de sol en verre et acier, conduits d'évacuation, allumes-feux Aduro Easy Firelighter, et épinges Aduro Easy Clean. Pour plus d'information, rendez-vous sur aduro.fr/accessoires/.
12. Droit de réclamation
Conformément à la loi danoise sur la vente de marchandises, le droit de réclamation est valideès la date d'achat du poèle. Le reçu d'achat dated fait fj.
Tous les poêles à granulés peuvent nécessiter un ajustement de l'air de combustion et de la vitesse de la vis sans fin, afin d'optimiser leur fonctionnement et la combustion des granulés. Aduro et nos partenaires de service peuvent surveiller et ajuster certains paramètres du poêle grâce aux données du réseau Cloud Aduro. Cependant, cela est uniquement possible si le poêle est connecté au Cloud par réseau Wifi. Aduro ne peut donc pas traiter les réclamations concernant le fonctionnement ou la combustion, si le poêle n'est pas connecté en ligne.
Si vous rencontres des difficultés pour connecter votre poèle en ligne, cela peut être dû à votre réseau Wifi local, votre routeur ou votre opérateur internet. Retrouvez des instructions sur comment optimiser votre connexion au Wifi sur Aduro.fr – notez cependant qu'Aduro A/S n'est pas responsable d'assurer votre connexion. Vous pouvez commander une visite de service afin de connecter votre poèle en ligne. Il est nécessaire que le poèle soit en ligne, pour toute réclamation concernant la combustion et le fonctionnement du poèle. Les revendeurs Aduro peuvent également vous fournir l'assistance nécessaire.
Le droit de réclamation ne couvre pas :
- Les dommages résultat d'une installation ou utilisation incorrectes du poèle, surchauffe et entretien défectueux ou incomplet etc. (y compris la visite de service annuelle).
L'usure des parties telles que la vitre, les joints, la vermiculite, les poignées, les surfaces peintes, la bougie d'allumage électrique, les interrupteurs/capteurs, la grille en fonte, qui sont sujets à l'usure normale. Vous pouvez acheter ces pieces sur notre magasin en ligne aduroshop.fr. - Les dommages dus à une surcharge électrique (condensation), à de l'eau dans et autour de la cheminée, un tirage trop élevé ou trop faible ou un entretien/nettoyage manquant.
Montage ou démontage en rapport avec des réparations couvertes par la garantie.
Problèmes liés aux intempéries (pluie, neige, etc.). - Les frais de transport liés aux réparations dans la période de garantie.
- Les dommages sur le poèle liés à des facteurs externes ou causés par des objets tiers.
13. Mise au rebut de votre poêle Aduro
Lors de la mise au rebut de votre poèle, le métal, la vermiculite, la vitrocéramique et les apparciels électroniques doivent être triés séparément. Jeter ci-après les matériaux conformément à la réglementation dans votre dépôt de recyclage le plus proche.
| ADURO - P5 - 3,4 - 6,8 kW Poèle non étanche Ref: 50751 | ||||
| Vacuité et tirage sont les facteurs importants pour un bon fonctionnement | LONGUEUR PRECONISSEE FABRICANT: La hauteur de conduit ne comprend pas le conduit de raccordement (hauteur de conduit min. 3 mètres) CHOISIR LA ZONE DE POSE: Seules les zones non barrées sont conformes aux préconisations. Installer uniquement en ZONE 1. ADAPTER LE TYPE D'ARRIVEE D'AIR: Seules les zones non barrées sont conformes aux préconisations. Si Prise d'air dans vide sanitaire (fortemment déconsilée), possible uniquement si ventilé mini par 500 cm2d'ouverture reelle et permanente. VALEUR TIRAGE: 12 Pa nominal A vérifier à chaque installation: 5 Pa à froid - 18 Pa max. ALERTEUR DE VISITE D'ENTRETIEN Toutes les 2000 h ou 1 fois par an IMPORTANT: Suivre les normes et les préconisations ADURO. Voir la notice | |||
| Implantation selon DTU 24.1 | ZONE 1 Obligatoire pour poège à granulés non étanche Concentrique interedit | |||
| Tubage isolé si conduit surdimentionné > 25 x 25 et fortement conseillé au-delà de 5 mètres | ||||
| DPI ou Tubage Conduit de Fumée. | Ø 80mm | Ø 100mm | Ø 130mm | |
| Hauteur mini hors raccordement | 3 m | 5 m | ** | |
| Hauteur maxi hors raccordement | 5 m | 10 m | ** | |
| Raccordement en simple paroi jusqu'àu CF. | Ø80mm - SI autre diamètre, note de calcul obligatoire | |||
| Si Raccord connecté d'air combustant A => Ø 50 mm et long maxi 2 mt | ||||
| Grille avec 80 cm2mini de passage reel | ||||
| ** pour valider d'autres diamètes et/ou la longueur d'installation une note de calcul est nécessaire faite par le fabricant du conduit | ZONE 2 Interdit pour poège non étanche | |||
| PGI ou Tubage Conduit de Fumée | ||||
| Hauteur mini | ||||
| Hauteur maxi | ||||
| ref depart foyer | ||||
| Particularité | ||||
| ZONE 2 Interdit pour poège non étanche | ||||
| DPI ou tubage isolé | ||||
| Hauteur mini | ||||
| Hauteur maxi | ||||
| ref depart foyer | ||||
| Particularité | ||||
| 06-2022-v1 | ZONE 3 Interdit pour poège non étanche | |||
| PGI | ||||
| Hauteur mini | ||||
| Hauteur maxi | ||||
| ref depart foyer | ||||
| Particularité | ||||
Notice Facile