LENA - Maisonnette pour enfant TRIGANO - Notice d'utilisation et mode d'emploi gratuit
Retrouvez gratuitement la notice de l'appareil LENA TRIGANO au format PDF.
| Type de produit | Maisonnette en bois |
| Matériau | Bois |
| Âge recommandé | 3 à 8 ans |
| Nombre maximum d'enfants | 3 |
| Charge maximale par enfant | 35 kg |
| Durée d'utilisation recommandée | 120 minutes |
| Montage | Assemblage par un adulte requis |
| Utilisation | Extérieur et familial |
| Normes de sécurité | Conforme aux normes CE |
| Âge minimum non adapté | Moins de 36 mois |
| Entretien | Non précisé |
| Origine du bois | Bois certifié FSC |
| Type de fixation | Non précisé |
| Poids total | Non précisé |
| Dimensions | Non précisées |
| Garantie | Non précisée |
FOIRE AUX QUESTIONS - LENA TRIGANO
Questions des utilisateurs sur LENA TRIGANO
0 question sur cet appareil. Repondez a celles que vous connaissez ou posez la votre.
Poser une nouvelle question sur cet appareil
Téléchargez la notice de votre Maisonnette pour enfant au format PDF gratuitement ! Retrouvez votre notice LENA - TRIGANO et reprennez votre appareil électronique en main. Sur cette page sont publiés tous les documents nécessaires à l'utilisation de votre appareil LENA de la marque TRIGANO.
MODE D'EMPLOI LENA TRIGANO
La marque de la gestion forestière responsable
| FR | Lire ces instructions avant utilisation, s'y conformer et les garder comme références. Produit devant être assemblé par un adulte. Attention! Réservé à un usage familial en extérieur. Ne convient pas aux enfants de moins de 36 mois. Age: de 3 à 12 ans. Aucune modification ne doit être apportée sur le produit. Pour l'entretien du produit, n'utilise que des pièces d'origine. |
| EN | Read these instructions before use, ensure you comply with them, and keep them as a reference. Product to be assembled by an adult. Caution! This product is for family and outdoor use only. Not suitable for children under 36 months. Age: between 3 and 12 years old. Not to bring modifications to the product, and any change must be made with parts of origine. |
| DE | Bitte vor Gebrauch sorgfältiglesen, die darin enthaltenen Anweisungen befolgen und zum späteren Nachschlagen sicher aufbewahren. Produkt von einem Erwachsenen zusammengebaut werden. Nicht für Kinder unter 36 Monaten geeignet. Alter von 3 bis 12 Jahren. Achtung! Nur für den privathäuslichen Gebrauch im Freien vorgesehen. |
| NL | lees deze instructies vór gebruik, volg ze na en hou ze bij ter informatie. Product dat moet worden samengesteld door een volwassene. Niet geschikt voor kinderenjonger dan 36 maanden. Tussen 3 en 12aar. Let op! Voorbehonden aan outdoor gebruik in gezinsverband. |
| IT | leggere queste instruzioni prima dell'utilizzo, rispettarle e conservare come promemoria. Prodotto da assemblare da unadulto. Attenzione! Riservato a un uso familiare in ambienti esterni. Non adatto a bambini di età inferiore a 36 messi. i 3 e i 12 anni. |
| ES | lea y siga las instrucciones antes de utiliser el producto. Consévelas para futuras consultas. Produito a ser ensamblado por unadulto. iRecuerde! Se tratate de un producto dis宽度ado para uso familiar y en el exterior. No conveniente para niños menosiores de 36MESesa. entre 3 - 12 años. |
| PO | É favor ler attentamente as presentes instruções antes de utiliser o produit, respeita-las e guardá-las como referencia. Produto para ser montado por umadulto. Contra-indico para crianças com menos de 36MESesa. entre 3 e 12anos. Atença! Produktor reservado exclusivement ao uso exterior e familiar. |






ATTENTION! Réservé à un usage familial, sous la responsabilité et la surveillance des parents. Jouet destiné à un usage en extérieur.
Il n'est pas permitted de luer de produit ou de l'utiliser en collectivités (creches, aires de quelques publiques,...).
Ne pas utiliser par temps hivernal ou vent fort.
INFORMATION : Le bois est un produit naturel qui réagit aux variations de température et d'humidité. Des fissures et des fentes peuvent apparaître. Certaines pieces peuvent être légarement voilées. C'est tout à fait normal et cela n'affecte en rien la solidité, la durée de vie ou la garantie de ce produit.
INSTRUCTIONS D'INSTALLATION ET DE MONTAGE :
1) Vérifier la présence et l'état de tous les éléments à l'aide de la liste des pieces avant de commencer le montage.
2) Protégez les pièces du soleil, de la pluie et de l'humidité pendant toute la période de montage. Ne pas monter le produit par forte intempérie (vent, pluie, etc.). Àpres ouverture du colis, montez le produit rapidement.
3) Le montage doit être effectué par un adulte. Respectez précisément toutes les consignes et l'ordre dans lequel elles sont données. N'apportez aucune modification au produit et ne répAREZ celui-ci qu'vec des pieces d'origine.
4) Cet article doit être assemblé sur un terrain plat et horizontal, non ferme, sous peine de déséquilibre. Respectez l'espace de 2.00m de sécurité autour du produit : Aucun obstacle d'aucune sorte ne doit se situer dans cette zone (branches, fils à linge, barrières, bâtiments, etc.) Evitez d'orienter le produit face au soleil.
5) Le produit ne doit pas etre installe sur une surface dure (beton, asphalte etc.) Les produits sur pilotis devront etre installés sur une surface amortissante (herbe, copeaux de bois, sable ou dalle amortissante) d'une largeur de 2.00m tout autour du jeu.
CONSEILS D'UTILISATION ET D'ENTRETIEN
Les enfants ne doivent pas jouer sans la surveillance d'un adulte responsable. Ils ne doivent pas manger pendant l'utilisation du jeu, cela peut être dangereux. Ils doivent porter des vêtements adaptés au jeu (sans cordon, cordelette ou mailles pendantes). Ne pas monter ou jouer sur le toit.
Au début de chaque saison, ainsi qu'à intervalles réguliers au cours d'une saison :
Vérifiez les parties principales du produit et le bon serrage des tous les écrous et vis afin de prévenir les risques de chute.
Appliquer une couche de lasure sur les parties en bois au montage du produit et au moins une fois par an suivant les prescriptions du fabriquant du traitement.
A défaut de procéder à toutes ces vérifications et remises en états évientuelles, le jeu peut se renverser ou constituer un danger
Service après-vente :
sav.triganojardin.com
La garantie ne couvre pas les fissures ou noeuds dans le bois des lors qu'ils ne portent pas préjudice à l'intégrality du produit et qu'ils n'empêchent pas le montage de celui-ci, ainsi que tout dommage résultat du non respect des recommendations pour le montage, l'entretien du produit et le traitement du bois.
Produit garantit 2 ans.
La garantie couvre le produit seul et chaque dommage direct ou indirect induit par une évientuelle défaillance.
Pour toute réclamation, présente la ↔équence du produit et de la piece concernée ainsi que la preuve d'achat. Accompagnez votre besoin de photos d'ensemble et de détails pour faciliter le traitement de votre dossier. Toute besoin incomplète ne pourrait être traitée.
2.00M
F-Zone de sécurité:2.00m (aucun objet en appui sur le produit)
UK - Safety area: 2.00m (not objecta round the product)
D-Sicherheitsbereich:2.00m (Kein gegenüber in der Nane der Rutsche belassen)
NL - Veiligheidszone : 2.00m (Geen enkel voorwerp rondon het toestel)
I - Zona di sicurezza : 2.00m (Nessun oggettto intorno al prodatto)
SP - Area de seguridad : 2.00m (Ningún objecto alrededor del product)
P-Zona de segurarca:2.00m (Nenhum objecto em redor do product)
2.00M
2.00M
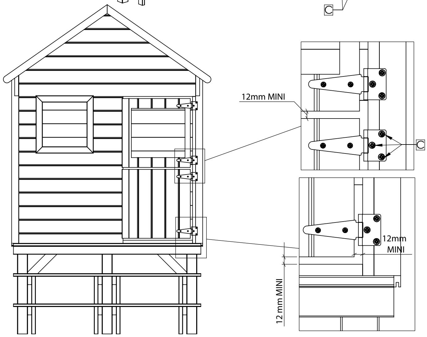
Pour éviter que les vis à bois ne fassent des fissures, il est conseilé de faire des avant trous de diamètre 2 ou 3 mm.
Warning!
| Désignation | Qte | Dim | ||
| B | vis Pozi bichromatée | 120 | 3,5X40 | |
| C | vis Pozi bichromatée | 86 | 3,5X25 | |
| D | vis Pozi bichromatée | 4 | 3X12 | |
| E | vis Pozi bichromatée | 32 | 4X70 | |
| F | vis Pozi bichromatée | 68 | 4X50 |



| N° | description | dim | Qte |
| 1 | panneau façade AV | 1170x h.1550 | 1 |
| 2 | panneau létéral | 1090x h.1110 | 2 |
| 3 | panneau façade AR | 1170x h.1550 | 1 |
| 4 | panneau de toit | 1470x800 | 2 |
| 5 | liteau | 12x47x1150 | 4 |
| 6 | liteau | 12x20x970 | 1 |
| 8 | panneau demi porte BAS | 425x460 | 1 |
| 9 | charnière | 4 | |
| 11 | rive 12x47 | L.850 | 4 |
| 12 | cornière 20x35 | L.1470 | 2 |
| 13 | aimant | 1 | |
| 14 | jambre de force toit Gauche | 26x54x330 | 1 |
| 15 | jambre de force toit Droite | 26x54x330 | 1 |
| 16 | fenêtre assemblée | 294x294 Int | 1 |
| 17 | panneau de porte Haute | 425x460 | 1 |
| N° | description | dim | Qte |
| 18 | lame terrasse | 20x95 L.1240 | 21 |
| 19 | tasseau | 26x54 L.1240 | 2 |
| 20 | tasseau | 26x54 L.1570 | 4 |
| 21 | jambre de force terrasse | 26x54x350 | 10 |
| 22 | poteau | 68x68x580 | 6+1 |
| 23 | tasseau | 26x54x250 | 4 |
| 24 | tasseau | 26x54x400 | 4 |
| 25 | tasseau | 26x54x380 | 4 |
| 26 | barrière | 1 | |


























SCELLEMENT


Notice Facile