TRP 642 DL - Plaque de cuisson SCHOLTES - Notice d'utilisation et mode d'emploi gratuit
Retrouvez gratuitement la notice de l'appareil TRP 642 DL SCHOLTES au format PDF.
| Type de produit | Table de cuisson à gaz |
| Nombre de foyers | 4 foyers |
| Type de foyers | Foyers gaz |
| Dimensions approximatives | 60 cm x 50 cm |
| Poids | 10 kg |
| Matériau de la surface | Émail |
| Alimentation électrique | Non applicable (fonctionne au gaz) |
| Système d'allumage | Allumage piezo |
| Fonctions principales | Cuisson rapide, réglage de la flamme |
| Entretien et nettoyage | Nettoyage à l'eau savonneuse, pièces amovibles |
| Pièces détachées et réparabilité | Disponibilité de pièces détachées courantes |
| Normes de sécurité | Système de sécurité gaz, conformité CE |
| Compatibilités | Compatible avec les bouteilles de gaz et le gaz de ville |
| Garantie | 2 ans |
FOIRE AUX QUESTIONS - TRP 642 DL SCHOLTES
Téléchargez la notice de votre Plaque de cuisson au format PDF gratuitement ! Retrouvez votre notice TRP 642 DL - SCHOLTES et reprennez votre appareil électronique en main. Sur cette page sont publiés tous les documents nécessaires à l'utilisation de votre appareil TRP 642 DL de la marque SCHOLTES.
MODE D'EMPLOI TRP 642 DL SCHOLTES
Raccordement électrique
Description de l'appareil, 18-19
Tableau de bord
Foyers extensibles
Mise en marche et utilisation, 20-23
Mise sous tension de la table de cuisson
Allumage des foyers
Fonction power
Extinction des foyers
Programmation de la durée de cuisson
Le minuteur
Verrouillage des commandes
Extinction de la table de cuisson
Mode Démonstration (demo)
Conseils d'utilisation de l'appareil
Les sécurités
Conseils utiles pour la cuisson
Précautions et conseils, 24
Sécurité générale
Mise au rebut
Nettoyage et entretien, 25
Mise hors tension
Nettoyage de l'appareil
Démontage de la table
Description technique des modèles, 26

Scholtès
Conserver ce mode d'emploi pour pouvoir le consulter à tout moment. En cas de vente, de cession ou de déménagement, veiller à ce qu'il suive l'appareil pour informer le nouveau propriétaire sur son fonctionnement et lui fournir les conseils correspondants. Lire attentivement les instructions : elles contiennent des conseils importants sur l'installation, l'utilisation et la sécurité de cet appareil.
Positionnement
Les emballages ne sont pas des jouets pour enfants, il faut les mettre au rebut en respectant la réglementation sur le tri sélectif des déchets (voir Précautions et conseils). L'installation doit être effectuée par un professionnel du secteur conformément aux instructions du fabricant. Une mauvaise installation peut causer des dommages à des personnes, des animaux ou des biens.
Encastrement
Pour garantir le bon fonctionnement de l'appareil, il faut que le meuble possède des caractéristiques bien précises :
- Le matériel du plan d'appui doit pouvoir résister à une température d'environ 100°C;
- en cas d'installation de la table de cuisson au-dessus d'un four, il faut que ce dernier soit équipé d'un dispositif de refroidissement par ventilation forcée;
- éviter d'installer la table de cuisson au-dessus d'un lave-vaisselle : si c'est le cas, prévoir une séparation étanche entre les deux appareils;
- selon la table de cuisson à installer (voir figures), la découpe du meuble doit avoir les dimensions suivantes :



Aération
Pour permettre une bonne aération et pour éviter toute surchauffe des surfaces autour de l'appareil, la table de cuisson doit être positionnée :
- à au moins 40 mm de distance du mur adjacent ou de toute autre surface verticale;
- de manière à ce qu'il reste au moins 20 mm de distance entre la découpe d'encastrement et le meuble en dessous.



Fixation
Il est impératif d'assurer l'encastrement de l'appareil sur un plan d'appui parfaitement plat.
Les déformations provoquées par une mauvaise fixation risquent d'altérer les caractéristiques de la table de cuisson ainsi que ses performances.
La longueur de la vis de réglage des crochets de fixation doit être réglée avant leur montage selon l'épaisseur du plan d'appui :
- épaisseur 30 mm : vis 17,5 mm.
- épaisseur 40 mm : vis 7,5 mm.
Pour sa fixation, procéder comme suit :
- Se servir des vis courtes sans pointe pour visser les 4 ressorts de centrage dans les trous prévus sur chaque côte de la table, en leur milieu;
- insérer la table de cuisson dans la découpe prévue, bien au centre et bien appuyer tout autour du cadre pour que la table adhère parfaitement au plan d'appui.
- pour les tables avec profils latéraux : après avoir encastré la table de cuisson dans la découpe, insérer les 4 crochets de fixation (chacun avec son goujon) sur le périmètre inférieur de la table de cuisson et visser avec les vis longues à pointe jusqu'à ce que le verre adhère bien au plan d'appui.
Il faut absolument que les vis des ressorts de centrage soient accessibles. Conformément aux normes de sécurité, après encastrment de l'appareil, il ne doit plus y avoir possibilité de contact avec les parties électrifiées. Toutes les parties qui servent de protection doivent être fixées de manière à ne pouvoir être enlevées qu'avec l'aide d'un outil.
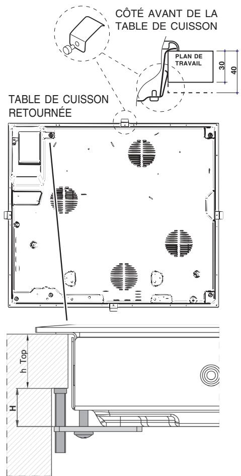
Raccordement électrique
Le branchement électrique de la table de cuisson et celui d'un éventuel four à encastrer doivent être effectués séparément, pour des raisons de sécurité électrique et pour pouvoir démonter plus facilement le four en cas de besoin.
Bornier
TABLE DE CUISSON RETOURNEE
L'appareil est équipé, sur le dessous, d'un boîtier de raccordement à plusieurs types d'alimentation électrique (la figure n'est qu'indicative, elle peut ne pas correspondre au modèle acheté).
Raccordement monophasé
La table est fournie déjà équipée d'un cordon d'alimentation prévu pour raccordement monophasé. Procéder au raccordement des fils en suivant les indications du tableau et des dessins suivants :
| Tension type et fréquence réseau | Cordon électrique | Raccordement fils |
| 230-240V 1+N ~ 220-240V 1+N ~ 50/60 Hz | ½N:L | ½: jaune/vert; N: les 2 fils bleus ensemble L: le marron avec le noir |
Autres types de branchement
Si l'installation électrique correspond à une des caractéristiques suivantes :
Tension type et fréquence réseau
- 400V - 2+N ~ 50/60 Hz
- 220-240V 3 ~ 50/60 Hz
- 230-240V 3 ~ 50/60 Hz
- 400V - 2+2N ~ 50/60 Hz
Débrancher les câbles et procéder au raccordement des fils en suivant les indications du tableau et des dessins suivants :
| Tension type et fréquence réseau | Cordon électrique | Raccordement fils |
| 400V - 2+N ~ 50/60 Hz | N L1 L2 | ½: jaune/vert; N: les 2 fils bleus ensemble L1: noir L2: marron |
| 230-240V 3 ~ 220-240V 3 ~ 50/60Hz | ||
| 400V - 2+2N ~ 50/60 Hz | N L1 N2 L1 L2 | ½: jaune/vert; N1: bleu N2: bleu L1: noir L2: marron |
Si l'installation électrique correspond à une des caractéristiques suivantes : Tension, type et fréquence réseau
- 400V 3 - N ~ 50/60 Hz, procéder comme suit :
Le câble éventuellement fourni n'est pas prévu pour ces types d'installation.
- Utiliser un câble d'alimentation approprié, type H05RR-F ou supérieur, aux dimensions adéquates (section câble: 25 mm).
- Faire levier à l'aide d'un tournevis sur les languettes du couvercle du bornier pour l'ouvrir (voir figure Bornier).
- Dévisser la vis du serre-câble et les vis des bornes correspondant au type de raccordement nécessaire et positionner les cavaliers de raccordement conformément aux indications du tableau et des figures ci-dessous.
- Positionner les fils conformément aux indications du tableau et des figures ci-dessous et procéder au raccordement en serrant à fond toutes les vis des bornes.
| Tension type et fréquence réseau | Raccordements électriques | Bornier | ||||
| 400V 3-N ~ 50/60 Hz | 1 L1 | 2 L2 | 3 L3 | 4 N | 5 | Triphasé 400 |
- Fixer le câble d'alimentation dans le serre-câble correspondant et fermer le couvercle.
Triphase 400
Triphase 400
Branchement du câble d'alimentation au réseau électrique
En cas de raccordement direct au réseau, il faut intercaler entre l'appareil et le réseau un interrupteur à coupure omnipolaire ayant au moins 3 mm d'écartement entre les contacts.
L'installateur est responsable du bon raccordement électrique de l'appareil et du respect des normes de sécurité.
Avant de procéder au branchement, s'assurer que :
- la prise est bien munie d'une terre conforme à la loi;
- la prise est bien apte à supporter la puissance maximale de l'appareil, indiquée sur la plaque signalétique de l'appareil;
- la tension d'alimentation est bien comprise entre les valeurs indiquées sur la plaque signalétique;
- La prise est bien compatible avec la fiche de l'appareil. Si ce n'est pas le cas, replacer la prise ou la fiche, ne pas utiliser de rallonges ni de prises multiples.
! Après installation de l'appareil, le câble électrique et la prise de courant doivent être facilement accessibles
! Le câble ne doit être ni plié ni excessivement écrasé.
! Le cable doit être contrôlé périodiquement et ne peut être remplacé que par un technicien agréé.
! Ne retarder ou ne remplacer en aucun cas le câble d'alimentation. Toute opération d'enlèvement ou de remplacement annule automatiquement la garantie et la marque CE INDESIT décline toute responsabilité en cas d'accidents ou de dommages dérivant de l'enlèvement ou du remplacement du câble d'alimentation original. Seul le remplacement effectué par un technicien agréé INDESIT utilisant une pièce détachée originale est autorisé.
Tableau de bord
Le tableau de bord qui est décrit n'a qu'une valeur d'exemple : il peut ne pas correspondre au modèle acheté.

- Touche AUGMENTATION DE PUISSANCE pour allumer le foyer et régler sa puissance (voir Mise en marche et utilisation).
- Touche DIMINUTION DE PUISSANCE pour régler la puissance et éteindre le foyer (voir Mise en marche et utilisation).
- L'indication FOYER indique le foyer correspondant.
- Indicateur de PUISSANCE : une colonne lumineuse pour signaler le niveau de puissance atteint.
- Touche ON/OFF pour allumer ou éteindre l'appareil. Voyant ON/OFF : il signale si l'appareil est allumé ou éteint.
- Touche PROGRAMMATEUR* pour programmer la durée d'une cuisson (voir Mise en marche et Utilisation).
- Afficheur PROGRAMMATEUR* : pour afficher les CHOIX correspondant à la programmation (voir Mise en marche et utilisation).
- Voyants FOYER PROGRAMME* : ils indiquent les foyers quand une programmation est lancée (voir Mise en marche et utilisation).
- Touche VERROUILAGE DES COMMANDES pour empêcher toute intervention extérieure sur les réglages de la table de cuisson (voir Mise en marche et Utilisation).
- Voyant COMMANDES VERROUILLEES : pour signaler le verrouillage des commandes (voir Mise en marche et Utilisation). Voyant MINUTEUR* : il signale que le minuteur est activé.
- Touche AUGMENTATION DU TEMPS* pour augment utilisation).
- Touche DIMINUTION DU TEMPS* pour diminuer la durée en cas d'utilisation du minuteur ou en cas de programmation (voir Mise en marche etutilisation).
Ce produit est conforme à la nouvelle Directive Européenne sur la réduction de la consommation d'énergie en mode standby. Sans opérations pendant 2 minutes, après l'extinction des voyants de chaleur résiduelle et l'arrêt du ventilateur (si existants), l'appareil se place automatiquement en "off mode". Pour remettre l'appareil en mode de fonctionnement normal, appuyer sur la touche ON/OFF.
- N'existe que sur certains modèles
Foyers extensibles
Certains modèles sont équipés de foyers extensibles. Ces derniers peuvent avoir soit une forme circulaire soit une forme ovale et s'étendent pour former des foyers doubles ou triples. Illustration des commandes générées sur les modèles équipés de ces options.
Foyer extensible circulaire
- Touche ALLUMAGE FOYER DOUBLE pour activer le foyer double (voir Mise en marche et Utilisation). Voyant FOYER DOUBLE ALLUMÉ : il signale l'allumage du foyer double.
Foyer extensible ovale
- Touche ALLUMAGE FOYER OVALE pour activer le foyer ovale (voir Mise en marche et Utilisation). Voyant FOYER OVALE ALLUMÉ : il signale l'allumage du foyer ovale.
La colle utilisée pour les joints laisse des traces de graissé sur le verre. Nous conseillons de les éliminer avant d'utiliser l'appareil à l'aide d'un produit d'entretien non abrasif. Une odeur de caoutchou peut se dégager au cours des premières heures d'utilisation, elle disparaîtra très vite. Un bip retentit quelques secondes après la mise sous tension de la table de cuisson. À partir de ce moment-là, l'allumage de la table est possible.
Mise sous tension de la table de cuisson
Pour permettre la table de cuisson sous tension, appuyer sur la touche 1 pendant une seconde environ.
Allumage des foyers
Pour allumer un foyer, sélectionner la puissance souhaitée à l'aide des touches - et +.
Appuyer 2 secondes de suite sur la touche + : la puissance du foyer grimpe immédiatement à son niveau maximum (16). - Appuyer 2 secondes de suite sur la touche - : la puissance du foyer descend au niveau 2 (fonction cuisson lente).
Fonction medium*
Par pression de la touche Medium le foyer s'allume à son niveau de puissance intermédiaire 8.
Fonction power*
Une fonction power permet d'accélérer la montée en température des foyers. Allumer le foyer désiré et régler sa puissance comme décrit dans le paragraphe précédent. Appuyer sur la touche power . L'afficheur, indicateur de puissance, affiche alternatively la lecture "P" et le niveau de puissance sélectionné précédemment jusqu'à ce que le niveau de puissance vous soit atteint. Dans qu'il est atteint, l'afficheur returne à l'affichage du niveau de puissance sélectionné. Pour désactiver cette fonction, appuyer à nouveau sur la touche ou bien désirir un autre niveau de puissance à l'aide des touches de selection de puissance allant de 0 à 16.
Extinction des foyers
Pour éteindre un foyer :
- Appuyer sur la touche : la puissance du foyer descend progressivement jusqu'à extinction.
- Ou bien appuyer en même temps sur les touches et la puissance du foyer revient aussitôt à 0 et le foyer s'éteint.
Programmation de la durée de cuisson
Une pression prolongée sur les touches + et - permet l'avancement rapide des minutes du minuteur.
Il est possible de programmer simultanément tous les foyers pour une durée comprise entre 1 et 99 minutes.
- Sélectionner le foyer à l'aide de la touche de sélection correspondante.
- Régler sa température.
- Appuyer sur la touche de programmation
- Sélectionner la durée de cuisson désirée à l'aide des touches et
- Appuyer sur la touche pour valider.
Le compte à rebours du minuteur démarre aussitôt. La fin de la cuisson programmée est indiquée par un signal acoustique (durée 1 minute) et le foyer s'éteint. Procédez de même pour tous les foyers devant être programmés.
Affichage en cas de programmation multiple
En cas de programmation d'un ou de plusieurs foyers, l'écran affiche le temps restant pour le foyer qui se rapproche le plus de la fin du temps programmé, dont la position est indiquée par clignotement du voyant correspondant. Les voyants des autres foyers programmés sont allumés. Pour afficher le temps restant des autres foyers programmés, appuyer plusieurs fois de suite sur la touche : il y aura affichage à la suite et dans le sens des aiguilles d'une montre des temps de tous les foyers programmés, en partant du foyer avant gauche.
- N'existe que sur certains modèles
Modifier la programmation
- Appuyer plusieurs fois de suite sur la touche ⟨⟩, jusqu'à l'affichage du temps correspondant au foyer devant être modifié.
- Sélectionner un nouveau temps à l'aide des
touches -et +
- Appuyer sur la touche pour valider.
Pour annuler une programmation, procéder comme indiqué plus haut. Au point 2, appuyer sur la touche
: la durée diminue progressivement jusqu'à
l'extinction. La programmation est remise à zéro et l'afficheur quitte le mode programmation.
Le minuteur
La table de cuisson doit être allumée.
Le minuteur permet de sélectionner une durée de 99 minutes maximum.
- Appuyer sur la touche de programmation jusqu'à ce que le voyant minuteur s'allume.
- Sélectionner la durée désirée à l'aide des touches

- Appuyer sur la touche pour valider.
Le compte à rebours du minuteur démarre aussi. Une fois le temps écoulé, un signal sonore retentit (pendant 1 minute).
Verrouillage des commandes
Pendant le fonctionnement de la table, il est possible de verrouiller les commandes pour empêcher toute intervention extérieure sur le réglage.
(enfants, nettoyage...). Appuyer sur la touche pendant quelques instants pour verrouiller les commandes, le voyant situé au-dessus de la touche s'allume.
Pour pouvoir modifier les réglages (interrompre la cuisson par ex.), il faut déverrouiller les commandes.
: Appuyer sur la touche ( = 0 ) pendant quelques instants, le voyant s'éteint et les commandes sont déverrouillées.
Extinction de la table de cuisson
Appuyer sur la touche ① pour éteindre l'appareil. Si les commandes de l'appareil ont été verrouillées, elles le seront encore au rallumage de la table. Pour pouvoir rallumer la table de cuisson, il faut d'abord déverrouiller les commandes.
Mode démonstration (demo)
Il est possible de sélectionner une utilisation en mode démonstration où le tableau de bord fonctionne normalement (y compris les commandes concernant la programmation) mais où les éléments chauffants ne s'allument pas. Pour activer le mode démonstration (demo), il faut que la table soit sous tension et que tous les foyers soient éteints :
- Appuyer simultanément sur les touches + et - et les garder enfoncées pendant 6 secondes. Au bout de 6 secondes, le voyant ON/OFF et le voyant VERROUILAGE DES COMMANDES se mettent à clignoter pendant une seconde. Lâcher les touches + et - et appuyer sur la touche

- Il y a affichage de DE et de MO et la table s'éteint; au rallumage successif, la table se trouvera en mode démonstration (demo).
Pour quitter ce mode de fonctionnement, suivre la procédure décrite plus haut. Il y a affichage de DE et de OF et la table s'éteint. Au rallumage successif, la table fonctionnera normalement.
Conseils d'utilisation de l'appareil
Pour obtenir de meilleures performances de la table de cuisson :
Utiliser des casseroles à fond plat et de forte épaisseur pour qu'elles adhèrent parfaitement à la zone de chauffe

Utiliser des casseroles dont le diamètre couvre complètement la zone de chauffe de façon à ce que toute la chaleur disponible puisse être utilisée.

- Veiller à ce que la base des casseroles soit toujours parfaitement sèche et propre pour garantir un bon contact et une longue durée de vie des foyers mais aussi des casseroles.
- Eviter d'utiliser les mêmes casseroles que sur les brûleurs à gaz. La concentration de chaleur sur les brûleurs à gaz peut déformer le fond de la casserole qui perd de son adhérence.
DétectioN de RéCipient
Chaque foyer est équipé d'une détection de casserole. Le foyer ne délivre de puissance qu'en présence d'une casserole adaptée au foyer. L'afficheur de puissance clignote pour signaler :
- une casserole incompatible
- une casserole de trop petit diamètre
- que la casserole a été soulevée
Indicateurs de chaleur résiduelle
Chaque foyer est équipé d'un indicateur de chaleur résiduelle. Cet indicateur signale les foyers dont la température est encore élevée. Si l'afficheur de
puissance affiche H, c'est que le foyer est encore chaud. On peut par exemple s'en servir pour garder un plat au chaud ou faire fondre du beurre ou du chocolat. Lors du refroidissement du foyer,
L'afficheur de puissance affiche H. L'afficheur s'éteint dès que le foyer a suffisamment refroidi. Surchauffe
En cas de surchauffe de ses composants électroniques, la table s'éteint automatiquement et l'afficheur indique F suivi d'un chiffre clignotant. Cet affichage disparaît et la table est à nouveau utilisable dès que la température est redescendue à un niveau acceptable.
Interrupteur de sécurité
L'appareil est équipé d'un interrupteur de sécurité qui interrompt instantanément le fonctionnement des foyers lorsque un temps limite de fonctionnement à un niveau de puissance donné est atteint. Pendant l'interruption de sécurité, l'afficheur indique "0".
Exemple : le foyer arrêté droit est réglé sur 5, tandis que le foyer avant gauche est réglé sur 2. Le foyer arrêté droit s'éteindra au bout de 7 heures et demie de fonctionnement tandis que le foyer avant gauche s'éteindra au bout de 9 heures et demie.
| Puisance | Durée limite de fonctionnement |
| 1 | 10 |
| 2 | 9,5 |
| 3 | 9 |
| 4 | 8,5 |
| 5 | 7,5 |
| 6 | 7 |
| 7 | 6,5 |
| 8 | 6 |
| 9 | 5,5 |
| 10 | 5 |
| 11 | 4 |
| 12 | 3,5 |
| 13 | 3 |
| 14 | 2,5 |
| 15 | 2 |
| 16 | 1 |
Signal sonore
Des anomalies, comme par exemple :
- un objet (casserole, couvert,...) placé plus de 10 secondes sur la zone de commande,
- un débordement sur la zone de commande,
- Une pression prolongée sur une touche peut déclencher un signal sonore. Éliminer la cause de dysfonctionnement pour stopper le signal sonore. Si la cause de l'anomalie n'est pas éliminée, le signal sonore continue à retentir et la table s'éteint.
Conseils utiles pour la cuisson
| Cuisson très vivie | 16 24 | Mise en pression Autocuisser Grillade | Friture Ebullition |
| Cuisson vivie | 20 32 | Crepes | Saise et coloration (Rotis, Steack, Escalope, Files de poisson, Oeufs au plat) |
| Cuisson moyenne | 9 18 | Réduction rapide (Sauce liquides) Eau Frémissante (Pates, Riz, Légumes) Lait | |
| 7 8 | Réduction lente (Sauce épaisSES) | ||
| 5 4 | Cuisson au bain-marie | Cuisson Autocuiseur après chuchotement | |
| Cuisson douce | 20 32 | Mijotage (Ragouts) | Réchauffage des préparations |
| Cuisson très douce | - | Sauce chocolat | Maintien au chaud |
Cet appareil a été conçu et fabriqué conformément aux normes internationales de sécurité. Ces consignes de sécurité sont très importantes et doivent être lues attentivement.
Cet appareil est conforme aux Directives Communautaires suivantes :
- 2006/95/CEE du 12.12.06 (Basse Tension) et modifications successives
- 2004/108/CEE du 15/12/04 (Compatibilité électromagnétique) et modifications successives
- 93/68/CEE du 22/07/93 et modifications successives.
- 1275/2008 mode veille/arrêt.
Sécurité générale
S'assurer que la prise d'air à travers la grille du ventilateur ne soit jamais bouchée. La table à encastrer exige en effet une bonne aération pour le refroidissement des composants électroniques.
- Cet appareil a été créé pour un usage familial, de type non professionnel.
- Cet appareil ne doit pas être installé en extérieur, même dans un endroit abrité, il est en effet très dangereux de le laisser exposé à la pluie et aux orages.
- Ne pas toucher à l'appareil si l'on est pieds nus ou si l'on a les mains ou les pieds mouillés ou humides.
- Cet appareil qui sert à cuire des aliments ne doit être utilisé que par des adultes conformément aux instructions du mode d'emploi. Ne pas utiliser la table comme plan de dépôt ou comme planche à découper.
- Le plan vitrocéramique résiste aux chocs mécaniques, il peut toutefois se fendre (ou même se briser) sous l'effet d’un choc provoqué par un objet pointu, tel qu’un ustensile par exemple. Dans ce cas, débrancher immédiatement l’appareil du réseau électrique et s’adresser à un centre d’assistance technique.
- Éviter que le cordon d'alimentation d'autres petits électroménagers touche des parties chaudes de la table de cuisson.
- Ne pas oublier que la température des foyers reste assez élevée pendant trente minutes au moins après leur extinction. La chaleur résiduelle est aussi signalée par un voyant (voir Mise en marche et Utilisation). Garder à une distance de la table de cuisson tout objet qui pourrait fondre, des objets en plastique ou en aluminium par exemple, ou des produits à haute teneur en sucre. Faire très attention aux emballages, au film plastique et au papier aluminium : au contact des surfaces encore chaudes ou tièdes, ils risquent d'endommager gravement la table.
- S'assurer que les manches des casseroles soient toujours tournés vers l'intérieur de la table.
cuisson pour éviter tout risque d'accident.
- Ne pas tirer sur le câble pour débrancher la fiche de la prise de courant.
- N'effectuer aucune opération de nettoyage ou d'entretien sans avoir débranché la fiche de la prise de courant.
- Il n'est pas prévu que cet appareil soit utilisé par des personnes (enfants compris) représentant des capacités physiques, sensorielles ou mentales réduites ou qui n'ont pas l'expérience ou les connaissances indispensables, à moins qu'elles ne le fassent sous la surveillance de quelqu'un responsable de leur sécurité ou qu'elles aient été dûment formées sur l'utilisation de l'appareil.
- Si des foyers halogènes équipent votre appareil, ne les fixez pas des yeux trop longtemps.
- S'assurer que les enfants ne jouent pas avec l'appareil.
Mise au rebut

- Mise au rebut du matériel d'emballage : se conformer aux réglementations locales, les emballages pourront ainsi être recyclés.
- La directive européenne 2002/96/CE relative aux déchets d'équipements électriques et électroniques (DEEE), prévoit que les électroménagers ne peuvent pas être traités comme des déchets solides urbains courants. Les appareils usagés doivent faire l'objet d'une collecte séparée pour optimiser le taux de récupération et de recyclage des matériaux qui les composent et empêcher tout danger pour la santé et pour l'environnement. Le symbole de la poubelle barrée est appliqué sur tous les produits pour rappeler qu'ils font l'objet d'une collecte sélective.
Pour de plus amples renseignements sur la mise au rebut des électroménagers, les possesseurs peuvent s'adresser au service public prévu à cet effet ou aux commerçants.
Mise hors tension
Avant toute opération de nettoyage ou d'entretien, couper l'alimentation électrique de l'appareil.
Nettoyage de l'appareil
! Ne jamais utiliser de détergents abrasifs ou corrosifs, tels que des bombes aérosols pour grilles et fours, des détacheurs et des anti-rouille, des poudres à recycler ou des éponges à surface abrasive : ils risquent de rayer irrémédiablement la surface.
! Ne jamais nettoyer l'appareil avec des nettoyeurs vapeur ou haute pression. - Pour un entretien courant, passer une éponge humide sur la surface de la table et essuyer avec du papier essuie-tout. - Si la table est particulièrement sale, frotter avec un produit d'entretien ajusté au verre vitrocérémique, rincer et essuyer. - Pour enlever les salissures en relief, utiliser le grattoir livré avec l'appareil. Intervenir dès que possible, n'attendez pas que l'appareil ait refroidi afin d'éviter toute incrustation des salissures. L'utilisation d'une éponge en fil d'acier inoxydable, spéciale verre vitrocéramique, imbibée d'eau savonneuse donne d'excellents résultats.
Le grattoir fourni est coupant : utilisez-le avec précaution.
- Tout objet, matière plastique ou sucre ayant accidentellement fondu sur la table de cuisson doit être aussitôt enlevé à l'aide du grattoir tant que la surface est encore chaude.
- Une fois que la table est propre, elle peut être traitée avec un produit d'entretien et de protection spécial : celui-ci forme un film invisible qui protège la surface en cas de débordement accidentel. Opérer de préférence quand l'appareil est tiède ou froid.
- Prendre soin de toujours bien rincer à l'eau claire et d'essuyer la table : les résidus des produits pourraient en effet s'incruster lors d'une prochaine cuisson.
Cadre en acier inox (uniquement pour les modèles avec encadrement)
Un contact prolongé avec une eau très calcaire ou l'utilisation de nettoyants contenant du phosphore peuvent tacher l'acier inoxydable.
Nous conseillons de rincer abondamment et de bien essuyer après entretien. Il est préférible d'éliminer aussitôt tout débordement d'eau.
Certaines tables ont un cadre en aluminium ressemblant à de l'acier inox. Ne pas utiliser de produits d'entretien et de dégraissage ne convenant pas pour l'aluminium.
Démontage de la table
Si le démontage de la table de cuisson s'avère nécessaire :
- enlever les vis qui fixent les ressorts de centrage sur les côtés;
- Desserrer les vis des crochets de fixation dans les coins;
- dégager la table de cuisson du meuble.
Il est vivement déconseillé d'essayer d'accéder aux mécanismes internes pour tenter une réparation. En cas de panne, contacter le service d'assistance technique.
Description technique des modèles
Ces tableaux indiquent, modèle par modèle, les valeurs d'absorption d'énergie, le type d'élément chauffant et le diamètre de chaque foyer.
| Tables de cuisson | TEP 746 O L | TEP 645 B TEP 645 L TEP 745 L | ||
| Foyers | Puisance (en W) | Diametre (en mm) | Puisance (en W) | Diametre (en mm) |
| Arrière gauche | A 2500 | 210 | A 2500 | 210 |
| Arrière droit | A 1200 | 145 | H 1400 | 160 |
| Avant gauche | H 1200 | 145 | H 1200 | 145 |
| Avant droit | HO 2400/1500 | 170x260 | H 1800 | 180 |
| Puisance totale | 7300 | 6900 | ||
| Tables de cuisson | TRP 642 D L | TEP 646 L | ||
| Foyers | Puisance (en W) | Diametre (en mm) | Puisance (en W) | Diametre (en mm) |
| Arrière gauche | HD 2200/1000 | 210/140 | A 2500 | 210 |
| Arrière droit | H 1400 | 160 | H 1400 | 160 |
| Avant gauche | H 1200 | 145 | H 1200 | 145 |
| Avant droit | HD 1700/700 | 180/120 | A 1800 | 180 |
| Puisance totale | 6500 | 6900 | ||
| Tables de cuisson | TEP 635 O L | TRP 632 TD L | ||
| Foyers | Puisance (en W) | Diametre (en mm) | Puisance (en W) | Diametre (en mm) |
| Arrière gauche | A 2500 | 210 | ||
| Arrière droit | H 1400 | 160 | ||
| Central gauche | HT 2700/1950/1050 | 270/210/145 | ||
| Central droit | HO 2400/1600/600 | 170x260 | ||
| Avant gauche | H 1200 | 145 | ||
| Avant droit | HD 1700/700 | 180/120 | ||
| Puisance totale | 6100 | 5800 | ||
| Tables de cuisson | TEP 846 O L | TEP 646 O L | ||
| Foyers | Puisance (en W) | Diametre (en mm) | Puisance (en W) | Diametre (en mm) |
| Arrière gauche | A 2500 | 210 | ||
| Arrière droit | A 2500 | 210 | A 1200 | 145 |
| Central gauche | HO 2400/1500 | 170x260 | ||
| Central | A 1800 | 180 | ||
| Avant gauche | H 1200 | 145 | ||
| Avant droit | H 1200 | 145 | HO 1800/1000 | 145x250 |
| Puisance totale | 7900 | 6700 | ||
Légende :
A = halogène simple
H = hilight simple
HO = hilight ovale
HD = hilight double
HT = hilight triple

Italiano, 1

Français, 14

English,27

Deutsch, 40

Espanol, 53
TEP 645 B
Installation, 28-30
Positioning
Avant de effectuer la connexion, vérifie que:
Notice Facile