H25T - Cheminée HANDOL - Notice d'utilisation et mode d'emploi gratuit
Retrouvez gratuitement la notice de l'appareil H25T HANDOL au format PDF.
| Type d'appareil | Cheminée insert |
| Modèles | Handöl 25, Handöl 25T |
| Installation | Encastrée |
| Combustible | Bois |
| Matériau principal | Acier |
| Type de vitre | Vitrocéramique résistante à la chaleur |
| Ouverture porte | Latérale ou frontale (non précisé) |
| Sortie de fumée | Verticale |
| Dimensions (H x L x P) | Non précisé |
| Poids | Non précisé |
| Puissance nominale | Non précisé |
| Rendement | Non précisé |
| Type de ventilation | Naturelle |
| Normes de sécurité | Non précisé |
| Couleur | Gris métal |
| Accessoires inclus | Non précisé |
FOIRE AUX QUESTIONS - H25T HANDOL
Questions des utilisateurs sur H25T HANDOL
0 question sur cet appareil. Repondez a celles que vous connaissez ou posez la votre.
Poser une nouvelle question sur cet appareil
Téléchargez la notice de votre Cheminée au format PDF gratuitement ! Retrouvez votre notice H25T - HANDOL et reprennez votre appareil électronique en main. Sur cette page sont publiés tous les documents nécessaires à l'utilisation de votre appareil H25T de la marque HANDOL.
MODE D'EMPLOI H25T HANDOL
DK Monteringsvejledning 2 IT Istruzioni per l'installazione 14 FR Instructions d'installation 28 NL Installatievoorschriften 42 FI Asennusohjeet 56


Cher propriétaire d'un poêle handol!
Nous vous souhaitons la bienvenue au sein de la famille Handöl, en espérant que votre poèle vous procurera beaucoup de satisfaction.
Nous croyons comprendre que vous attachez une grande importance au design et à la qualité.
En tant que nouveau propriétaire d'un poèle Handöl, vous pouvez être certain d'avoir fait l'acquisition d'un modèle au design intertemporel et d'une grande longévité.
Le poêle a également un système de combustion qui est à la fois écologique et efficace, offrant le meilleur rendement thermique possible.
Avant de commencer l'installation et d'allumer votre poèle, prenez le soin de lire soigneusement les instructions, ainsi que le mode d'emploi et les conseils d'allumage.
Table des matières
Généralités 30
Distances d'installation aux murs et au plafond 31
Arrivée de l'air de combustion 32
Plaque de sol pour série Handöl 20 (en option). 32
Déballage 33
Montage de la hotte en pierres volcaniques (option) 33
Raccordement par l'arrière au conduit de cheminée. 34
Raccordement par le haut à travers un plafond intérieur 35
Montage d'un coude haut. 37
Montage de l'enveloppe téléscopique 39
Montage d'une enveloppe supplémentaire 40
Déclaration du fabricant
La fabrication du produit s'est déroulée conformément aux documents qui sont à la base de la certification du produit et aux exigences en matière de contrôle de la fabrication.
Exigences concernant le conduit de cheminée
Que le raccordement ait lieu directement par l'arrière ou par le haut du poêle, la cheminée doit être dimensionnée pour une température de 350°C au moins.
Mise en garde!
En service, certaines surfaces du poêle s'échauffent très fortement et peuvent provoquer des brûlures au toucher.
Veiller également au puissant rayonnement de chaleur à travers la porte vitrée.
Si une matière inflammable est placée près de la distance de sécurité indiquée, cela peut déclencher un feu.
Un feu qui couve peut provoquer l'allumage soudain des gaz et occasionner des dégâts matériels et des blessures corporelles.
Toute installation d'un nouveau foyer doit être signalée à l'autorité locale chargée des permis de construire. La propriété de la maison est seule responsable du respect des prescriptions de sécurité imposées et de l'inspection de l'installation par un professionnel qualifié. Le ramoneur responsable/agrée doit être informé de l'installation car elle entraîne une modification du besoin de ramonage.
Généralités
Ces instructions concernent le mode d'assemblage et d'installation des modèles Handöl 25/25T. Le poèle est livré avec des instructions d'allumage et un mode d'emploi. Nous vous engageons à lire soigneusement ces documents et à les conserver pour une éventuelle consultation future.
Le poêle est homologué et peut être raccordé à une cheminée dimensionnée pour des températures de gaz de fumée de 350°C, avec manchon de raccordement de 150mm de diamètre extérieur.
Un apport d'air extérieur doit être prévu pour l'air de combustion.
Caractéristiques techniques
| Puissance | 3-9 kW | |
| Puissance nominale | 6 kW (ca 1,8 kg/hevre) | |
| Taux de rendement maximum | 80 % | |
| Modèle | 25 | 25T |
| Poids, modèle haut (kg) | 160 | 195 |
| Largeur (mm) | 700 | 700 |
| Profondeur (mm) | 505 | 505 |
| Hauteur, modèle haut (mm) | 1350 | 1350 |
| Diamètre ext. du manchon de raccordement Ø150 mm | ||
Agréé selon: Norme européenne EN-13240 classe 1 Marquage suédois environnement et qualité, marquage P, n° cert. 22 03 12
Norme norvégienne NS 3059, Certif. N° xxx-xxx
Norme allemande DIN 18.891, RO-xx xx xxx
Normedanoise887-1, ^ id. xxx
Permis de construire
Un permis de construire est parfois exigé pour l'installation d'un foyer et la construction d'une cheminée. Avant de commencer l'installation, nous vous recommandons donc de vous renseigner auprès du service local compétent.
Support porteur
Contrôler et s'assurer que le sol a une portance suffisante pour le poêle et la cheminée. Si le poêle à bois doit être placé sur un solivage en bois, la portance de celui-ci doit être contrôlée par un professionnel du bâtiment.
Si le poids total ne dépasse pas 400kg, il n'est pas nécessaire de renforcer le solivage en bois.
Plaque de sol
Afin de protéger le sol contre les projections de braises, le poêle doit toujours être posé sur un support ininflammable. Si le sol est inflammable, il doit être protégé par un matériel ininflammable qui dépasse d'au moins 300 mm devant le poêle et 100 mm sur les côtés. D'autres exigences sont parfois imposées au niveau national, nous vous recommandons donc de vous renseigner auprès du ramoneur/agréé de votre lieu de résidence.
Cheminée
Le poêle requiert un tirage de cheminée d'au moins -12Pa. Le tirage est essentiellement fonction de la longueur et de la section de la cheminée, mais également de l'herméticité de celle-ci à la pression. La longueur minimale recommandée de la cheminée est de 3,5m et la section conseillée est de 150-200cm² (140-160mm de diamètre).
Veillez à vérifier soigneusement que la cheminée est hermétique et qu'il n'y a pas de fuite autour des plaques de ramonage et aux raccords des tubes.
Remarquez qu'un conduit de fumée représentant des coudes à angle aigu et des parties horizontales réduit le tirage dans la cheminée. La longueur horizontale maximale est de 1m, à condition que la longueur verticale soit d'au moins 5m.
Le conduit de fumée doit pouvoir être ramonné sur toute sa longueur et les plaques de ramonage doivent être facilement accessibles.

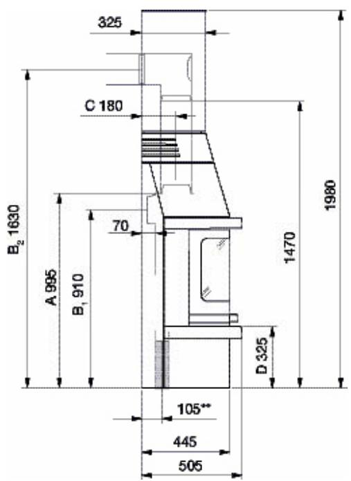
Distances d'installation aux murs et au plafond
Placer le poêle sur la plaque de sol et vérifier que les distances d'installation des figures sont respectées. En cas de raccordement par le haut à une cheminée en acier, nous recommandons de consulter les instructions d'installation des différents constructeurs concernés.
A = hauteur du sol au raccordement de la cheminée. B_1 = hauteur du sol au centre c/c du raccord du conduit de fumée vers l'arrière B_2 = hauteur du sol au centre c/c du raccord du conduit de fumée vers l'arrête, coude haut
Prendre en compte les exigences concernant les distances de sécurité aux matériaux inflammables qui sont spécifiques à la cheminée en acier.
La distance minimale devant l'ouverture du poêle à un élément de construction ou d'aménagement intérieur inflammable doit être de 1m.
C = distance de l'arrière au centre c/c du raccord du conduit de fumée vers le haut D = hauteur du sol au bord inférieur de la porte


Mur pare-feu en brique ou en béton
Mur pare-feu en brique ou en béton
Pour éviter toute décoloration des cloisons inflammables peintes, nous recommandons la même distance latérale que pour les cloisons inflammables. Plafond inflammable

Arrivée de l'air de combustion
L'air de combustion peut être raccordé directement depuis l'extérieur via un conduit, ou indirectement via une prise d'air placée dans le mur extérieur de la pièce où est placé le poêle.
Nous proposons ci-dessous quelques alternatives d'installation. Dans les installations où l'air extérieur est amené par le mur placé derrière le poêle, il suffit de découvrir une plaque métallique pour faire passer le conduit d'air de combustion. Utiliser un marteau pour extraire la plaque.
Le manchon de raccordement du poêle a un diamètre extérieur de 64 mm.
Dans les passages chauffés, le conduit doit être isolé contre la condensation à l'aide d'une épaisseur de 30 mm de laine minérale, recouverte extérieurement d'une barrière anti-humidity (plastique de construction). Dans le passage, il est important d'étanchéifier entre le tube et le mur (ou le sol) à l'aide d'un mastic à joint. Pour les passages de conduits de longueur supérieure à 1 m, le diamètre du tube doit être porté à 100 mm et il faut désirer une prise d'air de taille supérieure.
Un tuyau d'air de combustion isolé contre la condensation de 1 m est disponible en option.
Passage indirect par mur extérieur
Passage par mur extérieur
Plaque de sol pour série handöl 20 (en option)


Sur les plaques de sol préfabriquées de la série Handöl 20, un trou est prévu pour permettre le passage du tuyau d'air de combustion. Prière de noter que les images ci-dessus illustrent l'emplacement du trou sur la plaque de sol et non le manchon de raccordement au poêle. Pour le raccordement de l'air admis par le trou de la plaque de sol, un tuyau flexible doit être utilisé, ce qui ressort des images de la page 31.
Déballage
Sortir le poèle de l'emballage et déballer tous les colis livrés, s'assurer qu'aucune pièce ne manque ou n'est défectueuse à la livraison. Derrière le socle qui est monté avec une fixation enclipsée, le poèle est fixé sur la palette par des vis. Lever et transporter le poèle conformément à l'image.



Montage de la hotte en pierres volailles (option)
Veiller à manipuler les pierres ollaires avec beaucoup de précaution, car les arêtes franches sont particulièrement sensibles aux coups.
Fixer les pierres latérales à raison de quatre vis chacune à travers le profilé métallique. La pierre frontale se fixe par quelques points de silicone.

Raccordement par l'arrière au conduit de cheminée
Repérer le centre du trou dans le mur, prévu pour le conduit de fumée. Vérifier que la hauteur de raccordement du conduit correspond à la hauteur du tube de raccordement du poèle. Percer un trou d'environ 180 mm de diamètre et cimenter le manchon à l'aide d'un mortier réfractaire (non compris dans la livraison). Laisser bien sécher le mortier avant de raccorder le poèle à la cheminée.

À la livraison, le poèle est prévu pour un raccordement par le haut ; pour le raccordement par l'arrière, le manchon de raccordement doit être déplacé du haut vers l'arrière du poèle. Déposer les plaques de couverture et l'isolement du dessus du poèle et détacher le couvercle du dos du poèle. Inverser les emplacements respectifs du manchon de raccordement et du couvercle, remonter les plaques de couverture et l'isolement selon l'image ci-dessous.

Concernant le tube de raccordement sur le manchon, veiller à ce que le joint ne roule pas de sa position. Placer le poèle sur la plaque de sol et engager le tube de raccordement dans le manchon de maçonnerie, placer de l'étoupe entre le manchon de maçonnerie et le tube de raccordement. Pour améliorer l'étanchéité, il est possible d'utiliser du mastic à chaudière.

Important!
Avant de mesurer en service le poèle, l'installation doit être inspectée par un ramoneur/agréé. Avant d'allumer le feu pour la première fois, bien lire les « Instructions d'allumage et d'utilisation de la série Handöl 20 »
Raccordement par le haut à travers un plafond intérieur
Appliquez les instructions ci-dessous pour percer le plafond. Pour l'installation de la cheminée, nous vous prions de consulter les instructions d'installation de la cheminée.
Plafond intérieur en pente, dans un angle

Si le plafond intérieur est en pente et que le poêle est placé dans un angle, la projection horizontale du plan du trou pratiqué dans le plafond intérieur doit être de 480x480mm et le trou doit être orienté parallèlement aux murs.
Si le plafond intérieur est horizontal, le trou pratiqué dans le plafond intérieur doit être de 400x430mm et il doit suivre l'orientation du poêle, aussi bien si le poêle est installé le long d'un mur rectiligne que dans un angle.
Les instructions suivantes concernent le raccordement au système de cheminée Premodul. Monter le tube initial sur le manchon de raccordement, veiller à ce que le joint du manchon ne rougue pas de sa position. Suivre ensuite l'ordre de montage indiqué par l'image, la rondelle d'arrêt doit reposer sur la gorge du tube initial. Verrouiller la plaque d'étanchéité sur la hotte en rabattant les languettes de la hotte au moyen d'une pince. Poursuivre le montage des modules de cheminée à travers le plafond.

Engager l'enveloppe à travers le solivage, puis la faire descendre prudemment pour qu'elle entre dans les guides de la plaque d'étanchéité et monter la plaque arrière. Si l'on désire compléter par d'autres éléments d'enveloppe, consulter le chapitre "Montage d'enveloppes supplémentaires".

Les parties avant et arrière de l'isolant de plafond doivent être montées de manière à obtenir un espace de 5mm par rapport à l'enveloppe, commencer par la partie arrière. S'assurer que l'isolant de plafond intérieur est bien plaqué hermétiquement contre le plafond. Enfoncer le joint en caoutchouc dans la fente autour de l'enveloppe, le joint devant être orienté comme sur l'image.

Important!
Avant de mettre en service le poèle, l'installation doit être inspectée par un ramoneur agréé. Avant d'allumer le feu pour la première fois, bien lire les « Instructions d'allumage et d'utilisation de la série Handöl 20 »
Montage d'un coude haut
Monter le manchon de maçonnerie selon les instructions de la page 34.

Ajuster la longueur du tube de raccordement et engager celui-ci dans le manchon à cimenter. Étanchéifier avec de l'étoupe entre le manchon à cimenter et le tube de raccord.


Placer le poèle sur la plaque de sol. À la livraison, le support de l'isolant et l'isolant sont prévus pour raccordement par l'arrête. Lever la plaque d'isolation, l'isolant et le support de l'isolant, découvrer le couvercle du support de l'isolant et retirer la partie centrale de l'isolant. Monter le tube initial sur le manchon de raccordement, veiller à ce que le joint du manchon ne rouge pas de sa position. Remonter le support de l'isolant, l'isolant, la plaque d'étanchéité et verrouiller cette dernière sur la hotte en rabattant les languettes de la hotte au moyen d'une pince.
Découper le couvercle amovible de la plaque arrêté et laisser la plaque arrêté reposer sur le tube de raccordement. Relier les deux extrémités de tube par un tube coudé, étanchéifier avec du mastic à chaudière.
Mastic à chaudière



Monter l'enveloppe en la descendant contre les guides de la plaque d'étanchéité, fixer ensuite la plaque arrêtée sur l'enveloppe et terminer en mettant en place la plaque supérieure.
Important!
Avant de mettre en service le poèle, l'installation doit être inspectée par un ramoneur/agréé. Avant d'allumer le feu pour la première fois, bien lire les « Instructions d'allumage et d'utilisation de la série Handöl 20 »
Montage de l'enveloppe téléscopique
L'enveloppe téléscopique peut être utilisée dans tous les cas de raccordement qui ont été décrits dans les chapitres précédents. La description ci-dessous concerne le montage d'une enveloppe téléscopique quand le poète est raccordé selon l'alternative avec coude haut.

Écrou M6

Monter les tiges filetées sur la partie supérieure de l'enveloppe. Fixer ensuite la plaque d'étanchéité et monter l'isolant selon les images. La plaque d'étanchéité et l'isolant ne sont pas utilisés dans le cas du raccord par l'arrête du poèle, ainsi que pour le raccordement par le haut à travers le plafond avec des modules de cheminée Premodul.

Contrôler l'endroit où le passage du tube de raccordement doit avoir lieu sur la plaque arrêté avec la cheminée. Découper le nombre de couvercles amovibles nécessaire et accrocher la plaque arrêté sur le tube de raccordement. Raccorder ensuite le poèle à la cheminée selon l'alternative "Montage d'un coude haut".


Monter l'enveloppe téléscopique en la plaçant sur les guides de la plaque d'étanchéité, engager ensuite la partie téléscopique en direction du plafond et la visser. Monter la plaque arrêté au dos de l'enveloppe, terminer en vissant la plaque arrêté dans le plafond.
Important!
Avant de mettre en service le poèle, l'installation doit être inspectée par un ramoneur agréé. Avant d'allumer le feu pour la première fois, bien lire les « Instructions d'allumage et d'utilisation de la série Handöl 20 »
Montage d'une enveloppe supplémentaire
Une plaque de raccord doit être montée entre chaque élément d'enveloppe. Placer la plaque de raccord sur l'enveloppe inférieure de sorte que les tiges filétées traversent la membrure de l'enveloppe. L'enveloppe supérieure se monte d'une manière équivalente. Terminer en montant les plaques arrêté sur chaque élément d'enveloppe.

Notice Facile