24 E - Chaudière à gaz PERFORMANCE - Notice d'utilisation et mode d'emploi gratuit
Retrouvez gratuitement la notice de l'appareil 24 E PERFORMANCE au format PDF.
| Type d'appareil | Chaudière à gaz |
| Modèle | Performance 24 E / 24 EB |
| Type de cheminée | Cheminée traditionnelle |
| Alimentation | Gaz naturel |
| Puissance nominale | Non précisé |
| Type de combustion | Atmosphérique |
| Rendement | Non précisé |
| Type de chauffage | Chauffage central |
| Installation | Murale ou au sol |
| Contrôle de température | Thermostat intégré |
| Maintenance | Facile, selon notice |
| Sécurité | Détecteur de flamme |
| Dimensions | Non précisé |
| Poids | Non précisé |
| Garantie | Non précisé |
FOIRE AUX QUESTIONS - 24 E PERFORMANCE
Questions des utilisateurs sur 24 E PERFORMANCE
0 question sur cet appareil. Repondez a celles que vous connaissez ou posez la votre.
Poser une nouvelle question sur cet appareil
Téléchargez la notice de votre Chaudière à gaz au format PDF gratuitement ! Retrouvez votre notice 24 E - PERFORMANCE et reprennez votre appareil électronique en main. Sur cette page sont publiés tous les documents nécessaires à l'utilisation de votre appareil 24 E de la marque PERFORMANCE.
MODE D'EMPLOI 24 E PERFORMANCE
pour l'installation, l'utilisation et la maintenance du modèle de chaudière à gaz:
Instructions pour l'installation... 8
Normes et textes relatifs à l'installation de chaudières 8 Fixation de la chaudière 9 Raccordements hydrauliques 10 Alimentation en eau chaude sanitaire 10 Remplissage de la chaudière 10 Raccordement du gaz 11 Raccordements électriques 11 Raccordements à la cheminée 12
Instructions pour le réglage et l'entretien 13
Accès aux dispositifs de réglage....... 13 Section GAZ 13 Section HYDRAULIQUE 18 Section ÉLECTRIQUE 19
Avertissements pour réglages et entretien 19 Composants présents sur la chaudière PERFORMANCE 24 E 21 Composants présents sur la chaudière PERFORMANCE 24 EB 22 Schéma électrique de la chaudière PERFORMANCE 24 E 23 Schéma électrique de la chaudière PERFORMANCE 24 EB 24
Instructions pour l'utilisateur...25
Avertissement pour la mise en service de l'appareil 25 Conseils utiles 25 Avertissement 26 Commandes de la chaudière 26 Indications 28 Protection antigel électronique 28 Éventuels défauts de fonctionnement 29 Précautions durant l'utilisation 29
Avertissements généraux
Le présent livre fait partie intégrante du produit et en est l'instrument essentiel; il est fourni avec la chaudière et devra donc être remis à l'utilisateur.
Lire attentivement la notice et les avertissements qui y sont contenus, dans la mesure où ceux-ci fournissent d'importantes indications quant à l'installation, l'utilisation et l'entretien de l'appareil.
Conserver avec soin le présent livre, afin qu'il puisse être consulté par la suite.
L'installation de la chaudière doit être effectuée en conformité avec les réglements et les normes en vigueur, selon les instructions données par le constructeur et par les professionnels qualifiés.
Par professionnels qualifiés, on comprend principalement les Stations d'Assistance technique.
Le constructeur décline toute responsabilité, contractuelle ou extracontractuelle, pour tous dommages résultants d'erreurs d'installation, d'utilisation, ou non-observation des règles d'installation en vigueur, y compris les réglementations locales et sanitaires.
Important: La chaudière sert à réchauffer l'eau à une température inférieure à celle de l'ébulition, à la pression atmosphérique. Elle doit être raccordée à un système de chauffage et/ou à un réseau d'eau chaude sanitaire, compatible(s) avec ses caractéristiques techniques.
Ne pas laisser à la portée des enfants le matériel d'emballage (comme le carton, les clous, les sacs plastiques, etc.). qui peuvent s'avérer dangereux pour eux.
— Avant d'effectuer toute opération (nettoyage, entretien), l'appareil devra être mis hors-tension, en utilisant l'interrupteur de la chaudière, et/ou celui du réseau électrique général. — En cas de panne et/ou de mauvais fonctionnement, éteignez la chaudière, et vous abstenir de toute autre intervention personnelle.
Les éventuelles réparations devront obligatoirement être effectuées par une Station d'Assistance Technique, et avec des pièces détachées d'origine.
Un manquement à cette obligation pourrait rendre dangereux le fonctionnement de l'appareil.
— Du moment où vous décidez de ne plus utiliser l'appareil, les parties de la chaudière pouvant se révéler dangereuses devront être neutralisées. - Si l'appareil avait être vendu, cédé, ou déménagé, assurez-vous que le livret d'instructions suive l'appareil afin qu'il puisse être consulté par le nouveau propriétaire et/ou par l'installateur. — Cet appareil doit être exclusivement destiné à l'usage pour lequel il a été prévu. — Tout autre usage est à considérer comme impropre et dangereux. — Cet appareil doit obligatoirement être installé sur un mur.
Données techniques
| DONNÉES TECHNIQUES | U.M. | PERFORMANCE 24 E | PERFORMANCE 24 EB |
| Certificat de qualité CE | n° | 0694 BL 3014 | 0694 BL 3014 |
| Catégorie | II2E+3+ | II2E+3+ | |
| Type | B11BS | B11BS |
| Débit calorifique Max. (Hi) | kW | 27 | 27 |
| Débit calorifique Min. (Hi) | kW | 10.5 | 10.5 |
| Puisance utile Max. (Hi) | kW | 24.3 | 24.3 |
| Puisance utile Min. (Hi) | kW | 8.9 | 8.9 |
RENDEMENT MESURE
| Rendement nominal | % | 90.1 | 90.1 |
| Rendement à 30% Pn | % | 88.5 | 88.5 |
DONNÉES de CHAUFFAGE
| Régulation de la Température de l'Eau de Chauffage | °C | 30-80 | 30-80 |
| Vase d'expansion | I | 8 | 10 |
| Pression vase d'expansion | bar | 1 | 1 |
| Pression max. de fonctionnement | bar | 2.5 | 2.5 |
| Température Max. | °C | 90 | 90 |
DONNÉES DU CIRCUIT SANITAIRE
| Volume du gallon | I | / | 60 |
| Prélimèvement continu ΔT 25°C | I/min | 14 | 14 |
| Prélimèvement continu ΔT 35°C | I/min | 10 | 10 |
| Débir spécifique (pr EN625) | I/min | 14 | 14 |
| Débit d'eau Min. | I/min | 2.5 | / |
| Pression sanitaire Max. | bar | 6 | 7.5 |
| Pression sanitaire Min. | bar | 0.4 | / |
| Régulation de la température Min. - Max. | °C | 35-65 | 35-65 |
CHARACTERISTIQUES ÉLECTRIQUES
| Tension / Fréquence | V / Hz | 230 / 50 | 230 / 50 |
| Puisance | W | 130 | 130 |
| Classe | II | II | |
| Protection | IP | 44 | 44 |
DIMENSIONS
| Largeur | mm | 450 | 600 |
| Hauteur | mm | 900 | 900 |
| Profondeur | mm | 360 | 450 |
| Poids | kg | 45 | 78 |
RACCORDEMENTS
| Admiss./Retour | Ø Inc | ¾" | ¾" |
| Entrée/Sortie eau sanitaire | Ø Inc | ½" | ½" |
| Gaz | Ø Inc | ½" | ½" |
| Diamètre tuyau d'evacuation des fumées | Ø mm | 125 | 125 |
PRESSIONS D'ALIMENTATION EN GAZ
| G20/G25 | mbar | 20/25 | 20/25 |
| G30/G31 | mbar | 30/37 | 30/37 |
1 By-pass de chauffage 2 Circulateur 3 Robinet de vidange 4 Vase d'expansion 5 Vanne gaz 6 Brûleur 7 Échangeur primaire 8 Boîte de fumées 9 Thermostat des fumées 10 Thermostat de sécurité du circuit eau 11 Purgeur d'air 12 Manomètre de pression d'eau 13 Soupape de sécurité chauffage 3 bars 14 Vanne 3 voies motorisée 15 Échangeur sanitaire 16 Pressostat de priorité du circuit sanitaire 17 Sonde sanitaire 18 Robinet de réglage du débit d'eau sanitaire

SCHEMA De fonctionnement performance 24 EB
1 By-pass 2 Robinet de vidange 3 Circulateur 4 Vase d'expansion 5 Vanne gaz 6 Brûleur 7 Échangeur primaire 8 Boîte de fumées 9 Thermostat des fumées 10 Thermostat de sécurité du circuit eau 11 Purgeur d'air 12 Soupape de sécurité chauffage à 3 bars 13 Vanne 3 voies motorisée 14 Pressostat de manque d'eau 15 Ballon d'eau chaude 16 Vase d'expansion

17 Robinet de vidange du ballon 18 Sonde sanitaire 19 Soupape de sécurité ECS 7 bars
HAUTEUR MANOMÉTRIQUE DISPONIBLE PERFORMANCE 24 E - PERFORMANCE 24 EB
1) Pression disponible à l'installation avec by-pass fermé 2) Pression disponible à l'installation avec by-pass ouvert
Normes et textes relatifs à l'installation de chaudières
La chaudière devra être installée conformément aux règles de l'art et vérifiée techniquement par une Station Technique agréée. L'appareil et son installation doivent respecter les normes et règlements en vigueur ainsi que les règles de sécurité.
LOCAL Ou SERA installee la chaudiere PUIS. < à 50 KW
La condition indispensable au bon fonctionnement de la chaudière, en toute sécurité, est une excellente ventilation du local de chaufferie.
Il est en effet nécessaire d'assurer à la chaudière une ventilation ajustée et constante ; — l'aspiration de l'air de combustion se fera au travers d'un tube d'un diamètre correspondant aux besoins de cette ventilation (min 100 cm2 en ventilation basse et 100 cm2 en ventilation haute dans tous les cas).
Si la chaudière est installée dans un local où la température peut être inférieure à 0°C, il est conseillé d'ajouter un liquide antigel à l'eau du circuit.
Fixation de la chaudière
Pour l'installation, procéder comme suit:
— Compte tenu de l'encombrement de la chaudière, fixer le gabarit. — Repérer les tuyaux de Départ - Retour chauffage, eau froide, eau chaude, gaz, raccords électriques comme indiqué sur le gabarit. — Enlever ce gabarit. — Accrocher la chaudière au moyen de chevilles et crochets et connecter la chaudière suivant le répération effectué ci-dessus.
N. B. : Le gabarit de montage sert seulement à disposer les raccordements ; il peut donc être réutilisé.
Avertissement Important: enlever les bouchons plastiques servant de protection des raccords de la chaudière.
GABARIT DE CHAUDIÈRE PERFORMANCE 24 E
GABARIT DE CHAUDIÈRE PERFORMANCE 24 EB

Gaz (1/2")


Retour de l'installation (3/4")

Sortie Eau Chaude (1/2")

Départ de l'installation (3/4")

Entrée Eau Froide (1/2")
Systeme de chauffage
S'assurer que la pression de l'eau ne soit pas supérieure à la pression indiquée sur la plaque signalétique de l'appareil (chaudière, réservoir, etc...). Durant le fonctionnement, la pression de l'eau contenue dans le système de chauffage augmente, s'assurer que la pression maximale ne dépasse pas celle indiquée sur la plaque signalétique. S'assurer que les évacuations des soupapes de sécurité de la chaudière et du réservoir s'il y a lieu, sont bien raccordés à un conduit d'écoulement.
Si cette connexion n'a pas été effectuée, le fonctionnement éventuel de la soupape de sécurité risquerait de provoquer une inondation du local de chaufferie.
S'assurer que les tuyaux du chauffage ne sont pas utilisés comme masse ou prise de terre électrique. Ils ne sont pas faits pour cet usage.
Alimentation en eau chaude sanitaire
La pression du circuit sanitaire doit être comprise entre 1 et 3 bar (dans le cas d'une pression
supérieure, installer un réducteur de pression).
La durée de l'eau d'alimentation conditionnera la fréquence du nettoyage du serpentin d'échange. La possibilité d'installer un appareil de traitement d'eau devra être examinée en fonction de la qualité même de l'eau (TH > à TH).
Remplissage de la chaudière
Une fois effectués tous les branchements de l'appareil, on peut procéder au remplissage de l'installation.
Une telle opération devra être effectuée avec précaution, en respectant les points suivants:
Ouvrir les purgeurs d'air des radiateurs. — Ouvrir graduellement le robinet de remplissage, en s'assurant que les éventuels purgeurs d'air automatiques fonctionnent bien. — Fermer les purgeurs des radiateurs lors que de l'eau sort normalement. — Contrôler avec le manomètre que la pression atteigne la valeur de 1.5 bar. — Fermer le robinet de remplissage et évacuer de nouveau l'air des radiateurs en agissant sur les purgeurs d'air.
VUE DU BAS PERFORMANCE 24 E
VUE DU BAS PERFORMANCE 24 E
Si la chaudière est installée dans une pièce où la température peut descendre sous les 0°C, il est conseillé d'ajouter un liquide antigel à l'eau du système.
Conseils et suggestions AFIN d'éviter BRUITS et vibrations dans les installations
— Éviter l'usage de tuyaux à diamètre réduit. — Éviter l'usage de coudes à faible rayon et les réductions importantes de section. — Il est conseillé d'effectuer un nettoyage à chaud de l'appareil, afin d'éliminer les impuretés provenant des tuyaux, des radiateurs (en particulier de l'huile et du gras), qui risqueraient d'endommager le circulateur.
EXÉMPLE DE RACCORDEMENT DE L'EVACUATION DE LA CHAUDÈRE
Raccordement du gaz
L'installation de la chaudière devra être effectuée que par un personnel qualifié. Une mauvaise installation peut causer des dommages aux personnes, animaux et biens, pour lesquels le constructeur de la chaudière ne saurait être tenu responsable.
Faire vérifier par un personnel qualifié ce qui suit:
a) Le nettoyage rinçage de toutes les conduits afin d'éliminer d'éventuels résidus qui pourraient compromettre le bon fonctionnement de la chaudière. b) Que l'alimentation et la rampe de gaz soient conformes aux normes et réglementations en vigueur. c) Contrôler l'étanchéité des raccords gaz interne et externe de l'appareil. d) La tuyauterie d'alimentation doit avoir une section égale ou supérieure à celle de la chaudière. e) Contrôler que le gaz distribué est bien celui indiqué par le constructeur sur l'appareil et pour lequel la chaudière a été prévue; sinon faire modifier la chaudière par une Station d'Assistance Technique pour l'adaptation à un type de gaz. f) Contrôler en amont de la chaudière, qu'un robinet 'd'arrêt gaz' NF est installé.
Ouvrir le robinet du compteur et purger l'air contenu dans le système et l'appareil ; refaire la procédure pour tous les autres composants.
Raccordements électriques
La chaudière est pré-équipée d'un câble d'alimentation secteur et d'un câble pour le thermostat d'ambiance.
Le câble d'alimentation secteur doit être raccordé au bornier à un système électrique 220V/50Hz, respectant la polarité, Phase/Neutre et le raccordement à la terre.
Important: mettre en avant de la chaudière un interrupteur bipolaire.
L'interrupteur bipolaire doit avoir une distance entre les contacts d'au moins 3 mm.
Pour l'alimentation générale de l'appareil au secteur, l'usage d'adaptateurs, de réducteurs, de rallonges et de multiprises est strictement interdit.
En cas de substitution du câble d'alimentation électrique, utiliser l'un des types de câbles suivants: H05VVF ou H05-VVH2-F. Le raccordement à la terre doit obligatoirement être fait selon les normes.
La sécurité électrique de l'appareil est assurée seulement quand celui-ci est correctement relié à la terre, effectué comme prévu par les normes et réglementations en vigueur.
Faire vérifier par un personnel qualifié, que le circuit électrique correspond à la puissance maximale absorbée par l'appareil, indiquée sur la plaquette, en s'assurant tout particulièrement que la section des câbles électriques soit adaptée.
N. B. Le Fabricant décline toute responsabilité en cas de dommages dus à un manque d'efficacité de la prise de terre, ou du non-respect des normes.
Raccordements à la cheminée
Installer la chaudière avec une partie verticale de longueur non inférieure à deux diamètres, mesurés depuis la fixation du tuyau d'évacuation.
Après la partie verticale, le tuyau doit avoir un positionnement ascensionnel, avec une pente minimum de 3% et une longueur non supérieure à 2500 mm.
Le conduit de vidange ne doit pas pénétrer le carreau montant ; il doit s'arrêter avant la face interne du carreau. Le conduit de vidange est fixé perpendiculairement à la paroi interne opposée à la cheminée ou au carreau montant (voir schéma).


Accès aux dispositifs de réglage
Pour accéder aux dispositifs de réglages, procéder comme suit:
- Enlever le panneau frontal de la chaudière.
- Dévisser et enlever les deux boulons circulaires de fixation du tableau de commande
- Faire pivoter le tableau de commande en respectant les trois positions représentées ci-contre, jusqu'à l'ouverture complète de celui-ci.
- Une fois l'intervention effectuée, suivre les opérations en sens inverse. Afin d'éviter que la carrosserie et le panneau ne s'aventurent accidentellement, installer les petites équerres fournies avec la chaudière en suivant les instructions.

Contrôles préliminaires et réglages
La chaudière est pré-réglée en usine, et a été contrôlée pour le type de gaz mentionné sur la plaquette signalétique ; il convient toutefois de contrôler que le type de gaz et la pression au brûleur soient correctes. Dans le cas contraire, suivre la procédure indiquée dans cette section.
Pour mesurer la pression du gaz, il faut brancher un manomètre sur les prises de pression, de la valve de gaz (voir figure).
N. B. Pour contrôler que la pression et le débit du gaz au réseau soient suffisants pour garantir un bon fonctionnement de l'appareil, suivre les étapes lorsque le brûleur est en fonctionnement.
Réglage des puissances maximale et minimale pour la production d'eau sanitaire
Vérifier que la pression à l'entrée de la chaudière soit ajustée avec le type de gaz utilisé. Positionner le sélecteur Été/Hiver sur la position Été. Ouvrir un robinet d'eau chaude au début maximum, attendre 10 sec. et vérifier ensuite que la pression correspond à la valeur indiquée dans le tableau 'Puissance Pression'.
Dans le cas où il s'avérait nécessaire d'effectuer une modification, procéder comme suit :
S'assurer que la bobine de modulation soit sous tension. - Enlever le capuchon de protection 'C'. - Régler la pression maximum en agissant sur l'écrou 'B' avec une clé de 10 mm. En tournant dans le sens horaire, la pression augmente, en tournant dans le sens inverse, la pression diminue. - Enlever le connecteur de mise sous tension de la bobine de modulation. - En maintenant serré l'écrou 'B', régler la pression minimum en vissant progressivement la vis 'A' à l'aide d'un tournevis de 4 mm. - Réinsérer le connecteur de mise sous tension de la bobine et vérifier que les valeurs correspondent.
Important: CACHETER LE RÉGULATEUR DE LA VALVE GAZ APRès LA MISE AU POINT.
SIT 837 TANDEM
Legende
1 = Pris pression sortie gaz 2 = Pris pression entrée gaz 3 = Vent (pas utilisée)
PARTICULARITÉS DU MODULATEUR

Réglage à l'allumage progressif
Pour effectuer le réglage de l'allumage progressif, procéder comme suit :
- Mettre la chaudière hors tension. — Faire pivoter le panneau de commande tel que décrit au paragraphe “Accès aux dispositifs de réglage”.
- Mettre la chaudière hors tension. Puis à l'aide d'un tournevis, positionner le "trimmer" R. R. à 0 (voir figure) en tournant dans le sens inverse des aiguilles d'une montre. À ce moment, vous avez 20 secondes à votre disposition pour le réglage (après avoir remis la chaudière sous tension).
- Remettre la chaudière sous tension et ouvrir le robinet d'eau chaude ; le brûleur commence à fonctionner, vous pouvez alors régler l'allumage lent. Au cas où les valeurs de pression sont différentes de : G Nat = 3 mbar (30 mm c. e.) ou GPL 8 mbar (80 mm c. e.), tourner le potentiomètre R. L. A. (dans le sens inverse des aiguilles d'une montre pour augmenter la pression et dans le sens inverse pour la diminuer) jusqu'à l'obtention des valeurs requises. Si les 20 secondes accordées ne sont pas suffisantes, fermer et ouvrir le robinet d'eau chaude pour remettre le minutage à zéro.
Réglage de la puissance de chauffage
La puissance maximum de chauffage doit être réglée selon les nécessités du système (définies dans le projet). Les valeurs de pression de gaz correspondant aux différentes capacités sont indiquées dans le tableau "Puissance-Pressure". Pour procéder au réglage de la pression du gaz au brûleur, opérer comme suit tout en vous référant au schéma:
— Faire pivoter le panneau de commande tel que décrit au paragraphe “Accès aux dispositifs de réglage”. Positionner le sélecteur Été/Hiver sur la position Hiver et régler le thermostat d'ambiance à une valeur supérieure à celle dans la pièce. Allumer le brûleur et contrôler la pression maximale de gaz avec le manomètre. — Enlever le capuchon de protection du potentiomètre de réglage R. R. (3 sur le schéma). — Régler la pression en faisant tourner le potentiomètre R. R. jusqu'à l'obtention de la valeur voulue. — Replacer le capuchon de protection du potentiomètre de réglage R. R. — Refermer le tableau de contrôle.
TABLEAU DE PUISSANCE - PRESSION PERFORMANCE 24 E - EB
| Puisance Thermique | Gaz Nat. G20 | Butane G30 | Propane G31 | ||||
| kW | kcal/h | mbar | mmH2O | mbar | mmH2O | mbar | mmH2O |
| MIN. 8.9 | 7700 | 2.0 | 20 | 5 | 51 | 5 | 51 |
| 10 | 8600 | 2.6 | 26 | 5.6 | 57 | 7.5 | 77 |
| 11 | 9460 | 3 | 30 | 6.4 | 65 | 8.2 | 83 |
| 12 | 10320 | 3.8 | 39 | 7.5 | 76 | 9.5 | 97 |
| 13 | 11180 | 4.2 | 43 | 8.7 | 89 | 11 | 112 |
| 14 | 12040 | 5 | 51 | 10 | 102 | 12.8 | 130 |
| 15 | 12900 | 5.5 | 56 | 11.4 | 116 | 14.5 | 148 |
| 16 | 13760 | 6.2 | 63 | 12.7 | 139 | 16 | 164 |
| 17 | 14620 | 6.8 | 69 | 14.3 | 146 | 18.3 | 186 |
| 18 | 15480 | 7.3 | 75 | 15.8 | 161 | 20.3 | 207 |
| 19 | 16340 | 8 | 82 | 17.6 | 180 | 22.2 | 226 |
| 20 | 17200 | 8.9 | 91 | 19.3 | 197 | 24.5 | 250 |
| 21 | 18060 | 9.6 | 98 | 20.8 | 212 | 26.5 | 270 |
| 22 | 18920 | 10.4 | 106 | 22.5 | 230 | 28.8 | 292 |
| 23 | 19780 | 11.4 | 116 | 25 | 256 | 31.5 | 321 |
| MAX. 24.3 | 20900 | 13 | 132 | 27.8 | 284 | 35.5 | 357 |
Adaptation pour l'utilisation avec d'autres gaz
ATTENTION: les opérations décrites ci-dessous doivent être effectuées uniquement par un personnel qualifié.
Conversion gaz NAT. à GPL
Pour la conversion de la chaudière de Gaz Nat. à GPL, il faut procéder comme suit:
- Démonter le tube qui connecte la valve gaz à la rampe porte-gicleur
- Démonter la rampe et changer les gicleurs par ceux pour GPL, en utilisant une clé de 7 mm.
- Enlever le diaphragme de la valve gaz.
- Ouvrir le tableau de contrôle et insérer le shunt JP1 sur la plaque de gestion (voir schéma).
- Vérifier, en utilisant la prise de pression sur la valve de gaz, que la pression en amont de la chaudière soit :
Butane : min. 25 mbar, max. 35
Propane: min. 25 mbar max. 37.
- Contrôler qu'il n'y ait pas de fuite de gaz.
En vous référant aux sections précédentes, refaire
- Réglage de la puissance minimum et maximum du sanitaire
- Réglage de l’allumage progressif. Réglage de la puissance de chauffage.
Conversion GPL à gaz NAT.
Pour la conversion de la chaudière de GPL au Gaz Nat., opérer comme suit :
- Démonter le tube qui connecte la valve gaz à la rampe porte-giclueur
- Démonter la rampe et changer les gicleurs par ceux pour G. N., en utilisant une clé de 7 mm.
- Placer le diaphragme sur la valve gaz.
- Ouvrir le tableau de contrôle et le stercol JP1 sur la plaque de gestion (voir schéma).
- Vérifier, en utilisant la prise de pression sur la valve de gaz, que la pression en amont de la chaudière soit :
Gaz Nat.: min. 17 mbar, max. 25
- Contrôler qu'il n'y ait pas de fuite de gaz.
En vous référant aux sections précédentes, refaire
Réglage de la puissance minimum et maximum du sanitaire. Réglage de l'allumage progressif. Réglage de la puissance de chauffage.
| Modèle | Qté gicleurs | Gicleurs Gaz Naturel (G20/G25) Ø 1/100 mm | Gicleurs GPL (G30/G31) Ø 1/100 mm | Diaphragme Gaz Naturel (G20/G25) Ø mm |
| PERFORMANCE 24 E - EB | 13 | 120 | 75 | 6 |
VUE ÉCLATÉE DU BRULEUR
PLAQUE DE GESTION
By-pass automatique
Tous les modèles de la gamme de chaudière sont équipés en série d'un by-pass automatique: En condition d'ouverture totale (ex: avec toutes les vannes de zone fermées) le by-pass garantit un débit de 450l/h suffisant au fonctionnement normal de la chaudière, c'est-à-dire sans déclencher les dispositifs de sécurité.
Il est possible, quoi qu'il en soit, d'exclure le by-pass - en cas de nécessité - en procédant comme suit:
— mettre le sélecteur Été/Hiver ( - 0 - ) sur la position '0'. Tourner la vis du by-pass (voir schéma ci-dessous) en sens horaire jusqu'à la position B. Si par hasard la rotation de la vis s'avérait difficile, abaisser légèrement la pression du système. Positionner le sélecteur Éte/Hiver sur HIVER pour réactiver la chaudière.
Vue du bas de la chaudière mod. 24 E
Vue du bas de la chaudière mod. 24 EB
Reglages ulterieurs possibles sur la FICHE de modulation
Les modèles PERFORMANCE 24 E et PERFORMANCE 24 EB sont équipés d'une platine de modulation intégrée. Elle est contrôlée par un micro-processeur sur lequel il est possible d'effectuer (grâce à des ponts mobiles appelés JP) une personnalisation du fonctionnement de la chaudière.
Voici les différentes fonctions reliées à ces points :
JP 1: Sélectionne le type de gaz qui sera utilisé par la chaudière. Si du GN est utilisé, le pont ne doit pas être inséré. Si du GPL est utilisé, le pont doit être inséré. - JP 2: Son insertion annule le fonctionnement du circulateur en phase de chauffage. Cette opération est nécessaire lorsque des circulateurs externes sont utilisés et commandés par un tableau de commande indépendant de la chaudière. - JP 3: Son insertion fixe la température maximum de chauffage à 40°C, avec arrêt du fonctionnement du brûleur à 5°C au dessus de la température préréglée. - JP 4: Son insertion élimine la temporisation de 3 minutes avant le réallumage du brûleur (suite à un arrêt en raison de la température dépassant celle prévue)
Il est possible, outre les fonctions décrites ci-dessus, de régler l'arrêt du brûleur à 5°C au-dessus de la température préréglée à l'aide du potentiomètre de réglage et non plus à une température unique de 75°C. Pour effectuer cette opération, couper le pont fixe JP 5.
Avertissements pour réglages et entretien
Toutes les opérations d'entretien et de transformation du gaz doivent être effectuées par un professionnel qualifié, respectant ainsi la réglementation française.
À la fin de chaque période de chauffage, il est nécessaire de faire inspecter la chaudière par un professionnel autorisé afin d'assurer un système toujours en parfaite condition.
Il s'agit normalement d'effectuer les opérations suivantes :
Nettoyer le brûleur et enlever les éventuels résidus d'oxydation. Nettoyer également les échangeurs et le brûleur. - Contrôler l'allumage, l'arrêt et le fonctionnement de l'appareil. - Contrôler l'étanchéité des raccords de gaz et d'eau. - Contrôler la consommation de gaz à la puissance maximum et minimum. — Vérifier les dispositifs de sécurité. — Vérifier le bon fonctionnement des dispositifs de commande et de réglage de l'appareil. — Vérifier périodiquement l'état et le bon fonctionnement des sorties fumée ; au cas où des travaux seraient effectués près des conduits ou des sorties fumée, éteindre l'appareil. - Ne pas stocker des produits inflammables dans le local où se trouve l'appareil.
- Ne pas effectuer le nettoyage du local dans laquelle est installée la chaudière, lorsque celle-ci est en fonctionnement. Un entretien régulier et soigné est toujours une garantie de sécurité et d'économie d'énergie. Le nettoyage des panneaux de la chaudière se fait avec un peu d'eau savonneuse. Ne jamais utiliser des produits abrasifs ou des diluants à peinture sur les panneaux ou les parties en plastique.
Le Fabricant décline toute responsabilité quant à l'utilisation des pièces n'étaient pas d'origine.
Vidange du systeme et du BALLON
Lorsque la vidange est nécessaire, procéder comme suit :
— Insérer un tube de caoutchouc dans le robinet de vidange du système (part. 12 figure "Composants présents sur la chaudière PERFORMANCE 24 EV") ou du gallon (part. 25 figure "Composants présents sur la chaudière PERFORMANCE 24 EVB"), ceci facilitera l'opération de vidange ; — ouvrir le robinet en tournant dans le sens inverse des aiguilles d'une montre le manchon crénelé ; — une fois terminée l'opération, refermer le robinet (tourner le manchon dans le sens horaire).
Important : seulement pour la performance 24 EB
Tous les 6 mois, contrôle et change eventuellement l'anode en magnésium du gallon afin de prévenir une possible corrosion et de maintenir le bon état du gallon.
Attention
Après avoir effectué le réglage de la chaudière, suivre l'étape suivante pour éviter une ouverture accidentelle du panneau de contrôle
— Visser les 4 vis (A) au manteau de la chaudière après avoir ajusté les angles de maintien (B)

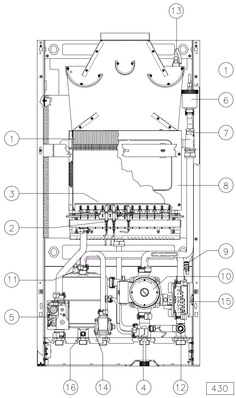
Composants présents sur la chaudière performance 24 e

1 Échangeur primaire en cuivre 2 Allumage électronique du brûleur avec régulation à ionisation 3 Brûleur 4 Robinet de remplissage 5 Vanne gaz 6 Purgeur automatique 7 Thermostat de sécurité temp. max. eau 8 Chambre de combustion
9 Sonde pour chauffage 10 Circulateur 11 Purgeur du chauffe-eau 12 Robinet de vidange 13 Thermostat des fumées 14 Limiteur du début d'eau chaude sanitaire 15 Vanne d'inversion motorisée 16 Sonde eau chaude sanitaire
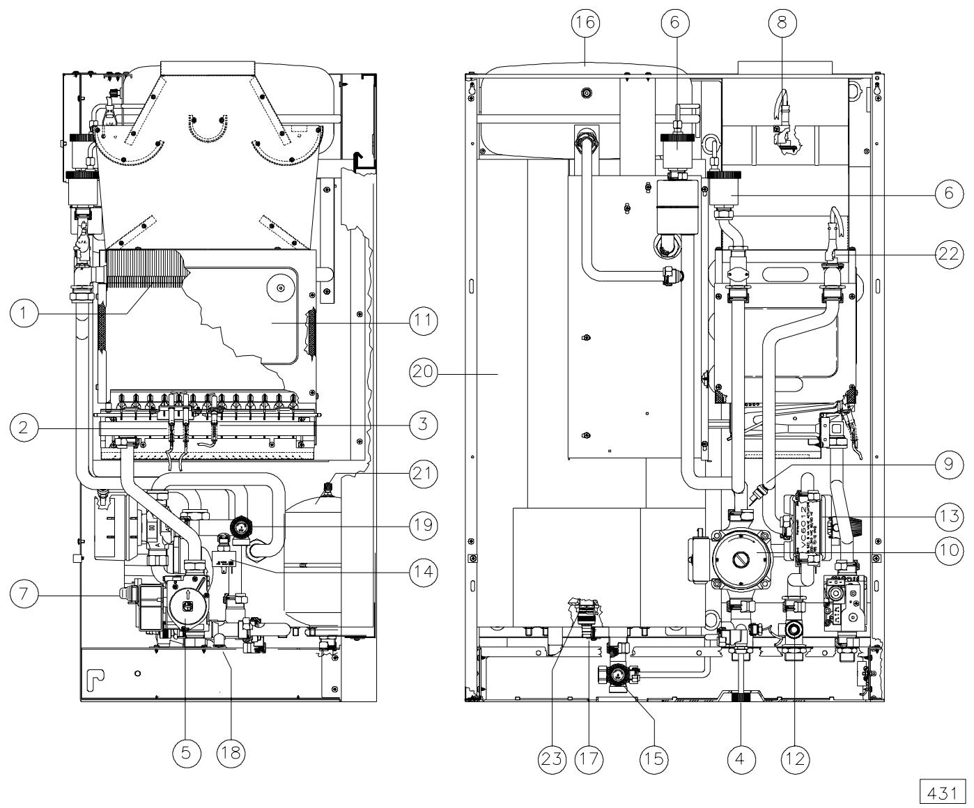
Composants présents sur la chaudière performance 24 EB

1 Échangeur primaire en cuivre 2 Electrodes d'allumage 3 Brûleur 4 Robinet de remplissage 5 Vanne gaz 6 Purgeur automatique 7 Modulateur 8 Thermostat de sécurité sortie fumée 9 Sonde chauffage 10 Circulateur 11 Chambre de combustion
12 Robinet de vidange 13 Vanne d'inversion motorisée 14 Pressostat de manque d'eau 15 Soupape 7 bars 16 Vase d'expansion 17 Robinet de vidange balloon 18 By-pass 19 Soupape 3 bars 20 Ballon d'eau chaude 21 Ballon 22 Thermostat de sécurité température max. eau 23 Sonde sanitaire
Schéma électrique de la chaudière performance 24 e

IG Interrupteur général C Circulateur SV Plaque d'identification E/I Sélecteur été/hiver PSA Pressostat sécurité eau MOD Modulateur SR Sonde pour chauffage SS Sonde eau chaude sanitaire MP Micro pressostat priorité ECS VD Vanne 3 voies CA Centrale d'allumage et contrôle de flamme EA Électrode d'allumage ER Electrode
TRA Transformateur Allumage VG Vanne gaz TF Thermostat des fumées TS Thermostat de sécurité PR Poussoir d'allumage LB Voyant de défaut AUX Sortie auxiliaire pour pilotage relais
Legende:
BK Noir GY Gris
BN Marron OG Orange
BU Bleu RD Rouge
GN Vert VT Violet
GNYE Jaune-vert WH Blanc
Schéma électrique de la chaudière performance 24 EB
426_1R01
IG Interrupteur général C Circulateur SV Plaque d'identification E/I Sélecteur été / hiver PSA Pressostat sécurité eau MOD Modulateur SR Sonde chauffage SS Sonde sanitaire MP Micro pressostat priorité ECS VD Vanne 3 voies CA Centrale d'allumage et contrôle de flamme EA Électrode d'allumage ER Électrode
TRA Transformateur Allumage VG Vanne gaz TF Thermostat des fumées TS Thermostat de sécurité PR Poussoir d'allumage LB Voyant de défaut AUX Sortie auxiliaire pour pilotage relais
Légende:
BK Noir GY Gris BN Marron OG Orange BU Bleu RD Rouge GN Vert VT Violet GNYE Jaune-vert WH Blanc
Avertissement pour la mise en service de l'appareil
Le premier allumage devra être effectué par un personnel professionnellement compétent et en particulier par une des Stations d'Assistance Technique.
La transformation d'un gaz d'une famille (gaz naturel, gaz liquide ou gaz de ville), vers celui d'un autre type, qui pourrait également être faite une fois la chaudière installée, devra être effectuée exclusivement par un personnel professionnellement qualifié et qui vérifiera particulièrement:
a) que les informations de la plaque signalétique sont conformes à celles des réseaux d'alimentation (électricité, gaz, eau) ; b) que le réglage du brûleur est compatible avec la puissance de la chaudière ; c) que le conduit d'évacuation des fumées fonctionne correctement ; d) que l'arrivée de l'air comburant et l'évacuation des fumées est en conformité avec les normes et réglementations en vigueur ; e) que les règles de ventilation et d'aération sont bien respectées.
Attention:
L'appareil est équipé d'un thermostat de sécurité tirage cheminée, lequel intervient en cas de retard des produits de combustion dans le local. Ce dispositif ne doit jamais être mis hors-service. L'introduction des produits de combustion dans le local peut provoquer des intoxications avec danger de mort. En cas de nécessité de remplacer le thermostat, utiliser uniquement une pièce de rechange d'origine.
En cas d'interventions répétées du dispositif, vérifier le bon fonctionnement du conduit de cheminée.
Installation et maintenance
Toutes les opérations d'installation, de maintenance, et de conversions de gaz DOIVENT ETRE REALISSEE UNIQUEMENT PAR DU PERSONNEL AUTORISE.
La chaudière doit en outre être installée selon les normes et règlementations locales et nationales en vigueur.
LIVRET d'instructions
S'assurer que le présent livre d'instructions soit toujours conservé avec l'appareil afin qu'il puisse être consulté par l'utilisateur ou le professionnel autorisé à intervenir sur l'appareil
Avertissement
- En cas d'absence prolongée de l'utilisateur, contacter la station technique autorisée pour procéder au vidange du circuit de la chaudière.
- ATTENTION EN CAS D'ODEURS DE GAZ :
- ne pas actionner d'interrupteur électrique, le téléphone ou tout autre appareil pouvant provoquer une étincelle
- ouvrir immédiatement portes et fenêtres afin d'aérer la pièce au maximum
- fermer le robinet de gaz
- demander l'intervention d'un professionnel autorisé
- Ne pas bloquer les ouvertures pouvant aérer la piè
ATTENTION: Au cas où la chaudière est installée dans un local où la température peut descendre sous 0°C, il est conseillé de faire ajouter par un professionnel, un liquide anti-gel à l'eau du système.
IMPORTANT: SEULEMENT POUR LE MODELE PERFORMANCE 24 EB
Tous les 6 mois, contrôler et substituer éventuellement l'anode de magnésium du ballon afin de prévenir une possible corrosion et de maintenir le bon état du ballon.
Allumage
Ouvrir le robinet du gaz, tourner le sélecteur (2) sur la position désirée et le brûleur s'allumera automatiquement quelle que soit la demande (en position été , en ouvrant le robinet d'eau chaude ; en position hiver , en ouvrant le robinet d'eau chaude ou en augmentant la température du thermostat ambiant).
Si l'allumage ne se produisait pas, alors vérifier que le pouvoir (1) soit bien sur le mode actif, et répéter l'opération d'allumage en pressant ce pouvoir.
Extinction
Faire tourner le sélecteur (2) sur la position "0" (fermé). Si la chaudière doit rester éteinte pour un certain temps, alors fermer le robinet du gaz.
Fonctionnement été
Faire tournir le sélecteur (2) sur la position 'Été'
Régler le thermostat sanitaire (4) à la température d'eau chaude sanitaire désirée.

Fonctionnement HIVER
Faire tourner le sélecteur (2) sur la position 'Hiver'
Régler le thermostat de la chaudière (3) à la température désirée, dans le cas où un thermostat d'ambiance est installé, ce sera le réglage de la température ambiance à maintenir.
Régler le thermostat sanitaire (4) à la température d'eau chaude sanitaire désirée.
Important
Le sélecteur (2) étant en position Été ou Hiver, le témoin lumineux vert du réseau s'allume et indique que la chaudière est électriquement alimentée.
Les indicateurs lumineux rouge indiquent la température de l'eau (40, 50, 60 et 70°C).
En cas de défaut de fonctionnement de la chaudière, des témoins rouges clignotent (voir paragraphe "Indications")
Ne pas substituer un fusible avec un autre ne représentant pas les mêmes caractéristiques.
Selon la réglementation en vigueur, la température ambiante doit pouvoir être régée au travers d'un thermostat possédant deux niveaux de température.
Remplissage du systeme
S'assurer que la pression sur le système est comprise entre 1 et 1.5 bar.
Si la pression avait être inférieure à 1 bar, intervenez en ouvrant le robinet indiqué sur le schéma jusqu'à l'obtention d'une pression de 1,5 bar maximum.
Cette pression se mesure à l'aide du manomètre (partie 5 de la figure précédente).
N. B. La pression doit être rétablie lorsque l'appareil est à froid.
VUE DU BAS PERFORMANCE 24 E
VUE DU BAS PERFORMANCE 24 EB
SIGNAL D'un probleme a la SONDE pour le chauffage
Le témoin lumineux rouge clignote et signale une anomalie du fonctionnement de la sonde de température de l'eau du système de chauffage. Appeler la station technique.

SIGNAL D'un probleme a la SONDE pour l'eau CHAUBE sanitaire
Le témoin lumineux rouge clignote et signale une anomalie du fonctionnement de la sonde de température de l'eau chaude sanitaire. Appeler la station technique

SIGNAL d'un MANQUE d'eau
Le témoin lumineux rouge clignote et signale un manque de pression d'eau dans le système, bloquant ainsi le fonctionnement de la chaudière. Pour remettre une pression ajustée, vous reporter aux instructions données au paragraphe "Remplissage du système" de la page précédente.

SIGNAL D'un blocage de la chaudierebouton poussoir pour le deblocage
Signale une surchauffe de la chaudière ou un mauvais allumage du brûleur. Appuyer sur le bouton pour réarmer la chaudière.
Si le blocage est trop fréquent, appeler la station technique.

Protection antigel électronique
La chaudière est équipée d'une protection antigel ; la chaudière s'allume lorsque la température de l'eau pour le chauffage est inférieure à 5°C. Elle s'éteint lorsqu'elle est supérieure à 30°C.
Le brûleur ne s'allume pas:
— vérifier que l'arrivée de gaz est normale au brûleur. — Si un thermostat d'ambiance est installé, vérifier que celui-ci est réglé à une température supérieure à celle de l'ambiance. — Vérifier que l'alimentation 220V est bien branchée (signal lumineux). — Vérifier que le pouvoir de blocage n'est pas enclenché. Au cas contraire presser ce pouvoir pour réactiver l'allumage.
Production d'eau chaude sanitaire insuffisante:
- Contrôler que le sélecteur de température n'est pas réglé sur une valeur trop BASSE. — Faire contrôler le réglage de la vanne de gaz. — Faire contrôler l'échangeur sanitaire (petit réservoir).
N. B. : dans les régions où l'eau est particulièrement ‘dure’, il est conseillé d'installer sur l'entrée d'eau sanitaire un adoucisseur afin d'éviter l'entartrage du serpentin.
Pour toute intervention sur le circuit électrique, hydraulique, ou sur le circuit gaz, vous devez contacter une assistance technique autorisée. Les chaudières doivent être exclusivement équipées avec des accessoires d'origine. Le Fabricant ne pourrait être tenu responsable en cas de dommages dus à l'utilisation propre, erronée ou inappropriée de pièces.
Précautions durant l'utilisation
- Il est interdit et dangereux de boucher, même partiellement, la ou les prises d'air pour la ventilation du local dans lequel la chaudière est installée.
- Contrôler de manière fréquente la pression du circuit eau sur l'hydromètre et vérifier que la valeur quand l'appareil est froid est bien comprise dans les limites indiquées par le constructeur.
- Si des fréquentes chutes de pression devaient être constatées, contactez un technicien agréé, qui vérifiera l'étanchéité de l'appareil ou de l'installation. —Après chaque réouverture du robinet du gaz, attendre quelques minutes avant le rallumage.
- Ne pas laisser la chaudière sous tension lorsque celle-ci n'est pas utilisée. Dans ce cas, fermer le robinet du gaz et tourner le sélecteur sur la position 'Fermé'.
- Ne pas toucher les parties chaudes de la chaudière, telles que le portillon, la boîte des fumées, le conduit de cheminée. Ces éléments étant très chauds, attendre qu'un long laps de temps se soit écoulé avant toute intervention.
- Ne pas exposer une chaudière murale aux flux de fumées des plans de cuisson.
- Ne pas asperger la chaudière avec un jet d'eau, ou un autre liquide.
- Ne pas poser d'objet sur le dessus de la chaudière. — Interdire l'usage de la chaudière aux enfants.
Performance
Modèle de chaudière : PERFORMANCE N° matricule
| UTILISATEUR | INSTALLLATEUR |
| Nom: | Nom: |
| Adresse: | Adresse: |
| Ville: | Ville: |
| Region / Prov.: | Region / Prov.: |
| Pays: | Pays: |
| tel: | tel: |
| Date d'achat: / / | fax: |
| Signature utilisateur | Date de mise en route / / |
| Signature installerateur | |
| A l'installation et/ou a chaque intervention sur la chaudière, les résultats obtenus seront complilés par le professionnel agréé, qui apposera ses initiales. | Timbre |
Résultats à l'installation et à chaque entretien
| Date | ||||||||
| Température fumées (°C) | ||||||||
| Température ambiente (°C) | ||||||||
| O2 (%) | ||||||||
| CO2 (%) | ||||||||
| Bacharach (n°) | ||||||||
| CO (%) | ||||||||
| Perte par chaleur sensible (%) | ||||||||
| Rend. combust. a puissance nominale (%) | ||||||||
| Etat de l'appareil (1) | ||||||||
| Etat des sorties fumées (1) | ||||||||
| Signature, Initiales |
B = Bon; M = Médiocre; C = À changer
Performance
EUREKA
Gestionnaire Mise en Service & Garantie Constructeurs
Centre Opérationnel
96 Avenue de Caen
F 76100 ROUEN
Notice Facile