GEN 990 G2 - Chauffage S.PLUS - Notice d'utilisation et mode d'emploi gratuit
Retrouvez gratuitement la notice de l'appareil GEN 990 G2 S.PLUS au format PDF.
| Type d'appareil | Générateur d'air chaud |
| Modèle | Non précisé |
| Puissance thermique | Non précisé |
| Alimentation | Non précisé |
| Type de combustible | Non précisé |
| Débit d'air | Non précisé |
| Dimensions (L x H x P) | Non précisé |
| Poids | Non précisé |
| Type de ventilation | Soufflerie intégrée |
| Installation | Murale ou au sol |
| Utilisation | Intérieur |
| Maintenance | Facile, selon manuel |
| Garantie | Non précisé |
| Normes | Conforme aux normes en vigueur |
| Accessoires fournis | Non précisé |
| Poids | Non précisé |
FOIRE AUX QUESTIONS - GEN 990 G2 S.PLUS
Téléchargez la notice de votre Chauffage au format PDF gratuitement ! Retrouvez votre notice GEN 990 G2 - S.PLUS et reprennez votre appareil électronique en main. Sur cette page sont publiés tous les documents nécessaires à l'utilisation de votre appareil GEN 990 G2 de la marque S.PLUS.
MODE D'EMPLOI GEN 990 G2 S.PLUS
Manuel d'installation et d'entretien
Lisez attentivement avant toute opération d'installation, d'exploitation et d'entretien.
S. PLUS se réserve le droit de modifier sans préavis les caractéristiques de ses appareils dans le cadre des améliorations apportées à ces produits.
Pour l'installateur
- PLAQUE SIGNALÉTIQUE
- INFORMATIONS TECHNIQUES
2.1 DIMENSIONS DE LA CHAMBRE DE COMBUSTION 3 2.2 CARACTÉRISTIQUES DIMENSIONNELLES 4 2.3 CARACTÉRISTIQUES TECHNIQUES 5
3. DESCRIPTION 6 4. MANUTENTION 7
- INSTALLATION 8
5.1 Mise en place 8 5.2 Raccordement du conduit des fumées 8 5.3 Raccordement du réseau de soufflage 8 5.4 Raccordement du réseau de reprise 8
6.1 Caractéristiques techniques 9 6.2 Portée d'air 9 6.3 Instructions de montage du plénum de soufflage 10
- Filtre d'aspiration
7.1 Caractéristiques techniques et dimensionnelles 10 7.2 Instructions de montage 10 7.3 Raccordement électrique 11 7.4 Schéma électrique GEN 590 G2 - GEN 760 G2 12 7.5 Schéma électrique GEN 990 G2 13 7.6 Raccordement à la canalisation de combustible 14
- REGLAGE 14
8.1 Caractéristiques générateur - brûleur 14 8.2 Réglage du brûleur fioul 14 8.3 Réglage du brûleur gaz 15 8.4 Réglage de la vitesse du ventilateur 15-16
9. CONTROLE 16
Pour l'utilisateur
10. COMMANDE
10.1 Commutateur Chauffage / Arrêt / Ventilation 17 10.2 Thermostat d'ambiance 17 10.3 Réarmement brûleur 17 10.4 Réarmement limite 17 10.5 Réarmement relais thermique 17
- SIGNALISATION 17
11.1 Voyant défaut brûleur 17 11.2 Voyant défaut générateur 17
- FONCTIONNEMENT
12.1 Fonctionnement en position chauffage 17 12.2 Fonctionnement en position ventilation 18
13. MISE EN ROUTE 18 14. ARRÊT 18
Pour la maintenance
- NETTOYAGE DU FILTRE À AIR
- NETTOYAGE DU BRÛLEUR 18
- NETTOYAGE DE L'ÉCHANGEUR 19
- NETTOYAGE DU GROUPE MOTEUR-VENTILATEUR 19
- ANALYSE DES FUMÉES 20 20. GARANTIE 20
Il est indispensable de vérifier l'état du matériel livré, même si l'emballage paraît intact. En cas de détérioration ou d'appareils (ou accessoires) manquants, les réserves devront être faites sur le récépissé du transporteur et confirmées, à celui-ci, par lettre recommandée sous 48 heures.
Avertissements
S'assurer que la présente notice soit toujours proche de l'appareil afin qu'elle puisse être consultée par l'utilisateur, l'installateur et le service de maintenance.
Nous attirons votre attention sur le fait que la garantie ne s'applique que si l'installation a été effectuée par un personnel qualifié.
Cet appareil est utilisé pour réchauffer l'air ambiant. Pour toute autre utilisation, nous consulter.
Conseils utiles
L'installation, la manutention et la transformation du gaz doivent être effectuées par un personnel qualifié et habilité, et ceci, dans les règles de l'art.
La sécurité commence ici :
Une erreur d'installation peut causer des dégâts matériels, voire des dommages corporels. Dans ce cas, notre responsabilité ne serait pas engagée.
Un entretien annuel doit être effectué par un service de maintenance qualifié.
L'usage de l'appareil par les enfants est interdit.
Ne pas installer l'appareil dans une ambiance corrosive.
humide ou sujette aux projections d'eau.
Ne pas déposer d'objet sur l'appareil.
Ne pas introduire d'objet dans la reprise d'air ou le circuit des fumées.
En cas d'absence prolongée sur l'alimentation gaz.
En cas d'odeur de gaz, ne pas basculer les interrupteurs électriques, téléphoner au service technique, ouvrir les portes et fenêtres pour assurer un courant d'air et attendre l'arrivée des dépanneurs.
Ne pas laisser traîner les emballages qui pourraient être dangereux pour les enfants.
Éviter d'intervenir personnellement sur l'appareil.
Le générateur d'air chaud doit être équipé exclusivement de pièces de rechange d'origine.
La société d'éventuels dommages si les pièces détachées ne sont pas des pièces d'origine.
La Société S. PLUS ne sera pas responsable en cas d'inobservation des recommandations de cette notice.
Avant d'effectuer une opération de nettoyage ou de manutention,
Fermer les vannes sur l'arrivée du combustible.
Déconnecter l'appareil de .
Pour de l'appareil, éviter les prises multiples et les rallonges. Utiliser un interrupteur multi-polaire conforme aux normes électriques en vigueur.
La manipulation d'un appareil utilisant de l'énergie électrique doit être effectuée en respectant quelques règles fondamentales.
Ne pas toucher l'appareil avec une partie du corps mouillée ou humide, ou pieds nus.
Ne pas tirer sur les câbles électriques.
Ne pas exposer l'appareil aux intempéries.
Ne pas permettre l'utilisation de l'appareil aux enfants ou aux personnes inexpérimentées.
1. Plaque signalétique
Coller sur la face avant du générateur la plaque signalétique indélébile indiquant les caractéristiques de l'appareil.
| 20, rue des Moulissards (1) 21240 TALANT Constructeur n°....... (2) | |
| CE (10) 0063/96 | N° CE (7) Modèle (3) |
| Catégorie | (5) |
| Type | (4) |
| Matricule | (6) |
| Dégré de protection | (9) |
| Pays | (8) |
| Débit calorifique nominal | (11) |
| Puisance thermique utile | (12) |
| Pression statique utile | (19) |
| Débit d'air à 20°C | (13) |
| Allemnentation électrique | (14) |
| Tension électrique | (15) |
| Fréquence électrique | (16) |
| Puisance électrique | (17) |
| Intensité absorbée | (18) |
1 Marque, logo, adresse 2 Numéro attribué au constructeur 3 Désignation commerciale de l'appareil 4 Type d'installation certifié CE 5 Catégorie certifiée CE 6 Matricule de l'appareil 7 Numéro de certificat CE 8 Pays destinataire de l'appareil 9 Degré de protection électrique 10 Marquage CE 11 Débit calorifique nominal 12 Puissance thermique utile 13 Débit d'air à 20°C 14 Alimentation électrique 15 Tension électrique 16 Fréquence électrique 17 Puissance électrique 18 Intensité absorbée 19 Pression statique maxi disponible
2.1 Dimension de la chambre de combustion
Le corps de chauffe est à trois parcours de fumées.


| GEN 590 G2 | GEN 760 G2 | GEN 990 G2 | |
| A (mm) | 1153 | 1352 | 1475 |
| B (mm) | 300 | 300 | 300 |
| C (mm) | 140 | 150 | 180 |
| D (mm) | 1835 | 2195 | 3200 |
2.2 Caractéristiques dimensionnelles

| Modèle | A | B | C | D | E | F | G | H | L | Ø Cheminée | N | P |
| GEN 590 G2 | 2090 | 1270 | 2870 | 882 | 907 | 1210 | 2030 | 2585 | 30 | 330 | 1000 | 1870 |
| GEN 760 G2 | 2500 | 1500 | 3120 | 882 | 1120 | 1440 | 2440 | 2815 | 30 | 370 | 1000 | 2120 |
| GEN 990 G2 | 3500 | 1500 | 3120 | 882 | 1612 | 1440 | 3440 | 2815 | 30 | 380 | 1000 | 2120 |
Mesures en millimètres.
2.3 Caractéristiques techniques
| Modèle | GEN 590 G2 | GEN 760 G2 | GEN 990 G2 | |
| Débit calorifique nominal | Kw | 590 | 769 | 190 |
| kcal/h | 507300 | 661500 | 860000 | |
| Puisance utile | kW | 523,2 | 682,9 | 883,7 |
| kcal/h | 450000 | 587400 | 760000 | |
| Rendement de combustion | % | 88,7 | 88,8 | 88,3 |
| Contré pression du foyer | mmCE | 2 | 2,3 | 1 |
| Volume de la chambre de combustion | m3 | 162 | 27 | 4,36 |
| Température des fumées (nette) | °C | 238 | 237 | 260 |
| Produits de combustion | kg/h | 1101 | 1422 | 1731 |
| Consommation gaz naturel G20 | Nm3/h | 59,2 | 77,18 | 100,3 |
| Consommation gaz propane G31 | Nm3/h | 22,7 | 29,6 | 3,4 |
| Consommation gaz butane G30 | Nm3/h | 16,9 | 22,1 | 2,54 |
| Consommation Fod | kg/h | 49,7 | 64,8 | 84,3 |
| Débit d'air à +20°C | m3/h | 34500 | 49000 | 67000 |
| Pression statique utile maxi | mmCE | 22 | 18 | 20 |
| Δ T°C | °C | 45 | 42 | 39 |
| Réglage de l'airstat | °C | 25-30-100 | 25-30-100 | 25-30-100 |
| Type d'alimentation électriche | triphasé | triphasé | triphasé | |
| Tension électriche d'alimentation (50 Hz) | V | 400 | 400 | 400 |
| Puisance électricque du moteur ventilateur | HP | 12,5 | 20 | 2 x 12,5 |
| Puisance électricque du moteur ventilateur | Kw | 9 | 1,5 | 2 x 9 |
| Puisance électricque du brûleur gaz RIELLO | Kw | 0,65 | 1,1 | 1,8 |
| Puisance électricque du brûleur fioul RIELLO | Kw | 0,65 | 1,1 | 1,8 |
| Intensité absorbée par le moteur ventilateur | A(400V) | 19 | 31 | 2 x 19 |
| Degré de protection | IP | 54 | 54 | 54 |
| Poids net sans brûleur | kg | 1162 | 1622 | 2090 |
| Catégorie | II2H3+ | II2H3+ | II2H3+ | |
| Type | B23 | B23 | B23 | |
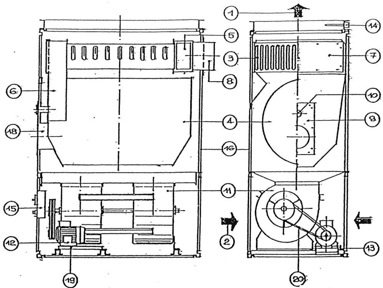
3. Description

1. Sortie d'air 2. Reprise d'air 3. Échangeur lamellaire 4. Chambre de combustion 5. Collecteur des fumées arrière 6. Collecteur des fumées avant 7. Trappe de ramonage 8. Sortie fumées 9. Plaque brûleur 10. Viseur de flamme
- Ventilateur(s) centrifuge(s)
- Moteur électrique
- Tendeur
- Airstat
- Coffret électrique
- Jaquette
- Boulons / inserts de fixation des deux caissons
- Passage brûleur
- Platine de fixation moteur
- Transmission
Les générateurs sont livrés sous emballage plastique et sur palette bois en 2 parties.
Les accessoires éventuels sont livrés séparément.
4. Manutention
La manutention doit s'effectuer avec prudence pour éviter des dégâts matériels ou corporels.
L'utilisation d'un chariot élévateur est conseillée, à défaut prévoir un système de levage accroché à la chambre de combustion.
| Moyen de manutention | Accrochage | Note | |
| CAISSON de VENTILATION | * Chariot élevateur | * Partie inférieure sanglée | |
| * Grue ou pont roulant | * Partie inférieure sanglée | * Utiliser une sangle | |
| CAISSON de COMBUSTION | * Chariot élevateur | * Partie inférieure sanglée | |
| * Grue ou pont roulant | * Anneau sur échangeur | * Utiliser un cable d'acier | |
| * Partie inférieure sanglée | * utiliser une sange |
IMPORTANT
Pendant les opérations de manutention, il est interdit de rester à proximité de l'appareil.


Conformité :
L'installation de l'appareil doit être effectuée par un professionnel qualifié conformément aux règles de l'art et aux textes réglementaires en vigueur, notamment :
- Code du travail,
- Norme NFC 15-100 : installations électriques.
- Arrêtés du 26 février 1974 et du 3 mars 1976 : stockage de fuel.
- DTU 61.1 : installation de gaz
5.1 Mise en place
Utiliser les anneaux de levage situés sur l'échangeur pour décharger l'appareil.
Positionner l'appareil sur un plan horizontal dans un endroit propre et sec.
Laisser autour de l'appareil une distance suffisante pour positionner et accéder au brûleur et pour une libre circulation d'air (minimum 1 m entre la prise d'air et le premier obstacle). Pour les modèles horizontalement suspendus, s'assurer que l'ossature du bâtiment peut supporter l'appareil.
Pour les appareils en deux parties, superposer le caisson de combustion sur le caisson de ventilation puis boulonner l'ensemble. Procédure :
- Démonter les panneaux latéraux .
- Glisser les boulons par les ouvertures prévues sur le cadre .
- Si le positionnement est correct, boulonner (inserts prévus dans le cadre du caisson).
- Remonter les panneaux latéraux.
5.3 Raccordement du réseau de soufflage
L'appareil est prévu pour fonctionner en tirage naturel.
Installer une cheminée de section au moins égale à celle de la sortie des fumées, aussi verticale que possible.
Souflage direct
Équipement standard : positionner puis fixer les accessoires de soufflage.
Les réglages aérauliques du générateur et des accessoires sont réalisés d'origine en usine.
Soufflage en gaine :
Raccorder les gaines de distribution d'air au cadre prévu à cet effet.
Équilibrer les pertes de charge du réseau de gaines avec la pression statique disponible de l'appareil.
Nos appareils sont proposés d'usine avec 3 réglages en équipement de 10, 20 mmCE (poulie motrice variable) et 30 mmCE (poulie fixe).
5.4 Raccordement du réseau de reprise
Raccorder l'éventuel réseau de reprise d'air à l'ouverture latérale du générateur.
L'appareil est prévu pour un raccordement à droite ou à gauche. Pour adapter le côté d'aspiration, il suffit d'inverser le panneau d'obturation avec la grille de reprise.
Important
Les dimensions des gaines de soufflage et de reprise d'air doivent être réalisées par une personne compétente de sorte que la perte de charge ne soit pas supérieure à la pression statique disponible du générateur.
6. Plenum diffusion
Dans le cadre d'une utilisation directe dans l'ambiance, il faut utiliser le plénum de diffusion, fourni comme accessoire.
Pour optimiser la diffusion de l'air, il est conseillé d'installer l'appareil au centre du local ou adossé à une paroi.
6.1 Caractéristiques dimensionnelles

| Modèle | A | B | H | Nbre de grilles | Dimensions des grilles |
| GEN 590 G2 | 1270 | 2090 | 550 | 4 | 800 x 400 |
| GEN 760 G2 | 1500 | 2500 | 550 | 4 | 1000 x 400 |
| GEN 990 G2 | 1500 | 3500 | 550 | 4 | 1000 x 400 |
6.2 Portée d'air
La portée est la distance en mètres entre l'appareil et le point de mesure qui donne une vitesse résiduelle de 0,1 à 0,5 m/s.
| ouverture 2 cotsés | ouverture 3 cotsés | ouverture 4 cotsés | ||||||||||
| Inclinaison des ailettes | 0° | 20° | 30° | 45° | 0° | 20° | 30° | 45° | 0° | 20° | 30° | 45° |
| GEN 590 G2 | 122 | 97 | 80 | 66 | 98 | 77 | 64 | 53 | 81 | 64 | 53 | 44 |
| GEN 760 G2 | 147 | 116 | 96 | 80 | 118 | 93 | 77 | 64 | 98 | 77. | 64 | 53 |
| GEN 990 G2 | 164 | 134 | 116 | 102 | 134 | 106 | 95 | 76 | 116 | 89 | 74 | 61 |
IMPORTANT : l'obturation des 3 côtés du plénum est interdite.
6.3 Instruction de montage du plénum de soufflage
Pour mont , procéder comme suit :
- Deballer le plénum de soufflage
- Démonter les grilles et les panneaux d'obturation sur le plénum.
- Monter le plénum sur le cadre de sortie du générateur. Fixer le plénum sur le cadre.
- Remonter les grilles et les panneaux d'obturation sur le plénum.
7.1 Caractéristiques techniques et dimensionnelles
| Modèle | Dimensions | Nombre d' éléments | Δ P (Pa) | ||
| A | B | C | |||
| GEN 590 G2 | 2090 | 1000 | 450 | 12 | 45 |
| GEN 760 G2 | 2500 | 1000 | 460 | 12 | 50 |
| GEN 990 G2 | 3500 | 1000 | 450 | 24 | 70 |

Modèles GEN 590 G2 à GEN 990 G2
- Ôter les éléments filtrants du caisson filtré.
- Fixer le caisson filtré sur l'ouverture de reprise du générateur avec les vis de tôles.
- Remettre les éléments filtrants dans le caisson.


7.3 Raccordement électrique
L'appareil est livré équipé d'une armoire électrique, d'un moteur et d'un airstat Fan-Limit raccordés.
Raccordement à effectuer :
- Alimentation électrique générale
- Brûleur s'il n'est pas fourni.
- Thermostat d'ambiance
- Autres accessoires
Pour tout raccordement, utiliser les presse-étoupes fixés sur le coffret électrique pour le passage des câbles et le bornier de raccordement, en suivant le schéma électrique spécifique à chaque méthode.
Le coffret électrique est doté d'un relais de sécurité LX. Son contact est placé en série sur la ligne thermostatique du brûleur. En cas de défaut, le relais LX ouvre le circuit et arrête le brûleur.
- La coupure et les protections électriques sont à prévoir par l'installateur. Utiliser de préférence des interrupteurs magnéto-thermiques adaptés à la puissance des générateurs.
- Faire vérifier par un personnel qualifié la section des câbles électriques.
- Raccorder impérativement la terre avec un câble plus long que les câbles de ligne, de manière qu'il soit le dernier à être arraché en cas d'incident.
Nota 2 :
Pour tous générateurs équipés d'options (protections thermostatiques de moteur, chaîne de sécurité, ...) ou de pression statique disponible supérieure aux valeurs du tableau page 5, nous consulter.
Légende
TZ - Relais
RTZ - Relais de commande temporisateur ventilateur
LV - Contacteur ventilateur
TV - Contacteur triangle
SV - Contacteur étoile
RTV - Relais thermique
FA - Thermostat FAN
LM - Thermostat LIMIT
T - Voyant sous tension
V - Lampe-témoin d'arrêt en sécurité brûleur
R - Relais temporisateur étoile-triangle
LX - Relais d'arrêt de sécurité brûleur
IG - Interrupteur général
MG - Boîtier du générateur
F - Fusible commande
CV - Commutateur chauffage/stop/ventilation
FL - Fusibles de ligne
TA* - Thermostat d'ambiance
G - Moteur de ventilation
À l'extérieur de l'appareil - pas compris dans la livraison - installation à la charge du client.
CHANGEMENT POUR ALIMENTATION DE LIGNE TRIPHASE 230 V. Alimentation électrique triphasée 230 V - 50 Hz + N.
7.5 Schéma électrique GEN 990 G2
Legende
TZ - Relais temporisateur ventilateur
LV 1-2 - Contacteur ventilateur
SV 1-2 - Contacteur étoile
FA - Thermostat FAN
T - Voyant sous tension
R 1-2 - Relais temporisateur étoile-triangle
IG - Interrupteur général
F - Fusible de commande
FL - Fusibles de ligne
G1-2 - Moteur de ventilation
RTZ - Relais de commande temporisateur ventilateur TV 1-2 - Contacteur triangle RT 1-2 - Relais thermique LM - Thermostat limite V - Lampe-témoin d'arrêt en sécurité brûleur LX - Relais d'arrêt en sécurité brûleur MG - Boîtier du générateur CV - Commutateur chauffage/stop/ventilation RX - Relais de commande LX TA - Thermostat d'ambiance
À l'extérieur de l'appareil - pas compris dans la livraison - installation à la charge du client.
CHANGEMENT POUR ALIMENTATION DE LIGNE TRIPHASÉ 230V. Alimentation électrique triphasée 230V - 50Hz + N.
7.6 Raccordement à la canalisation de combustible
Le raccordement devra être effectué par un personnel qualifié et respecter rigoureusement les indications notées sur les notices des brûleurs gaz ou fioul.
8.1 Caractéristiques générateur brûleur
Les générateurs ont été testés avec les brûleurs de marque RIELLO.
Bruleur fioul
| Modèle | Marque Brûleur | Type Brûleur | Type d'alimentation |
| GEN 590 G2 | RIELLO | RL 50 | Triphasé |
| GEN 760 G2 | RIELLO | RL 70 | Triphasé |
| GEN 990 G2 | RIELLO | RL 100 | Triphasé |
Bruleur gaz
| Modèle | Marque Brûleur | Type Brûleur | Type d'alimentation |
| GEN 590 G2 | RIELLO | RS 50 | Monophasé |
| GEN 760 G2 | RIELLO | RS 70 | Monophasé |
| GEN 990 G2 | RIELLO | RS 100 | Monophasé |
8.2 Réglage du brûleur fioul
Le montage et l doivent être effectués par un personnel qualifié en respectant scrupuleusement les indications des notices techniques.
- Tableau de réglage du brûleur fioul
| Modèle | Type Brûleur | Gicleur (Delavan) | Pression Pompe (Bar) | Réglage Tête ( théorique) | CO2 (%) ( théorique) | Température fumées (°C) ( théorique) |
| GEN 590 G2 | RL 50 | 2x5,50 GPH 60°W | 12 : | 6 | 12 | 238 |
| GEN 760 G2 | RL 70 | 2x7,50 GPH 60°W | 12 | 8 | 12 | 237 |
| GEN 990 G2 | RL 100 | 2x9,50 GPH 60°W | 12 | 6 | 12 | 260 |
8.3 Réglage du brûleur gaz RIELLO
Le montage et le réglage du brûleur gaz doivent être effectués par un personnel qualifié en respectant scrupuleusement les indications des notices techniques.
Tableau de réglage du brûleur gaz
| GEN 590 G2 | RS 50 | Naturel G20 | 6 | 74 | 9,9 | 238 |
| GEN 590 G2 | RS 50 | Propane G31 | 6 | 11 | 238 | |
| GEN 590 G2 | RS 50 | Butane G30 | 6 | . | 11 | 238 |
| GEN 760 G2 | RS 70 | Naturel G20 | 7,5 | 95,3 | 10 | 237 |
| GEN 760 G2 | RS 70 | Propane G31 | 7,5 | 11,2 | 237 | |
| GEN 760 G2 | RS 70 | Butane G30 | 7,5 | 11,2 | 237 |
| GEN 990 G2 | RS 100 | Naturel G20 | 9 | 66 | 10,7 | 260 |
| GEN 990 G2 | RS 100 | Propane G31 | 9 | 11,3 | 260 | |
| GEN 990 G2 | RS 100 | Butane G30 | 9 | 11,3 | 260 |
Les valeurs de ce tableau sont données à titre indicatif. Le débit gaz doit être mesuré au compteur et le réglage du brûleur doit être conforme aux valeurs de la notice brûleur.
8.4 Réglage de la vitesse du ventilateur
Les générateurs sont livrés pour une pression statique disponible de 10 mmCE (20 mmCE suivant les modèles) à la demande du client.
Le débit d'air peut être vérifié à l'anémomètre ou, avec une approximation convenable, mesurer le ΔT et le comparer aux valeurs du tableau du paragraphe 2.3.
10.1 Commutateur chauffage / arrêt / ventilation
Positionné sur le coffret de commande, il sélectionne les modes de fonctionnement :
- chauffage", il permet à l'appareil de fonctionner automatiquement en fonction du thermostat.
- ventilation", il commande le ventilateur seul.
- Positionné sur la position arrêt, il commande l'arrêt du générateur.
10.2 Thermostat d'ambiance
Installé dans le local à chauffer, à environ 1,5 m du sol, le thermostat pilote le brûleur.
10.3 Réarmement du brûleur
Positionné sur le brûleur, il déverrouille la sécurité et permet le démarrage sous une impulsion manuelle.
10.4 Réarmement limite haute
Le bouton poussoir rouge positionné sur l'airstat a pour fonction de réarmer après une surchauffe.
10.5 Réglage relais thermique
Positionné à l'intérieur du coffret électrique sur le relais thermique, il verrouille le fonctionnement du générateur en cas de surintensité du moteur.
Attention
Après plusieurs réarmements consécutifs, il est indispensable de rechercher la cause de la surchauffe.
11.1 Voyant sous tension
Positionné sur le coffret de commande, il indique la mise sous tension du générateur.
11.2 Voyant défaut brûleur
Positionné sur le brûleur, le voyant rouge indique un défaut survenu sur le brûleur.
11.3 Voyant défaut générateur
Positionné sur le coffret de commande pour les modèles GEN 590 à GEN 990 G2, le voyant orange indique :
- l'arrêt du brûleur par coupure de la limite haute
- l'arrêt du générateur par coupure du relais thermique
12.1 Fonctionnement en position chauffage
Le cycle de fonctionnement s'effectue suivant les différentes phases :
- Alimenter électriquement l'appareil.
- Positionner le commutateur sur la position "chauffage".
- Positionner le thermostat sur la température désirée.
- Le brûleur est alimenté électriquement et démarre après le temps de pré-ventilation et/ou de réchauffage du fioul.
- Le ventilateur démarre une minute environ après le démarrage du brûleur,
- Lorsque la température ambiante atteint la température de consigne du thermostat, le brûleur s'arrête. La ventilation continue de tourner deux à trois minutes avant de s'arrêter.
NB : À la première mise en route, une odeur peut se dégager de l'appareil par le circuit d'air.
Ce fonctionnement de courte durée n'est pas anormal, il correspond à l'élimination des produits nécessaires à la fabrication du corps de chauffe. Aérer la pièce le cas échéant.
12.2 Fonctionnement en position ventilation
- Alimenter électriquement le générateur.
- Positionner le commutateur sur la position ventilation.
- Le ventilateur fonctionne seul et assure un brassage de l'air.
13. Mise en route
Se reporter aux paragraphes 12 et 12.2.
14. Arrêt
Pour arrêter le fonctionnement de l'appareil, opérer exclusivement comme suit :
- Régler le thermostat d'ambiance sur la position "Hors gel" ou positionner le commutateur sur la position "Arrêt".
- Attendre l'arrêt du ventilateur et éventuellement couper l'alimentation électrique par l'interrupteur général.
Attention
Ne jamais arrêter l'appareil par coupure de son alimentation électrique ; l'énergie accumulée dans le générateur provoquerait une surchauffe, voire la détérioration du corps de chauffe.
15. Nettoyage du filtre à air
Il est important de nettoyer périodiquement le filtre à air. Un encrassement important crée une chute de débit et une surchauffe du foyer contrôlée par l'airstat de sécurité. La fréquence de nettoyage dépend de l'ambiance et s'effectue comme suit :
- Démonter le panneau de fermeture du filtre
- Enlever les éléments filtrants
- Nettoy avec un jet d'air, un aspirateur ou simplement en les tapant.
- Pour un nettoyage plus approfondi, utiliser de l'eau tiède avec un détergent neutre.
- Remonter les éléments filtrants.
16. Nettoyage du brûleur
Cette opération doit être effectuée par un personnel qualifié en se rapportant à la notice du brûleur concerné.
17. Nettoyage de l'échangeur
Le nettoyage de l'échangeur doit être effectué par un personnel qualifié. Nous conseillons un entretien annuel. Pour cette opération, procéder comme suit :

- Démonter le panneau supérieur (1).
- Démonter la plaque de ramonage (2)
- Démonter le brûleur (9)
- Démonter les panneaux latéraux (7) et la trappe de ramonage (6).
- Retirer les turbulateurs (10).
- Nettoyer l'échangeur (3) et aspirer les dépôts de combustion tombés dans la chambre de combustion (8) en utilisant un aspirateur au travers de la buse brûleur (9).
- Remonter l'ensemble en assurant l'étanchéité des portes de ramonage.
18. Vérification du groupe moteur ventilateur
Contrôler périodiquement la tension de la courroie ainsi que l'alignement des poulies.
Pour assurer un bon fonctionnement, les courroies doivent être correctement tendues.
La flèche doit être de 2 à 3 cm.
Pour la tension des courroies, agir sur les boulons tendeurs.
Les moteurs sont de type étanche, sans entretien ni graissage.
Les paliers des ventilateurs sont dotés de graisseurs. Une vérification périodique est nécessaire.
19. Analyse des fumées
Le prélèvement des fumées doit être effectué à "2 x D" du générateur pour obtenir une bonne analyse de combustion.

20. Garantie
Les appareils sont garantis un an contre tous vices de fabrication, sous réserve d'être installés par des professionnels qualifiés, conformément à la réglementation en vigueur et aux instructions qui figurent sur nos notices de montage, et dans la mesure où ils fonctionnent dans des conditions normales d'utilisation.
La garantie prendra effet à la date de mise en service, au plus tard dans les six mois après la mise à disposition du matériel par S. PLUS.
Nous déclinons toute responsabilité et aucune garantie ne serait applicable en cas d'installation défectueuse, mal adaptée ou non conforme aux normes en vigueur. La garantie se limite à la remise en état ou à l'échange gratuit, après contrôle de notre part, de la (ou des) pièce(s) par une pièce identique ou similaire.
Les frais de main d'œuvre, de déplacement, d'accès au chantier, au matériel et de transport sont exclus.
Tout remplacement réalisé durant la période de garantie, même si celui-ci nécessite éventuellement une immobilisation du matériel, ne peut en aucun cas prolonger la durée de cette garantie.
Aucun dommage et intérêt ne pourra être réclamé pour préjudice indirect, commercial ou autre.
Ne peuvent être pris en considération et couverts par notre garantie les dommages incombant :
- À des phénomènes extérieurs. - À des négligences de l'utilisateur. - Au non-respect des consignes stipulées dans nos documents. - Détérioration due à une mauvaise manutention au cours du transport ou à une fausse manœuvre.
Utilisation d'accessoires autres que ceux d'origine.
Défaut de surveillance et d'entretien.
Que ce soit à l'égard de l'acheteur ou de toute autre personne, notre société ne pourra en aucun cas être tenue pour responsable des dommages corporels ou matériels de quelque nature qu'ils soient, qui pourraient être provoqués par nos produits ou qui seraient la conséquence directe ou indirecte de l'utilisation desdits produits.
Notice Facile