GEN 120 G2 - Chauffage S.PLUS - Notice d'utilisation et mode d'emploi gratuit
Retrouvez gratuitement la notice de l'appareil GEN 120 G2 S.PLUS au format PDF.
| Type d'appareil | Générateur d'air chaud |
| Fonction principale | Chauffage |
| Installation | Fixe |
| Alimentation | Non précisé |
| Puissance thermique | Variable selon modèle |
| Mode de ventilation | Ventilation forcée |
| Utilisation | Intérieur |
| Type de combustible | Non précisé |
| Contrôle | Manuel ou automatique |
| Maintenance | Entretien régulier recommandé |
| Dimensions | Non précisé |
| Poids | Non précisé |
| Matériaux | Acier et composants résistants à la chaleur |
| Garantie | Non précisé |
| Normes | Conforme aux normes de sécurité en vigueur |
| Accessoires | Non précisé |
FOIRE AUX QUESTIONS - GEN 120 G2 S.PLUS
Téléchargez la notice de votre Chauffage au format PDF gratuitement ! Retrouvez votre notice GEN 120 G2 - S.PLUS et reprennez votre appareil électronique en main. Sur cette page sont publiés tous les documents nécessaires à l'utilisation de votre appareil GEN 120 G2 de la marque S.PLUS.
MODE D'EMPLOI GEN 120 G2 S.PLUS
Manuel d'installation et d'entretien
Lire attentivement avant toute opération d'installation, d'exploitation et d'entretien.
S. PLUS se réserve le droit de modifier sans préavis les caractéristiques de ses appareils dans le cadre des améliorations apportées à ces produits.
- Ce manuel d'informations techniques fait partie intégrante de l'appareil, il doit donc être conservé avec soin et toujours accompagner l'appareil, même en cas de cession à un autre propriétaire ou utilisateur. En cas de perte ou de destruction du présent manuel, en demander un autre.
- Il est indispensable de vérifier l'état du matériel livré, même si l'emballage paraît intact. En cas de dépréciation ou d'appareil (ou accessoires) manquant, les réserves devront être faites sur le récépissé du transporteur et confirmées à celui-ci par lettre recommandée sous 48 heures.
- L'installation des générateurs doit être effectuée par une entreprise habilitée, qui en fin de travail délivre au propriétaire une attestation de conformité d'installation réalisée dans les règles de l'art, et donc selon les normes en vigueur et les indications fournies par le constructeur dans le présent manuel.
- Ces appareils sont conçus pour le chauffage d'ambiance et doivent être destinés uniquement à cet usage. Est exclue toute responsabilité de S. Plus pour des dommages causés à des personnes, des animaux ou des objets et résultant d'erreurs d'installation, de réglage et de maintenance, ou d'utilisations impropres.
- Une température trop élevée n'est pas conforme et constitue un inutile gaspillage d'énergie.
- Les interventions de réparation et/ou de maintenance doivent être effectuées par un personnel autorisé et qualifié, comme prévu dans cette notice. Ne pas modifier la pression de gaz ou transformer l'appareil, dans la mesure où cela pourrait créer des situations dangereuses, et auquel cas le constructeur ne sera pas responsable des dommages provoqués.
- Les installations à effectuer (canalisation, raccordements électriques, etc.) doivent être protégées de manière adéquate et ne doivent en aucun cas constituer des obstacles susceptibles de faire trébucher.
- ; il s'agit de l'évaporation des graisses de fabrication de l'échangeur. Aérez le local, sachant que très rapidement l'odeur disparaîtra.
- Dans le cas où une longue période de non-fonctionnement serait prévue, b
- Lors de la remise en fonctionnement, il est conseillé de faire appel à un personnel qualifié.
Les appareils ne doivent être équipés que d'accessoires d'origine. Le constructeur ne sera pas responsable de dommages éventuels résultant de l'utilisation impropre de l'appareil et de l'utilisation de matériels et d'accessoires non standards.
- Les appareils doivent être équipés exclusivement avec les accessoires d'origine. S.PLUS ne sera pas tenu responsable d'un quelconque dommage issu de l'emploi d'un accessoire inapproprié avec l'appareil.
- Les références aux normes, règles et directives citées dans le présent manuel sont données à titre informatif et ne sont valides qu'à la date de l'édition de celui-ci. L'entrée en vigueur de nouvelles dispositions ou de modifications à celles existantes ne donne pas naissance à une obligation du constructeur vis-à-vis des tiers.
- S. PLUS est responsable de la conformité de l'appareil aux règles, directives et normes de construction en vigueur au moment de la commercialisation. La connaissance et le respect des dispositions légales ainsi que des normes inhérentes à l'implantation, l'installation, la mise en route et la maintenance sont exclusivement à la charge du bureau d'étude, de l'installateur et de l'utilisateur. S. PLUS n'est pas responsable du non-respect des instructions contenues dans la présente notice, ni des conséquences de toute manœuvre effectuée ou non.
Règles fondamentales de sécurité
L'utilisation d'un produit qui fonctionne avec de l'énergie électrique, du fioul ou du gaz, doit respecter quelques règles de sécurité fondamentales :
- L'utilisation de l'appareil par des enfants est interdite, ainsi qu'aux personnes inaptes non assistées.
- Il est interdit de mettre en marche l'appareil en cas de perception d'odeur de gaz ou de fumée. Dans ce cas, procéder comme suit :
Aérer le local en ouvrant portes et fenêtres. Fermer la vanne de barrage gaz. Prévenir le personnel qualifié pour une intervention rapide.
- Il est interdit de toucher l'appareil pieds nus et/ou avec une partie du corps mouillé.
- Il est interdit d'effectuer toute opération de nettoyage et/ou de maintenance avant d'avoir débranché l'alimentation électrique et coupé l'alimentation du combustible.
- Il est interdit de modifier les systèmes de sécurité ou de régulation sans l'autorisation et les indications de S. PLUS.
- Il est interdit de tirer, de débrancher ou de tordre les câbles électriques de l'appareil, même si ces derniers sont débranchés.
- Il est interdir d'ouvrir la porte d'accès aux composants sans avoir positionné l'interrupteur principal sur « Arrêt »
- Il est interdit de laisser à portée des enfants les emballages (carton, agrafe...)
- Il est interdit d'installer l'appareil à proximité de matières inflammables ou dans des locaux à atmosphère agressive (produits organochlorés...).
- Il est interdit de poser des objets sur l'appareil, ou de les introduire à travers la grille de soufflage.
- Il est interdit de toucher l'échangeur de chaleur si celui-ci est en cours de fonctionnement en chauffage.
- Il est interdit d'utiliser des adaptateurs, prises multiples et prolongateurs pour le raccordement électrique de l'appareil.
- Il est interdit d'installer l'appareil en extérieur ou dans les lieux où il serait exposé à divers phénomènes.
- Il est interdit d'installer le générateur directement dans un local dépourvu de ventilation. Une dépression du local entraînerait un mauvais fonctionnement.
Pour l'installateur
- PLAQUE SIGNALÉTIQUE
- INFORMATIONS TECHNIQUES
2.1 DIMENSIONS DE LA CHAMBRE DE COMBUSTION 5 2.2 CARACTÉRISTIQUES DIMENSIONNELLES 6 2.3 CARACTÉRISTIQUES TECHNIQUES 7
3. DESCRIPTION 8 4. MANUTENTION 9
- INSTALLATION 10
5.1 Mise en place 10 5.2 Raccordement du conduit des fumées 10 5.3 Raccordement du réseau de soufflage 10 5.4 Raccordement du réseau de reprise 10
6.1 Caractéristiques dimensionnelles 11 6.2 Portée d'air 11
6.3 Instructions de montage du plénum de soufflage 12
- Filtre d'aspiration
7.1 Caractéristiques techniques et dimensionnelles 12 7.2 Instructions de montage 12 7.3 Raccordement électrique 13 7.4 Schéma électrique GEN 70 13 7.5 Schéma électrique GEN 120 à 390 14-15-16 7.6 Raccordement à la canalisation de combustible 17
- REGLAGE 17
3.1 Caractéristiques générateur - brûleur 17 3.2 Réglage du brûleur fioul 17 3.3 Réglage du brûleur gaz 15 3.4 Réglage de la vitesse du ventilateur 18-19
- CONTROL 20
Pour l'utilisateur
10. COMMANDE 21
10.1 Commutateur Chauffage / Arrêt / Ventilation 21 10.2 Thermostat d'ambiance 21 10.3 Réarmement brûleur 21 10.4 Réarmement limite 21 10.5 Réarmement relais thermique 21
- SIGNALISATION 21
11.1 Voyant défaut brûleur 21 11.2 Voyant défaut générateur 21
- FONCTIONNEMENT
12.1 Fonctionnement en position chauffage 21 12.2 Fonctionnement en position ventilation 22
13. MISE EN ROUTE 22 14. ARRÊT 22
Pour la maintenance
- NETTOYAGE DU FILTRE À AIR
- NETTOYAGE DU BRÛLEUR 22
- NETTOYAGE DE L'ÉCHANGEUR 23
- VÉRIFICATION DU GROUPE MOTEUR-VENTILATEUR 23
- ANALYSE DES FUMÉES 24
- ENTRETIEN AIRSTAT LIMIT 24. GARANTIE 24
Collée sur la face avant du générateur, la plaque signalétique indélébile indique les caractéristiques de l'appareil.
| IDENTIFICATION Constructeur CE | |||
| GENERATEUR AIR CHAUD | |||
| Modèle | |||
| Matricule | |||
| Pays | PIN | ||
| Code | |||
| Type | Année | ||
| Débit calorifique | |||
| Puisance thermique | |||
| Débit d'air (+20℃) | |||
| Pression statique utile | |||
| Alimentation électrique | |||
| Puisance moteur ventilateur | |||
| Intensité moteur ventilateur maxi | |||
| Degré de protection | IP 20 | ||
2.1 - Dimension de la chambre de combustion
Le corps de chauffe est à trois parcours de fumées.


| GEN 70 G2 | GEN 120 G2 | GEN 160 G2 | GEN 190 G2 | GEN 260 G2 | GEN 320 G2 | GEN 390 G2 | |
| A (mm) | 377 | 570 | 803 | 803 | 886 | 1010 | 1010 |
| B (mm) | 120 | 170 | 170 | 170 | 220 | 220 | 220 |
| C (mm) | 80 | 80 | 150 | 150 | 130 | 130 | 130 |
| D (mm) | .680 | 903 | 1100 | 1100 | 1300 | 1500 | 1500 |
2.2 - Caractéristiques dimensionnelles
GEN 70 G2 - GEN 120 G2
GEN 160 G2 à GEN 390 G2


| Modèle | A | B | C | D | E | F | G | H | L | Ø Cheminée |
| GEN 70 G2 | 810 | 540 | 1580 | 400 | 625 | 490 | 600 | 1310 | 25 | 150 |
| GEN 120 G2 | 1060 | 760 | 1925 | 500 | 900 | 700 | 1000 | 1655 | 30 | 200 |
| GEN 160 G2 | 1300 | 900 | 2120 | 781 | 1182 | 840 | 1240 | 1905 | 30 | 250 |
| GEN 190 G2 | 1300 | 900 | 2120 | 781 | 1182 | 840 | 1240 | 1905 | 30 | 250 |
| GEN 260 G2 | 1500 | 1000 | 2120 | 781 | 1382 | 940 | 1440 | 1905 | 30 | 250 |
| GEN 320 G2 | 1700 | 1200 | 2400 | 781 | 1582 | 1140 | 1640 | 2160 | 30 | 300 |
| GEN 390 G2 | 1700 | 1200 | 2400 | 781 | 1582 | 1140 | 1640 | 2160 | 30 | 300 |
Mesures en millimètres
2.3 - CARACTÉRISTIQUES TECHNIQUES
| Modèle | GEN 70 G2 | GEN 120 G2 | GEN 160 G2 | GEN 190 G2 | GEN 260 G2 | GEN 320 G2 | GEN 390 G2 | |
| Débit calorifique nominal | Kw | 60 | 122,3 | 161,2 | 190 | 258,8 | 322,6 | 391 |
| kcal/h | 51600 | 105150 | 138600 | 163400 | 222600 | 277470 | 336250 | |
| Puisance utile | kW | 54 | 107 | 145,3 | 168,2 | 230,3 | 290,7 | 347,6 |
| kcal/h | 46450 | 92000 | 125000 | 144600 | 198100 | 250000 | 298950 | |
| Rendement de combustion | % | 90,1 | 87,5 | 90,1 | 88,5 | 89 | 90,1 | 88,9 |
| Contre pression du foyer | mmCE | 2 | 2,2 | 0,8 | 0,2 | 3,9 | 2,1 | 3,2 |
| Volume de la chambre de combustion | m3 | 0,08 | 0,23 | 0,49 | 0,49 | 0,64 | 1,05 | 1,05 |
| Température des fumées (nette) | °C | 200 | 252 | 210 | 249 | 248 | 204 | 227 |
| Produits de combustion | kg/h | 117,7 | 238 | 295,6 | 343,4 | 472,5 | 614,5 | 736,2 |
| Consommation gaz naturel G20 | Nm3/h | 6 | 12,3 | 16,2 | 19 | 25,9 | 32,4 | 39,2 |
| Consommation gaz propane G31 | Nm3/h | 2,3 | 4,7 | 6,2 | 7,3 | 9,9 | 12,4 | 15 |
| Consommation gaz butane G30 | Nm3/h | 1,76 | 3,5 | 4,6 | 5,4 | 7,4 | 9,3 | 11,2 |
| Consommation Fod | kg/h | 5,06 | 10,3 | 13,6 | 16 | 21,8 | 27,2 | 32,9 |
| Débit d'air à +20°C | m3/h | 4300 | 7600 | 9600 | 11500 | 15300 | 19000 | 23000 |
| Pression statique utile maxi | mmCE | 16 | 16 | 220 | 20 | 18 | 20 | 17 |
| Δ T°C | °C | 40 | 42 | 45 | 43 | 45 | 45 | 45 |
| Réglage de l'airstat (Limit - FAN) | °C | 25-35-100 | 25-35-100 | 25-35-100 | 25-35-100 | 25-35-100 | 25-35-100 | 25-35-100 |
| Réglage de l'airstat (Sécurité) | - | - | 80 | 80 | 80 | 80 | 80 | |
| Type d'alimentation électrique | monophasé | triphasé | triphasé | triphasé | triphasé | triphasé | triphasé | |
| Tension électrique d'alimentation (50 Hz) | V | 230 | 400+N | 400+N | 400+N | 400+N | 400+N | 400+N |
| Puisance électrique du moteur ventilateur | CV | 0,75 | 2 | 3 | 4 | 5,5 | 5,5 | 7,5 |
| Puisance électrique du moteur ventilateur | Kw | 0,55 | 1,5 | 2,2 | 3 | 4 | 4 | 5,5 |
| Puisance électrique du brûleur gaz RIELLO | Kw | 0,13 | 0,24 | 0,24 | 0,25 | 0,25 | 0,25 | 0,42 |
| Puisance électrique du brûleur fioul RIELLO | Kw | 0,17 | 0,38 | 0,38 | 0,37 | 0,37 | 0,37 | 0,45 |
| Intensité absorbée par le moteur | A(230V) | 3,7 | 6,4 | 8,8 | 12,1 | 15,8 | 15,8 | 20,7 |
| Intensité absorbée par le moteur | A(400V) | - | 3,6 | 5,1 | 7 | 9,1 | 9,1 | 12 |
| Degré de protection | IP | 20 | 20 | 20 | 20 | 20 | 20 | 54 |
| Poids net sans brûleur | kg | 130 | 249 | 412 | 437 | 525 | 694 | 734 |
| Catégorie | II2H3+ | II2H3+ | II2H3+ | II2H3+ | II2H3+ | II2H3+ | II2H3+ | |
| Type | B23 | B23 | B23 | B23 | B23 | B23 | B23 | |
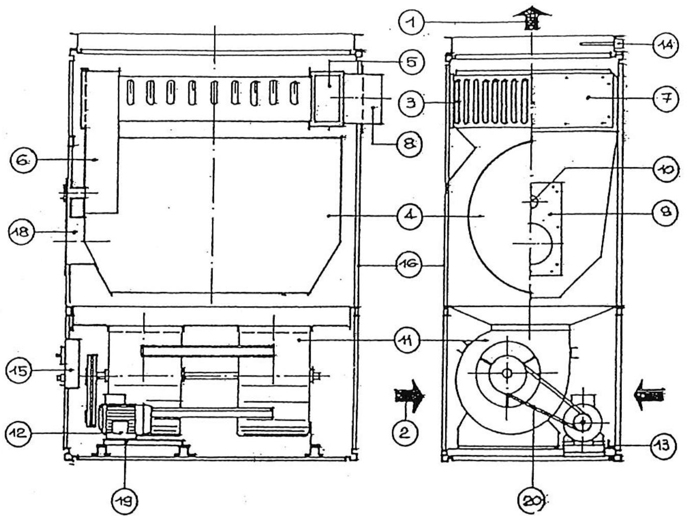
3 - Description

1. Sortie d'air 2. Reprise d'air 3. Échangeur lamellaire 4. Chambre de combustion 5. Collecteur des fumées arrière 6. Collecteur des fumées avant 7. Trappe de ramonage 8. Sortie fumées 9. Plaque brûleur 10. Viseur de flamme
- Ventilateur(s) centrifuge(s)
- Moteur électrique
- Tendeur
- Airstat
- Coffret électrique
- Jaquette
- Boulons / inserts de fixation des deux caissons. 18. Passage brûleur.
- Platine de fixation moteur
- Transmission
Manutention
La manutention doit s'effectuer avec prudence pour éviter des dégâts matériels ou corporels.
L'utilisation d'un chariot élévateur est conseillée ; à défaut, prévoir un système de levage accroché à la chambre de combustion.
| Modèle | Moyen de manutention | Accrochage | Note |
| GEN 70 G2 à GEN 390 G2 | * Chariot élévateur | * Palette | |
| * Grue ou pont roulant | * Anneau sur échangeur | * Utiliser un cable d'acier |

Important
Pendant les opérations de manutention, il est interdit de rester à proximité de l'appareil.
Conformité :
L'installation de l'appareil doit être effectuée par un professionnel qualifié conformément aux règles de l'art et aux textes réglementaires en vigueur, notamment :
Code du travail, - Norme NFC 15-100 : installations électriques, - Arrêtés du 26 février 1974 et du 3 mars 1976 : stockage fuel, - DTU 61.1 : installation de gaz.
Ne pas installer l'appareil dans un local en dépression ou à atmosphère corrosive.
5.1 Mise en place
Utiliser les anneaux de levage sur l'échangeur pour décharger l'appareil.
Positionner l'appareil sur un plan horizontal dans un endroit propre et sec.
Laisser autour de l'appareil une distance suffisante pour positionner et accéder au brûleur et pour une libre circulation d'air (minimum 1 m entre la prise d'air et le premier obstacle). Pour les modèles horizontaux suspendus, s'assurer que l'ossature du bâtiment peut supporter l'appareil.
Pour les appareils en deux parties, superposer le caisson de combustion sur le caisson de ventilation puis boulonner l'ensemble. Procédure :
- Démonter les panneaux latéraux du caisson de ventilation. Glisser les boulons par les ouvertures prévues sur le cadre du caisson de ventilation. Si le positionnement est correct, boulonner (inserts prévus dans le cadre du caisson).
- Remonter les panneaux latéraux.
5.2 Raccordement du conduit de fumée
L'appareil est prévu pour fonctionner en tirage naturel.
Installer une cheminée de section au moins égale à celle de la sortie des fumées, aussi verticale que possible.
Soufflage direct :
Équipement standard : positionner puis fixer les accessoires de soufflage.
Les réglages aérauliques du générateur et des accessoires sont réalisés d'origine en usine.
Soufflage en gaine :
Raccorder les gaines de distribution d'air au cadre prévu à cet effet.
Équilibrer les pertes de charge du réseau de gaines avec la pression statique disponible de l'appareil.
Nos appareils sont proposés d'usine avec 3 réglages en équipement de 10 à 20 mm CE (poulie moteur variable), 30 mm CE (poulie fixe).
5.4 Raccordement du réseau de reprise
Raccorder l'éventuel réseau de reprise d'air à l'ouverture latérale du générateur.
L'appareil est prévu pour un raccordement à droite ou à gauche. Pour adapter le côté d'aspiration, il suffit d'inverser le panneau d'obturation avec la grille de reprise.
Important
Les dimensions des gaines de soufflage et de reprise d'air doivent être réalisées par une personne compétente de sorte que la perte de charge ne soit pas supérieure à la pression statique disponible du générateur.
6 - Plenum diffusion
Dans le cadre d'une utilisation directe dans l'ambiance, il faut utiliser le plénum de diffusion, fourni comme accessoire.
Pour optimiser la diffusion de l'air, il est conseillé d'installer l'appareil au centre du local ou adossé à une paroi.
6.1 - Caractéristiques dimensionnelles
| Modèle | A | B | H | Nbre de grillles | Dimensions des grilles |
| GEN 70 G2 | 540 | 800 | 350 | 4 | 250 x 400 |
| GEN 120 G2 | 760 | 1060 | 550 | 4 | 600 x 400 |
| GEN 160 G2 | 900 | 1300 | 550 | 4 | 800 x 400 |
| GEN 190 G2 | 900 | 1300 | 550 | 4 | 800 x 400 |
| GEN 260 G2 | 1000 | 1500 | 550 | 4 | 800 x 400 |
| GEN 320 G2 | 1200 | 1700 | 550 | 4 | 800 x 400 |
| GEN 390 G2 | 1200 | 1700 | 550 | 4 | 800 x 400 |
6.2 - Portée d'air
La portée est la distance en mètres entre l'appareil et le point de mesure qui donne une vitesse résiduelle de 0,1 à 0,5 m/s.
| ouverture 2 cotsés | ouverture 3 cotsés | ouverture 4 cotsés | ||||||||||
| Inclinaison des ailettes | 0° | 20° | 30° | 45° | 0° | 20° | 30° | 45° | 0° | 20° | 30° | 45° |
| GEN 70 G2 | 44 | 35 | 28 | 21 | 36 | 29 | 23 | 17 | 31 | 25 | 20 | 15 |
| GEN 120 G2 | 48 | 39 | 31 | 23 | 40 | 31 | 26 | 19 | 35 | 28 | 22 | 16 |
| GEN 160 G2 | 59 | 46 | 38 | 28 | 48 | 38 | 31 | 23 | 42 | 33 | 27 | 20 |
| GEN 190 G2 | 75 | 60 | 48 | 36 | 61 | 48 | 40 | 29 | 54 | 43 | 33 | 25 |
| GEN 260 G2 | 93 | 74 | 60 | 45 | 76 | 60 | 49 | 36 | 66 | 54 | 44 | 32 |
| GEN 320 G2 | 106 | 80 | 63 | 46 | 82 | 63 | 52 | 39 | 68 | 54 | 45 | 34 |
| GEN 390 G2 | 112 | 88 | 72 | 54 | 91 | 72 | 59 | 43 | 79 | 63 | 51 | 38 |
IMPORTANT : l'obturation des 3 côtés du plénum est interdite.
6.3 - Instruction de montage du plénum de soufflage
Pour mont , procéder comme suit :
- Deballer le plénum de soufflage
- Démonter les grilles et les panneaux d'obturation sur le plénum.
- Monter le plénum sur le cadre de sortie du générateur. Fixer le plénum sur le cadre.
- Remonter les grilles et les panneaux d'obturation sur le plénum.
7.1 - Caractéristiques techniques et dimensionnelles
| Modèle | Dimensions | Nombre d'éléments | Δ P (Pa) | ||
| A | B | C | |||
| GEN 70 G2 | |||||
| GEN 120 G2 | 965 | 559 | 165 | 1 | 23 |
| GEN 160 G2 | 1300 | 832 | 325 | 4 | 17 |
| GEN 190 G2 | 1300 | 832 | 325 | 4 | 27 |
| GEN 260 G2 | 1500 | 832 | 325 | 6 | 35 |
| GEN 320 G2 | 1700 | 832 | 450 | 9 | 23 |
| GEN 390 G2 | 1700 | 832 | 450 | 9 | 38 |

Modèles GEN 70 G2
- Choiser le côté de montage du filtre. Fixer à l'aide des vis tôles.
Modèles GEN 120 G2 à GEN 390 G2
Ôter les éléments filtrants du caisson filtré. Fixer le caisson filtré sur l'ouverture de reprise du générateur avec les vis tôles. Remettre les éléments filtrants dans le caisson.


7.3 Raccordement électrique
L'appareil est livré équipé d'une armoire électrique, d'un moteur et d'un airstat Fan-Limit raccordés.
Raccordement à effectuer :
Alimentation électrique générale Brûleur Thermostat d'ambiance Autres accessoires
-Pour tout raccordement, utiliser les presse-étoupes fixés sur le coffret électrique pour le passage des câbles et le bornier de raccordement suivant le schéma électrique spécifique à chaque modèle.
Le coffret électrique est doté d'un relais de sécurité LX. Son contact est placé en série sur la ligne thermostatique du brûleur. En cas de défaut, le relais LX ouvre le circuit et arrête le brûleur.
- La coupure et les protections électriques sont à prévoir par l'installateur. Utiliser de préférence des interrupteurs magnétothermiques adaptés à la puissance des générateurs.
- Faire vérifier par une personne qualifiée la section des câbles électriques. Raccorder impérativement la terre avec un câble plus long que les câbles de ligne de manière qu'il soit le dernier à être arraché en cas d'incident.
Nota 2:
Pour tous générateurs équipés d'options (protections isotherme de moteur, chaîne de sécurité, ...) ou de pression statique disponible supérieure aux valeurs du tableau page 5, nous consulter.
7.4 Schéma électrique GEN 70 G2

BORNIER DU COFFRET ÉLECTRIQUE Légende
FAN - Thermostat FAN (25-35°C) LM - Thermostat LIMIT (100°C) F - Fusible de protection PA - Protection interne moteur (thermique) G - Moteur ventilateur C - Condensateur moteur ventilateur B - Brûleur CV - Commutateur chauffage / arrêt / ventilation TA - Thermostat d'ambiance IMT - Interrupteur magnéto-thermique MS - Contact fin de course clapet coupe-feu (éventuel)
À l'extérieur de l'appareil. Non compris dans la livraison. Installation à la charge du client.
7.5 Schéma électrique GEN 120 G2 à GEN 390 G2
BORNIER DU COFFRET ÉLECTRIQUE
VARIANTE POUR UNE ALIMENTATION ÉLECTRIQUE MONOPHASÉE DU BRÛLEUR

Légende
Thermostat de ventilation FAN (25-35°C)
LM Thermostat LIMITE (100°C)
TR Thermostat SÉCURITÉ (taré 80°C)
LV Contacteur de ligne
LX Relais arrêt sécurité brûleur
RTV Relais thermique
Voyant arrêt sécurité brûleur
FA Fusible circuit auxiliaire
FB Fusible brûleur
FV Fusible moteur ventilateur
CV Commutateur chauffage / arrêt / ventilation
TA* Thermostat d'ambiance
MS* Contact clapet coupe-feu (éventuel)
IMT* Interrupteur magnétothermique
IG Interrupteur général
G Moteur ventilateur
Pressostat sur filtre (Option)
* À l'extérieur de l'appareil. Non fourni dans la livraison. Installation à la charge de l'installateur.
Uniquement sur les modèles GEN 160 à 390.
Airstat Fan - Limit - Sécurité
Les airstats ont l'élément sensible positionné dans le soufflage d'air chaud et ont une double fonction : arrêt et démarrage du groupe moto-ventilateur (fonction FAN) ; et arrêt en sécurité du brûleur en cas de surchauffe (fonction LIMIT).
- FONCTION FAN (airstat FAN - taré 25-35°C). Elle commande le démarrage du ventilateur 60 secondes maxi (35°C) après le démarrage du brûleur et n'arrête le ventilateur que 4 minutes (25°C) après l'arrêt du brûleur. Ceci permet d'éviter l'émission d'air froid au démarrage et d'évacuer toute l'énergie accumulée dans l'échangeur.
- FONCTION SÉCURITÉ (Type GEN 160 à GEN 390) Airstat TR - Taré à 80°C Le réarmement est automatique. Le tarage peut être affiné lors de la première mise en route.
- FONCTION LIMIT (Airstat LIMIT - taré à 105°C). Elle a la fonction d'interrompre le fonctionnement du brû En cas de surchauffe, le réarmement est manuel ; la cause du défaut doit être analysée et éliminée. RACCORDEMENT ÉLECTRIQUE ET TARAGE
Les générateurs sont fournis avec les airstats raccordés et tarés. Dans le cas d'une vérification, d'un entretien ou d'un remplacement, il est obligatoire de se reporter aux instructions.
Positionnement
Les générateurs GEN 70 à GEN 120 sont fournis avec l'airstat câblé et monté.
Les générateurs GEN 160 à 390 (ou les airstats) câblé(s) et à monter sur le cadre du couplage.


Légende :
- Airstat (FAN - LIMIT). Fonction FAN. Taré en usine à 25 - 35 °C. Fonction LIMIT. Taré en usine à 100 °C.
2 Airstat (TR) Fonction SÉCURITÉ. Taré en usine à 80 °C.
Tarage des airstats fan - fan limit - sécurité
Les airstats sont tarés suivant le tableau ci-dessous :
| Thermostat FAN | 25 – 35 °C |
| Thermostat LIMIT (1) | 100°C |
| Thermostat SECURITE (2) | Tarde à 80°C . . |
(1) Le thermostat LIMIT taré à 100°C ne doit jamais être modifié. (2) Le thermostat SECURITE (Type GEN 160 à GEN 390) taré doit être réglé au moment de la mise en route, en suivant les instructions du présent manuel.
Dans le cas où l'on doit procéder à un contrôle ou à un tarage de la valeur de coupure du thermostat, observer les indications ci-dessous :
Légende :
- Poussoir blanc ventilation automatique - manuelle (si présent, doit toujours être retiré).
- Raccordement électrique pour la fonction FAN
- Disque gradué
- Trous de fixation
- ventilateur (25 °C).
- brûleur. Fonction LIMITE ou SÉCURITÉ.
- Connexion électrique. Appuyer avec la pointe d'un tournevis sur la languette pour débloquer la connexion et enfiler ou ôter le fil électrique. En relâchant la pression du tournevis, la connexion électrique est assurée.
Attention !
S'assurer que le câble est bien fixé en tirant légèrement sur celui-ci.
- Ergot de température de démarrage du ventilateur (35 °C).
- Raccordement électrique fonction LIMIT-SÉCURITÉ
- Pouvoir rouge, réarmement sécurité sur chauffe (uniquement sur airstat LIMIT)
- Shunt métallique (à couper pour tous les modèles sauf S50CE)
Attention !
Sur le modèle GEN 70, le shunt métallique doit être présent. Sur les modèles GEN 170 à 390, le shunt métallique doit être supprimé.

Tarage des thermostats de sécurité (modèle GEN 120 à 390)
Le tarage s'effectue en suivant les indications suivantes :
- Démarrer le générateur dans les conditions normales de fonctionnement. S'assurer que la puissance du brûleur correspond à la puissance du générateur. S'assurer que le débit d'air soit correct.
- Avec le générateur en régime stabilisé, vérifier la température de l'air à proximité de l'élément sensible de l'airstat SECURITE TR (vérifier la position du disque gradué). Régler l'ergot de l'airstat à 15 °C au-dessus de la valeur mesurée. Exemple : Température mesurée 20 °C, donc tarage de l'airstat à 35 °C.
7.6 - Raccordement à la canalisation de combustible
Le raccordement devra être effectué par un personnel qualifié et respecter rigoureusement les indications notées sur les notices des brûleurs gaz ou fioul.
8.1 Caractéristiques générateur brûleur
Les générateurs ont été testés avec les brûleurs de marque RIELLO.
Bruleur fioul
| Modèle | Marque Brûleur | Type Brûleur | Type d'alimentation |
| GEN 70 G2 | RIELLO | Gulliver RG2 | Monophasé |
| GEN 120 G2 | RIELLO | Gulliver RG3 | Monophasé |
| GEN 160 G2 | RIELLO | RG 4 S | Monophasé |
| GEN 190 G2 | RIELLO | RG 4 S | Monophasé |
| GEN 260 G2 | RIELLO | RL 28/1 tc | Monophasé |
| GEN 320 G2 | RIELLO | RL 28/1 tc | Monophasé |
| GEN 390 G2 | RIELLO | RL 38 (TC) | Monophasé |
Bruleur gaz
| Modèle | Marque Brûleur | Type Brûleur | Type d'alimentation |
| GEN 70 G2 | RIELLO | BS 2 | Monophasé |
| GEN 120 G2 | RIELLO | BS 3 | Monophasé |
| GEN 160 G2 | RIELLO | BS 4 | Monophasé |
| GEN 190 G2 | RIELLO | BS 4 | Monophasé |
| GEN 260 G2 | RIELLO | RS 28/1 (tc) | Monophasé |
| GEN 320 G2 | RIELLO | RS 28/1 (tc) | Monophasé |
| GEN 390 G2 | RIELLO | RS 38/1 (tc) | Monophasé |
8.2 - Réglage du brûleur fioul
Le montage et l doivent être effectués par un personnel qualifié en respectant scrupuleusement les indications des notices techniques.
Tableau d (À titre indicatif -
| Modèle | Type Brûleur | Gicleur (Delavan) | Pression Pompe (Bar) | Réglage Tête ( théorique) | CO2 (%) ( théorique) | Température fumées (°C) ( théorique) |
| GEN 70 G2 | Gulliver RG2 | 1,25 GPH 60°W | 12 | 2 | 12 | 225 |
| GEN 120 G2 | Gulliver RG3 | 2,50 GPH 60°W | 12 | 3,5 | 12 | 252 |
| GEN 160/190 G2 | RG 4 S | 3,50 GPH 60°W | 12 | - | - | - |
| GEN 260 G2 | RL 28/1 | 2x2,50 GPH 60°W | 12 | 3,5 | 12 | 248 |
| GEN 320 G2 | RL 28/1 | 2x3,50 GPH 60°W | 10 | 4 | 12 | 204 |
| GEN 390 G2 | RL 38 | 2x3,50 GPH 60°W | 14 | 5 | 12 | 227 |
8.3 - Réglage du brûleur gaz RIELLO (À
Le montage et le réglage du brûleur gaz doivent être effectués par un personnel qualifié en respectant scrupuleusement les indications des notices techniques.
Tableau de réglage du brûleur gaz
| Modèle | Type Brûleur | Type de Gaz | Réglage Tête | Pression gaz à la rampe (mmCE) | CO2 (%) | Température fumées (°C) |
| GEN 70 G2 | R40 GS8 | Naturel G20 | 1,3 | 9,4 | 225 | |
| GEN 70 G2 | r40 GS8 | Propane G31 | 1,3 | 10 | 225 | |
| GEN 70 G2 | R40 GS8 | Butane G30 | 1,3 | 10 | 225 | |
| GEN 70 G2 | R40 GZ10 | Naturel G20 | 225 | |||
| GEN 70 G2 | R40 GZ10 | Propane G31 | 225 | |||
| GEN 70 G2 | R40 GZ10 | Butane G30 | 225 |
| GEN 120 G2 | R40 GS15 | Naturel G20 | 1,2 | 46,2 | 9,5 | 252 |
| GEN 120 G2 | R40 GS15 | Propane G31 | 1,2 | 10,1 | 252 | |
| GEN 120 G2 | R40 GS15 | Butane G30 | 1,2 | 10,1 | 252 | |
| GEN 120 G2 | R40 GZ20 | Naturel G20 | 252 | |||
| GEN 120 G2 | R40 GZ20 | Propane G31 | 252 | |||
| GEN 120 G2 | R40 GZ20 | Butane G30 | 252 |
| GEN 190 G2 | R40 GS20 | Naturel G20 | 4 | 58 | 10,2 | 249 |
| GEN 190 G2 | R40 GS20 | Propane G31 | 4 | 11,2 | 249 | |
| GEN 190 G2 | R40 GS20 | Butane G30 | 4 | 11,2 | 249 | |
| GEN 190 G2 | R40 GZ20 | Naturel G20 | 249 | |||
| GEN 190 G2 | R40 GZ20 | Propane G31 | 249 | |||
| GEN 190 G2 | R40 GZ20 | Butane G30 | 249 |
| GEN 260 G2 | RS 28/1 | Naturel G20 | 3 | 58,9 | 10,1 | 248 |
| GEN 260 G2 | RS 28/1 | Propane G31 | 3 | 11 | 248 | |
| GEN 260 G2 | RS 28/1 | Butane G30 | 3 | 11 | 248 |
| GEN 320 G2 | RS 28/1 | Naturel G20 | 6 | 72,1 | 9,7 | 204 |
| GEN 320 G2 | RS 28/1 | Propane G31 | 6 | 10,2 | 204 | |
| GEN 320 G2 | RS 28/1 | Butane G30 | 6 | 10,2 | 204 |
| GEN 390 G2 | RS 38/1 | Naturel G20 | 6 | 57,2 | 9,8 | 227 |
| GEN 390 G2 | RS 38/1 | Propane G31 | 6 | 10,5 | 227 | |
| GEN 390 G2 | RS 38/1 | Butane G30 | 6 | 10,5 | 227 | |
| GEN 390 G2 | RS 38/1 | Propane G31 | 6 | 10,5 | 227 |
Les valeurs de ce tableau sont données à titre indicatif. Le débit gaz doit être mesuré au compteur et le réglage du brûleur doit être conforme aux valeurs de la notice brûleur.
8.4 - Réglage de la vitesse du ventilateur
Les générateurs sont livrés pour une pression statique disponible de 10 mm CE (20 mm CE suivant les modèles) à la demande du client.
Le débit d'air peut être vérifié à l'anémomètre ou, avec une approximation convenable, mesurer le ΔT et le comparer aux valeurs du tableau du paragraphe 2.3.
| Valeur ΔT | Indication | Inconvénients | Possibilities de dépréciation |
| Elevé | Débit d'air insuffisant | Surchauffe échangeurDéclenchement de la fonction limiteMauvais rendement thermiqueTempérature de souffrage élevé | Détérioration de l'échangeur de chaleur |
| Bas | Débit d'air excessif | Surcharge du moteur électriqueDéclenchement du relais thermiqueCondensation dans l'échangeurTempérature de souffrage trop BASSE | Détérioration du moteur électriqueDétérioration de l'échangeur de chaleur |
Dans tous les cas, il est impératif de vérifier le sens de rotation du ou des ventilateurs.
Dans le cas d'une alimentation triphasée, le changement de sens de rotation s'effectue en inversant deux fils de phase.
Vérifier que l'intensité absorbée soit inférieure ou égale à l'intensité plaquée du moteur.
Pour contrôler l'intensité absorbée du moteur, procéder comme suit :
- Utiliser un ampèremètre ou une pince ampérométrique.
- Faire fonctionner l'appareil en position été pour éviter tout courant absorbé par le brûleur.
- Lire la valeur et la comparer au tableau du paragraphe 2.3.
Pour faire varier la vitesse de rotation du ventilateur, procéder comme suit :
Modèle GEN 70 G2
- Détendre la courroie en dévissant la vis (2).
- Enlever la courroie.
- Débloquer la flasque mobile de la poulie à l'aide d'une clé (5) mâle pour vis à 6 pans creux.
- Visser ou dévisser la flasque mobile pour obtenir le diamètre désiré.
- Bloquer énergiquement la vis 3 sur le méplat de l'axe.
- Monter et tendre la courroie 5.
Modèle GEN 120 G2 à GEN 390 G2
- Détendre la courroie en dévissant la vis (1).
- Enlever la courroie 5.
- Avec une clé 6 pans mâle, dévisser la vis 3 de la flasque mobile de la poulie 3.
- Visser ou dévisser cette flasque pour obtenir le diamètre souhaité.
- Bloquer énergiquement la vis 3 sur le méplat de l'axe.
- Monter et tendre la courroie 5.


Ne jamais tendre de manière excessive la courroie. Pour cela, vérifier que l'arbre du ventilateur tourne librement. En prenant à la main les deux côtés de la courroie, la flèche devra être de 20 à 30 mm.
Attention
En augmentant le diamètre de la poulie motrice, la vitesse de rotation du ventilateur augmente, ainsi que l'intensité absorbée, et vice versa.
Il est nécessaire de contrôler quelques paramètres fondamentaux pour assurer le bon fonctionnement du générateur. Démarrez l'appareil et :
- Vérifier qu'il n'y a pas de fuite de combustible.
- Vérifier le débit du combustible
- Vérifier que la température des fumées soit conforme aux valeurs du tableau paragraphe 2.3, à plus ou moins 10°C.
- Vérifier que le réglage de l'airstat corresponde au tableau du paragraphe 2.3.
- Vérifier que le disque de l'airstat se stabilise entre 50 et 60 °C sans jamais couper la limite haute.
- Vérifier le ΔT.
- Tourner manuellement le disque de l'airstat pour faire intervenir la limite haute .
- Baisser la température de consigne au thermostat et la rotation du ventilateur.
- Vérifier que l'intensité absorbée ne dépasse pas l'intensité plaquée du moteur.
- Vérifier que le réglage du relais thermique corresponde à l'intensité du moteur.
- Vérifier que le ventilateur tourne 2 à 3 minutes minimum après l'arrêt du brûleur.
- Vérifier le sens de rotation du ventilateur.
10.1 Commutateur chauffage / arrêt / ventilation
Positionné sur le coffret de commande, il sélectionne les modes de fonctionnement :
- chauffage", il permet à l'appareil de fonctionner automatiquement en fonction du thermostat.
- ventilation", il commande le ventilateur seul.
- Positionné sur la position arrêt, il commande l'arrêt du générateur.
10.2 Thermostat d'ambiance
Installé dans le local à chauffer, à environ 1,5 m du sol, le thermostat pilote le brûleur.
10.3 Réglage du brûleur
Positionné sur le brûleur, il déverrouille la sécurité et permet le démarrage sous une impulsion manuelle.
10.4 Règlement limité haute
Le bouton poussoir rouge positionné sur l'airstat a pour fonction de réarmer après une surchauffe.
10.5 Règlement relatif thermique
Positionné à l'intérieur du coffret électrique sur le relais thermique, il verrouille le fonctionnement du générateur en cas de surintensité du moteur.
Attention
Après plusieurs réarmements consécutifs,
il est indispensable de rechercher la cause de la surchauffe.
11.1 Voyant défaut brûleur
Positionné sur le brûleur, le voyant rouge indique un défaut survenu sur le brûleur.
11.2 Voyant défaut générateur
Positionné sur le coffret de commande pour les modèles GEN 120 à GEN 390 G2, le voyant rouge indique :
- l'arrêt du brûleur par coupure de la limite haute
- l'arrêt du générateur par coupure du relais thermique
12.1 Fonctionnement en position chauffage
Le cycle de fonctionnement s'effectue suivant les différentes phases :
- Alimenter électriquement l'appareil.
- Positionner le commutateur sur la position chauffage.
- Positionner le thermostat sur la température désirée.
- Le brûleur est alimenté électriquement et démarre après le temps de pré-ventilation et/ou de réchauffage du fioul.
- Le ventilateur démarre une minute environ après le démarrage du brûleur.
- Lorsque la température ambiante atteint la température de consigne du thermostat, le brûleur s'arrête. La ventilation continue de tourner deux à trois minutes avant de s'arrêter.
NB : À la première mise en route, une odeur peut se dégager de l'appareil par le circuit d'air.
Ce fonctionnement de courte durée n'est pas anormal, il correspond à l'élimination des produits.
12.2 Fonctionnement en position ventilation
- Alimenter électriquement le générateur.
- Positionner le commutateur sur la position ventilation.
- Le ventilateur fonctionne seul et assure un brassage de l'air.
13. Mise en route
Se reporter aux paragraphes 12 et 12.2.
14. Arrêt
Pour arrêter le fonctionnement de l'appareil, opérer exclusivement comme suit :
- Régler le thermostat d'ambiance sur la position "Hors gel" ou positionner le commutateur sur la position "Arrêt".
- Attendre l'arrêt du ventilateur et éventuellement couper l'alimentation électrique par l'interrupteur général.
Attention
Ne jamais arrêter l'appareil par coupure de son alimentation électrique ; l'énergie accumulée dans le générateur provoquerait une surchauffe, voire la détérioration du corps de chauffe.
15. Nettoyage du filtre à air
Il est important de nettoyer périodiquement le filtre à air. Un encrassement important crée une chute de débit et une surchauffe du foyer contrôlée par l'airstat de sécurité. La fréquence de nettoyage dépend de l'ambiance et s'effectue comme suit :
Modèle GEN 70 G2 - GEN 120 G2
- Démonter le panneau de fermeture du filtre.
- Retirer l'élément filtrant
- Nettoyer l'élément filtrant avec un jet d'air, un aspirateur ou simplement en le tapant.
- Pour un nettoyage plus approfondi, utiliser de l'eau tiède avec un détergent neutre.
- Remonter l'objet filtrant.
Modèle GEN 160 G2 à GEN 390 G2
- Démonter le panneau de fermeture des filtres.
- Enlever les éléments filtrants
- Nettoy avec un jet d'air, un aspirateur ou simplement en les tapant.
- Pour un nettoyage plus approfondi, utiliser de l'eau tiède avec un détergent neutre.
- Remonter les éléments filtrants.
16. Nettoyage du brûleur
Cette opération doit être effectuée par un personnel qualifié en se rapportant à la notice du brûleur concerné.
17. Nettoyage de l'échangeur
Le nettoyage de l'échangeur doit être effectué par un personnel qualifié. Nous conseillons un entretien annuel.
Pour cette opération, procéder comme suit :

- Démonter le panneau supérieur (1)
- Démonter la plaque de ramonage (2)
- Démonter le brûleur (9)
- Sur les modèles GEN 70 G2 et GEN 120 G2, déboîter le conduit des fumées du générateur (5).
- Sur les modèles GEN 160 G2 à GEN 390 G2, démonter les panneaux latéraux (7) et la trappe de ramonage (6).
- Retirer les turbulateurs (10).
- Nettoyer l'échangeur (3) et aspirer les dépôts de combustion tombés dans la chambre de combustion (8) en utilisant un aspirateur au travers de la buse brûleur (9).
- Aspirer également au travers du conduit des fumées (5) pour les modèles GEN 70 G2 et GEN 120 G2, ou par les trappes (6) pour les modèles supérieurs au GEN 190 G2.
- Remonter l'ensemble en assurant l'étanchéité des portes de ramonage.
18. Vérification du groupe moteur ventilateur
Contrôler périodiquement la tension de la courroie ainsi que l'alignement des poulies.
Pour assurer un bon fonctionnement, les courroies doivent être correctement tendues.
La flèche doit être de 2 à 3 cm.
Pour la tension des courroies, agir sur les boulons tendeurs.
Les moteurs sont de type étanche sans entretien ni graissage.
Les paliers du ventilateur sont également de type étanche pré-graissés.
19. Analyse des fumées
Le prélèvement des fumées doit être effectué à "2 x D" du générateur pour obtenir une bonne analyse de combustion.

Entretien Airstat Limit
Vérifier le fonctionnement de l'airstat LIMIT manuellement, en tournant le disque jusqu'à 100 °C et vérifier l'arrêt du brûleur. Vérifier aussi le réarmement en appuyant sur le bouton rouge.
21. Garantie
Les appareils sont garantis un an contre tous vices de fabrication, sous réserve d'être installés par des professionnels qualifiés, conformément à la réglementation en vigueur et aux instructions qui figurent sur nos notices de montage, et dans la mesure où ils fonctionnent dans des conditions normales d'utilisation.
La garantie prendra effet à la date de mise en service, au plus tard dans les six mois après la mise à disposition du matériel par S. PLUS.
Nous déclinons toute responsabilité et aucune garantie ne serait applicable en cas d'installation défectueuse, mal adaptée ou non conforme aux normes en vigueur. La garantie se limite à la remise en état ou à l'échange gratuit, après contrôle de notre part, de la (ou des) pièce(s) par une pièce identique ou similaire.
Les frais de main d'œuvre, de déplacement, d'accès au chantier et de transport sont exclus.
Tout remplacement réalisé durant la période de garantie, même si celui-ci nécessite éventuellement une immobilisation du matériel, ne peut en aucun cas prolonger la durée de cette garantie.
Aucun dommage et intérêt ne pourra être réclamé pour préjudice indirect, commercial ou autre.
Ne peuvent être pris en considération et couverts par notre garantie les dommages incombant :
- À des phénomènes extérieurs. - À des négligences de l'utilisateur. - Au non-respect des consignes stipulées dans nos documents, à une détérioration due à une mauvaise manutention au cours du transport ou à une fausse manœuvre. - À une utilisation d'accessoires autres que ceux d'origine. - À un défaut de surveillance et d'entretien.
Que ce soit à l'égard de l'acheteur ou de toute autre personne, notre société ne pourra en aucun cas être tenue pour responsable des dommages corporels ou matériels de quelque nature qu'ils soient, qui pourraient être provoqués par nos produits ou qui seraient la conséquence directe ou indirecte de l'utilisation desdits produits.
Anomalie
L'APPAREIL NE FONCTIONNE PAS, NI EN VENTILATION NI EN CHAUFFAGE.
Cause
Absence de tension
Solution
Contrôler le raccordement électrique
Contrôler les fusibles de ligne et du circuit de commande
L'APPAREIL NE FONCTIONNE PAS EN ÉTÉ
Absence de tension au moteur de ventilation
Contrôler le raccordement électrique
Contrôler les fusibles de ligne et du circuit de commande
Contrôler le déclenchement du relais (uniquement pour les tensions triphasées)
L'APPAREIL NE FONCTIONNE PAS EN HIVER
Absence de tension au brûleur
Contrôler le raccordement électrique
Contrôler les fusibles de ligne et du circuit de commande
Contrôler le déclenchement du relais (seulement pour les tensions triphasées)
Contrôler la fermeture du contact du thermostat d'ambiance
Contrôler le déclenchement de l'airstat LIMIT
LA FLAMME DU BRÛLEUR GAZ APPARAÎT, MAIS S'ÉTEINT APRÈS QUELQUES SECONDES.
Raccordement électrique non correct (phase et neutre inversés).
Contrôler la polarité Phase / Neutre
LA FLAMME DU BRÛLEUR FIOUL APPARAÎT, MAIS S'ÉTEINT APRÈS QUELQUES SECONDES
Brûleur défectueux
Contrôler le réglage du brûleur.
Remplacer la boîte de contrôle
Contrôler ou remplacer la sonde d'ionisation
Raccordement électrique non correct (phase et neutre inversés).
Contrôler la polarité phase / neutre.
Brûleur défectueux
Contrôler le réglage du brûleur.
Remplacer la boîte de contrôle
Contrôler ou remplacer la cellule photoélectrique.
Anomalie
Le brûleur s'arrête de manière anormale et régulière.










Solution
Contrer l'ouverture des ailettes du diffuseur
Contrer l'absence d'obturation de la grille de reprise
Contrôler le moteur
Contrôler les pertes de charge du réseau aéraulique
Contrôler la puissance du brûleur. Contrôler que l'appareil ne soit pas dans un local en dépression.
Contrôler que le thermostat d'ambiance ne soit pas dans un flux d'air chaud.
Contrôler l'ouverture des ailettes du diffuseur. Contrôler l'absence d'obturation de la grille de reprise.
Contrer l'inclinaison des ailettes de soufflage du diffuseur pour éviter toute circulation. Contrôler la température de reprise.
Contrôler l'encrassement des aubes du ventilateur
Contrôler le moteur électrique
Contrôler l'état et la tension des courroies
Vérifier le relais thermique
Contrôler la puissance du brûleur
Contrôler la présence du diffuseur d'air
Contrôler la tension électrique
Contrôler la température d'aspiration
Contrôler le débit d'air
Contrôler la puissance du brûleur
Contrôler le tarage de l'airstat. Remplacer l'airstat.
Anomalie
Le ventilateur ne s'arrête pas 4 minutes après l'arrêt du brûleur.
Cause
Température ambiante trop élevée
Groupe moto-ventilateur à vérifier ou remplacer
Airlat FAN - LIMIT à vérifier ou remplacer
LE VENTILATEUR FONCTIONNE DE MANIÈRE INTERMITTENTE
Le ventilateur fonctionne de manière intermittente. Vérifier ou remplacer le limiteur thermique Airslat FAN.
Puissance thermique insuffisante
LE VENTILATEUR FONCTIONNE INOPINÉMENT
Recirculation d'air chaud
LE GÉNÉRATEUR S'ENCRASSE ANORMALEMENT
Mauvais réglage du brûleur.
CONDENSATION DUE À LA COMBUSTION
Cheminée encrassée
DIFFICULTÉ À ATTEINDRE LA TEMPÉRATURE DE CONFORT
Puissance brûleur insuffisante
Échange thermique insuffisant dû à l'encrassement de l'échangeur.
Puissance au brûleur trop faible
Thermostat d'ambiance mal installé
Solution
Contrôler la température de reprise
Contrôler les apports d'air
Contrôler le tarage FAN
Contrôler le tarage du FAN sur la position AUTO.
Remplacer l'airstat
Vérifier le moteur
Vérifier le condensateur (modèle monophasé)
Vérifier les courroies
Vérifier le relais thermique.
Contrôler le tarage du FAN
Remplacer l'airstat
Contrôler le tarage du FAN
Remplacer l'airstat
Contrôler la puissance du brûleur
Contrôler l'inclinaison des ailettes de soufflage du diffuseur pour éviter la recirculation.
Contrôler la température de reprise.
Contrôler la puissance du brûleur et procéder au nettoyage.
Nettoyer le conduit de cheminée.
Contrôler la puissance du brûleur
Nettoyer l'échangeur de chaleur
Contrôler la puissance du brûleur
Contrôler que le thermostat ne soit pas dans le flux d'air chaud.
Notice Facile