M24S - Chaudière gaz AR THERM - Notice d'utilisation et mode d'emploi gratuit
Retrouvez gratuitement la notice de l'appareil M24S AR THERM au format PDF.
| Type d'appareil | Chaudière murale à gaz |
| Modèles | M21S, M24S, M21, M24, M21SEL, M24SEL, M21EL, M24EL |
| Fonction | Chauffage seul ou chauffage + eau chaude |
| Allumage | Piezo ou électronique |
| Veilleuse | Avec ou sans veilleuse selon modèle |
| Catégorie gaz | II2E+3+ |
| Type de raccordement | Type B11BS |
| Installation | Murale |
| Usage | Résidentiel |
| Alimentation | Gaz naturel ou propane (non précisé) |
| Contrôle de sécurité | Non précisé |
| Entretien | Réglage et maintenance recommandés |
| Dimensions | Non précisées |
| Poids | Non précisé |
| Puissance | Non précisée |
| Pression de fonctionnement | Non précisée |
FOIRE AUX QUESTIONS - M24S AR THERM
Questions des utilisateurs sur M24S AR THERM
0 question sur cet appareil. Repondez a celles que vous connaissez ou posez la votre.
Poser une nouvelle question sur cet appareil
Téléchargez la notice de votre Chaudière gaz au format PDF gratuitement ! Retrouvez votre notice M24S - AR THERM et reprennez votre appareil électronique en main. Sur cette page sont publiés tous les documents nécessaires à l'utilisation de votre appareil M24S de la marque AR THERM.
MODE D'EMPLOI M24S AR THERM
M21S - M24S avec veilleuse Mixte : CHAUFFAGE + eau chaude Allumage par piezo
M21 - M24 avec veilleuse Pour chauffage seul Allumage par piezo
M21SEL - M24SEL sans veilleuse Mixte : chauffage + eau chaude Allumage électronique
M21EL - M24EL sans veilleuse Pour chauffage seul Allumage électronique
Instructions destinees a l'installateur
L'installation et l'entretien de l'appareil doivent être effectués par un professionnel qualifié, conformément aux textes réglementaires et règles de l'art en vigueur, notamment:
1) Conditions reglementaires d'installation et d'entretien
L'installation et l'entretien de l'appareil doivent être effectués par un professionnel qualifié conformément aux textes réglementaires et règles de l'art en vigueur, notamment:
- Arrêté du 2 août 1977
Règles Techniques et de Sécurité applicables aux installations de gaz combustible et d'hydrocarbures liquifiés situées à l'intérieur des bâtiments d'habitation et de leur dépendance.
- Norme DTU P 45-204 Installations de gaz (anciennement DTU n° 61-1 - Installations de gaz - Avril 1982 + additif n° 1 Juillet 1984).
- Règlement Sanitaire Départemental
Pour les appareils raccordés au réseau électrique:
- Norme NF C 15-100 - Installations électriques à basse tension - Règles.
1. Description generale
Les chaudières Multigaz produites dans les versions chauffage seul et double service (chauffage plus production d'eau sanitaire) ont été étudiées pour satisfaire aux exigences domestiques.
Les échangeurs de chaleur sont réalisés en cuivre, et la carcasse est en acier.
Les dimensions, et la disposition des tubes de fumées permettent la réception maximale de la chaleur des fumées et le maintien du rendement thermique à un haut niveau.
La production d'eau chaude à usage sanitaire s'obtient par l'utilisation d'un serpentin en cuivre (situé à l'intérieur de la chaudière), d'un diamètre suffisant pour empêcher les dépôts de calcaire (cette solution permet d'obtenir le plus haut niveau d'échange thermique, avec une production instantanée et continue d'eau sanitaire).
La carrosserie est en acier embouti et vernis.
Un panneau complète l'esthétique du générateur. Ce panneau est muni d'un orifice permettant l'accès au robinet d'arrivée d'eau de l'appareil.
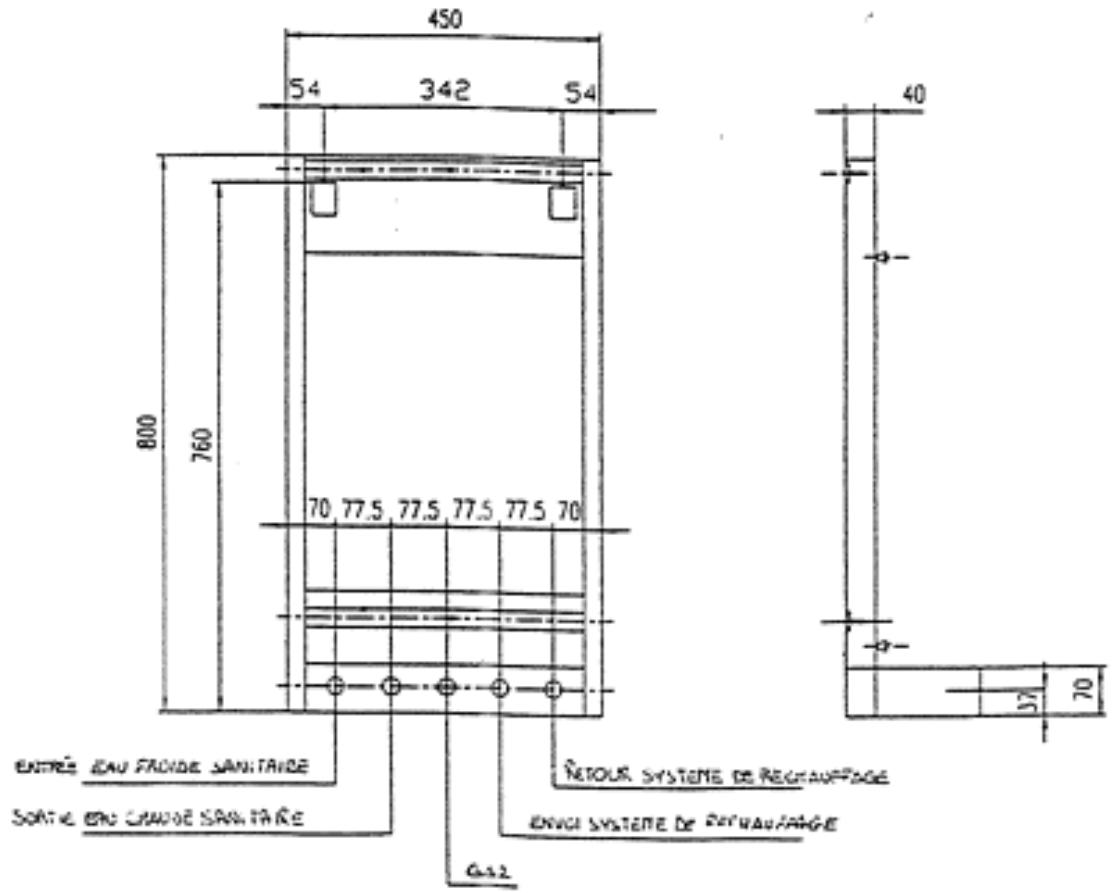
Les raccordements aux réseaux d'eau et de gaz situés à l'arrière de l'appareil, en position horizontale, permettent de la brancher directement à l'aide d'un tube en cuivre ou de tubes flexibles métalliques.
L'identification des raccordements est facilitée par les indications portées sur les raccords des tubes.
2. Characteristique technique
La puissance thermique nette est de 23,9kW, avec ou sans production d'eau sanitaire.
Les chaudières peuvent être réglées d'origine pour être alimentées, soit en gaz naturel, soit en GPL (G30/G31) ; elles peuvent être, par la suite, transformées pour être alimentées avec d'autres nature.

Légende:
1) Coupe-tirage 2) Echangeur d'eau chaude à usage sanitaire 3) Corps de la chaudière 4) Tubalaterinox 5) Pressostat pour priorite sanitaire 6)Rampbebruleur 7) Robinet de reglage du debit d'eau sanitaire 8) Raccords pour nettoyage du serpentin 9) Arrivee d'cau froide diam. 1/2 10 Sortie eau chaude a usage sanitaire diam. 1/2 11) Arrivé du gaz diam. 1/2 12) Echappement de la valve de securite 13) Départchauffage diam. 3 / 4^ 14) Retour chauffage diam. 3/4 15) Bloque gaz 16) Veilicuse 17) Soupape de securite (Pression circuit enu) 18) Branchement pour manometre 19) Robinet de vidange 20) Robinet de remplissage 21) Circulatour vinesse variables 22) Vanne melangeure (option) 23) Vase d'expansion 24) Purgeur d'air.
4. CHARACTERISTIQUES tECHNIQUES
GENERALITES: DEBIT - PUISSANCE - POIDS
| Modèle | Débit Thermique kW | Puisance thermique kW | Production d'eau * l/h ΔT 30 | Capacité chaudière - vase d'expans. | Poids kg |
| M24... | 26,5 | 23,9 | 650 | 20 l - 8 l. | 60 |
*Seulement pour les modèles... S.... - Pression nominale gaz: G20/G25 20/25mbar, G30/G31 28/37mbar - Pression maximale d'alimentation en eau de la chaudière: 2,5bar - Pression maximale de l'eau chaude à usage sanitaire: 6bar Hors service. - Température maxi de l'eau chaude 85°C - Température de sécurité: 95°C - Tension d'alimentation: 220...230V
INJECTEURS - DEBIT - PRESSION
| Modèle | Gaz naturel G20/G25 20/25mbar | Butane-Propane G30/g31 28/37mbar | ||||
| Veilleuse n° | Diam. Injecteurs en centièmes de mm | Veilleuse n° | Diam. Injecteurs en centièmes mm | |||
| * | Brûl. concentr. | Brûl. later. | Brûl. concentr. | Brûl. later. | ||
| M 24... | 27 | 205 | 145 | 22 | 140 | 110 |
- Non prévue pour les modèles avec allumage électronique.
Pour tout ce qui n'est pas inclus dans cette notice, nous vous prions de vous reporter aux documents spécifiques et/ou de nous questionner directement.
N. B.: pour mener à bien sa politique d'amélioration, le fabricant se réserve le droit de modifier ses appareils sans informer l'utilisateur
5. Installation
ATTENTION: cet appareil ne doit être installé que dans un local convenablement ventilé, conformément aux prescriptions de la norme en vigueur.
Le débit d'air nécessaire à la combustion est 2m³/h par kW de débit thermique indiqué dans la plaque signalétique.
Les appareils de la Société AR THERM sont très faciles à installer. Leur longévité, leur sécurité de fonctionnement, la rapidité et la facilité de leur entretien sont dues au soin apporté tout au long de leur fabrication.
Pour faciliter leur installation, notre Société met à disposition des ses clients un guide de montage, à l'aide duquel on peut déterminer les scellés et le raccordement en eau, à condition que les mesures de branchement et d'encombrement soient les mêmes du générateur.
Si la chaudière est installée au-dessus d'un appareil dégageant de la chaleur, il est conseillé d'insérer un clapet anti-retour dans le circuit de chauffage. Cela pour éviter tout phénomène de circulation naturelle qui, de toute façon, ne se vérifie pas quand la chaudière est installée au-dessus d'un plan générateur de corps chauffants.
L'installateur devra se conformer aux instructions enumeratedes ci-après, et aux règles en vigueur.

Avertissements:
a) Si la pression du réseau hydraulique est supérieure à 6bar, prévoir l'installation d'un réducteur de pression. b) Prévoir, en cas d'absence, l'installation d'un robinet de coupure du gaz, d'un modèle agréé. c) S'assurer que la tension du réseau est de 230V. ac. L'appareil doit être mis à la terre. Il est recommandé d'installer un interrupteur avec fusibles. Il est obligatoire de relier le neutre (fil bleu) et la borne neutre (^2) et la phase (fil marron), à la borne phase du cadre (^3). d) S'assurer que le câble électrique n'est pas en contact avec les canalisations de l'eau chaude. e) Vérifier le branchement des dispositifs d'aspiration de l'air de combustion et d'évacuation des fumées, en particulier l'étanchéité des raccordements avec les accessoires; le diamètre de la base d'évacuation des fumées est de 140mm.
NOUS VOUS CONSEILLONS L'INSTALLATION D'UN THERMOSTAT D'AMBIANCE
RESEAU Hydraulique
Toujours s'assurer du remplissage en eau de l'installation. Dans le cas contraire, procéder comme expliqué ci-dessous:
a) Ouvrir le robinet de remplissage (20) b) Purger l'air de la chaudière à l'aide du purgeur (24) et des ouvertures situés à la partie inférieure du générateur c) Après quelques minutes, l'aiguille blanche du manomètre sur le bandeau commence à monter, fermer le robinet quand l'aiguille atteint 1,5bar.
N. B. La pression ne doit jamais être supérieure à 1,5bar.
Reseaudugaz
Après s'être assuré que la nature du gaz de réseau est identique à celle indiquée sur la plaque signalétique (les appareils sont réglés en usine pour fonctionner avec les gaz naturels G20/G25 20/25 mbar), procéder au branchement du gaz au moyen de tubes métalliques flexibles, en se conformant aux prescriptions réglementaires.
Si le gaz mis à disposition est un gaz GPL butane (28mbar) ou propane (37mbar), il faut procéder au changement de gaz (voir paragraphe 7 page 8: "Transformations pour fonctionnement en gaz butane/propane).
Chaudieres avec allumage electronique (FIG. 2)
a) Ouvrir le robinet du gaz b) Le double interrupteur doit se couvrir dans la position "OUVERT" ou "I" (allumage) Voir les indications reportées sur le tableau de commande; régler le thermostat dans la position désirée; dans cette condition l'allumage s'effectue automatiquement. c) Si le voyant rouge (situé sur le bouton de déverrouillage du boîtier programmeur et de contrôle) s'allume, attendre 1 minute environ et appuyer à nouveau sur le bouton d'allumage pour renouveler le cycle d'allumage. d) Si le système se bloque à nouveau, contrôler le branchement électrique, s'assurer en particulier que la polarité est respectée sur la borne 3, comme précisé dans le paragraphe des avertissements (page 7). Si le défaut persiste, appeler le Service après-vente.
Allumage de la veilleuse
1) Ouvrir le robinet du gaz et positionner le double interrupteur situé sur le tableau, sur la position "OUVERT" ou "T" (allumage) 2) Pousser la manette (appareils avec bloc "Honeywell", voir fig. 1) ou la tourner et la pousser sur les appareils avec bloc "Sit", voir fig. 1, dans la position "allumage veilleuse" 3) Pousser le bouton d'allumage avec le repère 4) Maintenir poussée la manette, une fois la veilleuse allumée, pendant 1 minute environ et la relâcher 5) La veilleuse doit rester allumée après avoir relâché la manette ; dans le cas contraire, répéter l'opération 60 secondes plus tard.
Note : un dispositif de sécurité empêche la répetition de l'opération d'allumage tant que le thermocouple n'est pas suffisamment refroidi.
Il faut attendre 1 minute au moins avant de rallumer la veilleuse.
Allumage du bruleur principal
Après l'allumage de la veilleuse, tourner la manette dans la position "allumage brûleur principal (bloc "Sit")"; pour les modèles avec bloc "Honeywell" il n'est pas nécessaire de tourner la manette, étant donné que lors de l'allumage de la veilleuse, le fait de relacher la manette détermine la position "OUVERT".
Ensuite, régler le thermostat d'ambiance à la température désirée.
Instructions destinees AL installateur et a l'utilisateur
Fig. 2: Chaudière avec allumage électronique TYPE SIT 830 TANDEM
TABLEAU DE COMMANDE
ALLUMAGE ELECTRONIQUE

Instructions destinees AL installateur et a l'utilisateur
TABLEEAUDCOMMANDE
ALLUMAGE VEILLEUSE

9. Periode ete-hiver
La commutation s'effectue avec l'interrupteur positionné sur le tableau de commande :
- été = interrupteur P (soleil) - hiver ≡ interrupteur (neige)
La pompe de circulation fonctionne quand la température atteint 60 - 65°C et que l'interrupteur est sur le repère (neige - hiver). Dans un premier temps, la pompe peut donner l'impression de ne pas fonctionner correctement : cela est du à la présence d'air dans l'installation. Dans ce cas, il faut la purger en agissant sur le purgeur (24).
Thermostat de sécurité à rearmement naturel pour l'eau
Il s'agit d'un dispositif destiné à améliorer la sécurité de la chaudière. Il intervient automatiquement quand la température dépasse 95°C. Pour rallumer la chaudière, dévisser le petit couvercle de protection qui se trouve sur le bandeau électrique ; pousser à fond le bouton jusqu'à perception d'un déclic. Remplacer le couvercle.
Instructions destinees a l'installateur et a l'utilisateur
THERMOSTAT DE SECURITE A REARMEMENT MANUEL POUR LE CONTROLE DE L'EVACUATION DES FUMEES.
Il s'agit d'un dispositif qui intervient en cas d'anomalie dans l'évacuation des fumées. Pour rallumer la chaudière, dévisser le petit couvercle de protection situé sur le bandeau électrique ; pousser à fond le bouton jusqu'à perception d'un déclic. Remplacer le couvercle.
IL EST ABSOLUMENT INTERDIT DE DECONNECTER OUD'ENDOMMAGER CE DISPOSITIF
En cas de nécessité, utiliser exclusivement des pièces de rechange fournies par le fabricant.
ATTENTION: en cas de répétition de cet incident, faire appel à un technicien qualifié.
Type allumage electronique
1) Positionner l'interrupteur dans la position "Fermé" "OFF". De cette façon le générateur est fermé. 2)Ferner LE ROBINET GENERAL DU GAZ (ARRIVEE DE GAZ)
Type allumage avec veilleuse
1) Positionner l'interrupteur dans la position "O" et tourner le bouton de l'électrovanne gaz vers la droite, en le maintainant dans cette position pendant quelques secondes. En le relachant, il returnera automatiquement dans la position initiale (bloc "Honeywell"), ou tourner la manette dans la position fermé (bloc "Sit"). On obtendra l'extinction totale du générateur. 2)Ferner LE ROBINET GENERAL DU GAZ (ARRIVEE DE GAZ).
Entretien
La conception technique de la chaudière assure un fonctionnement correct pour une longue période ; de ce fait, elle n'exige pas d'entretien particulier.
Pour lui conserver longtemps le meilleur rendement, nous vous conseillons de faire effectuer un contrôle général de l'appareil, de la cheminée d'évacuation, du thermostat de sécurité contre le débordement des fumées, au moins une fois par an.
Une fois tous les trois ans, il faut faire effectuer un nettoyage général, y compris chimiquement, le tube en serpentin qui assure la production d'eau chaude à usage sanitaire.
Un contrôle spécifique de la cheminée doit être effectué tous les ans
Notice Facile