PAG7530E-F - Table de cuisson PROGRESS - Notice d'utilisation et mode d'emploi gratuit
Retrouvez gratuitement la notice de l'appareil PAG7530E-F PROGRESS au format PDF.
| Type d'appareil | Table de cuisson |
| Nombre de foyers | 4 |
| Type de foyers | Gaz / Électrique / Induction (selon modèle) |
| Commande | Manuelle / Tactile (selon modèle) |
| Matériau de la surface | Verre trempé / Acier inoxydable |
| Dimensions (L x P) | Non précisé |
| Puissance maximale | Non précisé |
| Sécurité | Arrêt automatique, Détection de casserole |
| Type d'installation | Encastrable |
| Alimentation | Électrique / Gaz |
| Fonctions spéciales | Minuterie, Booster, Verrouillage enfant |
| Couleur | Non précisé |
| Accessoires inclus | Non précisé |
| Garantie | Non précisé |
| Normes | CE, RoHS |
FOIRE AUX QUESTIONS - PAG7530E-F PROGRESS
Questions des utilisateurs sur PAG7530E-F PROGRESS
0 question sur cet appareil. Repondez a celles que vous connaissez ou posez la votre.
Poser une nouvelle question sur cet appareil
Téléchargez la notice de votre Table de cuisson au format PDF gratuitement ! Retrouvez votre notice PAG7530E-F - PROGRESS et reprennez votre appareil électronique en main. Sur cette page sont publiés tous les documents nécessaires à l'utilisation de votre appareil PAG7530E-F de la marque PROGRESS.
MODE D'EMPLOI PAG7530E-F PROGRESS
Avertissements important 3
Utilisation de votre table de cuisson 6
Conseils d'utilisation 8
Entretien et nettoyage 9
Caracteristiques techniques 11
Installation 12
Adaptation des brûleurs au gaz utilisé 16
Encastrement 18
Possibilities d'encastrement 20
Plaque signalétique 21
Comment lorevre notice d'utilisation?
Les symboles suivants vous guideront tout au long de la lecture de votre notice:

Instructions de sécurité

Descriptions d'opérations

Conseils et recommendations

Informations sur l'environnement

Cet apparéil est conforme aux Directives Communitaires CEE suivantes :
2006/95 (Basse Tension)
90/396 (Appareil Gaz)
89/336 (Compatibilité Electromagnétique) ;
93/68 (Directives Générales) et modifications successives.
FABRICANT:
ELECTROLUX HOME PRODUCTS ITALY S.p.A.
VialeBologna,298
47100 FORLl (Italie)
Ces instructions sont valables uniquement pour les pays dont les symboles d'identification figurent sur la couverture de cette notice d'utilisation et sur l'appareil lui-même.
Conservez cette notice d'utilisation avec votre apparéil. Si l' apparéil devait être vendu ou cédé à une autre personne, assurez-vous que la notice d'utilisation l'accompagne. Le nouvel utilisateur pourrait alors être informé du fonctionnement de celui-ci et des averissements s'y rapportant. Ces averissements ont été rédigés pour votre sécurité et celle d'autrui.
François

Avertissements importants
Cet apparéil doit être installé par une personne qualifiée et selon les normes en vigueur.
Veuillez maintainant dire attentivement cette notice pour une utilisation optimale de votre apparéil.
Nous déclinons toute responsabilité en cas de dommages ou d'accident provoqués par l'appareil du fait du non-respect de ces averissements.
Utilisation
- Cet apparéil a été unconqu pour être utilisé par des adultes. Veillez à ce que les enfants n'y touchent pas et ne l'utilisent pas comme un jouet.
- A la réception de l'appareil, déballez-le ou faites-le déballer immédiatement. Vérifiez son aspect général. Faites les éventuelles réserves par écrit sur le bon de livraison ou sur le bon d'enlèvement dont vous garderez un exemplaire.
- Voiture apparéil est destiné à un usage domestique normal. Ne l'utilise pas à des fins commerciales ou industrielles ou pour d'autres buts que celui pour lequel il a été consu.
- Ne modifies pas ou n'essayez pas de modifier les caractéristiques de cet apparéil. Cela représentait un danger pour vous.
- Avant d'utiliser votre apparéil, assurez-vous qu'il a été correctement raccordé pour le type de gaz distribué.
- Cet apparéil n'est pas destiné à être utilisé par des enfants ou des personnes dont les capacities physiques, sensorielles ou mentales, ou le manque d'expérience et de connaissance les empêchent d'utiliser l' apparéil sans risque lorsqu'ils sont sans surveillance ou en l'absence d'instruction d'une personne responsable qui puisse leur assurer une'utilisation de l' apparéil sans danger.
- Tenez les enfants à distancependant le fonctionnement : la table de cuisson et les
récipiens s'échauffent et peuvent rester chauds longtemps après l'arrêt de l'appareil.
- Baissez ou éteignez toujours la flamme d'un brûleur avant de retarder un récipient.
- N'utilisez jamais votre table à vide (sans récipient dessus)
Assurez-vous que les manettes sont toujours en position arrêt « ● » lorsque l'appareil n'est pas utilisé. - N'utilise pas de recipients instables ou déformés : ils peuvent se renverser et provoquer un accident.
- Les réparations ne doivent être effectuées que par un service après vente qualifié. Une réparation non conforme peut être la cause de graves dommages.
- Ne conserve pas à proximé de l'appareil des produits inflammables sensibles aux températures (exemples: produits de nettoyage, bombe aérosols, ..)
Assurez-vous que les enfants ne manipulent pas commandes. - Ne laïsez rien sur la table de cuisson. Une mise en fonctionnement accidentelle pourrait provoquer un incendie.
- Si vous utilisez un apparéil électrique à proximé de votre table de cuisson, veillez a ce que le cable d'alimentation de cet apparéil électrique ne soit pas en contact avec la surface chaude de la table.
Surveillance attentivement la cuisson lors de
4 electrolux
friture dans l'huile ou la graisse.
- Evitez tout courant d'air. Si un brûleur ne désigne pas une flamme régulière, nettoyez-le soigneusement. Si l'inconveniient subsiste, faites appel au service après-vente.
- Si la table est équipée d'un couvercle, nettoyez-le soigneusement et ne le fermez qu'après que les brûleurs ont refroidi.
- Nettoyez l'appareil après chaque utilisation : vous prolongerez ainsi sa durée de vie et vous éviterez un mauvais fonctionnement des brûleurs et des bougies d'allumage.
- Avant tout nettoyage ou intervention technique, assurez-vous que l'appareil est débranché électricquement et complètement refroidi.
- L'appareil ne peut être nettoyé à la vapeur chaude ni avec apparéil à jet de vapeur chaude.
L'utilisation d'un apparéil de cuisson au gaz conduit à la production de chaleur et d'humidité dans la piece où il est installé. Veillez à assurer une bonne aération de la cuisine : maintenez ouverts les orifices d'aération naturelle ou installez un dispositif d'aération mécanique. - Une utilisation intensive et prolongée de l'appareil peut nécessiter une aération supplémentaire en ouvrant la fenêtre, ou une aération plus efficace, par exemple en augmentant la puissance de la ventilation mécanique si elle existe.
- Cet apparéil n'est pas raccordé à un dispositif d'évacuation des produits de combustion. Il doit être installé et raccordé conformément aux règles d'installation en vigueur. Une attention particulière sera accordée aux dispositions applicables en matière de ventilation.
Veilz a ne rien laisser sur la table pendant
et après l'utilisation des zone de cuisson (torchons, feuilles d'aluminium, plastique, etc.).
- Changez le tuyau d'arrivée du gaz un peu avant l'expiration de la date de vieillissement indiquée sur celui-ci.
- N'utilisez jamais de bouteille de propagatedans cette cuisine ou autre local fermé.
- N'utilise que les accessoires livrés avec votre apparéil (un diffuseur de chaleur, par exemple, endommagerait la table de cuisson).
Installation
- Les opérations d'installation et de branchement doivent être effectuées par un personnel qualifié et suivant les normes en vigueur.
- Si l'installation électrique de votre habitation nécessite une modification pour le branchement de votre apparéil, faites appel à un électricien qualifié.
Assurez-vous que l'appareil est installé dans une piece correctement aérée : une mauvaise ventilation peut entraîner un manque d'oxygène. Consultez un installerateur qualifié ou adressez-vous à la compétie de distribution du gaz de votre région. - Cette table est consque pour fonctionner en 230 V monophasé. Un évientuel branchement polyphasé sans neutre (400 V) peut provoquer la destruction des foyers.
I'environnement
Tous les matéiaux marqués par le symbole sont recyclables. Déposez-les dans une déchetterie prévue à cet effet (renseignez-vous auprès des services de votre commune) pour qu'ils puisent être récapucérés et recyclés.
En cas d'anomalie de fonctionnement, le vendeur de votre apparéil est le premier habilité à intervenir. A défaut (déméagement de votre part, fermeture du magasin où vous avez effectué l'achat ...), veuillez consulter le Centre Contact Consommateurs qui vous communiquera alors l'adresse d'un Service Àpès Vente.
En cas d'intervention sur l'appareil, exigez du service après vente les pièces de rechange certifiées Constructeur.
Le symbole sur le produit ou son emballage indique que ce produit ne peut etre traite comme déchet menager. Il doit etre remis au point de collecte dédié à cet effet (collecte et recyclage du matériel électrique et electronique).En procedant à la miseau rebut de l'appareil dans les regles de l'art, nous préservons I'environnement et notre sécurité, s'assurant ainsi que le déchets seronttraités dans des conditions optimum. Pour obtenir plus de détails sur le recyclage de ce produit, veuillez prendre contact avec les services de votre commune ou le magasin où vous avez effectué I'achat.
Les commandes
Les manettes qui commandent les brûleurs sont dotées de 3 positions principales d'utilisation :

= position arrêt

= débit maximum

= débit minimum
Chaque brûlée est contrôle par un robinet à verrouillage de sécurité, il est impossible de tourner la manette sans la pousser.

Pour allumer un brûleur
- Appuyez sur la commande du brûleur besoini, et tournez-la vers la gauche jusqu'au repère de début maximum.
Maintenez la commande enfoncée, pendant 5 secondes environ après l' apparition de la flamme pour activer la sécurité thermocouple.
En cas de coupure d'électricité, vous pouvez utiliser votre table de cuisson sans avoir recours au système automatique. Pour cela, présente une flamme au brûleur.
- Placez le écipient sur le brûleur.
- Réglez le début selon les nécessités de votre préparation, en vous assurant que la flamme ne déborde pas du fond.

Pour eteindre les bruleurs
Tournez la commande dans le sens des aiguilles d'une montre jusqu'à la butée, sur la position arrêt (●).

Lorsque vous faites des fritures, surveiliez attentivement la cuisson car l'huile ou la graisse pourrait facilement s'enflammer par suite d'une surchauffe.

A-Chapeau du bruleur
B - Coronne du brûleur
C - Bougie d'allumage
D - Sécurité thermocouple

Fig. 1
Ne maintenez pas la manette de commande pressée plus de 15 secondes.

Si le brûleur ne s'allume pas au bout de 15 secondes, relâchéz la manette et positionnez-la sur la position "arrêt". Attendez au moins 1 minute avant d'essayer une nouvelle fois d'allumer le brûleur.

Si le brûleur s'éteint accidentellement, tournez la manette de commande sur la position "arrêt" et attendez au moins 1 minute avant d'essayer une nouvelle fois d'allumer le brûleur.
Avant la première utilisation de votre apparéil

Avant la première utilisation de votre apparéil, retirez toutes les étiquettes publicitaires et le autocollants (sauf la plaque signaletique) qui pourrait se couver sur le plan de cuisson.
- Ne placez un récipient sur un brûleur qu'après avoir allumé celui-ci.
N'utilisez que des recipients creux.
Assurez-vous que la flamme ne déborde pas du fond du écipient.
Lors de l'utilisation de la table de cuisson, il est imperatif de respecter les diamêtres indiqués puor chaque zone de cuisson, afin d'éviter la détérioration des manettes de commande.
Surveillez attentivement la cuisson lorsque vous faites des fritures : l'huile ou laGRAisse peuvent facilement s'enflammer par suite d'une surchauffe. - Si vous utilisez une casserole dont le diamètre est plus petit que celui qui est recommandé, la flamme va s'étendre audela de la base inférieure du reçipient, causant une surchauffe au niveau de la poignée du récipient.
-
Si la flamme d'un brûleur s'éteint accidentellement, ramenez la manette correspondante sur la position arrêt et attendez une minute avant de rallumer le brûleur.
-
Les surfaces en acier inoxydable peuvent ternir s'ils sont excessivelyment chauffés. La cuisson prolongée avec des cassetoles en faience ou des plats en fonte n'est pas recommandée. De plus, n'utilise pas de papier d'aluminium pour recouvrir les recipients pendant leur utilisation.
Veillez à ce que les récipients ne débordent pas du plan de cuisson et à centerer vos récipients sur les zones de cuisson. - N'utilise pas de recipients instables ou déformés: ils peuvent se renverser et provoquer un accident.
- Les reçipients ne doivent pas entraire en contact avec les commandes.
L'utilisation continue et intensive de votre table de cuisson demande une aération supplémentaire: ouvre une fenetre ou augmentez la puissance d'aspiration mecanique (si existante).
Afin d'obtenir un rendement maximum de chaque brûleur, utilisez des écipients adaptés au diamètre des brûleurs.
| Brûleur | Diamètre minimum | Diamètre maximum |
| Brûleur rapide | 180 mm | 260 mm |
| Brûleur triple couronne | 180 mm | 260 mm |
| Brûleur semi - rapide avant | 120 mm | 220 mm |
| arrière | 120 mm | 180 mm |
| Brûleur auxiliaire | 80 mm | 160 mm |

Avant de procéder au nettoyage : débranchez électriquement l'appareil, assurez-vous que toutes les manettes sont sur la position arrêt « » et attendez que l'appareil soit refroidi.
Les brûleurs
- Lavez les chapeaux de brûleurs avec de l'eau chaude et un détergent doux, enPNANT SOIN d'enlever toute incrustation. Si nécessaire, vous pouvez utiliser une petite brosse en acier.
- Gardez les couronnées des brûleurs en parfait état de propre: leur encrassement peut cause des difficultés d'allumage.
- Si vous avez démonté les brûleurs pour les nettoyer, veillez à remettre correctement en place les couronnées et chapeaux de brûleurs parfaitement secs.
Les grilles
- Les grilles émailées peuvent être nettoyées à l'aide d'une solution d'eau chaude et de savon ou détergent doux. Utilisez si besoin un produit légersement abrasif.
- Àprous le nettoyage, veillez à ce que les grilles soient correctement positionnées.
Pour que les brûleurs fonctionnent correctement, placez les grilles comme indiqué sur la figure ci-contre: les fils de la grille doivent être centrés par rapport aux brûleurs.

Veiliez à ne pas endommager la table de cuisson lors de la mise en place des grilles.
Les manettes
Utilisez une éponge très légèrement imbibée d'eau savonneuse. Rincez et séchéz soigneusement.
Pour un meilleur nettoyage du plan de cuisson, les manettes sont amovibles.
Assurez-vous que la manette soit sur la position arrêt « ● » .



Retirez la manette.
- Àprous le nettoyage, remettez en place la manette dans sa position initiale.

Lors du nettoyage, enaucun cas du liquide ou du produit d'entretien ne doit pénetrer a l'intérieur du caisson ou se situent le les éléments electriques.
Le dessus de la table de cuisson
- Passez une éponge légèrement imbibée d'eau tiège (et, si nécessaire, de détergent doux) après chaque utilisation.
- Evitez tout écoullement dans les orifices de la table.
Utilisez, si nécessaire, un racloir spécial et des produits spécifiques vendus dans le commerce. - N'utilise pas d'objet tranchant (couteau, gratoir, tournevis, etc.) ou dépange à face abrasive.
- N'utilise pas de détergents abrasifs ou corrosifs tels que : bombes aérosols pour four, produits détachants, produits anti-rouille, poudres à récurer.
Enlevez rapidement de la table de cuisson les taches de vinaigre, citron, sel et les substances acides et alcalines en général.
Nettoyage de la bougie d'allumage
Ces apparèils sont munis d'allumeurs électriques. L'allumage est assure par une "bougie" en céramique et une electrode métallique (Fig.1 - dette C). Pour éviter les difficultés d'allumage, maintainir ces deux éléments en parfait état de propre et voirlez à ce que les orifice des brûleurs ne soient pas obstrués.
Dimensions de l'ouverture pour l'encastrement dans le plan de travail
(voir chapitre "Encastrement")
Largeur: 560 mm
Profondeur: 480 mm
Dimensions de I'appareil
Largeur: 744 mm
Profondeur: 510 mm
Puissance des brûleurs
Brûleur Triple Couronne 4,0 kW
Brûleur Rapid 3,0 kW
Brûleurs Semi-rapide 2,0 kW
Brûleur Auxiliaire 1,0 kW
Alimentation: 230V 50Hz
Air nécessaire à la combustion 16 m³/h
Catégorie: III1c2E+3+
Appareil de classe 3
Appareil régle en Usine pour fonctionner avec gaz type G20/G25 - 20/25 mbar
Emplacement
Les meubles juxtaposés aux côtsés de la table de cuisson ne doivent pas dépasser la hauteur de cette-ci.
Les bords latéraux de la découverte pratiquée doivent se couver à au moins 100 mm. des murs ou des meubles latéraux.
Les meubles suspendus ou les hottes doivent etre installés à une hauteur minimale de 650~mm au dessus de la table de cuisson.
N'installez pas l'appareil pres de matérieliaux inflammables (par ex.: rideaux, torchons, etc.).

Débranche l'appareil avant toute intervention.
Important
- L'installation et le branchement de l'appareil doivent être effectuels par un personnel qualifié con-formément aux textes réglementaires et règles de l'art en vigueur, notamment:
- Arrêté du 2 août 1977, Règles Techniques et de Sécurité applicables aux installation de gaz combustibles et d'hydrocarbures liqués à l'intérieur desBATIMENTS d'habitation et leurs dépendances;
- Norme DTU P 45 I 204, Installations de gaz (anciennement DTU n.° 61 - installation de gaz - Avril 1982 + additif n.° 1 Juillet 1984);
- Règlement Sanitaire Départemental.
Pour les apparèils raccordés au réseau électrique:
- Norme NF C 15 100 - Installations électriques à basse tension - Règles.
Recommendations
- Vérifiez que le début du compteur et le diamètre des canalisations sont suffisants pour alimenter tous les appeareils de l'installation et vérifie que tous les raccords sont bien étanches;
- N'omettez pas d'instructor un robinet de barrageage visible et accessible.
Raccordement gaz

Raccordez la table à la bouteille ou à l'installation selon les prescriptions légales en la matière.
Assurez-vous que l'appareil est réglé pour le type de gaz auquel il sera alimenté. Pour le passage d'un gaz à un autre, reportez-vous au paragraphe "Adaptation des brûleurs au gaz utilisé".
Important
Pour un fonctionnement correct, une consommation réduite et une plus grande durée de vie de l'appareil, assurez-vous que la pression d'alimentation correspond aux valeurs indiquées dans le tableau.
Si l'appareil est alimenté en gaz Butane ou Propane (bouteille), contrôle que le régulateur de pression débite le gaz à une pression de 28 mbar pour le Butane et 37 mbar pour le Propane.

- Vissez le raccord orientable C dans l'écrou A situé à l'extrémité de la rampe d'alimentation, sans omettre d'intercaler le joint d'étanchéité B (Fig. 2).
- Orientez le raccord C dans la direction voulue, puis effectuez un serrage correct.
- Effectuez ensuite le raccordement du tube d'arrivée de gaz.
- Contrôlez la parfaite étanchéité du raccord et de l'embout en utilisant une solution savonneuse.
- Fixez l'appareil au meuble.

Fig. 2
A) Ecrou situé à l'extrémite de la rampe
B) Joint
C) Raccord orientable
Raccordement "rigide"
Effectuez le raccordement en utilisant des tuyaux rigides métalliques (cuivre avec embout mécanique).
Raccordement "flexible" avec embout mécanique
Gaz naturel
Le raccordement s'effectue avec un tuyau flexible à embout mécanique qui se visse directement sur le coude terminant la rampe de l'appareil (la tuyauterie doit être visible sur toute sa longueur). Elle doit être conforme à la norme "NFD 36-100" (durée de vie 5 ans) ou "NFD 36-103" (durée de vie 10 ans). Le raccordement peut se faire aussi avec un flexible métallique "NFD 36-121"
- Butane/Propane
Un tubeSouple,équipé de ses colliers (conformé à XPD 36-110) peut'êtreutilised s'il estvisable sur toutela longueur et si l'appareil ne fonctionne qu'au butane.Si l'appareil fonctionne au propane, il faut utiliser un flexible conformé à la norme XPD 36-112 ou unflexible métallique conformé à "NFD 36-125".

Pour assembler les différentes pieces il est conseilé de suivre l'ordre suivant:
- fixez le raccord orientable à l'embout en interposant le joint;
- fixez le raccord orientable à la rampe d'alimentation de l'appareil;
- orientez le raccord dans la direction voulue;
- contrôle la parfaite étanchéité du raccord et de l'embout en utilisant une solution savonneuse;
- fixez l'appareil au meuble.
Entretien

Contrôlez périodiquement le tuyau d'arrivée du gaz et l'éventuel régulateur de pression. En cas d'anomalie remplacez lapiece défectueuse.
Pour garantir un bon fonctionnement et une bonne sécurité, il est nécessaire de procéder périodiquement au graissage des robinets de réglage du gaz. Confiez cette opération à un technicien qualifié.
Branchement électrique

Reliez l'appareil à la terre, conformément aux prescriptions de la norme NF.C 15100 et aux règlements en vigueur.
Avant d'effectuer le branchement s'assurer que:
-
le disjoncteur et l'installation électrique peuvent supporter la charge de l'appareil (voir la plaque signalétique);
-
l'installation d'alimentation soit équipée d'une prise de terre efficace selon les normes en vigueur;
-
la prise ou l'interrupteur principal soit facilement accessibles.
L'appareil ne doit pas etre raccordé à l'aide d'un prolongateur, d'une prise multiple ou d'un raccordement multiple (risque d'incendie).
Vérifiez que la prise de terre est conforme aux règlements en vigueur.
Les tables de cuisson sont équipées d'un cable d'alimentation et sont aptes au fonctionnement en 230V 50Hz
Branchez la fiche à une prise ajuste.
Si l'on désire un branchement direct au réseau (branchement fixe) il faut intercaler entre l'appareil et le réseau un dispositif possédant des contacts à coupure omnipolaire ayant une distance d'ouverture des contacts d'au moins 3 mm.
Le cable de terre jaune-vert ne doit pas etre interrompu par l'interrupteur et doit etre relié à la borne du conducteur de protection.
Le cable de phase de couleur marron (provenant de la borne "L" de la planchette à bornes) doit toujours être relié à la phase du réseau d'alimentation.
Le cable d'alimentation doit être placé de telle manière qu'il ne touche aucune partie chaude.
Après le branchement essayez les éléments chauffants en les faisant fonctionner pendant 3 minutes environ.

Notre responsabilité ne saurait ete engagee en cas d'accidents ou d'incidents provoqués par une mise à la terre inexistante ou defectueuse.
Remplacement du cable d'alimentation
Le cable d'alimentation ne doit être remplace que par un professionnel qualifies selon les normes en vigueur. Utilisez un cable de type H05 V2V2 d'une section adaptée à la charge.
En outre, il faut que le cable de terre jaunvert soit plus long d'environ 2 cm que les cables de phase et neutre.

Le cable d'alimentation sera positionné de façon à ce qu'enaucun point sa température n'excède 90^
Pour ouvrir la trappe d'accès à la barrette secteur et avoir accès aux bornes de raccordement, procéder comme décrit ci-dessous:
insérez l'extrémité d'un tournevis dans les saillies situées sur le côte à l'intérieur de l'appareil (Fig.3);
exercez una faible pression et faites levier vers le haut.

Fig. 3
Pour la conversion de l'appareil d'un type de gaz à l'autre, opérez comme suit:
Remplacement des injecteurs
- Otez les grilles.
- Enlevez les brûleurs.
- Avec une clé de 7 dévissez les injecteurs (Fig. 4) et remplacez-les par ceux convenant au type de gaz utilisé (voir Tableau 1).
- Remplacez l'étiquette d'étagallonage (collée à côté du tuyau d'alimentation en gaz) par cette correspondant au nouveau type de gaz. Elle se調查 dans l'emballage des injecteurs fournis avec la table.
Important :
Dans le cas d'un changement de gaz en butane ou en propane, vous devez coller sur l'appareil à proximé de la plaque signalétique d'origine, l'étiquette correspondante (G30/G31) fournie dans la pochette d'injecteurs.
Le réglage d'air des brûleurs de table est obtenu automatiquement par l'injecteur et n'est pas ajustable par d'autres moyens.
Le changement des injecteurs doit impérativement être suivi du réglage du débit réduit (voir ci-après).

Fig. 4
Tableau n°1
| TYPE DE BRULEUR | DéBIT CALORIFIQUE NOMINAL kW | DéBIT CALORIFIQUE MINIMUM kW | DéBIT CALORIFIQUE NOMINAL | |||||||
| GAZ NATUREL | GAZ BUT.-PROP. 28-30/37 mbar | AIR PROPANE G130 8 mbar | ||||||||
| Repère injecteur 100/mm | m3/h | Repère injecteur 100/mm | g/h | Repère injecteur 100/mm | m3/h | |||||
| G20 20 mbar | G25 25 mbar | G30 | G31 | |||||||
| Auxiliaire | 1,0 | 0,33 | 70 | 0,095 | 0,111 | 50 | 73 | 71 | 127 | 0,140 |
| Semi-rapide | 2,0 | 0,45 | 96 | 0,190 | 0,220 | 71 | 145 | 143 | 195 | 0,279 |
| Rapid | (G.N.) 3,0 (G.P.L.) 2,8 | 0,75 | 119 | 0,285 | 0,442 | 86 | 203 | 199 | 240 | 0,419 |
| Triple cour. | (G.N.) 4,0 (G130) 3,7 | 1,20 | 146 | 0,380 | 0,332 | 98 | 290 | 285 | 348 | 0,517 |
Réglage du ralenti
- Allumez chacun des brûleurs.
- Tournez les manettes jusqu'à l'obtention du début réduit.
- Retirez les manettes.

Alimentation en gaz naturel
Agissez sur la vis de réglage (Fig. 5) jusqu'à l'obtention d'une petite flamme régulière.

Alimentation en gaz Butane ou Propane
Vissez à fond la vis (Fig. 5), celle-ci étant déjà prévue pour assurer le début minimum.
Contrôlez en tournant la manette de la position de début minimum et vice versa, que la flamme ne s'éteint pas.
Remarque: La vis de réglage est de petite dimension, utilisez un tournevis plat très fin.
- Remontez les manettes en effectuant les opérations dans l'ordre inverse.
Les opérations ci-dessus peuvent être effectuees aisement après encastrement de la table de cuisson dans le meuble de cuisine.
Tableau n°2
| Butane/Propane | Gaz Naturel/Air Propané |
| Vissez totallyment la vis dans le sens des aiguilles d'une montre. | Vissez ou dévissez la vis jusqu'à l'ob- tention d'une flam- me très courte. |
Tableau n°3: Diamètre de la vis de réglage
| Brûleur | Ø By-pass 1/100 mm. |
| Auxiliaire | 28 |
| Semi-rapide | 32 |
| Rapide | 42 |
| Triple Couronne | 56 |


Fig. 6
A = Brûleur auxiliaire
SR = Bruleur semi-rapide
R = Brûleur rapide
TC = Triple Couronne
Les dimensions sont indiquées en millimétres.
Ces tables de cuisson sont prévues pour être encastrées dans des meubles de cuisine ayant une profondeur de 550 à 600 mm.
Côtés d'encastrement
Les tables de cuisson peuvent être montées dans un meuble ayant une ouverture pour l'encastrement des dimensions indiqués dans la Fig.7.
Les bords latéraux doivent se couver à au moins 450 mm des murs ou des meubles latéraux.

La fixation de la table au meuble doit être effectuee de la façon suivante:
- placez les joints fournis sur les bords de la découpe: positionnez-les exactement sur les bords avant et arrière, à 86 mm des bords latéraux et à 10 mm de bord arrrière en veillant à ce que les extrémités des joints se joignent parfaitement, sans se chevaucher (Fig. 8);
- placez la table dans la niche d'encastrement en la centrant correctement;
fixez la table au meuble à l'aide des pattes de serrage prévues à cet effet (Fig. 9). Les pattes de serragese trouve dans l'emballage des injecteurs fournis avec la table. La traction exercée par les vis est suffisante pour tracer un sillon dans le joint d'étanchéité, que l'on pourrait aisément enlever.
Le joint d'étanchéité au-dessus doit être enlevé avec un morceau de bois ou un couteau en plastique pour éviter d'endommager le plan de travail.
Pour enlever complètement le joint d'étanchéité, introduire le couteau en plastique de façon inclinée (angle de 45^ ).

L'encastrement de la table de cuisson au dessus d'un lavevaisselle, d'un réfrigerateur, d'un congélateur, d'un four, ou d'un lave linge est déconseilé lorsque le constructeur de ces apparéils électroménagers ne l'a pas formellement prévu.

Fig. 7

Fig. 8

Fig.9
Dans un meuble de cuisine avec porte
Le meuble destiné à receivevoir la table de cuisson devra être fabriqué de façon que le contact avec les parties métalliques chaudes soit évité.
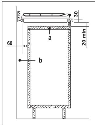
La distance minimum entre le fond de la table de cuisson et le plancher de l'encastrement doit etre de 20 mm.
Reportez you à la Fig. 10.
La tablette sous la table de cuisson doit être aisément démontable pour avoir facilement accès à l'appareil en cas de réparation.
Au-dessus d'un four
Pour les côtes d'encastrement reportez vous à la Fig. 7. Prévoir deux supports pour l'aération. Les figures 11 et 12 illustrent deux solutions possibles.
Les raccordements électriques du four et de la table doivent rester accessibles et être effectuels séparément.
Les meubles suspendus ou les hottes doivent etre installes a une hauteur minimale de 650~mm au-dessus de la table de cuisson (Figure 7).

Fig. 10
a) Tablette amovable
b) Espace évientuel pour les raccordements

Fig. 11

Fig. 12
En appelant un Service Àpès Vente, indiquèz-lui le modele, le numéro de produit et le numéro de série de l'appareil. Ces indications figurent sur la plaque signa-tétique située sur votre apparatus.
Notice Facile