BRE-200 - Chauffe-eau électrique BRANDT - Notice d'utilisation et mode d'emploi gratuit
Retrouvez gratuitement la notice de l'appareil BRE-200 BRANDT au format PDF.
| Type d'appareil | Chauffe-eau électrique |
| Capacité | Non précisé |
| Matériau de la cuve | Acier |
| Revêtement de la cuve | |
| Type d'installation | Murale ou au sol |
| Puissance électrique | Non précisé |
| Alimentation | 230 V / 50 Hz |
| Protection anti-corrosion | Oui |
| Thermostat réglable | Oui |
| Type de résistance | Blindée ou stéatite |
| Pression maximale | Non précisé |
| Dimensions (HxLxP) | Non précisé |
| Poids | Non précisé |
| Garantie | Non précisé |
| Normes | Conforme aux normes électriques en vigueur |
FOIRE AUX QUESTIONS - BRE-200 BRANDT
Téléchargez la notice de votre Chauffe-eau électrique au format PDF gratuitement ! Retrouvez votre notice BRE-200 - BRANDT et reprennez votre appareil électronique en main. Sur cette page sont publiés tous les documents nécessaires à l'utilisation de votre appareil BRE-200 de la marque BRANDT.
MODE D'EMPLOI BRE-200 BRANDT
Avant l'installation, veuillez dire attentivement les instructions de ce livre. Leur non observation peut vous priver du bénéfice de la garantie.
1. Mise en place du chauffe-eau
Le plus pres possible du lieu d'utilisation, à l'abri du gel et des intempérières, et permettant un démontage aïse du corps de chauffe (500 mm. mini entre le capot électrique et la paroi située en face de ce dernier).
La fixation au mur se fera par 4 boulons M 10 préalablement scelled.
Le support et les dispositifs de fixation doivent supporter un poids correspondant à deux fois la capacité en litre de l'appareil. Tous les points de fixations prévus par le fabricant doivent être utilisés.
Le montage du chauffe-eau doit être conforme aux prescriptions du DTU 60-1.
Les chauffe-eau verticaux muraux de 75 à 200 I peuvent etre montes sur trépied quand la paroi n'est pas suffisamment solide pour les supporter, l'appareil devant toutes est fixe au mur conformément a la norme NFC 73200 et 73222.
Prévoir un bac de détention avec un écoulement à l'égoût si le chauffe-eau est installé au-dessus de locaux habités (combles par exemple).
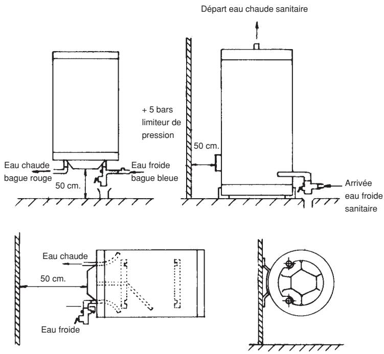
2. Raccordement hydraulique (Voir schéma ci-contre)
Note à l'attention de l'installateur: Il faut impérativement installer des manchons dielectriques sur les tubes d'entree et sortie d'eau pour proteger l'appareil de tout courant vagabond. Utiliser pour ce faire un ruban de teflon.
Un chauffe-eau installé sous pression doit obligatoirement être équipé d'un groupe de sécurité.
Ce groupe non fourni par BRANDT sera obligatoirement conforme à la norme NF D 36-401 etitué le plus pres possible de l'appareil.
Pour une pression nominale du réseau supérieure à 5 bars, prévoir le montage d'un détenteur en冲动 du groupe.
Le montag du groupe est réalisé directement sur le tube entrée eau froide du chauffe-eau avec un raccord intermédiaire en fonte ou acier ou celui fouri avec le chauffe-eau, l'étanchête étant assurée sur les filts. Il se trovera en position verticale sur tous les modèles.
La vidange du groupe doit être raccordée à un circuit d'évacuation par l'intérimédiaire d'un dispositif assurant une garde d'air. Pendant les périodes de chauffe, l'eau contene dans la cuve va se dilater et la soupape de sécurité en laissera échéapper une partie afin que la pression interne de la cuve ne dépasse pas 7 bars.
Ne pas obturer l'orifice d'éculement de la soupape; raccorder l'évacuation de la soupape aux eaux usées.
Cet écoullement est normal et peut représenter 3% de la capacité de l'appareil.
Avant de raccorder le chauffe-eau au circuit d'alimentation d'eau froide, laisser couler un certain temps, afin de le nettoyer de tous déchets qui pouraient endommager ou perturber le fonctionnement du groupe de sécurité.
Veiller à ne pas intervenir les raccordements eau chaude, eau froide.
Vérifier l'absence de fuites.
Pour les apparèels fonctionnant à la pression atmosphérique, utiliser toujours la robinetterie spécifique fournie par le constructeur.
3. Branchement électrique
Effectuer les raccordements en respectant les schémas et prescriptions du fabricant. Veiller tout particulièrement à ne pas neutraliser le thermostat.
Dans tous les cas, respecter les réglementations en vigueur.
L installation doit etre porvue d'un interrupteur omnipolaere aang une distance d'ouverture de contact de 3mm. Le circuit doit etre proteg par des fusibles calibres selon la puissance du chauffe-eau."
- La mise à la terre est obligatoire. Une borne repère est prévue à cet effet.
La ligne d'alimentation du chauffe-eau doit composer un dispositif de coupure omnipolaire, la distance d'ouverture des contacts doit ete d'au moins 3 mm. L'alimentation du chauffe-eau doit ete faite suivant les regles de l'art et conformement a la NF C 15 100. Les connexions sont etablies suivant les schemaas joints a l'appareil et la tension indique sur la plaque signaletique.
S'assurer de la presence en amont d'une protection electrique de l'appareil et de l'utiliseur (présence d'un disjoncteur diffrentiel 30mA).
Vérifier le bon serrage des connexions.
Sassurer que les parties sous tension restent inaccessibles (presence des capots dans leur etat d'origine). Les passages de cables doivent etre adaptés aux diametres de ceux-ci.
4. Mise en service
- Remplir le chauffe-eau en ayant aparavant ouvert les robinets d'eau chaude afin de purger l'air se trouvant dans toutes les tuyauteries.
-
Verifier que:
-
les bornes de raccordement électriques sont fortement serrées
- les caractéristiques de branchement sont bien conformes à celles du secteur;
- le raccordement à la terre est bien effectué
- le robinet de vidange du groupe de sécurité fonctionne bien;
- le joint de porte de visite est bien étanché, desserrer raisonnablement si nécessaire;
- le thermostat est en butée maxi (65/70 °C), ne pas forcer la butée sous peine d'incident;
- le chauffe-eau fonctionne bien après la première mise en température.
NE JAMAIS METTRE LE CHAUFFE-EAU SOUS TENSION SANS EAU.
Cet apparéil est destiné exclusivement à chauffer de l'eau sanitaire, à l'exclusion de tout autre fluide.
Notre garantie, en cas d'accident, ne s'appliquerait si I's installation est strictement realise selon les regles de l'art et les normes en vigueur. Pendant la chauffe et suivant la qualite de l'eau, le chauffe eout emette un bruit angete a celu d'une boilloire, ce bruit est normal et ne traduit auc defaut de l'appareil. Si un stockage prolongd'un chauffe-eau a resistance sur steteite et thermogaine en atmophere humide (chantier, cave) n pas paue et evitie, il faut imperativement, avant la mise en service, d'assecher I'intérieur du fouree.
5. Conseils à l'usager, recommendations d'entretien
- Pour resserrer la porte de visite ou pour régler la température de l'eau:
a) Couper le courant electrique b) Déposer le capot de protection
- Pour vidanger le chauffe-eau (opération nécessaire pour le détartrage ou si ce dernier doit rester sans fonctionner dans un local soumis au gel:
a) Couper le courant électrique c) Ouvrir un robinet d'eau chaude
b) Fermer l'arrivée d'eau froide d) Ouvrir la soupape de vidange
Sassurer periodquement du bon fonctionnement de Iorgane de securite hydraulique, selon les preconisations du fabricant. Toute intervention doit etre realisee, appareil hors tension.
- Pour un bon fonctionnement et une bonne protection du chauffe-eau, MANOEUVRER RAPIDEMENT LA SOUPAPE DE SECURITE 2 FOIS PAR MOIS
- En cas d'anomalie: absence de chauffe ou dégagement de vapeur à l'ouverture d'un robinet deuisage par exemple, couper le courant et prévenir votre installerateur.
- En cas d'absence prolongée, couper l'alimentation du chauffe-eau en eau et en électricité.
Veiller à ne pasmettre sous tension,l'appareil vide.
6. Remplacement évientuel d'éléments constituants
Le remplacement d'un élément chauffant blindé nécessite la vidange du chauffe-eau, dans ce cas le remplacement du joint est nécessaire.
Les pièces pouvant être remplacées sont:
-
le thermostat
-
les éléments chauffants
Pour toute commande, préciser le type du chauffe-eau, sa capacité, le type d'équipment (mono ou T.C.), pour les résistances "blindées" ou "stéatite" ou "thermogainée" et la date de fabrication du chauffe-eau (voir certificat de garantie).
Note: Toute modification de l'appareil est interdite. Tout remplacement de composants doit etre effectue par un professionnel avec des pieces d'origine constructeurs.
En cas d'usure de I'ergot pour verrouillage du capot sur chauffe-eau Vert et Horiz, le capot doitetre fixe sur les appareils par vis en utilisant les trous prevus a cet effet.
7. Brûlures et bacteriés:
Pour des raisons sanitaires, l'eau chaude doit être stockée à une température élevée. Cette température peut provoquer des brûlures. Veiller à prendre les précautions d'usage nécessaires pour évier tout accident aux points deuisage. En cas de non-utilisation prolongee de I'appareil, evacuer la capacité nominale d'eau.
8. Fin de vie
Avant demontage de l'appareil,mettre celui-ci hors tension et proceder à sa vidange.
La combustion de certains composants peut degager des gaz toxiques, ne pas incinerer l'appareil.

CERTIFICAT DE GARANTIE
FAGORBRANDT
92854 Rueil-Malmaison Ce
Tél. 33 (0) 1 47 16 68 00
Fax: 33 (0) 1 47 16 68 97
A CONSUMER PAR L'UTILISATEUR DE L'APPAR
Le chauffe-eau que vous venez d'acquerir a fait l'objet de notre part des soins et contrôles les plus attentifs, ce qui le garantit contre tout vice de fabrication.
Validité.- Pour bénéficier de cette garantie, nous recommendons au Client de conserve l'origine et identifié le client de la société à la durée générale du service.
le present certificat anif de pouvoir le presenter en cas de l'exciamation. Le retut de la pièce défectuese sera aussi expié. Voir les conditions d'application de la garantie.
la piece défectueuse sera aussi exigé. Voir les conditions d'application de la garantie.
MODELE DE L'APPAREIL:
N.° DE SERIE:
DATE D'ACHAT:
Bien que cet apparéil ne nécessite que peu d'entretien, il est nécessaire que vous vous assuriez, de temps à autre, du bon état de marche des différents organes de fonctionnement ou de sécurité qui l'équivalent et, en particulier, celui du groupe de
sécurities.
Il est particulièrement recommendé de passer manuellement le groupe de sécurité en
position vidange pendant quelques instantes une fois par mois. N'hésitez pas, le cas échéant, à faire appel à votre installerateur pour la vérification de votre apparéil.
Cet apparéil est conforme à la Directive 93/68 C.E.E.

Conditions d'application de la garantie du Constructeur
Pour davantage d'information, contacter les autorités locales ou votre revendeur.
Pour davantage d'information, contacter les autorités locales ou votre revendeur.
Pour davantage d'information, contacter les autorités locales ou votre revendeur.
Pour davantage d'information, contacter les autorités locales ou votre revendeur.
fame diversification de la recherche du Constretor .
Conditions d'application de la garantie du Constructeur
fina d'évaluation de la réalité du construction
Conditions d'application de la garantie du Constructeur
Il peut être porté, sans coût additionnel, aux centres spécifique de collecte,/agrees par les administrations locales, ou aux prestataires qui facilitent ce service.
Pour davantage d'information, contacter les autorites locales ou votre revendeur.
L'elimination séparée d'un déchet d'électromègener permet d'éviter d'éventuelles consequences négatives pour l'environnement et la société de déviación d'une élimination indisquête, tout en facilitant le traitement et le revueillage des matériels qu'il soit entail.
a c aie d e i t s t, t t t t t t t t t t t t t t t t t t t t t t t t t t t t t t t t t t t t t t t t t t t t t t t t t t 0
Afin de souligner l'obligation de collaborer à la collecte sélective, le marquage ci-dessus appose sur le produit
limme de couloirs, reconnaissés, déclarations, à la naturelle effective, le menage de visée à rappeler la non-utilisation des conteneurs traditionnels pour son élimination
Notice Facile