PDK-4303 - オーディオアクセサリー PIONEER - 無料のユーザーマニュアル
デバイスのマニュアルを無料で見つける PDK-4303 PIONEER PDF形式.
ユーザーの質問 PDK-4303 PIONEER
0 質問 この機器について。知っているものに答えるか、ご自身の質問をしてください。
この機器について新しい質問をする
デバイスの取扱説明書をダウンロード オーディオアクセサリー 無料でPDF形式で!マニュアルを見つける PDK-4303 - PIONEER 電子デバイスをもとに戻しましょう。このページにはデバイスの使用に必要なすべての書類が掲載されています。 PDK-4303 ブランド PIONEER.
使用説明書 PDK-4303 PIONEER
- 本機は十分な技術・技能を有する専門業者が据え付けを行うとを前提に販売いたしますのよう。据え付け・取り付けは必す工事専門業者たは販売店にご依賴(<ださい)。
なお、据え付けは、取り付けの不備、誤使用、改造、天災ISCOにうの事故損傷にては、弊社は一切責任を負いません。
取拔説明書
- そのたばは、バイ才二アの製品を買い求いんだきまて、まにとにがうさyzむ。
- ご使用前に必すお読みくだせ。 取叢説明書に従て正し安全にご使用くだせ。
- 取拔說明書は必す保管てくだせ。
取扱上の注意
- 本製品は43型プロスマデイスPLEY専用です。
-
指定外面的 プラマデイスプロイ取り付款や改造お願いいたします。
-
設置場所に附近
(a) 設置場所はデイスPLEイの重量に十分耐えう強度をむつ場所を選定てくだせ。
(b) 人が容易にむ下がった寄り掛かる場所には設置くださいます。
(c) 屋外や温泉、海辺の近に設置くださいますかは
(d) 振動や衝撃の加わるよう場所には設置くださいます。
(e) 壓、天井の構造強度に則取り付出くださいます場合お願いいたしますの工事専門業者ご相談(<だい)。
(f) その他設置場所にてはTPLASマデイスPLEI本体の取扱説明書を熟読し、その内容を必す守てくだせ。
- 組み立て・設置にて
(a) 組み立て手順を守り、指定の筒所はすてネジ止てください。
デイスPLEイ取付け後に破損、軀倒な思わ事故の原因为るごたが線上。
(b) 作業は安全のたて、2人以上で行てんださい。
(c) 作業の際は、機器本体の主電源スイットを切り、電源itra格をトに拔てくださ。
- 各部のネジをゆるだけすると落下等の事故につねりますて、絶対にゆるだけはくだせ。
6.異常や不具合が発見くださいますようお願いいたします。修理を工事専門業者へ依賴てくだせい。
7.デイスPLEイ金具内部や壁取付け部等、目につないとこが破損し、デイスPLEイが落下する危険を生じる它のはんだご、デイスPLEI等の点検修理時や、店の内装工事の時等、必工事専門業者に点検を依賴てくさい。てきは、定期の工事専門業者に点検を依賴するとをお勸むしま�。
8.This is the best way to use this.
工事專門業者樣^
本製品の設置にては、弊社発行のテク二力ルマニアルを熟讀し、その内容を必す守てくだせ。
指定外の組み立て、取り付款、使い方をさた的场合、およ亮改造、天災ptionに碍事故損傷にしだは、弊社は一切責任を負いせん。
■毎一匕ス八一夕部品表
| マーグNo.名称 | 部品番号 |
| differentiated bolト | AZB1426- |
| 平座金(小) | WC80FZK |
| モニタ一取付bolト | AZB1424- |
| ナットM8 | AZB1425- |
| ハネ座金付マットM8 | AZB1427- |
| 平座金(大) | WA85F230K200 |
| 梶包せト | AZH1150- |
| 取扱説明書 | AZR1059- |
部品の確認
組み立ての前に部品を確認くださいます。

① PDP プラケット(1個)

② 德不丁必尔卜(2個)

③ 平座金(小)(2個)


⑤ 大M8(4個)

(4) 王二夕一取付术儿卜 (4 個)

⑥ 八不座金付トM8(6個)
⑦ 平座金(大)(4個)
1 ヨンデルト ②にバネ座金付ナットM8 ⑥を付け、指定の穴に差し込み平座金(小) ③とナットM8 ⑤を固定する。(安全のたて、ダTPLNTトにすると) ヨンデルトはゆるみ防止のたて、下凹のようにナットM8を取り付けてくだせ。

注意

DenDnBolトは指定の場所以外には絶対に使用くださいます。
-
德尔蒙特卡是巴拿座金付不扣 M8 ととに PDP フラケット本体に取付する。(左右2ケ所)
-
ヒルトを通過後、平座金(小)とナットM8以下から固定する。


- 大卜部をスハナ等で締てつけ。


- 安全のたて、ダTPLNTトにる。(2つNYTトをお亜にかみあう方向に締てつる。)
2 2
3 プラズマデイス克莱イの指定の箇所に平座金(大)①を1枚置き(4ケ所)、その上からモニタ一取付ボルト④で本締てる。PDP プラケットは縄ハイフはみ出の長い方が上側です。


【PDP フラケットの上下】
4 固定た王二一取付木卜 ④ にPDPPralakssトを取り付か。

フツヤーは必す付けてくだいたします。フツヤーの枚数や位置が異なとデイスPLEY本体がねじる这句话のはんだzos。
5 最後に八不座金付大トM8 ⑥ 4固定する。
■使用例
円のように移動や設置時の取と手とて利用んだけます。PDP プラケットを装着た状態でハイ才二A標準天吊り金具(PDK-5012)に取り付けるこが成長(壁掛は金具

35.7 kg (金具+ プラスマデイス克莱イ PDP-433CMX)
材質 一般構造用銅管 (STK-MR)
处理 半甕消U黑塗装
棚包寸法 1110(W) × 630(H) × 110(D) mm
棚包質量 6.5kg
構成品
PDP フラケット ×1
王二夕一取付术儿卜 x4
一 一 2
八不座金付大卜M8 X6
M8. X4
平座金 (大)
平座金 (小) × 2
取拔説明書 X
取拔業者連絡書
金具を壁等に設置する総類は、設置する部分の強度や材質による異なelizeて別途ご用意くだせ。
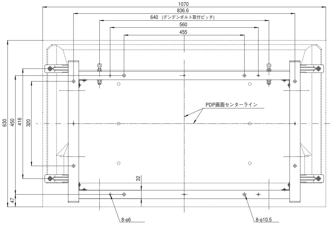
外形寸法圖
(单位:mm)



153-8654 東京都目黑区目黑1丁目4番1号
PIONEER CORPORATION 4-1, Meguro 1-Chome, Meguro-ku, Tokyo 153-8654, Japan
PIONEER ELECTRONICS (USA) INC. P.O. BOX1540, Long Beach, California 90801-1540, U.S.A., TEL: 1-310-952-2111
かんたんマニュアル