TT 6224 - Piano cottura SCHOLTES - Manuale utente e istruzioni gratuiti
Trova gratuitamente il manuale del dispositivo TT 6224 SCHOLTES in formato PDF.
Scarica le istruzioni per il tuo Piano cottura in formato PDF gratuitamente! Trova il tuo manuale TT 6224 - SCHOLTES e riprendi in mano il tuo dispositivo elettronico. In questa pagina sono pubblicati tutti i documenti necessari per l'utilizzo del tuo dispositivo. TT 6224 del marchio SCHOLTES.
MANUALE UTENTE TT 6224 SCHOLTES
Collegamento elettrico
Descrizione dell'apparecchio, 5-6
Pannello di controllo
Zone di cottura estensibili
Avvio eutilizzato,7-9
Accensione del piano cottura
Accensione delle zone di cottura
Accensione delle zone di cottura estensibili
Spegnimento delle zone di cottura
Gli elementi riscaldanti
Programmazione della durata di una cottura
Blocco dei comandi
Modalità "demo"
Consigli pratici per l'uso dell'apparecchio
Dispositivi di sicurezza
Precauzioni e consigli, 10
Sicurezza generale
Smaltimento
Manutenzione e cura, 11
Escludere la corrente elettrica
Pulire l'apparecchio
Smontare il piano
Descrizione tecnica dei modelli, 12

Scholtès
!È importante conservare quello libretto per poterlo consultare in agli momento. In caso di vendita, cessione o di trasloco, assicurarsi che resti insieme all'apparecchio per informare il nuovo proprietario sul funzionamento e sui relativi avertimenti.
! Leggere attendamente le istruzioni: ci sono importanti informazioni sull'installazione, sull'uso e sulla sicurezza.
Posizionamento
!Gli imballaggi non sono giocattoli per bambini e vanno eliminati secondo le norme per la raccolta differenziata (vedi Precauzioni e consiglio).
! L'installazione va effettuata secondo queste istruzioni e da personale professionalmente qualificato. Una errata installatione cui possare danni a persone, animali o cose.
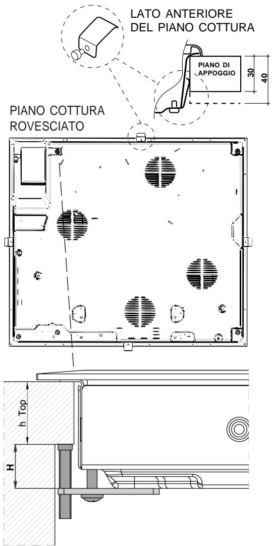
Incasso
Per garantire un buon funzionamento dell'apparecchio è necessario che il mobile abbia le caratteristiche adatte:
- il piano d'appoggio deve essere di materiale resistente al calore, a una temperatura di circa 100^ ;
- se si desidera installare il piano cottura sopra un fornò, quellouve essere provvisto di un sistema di raffreddamento a ventilazione forzata;
- evitare di installare il piano cottura sopra una lavastoviglia: all'occurrezza frapporre un elemento di separazione a tenutaagna fra i due appearecchi;
- a seconda del piano cottura che si desidera installare (vedi figure), il vano del mobile deve ave le seguenti dimensioni:



Aerazione
Per consentire un'adeguata aerazione e per evitare il surriscaldamento delle superfici attorno all'apparecchio, il piano cottura deve essere posizionato:

- a una distanza minima di 40 mm alla retrostante e di 600 mm da qualsi altra superficie verticalie;
- in modo da dismantenere una distanza minima di 10 mm fra il vano per l'incasso e il mobile sottostante.
Fissaggio
L'installazione dell'apparecchio deve essere effettuata su un piano d'appoggio perfettamente piano.
Le eventuali deformazioni provocate da un errato fissaggio potrebbero alterare le caratteristiche e le prestazioni del piano cottura.

La lunghezza della vite di regolazione dei ganci di fissaggio va impostata prima del loro montaggio, in base allo spessore del piano d'appoggio:
- spessore di 30 mm: vite 17,55 mm;
- spessore di 40~mm : vite 7,55 mm.
Per il fissaggio agire come segue:
- Con le viti corte senza punta, avvitare le 4 molle di centraggio nei fori posti al centro di agli lato del piano;
- inserire il piano cottura nel vano del mobile, centrarlo ed esercitare una adeguata pressione sull'intero perimetro affinché il piano di cottura aderisca bene al piano d'appoggio.
- per i piani con profili laterali: dopo aver inserito il piano cottura nel mobile, inseire i 4 ganci di fissaggio (ognuno con il suo perno) sul perimetro inferiore del piano cottura, avvitandoli con le viti lunghe con punta finché il vetro non aderisce al piano d'appoggio.
! è indispensablehe che le viti delle molle di centraggio rimangano accessibili.
! In conformità alle norme di sicurezza, una volta incassato l'apparecchio, non debbono essere possibili eventuali contatti con le parti elettriche.
! Tutte le parti che assicurano la protezione debbono essere fissate in modo tale da non poter essere tolte perché l'aiuto di quale utensile.
Collegamento elettrico
! L'allacciamento elettrico del piano cottura e quello di un eventuale forno da incasso devono essere realizzativi separatamente, sua per ragioni di sicurezza elettrica sua per facilitare le operazioni di estrazione del forno.
Morsettiera

PIANO COTTURA ROVESCIATO
L'apparecchio è provvisto, nella parte inferiore, di una scatola per il collegamento a differenti tipi di alimentazione elettrica (l'imagine èindicativa e più non corrispondere al modello acquistato).
Collegamento monofase
Il piano è dotato di cavo di alimentazione più collegato e predisporto per il collegamento monofase. Effettuare l'allaccio dei fili in accordo con la tabella e i disegni che seguono:
| Tensione tipo e Frequenza rete | Cavo elettrico | Collegamento fili |
| 230V 1+N ~ 50 Hz | N L | ½: giallo/verde; N: i 2 fili blu insieme L: marrone insieme al nero |
Altri tipi di collegamento
Se l'impianto elettrico corrisponde a una delle seguenti caratteristiche:
Tensione tipo e frequenza di rete
- 400V - 2+N ~ 50 Hz
- 230V 3 ~ 50 Hz
- 400V - 2+2N ~ 50 Hz
Separare i cavi ed effettuare il collegamento dei fili in accordo con la tabella e i disegni che seguono:
| Tensione tipo e Frequenza rete | Cavo elettrico | Collegamento fili |
| 400V - 2+N ~ 50 Hz | N L1 L2 | giallo/verde; N: i 2 fili blu insieme L1: nero L2: marrone |
| 230V 3 ~ 50Hz | ||
| 400V - 2+2N ~ 50 Hz | N1 N2 L1 L2 | giallo/verde; N1: blu N2: blu L1: nero L2: marrone |
Se l'impiano elettrico corrisponde a una delle seguenti caratteristiche:
Tensione tipo e frequenza di rete
- 400V 3 - N ~ 50 Hz
procedere come segue:
! L'eventuale cavo in dotazione non è utilizzabile per quosti tipi di INSTALLazione.
1. Utilizzare un cavo di alimentazione appropriato, tipo H05RR-F o di valore superiore, delle dimensioni adatte (sezione cavo: 25 mm).
2. Servendosi di un cacciavite, far leva sulle linguette del coperchio della morsettiera e aprirla (vedi immagine Morsettiera).
3. Svitare la vite del serracavo e le viti dei morsetti relativi al tipo di allaccio necessario e posizionare i cavallotti di collegamento secondo la tabella e i disegni che seguono.
4. Posizionare i fili in accordo con la tabella e i disegni che seguono ed effettuare il collegamento stringendo a fondo tutte le viti dei morsetti.
| Tensione tipo e Frequenza rete | Collegamenti elettrici | Morsettiera | ||||
| 400V 3-N ~ 50 Hz | 1 L1 | 2 L2 | 3 L3 | 4 N | 5 | Trifase 400 |
- Fissare il cavo di alimentazione nell'apposto fermacavo e chiudere il coperchio.

Fase Cavallotto Fase Fase Neutro Terra
Trifase 400
Allaccimento del cavo di alimentazione alla rete
In caso di collegamento diretto alla rete è necessario interporre tra l'apparecchio e la rete un interruptore onnipolare con aperture minima fra i contatti di 3 mm.
! L'installatore è responsabile del corretto collegamento elettrico e dell'osservanza delle norme di sicurezza.
Prima di effettuare l'allciamento accertarsi che:
- la presa abbia la messa a terra e sua norma di legge;
- la presa sia in grado di sostortare il carico massimo di potenza della macchina,indicato nella targhetta caratteristiche posta sull'apparecchio;
- la tensione di alimentazione sia compresa nei valori della targhettoe caratteristiche;
- la presa sia compatibile con la spina dell'apparecchio. In caso contrario sostituire la presa o la spina; non usare prolonghe e multiple.
! Ad apparecchio installato, il cavo elettrico e la presa della corrente devono essere facilemente raggiungibili.
! Il cavo non deve subire piegature o compressioni.
! Il cavo delve essere controllato periodicamente e sostituito solo da tecnici autorizzati.
! L'azienda declina agli responsabilità qualora queste norme non vengano rispetto.
Pannello di controllo
Il pannello di controllo che qui viene descritto è rappresentato a fini esemplificativi: più non ossere una esatta riproduzione del modello acquistato.

- Tasto AUMENTO POTENZA per accendere la piastra e regolare la potenza (vedi Avvio e utilizzato).
- Tasto DIMINUZIONE POTENZA per regolare la potenza e spegnere la piastra (vedi Avvio e utilizzato).
- Indicatore POTENZA: segnala visipamente il livello di calore raggiunto.
- Tasto ON/OFF per accendere e spagnere l'apparecchio.
- Spia ON/OFF: segnala se l'apparecchio è acceso o spento.
-
Tasto TIMER DI PROGRAMMAZIONE per regolare la programmazione della durata di una cottura (vedi Avvio e utilizzato).
-
Display TIMER DI PROGRAMMAZIONE: visualità le scelte relative alla programmazione (vedi Avvio e utilizzato).
- Spie ZONA DI COTTURA PROGRAMMATA: indicano le zone di cottura quando si avvia una programmazione (vedi Avvio e utilizzato).
- Tasto BLOCCO DEI COMANDI per impedire modifiche fortuite alle regolazioni del piano cottura (vedi Avvio e utilizzato).
- Spia COMANDI BLOCCATI: segnala l'avvenuto blocco dei comandi (vedi Avvio e utilizzato).
Zone di cottura estensibili
In alcuni modelli sono presenti piastre estensibili. Queste possono avere diversa forma (circolare od ovale) e diversa estensibilità (piatra doppia o tripla). Sono qui illustrati i comandi relativi, presenti solo sui modelli dotati di queste opzioni.

Piastra estensibile circolare

Piastra estensibile ovale
- Tasto ACCENSIONE PIASTA DOPPIA per attivare la piastra doppia (vedi Avvio e utilizzato).
- Spia PIASTRA DOPPIA ACCESA: segnala l'accensione della piastra doppia.
- Tasto ACCENSIONE PIASTRA TRIPLA per attivare la piastra tripla (vedi Avvio e utilizzato).
-
Spia PIASTRA TRIPLA ACCESA: segnala l'accensione della piastra tripla.
-
Tasto ACCENSIONE PIASTA DOPPIA per attivare la piastra doppia (vedi Avvio e utilizzato).
- Spia PIASTRA DOPPIA ACCESA: segnala l'accensione della piastra doppia.
- Tasto ACCENSIONE PIASTRA TRIPLA per attivare la piastra tripla (vedi Avvio e utilizzato).
- Spia PIASTRA TRIPLA ACCESA: segnala l'accensione della piastra tripla.
! La colla applicata sulle guarnizioni lascia alcune tracce di grasso sul vetro. Prima di utilizzare l'apparecchio, si raccomanda di eliminarle con un prodotto specifico per la manutenzione non abrasivo. Durante le prime ore di funzionamento è possibile avvertire un odore di gomma, che comunque scomparirà presto.
! Quando il piano cottura viene collegato elettricamente, si accendono per alcuni istanti tutte le spie e gli indicatori presenti sul pannello di controllo e viene emesso un breve segnale acustico. Soltanto quando spie e indicatori si spengono è possible accendere il piano cottura.
Accensione del piano cottura
L'accensione del piano cottura avviene tenerdo premuto il tasto ① per circa un secondo.
Accensione delle zone di cottura

Ciascuna zona di cottura
viene azionata tramite il disposativo di
regolazione della
potenza composto
da due tasti (-e+).
- Premere il tasting ① per attivare la piastra, poi impostare la potenza desiderata agenda sui tasting ⑦ e ①
- Per impostare direttamente la potenza massima, premere brevamente il tasting.
Accensione delle zone di cottura estensibili
Piastra doppia:
- Premere il tasto per attivare la zona di cottura più interna.
- Se la seconda zona di cottura è circolare: premere il tasto ⑥ per attivare (o disattivare) la seconda zona di cottura. Se la zona di cottura è ovale: premere il tasto ⑥ .
Piastra tripla:
- Attivare la piastra doppia nei modi indicati.
- Se la zona di cottura è circolare: premere il tasto © per attivare (o disattivare) l'intera zona di cottura (piatra tripla). Se la zona di cottura è ovale: premere il tasto ©.
!È possibile attivare (o disattivare) l'intera zona di cottura estensibile (piatra tripla) premendo direttamente il tasting © se circolare, © se ovale.
Spegnimento delle zone di cottura
- Premere il tasto : la potenza della zona di cottura scende progressivement, fino allo spegnimento.
- Oppure premere contemporaneamente i tasti (-) e (+) : la potenza torna immediatamente a 0 e la zona di cottura si spegne.
Gli elementi riscaldanti
Sul piano cottura, a seconda dei modelli, possono essere installati elementi riscaldanti di due tipi: alogeni e radianti.
Gli alogeni trasmettono il calore tramite l'irradiazione della lampada alogena che contengono.
Si caratterizzato per le proprietà che ricordano quale tipiche del gas: rapida risposta ai comandi, visualizzazione istantanea della potenza.
I radianti sono composti da una moltiplicità di spire che garantiscono la ripartizione uniforme del calore sul fondo del recipientie, per una perfetta riuscita di tutte le cotture a fuoco basso: stufati, salse o piatti da riscaldare.
Programmazione della durata di una cottura
! É possible programme toutes le zone di cottura per una durata compresa tra 1 e 99 minuti.
- Accendere la piastra e regolarne la temperatura.
- Premere ripeturamente il tasting © finché non si accende la spia nella posizione corrispondente alla piatra che si intende programmare.
- Impostare la durata di cottura desiderata tramite i tasti +
- Confermare premendo il tasting.
Il conta alla rovescia del timer ha inizio immediatamente. La fine della cottura programmata è indicata da un segnale acustico (per la durata di 10 secondi) e la zona di cottura si spegne.
Ripetere la procedura sopra descrietta per agli piastra che si intende programmare.
Visualizzazione in caso di programmazione multipla
Quando una o più piastre sono state programmate, il display visualizza il tempo rimanente della piastra che è più vicina al termine del tempo programmato, indicandone la posizione con la spia corrispondente accesa. Le spie delle autres piastre programmate lampeggiano.
Per visualizzare il tempo restante delle altre piastre programmate, premere ripetutamente il tasto verranno mostrati in sequenza e in senso orario i tempi di tutte le piastre programmate, a partire da quella anteriore sinistra.
Modificare la programmazione
- Premere ripeturamente il tasting © finché non viene migliorato il tempo della piastra che si intende modificare.
- Agire sui tasti + per impostare il nuovo tempo.
- Confermare premendo il tasting
Per cancellare una programmazione, agire come sopra. Al punto 2 premere contemporaneamente i tasti -_ la programmazione si azzzera e il display esce alla modalità programmazione.
Blocco dei comandi
Quando il piano cottura è in funzione, è possibile bloccare i comandi per evitare il rischio di modifiche fortuite alle regolazioni (bambini, operazioni di pulizia, ecc.). Premendo il tasto i comandi si bloccano e la spia che si trova sopra al tasto si accende. Per tornare ad agire sulle regolazioni (es. interrompere la cottura) è necessario sbloccare i comandi: premere il tasto per quale istante, la spia si spegne e i comandi si sbloccano.
Spegnimento del piano cottura
Premendo il tasto ① l'apparecchio si spegne. Se i comandi dell'apparecchio sono stati bloccati, continueranno ad essere bloccatianche dopo aver riacceso il piano di cottura.Per poter riaccendere il piano è necessario prima sbloccare i comandi.
Modalità “demo”
È possibile impostare una modalità dimostrativa nella quale il pannello comandi funziona normalmente (includi i comandi relativi alla programmazione), magli elementi riscaldanti non si accendono. Per attivare la modalità "demo" occorre che il piano sia accesoe con il blocco comandi attenuato.
- Premere contemporaneamente il tasting () della piastra posteriori sinistra, il tasting () di quella anteriore destra e il tasting () per quale secondo;
- il display visualizza alternatively le scritte DE e MO e il piano si spelgne;
- alla successiva riaccensione il piano si troverà in modalità "demo".
Per uscire da esta modalità:
- con il piano acceso e il blocco comandi attivato, premere nuovamente i tasti nel modo sopraindicato;
- il display visualizza la scritta RE e AL e il piano si spegne;
- alla successiva riaccensione funzionerà normalmente.
Consigli pratici per l'uso dell'apparecchio
Per ottenere le migliorie prestazioni dal piano di cottura:
- adoperare pentole con fondo piatto per essere certi che aderiscano perfettamente alla zona riscaldante;

- adoperare sempre pentole di diametro sufficiente a coprir配套ttamente la zona riscaldante, in modo da garantire lo sfruttamento di tutto il calore disponibile;

accertarsi che il fondo delle pentole sia sempre perfettamente asciutto e pulito, per garantire la corretta aderenza e una lunga durata, sua alle zone di cottura che alle pentole stesse;
- evitare di utilizzato le stesse pentole utilizzate sui bruciatori a gas: la concentrazione di calore sui bruciatori a gas più deformare il fondo della pentola, che perde aderenza;
- non lasciare mai una zona di cottura accesa alla pentola poiché il suo riscaldamento, raggiungendo rapidamente il livello massimo, potrebber danneggiare gli elementi riscaldanti.
Livelli di potenza consigliati per i vari tipi di cottura:
| Potenze | Piastra piccola (1100 -> 1400 W) | Piastra media (1800 -> 2000 W) | Piastra grande (2300 -> 2500 W) |
| Mini | Cioccolato | Riscaldare | Cuocere a fuoco lento |
| Medio | Salsa | Cuocere a fuoco lento | Bolire liquidi |
| Maxi | Cuocere a fuoco lento | Bolire liquidi | Friggere /Grigliare |
Dispositivi di sicurezza
Indicatori di calore residuo
Finché la temperatura delle zone di cottura rimane superiore a 60^ ,anche dopo l'arresto gli indicatori di calore residuo situati vicino alla zona di cottura relativa restano accesi per prevenire il rischio di usioni.
Inattivita
Se il piano viene acceso ma resta inutilizzato per circa 2 minuti, viene attivata la funzione di blocco comandi. Se la stessa situazione permane per altri 4 minuti circa, il piano si spegne automaticamente.
Surriscaldamento
Un uso prolongato del piano di cottura può provocare il surriscaldamento dei componenti elettronici.
In queste casi un dispositivo di protezione termica impone temporaneamente una potenza ridotta (pari a 3) sulle zone di cottura anteriors finché la temperatura non sare scesa a un livello accettabile.
Interruttore di sicurezza
L'apparecchio è dotato di un interruptore di sicurezza che spegne le zone di cottura automaticamente quando viene raggiunto un tempo limite di utilizzo a un dato livello di potenza (vedi tabella). Durante l'interruzione di sicurezza, il display visualizza alternativamente le lettere TI e ME.
| Livello di potenza | Tempo limite di funzionamento in ore |
| 1 | 10 |
| 2 | 6 |
| 3-4-5 | 5 |
| 6 | 4 |
| 7-8 | 3 |
| 9-10 | 2 |
| 11 | 1 |
Segnale acustico
Alcune anomalie, quali:
- un oggetto (pentola, posata, ecc.) posto per altri 10 secondi sull'area dei comandi,
- un versamento sull'area dei comandi,
- una pressione esercitata a lungo su un tasting, possono provocare l'émissione di un segnale acustico. Rimuovere la causa del malfunzionamento per interrompere il segnale acustico. In queste situazioni i comandi si bloccano automaticamente: per sbloccarli premere il tasting (念) , le impostazioni vengono mantenate. Se la causa dell'anomalia non viene rimossa, il segnale acustico persistsiste e il piano si spagne.
! L'apparecchio è stato progettato e costruito in conformità alle norme internazionali di sicurezza. Queste avventenze sono fornite per ragioni di sicurezza e devono essere lette attendamente.
CE Questa apparecchiatura è conforme alle seguenti Direttive Comunitarie:
- 73/23/CEE del 19/02/73 (Bassa Tensione) e successive modificazioni
- 89/336/CEE del 03/05/89 (Compatibility Elettromagnetica) e successive modificazioni
- 93/68/CEE del 22/07/93 e successive modificazioni.
Sicurezza generale
- L'apparecchio è stato concepito per un uso di tipo non professionale all'interno dell'abitazione.
- L'apparecchio non va installato all'aperto, nemmeno se lo spazio è riparato, perché è molto pericoloso lasciarlo esesto a pioggia e temporali.
- Non toccare la macchina a piedi nudi o con le mani o i piedi bagnati o umidi.
- L'apparecchio deve essere usato per cuocere alimenti, solo da persona adulte e secondo le istruzioni riportate in quello libretto. Non utilizzato il piano come superficie di appoggio, né come tagliere.
- Il piano in vetroceramica è resistenteagli urti meccanici, tuttavia può incrinarsi (o eventualmente frantumarsi) se colpito con un oggetto appuntito, quale un utensile. In questi casi, scollegare immediatamente l'apparecchio alla rete di alimentazione e rivolgersi all'Assistenza.
- Se la superficie del piano è incrinata, spegnere l'apparecchio per evitare la possibilità di scosse elettriche.
- Evitare che il cavo di alimentazione di altri elettrodomestici entri in contatto con parti calde del piano cottura.
- Non dimenticare che la temperature delle zone di cottura rimane piuttosto elevata per almeno trenta minuti dopo lo spegnimento. Il calore residuo è segnalatoanche da un indicatore (vedi Avvio e utilizzato).
- Tenere a debita distanza dal piano cottura qualsiasi oggetto che potrebbe fondere, ad esempio oggetti in plastica, in alluminio o prodotti con un elevato
contenuto di zucchero. Fare particolare attenzione a imballaggi e pellicole in plastica o alluminio: se dimenticati sulle superfici ancora calde o tiepide possono causare un grave danno al piano.
- Assicurarsi che i manici delle pentole siano sempre rivolti verso l'internalo del piano cottura per evitare che vengano urtati accidentamente.
- Non staccare la spina alla presa della corrente tirando il cavo,bensi afferrando la spina.
- Non fare pulizia o manutenzione perché aver prima staccato la spina alla rete elettrica.
Smaltimento

- Smaltimento del materiale di imballaggio: atteneri alle norme locali,osi gli imballaggi potranno essere riutilizzati.
- La direttiva Europea 2002/96/CE sui rifiuti di apparecchiature elettriche ed elettroniche (RAEE), prevede che gli elettrodomestici non debbano essere smaltiti nel normale flusso dei rifiuti solidi urbani. Gli apparecchi dismessi devono essere raccolti separatamente per ottimizzare il tasso di recupero e riciclaggio dei materiali che li compongono ed impedire potenziali danni per la salute e l'ambiente. Il significolo del cestino barrato è riportato su tutti i prodotti per ricordare gli obblighi di raccolta separata.
Per ulteriori informazioni, sulla corretta dismissione degli elettrodomestici, i detentori potranno rivolgersi al servizio pubblico preposto o ai rivenditori.
Escludere la corrente elettrica
Prima di agli operazione isolare l'apparecchio alla rete di alimentazione elettrica.
Pulire l'apparecchio
! Evitare l'uso di detergenti abrasivi o corrosivi, quali i prodotti in bombolette spray per barbecue e fornì, smacchiatori e prodotti antiruggine, i detersivi in polvere e le spugne con superficie abrasiva: possono graffiare irrimediabilmente la superficie.
! Non utilizzato mai pulitori a vapore o ad alta pressione per la pulizia dell'apparecchio.
- Per una manutenzione ordinaria, è sufficiente lavare il piano con una spugna umida, asciugando quindi con una carta assorbente per cucina.
- Se il piano è particolaremente sporco, strofinare con un prodotto specifico per la pulizia delle superfici in vetroceramica, sciacquare e asciugare.
- Per rimuovere gli accumuli di sporco più consistenti servirsi dell'apposto raschietto fornito in dotazione. Intervenire non appena possibile, perché attendere che l'apparecchio si via raffreddato, per evitare l'incrostazione dei residui. Eccellenti risultati si possono ottenere usingando una spugnetta in filo d'acciaio inossidabile - specifica per piani in vetroceramica - imbevuta di acqua e sapone.
! Il raschetto in dotazione è tagliente: utilizzarlo con attenzione.
- In caso sul piano cottura si fosso raccidentalmente fusi oggetti o materiali quali plastica o zucchero, rimuoverli con il raschietto immediatamente, finché la superficie è ancora calda.
- Una volta pulito, il piano può essere trattato con un prodotto specifico per la manutenzione e la protezione: la pellicola invisibile lasciata da quello prodotto protegge la superficie in caso di scolamenti durante la cottura. Si raccomanda di eseguire queste operazioni con l'apparecchio tiepido o freddo.
- Ricordarsi sempre di risciacquare con acqua pulita e asciugare accuratamente il piano: i residui di prodotti potrebbero infatti incrostarsi durante la successiva cottura.
Telaio in acciaio inox (solo nei modelli con cornice)
L'acciaio inossidabile più macchiarsi per effetto di un'acqua molto calcarea lasciata per un periodo di tempo prolongato a contatto dello stesso oppure a causa di prodotti per la pulizia contententi fosforo. Si consiglia di sciacquare abbondamente e asciugare con cura dopo la pulizia del piano. In caso di versamenti d'acqua, intervenire rapidamente asciugando con cura.
! Alcuni piani cottura hanno una cornice in alluminio somigliante all'acciaio inox. Non utilizzato prodotti per la pulizia e lo sgrassaggio non idonei per l'alluminio.
Smontare il piano
Nel caso si renda necessario smontare il piano cottura:
- togliere le viti che fissano le molle di centraggio sui lati;
- allentare le viti dei ganci di fissaggio sugli angoli;
- estrarre il piano cottura dal vano del mobile.
! Raccommandiamo di evitare di accedere ai meccanismi interni per tentare una riparazione. In caso di guasto, contattare l'Assistenza.
Descrizione techniquei dei modelli
In queste tabelle sono riportati, modello per modello, i valori di assorbimento energetico, il tipo di elemento riscaldante (alogeno o radiante) e il diametro di ciascuna zona di cottura.
| Pianicottura | TT 8254 | TT 8054 | TT 7334 | |||
| Zone di cottura | Potenza (in W) | Diametro (in mm) | Potenza (in W) | Diametro (in mm) | Potenza (in W) | Diametro (in mm) |
| Posteriodex | H 2500 | 230 | R 2500 | 250 | H 1200 | 165 |
| Anteriodex | R 1200 | 165 | R 1200 | 165 | RO 1000/1800 | 165x270 |
| Posteriorsx | H 1050/2500 | 230 | ||||
| Anteriorsx | R 600 | 120 | ||||
| Centro | H 1800 | 200 | R 1800 | 200 | ||
| Sinistra | RO 600/1600/2400 | 190x275 | RO 1500/2400 | 190x285 | ||
| Potenza totale | 7900 | 7900 | 6100 | |||
| H = alogeno (haloring), R = radiante singolo, RO = radiante ovale, RD = radiante doppio, RT = radiante triplo | ||||||
| Pianicottura | TT 7054 | TT 7244 | TT 7064 | |||
| Zone di cottura | Potenza (in W) | Diametro (in mm) | Potenza (in W) | Diametro (in mm) | Potenza (in W) | Diametro (in mm) |
| Posteriodex | R 1200 | 165 | H 1200 | 165 | R 1200 | 165 |
| Anteriodex | RO 1000/1800 | 165x270 | H 1800 | 200 | R 1800 | 200 |
| Posteriorsx | R 1100/2500 | 250 | RT 800/1600/2500 | 250 | RT 800/1600/2500 | 250 |
| Anteriorsx | R 600 | 120 | R 600 | 120 | R 600 | 120 |
| Centro | ||||||
| Destra | ||||||
| Potenza totale | 6100 | 6100 | 6100 | |||
| H = alogeno (haloring), R = radiante singolo, RO = radiante ovale, RD = radiante doppio, RT = radiante triplo | ||||||
| Pianicottura | TTG 7324 | TT 6324 | TT 6224 | |||
| Zone di cottura | Potenza (in W) | Diametro (in mm) | Potenza (in W) | Diametro (in mm) | Potenza (in W) | Diametro (in mm) |
| Posteriodex | R 1400 | 180 | R 1400 | 180 | R 1400 | 180 |
| Anteriodex | H 1800 | 200 | H 1800 | 200 | H 1800 | 200 |
| Posteriorsx | H 1050/2500 | 230 | H 1050/2500 | 230 | H 2500 | 230 |
| Anteriorsx | R 1200 | 165 | R 1200 | 165 | R 1200 | 165 |
| Centro | ||||||
| Destra | ||||||
| Potenza totale | 6900 | 6900 | 6900 | |||
| H = alogeno (haloring), R = radiante singolo, RO = radiante ovale, RD = radiante doppio, RT = radiante triplo | ||||||
| Pianicottura | TT 6134 | TT 6054 | TT 6044 | |||
| Zone di cottura | Potenza (in W) | Diametro (in mm) | Potenza (in W) | Diametro (in mm) | Potenza (in W) | Diametro (in mm) |
| Posteriodex | R 1400 | 180 | R 1400 | 180 | R 1400 | 180 |
| Anteriedex | R 1800 | 200 | R 1800 | 200 | R 1800 | 200 |
| Posteriorsx | H 2500 | 230 | R 1100/2500 | 250 | R 2500 | 250 |
| Anteriorsx | R 1200 | 165 | R 600 | 120 | R 600 | 120 |
| Centro | ||||||
| Destra | ||||||
| Potenza totale | 6900 | 6300 | 6300 | |||
| H = alogeno (haloring), R = radiante singolo, RO = radiante ovale, RD = radiante doppio, RT = radiante triplo | ||||||
| Pianicottura | TT 6143 | TT 6234 | TT 6244 | |||
| Zone di cottura | Potenza (in W) | Diametro (in mm) | Potenza (in W) | Diametro (in mm) | Potenza (in W) | Diametro (in mm) |
| Posteriodex | R 1400 | 180 | H 1200 | 165 | ||
| Anteriedex | R 1800 | 200 | RO 1000/1800 | 165x270 | ||
| Posteriorsx | H 2500 | 230 | H 1050/2500 | 230 | H 1050/2500 | 230 |
| Anteriorsx | R 1200 | 165 | R 1200 | 165 | R 600 | 120 |
| Centro | ||||||
| Destra | R 600/1600/2400 | 190x275 | ||||
| Potenza totale | 6100 | 6900 | 6100 | |||
| H = alogeno (haloring), R = radiante singolo, RO = radiante ovale, RD = radiante doppio, RT = radiante triplo | ||||||
| Pianicottura | TT 6133 | |||||
| Zone di cottura | Potenza (in W) | Diametro (in mm) | ||||
| Posteriodex | ||||||
| Anteriedex | ||||||
| Posteriorsx | H 2500 | 230 | ||||
| Anteriorsx | R 1200 | 165 | ||||
| Centro | ||||||
| Destra | RO 1500/2400 | 190x285 | ||||
| Potenza totale | 6100 | |||||
| H = alogeno (haloring), R = radiante singolo, RO = radiante ovale, RD = radiante doppio, RT = radiante triplo | ||||||

Italiano, 1
GB
English,13
FR
Français, 25

Nederlandsl, 37
DE
Deutsch, 49
PT
Portugués, 61
TT 8254
TT 8054
TT 7334
TT 7054
TT 7244
TT 7064
TTG 7324
TT 6324
TT 6224
TT 6134
TT 6234
TT 6244
TT 6054
TT 6044
TT 6143
TT 6133
Contents
Installation, 14-16
Positioning
| Tensione tipo e Frequenza rete | Collegamenti elettrici | Morsettiera | ||||
| 400V 3-N ~ 50 Hz | 1 L1 | 2 L2 | 3 L3 | 4 N | 5 | Trifase 400 |
ManualeFacile