SE640CXM - Hob SMEG - Free user manual and instructions
Find the device manual for free SE640CXM SMEG in PDF.
Download the instructions for your Hob in PDF format for free! Find your manual SE640CXM - SMEG and take your electronic device back in hand. On this page are published all the documents necessary for the use of your device. SE640CXM by SMEG.
USER MANUAL SE640CXM SMEG
1 Heating element of 1.200 W.
2 Heating element of 1.800 W.
3 Heating element of 1.800 W.
4 Heating element of 1.200 W.
5 Residual heat indicators.
Maximum electric power: 6.000 W.
Model SE 631 (see fig. 2)
1 Heating element of 1.200 W.
2 Heating element of 1.800 W.
3 Halogen heating element of 1.800 W.
4 Heating element of 1.200 W.
5 Residual heat indicators.
Maximum electric power: 6.000 W.

Fig. 1

Fig. 2
Installation
Note
THE INSTALLATION AND FITTING WORK MUST BE CARRIED OUT BY AN AUTHORISED INSTALLATION TECHNICIAN ACCORDING TO APPLICABLE REGULATIONS.
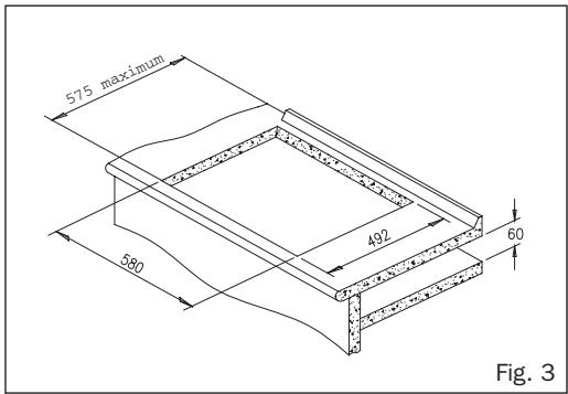
Selecting a location for the hob (see fig. 3)
To install these hobs, a hole with the dimensions specified in the figure, must be cut out of the top of the work surface furniture.
The fixing system for these hobs is designed for work surfaces of 20, 30 and 40~mm thick.

The underside of any furniture located vertically above the hob must be at a minimum distance of 60~mm
Anchoring of the hob (see fig. 4)
Once the hob location has been measured, the sealing strip must be fixed to the underside of the hob.
Attach the fixing clamps as shown in the figure, screwing them to the holes in the underside of the hob with the self-tapping screws pro

vided ( 4.2mm)
If the furniture thickness is 30mm or less, use the M5 self-tapping screws supplied to hold the hob in place, inserting them through the holes in the clamps. The screws will form a thread in these holes as they are screwed into them. These threads should be formed before the clamp is attached to the hob.

The clamps and the sealing strip are included in the delivery contents.
Electrical connections
Before connecting the hob to the electrical supply, check that the voltage and frequency of the supply correspond to those shown on the rating plate on the base of the hob.
The electrical connection should be carried out using a single-pole switch or a plug, provided this is accessible, of a rating suitable for the power of the hob and with a separation of at least 3mm between contacts, to ensure that the hob can be disconnected from the mains in case of emergency or for cleaning.
The supply must include a suitable earth connection, in compliance with applicable regulations.
If it should be necessary to replace the flexible hob mains cable, the new cable should be
GB
replaced by the manufacturer since special tools are required.
Avoid the mains cable resting against the hob or oven casing oven if installed in the same piece of furniture.
Note:
- The adhesives used in the manufacture of the furniture or for applying decorative laminas or the surface layer of the work top must be able to withstand temperatures of up to 100^ .
- When handling the hob prior to installation, take care to avoid cuts caused by sharp edges or corners.
- When kitchen furniture or equipment is being installed above the hob, cover it with a suitable protective sheet, to protect it against breakage due to blows or excessive pressure.
- Remember that the glass is not covered by the guarantee ir it is knocked or mishandled.
- Should the glass surface be broken, disconnect the hob from the electrical supply immediately to avoid the risk of electric shock.
- The manufacturer does not accept responsibility for faults or damage due to incorrect installation.
Technical Data
Technical data
COMMON CHARACTERISTICS OF ALL MODELS
The supply voltage and frequency are as indicated on the rating plate.
The protection against risk in case of fire is class "Y", so these hobs may be installed next to a wall, as shown in figure 5.

Note: While the hobs are in use, and for some time after they have been switched off, there will be hot areas that can cause burns. Keep children away from the hob.
Important:
Keep the guarantee beside this user manual since it contains important technical information.
Use and Maintenance
Using vitroceramic hotplates
Each of the vitroceramic hob's heating elements is connected to an energy compensator which controls the operating and stopping time for each one (more or less heat). (See fig. 6).
The hob is switched off when at "0", at "1" the operating time is short and the stopping time long. At the subsequent positions on the control the operating time increases and the stopping time decreases until reaching position "12" at which operation is continuous only being switched off when the hotplate thermostat is activated which cuts the power supply when reaching the maximum permitted temperature.

The control corresponding to each of the heating elements (hob) should be taken into account before switching on. To do so, each control has an indicator for the corresponding heating element.

The operation of one or more heating zones is shown by the on-off indicator.
Residual heat indicators
When a heating zone reaches a temperature exceeding 60 ± 15^ C the corresponding residual heat indicator illuminates, remaining switched on until the temperature decreases, even if the control is at "0". Nevertheless, special attention should always be paid to the temperature in the cooking zone given that the, fortunately remote, possibility exists that the indicator could break and not show the temperature of the aforementioned zone.
Suggestions and recommendations
To obtain the best results from this hob, observe the following recommendations: use pots with perfectly flat bases, since the greater the contact surface between the glass surface and the pot, the greater the heat transmission. To avoid dents in the bases we recommend the use of pots with thick bases. Figure 7 illustrates how pots with dented or concave bases have reduced contact surfaces.


Good
(B) Bad
Fig. 7
- It is not recommended to use pots with a smaller diameter than that of the circle marked on the glass.
- Place the cooking pots properly centred on
GB
the hotplate outlines marked on the glass.
- Dry the bases of pots before placing them on the vitroceramic hob top.
- Never leave plastic objects or utensils, or aluminium foil on the vitroceramic hob.
Take care not to scrape the surface of the hob with pots with sharp edges or corners. - Do not switch on the hob if there is no pot on the zone to be used.
- Do not heat plastic recipients on the hob.
- Cooking pots must be made of materials that will not melt onto the glass of the hob.
- The glass will withstand a certain level of impact from large recipients with no sharp edges. Care should be taken to avoid impacts with small, pointed utensils.
When the halogen heating elements are in use it is recommended to avoid making eye contact with them to prevent any injury being caused.
Take care to prevent sugar or products that contain sugar from spilling onto the glass since when hot they could react with the glass and damage its surface.
Cleaning and maintenance
To keep the vitroceramic hob in prime condition only use suitable products and utensils for cleaning. Vitroceramic hobs should be cleaned after every use, when they are warm or cold. This makes cleaning easier, avoiding accumulated stains from several uses.
Never use aggressive or abrasive cleaning products that could scratch the surface (see the table on the next page of common cleaning products to be used) nor cleaning equipment using steam as a cleaning agent.
CARE OF THE GLASS SURFACE
When cleaning the hob the degree of staining must be taken into account, using appropriate products and utensils in each case.
Light stains
Light stains that have not hardened or stuck to the surface can be removed with a damp cloth and a gentle detergent or warm soapy water.
Hardened stains
Stubborn stains and grease can be removed using special cleaning products for vitroceramic hobs following the manufacturer's instructions.
Baked-on stains can be removed using a scraper with a sharp edge.
Coloured iridescent stains: These are caused by recipients that have dry grease stains on the base or by the presence of grease between the glass and the pot during cooking. They can be removed using nickel cleaning pads and water or a special cleaning product for vitroceramic surfaces.
Plastic utensils and sugar or sugar-containing foods that have melted onto the surface can be removed immediately using a scraper while still hot.
RECOMMENDED CLEANING PRODUCTS
| Product | Can be used for cleaning... | |
| ... the glass? | ... the frame? | |
| Gentle liquid detergents | YES | YES |
| Powder or aggressive detergents | NO | NO |
| Special vitroceramic cleaners | YES | YES |
| Grease removal sprays (ovens, etc.) | NO | NO |
| Soft cleaning cloths | YES | YES |
| Kitchen roll | YES | YES |
| Dish cloths | YES | YES |
| Nickel cleaning pads (never dry) | YES | NO |
| Steel cleaning pads | NO | NO |
| Hard (green) synthetic cleaning pads | NO | NO |
| Soft (blue) synthetic cleaning pads | YES | YES |
| Scrapers for glass | YES | NO |
| Liquid polish for domestic equipment and / or glass | YES | YES |
Please note:
- Handle cleaning scrapers with care as they have sharp edges that can cause cuts!
- Only use the edge of the scraper to clean the glass. Avoid touching the glass with the body of the scraper as this could scratch the surface.
- Use blades which are in perfect condition and immediately replace them at the first sign of wear.
After using the scraper retract the blade and lock it in the retracted position (see figure 8).

Changes in the colour of the glass
Colour changes do not affect the operation or reliability of the hob. They are normally caused by inadequate cleaning or defective recipients.
Metallic reflections are caused by metallic recipients sliding across the glass surface. They can be removed by thorough cleaning using a special product for cleaning vitroceramic hobs although it may be necessary to repeat the cleaning process several times.
GB
Deterioration of surface markings is caused by using abrasive cleaning products or recipients with irregular bases that scrape off the silk-screened markings.
Pots may stick to the surface due to a substance melting between them. Never try to pull the pot away when cold! This could break the glass.
Never stand on the glass nor rest your weight on it as this could break it and lead to cuts.
Do not store objects on top of the glass surface.
FRAME MAINTENANCE
Use a damp cloth or lukewarm soapy water for cleaning. If the stains are hard to remove use a special vitroceramic cleaning product or liquid polish for electrical household appliances. Apply and spread, rubbing the undiluted product, leave it to take effect and remove it with a dry cloth. Do not use metallic or synthetic cleaning pads.
Should the hob lose its shine use a polish for electrical household appliances to help it regain its original appearance
Troubleshooting
| Fault | Possible cause | Solution |
| Neither the hotplates nor the indicators work | ||
| The mains cable is not connected. | Connect the mains cable. | |
| The recipient sticks to the glass | ||
| Some melted substance is between the recipient and the glass. Recipients with aggressive bases | Turn the heating zone to full power and try to remove. Check the bases of the recipients and do not slide then along the glass surface. | |
ManualGo.com