AK80LS1 - Fan Air King - Free user manual and instructions
Find the device manual for free AK80LS1 Air King in PDF.
User questions about AK80LS1 Air King
0 question about this device. Answer the ones you know or ask your own.
Ask a new question about this device
Download the instructions for your Fan in PDF format for free! Find your manual AK80LS1 - Air King and take your electronic device back in hand. On this page are published all the documents necessary for the use of your device. AK80LS1 by Air King.
USER MANUAL AK80LS1 Air King
IMPORTANT INSTRUCTIONS -
OPERATING MANUAL
Models:AK50S,AK80LS-1,AK80,AK90
AK110PN, AK110, AK130

Exhaust Fan

READ AND SAVE THESE INSTRUCTIONS
READ CAREFULLY BEFORE ATTEMPTING TO ASSEMBLE, INSTALL, OPERATE OR MAINTAIN THE PRODUCT DESCRIBED. PROTECT YOURSELF AND OTHERS BY OBSERVING ALL SAFETY INFORMATION. FAILURE TO COMPLY WITH INSTRUCTIONS COULD RESULT IN PERSONAL INJURY AND/OR PROPERTY DAMAGE!

RETAIN INSTRUCTIONS FOR FUTURE REFERENCE.



GENERAL SAFETY INFORMATION
When using electrical appliances, basic precautions should always be followed to reduce the risk of fire, electric shock and injury to person, including the following:






WARNING: TO REDUCE THE RISK OF FIRE, ELECTRIC SHOCK AND INJURY TO PERSON, OBSERVE THE FOLLOWING:
a) Use this unit only in the manner intended by the manufacturer. If you have questions, contact the manufacturer.
b) Before servicing or cleaning the unit, switch power off at service panel and lock the service disconnecting means to prevent power from being switched on accidentally. When the service disconnecting means cannot be locked, securely fasten a prominent warning device, such as a tag, to the service panel.



WARNING: TO REDUCE THE RISK OF FIRE, ELECTRIC SHOCK AND INJURY TO PERSON, OBSERVE THE FOLLOWING:
a) Installation work and electrical wiring must be done by qualified person(s) in accordance with all applicable codes and standards, including fire-related construction.
b) Sufficient air is needed for proper combustion and exhausting of gases through the flue (chimney) of fuel burning equipment to prevent back drafting. Follow the heating equipment manufacturer's guideline and safety standards such as those published by the National Fire Protection Association (NFPA) and the American Society for Heating, Refrigeration, and Air Conditioning Engineers (ASHRAE), and the local code authorities.
c) When cutting or drilling into wall or ceiling, do not damage electrical wiring and other hidden utilities.

CAUTION: FOR GENERAL VENTILATING USE ONLY. DO NOT USE TO EXHAUST HAZARDOUS OR EXPLOSIVE MATERIALS AND VAPORS.
d) Ducted fans must always be vented to the outdoors.
e) This unit must be grounded.
f) To avoid motor bearing damage and noisy and/or unbalanced impellers, keep drywall spray, construction dust, etc. off power unit.
g) Read all instructions before installing or using exhaust fan.

WARNING: TO REDUCE THE RISK OF FIRE, ELECTRIC SHOCK, DO NOT USE THIS FAN WITH ANY SOLID-STATE SPEED CONTROL DEVICE.
a) If this unit is to be installed over a tub or shower, it must be marked as appropriate for the application and be connected to a GFCI (Ground Fault Circuit Interruptions) - protected branch circuit.

WARNING: DO NOT USE IN KITCHENS.

WARNING: THE DUCTING FROM THIS FAN TO THE OUTSIDE OF THE BUILDING HAS A STRONG EFFECT
ON THE AIR FLOW, NOISE AND ENERGY USE OF THE FAN. USE THE SHORTEST, STRAIGHTEST DUCT ROUTING POSSIBLE FOR BEST PERFORMANCE, AND AVOID INSTALLING THE FAN WITH SMALLER DUCTS THAN RECOMMENDED. INSULATION AROUND THE DUCTS CAN REDUCE ENERGY LOSS AND INHIBIT MOLD GROWTH. FANS INSTALLED WITH EXISTING DUCTS MAY NOT ACHIEVE THEIR RATED AIRFLOW.
SAVE THESE INSTRUCTIONS
INSTALLATION INSTRUCTIONS

CAUTION:MAKE SURE POWER IS SWITCHED OFF AT SERVICE PANEL BEFORE STARTING INSTALLATION.
SECTION 1
Preparing the Exhaust Fan
- Unpack fan from the carton and confirm that all pieces are present. In addition to the exhaust fan you should have:
1 - Grill
1 - Damper Assembly (attached)
4-Mounting Rails
1 - Instruction/Safety Sheet
- Choose the location for your fan. To ensure the best air and sound performance, it is recommended that the length of ducting and the number of elbows be kept to a
minimum, the radius of each elbow be as large as possible for the installation, and that insulated hard ducting be used. This fan will require at least 8^ of clearance in the ceiling or wall, and will mount through drywall up to 3 / 4'' thick. The fan mounts between 16'' or 24'' on center joists using the 4 provided mounting rails. - Select the most convenient electrical knockout and remove using a straight-blade screw driver (Figure 1).
- No additional vibration deadening materials are needed for this fan.

SECTION 2
New Construction
- Install the rails into the mounting channel on the housing. Center the mounting channel in the slots on the housing, then from inside the housing tighten the mounting channel screws so the channel is securely in place. Position the housing next to the joist. Line up housing so that it will be flush with the finished ceiling. Secure the ends of the rails with screws or nails (not included) to the joists and slide the housing into the final position (Figure 2).

SECTION 3
Existing Construction
- Set housing in position between the joist and trace an outline onto the ceiling material (Figure 3). Set housing aside and cut opening, being careful not to cut or damage any electrical or other hidden utilities. Install the rails into the mounting channel on the housing. Center the mounting channel in the slots on the housing, then from inside the housing tighten the mounting channel screws so the channel is securely in place. Position the housing in the previously cut hole so that it is flush with the finished ceiling. Secure the ends of the rails to the joists (Figure 2).

SECTION 4
Ducting
NOTE: 4^th OR LARGER RIGID DUCT IS RECOMMENDED FOR BEST PERFORMANCE.

CAUTION: ALL DUCTING MUST COMPLY WITH LOCAL AND NATIONAL BUILDING CODES.
NOTE: The ducting from this fan to the outside of the building has a strong effect on the air flow, noise and energy use of the fan. Use the shortest, straightest duct routing possible for best performance, and avoid installing the fan with smaller ducts than recommended. Insulation around the ducts can reduce energy loss and inhibit mold growth. Fans installed with existing ducts may not achieve their rated air flow.
- Connect the ducting to the fan's duct collar (Figure 4). Secure in place using tape or screw clamp. Always duct the fan to the outside through a wall or roof cap. It is recommended that low restriction termination fittings be used.

- Ensure duct joints and exterior penetrations are sealed with caulk or other similar material to create an air-tight path to minimize building heat loss or gain and to reduce the potential for condensation. Place/wrap insulation around duct and/or fan in order to minimize possible condensation buildup within the duct, as well as building heat loss or gain (Figure 5).

SECTION 5
Wiring

CAUTION: MAKE SURE POWER IS SWITCHED OFF AT SERVICE PANEL BEFORE STARTING INSTALLATION.

CAUTION: ALL ELECTRICAL CONNECTIONS MUST BE MADE IN ACCORDANCE WITH LOCAL CODES, ORDINANCES, OR NATIONAL
ELECTRICAL CODE. IF YOU ARE UNFAMILIAR WITH METHODS OF INSTALLING ELECTRICAL WIRING, SECURE THE SERVICES OF A QUALIFIED ELECTRICIAN.
NOTE: This unit may include a side access panel for wiring that does not require the removal of the fan's blower assembly. If you choose to wire the unit from the inside, you will need to remove the blower assembly and internal wiring compartment. Both methods are equally effective.
1a. External Wire Compartment (Not included with all models): Remove the wire compartment cover screw and place cover in a secure place (Figure 6).

1b. Internal Wire Compartment: Remove the screw holding the venturi in place. Lift the venturi up and at an angle to slide it out of the housing (Figure 7). Remove the wire compartment cover screw and place the cover in a secure place (Figure 8).

NOTE: If the fan motor plug is connected to the fan housing receptacle, unplug so the blower assembly can be completely removed.

- Run wiring from an approved wall switch carrying the appropriate rating. One neutral (white), one ground (green or bare copper), and one hot (black lead connected to the switch). Secure the electrical wires to the housing with an approved electrical connector. Make sure you leave enough wiring in the box to make the connection to the fan's receptacle.
- From where you have chosen to access the fan's junction box, connect the White wire from the house to the White wire from the fan's receptacle. Connect the Black wire from the wall switch to the Black wire from the fan's receptacle. Connect the ground wire from the house to the Green wire from the fan's receptacle (Figure 9). Use approved methods for all connections.

NOTE: The fan's receptacle wires might need to be pulled outside compartment for connection. Only pull the three loose wires outside of compartment. Additional wires will be present.
- Carefully tuck wire back inside wire compartment and replace wire compartment cover securing with the screw that was removed earlier.
SECTION 6
Completing the Installation
- Use a sealant appropriate for contact with the building materials present and for the temperature requirements of the installation to prevent air leakage from unconditioned spaces is recommended. If gaps between unit housing and ceiling are great, additional material (backing rod, ceiling material) may be required.
NOTE: This fan is rated for direct insulation contact (Type IC) and it is recommended that this fan be completely covered by insulation in order to reduce heat loss or gain to unconditioned space.
- If the fan's blower assembly was removed during the wiring process, reinstall the blower by reversing the directions in Section 5 (Wiring), Step 1b.
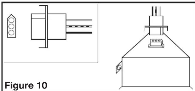
- Plug the fan's quick connect motor cord into the receptacle. This cord will only fit one way into the receptacle (Figure 10).

- Install the grill by squeezing the two ends of the springs together and installing them up into the slots on the fan's housing. Push the grill up into position (Figure 11).

- Restore power and test your installation.
SECTION 7
Use and Care

CAUTION:MAKE SURE POWER IS SWITCHED OFF AT SERVICE PANEL BEFORE SERVICING THE UNIT.
- Cleaning the Grill: Remove grill and use a mild detergent, such as dishwashing liquid, and dry with a soft cloth. NEVER USE ANY ABRASIVE PADS OR SCOURING POWERS. Completely dry grill before reinstalling. Refer to instructions in Section 6 Finishing the Installation, to reinstall grill.
- Cleaning the Fan Assembly: Wipe all parts with a dry cloth or gently vacuum the fan. NEVER IMMERSE ELECTRICAL PARTS IN WATER.
CALIFORNIA RESIDENTS ONLY:

WARNING: THIS PRODUCT CAN EXPOSE YOU TO A CHEMICAL [OR CHEMICALS] KNOWN TO THE STATE OF CALIFORNIA TO CAUSE CANCER.
![Air King AK80LS1 - WARNING: THIS PRODUCT CAN EXPOSE YOU TO A CHEMICAL [OR CHEMICALS] KNOWN TO THE STATE OF CALIFORNIA TO CAUSE CANCER. - 1](/content/2026/03/529585/images/848532626c6756d19f178d246f1053fb8f20acbfbd24ad2c79c22b2c2a0d0010.jpg)
WARNING: THIS PRODUCT CAN EXPOSE YOU TO A CHEMICAL [OR CHEMICALS] KNOWN TO THE STATE OF CALIFORNIA TO CAUSE REPRODUCTIVE TOXICITY.
Troubleshooting Guide
| Trouble Probable Cause Suggested Remedy | ||
| 1. Fan does not operate when the switch is on. | 1a. A fuse may be blown or a circuit tripped. 1b. Connector plug from motor is not plugged in. 1c. Wiring is not connected properly. 1d. Motor has stopped operating. | 1a. Replace fuse or reset circuit breaker. 1b. Turn off power to unit. Remove Grill and plug motor into receptacle in housing. Restore power to unit. 1c. Turn off power to unit. Check that all wires are connected. 1d. Replace motor. |
| 2. Fan is operating, but air moves slower than normal. | 2. Obstruction in the exhaust ducting. | 2. Check for any obstructions in the ducting. The most common are bird nests in the roof cap or wall cap where the fan exhausts to the outside. |
| 3. Fan is operating louder than normal | 3a. Motor is loose. 3b. Fan blade is hitting housing of unit. | 3a. Turn off power to unit. Remove grill and check that all screws are fully tightened. Restore power to unit. 3b. Call your dealer for service. |
LIMITED WARRANTY
WHAT THIS WARRANTY COVERS: This product is warranted against defects in workmanship and/or materials.
HOW LONG THIS WARRANTY LASTS: This warranty extends only to the original purchaser of the product and lasts for five (5) years from the date of original purchase or until the original purchaser of the product sells or transfers the product, whichever first occurs.
WHAT AIR KING WILL DO: During the warranty period, Air King will, at its sole option, repair or replace any part or parts that prove to be defective or replace the whole product with the same or comparable model.
WHAT THIS WARRANTY DOES NOT COVER: This warranty does not apply if the product was damaged or failed because of accident, improper handling or operation, shipping damage, abuse, misuse, unauthorized repairs made or attempted. This warranty does not cover shipping costs for the return of products to Air King for repair or replacement. Air King will pay return shipping charges from Air King following warranty repairs or replacement
ANY AND ALL WARRANTYES, EXPRESSED OR IMPLIED (INCLUDING, WITHOUT LIMITATION, ANY IMPLIED WARRANTY OF MERCHANTABILITY), LAST ONE YEAR FROM THE DATE OF ORIGINAL PURCHASE OR UNTIL THE ORIGINAL PURCHASER OF THE PRODUCT SELLS OR TRANSFERS THE PRODUCT, WHICHEVER FIRST OCCURS AND IN NO EVENT SHALL AIR KING'S LIABILITY UNDER ANY EXPRESS OR IMPLIED WARRANTY INCLUDE (I) INCIDENTAL OR CONSEQUENTIAL DAMAGES FROM ANY CAUSE WHATSOEVER, OR (II) REPLACEMENT OR REPAIR OF ANY HOUSE FUSES, CIRCUIT BREAKERS OR RECEPTACLES. NOTWITHSTANDING ANYTHING TO THE CONTRARY, IN NO EVENT SHALL AIR KING'S LIABILITY UNDER ANY EXPRESS OR IMPLIED WARRANTY EXCEED THE PURCHASE PRICE OF THE PRODUCT AND ANY SUCH LIABILITY SHALL TERMINATE UPON THE EXPIRATION OF THE WARRANTY PERIOD.
Some states and provinces do not allow limitations on how long an implied warranty lasts, or the exclusion or limitation of incidental or consequential damages, so these exclusions or limitations may not apply to you. This warranty gives you specific legal rights. You may also have other rights which vary from state to state and province to province. Proof of purchase is required before a warranty claim will be accepted.
CUSTOMER SERVICE:
Toll-Free (800) 465-7300
Our Customer Service team is available to assist you with product questions, service center locations, and replacement parts. They can be reached Monday through Friday, 8am-4pm Eastern. Please have your model number available, as well as the type and style (located on the label inside of your product).
Please do not return product to place of purchase.
www.airkinglimited.com
PARTS FOR DISCONTINUED, OBSOLETE AND CERTAIN OTHER PRODUCTS MAY NOT BE AVAILABLE. DUE TO SAFETY REASONS, MANY ELECTRONIC COMPONENTS AND MOST HEATER COMPONENTS ARE NOT AVAILABLE TO CONSUMERS FOR INSTALLATION OR REPLACEMENT.
| # | Qty. | Description | Replacement Part # |
| 1 | 4 | Mounting Rails | 5S1299002 |
| 2 | 2 | Mounting Channel | 5S1202122 |
| 3 | 1 | Collar Assembly | 5S1299111 |
| 4 | 1 | Blower Assembly - AK50S,AK80LS-1, AK110, AK130 | 5S2202029 |
| 1 | Blower Assembly - AK80,AK90, AK110PN | 5S2202401 | |
| 5 | 1 | Wire Compartment | 5S1202052 |
| 6 | 1 | Grill | 5S1202005 |
| 7 | 2 | Grill Springs | 5S1202006 |
| 8 | 1 | External Wire Cover* | 5S1202007 |
| 9 | 1 | Motor Cap Harness Assembly | |
| AK50S | 5S9202510 | ||
| AK80LS-1 | 5S9202516 | ||
| AK80 | 5S9202513 | ||
| AK90 | 5S9202519 | ||
| AK110PN | 5S9202514 | ||
| AK110 | 5S2202012 | ||
| AK130 | 5S9202507 | ||
| * Not included with all models | |||

Installer: Installation Date:
Place of Purchase: Model Number:
INSTRUCTIONS IMPORTANTES -
MODE D'EMPLOI
Modélés:AK50S,AK80LS-1,AK80,AK90,
AK110PN, AK110, AK130
AirKing
Ventilation Products
Trouble Cause Possible Solution Suggested
EasyManual