RICHMOND DELUXE - Stoves STOVES - Free user manual and instructions

Find the device manual for free RICHMOND DELUXE STOVES in PDF.

📄 52 pages English EN 💬 AI Question
Notice STOVES RICHMOND DELUXE - page 2
View the manual : Français FR English EN

User questions about RICHMOND DELUXE STOVES

0 question about this device. Answer the ones you know or ask your own.

Ask a new question about this device

L'email reste privé : il sert seulement à vous prévenir si quelqu'un répond à votre question.

No questions yet. Be the first to ask one.

Download the instructions for your Stoves in PDF format for free! Find your manual RICHMOND DELUXE - STOVES and take your electronic device back in hand. On this page are published all the documents necessary for the use of your device. RICHMOND DELUXE by STOVES.

USER MANUAL RICHMOND DELUXE STOVES

Users Guide & Installation Handbook

STOVES RICHMOND DELUXE - Users Guide & Installation Handbook - 1

STOVES RICHMOND DELUXE - Users Guide & Installation Handbook - 2
Stoves Built-in Electric UK

Part No 083137206 Date 09/08/2017

CONTENTS

SAFETY
USING THE PRODUCT
- CLEANING
INSTALLATION INSTRUCTIONS
- TECHNICAL DATA
CUSTOMER CARE

INTRODUCTION

Thank you for buying this British-built appliance from us.

This guide book is designed to help you through each step of owning your new cooker, from installation to use. Please read it carefully before you start using your product, as we have endeavored to answer as many questions as possible, and provide you with as much support as we can.

If, however, you should find something missing, or not covered, please contact our Customer Care team. Their number is located on the back page of this book.

For customers outside the UK and Northern Ireland, please contact your local supplier.

When you dial this number you will hear a recorded message and be given a number of options. This indicates that your call has been accepted and is being held in a queue. Calls are answered in strict rotation as our Customer care representatives become available.

Alternatively, general information, spares and service information is available from our website. The address is located on the back page of this book.

WARRANTY

Your new appliance comes with our 12 month guarantee, protecting you against electrical and mechanical breakdown. To register your appliance please call 0844 481 0182, complete the registration form included or register online at the web address located on the back page of this book.

For full terms & conditions of the manufacturer's guarantee, refer to the website on the back of this book.

In addition, you may wish to purchase an extended warranty. A leaflet explaining how to do this is included with your appliance.

European Directives

STOVES RICHMOND DELUXE - European Directives - 1

As a producer and a supplier of cooking appliances we are committed to the protection of the environment and are in the

compliance with the WEEE directive. All our electric products are labelled accordingly with the crossed out wheeled bin symbol. This indicates, for disposal purposes at end of life, that these products must be taken to a recognised collection points, such as local authority sites/local recycling centres

This appliance Complies with European Community Directives (CE) for household and similar electrical appliances and Gas appliances where applicable.

This appliance conforms to European Directive 2009/125/EC regarding Eco design requirements for energy-related products

Our policy is one of constant development and improvement, therefore we cannot guarantee the strict accuracy of all of our illustrations and specifications - changes may have been made subsequent to publishing.

WARNING

  • During use the appliance becomes hot. Care should be taken to avoid touching heating elements.
  • The appliance and its accessible parts become hot during use. Care should be taken to avoid touching heating elements. Children less than 8 years of age shall be kept away unless continuously supervised. This appliance can be used by children aged from 8 years and above and persons with reduced physical sensory or mental capabilities or lack of experience and knowledge if they have been given supervision or instruction concerning the use of the appliance in a safe way and understand the hazards involved. Children shall not play with the appliance. Cleaning and user maintenance shall not be made by children without supervision.
  • Do not use harsh abrasive cleaners or sharp metal scrapers to clean the oven door glass since they can scratch the surface, which may result in shattering of the glass.
  • Do not use a steam cleaner on any cooking range, hobs and oven appliances.
  • Ensure that the appliance is switched off before replacing the lamp to avoid electric shock.
  • Never put items directly on the base of the oven or cover the oven with foil, as this can cause the base element to overheat.

CAUTION

  • This appliance must not be installed behind a decorative door in order to avoid overheating.
  • The cooking process has to be supervised. A short term cooking process has to be supervised continuously.

Fire Safety Advice

If you do have a fire in the kitchen, don't take any risks - get everyone out of your home and call the Fire Brigade.

If you have an electrical fire in the kitchen:

  • Pull the plug out, or switch off the power at the fuse box - this may be enough to stop the fire immediately
  • Smother the fire with a fire blanket, or use a dry powder or carbon dioxide extinguisher
  • Remember: never use water on an electrical or cooking oil fire.

- Other Safety Advice

Servicing should be carried out only by authorised personnel.

  • Do not operate the appliance without the glass panel correctly fitted.
  • There is a risk of electric shock, so always make sure you have turned off and unplugged your appliance before starting. Always allow the product to cool down before you change a bulb.
  • Do not modify the outer panels of this appliance in any way.
    This appliance must be earthed.
  • The appliance must never be disconnected from the mains supply during use, as this will seriously affect the safety and performance, particularly in relation to surface temperatures becoming hot and gas operated parts not working efficiently. The cooling fan (if fitted) is designed to run on after the control knob has been switched off.
  • GAS WARNING! - If you smell gas: Do not try to light any appliance, Do not touch any electrical switch. Contact your local gas supplier immediately.

Caution: Accessible parts may be hot when the grill is used - young children should be kept away.

A grill pan handle can be purchased as an optional extra from our spares department quoting the part numbers below:

Handle - 082283705

Handle grip - 082469100

Complete grill pan pack - 012635666

Contact details can be found on the customer care page.

If cleaning the grill pan when it is hot, use oven gloves to move it.

Food for grilling should be positioned centrally on the trivet.

Using the grill

Important: The grill door must be fully open when the grill is used.

Open the grill door. Turn the control knob to the required setting. For best cooking results, we recommend that you preheat the dual grill for 3 minutes and the single grill for 5 minutes.

For grilling small quantities of food, the centre (economy) grill can be used with the grill trivet inverted. For large quantities of food, the full grill can be used.

Push the grill pan towards the back of the shelf, to position it under the grill.

The speed of grilling can be controlled by adjusting the grill setting or by selecting a higher or lower shelf position. For toasting, and for grilling foods such as bacon, sausages or steaks, use a higher shelf position. For thicker foods such as chops or chicken joint pieces, use a middle to low shelf position.

The grill trivet, inside the grill pan, can be inverted to give a high or low position, or it may be removed.

To switch off, turn the control knob to the off position.

Using aluminium foil

Using aluminium foil to cover the grill pan, or putting items wrapped in foil under the grill creates a fire hazard.

The cooling fan

Depending on your model, when the top oven is switched on, you will hear the cooling fan come on - this keeps the fascia and control knobs of the appliance cool during cooking. The fan may continue to operate for a period after the oven control has been switched off.

Types of grill

Variable rate grill:

has adjustable heat settings

1 (low) to 8 (high) or 5 (high) - depending on the model.

Single grill: has one grill element. The grill pan trivet MUST be inverted when using the single grill function.

Dual grill: has two grill elements which can be used together, or as a single grill.

Alternatively, you may have grill symbols similar to these below.

STOVES RICHMOND DELUXE - Types of grill - 1
or

STOVES RICHMOND DELUXE - Types of grill - 2

Full grill at 1/4 power

STOVES RICHMOND DELUXE - Types of grill - 3

Centre grill at full power

STOVES RICHMOND DELUXE - Types of grill - 4

Full grill area at full power

When you are cooking keep children away from the vicinity of the oven.

Caution: The top element gets extremely hot when in use, so take extra care to avoid touching it.

The top oven is a conventional oven.

Note: The top oven is not controlled by the programmer (if fitted).

To turn on the top oven

Turn the temperature control knob until the required temperature is selected.

The red thermostat indicator will come on until the selected temperature is reached, and then go off. It will turn on and off periodically as the thermostat operates to maintain the selected temperature.

To switch off, return the top oven control knob to the off position.

Important: Never put items directly on the base of the oven, or cover the oven base with foil, as this may cause the element to overheat. Always position items on the shelf.

The cooling fan

Depending on your model, when the top oven is switched on, you will hear the cooling fan come on - this keeps the fascia and control knobs of the appliance cool during cooking. The fan may continue to operate for a period after the oven control has been switched off.

Preheating

The oven must be preheated when cooking frozen or chilled foods, and we recommend preheating for yeast mixtures, batters, soufflés, and whisked sponges.

Preheat the oven until the indicator light switches off for the first time, this will take up to 15 minutes depending on the temperature selected.

If you are not preheating the oven, the cooking times in the following guide may need to be extended, as they are based on a preheated oven.

Shelf positions

There are either 3 or 4 shelf positions, depending on which model you have purchased. These are counted from the bottom of the oven upwards, so shelf position 1 is the lowest.

When cooking frozen or chilled food, use the highest possible shelf position, while allowing some clearance between the food and the top element.

The oven shelf must be positioned with the up-stand at the rear of the oven and facing up. Position baking trays and roasting tins on the middle of the shelves, and leave one clear shelf position between shelves, to allow for circulation of heat.

When using the top oven

As part of the cooking process, hot air is expelled through a vent at the top of the oven(s). When opening the oven door, care should be taken to avoid any possible contact with potentially hot air, since this may cause discomfort to people with sensitive skin. We recommend that you hold the underneath of the oven door handle.

TOP OVEN BAKING GUIDE

Cooking times

These times are based on cooking in a preheated oven.

These cooking times are approximate, because the size and type of cooking dish will influence time as personal preferences.

Shelf positions

As a general guide, when cooking frozen or chilled food, use the highest possible shelf position, while allowing some clearance between the food and the top element. Follow the instructions given on packaging.

Cooking temperatures

The temperature settings and time given in the Baking Guides are based on dishes made with block margarine. If soft tub margarine is used, it may be necessary to reduce the temperature setting. If a recipe gives a different temperature setting to that shown in the guide, the recipe instruction should be followed.

Because the top oven is more compact, it may be necessary to reduce cooking temperatures specified in recipes by up to 20^ .

Use the baking guide as a reference for determining which temperatures to use.

ItemTemperature (℃)Shelf PositionApproximate cooking time
Small cakes180115 - 20 mins
Victoria sandwich (2 x 180mm / 7")160120 - 25 mins
Swiss roll20018 - 12 mins
Semi rich fruit cake (180mm x 7")14012½ - 2¾ hours
Scones215110 - 15 mins
Meringues90 - 10012 - 3 hours
Shortcrust pastry200 - 2101Depends on size & type of cook- ing dish & also the filling
Puff / flaky pastry200 - 2101
Choux pasrty200 - 2101
Biscuits160 - 200210 - 20 mins
Sponge pudding150130 - 45 mins
Milk pudding14012 - 2½ hours

Accessible parts may be hot when the oven is used. Young children should be kept away.

To switch on the oven

Turn the oven control knob(s) to the required setting.

The red thermostat neon (if fitted) will come on until the selected temperature is reached and then go off; it will turn on and off periodically as the thermostat operates to maintain the selected temperature.

To switch off, return the control knob to the off position.

When using the oven

As part of the cooking process, hot air is expelled through a vent in the oven. When opening the oven door, care should be taken to avoid any possible contact with potentially hot air, since this may cause discomfort to people with sensitive skin. We recommend that you hold the underneath of the oven door handle.

PREHEATING

Fanned oven

When cooking sensitive items such as souffle and Yorkshire puddings or, when cooking bread, we recommend that the oven is preheated until the neon switches off for the first time. For any other types of cooking, a preheat may not be required.

Conventional oven

Preheating is always required

Manual Operation (fanned only)

The programmer must be set to manual operation before the main oven can be used. If A (Auto) is on the programmer display, return the oven to manual by pressing the up and down buttons simultaneously Any programme which has been set is cancelled.

The cooling fan

Depending on your model, when the top oven is switched on, you will hear the cooling fan come on - this keeps the fascia and control knobs of the appliance cool during cooking. The fan may continue to operate for a period after the oven control has been switched off.

OVEN FURNITURE

Oven shelves

The oven shelf must be positioned with the upstand at the rear of the oven and facing upwards.

Position baking trays and roasting tins on the middle of the shelves.

Baking tray and roasting tins

For best cooked results and even browning, the recommended size baking trays and roasting tins that should be used are as follows;

Baking tray 350mm× 250mm

This size of baking tray will hold up to 12 small cakes.

Roasting tin 370mm x 320mm

We recommend that you use good quality cookware. Poor quality trays and tins may warp when heated, leading to uneven baking results.

Slow cooking (S Setting or 100^

Make sure that frozen foods are thoroughly thawed before cooking.
- Do not slow cook joints of meat or poultry weighing more than 2 14 ~kg / 4 12 lb .
- Preheat the oven to 170^ and cook for 30 minutes, then adjust the oven control to or 100^ (slow cook setting) for the remainder of the cooking time.
- Slow cooking times will be about 3 times as long as conventional cooking times.
- Do not open the oven door unnecessarily during slow cooking, as this will result in heat loss at low temperatures.
Always use dishes with tightly fitting lids. To rectify badly fitting lids, place foil over the dish underneath the lid.

Aluminium foil

Use foil only to cover food or cooking dishes, using foil to cover the shelves or oven base creates a fire hazard.

Cooking with a fanned oven

As this is a high efficiency oven, you may notice the emission of steam from the oven when the door is opened. Please take care when opening the door.

If you are used to cooking with a conventional oven you will find a number of differences to cooking with a fan oven which will require a different approach:

There are no zones of heat in a fan oven as the convection fan at the back of the oven ensures an even temperature throughout the oven.

This makes it ideal for batch baking - eg; when planning a party as all the items will be cooked within the same length of time.

Foods are cooked at a lower temperature than a conventional oven, so conventional recipe temperature may have to be reduced. Please refer to the conversion chart.

Preheating is generally not necessary as a fan oven warms up quickly.

There is no flavour transference in a fan oven, which means you can cook strong smelling foods such as fish at the same time as mild foods - eg; milk puddings.

When batch baking foods that will rise during cooking - eg; bread - always ensure that enough space has been left between the shelves to allow for the rise.

Notes:

When 2 or more shelves are being used, it may be necessary to increase the cooking time slightly.

Because the 2 oven shelves are wider than in many ovens, it is possible to cook 2 items per shelf - eg; 2 victoria sandwiches or 2 casseroles.

Although you need to keep in mind the points 'To help the air circulate freely' with careful choice of dishes and tins, it is possible to cook a complete meal, and perhaps something else for the freezer, in the oven at the same time.

When roasting meats, you will notice that fat splashing is reduced, which is due in part to the lower oven temperatures, and will help keep cleaning of the oven to a minimum.

Because a fan oven has an even temperature throughout the oven, there is no need to follow the shelf positions given in the baking guide.

There is no need to interchange dishes onto different shelves part way through cooking, as with a conventional oven.

To help the air circulate freely

Position the shelves evenly within the oven and maintain a clearance from the oven roof and base.

If more than one cooking dish or baking tray is to be used on a shelf, leave a gap of at least 25mm between the items themselves and the oven interior.

Defrosting and cooling in the main oven

To defrost frozen foods, turn the main oven control to the defrost position, place the food in the centre of the oven and close the door.

To cool foods after cooking prior to refrigerating or freezing, turn the main oven control to the defrost position and open the door.

Defrosting times

Small or thin pieces of frozen fish or meat - eg; fish filets, prawns & mince will take approximately 1 - 2 hours.

Placing the food in a single layer will reduce the thawing time.

A medium sized casserole or stew will take approximately 3 - 4 hours.

A 1 12 ~kg / 3 lb oven ready chicken will take approximately 5 hours, remove the giblets as soon as possible.

Be safe

Do not defrost stuffed poultry using this method.

Do not defrost larger joints of meat and poultry over 2kg / 4lb using this method.

Never place uncooked food for defrosting next to cooked food which is to be cooled, as this can lead to cross contamination.

Defrosting meat, poultry, and fish can be accelerated using this method but make sure they are completely thawed before cooking thoroughly. Place meat and poultry on a trivet in a meat tin.

MAIN OVEN BAKING GUIDE

Cooking times & temperatures

The temperature settings and times given in the baking guide are based on dishes made with block margarine. If soft tub margarine is used it may be necessary to reduce the temperature setting.

Allow enough space between shelves for food that will rise during cooking.

Do not place items on the oven base as this will prevent air circulating freely.

Note: This is a fanned oven, therefore some adjustment will have to be made to conventional cooking temperatures. The table below shows conventional cooking temperatures, fanned oven temperatures and gas marks. For optimum results,

conventional temperatures need to be converted to fanned oven temperatures.

For example, an item which would normally cook at a conventional temperature of 180^ , will now cook at the fanned oven temperature of 160^ .

Conventional temperature (°C)Fanned Oven (°C)Gas Mark
1001001/4
1101101/4
1301201/2
1401301
1501402
1601503
180-1901604-5
2001706
2201807
2301908
2502009
Food TypeTemperature settings (℃)Time Approx.Shelf Position
CakesConvFanned
Small cakes19016015 - 252 - 4
Victoria sandwich18016020 - 303
Semi rich fruit cake1501252.5HRS - 3HRS2
Christmas cake1501252.5HRS - 3HRS2
Puddings
Bread and butter pudding17015045 - 1hr3
Fruit crumble20017540 - 1hr3
Miscellaneous
Yorkshire pudding:
large22020040 - 484 - 5
small22020015 - 204 - 5
Shortcrust pastry200180Depends on filling4 - 5

Traditional fruit cakes

It should be remembered that ovens can vary over time, therefore cooking times can vary, making it difficult to be precise when baking fruit cakes.

It is necessary therefore, to test the cake before removal from the oven. Use a fine warmed skewer inserted into the centre of the cake. If the skewer comes out clean, then the cake is cooked.

  • Follow the temperatures suggested in the recipe and then adjust accordingly to the conversion table.
  • Do not attempt to make Christmas cakes larger than the oven can cope with, you should allow at least 25mm ( 1'' ) space between the oven walls and the tin.
    Always follow the temperatures recommended in the recipe.
  • To protect a very rich fruit cake during cooking, tie 2 layers of brown paper around the tin.
    We recommend that the cake tin is not stood on layers of brown paper, as this can hinder effective circulation of air.
  • Do not use soft tub margarine for rich fruit cakes, unless specified in the recipe.
    Always use the correct size and shape of tin for the recipe quantities.

Roast turkey

Roasting turkey involves cooking two different types of meat - the delicate light breast meat, which must not be allowed to dry out, and the darker leg meat, which takes longer to cook.

The turkey must be roasted long enough for the legs to cook, so frequent bast ing is necessary. The breast meat can be covered once browned.

Always make sure that the turkey is completely thawed and that the giblets are removed before cooking.
Turkey should be roasted at 160^ - 180^ (fanned) or 180^ - 200^ (conventional) for 20 minutes per 450g (1 lb), plus 20 minutes, unless packaging advises otherwise.
The turkey can be open roasted, breast side down, for half of the cook time, and then turned over for the remainder of the cooking time.
If the turkey is stuffed, add 5 minutes per 450g (1 lb) to the cooking time.
If roasting turkey covered with foil, add 5 minutes per 450g (1 lb) to the cooking time.

To test if the turkey is cooked, push a fine skewer into the thickest part of the thigh. If the juices run clear, the turkey is cooked. If the juices are still pink, the turkey will need longer cooking.

Roasting guide

The times given in the roasting guide are only approximate, because the size and age of the bird will influence cooking times as will the shape of a joint and the proportion of the bone.

Frozen meat should be thoroughly thawed before cooking. For large joints it is advisable to thaw over night.

Frozen poultry should be thoroughly thawed before cooking. The time required depends on the size of the bird - eg; a large turkey may take up to 48 hours to thaw.

Use of a trivet with a roasting tin will reduce fat splashing and will help to keep the oven interior clean. Alternatively, to help reduce fat splashing, potatoes or other vegetables can be roasted around the meat/poultry.

Notes:

  • When cooking stuffed meat or poultry calculate the cooking time from the total weight of the meat plus the stuffing.
  • For joints cooked in foil or covered roasters, and for lidded casseroles, add 5 minutes per 450g (1lb) to the calculated cooking time.
  • Smaller joints weighing less than 1.25kg ( 212lb ) may require 5 minutes per 450g ( 1lb ) extra cooking time.
  • Position the oven shelf so that the meat or poultry is in the centre of the oven.
    It is recommended that the appliance is cleaned after open roasting.
Cook in main oven at: 160°C - 180°C (fanned) 180°C - 200°C (conventional)Approximate Cooking Time (preheated oven)
BeefRare Medium Well done20 minutes per 450g (1lb), plus 20 minutes 25 minutes per 450g (1lb), plus 25 minutes 30 minutes per 450g (1lb), plus 30 minutes
LambMedium Well Done25 minutes per 450g (1lb), plus 25 minutes 30 minutes per 450g (1lb), plus 30 minutes
Pork35 minutes per 450g (1lb), plus 35 minutes
Poultry20 minutes per 450g (1lb), plus 20 minutes

Oven & Grill Functions

The chart below details all of the functions which are available. Your oven may not have all of the functions shown here.

SymbolFunction / FeatureRecommended Uses
Conventional GrillThis function cooks food from the top and is ideal for a range of food from toast to steaks. As the whole grill is working you can cook large quantities of food.
Economy GrillFor smaller quantities of food, but is still ideal for any-thing from toast to steaks.
Fanned GrillThe fan allows heat to circulate around the food. Ideal for thinner foods such as bacon, fish and gammon steaks. Foods do not require turning. Use with the oven door closed
Conventional OvenThis function is ideal for traditional roasting. The meat is placed in the middle of the oven, roast potatoes towards the top.
Top Heat OnlyThe heat is ideal for browning the tops of food as it is not as fierce as the grill following conventional or fanned cooking. Provides additional browning for dishes like Lasagna or Cauliflower cheese.
Base Heat OnlyThe base heat can be used to provide additional brown-ing for pizzas, pies and quiche. Use this function towards the end of cooking.
Fanned OvenThe even temperature in the oven makes this function suitable for batch baking, or batch cooking foods.
Fan and Base Heat OnlyUsed to cook open pies (such as mince pies) the base element ensures that the base is cooked while the fan allows the air to circulate around the filling - without being to intensive.
Intensive BakeSuitable for food with a high moisture content, such as quiche, bread and cheese cake. It also eliminates the need for baking pastry blind.
Defrosting and Cool-ingTo defrost foods, such as cream cakes/gateaux, use with the oven door closed. For cooling dishes prior to refrigeration, leave the door open.
°COven Temperature ControlUse to select the oven temperature.
Oven Selector ControlUse to select the oven function.
Lights OnlyUse when the oven is switched off and cold to aid cleaning the oven.

GRILLING IN THE MAIN OVEN

The main oven grill & fanned grill are fixed settings using the inner element only. Make sure that the programmer is set to manual before grilling. When using either grill function, invert the grill pan trivet and preheat for 5minutes.

Conventional grill

The door must be open when the grill is used for conventional grilling - either fully open or using the door stop position - open the door about 75mm and it will hold open.

If the grill door is closed while the grill is in use, the grill will cycle on and off at a high temperature, causing the door to become hot.

(i) Turn the selector control knob to the conventional grill setting.
(ii) Turn the oven temperature control knob to the full on setting.

Fanned grill

The door must be closed when the fanned grill is used.

When opening the door, take care to avoid skin contact with any steam which may escape from the cooking.

(i) Turn the selector control knob to the fan grill setting.
(ii) Turn the oven temperature control knob to the desired temperature setting.

When the fanned grill is selected, only the inner element will come on.

Caution: Accessible parts may be hot when the ovens are used, young children should be kept away.

The main oven is a multi-function oven, and may be used as a conventional oven or a fanned oven. It may also be used as a grill, or with one of the other oven functions.

Manual operation

The programmer must be set to manual operation before the main oven or grill functions can be used. If A (Auto) is on the programmer display, return the oven to manual operation by pressing the two end buttons.

To turn on the main oven

Step 1 - Select the function

Turn the selector control knob in either direction, until the function you require appears in the window.

Step 2 - Set the main oven control

If you have selected an oven cooking function, then simply turn the main oven temperature control knob to the required temperature - this brings on the neon indicator light, which will stay on until the oven reaches the required temperature. To switch off the main oven, return the control knob to the off position.

Automatic operation

See 'Programmer / Clock' section.

Using the main oven

Caution: Accessible parts may be hot when the appliance is in use - keep children away from the vicinity of the oven.

Never put items directly on the base of the oven or cover the oven base with foil, as this can cause the base element to overheat.

Manual operation

Set the programmer to manual operation. See 'Programmer / Clock' section. Turn the selector control knob to the symbol for the desired oven function. Turn the main oven temperature control knob to the desired temperature. The red thermostat indicator neon will come on and off until the selected temperature is reached and then go off; it will turn on and off periodically as the thermostat operates to maintain the selected temperature. To switch off the main oven, return the main oven control knob to the off position.

Automatic operation

See 'Programmer / Clock section.

Preheating

Always use the fan oven setting for preheating to save time and electricity. After the oven has been preheated on the fan oven setting, turn the selector control knob to the oven setting you require. The oven must be preheated when cooking frozen or chilled food, and we recommend preheating for yeast mixtures, batters, soufflés and whisked sponges, otherwise preheating is not necessary as a fan oven warms up quickly. Preheat the oven until the indicator neon switches off for the first time; this will take between 5 - 15 minutes, depending on the temperature selected.

To help the air circulate freely

  • Position the shelves evenly within the oven and maintain a clearance from the oven roof and base.
  • If more than one cooking dish or baking tray is to be used on a shelf, leave a gap of at least 25mm between the items themselves and the oven interior.
  • Allow enough space between shelves for food that will rise during cooking.
  • Do not place items on the oven base as this will prevent air from circulating freely.

MAIN OVEN FUNCTIONS

Conventional oven

STOVES RICHMOND DELUXE - Conventional oven - 1

(i) Turn the selector control knob to the conventional oven symbol.
(ii) Turn the main oven control knob to the required temperature.

The temperature you select corresponds to the temperature in the middle of the oven. The top heat comes from the outer element of the grill, and the base heat is under the oven base.

Top heat only

STOVES RICHMOND DELUXE - Top heat only - 1

(i) Turn the selector control knob to the top heat symbol.
(ii) Turn the main oven control to the required temperature.

Base heat only

STOVES RICHMOND DELUXE - Base heat only - 1

(i) Turn the selector control knob to the base heat symbol.
(ii) Turn the main oven control knob to the required temperature.

Fan oven

STOVES RICHMOND DELUXE - Fan oven - 1

(i) Turn the selector control knob to the fan oven symbol.
(ii) Turn the main oven control knob to the required temperature.

The fan oven comes on when the oven is switched on and circulates the air around the oven to give a fairly even temperature throughout the oven.

Fan and base heat only

STOVES RICHMOND DELUXE - Fan and base heat only - 1

(i) Turn the selector control to the fan and base heat symbol.
(ii) Turn the main control to the required temperature.

Intensive bake

STOVES RICHMOND DELUXE - Intensive bake - 1

(i) Turn the selector control to the intensive bake symbol.
(ii) Turn the main oven control to the required temperature.

Defrosting and cooling

STOVES RICHMOND DELUXE - Defrosting and cooling - 1

(i) Turn the selector control knob to

defrost

STOVES RICHMOND DELUXE - Defrosting and cooling - 2

(ii) Turn the oven control to the light symbol.

To defrost frozen foods, place food in the centre of the oven and close the door.

To cool foods after cooking prior to refrigeration or freezing, place food in the centre of the oven with the door open.

Be safe

  • Do not defrost stuffed poultry using this method.
  • Do not defrost larger joints of meat or poultry over 2kg / 4lb using this method.
  • Never place uncooked food which is to be defrosted next to cooked food which is to be cooled, as this can lead to cross contamination.

Please refer to the Cooking Guide for more information on using the Defrost function.

SLOW COOKING

Turn the selector control to either conventional oven or fanned oven.

Do not try to slow cook using any of the other oven functions.

For roasting joints of meat or poultry and for pot roasts, preheat the oven to 190^ - 200^ and cook for 30 minutes, then adjust the oven temperature control to 110 - 120^ for the remainder of the cooking time.

Always use the top half of the oven when slow cooking with the conventional oven function.
- Slow cooking times will be about three times as long as conventional cooking times.
Make sure that frozen foods are
thoroughly thawed before cooking.
- Do not slow cook joints of meat or poultry weighing more than 21/4 ~kg /
4 1/2lb. Always use the top half of the oven for slow cooking.

THE ALTERNATIVE PROGRAMMERS

There are two types of programmer covered in this section - push button & touch control. Both programmers have the same symbol variants & functions but may vary in their method of operation.

The push button programmer

Sym-bolSym-bolWhat is it?
-Down/minus Used to decrease cook / end time, remove minutes from the minute minder and adjust the time of day. Also for listening to and setting the alarm tone.
^+Up/plus Used to increase cook / end time, add minutes to the minute minder and adjust the time of day.
FUNC-TION orMODEFunction button Used to select the functions available on this timer. Press once for: Minute Minder. Press twice for: Cook time Press three times for: End time. How to use these functions is explained later on in this section.

The 'function' button in the centre is used for setting the minute minder and setting up the automatic cooking. See below for details.

STOVES RICHMOND DELUXE - The push button programmer - 1

Symbols on the LED display.

This 'A' symbol appears when either a semi, or fully automatic program is selected. This symbol will flash while a program is being set.

STOVES RICHMOND DELUXE - Symbols on the LED display. - 1

Once a program is set the symbol will light up, and remain lit until the alarm sounds, or the program is cancelled.

STOVES RICHMOND DELUXE - Symbols on the LED display. - 2

This bell symbol appears when the Minute Minder function has been selected.

While the Minute Minder is being set, the Bell symbol flashes. Once the length of time is set, the Bell symbol remains lit until the time runs down, or the function is cancelled.

STOVES RICHMOND DELUXE - Symbols on the LED display. - 3

This message and 'A' symbol appear when you are asked to set the length of time you require the oven to cook automatically for.Using the Up and Down buttons adjusts this accordingly.

STOVES RICHMOND DELUXE - Symbols on the LED display. - 4

This message and 'A' symbol appear when you are asked to enter in an end time, or when you would like the oven to switch itself off.

To set the time of day

STOVES RICHMOND DELUXE - To set the time of day - 1

STOVES RICHMOND DELUXE - To set the time of day - 2

  • Press the Up and Down buttons together for a few seconds, and release.
    The . in between the numbers on the LED Display will begin to flash.
    While the is flashing it is possible to adjust the time using the Up and Down buttons. Once the time has been set, allow approximately 30 seconds before using any of the other timer functions. This ensures that the time will remain correct.

To select an alarm tone

There are three tones to choose from.

  • Press and hold the down button to listen to the first tone.
  • Release the down button and press it again to listen to the second tone etc.
  • Releasing the down button after the tone has sounded will automatically select that tone.

Setting the minute minder

STOVES RICHMOND DELUXE - Setting the minute minder - 1

  • To set the Minute Minder, press the Function button once. The bell symbol will appear and start flashing. The flashing only lasts for 5 seconds so the time must be set within this time frame.
    Use the Up and Down button to set the length of time required. Once this has been done, the Minute Minder is set.
  • When the desired length of time has counted down the alarm will sound.
  • To cancel the tone, press any of the buttons.
  • To cancel the Minute Minder at any time, press the Up and Down buttons together.

Semi-automatic cooking

There are two types of semi automatic cooking available on this appliance.

The oven must be switched on, and in use to use either of these functions successfully.

The Duration method allows you to set the oven for a specific length of time. If a dish needed 2 hours to cook, then it would be possible for you to set the oven to turn off 2 hours later. This allows you to be sure that your food will be cooked for a set length of time and no longer.

The End Time method allows you to enter a specific time when you would like the oven to switch off. If you wish to leave the oven unattended, then it offers peace of mind that the oven will have turned itself off at the set time.

However, once the program is set then it cannot be adjusted. Extra time cannot be added, nor can the end time be extended.

To cancel the semi automatic programs, press both the Up and Down buttons together. This can be done at any time during the cooking process. Then if necessary, re program.

For the instructions on how to use both of these functions, please see the following page.

Fully automatic cooking

This function incorporates both a duration and an end time and is meant to be used when you wish to delay the start time.

We recommend that the first few times this function is used you are in the house, this will familiarise you with your oven and prevents food from being over cooked or under cooked.

Care must be taken when selecting foods for this function, it is not recommended for certain food items which may spoil, or are sensitive to being left.

It is also advisable to set the end time to be as close to your return as possible to prevent food being left standing.

SEMI-AUTOMATIC COOKING

The duration method

  • Press the Function button twice,(1) which will skip past the Minute Minder.
    The LED display will flash the word 'dur', (2) and the 'A' will flash on the left hand side of the display.
    Use the Up and Down buttons to set the length of time you want to cook for.(3) This must be done within 5 seconds or the time of day will show again.

Once this is done the oven will automatically switch off once the time has elapsed, and the alarm will sound.

To switch off the alarm, press any button. To view any remaining time press the function button twice.

The end time method

  • Press the Function button three times, which will skip past the Minute Minder and the Duration programmer. (4)
    The LED display will flash the word 'End' and the 'A' will flash on the left hand side of the display. (5)
    Use the Up and Down buttons to select the time the oven is required to turn off. (6)

Once this is done the oven will turn itself off at the time you have selected.

To switch off the alarm, press any button.

  1. The Duration method

STOVES RICHMOND DELUXE - The end time method - 1

2.

STOVES RICHMOND DELUXE - The end time method - 2

  1. The End Time method

STOVES RICHMOND DELUXE - The end time method - 3

5.

STOVES RICHMOND DELUXE - The end time method - 4

FULLY AUTOMATIC COOKING (EXAMPLE)

This programming method is best suited for when a delayed start time is required. Unlike the semi automatic methods this requires both the duration and the end time to be entered. The timer will work out the start time and begin cooking.

  • Press the function button twice to select the length of time your food will need. (7)
    The 'A' on the left hand side will flash and the 'dur' message will flash up. (8)
    Using the Up and Down buttons set the time you require within 5 seconds of the 'dur' message. (9)
    Press the function button three times until the 'A' flashes again and the 'End' messages appear. (10) & (11)
    Using the Up and Down buttons, set the time you would like the oven to switch off. (12)
  • Set the temperature of the oven and place the food inside.

While the automatic function is running, the 'A' will appear statically on the display, with the time.

Try to keep the end time as close to when you expect to return, this will prevent cooked food from being left standing in a warm oven.

The timer will calculate the appropriate start time.

To switch off the alarm, press any button.

STOVES RICHMOND DELUXE - FULLY AUTOMATIC COOKING (EXAMPLE) - 1
7

STOVES RICHMOND DELUXE - FULLY AUTOMATIC COOKING (EXAMPLE) - 2
8
9

STOVES RICHMOND DELUXE - FULLY AUTOMATIC COOKING (EXAMPLE) - 3

STOVES RICHMOND DELUXE - FULLY AUTOMATIC COOKING (EXAMPLE) - 4
10

STOVES RICHMOND DELUXE - FULLY AUTOMATIC COOKING (EXAMPLE) - 5
11
12

STOVES RICHMOND DELUXE - FULLY AUTOMATIC COOKING (EXAMPLE) - 6

The touch control programmer

There are three touch control icons for this timer - the table below shows you what the symbols look like, depending on the model type, & their functions.

Note - some functions require you to 'touch & hold' an icon for a few seconds, whilst others require you to just 'touch' the icon without holding.

The 'function' icon in the centre is used for setting the minute minder & setting up the automatic cooking - see below for details.

STOVES RICHMOND DELUXE - The touch control programmer - 1

Sym-bolSym-bolWhat is it?
-Down/minus Used to decrease cook / end time, remove minutes from the minute minder and adjust the time of day. Also for listening to and setting the alarm tone.
^+Up/plus Used to increase cook / end time, add minutes to the minute minder and adjust the time of day.
FUNC-TIONMODEFunction icon Used to select the functions available on this timer. Touch once for: Minute Minder. Touch twice for: Cook time Touch three times for: End time. How to use these functions is explained later on in this section.

Symbols on the LED display.

This 'A' symbol appears when either a semi, or fully automatic program is selected. This symbol will flash while a program is being set.

Once a program is set the symbol will light up, and remain lit until the alarm sounds, or the program is cancelled.

This Bell symbol appears when the Minute Minder function has been selected.

While the Minute Minder is being set, the Bell symbol flashes. Once the length of time is set, the Bell symbol remains lit until the time runs down, or the function is cancelled.

This message and 'A' symbol appear when you are asked to set the length of time you require the oven to cook automatically for. Using the Up and Down icons adjusts this accordingly.

This message and 'A' symbol appear when you are asked to enter in an end time, or when you would like the oven to switch itself off.

Setting the time of day

Touch & hold the centre (function) icon for a few seconds until the symbol between the numbers on the LED display flashes.

While the symbol is flashing, you can adjust the time of day by touching the plus & minus icons. Please note: the hours & minutes adjust quickly.

Important - once the time of day has been set, allow approximately 30 seconds before using any of the other programmer functions. This ensures that the time of day will remain correct.

Setting an alarm tone

Touch & hold the plus & minus icons simultaneously until the symbol flashes & you hear a beep - then touch the centre (function) icon.

Touch the minus icon to select the tone.

You can change the tone by repeatedly touching the minus icon - there are three tones to choose from.

Setting the minute minder

To set the minute minder, touch & hold the centre (function) icon until the bell symbol appears & begins to flash. Important - the flashing will last for approximately five seconds, so any setting must be carried out within this time frame.

Touch the plus & minus icons to set the length of time required. Once this has been done, the minute minder is set.

When the desired length of time has counted down, the alarm will sound. To cancel the tone, touch & hold any of the icons.

To cancel the minute minder at any time, touch & hold the plus & minus icons together.

Semi-automatic cooking

Method 1 - duration (switch off after set time period):

Touch & hold the centre (function) icon; the bell will flash & you will hear a beep. Touch the centre (function) icon again - this will skip past the minute minder function.

The display will flash the word 'dur' & the 'A' will flash on the left hand of the display.

Use the plus & minus icons to set the length of time you want to cook for. The flashing will last for approximately five seconds, so the setting must be done within this time frame or the time of day will show again.

Once the duration has been set, the oven will automatically switch off. When the set time has elapsed the alarm will sound. To switch the alarm off, touch any icon.

To view any remaining time, touch & hold the centre (function) icon & touch again.

To cancel the semi-automatic programme at any time, touch the plus & minus icons together.

Method 2 - end time (switch off at a set end time):

Touch & hold the centre (function) icon; the bell will flash & you will hear a beep. Touch the centre (function) icon again - twice - this will skip past the minute minder & duration functions.

The display will flash the word 'End' & the 'A' will flash on the left hand of the display.

Use the plus & minus icons to select the time the oven is required to switch off.

Once this is done the oven will switch itself off at the pre-selected time. To turn the alarm off, touch any icon.

To cancel the semi-automatic programme at any time, touch the plus & minus icons together.

Fully automatic cooking

This function allows the cooker to switch on & off automatically. It requires both the duration & the end time to be entered. The timer will work out the start time & begin cooking.

Touch & hold the centre (function) icon; the bell will flash & you will hear a beep. Touch the centre (function) icon again - this will skip past the minute minder function.

The display will flash the word 'dur' & the 'A' will flash on the left hand of the display.

Use the plus & minus icons to set the length of time you want to cook for. The flashing will last for approximately five seconds, so the setting must be done within this time frame or the time of day will show again.

Touch the centre (function) icon again - this skips past the minute minder & duration functions.

The display will flash the word 'End' & the 'A' will flash on the left hand of the display.

Use the plus & minus icons to select the time the oven is required to switch off.

Set the temperature of the oven & place the food inside. The timer will calculate the start time.

When this is done the oven will turn itself off at the time you have selected. To switch off the alarm, touch any icon.

To cancel the automatic programme at any time, touch the plus & minus icons together.

1.0 Overview of symbols & functions:

STOVES RICHMOND DELUXE - Overview of symbols & functions: - 1
FUNCTION

Display symbols:

Minute minder
Cooking time
End of cooking time
Time of day
Child lock
Cooking pot
AutoAutomatic mode
ManManual mode
PPyrolysis mode (OPTIONAL)
L1,L2,L3Acoustic signal
23:597-segment display
99:00Max. adjustable minute minder
23:59Max. adjustable cooking time
h:minDisplay hours:minutes
min:secDisplay minutes:seconds

1.1 Manual mode

The programmer remains in MANUAL mode if no COOKING TIME or END of COOKING TIME is selected & the symbol Man is displayed. The TIME of DAY is shown on the 7-segment display unless the MINUTE MINDER is active.

1.2 Automatic mode

If a COOKING TIME or END of COOKING TIME is selected, the programmer switches to AUTOMATIC mode. The symbol Auto is displayed until the COOKING TIME or the END of COOKING TIME has expired.

2.0 Touch Control

STOVES RICHMOND DELUXE - Touch Control - 1

Select a function

+ Plus - increase time or volume

Minus - decrease time or volume

2.1 Touch Controls

Touching the + & symbols momentarily increases or decreases the time by one minute (or the volume of the ACOUS-TIC SIGNAL by one step).

Touching the & symbols permanently increases or decreases the speed of time setting automatically.

2.2 Touch Control FUNCTION

Touching the FUNCTION symbol momentarily, the next following function is chosen. Touching the FUNCTION symbol permanently causes no automatic change & if touched for more than 10 seconds an ACOUSTIC SIGNAL occurs & the FUNCTION mode terminates automatically.

Within 5 seconds after selecting a function, the time or signal volume can be set by touching the + & - symbols.

STOVES RICHMOND DELUXE - Touch Control FUNCTION - 1

3.0 FUNCTIONS

3.1 Start of Function

When a function is selected & the time or acoustic volume is set, the chosen function will start automatically five seconds after setting.

The display shows the current TIME of DAY, except when the MINUTE MINDER is active. In this case, the display shows the remaining time of the MINUTE MINDER.

3.2 Power ON/initial operation

After connecting the appliance to the mains, the display shows the default TIME of DAY 12:00 h:min flashing.

In the event of a power failure, the oven & grill elements will not automatically switch on when power is resumed; thus, on resumption of power, touch any of the touch control symbols & the display will show the default time permanently. The colon & the symbol continue to flash & the current TIME of DAY can now be set.

3.3 Time of Day

Select the TIME of DAY mode by using the FUNCTION symbol until the symbol flashes; set the TIME of DAY by using the + or - symbols.

3.4 Acoustic Signal

Select the ACOUSTIC SIGNAL mode by using the FUNCTION symbol until the symbols L1, L2 or L3 appear on the display. The signal volume can be set using the + or - symbols; the acoustic signal sounds in the selected volume.

ACOUSTIC SIGNAL volume:

$$ \begin{array}{l} L I = l o w \ L _ {2} = \text {m e d i u m} \ \text {L} 3 = \text {l o u d} \ \end{array} $$

3.5 Minute Minder

Select the MINUTE MINDER mode by using the FUNCTION symbol until the MINUTE MINDER symbol is flashing. The MINUTE MINDER can be set using the + or - symbols up to a maximum of 99:00 min:sec .

Five seconds after setting the MINUTE MINDER, the count down starts in steps of seconds. The display shows the MINUTE MINDER symbol & the remaining time is displayed continuously. While setting other functions the MINUTE MINDER counts down in the background.

The remaining time can be changed at any time by using the + or - symbols. The countdown is deleted by setting the MINUTE MINDER to 000 min:sec.

The MINUTE MINDER time has expired once it reaches 0:00 min:sec; the MINUTE MINDER symbol flashes & the ACOUSTIC SIGNAL is heard.

Touching any touch control symbol automatically terminates the MINUTE MINDER mode.

The ACOUSTIC SIGNAL & the MINUTE MINDER symbol are switched off & the current TIME of DAY is displayed.

3.6 Cooking Time

Select the COOKING TIME mode by using the FUNCTION symbol until the COOKING TIME symbol is flashing. The COOKING TIME can be set using the + or - symbols up to a maximum COOKING TIME of 23:59 h:min.

Five seconds after setting the COOKING TIME, the MANUAL mode changes to the AUTOMATIC mode, the COOKING POT symbol & the current TIME of DAY are displayed.

To change or delete the time, select COOKING TIME mode until the COOKING TIME symbol is flashing. The time is changed using the + or - symbols or deleted by setting it to 0:00 h:min.

Once the COOKING TIME has expired, the ACOUSTIC SIGNAL is heard. The display shows 0:00 h:min & the Man symbol flashes.

After seven minutes maximum or after touching any of the touch control symbols, the ACOUSTIC SIGNAL stops but the Man symbol continues to flash. Touch the FUNCTION symbol, the Man symbol is displayed continuously & the current TIME of DAY is displayed, except if the MINUTE MINDER is active.

3.7 End of Cooking Time

The END of COOKING TIME function
MUST be used in conjunction with the COOKING TIME function. This is in order to allow the user to set the START TIME for the cooking to begin - see the following section on DELAYED COOKING.

To select the END of COOKING TIME mode keep touching the FUNCTION symbol until the END of COOKING TIME symbol is flashing. The END of COOKING TIME can be set using the + or - symbols. The display shows the current TIME of DAY plus the set COOKING TIME. The latest END of COOKING TIME is limited to the current TIME of DAY plus 23:59 h:min.

Five seconds after setting, the MANUAL mode changes to AUTOMATIC mode & the display shows the COOKING POT symbol & the current TIME of DAY.

To modify or delete the END of COOKING TIME, select the function until the END of COOKING TIME symbol is flashing. The END of COOKING TIME can be modified by using the + or - symbols.

The END of COOKING TIME can be deleted by counting back using the - symbol until it equals the current TIME of DAY.

The END of COOKING TIME has expired - see COOKING TIME has expired paragraph 3.6.

3.8 Delayed Cooking

Calculation of START TIME as below:

STOVES RICHMOND DELUXE - Delayed Cooking - 1

To select DELAYED COOKING:

  1. set the desired COOKING TIME - see paragraph 3.6.
  2. set the desired END of COOKING TIME - see paragraph 3.7.

DELAYED COOKING run down - the COOKING POT symbol is off until the START TIME is reached. COOKING TIME starts as soon as the START TIME is reached at which time the COOKING POT symbol is displayed.

To modify or delete DELAYED COOKING, see paragraphs 3.6 COOKING TIME & 3.7

END OF COOKING TIME.

DELAYED COOKING has expired - as COOKING TIME - see paragraph 3.6.

3.9 Child Lock

The CHILD LOCK function can be activated while the TIME of DAY is displayed in MANUAL mode, regardless of whether a COOKING TIME or an END of COOKING TIME is running down in AUTOMATIC mode.

CHILD LOCK function is activated by touching the ^+ symbol for a minimum of five seconds until the CHILD LOCK symbol is displayed. From this moment on all other functions are locked.

Exception: if a function e.g. COOKING TIME has expired, the ACOUSTIC SIGNAL can be terminated by touching any of the touch control symbols, although the CHILD LOCK is active.

Touching any of the touch control symbols while the CHILD LOCK is activated results in an ACOUSTIC SIGNAL & the CHILD LOCK symbol flashes for two seconds.

The CHILD LOCK function is de-activated by touching the ^+ symbol for a minimum of five seconds until the CHILD LOCK symbol l switches off. From this moment on all functions are selectable again.

Activating the CHILD LOCK in MANUAL mode completely locks the appliance & the Man symbol is switched off. After deactivation, as described above, the Man symbol is displayed again.

The CHILD LOCK remains activated after a power failure. Before re-newing the settings, the CHILD LOCK has to be deactivated, as described above.

General

It is important to clean the product regularly as a build up of fat can affect its performance or damage it and may invalidate your guarantee.
Always switch off your appliance and allow it to cool down before you clean any part of it.
- Do not use undiluted bleaches, products containing chlorides, wire wool or abrasive cleaners on aluminium, stainless steel, or plastic/painted parts as they can damage the appliance. Nylon pads can also be unsuitable.
Take extra care when cleaning over symbols on fascia panels. Excessive cleaning can lead to the symbols fading.
If your product is fitted with stainless steel cladding strips. You may notice a small white residue on the outer edges, this can be removed with a non abrasive wipe.
- Some foods are corrosive eg; vinegar, fruit juices and especially salt - they can mark or damage the metal or paint work, if they are left on the surface.
Only use a clean cloth wrung out in hot soapy water, and dry with a soft cloth.

Stainless steel & Aluminium surfaces

  • Sharp objects can mark the surface of stainless steel, but will become less noticeable with time.
  • Baby oil can be used to restore stainless steel finishes - but only use a few drops. Don't use cooking oils as they can contain salts, which will damage the metal.

Enamel surfaces & parts

  • If larger splashes of fat do not readily disappear, you can use a mild cream cleaner to remove them.

Glass parts

WARNING: - Do not use harsh abrasive cleaners or sharp metal scrapers to clean the glass since they can scratch the surface, which may result in shattering of the glass.

REMOVING OVEN PARTS FOR CLEANING

Inner Door Glass (glass doors only)

Some models have a removable, inner door glass. It can be removed for cleaning but it must be replaced the right way up. If there is any writing on the glass, you must be able to read it clearly when the cavity doors are open.
Always make sure that the glass is pushed fully into the Stop position.
To remove the glass panel, open the door wide, hold the top and bottom edges and slide out.
- Warning: Do not operate the appliance without the glass panel correctly fitted.
- For your safety, glass door panels are made of toughened glass. This ensures that, in the unlikely event that a panel breaks, it does so into small fragments to minimise the risk of injury. Please take care when handling, using or cleaning all glass panels, as any damage to the surfaces or edges may result in the glass breaking without warning or apparent cause at a later date. Should any glass panel be damaged, we strongly recommend that it is replaced immediately.

Shelf Runners

Shelf runners can be removed to enable you to clean them thoroughly. Make sure they are cool to touch and then grasp the runners and slide out of their hanging holes.

STOVES RICHMOND DELUXE - Shelf Runners - 1

TELESCOPIC SHELVING SYSTEM (if fitted)

  • In addition to the traditional shelving fitted in your appliance, the telescopic shelving system is fitted in the most commonly used location in your cavity.
  • The shelves with the telescopic system are easier to pull out than traditional shelving, which means the oven door stays open for a shorter period of time. The smooth action also reduces the likelihood of fat, or food, spillage, and gives you extra security.
  • You do not have to use the telescopic shelves all of the time. You can place the shelves in the traditional positions if you would like more choice.
  • The telescopic shelves remove easily from the runner for re-positioning or cleaning, but we recommend that you reposition your shelving before cooking, and remove the shelving for cleaning when the shelves are cold to prevent burning yourself.

STOVES RICHMOND DELUXE - TELESCOPIC SHELVING SYSTEM (if fitted) - 1

To remove the telescopic shelves

Make sure the shelf is cool enough to touch.
- Push the oven shelf back into the cavity, until it hits the stop position.
- Grasp the shelf bars in the centre, and lift the back of the shelf clear of the stop position.
- You can then lift the front of the shelf clear of the retaining tabs.

To replace the telescopic shelves

Make sure the oven runners are pushed all the way back into the cavity.
- Tilt the shelf and make sure the front of the shelf is against the stop position.
- Carefully place the shelf back onto the runner and snap in place firmly.
Make sure the back of the self is inside the retaining tabs and slide it in and out of the oven to make sure it works correctly.

STOVES RICHMOND DELUXE - To replace the telescopic shelves - 1
Make sure the shelf is firmly pressed against the stop position at back of the oven cavity
Note: Make sure the shelf is unclipped from the retaining tabs before removal.

STEP 1: PREPARE INSTALLATION

Do not lift the appliance by the door handle.

Whilst every care is taken to eliminate burrs and raw edges from this product, please take care when handling - we recommend the use of protective gloves during installation.

Please note that the weight of this appliance is approximately 31kg

(unpacked). Take care when lifting it into the housing unit - always use an appropriate method of lifting.

Remove the fixing screws from the

polythene bag on the top of the appliance, but leave the appliance in the base tray packaging until you are ready to install it.

If this appliance is to be installed near to a corner where the adjacent cabinets run at right angles forward of the appliance, there must be a gap of at least 90 mm between the appliance and the cabinets, to prevent overheating of the cabinets.

STOVES RICHMOND DELUXE - STEP 1: PREPARE INSTALLATION - 1

Housing dimensions

The appliance is designed to fit into a standard 600mm wide housing unit with minimum internal dimensions as shown.

590mm is to the underside of the worktop

when the appliance is built under, or to the underside of the panel above, when the appliance is installed into a tall housing unit.

STOVES RICHMOND DELUXE - STEP 1: PREPARE INSTALLATION - 2

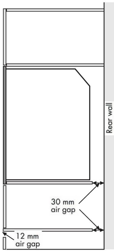
i) When installed in a typical 600mm deep built in housing unit, the false back should be removed from the housing unit to provide the necessary depth for installation.
ii) When the false back is removed, it is normally the case that the support shelf for the appliance leaves a gap between the back edge and the wall of approximately 80mm.
iii) If no gap occurs between the back edge of the shelf and the wall behind the unit, we recommend that a gap of at least 30mm is made by shortening the shelf. iv) When installing the appliance below a worktop, there must be a minimum ventilation area of 60cm2 below the appliance, in either area (1) or (2), as indicated below. There must be a 5mm gap between the front top edge of the oven and the underside of the worktop. Important: Do not modify the outer panels of this appliance in any way.

Ensure that you route all mains electrical cables and flexible tubing well clear of any adjacent heat source, such as an oven, grill or hob.

Ensure that all pipe work is of the correct rating for both size and temperature.

Installing the appliance under a worktop

Where the appliance is installed under a worktop, with a hob installed above it, the installation instructions for the hob must be read in conjunction with these instructions.

STOVES RICHMOND DELUXE - Installing the appliance under a worktop - 1

Before you start

Please read the instructions carefully - planning your installation will save you time and effort.

Look at the different ways the appliance can be installed - as shown on the

following pages - and plan the installation to suit your situation.

Leave the appliance in the base tray packaging until you are ready to install it. When you remove the appliance from the base tray packaging, take care not to damage it.

Whilst every care is taken to eliminate burrs and raw edges from this product, please take care when handling - we recommend the use of protective gloves during installation.

Please note that the weight of this

appliance is approximately 47kg

(unpacked). Take care when lifting it into the housing unit - always use an appropriate method of lifting.

This appliance must be installed only at low level - ie; under a worktop. The

controls have been designed for viewing at a low level, and it should therefore not be installed at high level.

Please note that all dimensions and sizes given are nominal, some variation is to be expected.

If this appliance is to be installed near to a corner where the adjacent cabinets run at right angles forward of the appliance, there must be a gap of at least 90mm between the appliance and the cabinets, to prevent overheating of the cabinets.

Important: Do not modify the outer panels of this appliance in any way.

Fixing screws - The fixing screws are in a polythene bag in the oven pack. Depending on the method of installation, some of the screws may not be needed.

Step 1: Prepare for installation

There are 3 methods of installing the appliance:

Method 1: Into a space between two base units, ie; without a housing unit.
Method 2: Into a housing unit, with an internal height of less than 710mm , which can be modified to obtain the required dimensions.
Method 3: Into a housing unit, with an internal height of 710mm or more. If you have a non standard size of cabinet which leaves a gap above or below the appliance, you may be able to buy a trim kit (to fill in the gap) from the supplier of your cabinets.

QuantityColourDescriptionFor Fixing
6SilverNo 8 x 12mm long Self tapping screwRunners to appliance
12BlackNo 8 x 12mm long Chipboard screwRunners and sidetrims to cabinet or housing
6BlackNo 8 x 25mm long Chipboard screwAppliance to cabinet
2SilverNo 8 x 12mm long Self tapping screwAppliance to sidetrims

METHOD 1: WITHOUT HOUSING UNIT(BETWEEN 2 BASE UNITS)

Before installing the appliance, check the internal dimensions as shown.

The space for the appliance must be clear of obstruction. You may have to cut into or remove any rear cross members to obtain the 550mm minimum depth.

The Fixing Kit

Should you need a replacement fixing kit please call the customer care helpline and order part number: 01 28287 00.

In the fixing kit you will find 2 side trims (687mm long) and 4 runners (420mm long). The fixing screws are in a polythene bag in the oven.

  1. Take the 6 No 8 × 12mm (silver) self tapping screws from the polythene bag, and use them to fit one runner to each side of the appliance.

  2. Make sure they are the right way up as shown.

  3. Take one of the side trims, hold it against the side of the base unit, and mark off 687mm from the top edge of the base unit, to the top edge of the runner.

Note: This ensures a 5 - 8mm clearance from the underside of the worktop to the top of the appliance.
4. Measure 50mm from the front edge of the base units, to mark the front edge of the runners.
5. Take 6 of the No 8 × 12mm (Black) chipboard screws and screw the runners into opposition the right way up as shown.
6. Fit the side trims to be flush to the top and front edges of the base units, using the remaining 6 No 8 × 12mm (Black) chipboard screws.

STOVES RICHMOND DELUXE - The Fixing Kit - 1

METHOD 2: HOUSING UNIT WITH INTERNAL HEIGHT LESS THAN 710MM

Note: You will not need the 2 side trims (687mm long) or the appliance runners for this installation. You will need the 2 runners to fix to the adjacent cabinets.

Before you start;

Before removing the bottom shelf or modifying the housing unit, make sure that it will remain structurally sound, eg; by fixing to adjacent cabinets, floor or worktop.

You may have to cut into or remove any rear cross members to obtain the 550mm minimum depth.

To obtain the required 710mm height, you may have to lower or remove the bottom shelf - remove any cross rails and reposition brackets.

To fix the runners (if required)

  1. Take the side trims, hold it against the side of the base unit, and use it to mark off the 687mm from the top edge of the side unit, to the top edge for the runner.

Note: This ensures a 5 - 8mm clearance from the underside of the worktop to the top of the appliance.

  1. Measure 50mm from the front edges of the base units, to mark the front edge for the runners.
  2. Take 6 of the No 8 × 12mm (Black) chipboard screws and screw the runners into position the right way up as shown.
  3. If necessary, adjust the height of the plinth to just below the bottom edge of the runners.

If you require a replacement fixing kit please call the customer care helpline and order part number 01 28287 00.

STOVES RICHMOND DELUXE - METHOD 2: HOUSING UNIT WITH INTERNAL HEIGHT LESS THAN 710MM - 1

Method 3: Housing unit with internal height 710mm or more

Note: You will not need the 4 runners and 2 trims that are packed with the oven for this installation.

fixing to adjacent cabinets, floor or worktop.

STOVES RICHMOND DELUXE - Method 3: Housing unit with internal height 710mm or more - 1

  1. When installed in a typical 600mm deep built in housing unit, the false back should be removed from the housing unit to provide the necessary depth for installation.
  2. When the false back is removed, it is normally the case that the support shelf for the appliance leaves a gap between the back edge and the wall of approximately 80mm.
  3. If no gap occurs between the back edge of the shelf and the wall behind the unit, you must create a gap of at least 30mm by shortening the shelf.

Remove any fixings that may prevent entry of the oven into housing, or

obstruct the gas inlet pipe. The cabinetry should be kept structurally sound by

STOVES RICHMOND DELUXE - Method 3: Housing unit with internal height 710mm or more - 2

STEP 1: PREPARE INSTALLATION

Do not lift the appliance by the door handle.

Remove the fixing screws from the polythene bag on the top of the appliance, but leave the appliance in the base tray packaging until you are ready to install it. Whilst every care is taken to eliminate burrs and raw edges from this appliance, please take care when handling - we recommend the use of protective gloves during installation.

Please note that the weight of this appliance is approximately 48kg

(unpacked). Take care when lifting it into the housing unit - always use an appropriate method of lifting.

Note: When removing the appliance from the base tray packaging care should be taken to ensure the appliance is not damaged.

Sitting the appliance

If this appliance is to be installed near to a corner where the adjacent cabinets run at right angles forward of the appliance, there must be a gap of at least 90mm between the appliance and the cabinets, to prevent overheating of the cabinets. When installed in a typical 600mm deep built in housing unit, the false back should be removed from the housing unit, to provide the necessary depth for installation.

When the false back is removed, it is normally the case that the support shelf for the appliance leaves a gap between

the back edge of the support shelf and the rear wall of approximately 80mm.

If no gap occurs between the back edge of the shelf and the wall behind the unit, you must create a gap of at least 30mm by shortening the shelf and any other shelf below the appliance.

Cut 12mm from the top of any plinth that may be fitted (see diagram).

Important: Do not modify the outer panels of this appliance in any way.

STOVES RICHMOND DELUXE - Sitting the appliance - 1

Dimensions

The appliance is designed to fit into a standard 600mm wide housing unit, with minimum internal dimensions as shown.

Note: All sizes are nominal, some variation is to be expected.

STOVES RICHMOND DELUXE - Dimensions - 1

STOVES RICHMOND DELUXE - Dimensions - 2

STEP 2 & 3 CONNECT TO THE ELECTRICITY SUPPLY

We recommend that the appliance is

connected by a competent person who is a member of a "Competent Person Scheme" & who will comply with the I.E.E. & local regulations.

Important: Ensure that you route all mains electrical cables well clear of any adjacent heat source, such as an oven or grill.

Warning: This appliance must be earthed.

For 60cm BI appliance:

  1. Where a fixed connection is used, a device allowing the appliance to be isolated on all poles from the mains supply with a contact opening width of at least 3mm must be provided. Use a 13 amp fuse.
  2. A type HO5 V V-F cable must be used as the mains lead. The cross section must be a minimum of 1.5mm^2
  3. The mains terminal block is located at the right hand rear of the top service panel.
  4. Connect the cable to the terminal block & tighten the cable clamp.
  5. Close the terminal box, ensuring the cover is engaged on the locking tabs.

For 70/90cm appliances:

  1. The appliance must be installed using a double pole control unit of 32 ampere minimum capacity separation at all poles.
  2. Access to the mains terminal is gained by opening the terminal block cover at the rear of the appliance (use a small flat bladed screwdriver).
  3. Connection should be made with suitable twin & earth flexible cable, minimum 4mm^2 , which is suitable for use up to 25 amps.
  4. First strip the wires, then push the cable through the cable clamp in the terminal block cover.
  5. Connect the cable to the terminal block & tighten the cable clamp screw.
  6. Close the terminal box, ensuring that the cover is engaged on the locking tabs.

STEP 4: SECURE APPLIANCE INTO HOUSING UNIT

Note : The unit housing the appliance must be appropriately fixed. Ensure that the appliance is centrally located. Take care not to damage the appliance or cabinetry.

70cm only

Method 1: Care must be taken to ensure the appliance runners are sufficiently engaged over the top of the runners on the base units.

Method 2: Insert appliance into the cabinet - ensure that it is engaged over the top of the side runners.

Method 3 : Insert appliance into cabinet

Note: For installation Method 1, you will need to drill through the fixing holes into the side trims with a 3.2mm diameter drill.

There are 4/6 black no 8 × 25mm long chipboard screws for securing appliance to cabinet. Insert appliance into cabinet and secure.

60cm ovens

  • Open the oven door and screw the 4 fixing screws through the holes in the front frame.

70/90cm ovens

  • Open the grill / top oven door, and screw 2 fixing screws through the top corner holes in the front frame.
  • With the grill / top oven door still open, screw 2 fixing screws through the holes located under the grill compartment. Close the grill / top oven door.
  • Open the main oven door and screw 2 fixing screws through the bottom corner holes in the front frame.

60/70/90 fixing positions

STOVES RICHMOND DELUXE - 60/70/90 fixing positions - 1

STOVES RICHMOND DELUXE - 60/70/90 fixing positions - 2

Anti-stain trim (if fitted)

The anti-stain trim is factory fitted to

the edges of the appliance front frame.

This trim provides the cabinetry with extra protection from any escape of heat.

  • When Installing the product, ensure the anti-stain trim is correctly located on the edges of the front frame, before positioning and securing the appliance to the cabinet.

  • When securing the appliance, the fixing screws provided are driven through the anti-stain trim into the cabinet.

Note : When supplied the anti-stain trim may be loose and is only supported by plastic rivets. The anti-stain trim will be secured when the fixing screws are fully home into the cabinet. The plastic rivets should not be removed.

Edging strip (if fitted)

The edging strip is factory fitted to

the edges of the appliance front frame. This strip provides the cabinetry with extra protection from any escape of heat.

When installing the product, ensure that the edging strip is correctly located on the outer edges of the front frame, before positioning and securing the appliance to the cabinet.

When securing the appliance, the fixing screws provided are driven through the edging strips into the cabinet - the seal will straighten up and sit flush to the

cabinet when the screws are fully home.

STOVES RICHMOND DELUXE - Edging strip (if fitted) - 1

STOVES RICHMOND DELUXE - Edging strip (if fitted) - 2

ELECTRICPRODUCTS

Electrical supply/load

220 - 240V 50Hz

Built In 60cm: 1.7kW - 2.3kW

Built In 60cm Induction: 2.8kW - 3.4kW

Built In 70cm / 90cm: 4.1kW - 5.1kW

Countries of destination

GB - Great Britain, IE - Ireland,

Warning: This appliance must be earthed.

To find the electrical supply for your particular appliance, please refer to the data badge.

The data badge is located at the rear of the appliance.

FAQs

What parts of the appliance can be washed in a dishwasher?

  • Any enamelled parts such as the grill pan can be cleaned in a dishwasher, as can oven shelves and shelf guides.

What parts must NOT be cleaned in a dishwasher?

  • Parts such as burner skirts and caps, control knobs and any cast iron items must not be cleaned in a dishwasher, they should be cleaned with hot soapy water and a nylon brush once they are cool enough.

There's been a power failure and the product won't work.

  • Switch off the electricity supply.
  • When the power returns switch the electricity supply back on and re-set any programmer/clock to the correct time of day.

My oven is a single combined oven and grill - can I use both functions together?

No. You can only use one or the other.

Why is there condensation on the doors?

  • Condensation is caused by hot, moist air meeting a cooler surface (i.e. the oven door). You cannot always prevent it, but you can minimise it when it happens by doing the following:
  • Pre-heat the oven at a high temperature before putting food in the oven, and cover the food you are cooking wherever possible.
  • Whenever you can, cook wet foods at higher temperatures.
  • Don't leave food in the oven to cool down.
    Automatic cooking will normally produce condensation when the oven is cooling down with food inside.

Why is there steam or smoke escaping from the oven?

  • Your oven is fitted with a steam vent at the top of the main oven. This is to allow excessive steam out of the oven whilst cooking wet foods such as quiche or pizza.
    If your main oven smokes during its use, it is important that the oven cavity is kept clean and not contaminated with grease or old foods.

Should the cooling fan continue to run once the appliance has been switched off?

  • Yes. Your oven is fitted with a cooling fan to keep the operator controls cool. In some cases the cooling fan may continue to run even after the oven is switched off to disperse the residual heat of the oven.

What is a Multifunction oven?

  • A multifunction oven combines a variety of features, which are explained fully earlier in this book (if fitted), it allows you more flexibility when cooking.

The neon on my appliance keeps going out and coming back on again.

  • Yes. In most cases the neon (if fitted) will cycle on and off to show that oven is maintaining your temperature choice.

My new oven is giving off a strange smell?

This is the smell of the oven being used for the first time. After a small period of uses, the smell will deteriorate. Whilst inside the oven your food will never be polluted by this smell.

Call Customer Care for a Service Engineer's visit if:

  • You find that the oven becomes hotter at a particular temperature - the thermostat may need replacing.
    The cooling fan fails to work.

CUSTOMER CARE WEB SHOP

Having purchased a superior cooker, hob or hood from us, you'll naturally want to keep it looking great. And who better to help you care for it than the manufacturer?

We offer an extensive range of accessories, components and cleaning products which, will instantly give your cooker a good as new look.

In addition to the list of our most popular products below, we also have an exciting

range of Bake ware and Cookware essentials including Roasting Pans, Cake Tins and Non-Stick Cooking Liners.

For all enquires, please visit our Web Shop at www.gdhaonline.co.uk or call the Spares Sales Team on 0844 815 3745. For countries outside the UK, please contact your local service agent.

Product DescriptionWhere usedPurpose
Ceramic Hob CleanerAll Ceramic glass hobs including InductionEnables easier cleaning of your ceramic hob. Prevents build up of mineral deposits. Best used with Ceramic Hob Scraper Kit. 300ml bottle.
Ceramic Hob Scaper kitAll Ceramic glass hobs including InductionIdeal for removing cooked on marks from ceramic glass hobs Best used with Ceramic Hob Cleaner
Sealed Hotplate ConditionerAll sealed/solid plate hobsRestores the sleek matt black finish to solid hotplates
Multipurpose Kitchen CleanerGeneral kitchen cleanerExcellent multipurpose cleaner, For use around the kitchen. 500ml bottle.
Oven CleanerAll cooking appliances.Cuts through grease & burnt on grime. 500ml bottle
Restor-A-ClothAll cooking appliances.Chemical free cleaning cloth Ideal for cleaning & polishing glass & stainless steel
Stainless Steel CleanerAll stainless steel partsOil based cleaner. Perfect for removing stub-born & greasy marks. 300ml bottle.
Rectangular carbon filtersCooker HoodsNew filters, help to maintain efficient cooker hood operation and keep your Kitchen odour free
Round Carbon FiltersCooker HoodsNew filters, help to maintain efficient cooker hood operation and keep your Kitchen odour free

CHANGING LIGHT BULBS (where fitted)

Warning: There is a risk of electric shock, so always make sure you have turned off and unplugged your appliance before starting. Always allow the product to cool down before you change a bulb.

Not all appliances have the same number and type of bulbs. Before replacing your bulb, open the oven door and see which type you have. Then use the table to help you change your bulb correctly.

Bulbs can be purchased from hardwarestores (always take the old bulb with you).

Please remember that bulbs are not covered by your warranty.

No of LampsInstructions
1Remove the oven shelves. Unscrew the lens cover by turning anticlockwise. Remove the bulb and replace. Replace the lens cover and oven back.

To contact Stoves about your appliance, please call

Warranty Registration

0800 952 1065

to register your appliance

Customer Care Helpline

0344 815 3740

in case of difficulty within the UK

Alternatively general, spares and service information is available from our website at

www.stoves.co.uk

Please ensure that you have the product's model no and serial no available when you call. These can be found on the silver data label on your product which is located:

Ovens

High-level grill products

Hobs

Open the door; adjacent to the oven cavity

Inside the base compartment

On the underside of the product

Enter appliance numbers here for future reference:

Model No

STOVES RICHMOND DELUXE - 815 3740 - 1

Serial No

STOVES RICHMOND DELUXE - 815 3740 - 2

SERVICE RECORD

Date of purchaseInstalled byInstallation Date
Place of purchase:
DatePart(s) replacedEngineer's name

For customers outside the UK and Northern Ireland, please contact your local supplier.

Glen Dimplex Home Appliances, Stoney Lane, Prescott, Merseyside, L35 2XW

Table of contents Cliquez un titre pour y accéder
Manual assistant
Powered by Anthropic
Waiting for your message
Product information

Brand : STOVES

Model : RICHMOND DELUXE

Category : Stoves