TG 080 N10 - Freezer AEG-ELECTROLUX - Free user manual and instructions
Find the device manual for free TG 080 N10 AEG-ELECTROLUX in PDF.
Questions des utilisateurs sur TG 080 N10 AEG-ELECTROLUX
0 question sur cet appareil. Repondez a celles que vous connaissez ou posez la votre.
Poser une nouvelle question sur cet appareil
Download the instructions for your Freezer in PDF format for free! Find your manual TG 080 N10 - AEG-ELECTROLUX and take your electronic device back in hand. On this page are published all the documents necessary for the use of your device. TG 080 N10 by AEG-ELECTROLUX.
USER MANUAL TG 080 N10 AEG-ELECTROLUX
We were thinking of you when we made this product
Egregio Cliente,
Welcome to the world of Electrolux
Thank you for choosing a first class product from Electrolux, which hopefully will provide you with lots of pleasure in the future. The Electrolux ambition is to offer a wide variety of quality products that make your life more comfortable. You find some examples on the cover in this manual. Please take a few minutes to study this manual so that you can take advantage of the benefits of your new machine. We promise that it will provide a superior User Experience delivering Ease-of-Mind. Good luck!
Before installing and using the appliance read this user's instruction book carefully. It contains safety precautions, hints, information and ideas. If the refrigerator is used in compliance with the instructions written, it will operate properly and provide you with greatest satisfaction.
The symbols below help you to find things more easily:

Safety precautions
Warnings and information at this symbol serve safety for you and your appliance.

Hints, useful information

Environmental information

Symbol for ideas
At this symbol ideas can be found according to food and its storing.

The symbol on the product or on its packaging indicates that this product may not be treated as household waste. Instead it shall be handed over to the applicable collection point for the recycling of electrical and electronic equipment. By ensuring this product is disposed of correctly, you will help prevent potential negative consequences for the environment and human health, which could otherwise be caused by inappropriate waste handling of this product. For more detailed information about recycling of this product, please contact your local city office, your household waste disposal service or the shop where you purchased the product.
Contents
Important safety information 23
General safety precautions 23
Precautions for child safety 24
Safety precautions for installation 24
Safety precautions for isobutane 24
Instructions for the User 25
General information 25
Waste handling. 25
Packing materials 25
Instructions for the Installer 25
Technical data 25
Transportation, unpacking 26
Cleaning 26
Placement 26
Switch and indicators 27
Operation and use 27
Installation 27
Adjusting the temperature 27
Freezing 28
Storing 28
How to make ice cubes 28
Some useful information and advice 28
Hints and ideas 29
How to save energy 29
The appliance and environment 29
Maintenance 29
Automatic defrosting 29
No-Frost technology 29
Regular cleaning 30
When the refrigerator is not in use 30
Trouble shooting 30
Change of door opening direction 32
Electrical connection 33
Storage time chart 34
Warranty and service 34
Guarantee conditions 34
Service and spare parts 34

Important safety information
General safety precautions
- Keep these instructions and they should remain at the appliance when moving away or changing owner.
- This appliance is designed for storing and freezing food, domestic use according to these instructions only.
- Specialised companies that are qualified to do so by the manufacturer must carry out service and repairs including repairing and changing the power cord. Accessory parts supplied by them should be used only for repairing. Otherwise the appliance can be damaged or can cause other damage or injury.
- The appliance is out of circuit only in that case if the plug is removed from the socket. Before cleaning and maintenance always unplug it (do not get it by the cable). If the socket is difficult to reach, switch off the appliance by cutting off the current.
Power cord must not be lengthened. - Make sure that the power plug is not squashed or damaged by the back of the fridge/freezer.
-A damaged power plug may overheat and cause a fire.
- Do not place heavy articles or the fridge/freezer itself on the power cord.
- There is a risk of a short circuit and fire.
- Do not remove the power cord by pulling on its lead, particularly when the fridge/freezer is being
pulled out of its niche.
- Damage to the cord may cause a short-circuit, fire and/or electric shock.
-
If the power cord is damaged, it must be replaced by a certified service agent or qualified service personnel.
-
If the power plug socket is loose, do not insert the power plug.
- There is a risk of electric shock or fire.
- When cleaning, defrosting, taking out frozen food or ice tray do not use sharp, pointed or hard devices, as they can cause damage to the appliance.
- Be careful not to allow liquids to the temperature control, switch gear and indicator respectively.
- Ice and ice-cream can cause hurt if they are eaten immediately after removal from the frozen food compartment.
- After dissolving frozen food must not be refrozen, it must be used up as soon as possible.
- Store pre-packed frozen food in accordance with the frozen food manufacturer's instructions.
- You must not make defrosting faster with any electric heating appliance or chemicals.
- Do not make hot pot touch the plastic parts of the freezer.
- Warning: if you place frozen foods on top of the product, the interaction of cold and vapor may produce water condensate in the space below the top. If such water condensate drips on the electric components placed in that space, a short-circuit may occur and
damage the product. Therefore it is forbidden to place frozen foods on top of the product.
- Do not store flammable gas and liquid in the appliance because they may explode.
- Do not put carbonated drinks, bottled drinks and bottled fruits into the freezer.
Precautions for child safety
- Do not allow children to play with the packaging of the appliance. Plastic foil can cause suffocation.
Adults must handle the appliance. Do not allow children to play with it or its controlling parts. - If you are discarding the appliance pull the plug out of the socket, cut the connection cable (as close to the appliance as you can) and remove the door to prevent playing children to suffer electric shock or to close themselves into it.
- This appliance is not intended for use by persons (including children) with reduced physical sensory or mental capabilities, or lack of experience and knowledge, unless they have been given supervision or instruction concerning use of the appliance by a person responsible for their safety.
Safety precautions for installation
- Put the appliance to the wall to avoid touching or catching warm parts (compressor, condenser) to prevent possible burn.
-
When moving the appliance take care of the plug not to be in the socket.
-
When placing the appliance take care not to stand it on the power cord.
- Adequate air circulation should be around the appliance, lacking this leads to overheating. To achieve sufficient ventilation follow the instructions relevant to installation.
Safety precautions for isobutan Warning
- The refrigerant of the appliance is isobutane (R600a) that is inflammable and explosive to a greater extent.
- Keep ventilation openings, in the appliance enclosure or in the built-in structure, clear of obstruction.
- Do not use mechanical devices or other means to accelerate the defrosting process, other than those recommended by the manufacturer.
- Do not damage the refrigerant circuit.
- Do not use electrical appliances inside the food storage compartments of the appliance, unless they are of the type recommended by the manufacturer.
For the safety of life and property keep the precautions of these user's instructions as the manufacturer is not responsible for damages caused by omission.
Instructions for the User
General information
The official designation of the appliance is home freezer. According to this the appliance is suitable for storing frozen and deep-frozen food, freezing products in quantity given in the user's instructions at home and making ice.
The appliance can meet the requirements of standards between different temperature limits according to the climate class. The letter symbol for climate class can be found on the data plate.
Waste handling
Packing materials
The materials marked with are reusable.
PE< PE= polyethylene
PS< PS= polystyrene
PP< PP= polypropylene
The packing consists of reusable materials only.
Instructions for the Installer
Technical data
| Model | TG 080 N10 |
| Gross capacity (l) | 115 |
| Net capacity (l) | 98 |
| Width (mm) | 595 |
| Height (mm) | 850 |
| Depth (mm) | 635 |
| Energy consumption (kWh/day) (kWh/year) | 0,509 186 |
| Energy class, according to EU Standards | A+ |
| Freezing capacity (kg/24h) | 15 |
| Rising time (h) | 20 |
| Rated current (A) | 0,6 |
| Weight (kg) | 39 |
Transportation, unpacking
It is recommended to deliver the appliance in original packaging, in vertical position considering the protective warning on packaging.
After each transportation the appliance must not be switched on for approx. 2 hours.
Unpack the appliance and check if there are damages on it. Report possible damages immediately to the place you bought it. In that case retain packaging.
Cleaning
Remove every adhesive tape, which ensure the parts not to move in the appliance.
Wash the inside of the appliance using lukewarm water and mild detergent. Use soft cloth.
After cleaning wipe out the inside of the appliance.
Placement
The ambient temperature has an effect on the energy consumption and proper operation of the appliance. When placing, take into consideration that it is practical to operate the appliance between ambient temperature limits according to the climate class that is

given in the chart below and can be found in the data label.
| Class of climate | Ambient temperature |
| SN | +10 ... +32 °C |
| N | +16 ... +32 °C |
| ST | +18 ... + 38 °C |
If the ambient temperature goes below the lower data the temperature of the cooling compartment can go beyond the prescribed temperature.
If the ambient temperature goes beyond the upper data this means longer operating time of the compressor, increasing temperature in the freezer or increasing energy consumption.
When placing the appliance ensure that it stands level. This can be achieved by two adjustable feet (1) at the bottom in front. 1-1 piece of distance washers (2) are accessories of the adjustable feet. If levelling the appliance requires, these washers can be removed.
Do not stand the appliance on a sunny place or close to a radiator or cooker.
If it is unavoidable because of furnishing and the appliance has to be stood near a cooker take these minimum distances into consideration:
- In case of gas or electric cooker 3~cm must be left, when it is less put a 0,5 - 1 cm non-flam insulation between the two appliances.
- In case of oil or coal-fired stove the distance must be 30~cm since they give off more heat.
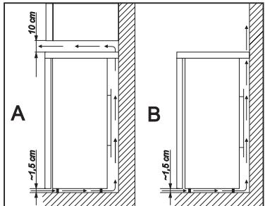
The refrigerator is designed to operate when it is totally pushed to the wall.
When placing the refrigerator keep minimal distances recommended in figure.
A:placing it under a wall-cupboard
B:placing it freely

Switches and indicators
A) On/off indicator green
B) Thermostat and on/off switch
C) Quick freeze indicator yellow
D)Acoustic signal stop and quick freeze switch
E) Alarm indicator red

Operation and use
Installation
Insert the plug into the socket. In order to switch on the product, turn the thermostat (B) to a temperature lower than << -16^ >> . The green indicator will light up and the red indicator will blink. The lighting up of the on/off indicator (A) means that the product is switched on. The blinking of the red indicator means an improper temperature in the freezing compartment. In addition, an intermittent sound can be heard, which can be stopped by pressing button (D) once. You can switch off the freezer by turning the thermostat (B) in position << >> .
Adjusting the temperature
The internal temperature of the freezer is regulated electronically through five temperature positions and a switch-off << >> setting.
Position << -16^ >> indicates the highest (least cold) temperature, while position << -24^ >> is for the lowest (coldest) temperature. Rotate the thermostat in the desired position.
In general, it is best to set the thermostat to << -18^ >> but, for the purpose of temperature setting, you should also consider
- the temperature of the room where the product is installed,
the frequency of door openings,
the volume of food to be stored in the product,
the location of the product.
Therefore, you should consider all these factors and you may have to do some testing for finding the best temperature. If you want a lower temperature, turn the thermostat into a position of higher number or, vice versa, if you need a higher temperature, you should set a position of lower number. Please allow 24 hours for the freezer temperature to stabilize between two adjustments.
Alarm (red) indicator
The temperature alarm indicator (E) will light up when the internal temperature of the freezer increases to a level (above -12^ ) where the long-term conservation of the foods in not ensured. Please note that, when switching on the freezer for the first time, the alarm indicator will blink until the internal temperature
has reached a level required for the safe conservation of frozen food.
Temperature problem:
Under normal operating conditions, the internal temperature of the freezer will ensure the long-term conservation of the stored food. When such temperature rises above a certain level (-12^) , it will trigger an acoustic and light alarm. The light alarm is a continuous red light (E), while the acoustic alarm is an intermittent sound. You can stop the acoustic alarm by pressing switch (D) once.
Freezing
Prepare the various foods properly and then freeze them always in the freezing compartment. For maximum freezing performance remove the freezer tray and baskets and then place the foods to be frozen directly on the evaporator. In case of freezing smaller food volumes you do not need to remove the freezer tray and baskets.
For using the quick freeze function, press the quick freeze on/off switch (D) for 2-3 seconds; in the case of small and great food volumes you should do it approx. 4 and 24 hours, respectively, before you want to freeze the fresh food. The yellow indicator (C) will light up. The compressor will operate continuously until the product reaches the freezing temperature.
Once the food is completely frozen (it may take up to 24 hours) you can manually switch off the quick freeze function by pressing the switch (D) for 2-3 seconds. If not switched off manually, the quick freeze function will be automatically switched off 48 hours later. The yellow indicator (C) will also go out.
Storing
It is practical to replace frozen products into the storing compartments (cages) after freezing has finished so that to make room in the freezing compartment for another freezing.
In large quantities of food are to be stored, remove the baskets except the lowermost one from appliance and place food on the shelves.
Intermediate freezing does not deteriorate foods already stored.
How to make ice cubes
To make ice cubes fill the enclosed ice cube tray with water and put it to the frozen food compartment. Wetting the bottom of the tray and setting thermostatic control knob to maximum stage can shorten preparing time. After finishing do not forget to reset the thermostatic control to the suitable stage.
Ready ice cubes can be taken out of the tray under running water then twist or hit it.
Freezing and storage of frozen foods
- As freezing with "No-Frost" technology is quicker, the foods frozen this way will preserve their original form, nutritional value and taste even after thawing.
- Place the foods to be frozen in the lower part of the product.
- For the perfect operation of the product, make sure that the frozen foods will not touch the ventilator cover or the ventilator mounted on the backside of the product.
- For the best results it is recommended to distribute the frozen foods evenly in the boxes.
-
If you make small portions of the foods, the freezing process will take less time and subsequent thawing will be possible in small portions also.
-
In order to avoid freezing burns, do not touch ice-creams immediately after they have been taken out from the freezer.
- It is recommended to state the freezing date on the package so that later you can check the storage duration.
The time of transportation from the seller to the consumer must be as short as possible.

Some useful information and advice
- After opening and closing the door of freezer vacuum will rise inside the appliance because of the low temperature. So wait 2-3 minutes after closing the door - if you want to open it again - while inner pressure equalises.
Take care of operating the freezer at a position of thermostatic control so that the inside temperature can never go beyond -18 °C, since temperature higher than this can deteriorate frozen foods.
It is practical to make sure of faultless operation of the appliance daily so as to notice possible failure in time and prevent deterioration of frozen foods. - After a power failure the product will restart and the quick freeze function will be switched on.
Hints and ideas
In this chapter practical hints and ideas are given about how to use the appliance to reach maximum energy saving and there is environmental information about the appliance as well.

How to save energy
-
Avoid putting the appliance in a sunny place and near anything that gives off heat.
-
Be sure that the condenser and the compressor are well ventilated. Do not cover the sections where ventilation is.
- Wrap products in tightly closing dishes or cling film to avoid building up unnecessary frost.
- Avoid products put in the freezer compartment to touch foods already frozen.
- Do not leave the door open longer than necessary and avoid unnecessary openings.
- Put warm foods into the appliance only when they are at room temperature.
- The condenser must be kept clean.

The appliance and environment
This appliance does not contain gasses which could damage the ozone layer, in either its refrigerant circuit or insulation materials. The appliance shall not be discarded together with the urban refuse and rubbish. Avoid damaging the cooling unit, especially at the rear near the heat exchanger. Information on your local disposal sites may be obtained from your municipal authorities.
The materials used on this appliance marked with the sympol are recyclable.
Maintenance
Automatic defrosting
This product is designed to avoid the formation of ice in the freezer. Accordingly, there is no need for manual defrosting. The product will automatically perform any defrosting once it becomes necessary.
No-Frost technology
In order to facilitate the removal of the ice layer, the evaporator is assisted by electric heating during the defrosting procedure. The ventilator is in OFF position. The defrost water will drip in the tray placed at the compressor and will evaporate. In the course of the defrosting procedure (approx. 30 minutes) the evaporator becomes warm but it has no influence on the internal temperature.
The foods should be kept well-packed in order to avoid any moisture loss as a result of air circulation.
Do not obstruct the vent holes because otherwise the operability of the product may be compromised.
For such purpose it is recommended to put all foods in the baskets in the freezer compartment.
Regular cleaning
It is practical to clean the inside of the freezer and defrost it at a time.
Household cleaner or soap must not be used.
After breaking the circuit wash the appliance using lukewarm water and wipe it.
Clean the door gasket with clean water.
After cleaning apply voltage to the appliance.
It is recommended to remove the dust and dirt collected on the back of the appliance and the condenser once or twice a year.
When the refrigerator is not in use
If you do not use the product for longer periods, make sure to perform the following:
Set the thermostat to position << . >>.
Disconnect the product from the mains.
Remove all foods from the product.
Perform defrosting and cleaning operations as described above.
Leave the doors ajar to avoid the build-up of unpleasant odors.
Trouble shooting
During operation of the appliance some smaller but annoying trouble can often occur, which does not require calling a technician out. In the following chart information is given about them to avoid unnecessary charges on service.
We draw your attention that operation of appliance goes with certain sounds (compressor- and circulating sound). This is not trouble, but means normal operation.
We draw it to your attention again that the appliance operates discontinuously, so the stopping of compressor does not mean being no-current. That is why you must not touch the electrical parts of the appliance before removing it from the mains socket.
| Problem | Possible cause | Solution |
| The appliance does not cool sufficiently | Thermostatic control is set too low.Before freezing the appliance was not precooled sufficiently.Large-sized food was put in.Too many foods to be frozen were put in.Warm foods were put in.Door is not shut properly. | Set higher position.Pre-cool the appliance for enough time.Cut up food.Put fewer foods to be cooled.Put foods max. at room temperatureCHECK if the door is shut. |
| The appliance cools too hard | The thermostatic control is set too high. | Set lower position. |
| The appliance does not cool at all | Plug is not connected to the mains socket properly.There is no voltage in the mains socket.Thermostat set to "0" position. | Check if the connection is proper Check if there is voltage Check thermostat setting. |
| The appliance is noisy | The appliance is not supported properly. | Check if the appliance stands stable (all the four feet should be on the floor). |
As much as the advice does not lead to result, call the nearest brand-mark service.
Power or operation failure:
In case of power failure during the storage of frozen foods, make sure not to open the freezer door. Once the power failure is over, the yellow indicator (3) of the quick freeze function will light up and then, 5 hours after restart, it will automatically go out.
If a short power failure occurs (max. 13 hours) and the product is full, the stored foods will not deteriorate. Otherwise you must use the stored food as soon as possible (if the temperature of the frozen foods rises, their storability will be shorter).
Check stability of product support (all four feet should stand on floor).
If you fail to remedy a problem, please contact the nearest authorized service unit.
Operation failure
When the electronic system fails to detect the ACTUAL temperature, the alarm indicator will start to flash. The product will continue to operate with the use of a reserve system until the problem is eliminated by the local service personnel.
Change of door opening direction
Should the setting-up place or handling demand it, door-opening direction can be refitted from righthanded to left-handed.
Following operations are to be done on the basis of figures and explanations:
- Break the circuit of the appliance.
- Tilt back the appliance carefully so that the compressor can not touch the floor. It is recommended to ask another person for help, who can keep the appliance at this position safely.
- Unscrew the adjustable feet situated on both sides (2 pieces), in addition the screws fixing the lower door holders (2 pieces) and the screw on the other side respectively.

- Take off the freezer door by pulling it slightly downwards.
- Unscrew the top door hinge pin of the refrigerator then screw it back on the other side.
- Fit the freezer door on the upper door hinge pin.

- Put over the pin in the lower door holding plate in the direction of the arrow.
- Take the door off.
- Unscrew the top door holding pin and put it on the other side.

- Put over the handles on the other side and put the plastic covering nails supplied in the plastic bag of this instruction book into the holes set free.
- Put the appliance to its place, set it level and apply voltage to it.
In case you do not want to perform the procedures above, call the nearest brand-mark service.
Technicians will accomplish the refitting expertly for charge.
Electrical connection
This refrigerator is designed to operate on a 230 V AC ( ) 50 Hz supply.
The plug must be put into a socket with protective contact. If there is no such, it is recommended to get an electrician to fit an earthed socket in compliance with standards near the refrigerator.
C E This appliance complies with the following E.E.C.
Directives:
- 73/23 EEC of 19.02.73 (Low Voltage Directive) and subsequent modifications,
-89/336 EEC of 03.05.89 (Electromagnetic Compatibility Directive) and subsequent modifications. - 96/57 EEC - 96/09/03 (Energy Efficiency Directive) and its subsequent amendments
Storage time chart
Storage time of deep-frozen and frozen products
| Foods | -18°C |
| Vegetables: green beans, green peas, mixed vegetables, marrow, corn, etc. | 12 months |
| Ready-cooked foods: vegetable dish, trimmings, with meat, etc. | 12 months |
| Ready-cooked foods: sirloin steaks, stew from knuckle of ham, meat from pig pudding, etc. | 6 months |
| Foods from potatoes, pasta: mashed potato, gnocchi, dumpling, pasta filled with jam, chips | 12 months |
| Soups: meat-broth, soup from green beans, soup from green peas, etc. | 6 months |
| Fruits: sour cherry, cherry, gooseberry, fruit cream, mashed maroon | 12 months |
| Meat: chicken, duck, goose fillets, tuna fish | 5 months 6 months |
| Popsicle, ice-cream | 3 weeks |
Warranty and service
Guarantee conditions
Service and spare parts
If calling the service is unavoidable, announce the trouble at a brand-mark service nearest to your place.
When announcing the appliance has to be identified according to its data label.
The data label of the appliance is stuck to the wall of the interior beside the vegetable box in the fresh food compartment in the bottom on the left
side. All necessary data are there which are needed to the service announcement (type, model, serial number, etc.). Note here the data from the data label of your appliance:
| Model | |
| Product No. | |
| Serial No. | |
| Date of purchase: |
KUNDENDIENST
Electrolux
Servicestellen
Points de service
Warranty For each product use provide a ture-year guarantee from the date of purchase or delivery to the consumer (with a guarantee certificate, invoice or sales receipt serving as proof). The guarantee covers the costs of materials, labour and travel.
The guarantee utillapse ifthe operating instructions and conditions of use are not adhered to, If the product is Incorrectly installed, or in the event of damage caused by external influences, force mejure, intervention by third parties or the use of rnon-generiune components.
www.electrolux.com
www.electrolux.ch
EasyManual