GL30NKEC - Barbecue AEG-ELECTROLUX - Free user manual and instructions
Find the device manual for free GL30NKEC AEG-ELECTROLUX in PDF.
User questions about GL30NKEC AEG-ELECTROLUX
0 question about this device. Answer the ones you know or ask your own.
Ask a new question about this device
Download the instructions for your Barbecue in PDF format for free! Find your manual GL30NKEC - AEG-ELECTROLUX and take your electronic device back in hand. On this page are published all the documents necessary for the use of your device. GL30NKEC by AEG-ELECTROLUX.
USER MANUAL GL30NKEC AEG-ELECTROLUX
Assembly Instructions Included
30'' Stainless Steel
Outdoor Grill
with Electronic Ignition


Visit the Frigidaire Web Site at:
http://www.frigidaire.com
Welcome/Product Registration ....1
General Safety Instructions 2
Grill Features and Components . .3-4
Grill Assembly Built-In Instructions 5-8
Gas Requirements Leak Testing 9-11
Lighting the Grill. 12
Using the Grill Rotisserie/Side Burner Usage 13-15
Care & Maintenance. 16
Troubleshooting Your Grill . . .17- 18
Warranty. 19










Welcome & Congratulations
Congratulations on your purchase of a new grill! We at Electrolux Home Products are very proud of our product and we are completely committed to providing you with the best service possible. Your satisfaction is our #1 priority.
Please read this Use & Care Manual very carefully. It contains valuable information on how to properly maintain your new grill.
We know you'll enjoy your new grill and thank you for choosing our product. We hope you consider us for future purchases.
PLEASE READ AND SAVE THESE INSTRUCTIONS
This Use & Care Manual provides specific operating instructions for your model. Use your grill only as instructed in this manual. These instructions are not meant to cover every possible condition and situation that may occur. Common sense and caution must be practiced when installing, operating and maintaining any appliance.
Please record your model and serial numbers below for future reference. This information is found on the serial plate located on the back of the built-in grill or on the inside of the cart door (complete grill & cart model).
NOTE: Use only soap and water to clean serial plate.
Model Number:
Serial Number:
Purchase Date:
Gas Type:
Please complete and mail in the Product Registration Card included with your grill.
Questions? 1-800-320-0859
Register Your Product The PRODUCT REGISTRATION CARD should be filled in completely signed and returned to Electrolux Home Products North America.

Please attach sales receipt here for future reference.
General Safety Instructions
IMPORTANT SAFETY INFORMATION


- Read this manual carefully before using your grill to reduce the risk of fire, burn hazard or other injury.
- Extreme care should be used because of the high temperatures produced by this appliance. CHILDREN SHOULD NOT BE LEFT UNATTENDED IN AN AREA WHERE THE GRILL IS BEING OPERATED.
- This appliance must be kept clear from combustible materials, gasoline or other flammable vapors and liquids. Do not allow flammable materials to come in contact with grate, burner or hot surfaces.
- Use only outdoors and provide good ventilation to avoid carbon monoxide build-up which could result in injury or death.
- Do not repair or replace any part of this appliance unless it is specifically recommended in this manual. A qualified service technician should conduct all other service.
- Follow the installation and servicing instructions provided with this product. Have your grill installed by a qualified service technician.
- Locate the main gas supply valve so that you know how to shut the gas off to your grill.
- If you smell gas, make sure all gas connections are tight before operation. If you continue to smell gas call a qualified technician.
- When lighting a burner, always pay close attention to what you are doing and be certain you are pushing the igniter that lights the burner you intend on using.
- Always keep your face and body as far away as from the grill as possible when lighting to reduce the risk of burn.
- Extinguish all flames and do not smoke while engaging gas and igniting the grill.
FOR YOUR SAFETY
If you smell gas:
- Shut off gas to the appliance.
- Extinguish any open flames.
- Open grill hood.
- If odor continues, immediately call your gas supplier.
CALIFORNIA PROPOSITION 65 - WARNING:
The Burning of gas cooking fuels generates some by products which are on the list of substances which are known by the State of California to cause cancer or reproductive harm. California law requires businesses to warn customers of potential exposure to such substances. To minimize exposure to these substances, always operate this unit according to the use and care manual, provide good ventilation when cooking with gas.
This appliance is not intended to be installed in or on recreational vehicles or boats.
FOR OUTDOOR USE ONLY
TESTED IN ACCORDANCE WITH ANSI Z21.58b-2002/CGA 1.6b-M02 STANDARD FOR OUTDOOR COOKING GAS APPLIANCES. THIS GRILL IS FOR OUTDOOR USE ONLY.
Check your local building codes for the proper method of installation. In the absence of local codes, this unit should be installed in accordance with the National Fuel Gas Code No. Z223.1-2002 and the National Electrical Code ANSI/NFPA No. 70-1990
FOR YOUR SAFETY
DO NOT store or use gasoline or other flammable vapors and liquids in the vicinity of this or any other appliance.
An LP cylinder not connected for use shall not be stored in the vicinity of this or any other appliance.
WARNING
DO NOT try lighting this appliance without reading the “LIGHTING INSTRUCTIONS” section of this manual.
Grill Features: GL30

- Roll top grill hood
- Grilling/Cooking surface
- Side Shelf
- Control knob: back infrared burner
- Control knobs: main burners
- Convection vents
-
Hood Handle
-
Warming shelf
- Infrared back burner
- Electronic igniter: main, rear infrared & side burner
- Cart with door
- Side Burner
- Control knob: Side Burner
IMPORTANT: Remove all protective plastic film from stainless steel parts prior to assembly/use. This film is installed at the factory to prevent damage that could occur during shipment and handling.
SIDE SHELF ATTACHMENT
- Attach the shelf to the left side of grill by inserting the shelf hooks into the slots on the side of the grill and pushing down on the shelf assembly until level with grill. (See Fig. 1)
- Lock the shelf in place by inserting (2) self tapping screws into shelf. (See Fig. 2)
INTERIOR PARTS INSTALLATION
- Install the bottom Flavor Grids in the lower cutouts and around the igniters. (See Fig. 3)
- Insert the top row of Flavor Grids with the 90 degree angled heat shield (bottom side of flavor grid) facing the rear of the unit into cutouts with triangle ridges facing up. (See Fig. 4-5)
- Install cooking grates on the ledges provided on the grill to create your cooking surface. (See. Fig. 6)
- Place warming shelf on support brackets by setting it flat across brackets allowing the two holes to line up with the holes on each bracket. (See Fig. 6)
- Remove label from drip tray and verify that the tray is installed correctly. The drip tray is located underneath the grill, inside the storage compartment. (See Fig. 7)

Fig. 6

Fig. 7

Fig. 1

Fig. 2

Fig. 3

Fig. 4

Fig. 5
Side Burner Assembly
SIDE BURNER PARTS ASSEMBLY
- Attach the side shelf to the grill by inserting the shelf hooks into the slots on the side of the grill and pushing down on the shelf assembly until level with the grill. (See Fig. 8)
- Lock the side shelf in place by inserting (2) hex head screws in the side burner. (See Fig. 9)
NOTE: A power screwdriver extension is needed to insert screws.
- Install burner and cap. (See Fig. 10-11)
- Install grate over burner. (See Fig. 12)
- Attach the three (3) wires coming out from the side of the grill and the side burner wire to the igniter terminals. (See Fig. 13-14)
NOTE: It does not matter which wire goes to which terminal on the igniter.

Fig. 13

Fig. 14

Fig. 8

Fig. 9

Fig. 10

Fig. 11

Fig. 12
WARNING
The Frigidaire Gallery Grill can be installed as a built-in grill. If installed as a built-in grill, the outdoor cooking center must be constructed of non-combustible material.
PLANNING AND DESIGN
Start by identifying the number and size of components you want to include in your outdoor cooking center. Countertops must be constructed of non-combustible, outdoor-safe materials. Consider outdoor lighting to illuminate after-dark grilling. For assistance in designing and building your outdoor cooking center, contact a landscape architect or general contractor. Review the drawings on the following pages to determine the exact dimensions and items needed for an outdoor cooking center. Keep in mind that the gas line hook-up is on the right hand side of the main built in-grill. The structure, grill and support items must be kept level throughout the installation to ensure proper operation.
LOCATION
Take into account convenience and visual impact as well as traffic flow, wind exposure, and the site's structural suitability. The grill should never be placed in an enclosed area without an approved ventilation system, or beneath a combustible overhang. Because the grill exhausts to the rear, it should never be located in front of a window or less than 12" from hard-to-clean surfaces. We recommend keeping your gas supply lines as short as possible for best performance. To ensure a perfect fit, we strongly recommend that you have all components on hand prior to final construction.
CLEARANCE TO NON-COMBUSTIBLE CONSTRUCTION
For your safety a minimum of 3" clearance from the back of the grill to non-combustible construction is required. You should allow at least 6" side clearance to non-combustible construction. The side vents on this unit can be covered for built in installations without danger of fire or without impairing the operation of the grill
OUTBOARD IGNITER PLATE INSTALLATION (SEE DRAWING ON FOLLOWING PAGE)
The electronic igniters require a standard size deep electrical box, (available at a local hardware store), with a minimum depth of 2.5" to be mounted in the structure. It should be placed on the right front or right side of the outdoor cooking center, with the center of the igniter button no more than 3"-5" from the grill. The igniter plate (included with the built-in grills) fits over the standard electrical box once mounted in the structure. (See drawing on following page). If there is a ground wire for the igniter, it needs to be grounded to a metal structure in order for the igniter to work.
UTILITIES
For natural gas grills, consult your local gas utility company for hook-up requirements. All gas connections should be made by a certified technician or a gas supply company. For natural gas installation, the supply line must be at least 1/2 diameter. The rotisserie requires a 110/120 volt electric supply and GFI receptacle. (6.5 amp min.) that should be installed by a qualified electrical technician. If your plan includes a sink, arrange for a certified plumbing technician to run a water line to the site.
ELECTRICAL GROUNDING INSTRUCTIONS
The optional rotisserie kit is equipped with a three-prong (grounding) plug for your protection against shock hazard and should be plugged directly into a properly grounded three-prong receptacle. Do not cut or remove the grounding prong from this plug.
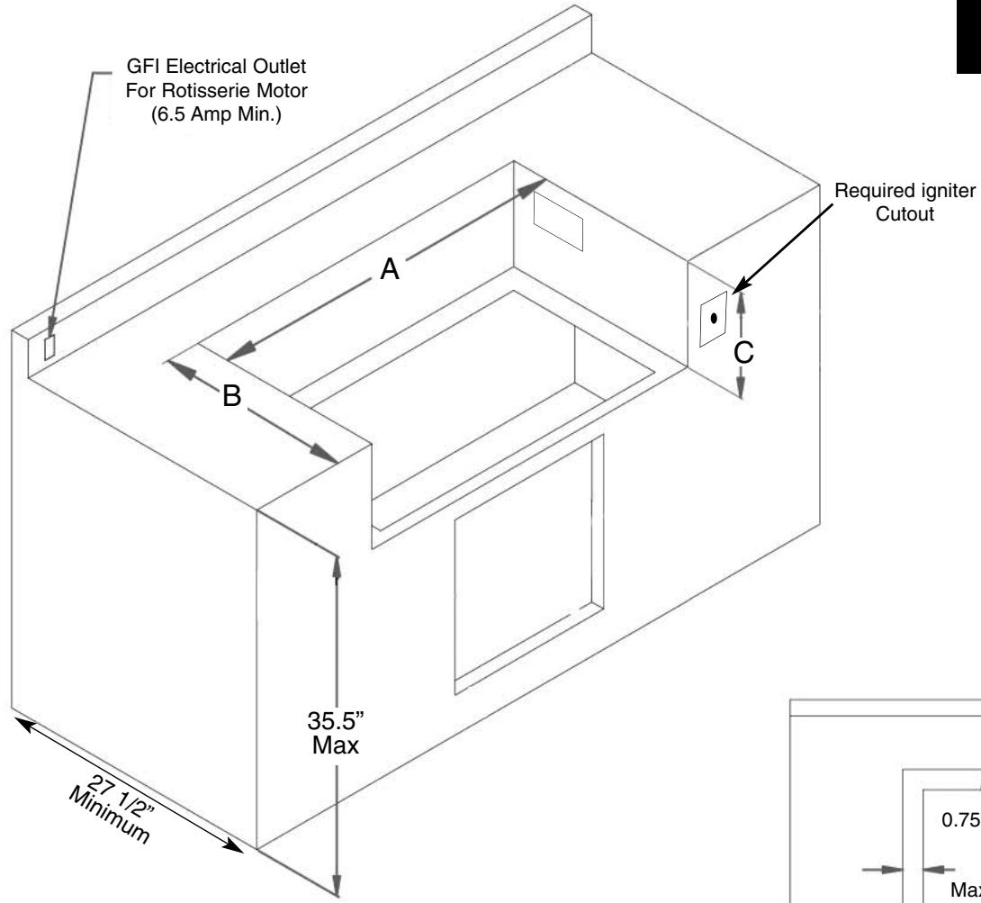
Built-In Instructions


Note: Make Sure To Use Non-Combustible Material For Construction
Note A: Wire & Plumbing Cutout Left & Right Sides 6" x 4" Opening Minimum


GL30 Frigidaire Gallery Grills Built-In Dimensions
Without trim kit
| A | 30 3/8” |
| B | 21 1/8 |
| C | 10 15/16” |
With trim kit
| A | 30 1/2” |
| B | 21 1/2 |
| C | 10 15/16” |
Additional Requirements:
- Access doors required for drip tray removal. Some sort of access panel is required for removal or cleaning of the drip tray.
- If using a backsplash apron or rear wall, locate electrical service on the left hand side for rotisserie motor construction.
- A minimum clearance of 12" from the back of the outdoor cooking center must be maintained between the grill and any combustible construction such as wood siding of residence, 3" minimum for non-combustible construction.
- The side vents on this unit can be covered for built in installations without danger of fire or without impairing the operation of the grill.
Gas Requirements
GENERAL INFORMATION

Never attach an unregulated gas line to the appliance. Connection to an unregulated gas line can cause excessive heat or fire.
Verify the type of gas supply to be used, either Natural Gas (N.G.) or Liquid Propane (L.P.), and make sure the serial plate agrees with that of the supply. Conversion kits are available separately for an additional cost which will enable you to convert your grill from L.P. to N.G. or to convert your grill from N.G. to L.P. Please see your local dealer for more information.
NOTE: Always have a qualified service technician perform difficult conversions or modifications.
For natural gas installations, an installer must supply a gas shutoff valve that is easily accessible to the grill. All installer supplied parts must conform to local codes, or in the absence of local codes, with the National Electrical Code, ANSI/NFPA 70-1990, and the National Fuel Gas Code, ANSI Z223.1-1998.
All pipe sealants must be an approved type and resistant to the actions of L.P. gases. Never use pipe sealant on flare fittings. All gas connections should be made by a competent qualified service technician and in accordance with local codes and ordinances. In the absence of local codes, the installation must comply with the National Fuel Gas Code, ANSI Z223.1-1998. Gas conversions kits may be purchased separately. When ordering gas conversion kits, have the model number, and the type of gas (N.G. or L.P.) used for your grill.
This grill and its individual shut off valve must be disconnected from the gas supply piping system during any pressure testing of that system at test pressures in excess of 1/2 PSIG (3.5 kPa.).
This grill must be isolated from the gas supply piping system by closing its individual manual shut-off valve during any pressure testing of the gas supply piping system at test pressures equal to or less than 1/2 PSIG (3.5 kPa.).
The installation of this grill must conform with local codes, or in the absence of local codes, with National Fuel Code, ANSI Z223.1a-1998.
Installation in Canada must be in accordance with the Standard Can1-b149.1 and or .2 (installation code for gas burning appliances and equipment) and local codes.
NATURAL GAS INSTALLATION
The gas inlet supply pressure should be between 5" and 14" water column,(w.c.) A step down regulator is required if the line pressure is in excess of 14" w.c. Inlet pressure must not exceed 14" water column (1/2 PSIG)
Check your local gas utility company or with local codes for instructions on installing gas supply lines. Be sure to check on type and size of run, and how deep to bury the line. If the gas supply line is too small, the grill will not operate correctly.
Any joint sealant used must be an approved type and be resistant to chemical breakdown resulting from the reaction with N.G.
Attach the natural gas regulator (supplied with your grill) to the brass fitting coming out the bottom, right side of the grill (be sure the arrow on the regulator is pointing up towards the grill). Attach your gas line to the 3/8 flare fitting coming out of the natural gas regulator under the grill.
NOTE: The gas line connection and the gas fitting must be the same diameter.
Installer supplied shut-off valve (not included) - Place the shut-off valve in an accessible location to enable the gas supply to be cut off to the unit.
NOTE: A flexible natural gas line is not included with Frigidaire Gallery grills. Natural gas flex line must be purchased separately based on the distance of your grill location from the natural gas line. Please be sure to check the size of your home's natural gas line fitting to make sure you get the right size connection for your particular application. If you have questions, please consult your local natural gas distributor or qualified service technician.
Gas Requirements
Frigidaire Gallery Gas Grills that are set to operate with L.P. gas come with a high capacity hose and regulator assembly. (Note: Only use the pressure regulator and hose assembly supplied with the grill or a replacement pressure regulator and hose assemblies specified by Frigidaire). This assembly is designed to connect directly to a standard 20 lb. L.P. cylinder. L.P. Cylinders are not included with the grill. L.P. Cylinders can be purchased separately at an independent dealer.




L.P. TANK INFORMATION
Never use a dented or rusted L.P. tank or cylinder with a damaged valve.
L.P. cylinders are equipped with an O.P.D (Overfilling Prevention Device). The device shuts off the flow of gas to a cylinder after 80% capacity is reached. This limits the potential for release of gas when the cylinder is heated, averting a fire or possible injury.
The L.P. cylinder must have a shut-off valve terminating in an L.P. gas supply cylinder outlet specified, as applicable, for connection No. 510 in the standard for compressed gas cylinder valve outlet and inlet connection ANSI/CGA-V-1. Cylinders must not be stored in a building, garage, or any other enclosed area. (The L.P. cylinder must have an overfill protection device, OPD, on it.)
The L.P. gas supply cylinder must be constructed and marked in accordance with the specifications for L.P. gas cylinders of the U.S. Department of Transportation (DOT) or the National Standard of Canada, CAN/CAS-B339, "Cylinders, Spheres and Tubes for the Transportation of Dangerous Goods."
L.P. TANK USE
- When turning the L.P. tank on, make sure to open the valve SLOWLY two (2) complete turns to insure proper gas flow. Most gas tanks now come equipped with a leak detector mechanism internal to the tank, when gas is allowed to escape rapidly it shuts off the gas supply. Opening the valve rapidly may simulate a gas leak, causing the safety device to activate, restricting gas flow causing low flames. Opening the valve slowly will insure this safety feature is not falsely triggered.
- When not in use, gas supply cylinder valve is to be in the "OFF" position.
- The tank supply system must be stored upright to allow for vapor withdrawal.
- The regulator and hose assembly must be inspected before each use of the grill. If there is excessive abrasion or wear or if the hose is cut, it must be replaced prior to the grill being used again.
- Cylinders must be stored outdoors out of the reach of children and must not be stored in a building, garage or any other enclosed area.
- Only a qualified gas supplier should refill the L.P. tank.
- Do not store a spare L.P. gas cylinder under or near the grill.
Pre Operation Leak Testing
GENERAL INFORMATION
Although all gas connections on the grill are leak tested prior to shipment, a complete gas tightness check must be performed at the installation site due to possible shifting during shipment, installation or excessive pressure unknowingly being applied to the unit. Periodically check the whole system for leaks and immediately check the system if the smell of gas is detected.
BEFORE TESTING
Do not smoke while leak testing. Extinguish all open flames. Never leak test with an open flame.
Mix a solution of equal parts mild detergent or liquid soap and water.
TESTING
- Turn off the burner control knobs.
- Turn the top knob of the fuel supply cylinder counterclockwise (right to left) two (2) rotations to open.
- Apply the soap solution to connections of the fuel supply assembly. If no soap bubbles appear, there is no gas leak. If bubbles form at the connections, a leak is detected. If a leak is detected, immediately turn off the gas supply, tighten any leaking fittings, turn gas on, and repeat steps 1-3.
- Turn off the knob on the fuel supply cylinder.
- Turn on the burner control knobs for a moment to release the pressure in the hose, then turn the control knobs back off.
- Wash off soapy solution with cold water and towel dry.
Check all gas supply fittings before each use and each time the gas supply cylinder is connected to the regulator. Have a qualified service technician leak test the grill any time a part of the gas system is replaced.
Also it is recommended to perform a leak test at least once a year whether or not the L.P. gas supply cylinder has been disconnected.
NOTE: When leak testing this appliance, make sure to test and tighten all loose connections, including the side burner. A slight leak in the system can result in a low flame, or hazardous condition. Most L.P. gas tanks now come equipped with a leak detector mechanism internal to the tank, when gas is allowed to escape rapidly it shuts off the gas supply. A leak may significantly reduce the gas flow making the grill difficult to light or causing low flames.
NOTE: If you cannot stop a gas leak turn off the gas supply and call your local gas company or the dealer you purchased the appliance from. If necessary, replace the faulty part with the manufacturer's recommended replacement part. A slight leak could cause a fire.
BEFORE LIGHTING
WARNING Important! Before Lighting...
Check the gas supply line for cuts, wear or abrasion.
Always keep your face and body as far away from the grill as possible when lighting.
Lighting the Grill with electronic igniter
- Make sure tall control knobs are in the "OFF" position.
- Open the gas supply valve located on top of your L.P. tank.
ATTENTION: When turning the L.P. tank on, make sure to open the valve very SLOWLY two (2) complete turns to insure proper gas flow.
- Always open the hood before attempting to light.
4.Push and turn one of the control knobs counter clockwise to the "HIGH" position and immediately press the electronic igniter button. You will hear a snapping sound. It may be necessary to hold the electronic starter button for about 4 seconds. (See Fig. 15)
NOTE: If the burner does not light in 4 seconds, turn the knob to the "OFF" position and wait 5 minutes before trying again.
- Repeat above steps to light remaining burners.
Match Lighting
If by chance the electronic igniter does not light the burner, the burner may be lit with a match. Keep your face as far away from the grill surface as possible and place a lit, long stem match through the spaces in the grill grates to the ports of the back crossover burner between the flavor grids. Position the match near the burner ports and push and turn the control knob counter clockwise to the "HIGH" position. (See Fig. 16-17)
NOTE: If the grill will not light after several attempts see the trouble-shooting section of this manual. Turn the control knobs to the OFF position when not in use.
Do not attempt to “Light” the grill if the odor of gas is present!!

Fig. 15

Fig. 16

Fig. 17
Using the Grill
GRILL LOCATION

Do not use the grill in garages, breezeways, sheds or any enclosed area. Never operate the grill in enclosed areas as this could lead to a carbon monoxide buildup, which could result in injury or death. Place the grill on a level surface. Avoid moving the grill while it is operation.
NOTE: The grill will operate best if it is not facing directly into the wind.
Clearance to combustible construction - A minimum of 12" from the sides and back must be maintained from the gas grill above and below the cooking surface to adjacent vertical combustible construction.
Clearance to non-combustible construction - A minimum of 5" clearance from the back of the grill to non-combustible construction is required for the lid to fully open.
Storage of an outdoor gas cooking appliance indoor is permissible only if the cylinder is disconnected and removed from the appliance.
GENERAL RULES
Do not leave the grill unattended while cooking!
- Make sure the grill has been leak tested and is properly located.
- Light the grill burners using the instructions provided in this manual.
- Turn the control knobs to desired temperature "High, Medium, or Low" and preheat the grill for 10 minutes before cooking.
- Adjust heat settings to meet your cooking needs for desired results.
- Allow grill to cool down, wipe off any splatters or grease and clean the drip tray as needed.
- Do not put a cover on the grill while it is still hot as it could start a fire.

Keep any electrical supply cords and the fuel supply hose away from any heated surfaces.
Using the Rotisserie & Side Burners
(Optional ROTISSERIE KIT to use with back infrared burner must be purchased separately)
The grill rotisserie system is designed to cook items from the back using infrared heat. The rotisserie burner is an infrared type which provides intense searing radiant heat. Preferred by chefs over other cooking methods, this intense heat sears in the natural juices and nutrients found in quality cuts of meats.

Remove the warming rack from the grill when using the rotisserie to prevent warping from the intense heat of the infrared unit.
NOTE: The rotisserie spit rod is centered between the grill hood and the burners. It may be necessary to remove the grates and flavor grids when cooking larger portions of meat on the rotisserie. This is by design, since this configuration gives you the most possible room above and below the rod for larger pieces of meat.
Once lit, the rotisserie burner will reach cooking temperature in 1 minute. The orange/red glow will even out in about 5 minutes. The rotisserie motor is equipped with metal gears and is capable of turning up to 20 lbs. of food. The motor is mounted on a bracket on the left side of the grill by sliding the motor over the bracket with the cord facing the back of the grill. Make sure the rotisserie motor is completely seated on the bracket prior to operating. Make sure the rotisserie cord is away from any hot surfaces.

WARNING
Electrical Grounding Instructions
This appliance (rotisserie motor) is equipped with a three-prong (grounding) plug for your protection against shock hazard and should be plugged directly into a properly grounded three-prong receptacle. Do not cut or remove the grounding prong from this plug.
ATTACHING THE ROTISSERIE (purchased separately)
- For bracket installation, see instruction sheet provided with the optional rotisserie kit.
The motor is mounted on a bracket on the left side of the grill by sliding the motor over the bracket with the cord facing the back of the grill.
With the rotisserie motor in place and plugged into an electrical outlet, it is now ready to operate. Slide one of the meat forks onto the rod (prongs facing away from the handle). Push the rod through the center of the food, then slide the second meat fork onto the rod (prongs toward the food). Center the food to be cooked on the rod, then push the meat forks firmly together. Tighten the thumb screws. It may also be necessary to wrap food with butcher's string, (never use nylon or plastic string) to secure loose portions.
Once the food is secure, insert the pointed end of the rotisserie rod into the motor assembly and rest the other end on the support on the right-hand side of the grill. (If needed, remove the cooking grates for more room). Turn the power switch to the "On" position to start the rotisserie motor.

NOTE: Remove the rotisserie when not in use. Store the unit indoors when not in use. Remove warming shelf when using rotisserie.

WARNING
Do not use the rotisserie in the rain.
ROTISSERIE LIGHTING
Open the lid. Push and turn the control knob for the rotisserie counter clockwise to the "HIGH" position. Wait 5 seconds. Then press and hold the electronic igniter button. You'll hear a snapping sound. If the burner does not light in 4 seconds, turn the control knob to OFF and wait 5 minutes before trying again. Once lit, turn the control knob to the desired setting. (See Fig. 18)
(If the igniter does not function, the burner can be lit by holding a lit match to the burner while the control knob is turned counter clockwise to "HIGH".) (See Fig. 19)
NOTE: After the first use the stainless steel around the burner will darken. This is a normal reaction of premium stainless steel to heat and is not a defect. The infrared panel will also darken after initial use. This is also a normal occurrence.

NOTE: Do Not operate the main burners and infrared back burner at the same time. This can cause warping of the roll top grill hood.
Push and turn the control knob to the "HIGH" position and immediately press and hold the electronic igniter button. You'll hear a snapping sound. It may be necessary to hold the electronic starter button for about 4 seconds. If the burner does not light in 4 seconds, turn the knob to the "OFF" position and wait 5 minutes before trying again. Repeat above steps to light remaining burners. (See Fig. 20)
MATCH LIGHTING OF THE BURNER
If by chance the electronic igniter does not light the burner, the burner may be lit with a match. Keep your face as far away from the burner as possible and place a lit, long stem match through the spaces in the grate to the ports of the burner. Position the match near the burner ports and push and turn the control knob to the "HIGH" position.

Fig. 18

Fig. 19

Fig. 20
Care and Maintenance

DRIP TRAY
The drip tray located below the grill, inside the cart, should be cleaned periodically to prevent heavy buildup of debris.
NOTE: Allow the drip tray to cool before attempting to clean.
Important: Do not leave the grill outside during inclement weather unless it is covered (cover sold separately). Rain water can collect inside of the grill, the grill cart or the drip tray if left uncovered. If the drip tray is not cleaned after use and the grill is left uncovered, the drip tray will fill with water causing grease and water to spill into the grill cart. We recommend cleaning and storing the drip tray after every use.
COOKING GRATES
The cooking grates can be cleaned immediately after cooking is completed and after turning off the grill. Wear a barbecue mitt and scrub the cooking grates with a damp cloth. If the grill is allowed to cool down, cleaning the grates will be easier if removed from the grill and cleaned with a mild detergent.
STAINLESS STEEL
After initial usage, areas of the grill may discolor from the intense heat given off by the burners, this is normal.
Purchase a mild stainless steel cleaner and rub in the direction of the grain of the metal. Specks of grease can gather on the surface of the stainless steel and bake on to the surface and give a worn appearance. For removal, use an non-abrasive oven cleaner in conjunction with a stainless cleaner.
NOTE: Always scrub in the direction of the grain.
IGNITER ACCESS (UNDER SIDE BURNER SHELF):
To remove igniter, unscrew igniter push button and locking nut from front panel of the side burner and igniter will fall out through the bottom
IGNITTER ASSEMBLY:


- The Battery, spring and igniter cap must be installed before using.
- Install the battery, positive side first.
- Slide spring assembly over battery.
- Screw igniter cap onto igniter.
REAR INFRARED BURNER:
Light and burn the rear infrared burner at least once a month to ensure there is not a build-up of debris or grease on the burner. This will ensure the ceramic burner will continue to operate as it should.
Troubleshooting Your Grill
GENERAL TROUBLE SHOOTING
You should inspect the burners at least once a year or immediately if any of the following conditions occur:
- The smell of gas.
- Flames appearing mostly yellow. (some yellow at the tips is OK)
- The grill will not get hot enough.
- Burners make a snapping noise.
- The grill heats unevenly.
SPIDER AND INSECT WARNING
Spider and insects can nest in the burners of this or any other grill and cause the gas to flow from the front of the burner. This is very dangerous condition which can cause a fire to occur behind the valve panel, thereby damaging the grill and making it unsafe to operate. We recommend you check the grill and remove any spiders, insects and webs at least once a year to reduce this risk.
BEFORE CALLING CUSTOMER SERVICE
If the grill does not function properly, use the following checklist.
PROBLEM
SOLUTION
Grill will not light when the igniter button is pushed.
Is your gas supply turned on?
If this is an L.P. grill, is there gas in your tank? Check your gas level.
Is one of your burners turned on? Allow up to four seconds of gas flow to ignite.
Is your igniter working?
- You should hear a snapping sound when you press the igniter?
- If you hear a snapping sound can you see a spark at the electrodes?
Note - You will need to remove your cooking grates and flavor grids to see the electrodes.
Check your igniter battery and replace if needed.
Check for loose wire connections to the igniter or electrodes.
Check to see if debris is blocking the electrodes.
If the igniter is not working can you light the grill with a match?
Troubleshooting Your Grill

PROBLEM
SOLUTION
Grill will not light with a match or low heat with dial set to "High" position.
- Is your gas supply fully turned on?
- If this is an L.P. grill is there gas in your tank? Check your gas level.
- If this is an L.P. grill, shut off gas supply, disconnect gas line at tank, reconnect the line to the tank.
- Make sure all the knobs are in the off position, then open the gas supply valve on the L.P. tank very slowly 1/4 turn, then open fully (at least two full turns). Check flame height again.
- Check to insure the gas supply line or hose is not kinked.
- If only one burner appears low, check and clean the burner ports if clogged or dirty.
- Check for leaks.
Note - Pre-Heating time can take from 5 to 10 minutes.
Flame is erratic
-
Check gas connection
-
look for kinked hose.
- make sure gas supply valve is fully open.
Gas level may be low.
- Grill may be in need of cleaning.
Flare-ups
- Check flavor grids and cooking grates for excess food or grease build-up.
- Ensure grill is not placed directly in the path of wind.
- Be sure drip tray is clean, (do not use aluminum foil on drip tray.)
Note: Some flare-ups may be inevitable if cooking greasy foods.
Burner flame is mostly yellow or orange, possibly in conjunction with smell of gas.
- Check the burner inlet for obstructions. Particularly at air inlets for each burner.
- Grill may be in an area that is too windy.
Cart door does not align properly with cart
- Loosen the four 1/2 bolts under the grill hood that hold grill to cart. Slide grill head left or right as needed until door is aligned properly. Retighten bolts.
WARNING: Move grill head gently to the left or right on the cart! After the four bolts have been loosened, the grill is not attached to the cart and could fall, causing damage or physical injury.
LIMITED LIFETIME WARRANTY
Frigidaire Grills have a limited lifetime warranty on all stainless steel panels, limited 3 years on stainless burners, a limited 1 year warranty on all other parts and limited 1 year on labor.
In the U.S.A., your appliance is warranted by Electrolux Home Products North America. We authorize no person to change or add to any of our obligations under this warranty. Our obligations for service and parts under this warranty must be performed by an authorized Electrolux Home Products North America qualified service technician.
NORMAL
RESPONSIBILITIES
OF THE CUSTOMER
This warranty applies only to products in ordinary household use, and the consumer is responsible for the items listed below:
- Proper use of the appliance in accordance with instructions provided with the product.
- Proper installation by an authorized servicer in accordance with instructions provided with the appliance and in accordance with all local plumbing, electrical and/or gas codes.
- Expenses for making the appliance accessible for servicing, such as removal of trim, cupboards, shelves,etc.,which are not a part of the appliance when it was shipped from the factory.
- Damages to finish after installation.
EXCLUSIONS
This warranty does not cover the following:
- CONSEQUENTIAL OR INCIDENTAL DAMAGES SUCH AS PROPERTY DAMAGE AND INCIDENTAL EXPENSES RESULTING FROM ANY BREACH OF THIS WRITTEN OR ANY IMPLIED WARRANTY.
NOTE: Some states do not allow the exclusion or limitation of incidental or consequential damages, so this limitation or exclusion may not apply to you.
- Service calls which do not involve malfunction or defects in workmanship or material, or for appliances not in ordinary household use. The consumer shall pay for such service calls.
- Damages caused by services performed by servicers other than Electrolux Home Products North America or its authorized servicers; use of parts other than genuine Electrolux Home Products parts; obtained from persons other than such servicers; or external causes such as abuse, misuse, inadequate power supply or acts of God.
- Products with original serial numbers that have been removed or altered and cannot be readily determined.
IF YOU NEED SERVICE
Keep your bill of sale, delivery slip, or some other appropriate payment record. The date on the bill establishes the warranty period should service be required. If service is performed, it is in your best interest to obtain and keep all receipts. This written warranty gives you specific legal rights. You may also have other rights that vary from state to state. Service under this warranty must be obtained by contacting Electrolux Home Products:
This warranty only applies in the 50 states of the U.S.A., Puerto Rico, and Canada. Product features or specifications as described or illustrated are subject to change without notice. All warranties are made by Electrolux Home Products North America. In Canada, your appliance is warranted by Electrolux Canada Corp.
If you have any other questions, please contact the Customer Service Hotline at 1-800-320-0859
Because of continuing product improvement, these specifications are subject to change without notice
EasyManual