Rocky - Kamin Wamsler - Kostenlose Bedienungsanleitung
Finden Sie kostenlos die Bedienungsanleitung des Geräts Rocky Wamsler als PDF.
Laden Sie die Anleitung für Ihr Kamin kostenlos im PDF-Format! Finden Sie Ihr Handbuch Rocky - Wamsler und nehmen Sie Ihr elektronisches Gerät wieder in die Hand. Auf dieser Seite sind alle Dokumente veröffentlicht, die für die Verwendung Ihres Geräts notwendig sind. Rocky von der Marke Wamsler.
BEDIENUNGSANLEITUNG Rocky Wamsler
Bedienungs- und Aufstellanleitung
GBFireplace user instruction
FCheminée, mode d'emploi
Istruzioni per uso e installmente

TYP 18813 TOMO

TYP 18814 OKU

TYP 18815 ROCKY
Vorwort
Sehr verehrter Kunde.
wir beglückwūnschen Sie zum Erwerb unseres Kaminofens.
Sie haben die richtige Wahl getroffen.
Mit dem Kauf diesen Produktes haben Sie die Garantie für
- Hohe Qualität durch Verwendung bester und bewährter Materialien
- Funktionssicherheit durch ausgereife Technik, die streng nach der europäischen Norm EN 13240 geprüft ist
(Geräte sind für die Mehrfachbelegung geeignet)
- Lange Lebensdauer durch die robuste Bauweise
Damit Sierecht langle Freude an Ihrem neuen Kaminofen haben, sollen den sie die folgende Bedienungsanleitung studieren. Hierin finden Sie alles Wissenswerte sowie eine zusätzliche Tipps.
ACHTUNG
Bei Ersatzteilbestellungen die am Typschild des Gerätes eingetragene Antikel-Nr./Article No. und Fertigungs-Nr./Serial No. angeben.
Inhaltsverzeichnis
Vorwort 2
Inhaltsverzeichnis 2
SICHERHEITSHINWEISE 3
1. Bedienung 5
1.1 Geräteaufbau 5
1.2 Inbetriebnahme 6
1.3 Außerbetriebnahme 8
1.4 Hinweise zum Heizen 9
1.5 Reinigung und Pflege 9
1.6 Störungsursachen, Behebung 11
2. Aufstellung 12
2.1 Vorschriften 12
2.2 Aufstellräume 12
2.3 Geräteabstände 12
2.4 Schornsteinanschluss 13
2.5 Verbrennungsluft 14
3. Technische Daten 15
3.1 Maßzeichnungen 15
3.2 MaBe und Gewichte 16
3.3 Technische Daten 16
SICHERHEITSHINWEISE
- Die Geräte sind nach DIN EN 13240 geprüft.
- Bei der Aufstellung und dem abgasseitigen Anschluss sind die anwendbaren nationalen und europäischen Normen, örtliche und baurechtliche Vorschriften/Normen (z.B. DIN 18896, DIN 4705, DIN EN 13384, DIN 18160, DIN EN 1856-2, DIN EN 15287 u.a.) sowie feuerpolizeiliche Bestimmungen (z.B. FeuVo) zu beachten. Lassen Sie das Gerät nur von einem qualifi-zierten Fachmann aufstellen und anschlieben. Zur korrekten Funktion Ihres Gerätes muss der Schornstein, an den sie das Gerät anschlieben sollen, in einwandfreiem Zustand und mind. bis 400^ belastbar sein.
- Vor Erstinbetriebnahme und vor dem Schornsteinanschluss, die Bedienungsanleitung grundlich durchlesen und den zuständigen Bezirksschornsteinfegermeister / Bezirksbeaufträge informieren.
- Zur einwandfrei Funktion des Gerätes muss der Schornsteinzug mind. 12 Pa Unterdruck aufweisen und damit kurzzeitig 15 Pa detragen.
- Es wird empfohlen bei Aufstellung der Geräte saubere Baumwollhandschuhe zu tragen, um Fingerabdrücke, die später schwierig zu entfernen sind, zu vermeiden.
- Im Interesse der Luftreinhaltung und der sicheren Funktion des Gerätes sollen die in der Bedienungsanleitung angegebenen max. Brennstoffaufgabemengen nicht übersritten werden und die Turen der Geräte geschlossen sein, da sonst die Gefahr des Überheizens besteht, was zu Beschädigungen am Gerät führen kann. Beschädigungen solcher Art, unterliegen nicht der Garantiepflicht.
- Die Turen der Geräte müssen während des Betriebes immer geschlossen sein.
- Die zugelassenen Brennstoffe sind:
- Naturbelassenes Scheitholz (bis max. 25 / 33 cm Länge)
- Keine flüssigen Anzündhilfen verwenden. Zum anzünden sollenn spezielle Anzünder oder Holzwolle verwendet werden.
- Die Verbrennung von Abfallen, Feinhackschnitzeln, Rinden, Kohlegruß, Spanplattenresten, feuchtem und mit Holzschutzmitteln behandeltem Holz, Pellets, Papier, Zeitungen, Pappe o.a. ist verboten!
- Beim ersten Anheizen konnte es zu Rauchentwicklung und Geruchsbelastigung kommt. Unbedingt für gute Raumbeluftung sorgen (Fenster und Turen offen) und mindestens eine Stunde auf max. Nennwärmeleistung heizen. Solle beim ersten Heizvorgang die max. Temperatur nicht erreicht werden, so konnen diese Erscheinungen auch später noch auftreten.
- Die Bedienelemente und die Einstelleinrichtungen sind entsprechend der Bedienungsanleitung einzustellen.itte benutzen Sie bei freiem Gerat die Hilfswerkzeuge oder einen Schutzhandchuhe zur Bedienung.
- Beim Öffnen der Heiztür kann es bei Fehlbedienung bzw. bei nicht ausreichendem Schornsteinzug zu Rauchaustritt kommt. Es ist unbedingt zu beachten, dass die Heiztür nur langsam, zuerst einen Spalt und nach ein paar Sekunden ganz geöffnet werden darf. Außendem soll vor dem Öffnen der Heiztür zum nachlegen von Brennstoff nur noch das Glutbett im Brennraum vorhanden sein, das heißt, es darüber keine Flammen mehr sightbar sein.
- Verpuffungsgefahr!! Immer vor dem Offnen der Brennraumtüre, zuvor die Luftzufuhr langsam auf maximum Offnen! Warten Sie nach dem Offnen der Luftzufuhr ausreichend ange. Erst nachdem das Feuer bzw. die Glut auflodert, Offnen Sie die Heiztüre. Wenn Sie nach thisem Muster vorgehen, konnen Sie safer sein, nie eine Verpuffung erleben zu müssen, Denn sollte wirklich unverbrannten Verbrennungsgas im Brennraum gewesen sein, hatten Sie这点 with thiser Vorgehensweise verhindert. Also, nach jeder Brennstoffaufgabe den Primäreluftregler zuvor gaz Offnen und erst wieder nach entzünden der Brennstoffauflage nach Tabelle 1 einstellen.
- Im Warmhaltefach und auf / an dem Gerät dürfen keine brennbaren Gegenstände abgestellt oder angeleht werden. Sicherheitsabstände beachten!
- Vor der Aufstellung ist die ausreichende Tragfähigkeit der Aufstellfläche zu prufen. Bei unzureichender Tragfähigkeit ist eine Unterlegplatte zur Lastverteilung zu verwenden.

- Im Heizbetrieb konnen alle Oberflächen und和其他s die Sichtscheiben sowie die Griffe und Bedieneinrichtungen sehr heiß werden. Machen Sie während des Heizbetriebes anwesende Kinder, Personen und Tiere darauf aufmerksam. Verwenden Sie zur Bedienung den beigelegten Schutzhandschuh oder das Hilfswerkzeug. Kinder und Jugendliche unter 16 Jahren dürfen den Ofen ohne Aufsicht Erziehungsberechtigter nicht bedieren.
- Es ist darauf zu achten, dass der Aschekasten immer bis Anschlag eingeschoben ist und besonderss darauf zu achten, dass keine weißte Asche entsorgt wird (Brandgefahr).
- In der Übergangszeit kann es zu Störungen des Schornsteinzuges kommt, so dass die Abgase nicht vollständig abgezogen werden. Die Feuerstätte ist dann mit einer geringen Brennstoffmenge, am besten mit Holzpane/-Wolle zu befüllen und unter Kontrolle in Betrieb zunehmen, um den Schornsteinzug zu stabilisieren. Der Rost sollte sauber sein.
- Nach mindestens jeder Heizperiode ist es angebracht, die Geräte durch einen Fachmann kontrollieren zu halten. Ebenfalls solle eine grundliche Reinigung der Abgaswege und der Abgasrohre erfolgen.
- Wenn Ausbesserungen oder Ernueierungen vorgenommen werden müssen, wenden Sie sichitte rechtzeitig unter Angabe der genauen Art.Nr. und Fert.Nr. an ihren Fachhändler. Es sind nur Original Wamsler - Ersatzteile zu verwenden.
- Arbeiten, wie insbesondere Installation, Montage, Erstinbetriebnahme und Servicearbeiten sowie Reparaturen, dürfen nur durch einen ausgebildeten Fachbetrieb (Heizungs- oder Lufttheizungsbau) durchgeführt werden. Bei unsachgemäß Eingriffen erlösen Gewährleistung und Garantie.
- Da der Festbrennstoff-Ofen/Herd die zur Verbrennung benötigte Luft dem Aufstellungsraum entnimmt, ist davon zu sorgen, dass über die Undichtheiten der Fenster oder Außentüren stets genügdend Luft nachströmt. Man kann davon ausgegeben, dass dieser durch ein Raumvolumen von mind. 4m^3 je kW Nennwärmeleistung gewährleistet ist. Ist das Volumen geringer, kann über Lüftungsöffnungen ein Verbrennungsluftverbund mit anderen Räumen hergestellt werden (min. 150cm^2 ).
- Es ist darauf zu achten, dass die Abstände zu brennbaren Bauteilen und Materialien - seitlich, halten und vorne - eingehalten werden. Diese Abstände entnehmen Sie der Bedeutungsanleitung und/oder dem Typenschild.
- Die Feuerstätte darauf nicht verändert werden.
- Der Anschluss an einem Schornstein, dessen wirksame Höhe unter 4m, bei Mehrfachbelegung 5m liegt, sollte vermieden werden. An dem zum Anschluss des Ofens vorgesehen Schornstein muss vorher eine Berechnung nach EN 13384 erfolgen (Schornsteinfeger).
- Bei einem Schornsteinbrand verschlieben Sie sofort alle Öffnungen am Gerät und verständigen sie die Feuerwehr. Versuchen Sie auf keinen Fall selbst zu Löschen. Danach unbedingt den Schornstein vom Fachmann überprüfen setzen.
- Festbrennstoffe erzeugen naturgemäß Ruß, ein Verschmutzen der Sichtscheibe ist dadurch niemals vollig ausgeschlossen und stellt keinen Mangel dar.
- Speck- und Sandstein ist ein Naturprodukt, darauf sind Farbabweichungen und Farbänderungen normal und kein Grund zur Reklamation.
1. Bedienung
1.1 Geräteaufbau

Bild 1
- Füllür
- Abgasstutzen 150mm
- Primäreluftschieber
- Sekundärluftschieber
- Tügriff
- Aschenkasten / Ascheeimer > Typenschild graviert auf Rückseite
Umlenkplatte / Deflektor TYP18815 ROCKY einsetzen

- Umlenkplatte vom Rost trennen
- Umlenkplatte hinten, senkrecht an denSECTIONen Vorsprungen A hochfuhren
- Umlenkplatte auf die seitlichen Vorsprüngen A auflegen und nach hinten neigen, bis die Umlenkplatte auf dem Vorsprung B richtig aufliegt
1.2 Inbetriebnahme
Brennstoffe
Das Gerät ist für den Betrieb mit nachfolgend aufgeführten Brennstoffen geeignet. Nur damit ist ein rauchcharmer und störungsfreier Betrieb gewährleistet. Verwenden Sie nur natur belassenes, trockenes Scheitholz mit einer Restfeuchte von max. 20%.
| Brennstoffart | Heizwert ca. kWh/kg |
| Hartholz | 4,0 – 4,2 |
| Weichholz | 4,3 – 4,5 |
| Holzbrikett nach DIN 51731 | 5,0 – 5,2 |
Nicht zulässige Brennstoffe sind z.B.:
Die Verbrennung von Abfallen, Feinhackschnitzeln, Rinden, Spanplattenresten, Kohlegruß, feuchtem oder mit Holzschutzmitteln behandeltem Holz, Papier, Pellets und Pappe o. ä. ist verboten. Zum Anzünden sollene Holzwolle oder Grillanzünder verwendet werden. Keine flüssigen Anzündhilfen verwenden!
Achtung!
Beim ersten Anheizen könnte es zu Rauchentwicklung und Geruchsbelastigung kommt. Unbedingt für gute Raumbelüfung sorgen (Fenster und Turen öffnen) und mindestens eine Stunde auf max. Nennwärmeleistung heizen. Sollte beim ersten Heizvorgang die max. Temperatur nicht erreicht werden, so konnen diese Erscheinungen auch später noch auftreten.
Mit dem Primäreluftschieber konnen Sie die Nennwärmeleistung einstellen.
Es dürfen nur die Einstellungen getätigt und Brennstoffmengen aufgegeben werden, die ihrer zugelassenen bzw. gekauften Gerät entsprechen (Typenschild).
Verbrennungslufteinstellung:
Die Schiebereinstellungen müssen immer in der Mitte der Bezeichnungen liegen.
Tabelle 1
| Modell | Schieber | Anheizen | Scheitholz Nennwärme-leistung | Außerbetrieb-nahme |
| TYP18813 TOMO | Primäreluftschieber | |||
| Sekundäreluftschieber | AUF | AUF | ZU | |
| TYP18814 OKU | Primäreluftschieber | |||
| Sekundäreluftschieber | AUF | AUF | ZU | |
| TYP18815 ROCKY | Primäreluftschieber | AUF | 1/2 AUF | ZU |
| Sekundäreluftschieber | AUF | AUF | ZU |

Anzünden:

TYP18814 OKU, TYP18815 ROCKY > 7 kW
NWL Scheitholz max. 1,7 kg, ca. 1-2kleine Scheite pro Füllung, bei Anzündvorgang Holz kreuzschlichen, Scheitholzlange max. 25cm, Durchmesser Ø 5 - 12 cm, Rundlinge immer spalten, Holzbrikett nach DIN 51731 max. 1,3 kg, evtl. zerkleinern
TYP18813 TOMO > 9 kW
NWL Scheitholz max. 2,2 kg, ca. 2 kline Scheite pro Füllung, bei Anzündvorgang Holz kreuzschlichten, Scheitholzänge max. 33cm, Durchmesser Ø 5 - 12 cm, Rundlinge immer spalten, Holzbrikett nach DIN 51731 max. 1,7 kg, elev. zerkleinern
Erstes Anheizen
- Vor Inbetriebnahme sind evtl. Transportsicherungen über dem Feuerraum herauszunehmen und evtl. Aufkleber auf der Sichtscheibe rückstandsfrei zu entfernen.
Die Heiztür durch Hebden oder ziehen des Griffes öffnen. Bei freiem Gerät ist dazue ein Schutz-Handschuh zu benutzen. Den Primäreluft- und Sekundärluftschieber (Bild 1) entsprechend der Tabelle 1 in Kapitel 1.2 einstellen.
Legen Sie kleineres Anzündholz, kreuzgeschlichtet auf den freien Rost. Mit einen Kohleanzünder oder etwas Holzwolle von oben anzünden und Heiztür wieder verschließen. Wenn das Feuer lebhaft brennt warten, bis eine Grundglut vorhanden ist, dann erneut Brennstoff in geringen Mengen aufgeben, bis eine satire Grundglut vorhanden ist. Die max. Brennstoffmengen je nach Typ sind zu beachten.
Danach den Primäreluft- und Sekundäreluftschieber entsprechend der Tabelle 1 „Verbrennungsluftstellung" einstehen.
Das erstige Anheizen sollen „sanft" verlaufen, mit geringer Menge Brennmaterial, damit sich die Ofenteile an die Hitze gewöhnen konnen. Beim ersten Anheizen könnte es zu Rauchentwicklung und Geruchsbelastigung kommt. Unbedingt für gute Raumbeluftung sorgen (Fenster und Turen öffnen) und dann mindestens eine Stunde auf max. Nennwärmeleistung heizen. Sollte beim ersten Heizvorgang die max. Temperatur nicht erreicht werden, so konnen diese Erscheinungen auch später noch auftreten.
Verpuffungsgefahr!! Immer vor dem Offnen der Brennraumture die Luftzufuhr langsam auf maximum Offnen! Warten Sie nach dem Offnen der Luftzufuhr ausreichend lange. Erst nach dem das Feuer bzw. die Glut auflodert, Offnen Sie die Heiztüre langsam. Wenn Sie nach thisem Muster vorgehen, konnen Sie sicheren, nie eine Verpuffung erleben zu müssen, dess sollt wirklich unverbrannten Verbrennungsgas im Brennraum gewesen sein, hatten Sie这点es mit dieser Vorphensweise verhindert. Also, nach jeder Brennstoffaufgabe den Primäreluftregler zuvor ganz Offnen und erst wieder nach entzünden der Brennstoffauflage nach Tabelle 1 einstellen.
Den Brennstoff nicht in den Brennraum einwerfen, sondern einlege, da sonst die Ausmauerung beschädigt werden kann.
Achtung!
Beim Öffnen der Heiztür kann es bei Fehlbedienung oder bei nicht ausreichen dem Schornsteinzug zu Rauchaustritt kommt. Es ist unbedingt zu beachten, dass die Heiztür nur langsam, zuerst einen Spalt und nach ein paar Sekunden ganz geöffnet werden darf. Außen dem soll vor dem Öffnen der Tur zum Nachlegen von Brennstoff nur noch das Glutbett im Brennraum vorhanden sein, das heißt, es dürfen keine Flammen mehr sightbar sein.
1.3 Außerbetriebnahme
Türen schließen, Primäreluftschieber in geschlossene - Stellung bringen (Tabelle 1). Restglut ausbrennen und Ofen abkühlen setzen. Feuerraum und Aschenkasten bei kaltem Gerät reinigen und entleeren!
1.4 Hinweise zum Heizen
Der Kaminofenarf nur mit geschlossener Fuldtur (Heiztur) betrieben werden. Dies darf nur zum Anheizen, Nachlegen oder Reinigen des Feueraums geoffnet werden (evtl. Zugprobleme bei weiteren am Schornstein angeschlossenen Geräten).
Eine abgestimm zugeführte Sekundärluft sorgt für die Nachverbrennung der im Abgas enthaltenen brennbaren Bestandteile. Ein Verschmutzen der Scheibe kann aber bei Festbrennstoffen nicht ausgeschlossen werden und stellt keinen Mangel dar. Dies bedeutet eine rauch- und russarme Verbrennung zur Schonung der Umwelt. Sollten Sie ihren Ofen in der Übergangszeit in Betrieb nehmen, dann prufen Sie vorher den Schornsteinzug, da dieser bei hohen Außentemperaturen sehr gering sein kann. Zu dieser Zweck halten Sie ein brennendes Zündholz in die ein weniger geöffnete Heiztür. Wenn die Flamme nicht deutlich angesaugt wird, ist zunachst ein sogenannten Lockefer zu erzeugen. Hierzu wird kurzzeitig Holzspane/-Wolle im Ofen oder in der Reinigungsoffnung des Schornsteins entzündet. Der Rost sollte vor jeder Brennstoffaufgabe gereinigt werden, um eine gute Verbrennungsluftzufahr zu gewährleisten. Der Aschenkasten ist regelmäßig im kalten Zustand zu entleeren. Bei freiBem Gerät beiliegenden Handschuh verwenden.itte beachten Sie damit, dass keine glühenden Verbrennungsrückstände in die Mülltonne gelangen.
Es ist darauf zu achten, dass der Aschenkasten immer bis Anschlag eingeschoben wird.
Achtung!
Im Interesse der Luftreinhaltung und dem Ofen sollen die angegebenen max. Brennstoffaufgabemengen nicht überschritten werden, da sonst die Gefahr des Überheizens besteht, was zu Beschädigungen am Gerät führen kann. Beschädigungen solcher Art, unterliegen nicht der Garantiepflicht. Bei Kaminöfen ist nur eine einlagige Brennstoffaufgabe gestattet. Eine reduzierte Heizleistung sollte nur durch Verringerung der Aufgabemenge und nicht durch Reduzierung der Primäreluft erfolgen.
1.5 Reinigung und Pflege
Mit richtigem Betrieb/Bedienung undgreater Pflege/Wartung erhöhen Sie die Wertstabilitätund Lebensdauer ihrer Geräte. Sie sparen wertvollen Ressourcen und schonen unsere Umwelt und ihren Geldbeutel. Nach Beendigung der Heizperiode empfehl't essich, eine gründliche Reinigung des Ofens und der Abgasrohre vorzunehmen. Nachlassen der Heizleistung,ist fast immer eine Folge starker Verschmutzung der Abgaswege.
Die Rauchgaswege können gereinigt werden von vorne, durch den Heizraum, oder von oben wenn das Rauchrohr entwickelt ist. Innenteile vom Heizraum können in ausgekühtem Zustand wie nachfolgend ausgebaut werden:
Aschekasten Herausnahmen, bei geöffneter Heiztür den Rost hinten aufheben und in der schrägen Position hochheiten, bis er gedreht und herausgenommen werden kann (vor der Rostreling). Die Rauchgasstutzen- Öffnung ist nun in thism Zustand frei und kann gereinigt werden.
Zusammenbau erfolgt in umgekehrter Reihenfolge.
Achtung: Nach jeder Heizperiode ist es angebracht, den Ofen gründlich zu kontrollieren. Wenn Ausbesserungen oder Erneuerungen vorgenommen werden müssen,
wenden Sie sichittechtzeitig unter Angabe der Artikel-Nr. und der F.-Nr. (siehe Typschild) an ihren Fachhändler.
Reinigen Sie ihre Sichtscheibe vor der ersten Benutzung mit einem feuchten sauberen Tuch. Verreiben Sie danach einige Tropfen eines Pflegemittels für Glaskeramik Scheiben mit einem Kuchenpapier auf beiden Seiten der Scheibe.
Nach dem Nachwischen und Trockenpolieren ist die hochwertige Oberfläche mit einem unsichtbaren Film überzogen, dieser hilft die Scheibe sauber zu halten und erleichtert bei regelmäßiger Wiederholung die Reinigung.
Festbrennstoffe erzeugen naturgemäß Ruß, ein Verschmutzen der Sichtscheibe ist dadurch niemals vollig ausgeschlossen und stellt keinen Mangel dar.
Pflege von Nasslack und Pulverbeschichtungen: Die Pflege der äußerten Flächen ist nur bei kaltem Ofen zu empfehlen. Die lackierten Flächen sollenn vorsichtig und nur mit einem trockenen weichen Tuch gereinigt werden (nicht scheuern). Vorab an einer nicht sightbaren Stelle das Lackverhalten testen.
Bei pulverbeschichteten Flächen kann in besonderen Fällen vorher mit einem leicht befeuchteten Tuch mit etwas Geschirrspulmittel behandelt und dann getrocknet werden.
Pflege von Keramik- und Glasverkleidungsteilen: Schmutz und Fett kann mit Seite und Wasser entfernt werden.
Pflege von Speckstein und Sandstein: Speck- und Sandstein ist ein Naturstein, davon sind Farbabweichungen und Farbänderungen normal und kein Grund zur Reklamation! Schmutz und Fett kann mit Seite und Wasser, keine Kratzer mit Nassschleifpapier (Körnung 240) halten werden.
Achtung: Auf keinen Fall sollenn Sie bei der Pflege Schwämme, Scheuermittel, aggressive oder kratzende Reinigungsmittel verwenden!
Arbeiten, wie insbesondere Installation, Montage, Erstinbetriebnahme und Servicearbeiten sowie Reparaturen, * d rufen nur durch einen ausgebildeten Fachbetrieb (Heizungs- oder Luftheizungsbau) durchgefuhrt werden. Bei unsachgemäßen Eingriffen erloschen Gewährleistung und Garantie.
Holztrocknung und -Lagerung
Holz braucht Zeit zum Austrocknen. Lufttrocken ist es bei richtiger Lagerung nach ca. 2-3 Jahren. Dazu einzige Hinweise:
- Sie sollen das Holz gebrauchsfertig zersagt und gespalten lagern. Dadurch ist eine rasche Trocknung gewährleistet, Denn keinere Holzstücke trocknen better als Meterspalten.
- Ihr Scheitholz sollenn Sie an einer belufteten, möglichst sonstigen Stelle regengeschützt aufschnitten (idealerweise Südseite).
- Lassen Sie zwischen den einzelnen Holzstößen eine Handbreite Abstand, damit die entströmende Luft die entweichende Feuchtigkeit mitnehmen kann.
- Decken Sie ihren Holzstoß keinesfalls mit Plastikfolie ab, sie{lsst die Feuchtigkeit nicht entweichen.
- Stapeln Sie frisches Holz nicht im Keller, da es Dort wegen der geringen Luftbewegung erher fault,statt trocknet.
Lagern Sie nur bereits trockenes Holz in trockenen Kellerräumen.
1.6 Störungsursachen, Behebung
| Art der Störung | mögliche Ursache | Behebung |
| Geruchbildung: | Austrocknung der ange-wendeten Schutzfarbe. Verdampfung von Ölresten | Den Ofen entsprechend der Bedienungsanleitung mehrere Stunden in Kleinstellung be-treiben. Danach für mehrere Stunden auf maximale Leis-tung heizen. |
| Zu geringe Wärme-abgabe: | Geräteleistung zu Klein gewählt. Zu geringer Schornstein-zug | Lassen Sie ihren Wärmebe-darf vom Fachmann kontrlieren. Der erforderliche Schorn-steinzug muss mind. 12 Pa und damit kurzzeitig max. 15 Pa betragen. Kontrollieren Sie ihren Schornstein auf Dichtheit. Die Türen anderer an diesen Schornstein ange-schlossenen Feuerstätten dicht verschreiben. Vor allem auf undichte Schornstein-bzw. Reinigungsverschlüsse achten. Eventuell mit senk-rechteter Anlaufstrecke an-schreibenBen. Die gesamten Abgasrohr-verbindungen müssen gut abgedachtet sein und feuer-fest isoliert werden. Dichtung kontrollieren, Türen gut verschreiben. Eventuell Dichtschnur erneern给你们. Nur gut getrocknetes Holz verwenden. |
| Zu langes und undichtes Abgasrohr | ||
| Undichthieten an der Glas-/Heiz-/Aschentür | ||
| Verbrennung von zu feuchtem Holz |
Maßnahmen bei Schornsteinbrand
Bei ungenügender Reinigung des Schornsteins, bei falschem Brennstoff (z. B. zu feuchtes Holz) oder falscher Verbrennungslufteinstellung kann es zu einem Schornsteinbrand kommt. Schließen sie in so einem Fall die Verbrennungsluft an der Feuerstätte und rufen Sie die Feuerwehr.
Niemals selbst versuchen mit Wasser zu Löschen.
2. Aufstellung
2.1 Vorschriften
Bei der Aufstellung und dem abgasseitigen Anschluss sind die anwendbaren nationa- len und europäischen Normen, ortliche und baurechtliche Vorschriften/Normen (z.B. DIN 18896, DIN 4705, DIN EN 13384, DIN 18160, DIN EN 1856-2, DIN EN 15287 u.a.) sowie feuerpolizeiliche Bestimmungen (z.B. FeuVO) zu beachten. Lassen Sie das Gerät nur von einem qualifizierten Fachmann aufstellen und anschlieben. Zur korrekten Funktion Ihres Gerätes muss der Schornstein, an den Sie das Gerät an-schlieBen wollen, in einwandfreiem Zustand und mind. bis 400^ belastbar sein.
2.2 Aufstellräume
Da der Kaminofen die zur Verbrennung benötigte Luft dem Aufstellungsraum entnimmt, ist damit zu sorgen, dass über die Undichtheiten der Fenster oder Außentüren stets genugend Luft nachströmt. Man kann davon ausgehen, dass dieser durch ein Raumvolumen von mind. 4m^3 je kW Nennwärmeleistung gewährleistet ist. Ist das Volumen geringer, kann über Luftungsöffnungen ein Verbrennungsluftverbund mit anderen Räumen hergestellt werden (min. 150cm^2 ).
2.3 Geräteabstände
Alle brennbaren Bauteile, Möbel oder auch z.B. Dekostoffe in der erharen Umgebung des Ofens sind gegen Hitzeeinwirkung zu schützen.
Einrichtungsgegenstände im Strahlungsbereich
Im Sichtbereich (Strahlungsbereich) des Feuers muss zu brennbaren Bauteilen, Möbel oder auch z.B. zu Dekostoffen ein Abstand von mindestens 100 cm (A), gemessen ab Vorderkante Feuerraumöffnung eingehalten werden. Der Sicherheitsabstand reduziert sich auf 50 cm (B), wenn ein belufteter Strahlungsschutz vor das zu schützende Bauteil montiert wird (Bild 2)
Einrichtungsgegenstände außerhalb des Strahlungsbereichs
Die Stellwände seitlich und hinter dem Gerät)dürfen nicht aus brennbaren Baustoffen hergestellt oder mit brennbaren Baustoffen verkleidet sein, wenn seitlich 60 cm, sowie für alle Typen halten ebenfalls 60 cm untersritten wird.
Der Seitenabstand zu Möbelteilen aus Holz oder Kunststoff muss ebenfalls 60 cm bei allen Typen betragen (Bild 3).

Bild 2

Bild 3
Boden unter und vor dem Ofen
Fußböden aus brennbarem Material, wie Teppich, Parkett oder Kork, müssen unter dem Ofen sowie von der Feuerraumöffnung 50 cm nach Vorne und 30 cm seitlich durch einen Belag aus nicht brennbaren Baustoffen, z.B. Keramik, Stein, Glas oder einer Bodenplatte aus Stahl, ersetzt oder geschützt werden.
2.4 Schornsteinanschluss
ACHTUNG!
Vor dem Anschluss des Gerätes ist in jedem Fall der zuständige Bezirks-Schornsteinfegermeister zu Rate zuziehen!
Verbindungsstücke müssen am Gerät und unterinander fest und dicht verbunden sein. Sie darüber nicht in den freien Schornsteinquerschnitt hineinragen. Das Verbindungsstück zwischen Kaminofen und Schornstein soll den gleichen Querschnitt haben wie der Rohrstutzen am Ofen. Waagerechte Verbindungsstücke über 0,5 m sollen zum Schornstein hin um 10 Grad ansteigen. Rohre, die nicht wärmege
schützt oder senkrecht geführt sind, sollen nicht länger als einen Meter sein.
Es sind die Forderungen der Feuerungsverordnung (FeuVO), die jeweiligen Länderbauordnungen sowie für den Schornstein die DIN 4705, DIN EN 13384, DIN 18160 und der DIN EN 15287 zu beachten. Verbindungstücke müssen nach DIN EN 1856-2 geprüft sein.
Das Maß X (Abstand zu brennbaren Baustoffen / Materialien) muss nach Angaben des Herstellers des Verbindungsstücks eingehalten werden.

Bild 4
ACHTUNG!
Der Anschluss an einem Schornstein, dessen wirksame Höhe unter 4m, bei Mehrfachbelegung 5m liegt, sollte vermieden werden. Ausschlaggebend dazu ist die Berechnung nach EN 13384. / Daten zur Schornsteinberechnung Kapitel 3. /
An dem zum Anschluss des Ofens vorgesehenen Schornstein dürfen hochstens zwei weitere Feuerstätten angeschlossen sein.

Bild 5
2.5 Verbrennungsluft
Für den Verbrennungsvorgang wird permanent Sauerstoff bzw. Luft bereitsigt. In der Regel reicht die vorhandene Luft im Aufstellraum aus.
Bei gut abgedachteten Fenstern und Turen, Vorhandensein von mechanischen Entlüftungen (z.B. Küche oder Bad) oder weiteren Feuerstätten (auch Gastherme) in der Wohnung, kann die einwandfreie Luftversorgung empfindlich gestört werden. Wenn dies zutriftt, besteht die Möglichkeit, die Verbrennungsluft direkt von außen oder aus einem anderen, genügd belufteten Raum (z.B. Keller) zuzuführen.
Die Kaminöfen bieten serialmäßig hierfür den zentralen Luftansaugstutzen 0 80 mm auf der Rückseite.
Für die Luftleitung dürfen nur glatte Rohre mit einem Mindestdurchmesser von 80 mm verwendet werden. Die Luftleitung solle außer dem mit einer Absperrklappe in Ofennähe versehen werden, muss fachgerecht ausgeführrt werden und u.a. in den Bogen Revisionsöffnungen für den Schornsteinfeger haben und fachgerecht gegen Schwitzwasser gedämmt werden. Die Leitung sollte nicht länger als 4 m sein und nicht mehr als 3 Biegungen aufweisen. Führ the Leitung ins Freie, soll sie mit einem geeigneten Windschutz und Gitter versehen werden.
Wichtige Hinweise zum Thema raumluftabhängiger bzw. raumluftunabhängiger Betrieb:
(gültig für Deutschland. Stand Januar 2005)
Punkt 1:
Die Kaminöfen sind als raumluftababhängige Kaminöfen nach EN 13240 geprüft. Die Kaminöfen entnehmer die gesamte Verbrennungsluft über den zentralen Luftansaugstutzen aus dem Aufstellraum. An thisem Stutzen kann bauseits eine dichte Luftzuführung angeschlossen werden. Auch mit dieser dichen Luftzuführung erfüllen die Kaminöfen nicht die Anforderungen an einen raumluftunabhängigen Betrieb.
Punkt 2:
In Kombination mit raumlufttechnischen Anlagen (z.B. kontrollierte Be- und Entlütungsanlagen, Dunstabzug o.a.) ist somit in Deutschland der §4 der Feuerungsverordnung (FeuVO) maßgeblich. Hier ist u.a. festgelegt, dass der Ofen und raumlufttechnische Anlage gegenseitig zu überwachen sind (z.B. über einen Differenzdruckwächter) oder eine Lüftungsanlage einzubauen ist, die eine Zulassung für Festbrennstoffeuerungen hat und dem Aufstellraum die notwendige Verbrennungsluft (ca. 40 m³/h) für die Feuerstätte zusätzlich zuführt.
Punkt 3:
Bitte beachten Sie immer - in Absprache mit ihrer zuständigen Bezirksschornsteinfegermeister - die jeweils gültigen örtlichen Vorschriften und Regeln. Für Änderungen nach Drucklegung dieser Anleitung können wir keine Haftung übernehmen. Änderungen behalten wir uns vor.
Die o.g. Sicherheitseinrichtungen ersetzen keine fachhandwerkliche Planung und Auslegung der ausreichenden Verbrennungsluftversorgung.
Im Rahmen der Abnahme hat der Bezirksschornsteinfegermeister die ausreichende Verbrennungsluftversorgung / Gesamtinstallation zu prufen.

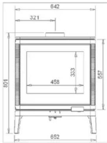
3. Technische Daten
3.1 Maßzeichnungen

TYP 18813


TYP18814


TYP18815

3.2 Maße und Gewichte
| Art.No | Breite (mm) | Tiefe (mm) | Höhe (mm) | Gewicht Netto (kg) | Gewicht Brutto (kg) |
| G001881310 | 652 | 372 | 768 | 157 | 175 |
| G001881410 | 450 | 475 | 1050 | 135 | 153 |
| G001881510 | 410 | 364 | 800 | 72 | 90 |
Die angeführten Abmessungs- und Gewichtangaben sind nur zur Information! Wir behalten uns das Recht von Konstruktionsänderungen vor, falls diese das technische Niveau erhöhen, oder die Qualität verbessern!
3.3 Technische Daten
| Typ | 18813 TOMO | 18814 OKU | 18815 ROCKY |
| Nennwärmeleistung | 9 kW | 7 kW | 7 kW |
| Raumheizvermögen bei Zeitheizing in m³ | 200 | 144 | 144 |
| - bei gänstigen, | 120 | 84 | 84 |
| - weniger gänstigen und | 82 | 58 | 58 |
| - umgünstigen | |||
| Heizbedingungen nach DIN 18893/TAB.2 | |||
| Abgaswerte: Brennstoff: | Scheitholz | Scheitholz | Scheitholz |
| Abgasmassenstrom | 7,3 g/s | 6,0 g/s | 5,6 g/s |
| Abgastemperatur | 325 °C | 332 °C | 318 °C |
| min. Förderruck bei Nennwärmeleistung | 12 Pa | 12 Pa | 12 Pa |
| Staub (bezogen auf 13% O₂) | ≤ 40 mg/m³ | ≤ 40 mg/m³ | ≤ 40 mg/m³ |
| CO (bezogen auf 13% O₂) | ≤ 1250 mg/m³ | ≤ 1250 mg/m³ | ≤ 1250 mg/m³ |
| Wirkungsgrad | ≤ 0,10 % | ≤ 0,10 % | ≤ 0,10 % |
| Energy efficiency class | ≥ 76% | ≥ 79% | ≥ 78% |
| A | A | A |
Alle Angaben der Abgaswerte beziehen sich auf die EN 13240 unter stationären Laborbedingungen Änderungen, die dem technischen Fortschritt dienen und / oder einer Qualitätverbesserung bewirken, behalten wir uns vor. Für Druckfehler und Änderungen nach Drucklegung konnen wir keine Haftung übernehmen. Alle Typen erfüllen die Anforderung der 1. BlmSchV 2. Stufe in DE.
Foreword
Dear Customer!
Haus – und Kuchentechnik GmbH
Adalperostraße 86
D-85737 Ismaning
Telefon +49 (0)89 32084-0
Telefax +49 (0)89 32084-294
www.wamsler.eu
Gentilissimo CLIENTE,
Haus – und Kuchentechnik GmbH
Adalperostraße 86
D-85737 Ismaning
Telefon +49 (0)89 32084-0
Telefax +49 (0)89 32084-294
www.wamsler.eu
Änderungen, die dem technischen Fortschritt dienen und / oder einer Qualitätverbesserung bewirken, behalten wir uns vor. Für Druckfehler und Änderungen nach Drucklegung können wir keine Haftung übernehmen.
EinfachAnleitung