WKL 2003 - Ogrzewanie AEG - Bezpłatna instrukcja obsługi
Znajdź bezpłatnie instrukcję urządzenia WKL 2003 AEG w formacie PDF.
Pytania użytkowników dotyczące WKL 2003 AEG
0 pytanie dotyczące tego urządzenia. Odpowiedz na te, które znasz, lub zadaj własne.
Zadaj nowe pytanie dotyczące tego urządzenia
Pobierz instrukcję dla swojego Ogrzewanie w formacie PDF za darmo! Znajdź swoją instrukcję WKL 2003 - AEG i weź swoje urządzenie elektroniczne z powrotem w ręce. Na tej stronie opublikowane są wszystkie dokumenty niezbędne do korzystania z urządzenia. WKL 2003 marki AEG.
INSTRUKCJA OBSŁUGI WKL 2003 AEG
Instrukcja uzytkowania i montazu
KohBekTop
IHCTpyKzna IO MOHTaKy I KcNyaTaZn
Deutsch
English
François
Nederlandsls
Espanol
Cesky
Polski
Pysckn

ME95
Inhaltsverzeichnis
DeutschSeite4-9
1.1 Opis urzadzenia
1.2 Obsługa
1.3 Wskazówki dotyczę beziepędstwa
1.4 Czyszczenie i konserwacja Co robić, gdy? 42
2. Instrukcja montazu 43-44
2.1 Budowa urzadzenia
Dane techniczne 43
2.2 Przepisy i zalecenia
2.3 Montaž urzadzenia
2.4 Podlączenia elektryczne
2.5 Przekazanie Uzytkownikow Gwarancja 45
Srodowisko naturalne i recycl Kling 45
Copepknne
Pycckn 46-50
1.Инструкцяno
экплуataunn 46-48
1.1 Onicahne npnbopa 46
1.2 06cnykBaHne 46
1.3 Ka3aHn no 6e30nacHOCTn 47
1.4 YxoadnTexHnueckoe 06cnykBaHne 7to denaTb,ecnn...? 47
- INHCTpykunno MOHTaKy 49-50
2.1 Coctablanioiue npnbopa 49 Texnueckne xapaKtepncTNI 49
2.2 Ka3aHn no 6e3oNaChOCTn 49
2.3 MoHTax 50
2.4 ΘeKtpnueckoe
ПОДКЛЮЧЕНЕ 50
2.5 CdaaB 3Kcnnyatauio 50 TapaHTnA 50


C26_07_31_0033

A
C26_07_31_0034
B

①

1

C
C26_07_31_0035
W celu uniknięcia potencjalné ryzyka pożaru lub prāzenia prądem elektrycznym uzytkOWanie urzadzen elektrycznych musi byc zgodne z obowiazujacymi w tym zakresie przypeisami. W zwiaźku z powyśznim urzadzenia nalezy uzytkoAAC zgodnie z wskazówkami zaleceniami zawartymi w niniejszej instrukcji. Kaźde uźcie konwektora niedzegodne z zaleceniami producenta要去 spowodowac uszkodzenia urzadzenia lub niebezpiecznstwo dla zdrowia Uzytkownika. Nalezy zwrócić uwage na prawidlowy dobor mocy grzewciej konwektora do zapotrzebowania ciepla pomieszczenia. Przed Rozpoczeciem eksploataci urzadzenia nalezy przyecztyac starannie niniejsza instrukcje i przystrzegać jej zalecen.
Niniejsz instrukcje obslugi nalezy starannie przechowa i w przypadku sprezedaź urzadzenia przybekazć ja nowemu wąsćcielowy.
W przypadku napraw lub konserwacci konwektora instrukcj眩 nalezy udostepnic Serwisantowy do wgladu.
1.1 Opis urzadzenia
Konwektory typu WKL są przystosowane wylączne do montazu na scianie. Słȩź są wy)—źrodlę ogrzewania np. w)—zienkach lub toaletach, oraz są ogrzewanie wspomag)—ce lub okresowe w polojach gościnnych i pomieszczeniach do uprawiania hobby.
Typoszereg WKL - S
Po zamocowaniu na scianie i podlączeniu do gniazdka elektrycznégo urzadzenia jest gotowe do uzytku.
Typoszereg WKL-U
Po zamocowaniu na scianie i podlączeniu stałym poprzej puszek przyłączeniowa do obwodu elektrycznégo urzadzenia jest gotowe do uzytku.
Dziatanie urzadzenia
Powietrze dopłyjawace do konwektora jest ogrzewane przyez element grzejny (grzalicke) i wyplya górnakratka wyplywu powietrza (4) na zasadzie naturalnej konweckj. Zimne powietrze dopływa do urzadzenia poprzyez otwory znajdujace sie w是我的olnej czesci.
Elementy zabezmieczajace
Konwektory posiadaj ogranicznik temperatury bezpieczneistwa (STR), kóry wylacca urzadzenie w przypadku loro przyegrzania. Po usunięciu przyczyny np. zatkane otwory doplywu lub odplywu powietrza, konwektor godejmije automatycznie dalsz prace.
1.2 Obsługa
Konwektor jest wlaczany lub wyluczany przy pomocy wylacznika (1) znajdujacego sie z sprawej strony urzadzenia. Zadana temperatura pomieszczenia nastawiana jest za pomocag Pokretla doboru temperature (2) bezstopniowo w zakresie od ok. +6^ do +30^. Temperatura w pomieszczeniu utrzmywana jest na sta tym nestawionym poziomie, Dzieks wbudowanemu w urzadzenia regulatorowi temperature, poprzej krótkie powtarzajcse sie nagrzewanie. W tym celu moc grzewcza urzadzenia musi odpowiadać co najmiej zapotrzebowaniu cieplnemu pomieszczenia. Jeźeli w danym pomieszczeniu znajduje sie kila urzadzen grzewczych ustawienie Pokretla doboru temperature w poszczeugólnych urzadzeniach möglich nie byc jaknekawe. W celu uniknięcia nadmiernego zuzycia energii elektrycznej przy otwartych oknach, podczas wietrzenia pomieszczenia konwektor naleź wylaczyc wylacznikiem (1).
Zabepieczenia przyceiwmrozowej

W przypadku uzycia konwektora jako zabezpieczenia pomieszczene保税arzaniem, Pokrto doboru temperature (2) nalezy przykrecić do oporu w kierunku odwrotnym do ruchu wskazowek zagara (*). W takim połozeniu regulator temperature walks zogrzewanie w chwili spadku temperature w pomieszczeniu do wartosci ok. +6 °C.
Ograniczenia regulatora temperature
Przy pomocy dwóch sztyftów (3) znajdujacych sie na tylnej sciance obudowy regulatora przy—we jest ograniczenia regulatora temperatury do okreslonej nastawy lub ograniczenia zakresu nastaw temperatury.
W celu ograniczenia do zdanej temperatury nalezy sztyft a wetknac w otwor znajdujacy sie po stronie przywnej.
Przy ograniczaniu zakresu nastaw temperatury nalezy nastawic wartoscminimalna i maksymalnaPokretlem doboru temperaturi zaznaczy poprzej wetkniecie sztyftu b w otworznajdujczy sie po przyciwnej stronie.

1.2.1 Dodatkowy regulator temperature
Ogrzewacz要去 wólplacowac z dostepnymi w handlu regulatorami temperatury. W tym celu nalezy przyzekrecic podrétlo doboru temperatury (2) do oporu w kierunku ruchu wskazowej zagara (MAX). Dodatkowy regulator temperatury powinien byc umieszczony na wysokość co najmiej 1,5 m od podlogi, w sąwiwie duzej odlegosci odogrzewacza.
1.2.2 Wyęczenia z eksploatacji
W celu calkowitego wyłaczenia urzadzenia nalezy ustawic wyplacznik w pozycj wyf. (AUS) i wciagnac wtyczke z gniaiazdka. Wtyczki nie wolno wciaga c gniaiazdka za przywod.
1.3 Wskazówki dotyczne beziepędstwa

Urzadzenie nie要去 byc uzywane:
- w pomieszczeniach zagrożonych niebezpieczeństwem poźaru lub eksplozji przydziały chemikaliów, jurzu, gazów i latwopalnych oparów.
- w bezposrednej bliskość przywodów lub zbiorników zawierajnych materiały latwopalne lub zagrożone eksplożja.
-
Zesto gopowodu niedopuszczalne jest niezachowanie minimalnych odlegosto.
-
Montaz instalacji elektrycznej, pierwsze uruchomienie oraz konserwacja urzadzenia są boć wykonywane{jedynie przyez uprawnionego Fachowca, na podstawie niniejszej instrukcji
- Urzadzenie nie要去 byc w zadnym wypadku uzytkowane w chwili gdy w pomieszczeniach, w ktorych sie znajduje prowadzone są pracce malarskie, uzladanie podlrog lub wykladzin, czyszczenie przy uzyciu benzyny lub podobnych plynów katwopalnych oraz pastowanie podlrog.
- Powierzchnie obudowy i kratki wylotu powietrza moga podczas pracy urzadzenia nagrzewac sie do temperatury ok. 80^ . W基础知识 wędznym przypadku nie powinny przybywać daneci!
Zuwagi na niebezpieczeanstwo zapalenia sie nie nalezy ukladać na ogrzewaczu, opiera ani wsuwac pomiędzy ogrzewacz i scianę zadnych przydmiotów np. ręczników, bielizny itp. Ponadto w najbliszym otoczeniu urzadzenia nie mogą znajdować się zadne serwety, zaśony lub pojemniki z substancjami latwopalnymi.

W celu zabezpieczenia konwektora przydrezigniem nie wolno go zakrywać.
- A Naleź y zachować nizzej wymiemenione minimale odlegość mebli, zaston, firanek i materialów latwopalnych od elementów konstrukcyjnych ogrzewacza:
od otworow wylotowych 500mm
od bokow 100mm
od górnaj częci obudowy 150mm
od dolnej czeci obudowy 100mm
od tylnej scianki urzadzenia 26mm
Gorace powietrze musi bez przyszkód wypływać z urzadzenia
- Konwektorie ne doit becy uzywany jakstość
- Nie stawać na urzadzeniu
- Nie wolno dokonywać zadnychzmian lub przeróbek konwektora
- Urzadzenia nie pozostawiac bez nadzoru podczas pracy
- Ostrożnosć zalecana jest szczególnie w przypadku obecnosci daneci, zwierȩz菩提 lub osob niedępelnosprawnych
- W przypadku uszkodzenia elementów konwektora,(go upadku lub wystapienia uterki nie nalezy go uruchamiać
- W przypadku uszkodzenia przywodu zasilajacego nalezy go wymienic na oryginalny offeringsy przyz Producenta. Wymiany要去 dokonac wyłacznie Zaklad Serwisowy.
1.4 Czyszczenie i konserwacja
W przypadku ewentualnégo wystapienia na obudowie urzadzenia lekkich brazowych przybarwien, nalezy je niedzwocznie usunac wilgotna sciereczka. Urzadzenia nalezy myc po ostygnięciu uzywajć zwyknych srodków pielegnacyjnych. Unikać srodków szorujczych i zȩzych. Nie wolno pryskać srodków czyszczących do otworów wlotu i wylotu powietrza. Przy regularnych przygladach nalezy dokonywać rownież kontroli elementów regulujuco -kontrolnych. Najpoźniaj po 10 latach od pierwszego uruchomienia nalezy bezwzgliednie dokonać dokladnej kontroli wzystkich elementów regulacyjno - zabezpieczązych.
Co robić, gdy?
- Urzadzenie nie ogrzewa sie?
Sprawdzić,czy...
... Włączony jest wylącznik.
... Wlaczone sā bezpieczniki lub nie zadziala lo zabepeziczenia róznicowo-pradowe.
Usanac przyczynie!
Ježeli konwektor nadal nie ogrzewa sie zawiadomic Serwis!
- Urzadzenie wylacja są samoczynnie?
Sprawdzic,czy urzadzenie nie jest zakryte i czyNie doszlo do loro przyegrzania (np. zatkane otwory powietrzne)
Usanac przyczyne!
Ježeli po kilku minutach ochlodzenia urzadzenia nadal nie grzeje, zawiadomic serwis!
Zostanie powiadomiony serwis?
podac typ (Typ) i numer (Nr.): urzadzenia z tabliczki znamionowej (8)
AEG
Typ:WKL...
E-Nr.: F-Nr:
2. Instrukcja montazu
Zamocowanie ogrzewacza i wykonanie podłączenia elektrycznych powinny być wykonane przy Instalatora na podstawie niniejszej instrukcj.
Opakowanie urzadzenia nalezy usunac na几点cu montazu. Przy Rozpakowaniu urzadzenia nalezy sprawdzić,czy w opakowaniu nie zostyh zadne elementy.
2.1 Budowa urzadzenia
4 Kratka wypfyywu cieplgo powietrza
5 Listwa mocujaca
6 Bolec zabeepieczajacy
7 Przewód zasilania elektrycznych
8 Tabliczka znamionowa
Dane techniczne
| Typ | WKL 503 S WKL 503 U | WKL 753 S WKL 753 U | WKL 1003 S WKL 1003 U | WKL 1503 S WKL 1503 U | WKL 2003 S WKL 2003 U | WKL 2503 S WKL 2503 U | WKL 3003 S WKL 3003 U | |
| Wys. mm 450 | ||||||||
| Szer. mm 370 445 445 | 590 74 | 40 890 1040 | ||||||
| Gleb. z listwa mocujacja | mm | 78 100 | ||||||
| Wymiar A mm 121 195 | 195 3 | 43 491 639 787 | ||||||
| Ciezar kg 4,0 4,6 4,6 6,0 | 7,2 8 | 4 9,9 | ||||||
| Zasilanie 1/N ~ 230 V | ||||||||
| Moc grzewcza | kW | 0,5 | 0,75 | 1,0 | 1,5 | 2,0 | 2,5 | 3,0 |
| Zakres nastaw temp. | °C | ok. 6 do 30 | ||||||
| Zabezpieczenie przy- ciwmyrozowe | °C | ok. 6 | ||||||
| Klasa zabezpieczenia | II | |||||||
| Rodzaj ochry | IP 24, (bryzgoszczelna) | |||||||
| Dopuszczenia | Patrz tabliczka znamionowa | |||||||
2.2 Przepisy izalecenia
Urzadzenie nie doit becy uzywane:

- w pomieszczeniach zagrozonychNiebezpieczeistwem pozaru lub eksplozji przydziafanie chemikaliow, jurzu, gazow i latwopalnych oparów.
- w bezposredniaj bliskosci przywodów lub zbiorników zawierajych materiały latwopalne lub zagrozone eksplozja.
Z tego powodu niedopuszczalne jest niezachowanie minimalych odlegosto.
W warsztatah lub innych pomieszczeniach, w ktorych wystepuja spaliny, oleje i opary benzyny lub tez chemikaliaczy Rozpuszcjalniki要去 dochodzic do utrzymujacych sie przydysz cyas nieprzyjemnych zapachow lub zanieczyxczen.
- urzadzenie要去byczamontowane tylko na pionowej scianie odpornej na temperature minimum 80^
- naleź bezwzględnie zachowaćminimalne odlegość od otaczajycch przyzemiotów
-
instalacja elektryczna i podłaczenia musza być wykonane zgodnia z Polska Norma i zaleceniami Zakładow Energetycznych
-
urzadzenie nie maye byc zamontowane bezposrednio pod gniazdkiem elektrycznym
- o ile urzadzenie zostanie podlaczone do elektrycznej puszki przyjaczeniowej nalezy przywidzie monoczoc odlaczenia od sieci na wzystkich biegunach na odlegostość minimum 3 mm, za pomocaj bezpieczników lub przykaźników.
Instalacja za pomoczą kabla przywodu ulożonego na state nie jest dozwolona.
- napięcie w miajscu montaqu ogrzewacza musi byc zgodne z podanym na tabliczce znamionowej
- przy instalaju urzadzenia w pomieszczeniach wyposzaźonych w wannę lub kabinet prysznicowej sązy przyestrzegać stref bezpiecznośćstwa
- urzadzenie nalezy zamontowac w taki sposob, abyPokretlo regulacci bylo niedostepne dla osob znajdujacych sie w wannie lub pod prysznicem
- przewód zasilania sieciowegoMZe byc wymieniony tylko przyz uprawnionego Fachowca, na oryginalny przewód producenta
2.3 Montaž urzadzenia
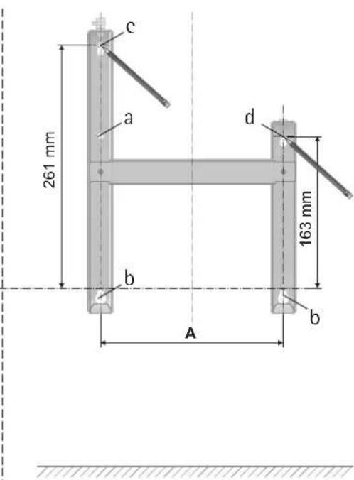
2.3.1 Montaz uchwytu sciennego B
Listwo mocujacn alezy wykorzystac jako szablon do montazu. Zapewnia ona prawidlowe umieszczenie konwektora.
Mocowanie urzadzenia nalezy wykonać w nastepujuć sposob:
- 1 zaćzona do urzadzenia listwo mocujuca (5) ustawic poziromo na podłodze i zaznaczy na scianie otwory montażowe a i d.
- Podniaśc listwe mocujacja tak, aby otwory b w listwie mocujacej pokrywały są wykonanymi uprzejnio zaznaczenia iama na scianie
- zaznaczyc na scianie otwory c i d listwy mocujacej
- w mistręcach wzystkich czterech zaznaczenia wywiercie otwory i przymocowej listwo monocȩ są przy pomocy odpowiednych kolars rozporowych i wkrétów, przystosowanych do danego rodzaju sciany. Przy wykorzystaniu poziomych i pionowych otworów wźdlużnych sąwiwa jest korekta połozenia listwy w przypadku niedokladnégo wykonania otworów w scianie.
2.3.2 Montaż urzadzenia C
Przy wykorzystaniu przyciec w tylnej sciance zawiesic konwektor rownoczesnie na 4 wystepach listwy mocujuść i wcisnac zatrzask. Obrócić bolec zabezmieczajacy (6) listwy mocujuść do oporu, w kierunku ruchu wskazówek zagara. W celu demontazu konwektora, po odblokowaniu bolca zabezmieczajacego urzadzenia podniać lekko i wysunć do przodu z zaczepów.
2.4 Podłaczenia elektryczne
Podlącenie elektryczne są wykonane tylko do sieci prȩdu zmiennego o napieciu 230V
Do podłaczeniaNSE zaintalowc gniazkod sieciowe uziemieniem lub elektryczna puszke przytoplaczeniowa w odlegosci minimum 10 cm od boku urzadzenia. Przy podlaczeniu do puszki przytoplaczeniowejNSE obciac wtyczke, a przewod elektryczny skroci w razie potrzeby w taki sposob, abyNie leza na urzadzeniu. Koncownik przywodow zalutowc lub wyposzyc w tulejezaciskowe.
2.5 Przekazanie Uzytkownikowski
Nalezy wyjasniczasadegdiazaniai fungkcje urzadzenia. Zwrociuwagne na bezpieczentwo uzytkowania.
ProstaInstrukcja