HPM2.Z16 - Pompe à chaleur KOSPEL - Notice d'utilisation et mode d'emploi gratuit
Retrouvez gratuitement la notice de l'appareil HPM2.Z16 KOSPEL au format PDF.
| Caractéristiques techniques | Pompe à chaleur KOSPEL HPM2.Z16, puissance de 16 kW, efficacité énergétique élevée. |
|---|---|
| Type d'utilisation | Chauffage et production d'eau chaude sanitaire pour les habitations. |
| Maintenance | Entretien régulier recommandé, vérification des filtres et des circuits de fluide frigorigène. |
| Sécurité | Équipée de dispositifs de sécurité pour prévenir les surchauffes et les fuites. |
| Informations générales | Installation par un professionnel recommandée, garantie constructeur incluse. |
FOIRE AUX QUESTIONS - HPM2.Z16 KOSPEL
Questions des utilisateurs sur HPM2.Z16 KOSPEL
0 question sur cet appareil. Repondez a celles que vous connaissez ou posez la votre.
Poser une nouvelle question sur cet appareil
Téléchargez la notice de votre Pompe à chaleur au format PDF gratuitement ! Retrouvez votre notice HPM2.Z16 - KOSPEL et reprennez votre appareil électronique en main. Sur cette page sont publiés tous les documents nécessaires à l'utilisation de votre appareil HPM2.Z16 de la marque KOSPEL.
MODE D'EMPLOI HPM2.Z16 KOSPEL
Pompe à Chaleur HPM2.Z

La pompe à chaleur HPM2.Z est une unité hermétiquement fermée et contient des gaz à effet de serre fluorés.

AVERTISSEMENT
N'utilisez pas de produits pour accélérer le processus de dégivrage ou de nettoyage autres que ceux recommandés par le fabricant. Conservez la machine dans une pièce dépourvue de toute source d'inflammation permanente (par exemple, une flamme nue, un appareil à gaz ou un radiateur électrique en fonctionnement). Ne percez pas ou ne brûlez pas la machine. Notez que les réfrigérants peuvent être inodores. La machine doit être installée, utilisée et stockée dans une pièce dont l'espace et le volume sont suffisants (tableau).
NOTE Le fabricant peut fournir des exemples pertinents ou des informations supplémentaires sur l'odeur du réfrigérant.

La machine est destinée à être utilisée par des utilisateurs qualifiés ou formés dans des magasins, dans l'industrie légère et dans les fermes, ou à être utilisé à domicile par les non professionnels.

La machine peut être utilisée par des enfants à partir de 8 ans et par des personnes dont les capacités physiques, sensorielles ou mentales sont réduites ou qui manquent d'expérience et de connaissances, à condition qu'ils soient surveillés ou qu'ils aient reçu des instructions sur l'utilisation sûre de la machine et qu'ils aient compris les dangers qui en découlent. Les enfants ne peuvent pas jouer avec la machine. Le nettoyage et l'entretien de la machine ne doivent pas être effectués par des enfants non surveillés.
- La lecture du contenu de ce manuel vous permettra d'installer et d'utiliser correctement la machine, ce qui garantira un fonctionnement durable et fiable.
- La machine doit être installée conformément aux réglementations nationales en matière d'installation.
- Une installation électrique opérationnelle et réalisée conformément à la norme PN-IEC 60364.
- Comme prévu, la machine ne peut être installée et utilisée que dans des systèmes de chauffage fermés, conformément à la norme EN 12828, en tenant compte des instructions de montage, d'entretien et d'utilisation correspondantes.
■ Les travaux sur le circuit frigorifique ne doivent être effectués que par des spécialistes autorisés.
■ La mise en service doit être effectuée par un installateur agréé ou une personne autorisée désignée par lui. - Des conditions ambiantes inadaptées peuvent endommager le système et compromettre la sécurité du fonctionnement (éviter la pollution de l'air par les alcanes halogénés contenus par exemple dans les peintures, les solvants et les produits de nettoyage, éviter une humidité élevée constante due par exemple au séchage fréquent du linge).
- Confiez le montage de la machine et les travaux d'électricité et de plomberie à un prestataire de services spécialisé et respectez strictement les instructions de montage et d'utilisation du produit.
- Tous les travaux de montage doivent être effectués avec l'électricité et l'eau coupées.
- Des étincelles peuvent se produire en raison d'une décharge électrostatique, ce qui peut enflammer une fuite de réfrigérant (R32). Touchez des objets mis à la terre, par exemple des tuyaux de chauffage ou d'eau, pour dissiper les charges statiques avant d'effectuer le travail.
- Les surfaces chaudes peuvent provoquer des brûlures.
- Le contact direct avec le réfrigérant liquide ou gazeux peut causer de graves dommages à la santé.
- L'installation électrique doit être équipée de dispositifs de protection contre les courants résiduels et de moyens permettant d'assurer la déconnexion de la machine de la source d'alimentation, la distance entre les contacts de tous les pôles n'étant pas inférieure à 3 mm.
- La pompe à chaleur est un appareil sensible aux surtensions, l'installation électrique doit donc comporter des dispositifs de protection contre les surtensions.
- En cas de flamme nue, il y a un risque de brûlure.
- Le réfrigérant est le R32, un gaz incolore, inodore et déplaçant l'air, qui forme un mélange inflammable avec l'air.
Description de la machine
La pompe à chaleur HPM2.Z est un appareil destiné à chauffer/refroidir un bâtiment et à chauffer l'eau sanitaire.
L'unité se compose de deux modules :
- externe HPMO2, pompe à chaleur à compresseur.
Le principe est de capter la chaleur de l'environnement et de la transférer au circuit de chauffage du bâtiment. La chaleur à basse température de l'air est transférée par l'évaporateur au système de pompe à chaleur rempli de réfrigérant qui s'évapore et se transforme en gaz. À partir de l'évaporateur, le gaz est aspiré par le compresseur qui élève sa température pendant la compression et le dirige vers le condenseur. Dans le condenseur, la chaleur est transférée au réfrigérant qui remplit le système de chauffage central, et le liquide refroidi passe par le détendeur et retourne à l'évaporateur, ensuite, tout le processus recommence. Dans le cas du refroidissement, ce cycle est inversé et la chaleur est extraite du bâtiment et dissipée à l'extérieur.
- interne HPMI2, module hydraulique équipé d'un régulateur pour l'ensemble du système.
Le principe de fonctionnement de l'unité est basé sur la régulation de la capacité du compresseur de la pompe à chaleur en fonction de la demande, avec activation du réchauffeur électrique via le régulateur du module intérieur. Le régulateur du module intérieur régule la puissance de chauffage en fonction de la courbe de chauffe définie. Si la pompe à chaleur n'est pas en mesure de répondre à elle seule à la demande de chaleur du bâtiment, le régulateur active automatiquement le réchauffeur électrique qui, avec la pompe à chaleur, produit la température souhaitée du réfrigérateur.
Plages de températures extérieures pour les pompes à chaleur air/eau
Les pompes à chaleur air/eau utilisent l'air extérieur comme source de chaleur. Le fonctionnement n'est efficace que dans certaines plages de température extérieure, par exemple entre -25°C et +43°C. Si la limite supérieure de température est dépassée ou si la limite inférieure de température est atteinte, les pompes à chaleur s'arrêtent périodiquement. Un message correspondant apparaît sur le régulateur de la pompe à chaleur. Afin de couvrir la demande de chaleur pour le chauffage des locaux et de l'eau chaude au-delà des limites de température, le régulateur de la pompe à chaleur active automatiquement les équipements de chauffage d'appoint disponibles, tels que le réchauffeur électrique d'appoint, si nécessaire.
Équipement requis
Câble du bus de communication entre le module externe et le module interne. Recommandé : LiYY 2 x 0.34mm ^2 max : 2 x 1.5mm ^2
Circuit frigorifique
Tous les composants du circuit frigorifique sont situés dans le module externe, y compris le régulateur du circuit frigorifique avec la vanne d'expansion électronique. En fonction des conditions de fonctionnement, la puissance du compresseur est ajustée à l'aide d'un onduleur.
Lorsque la fonction de refroidissement des pièces est activée, le circuit frigorifique est inversé
Système hydraulique
Les modules interne et externe sont reliés l'un à l'autre par des tuyaux hydrauliques avec le fluide de chauffage. Une pompe de circulation à haut rendement (pompe secondaire) intégrée au module interne alimente le circuit secondaire en fluide de chauffage. Une vanne de dérivation centrale à 3 voies « chauffage/chauffage de l'eau chaude sanitaire » est responsable de la commutation entre le chauffage des pièces et le chauffage de l'eau chaude sanitaire.
Installation avec ballon tampon d'eau de chauffage/refroidissement
■ Chauffage des pièces
La pompe à chaleur peut chauffer jusqu'à 2 circuits de chauffage/refroidissement : 1 circuit de chauffage/refroidissement sans mélangeur et 1 circuit de chauffage/refroidissement avec mélangeur.
■ Refroidissement des pièces
La pompe à chaleur peut refroidir jusqu'à 2 circuits de chauffage/refroidissement.
Régulateur de la pompe à chaleur
L'ensemble du système de chauffage est surveillé et contrôlé par le régulateur de la pompe à chaleur.
Le régulateur de la pompe à chaleur est intégré au module interne. La communication entre les modules interne et externe s'effectue via un bus de communication.
- Installation des unités externe et interne conformément aux conditions de garantie et aux instructions d'utilisation.
- Réaliser des connexions hydrauliques étanches des équipements inclus dans le kit HPM, réparer les fuites dans le système de chauffage.
- Raccordement électrique des unités externe et interne, raccordement des sondes de température extérieure, intérieure, du ballon, du THC, des pompes du circuit de chauffage, de la pompe de circulation, de la vanne de mélange et d'autres équipements auxiliaires inclus dans le système.
- Purge correcte du système de chauffage, de l'unité interne, de l'unité externe, du serpentin de l'échangeur ECS. Vérifier l'obtention du débit requis dans le système de chauffage et d'ECS et de la pression requise du système hydraulique.
- Contrôle des raccords hydrauliques qui se trouvent dans le système de chauffage et qui ne font pas partie du kit HPM.
- Réalisation d'une mesure électrique de la tension d'alimentation de l'unité interne.
Les op.rations nécessaires à la mise en service initiale sont les suivantes :
- Mise en service du système de chauffage PC et vérification de son bon fonctionnement (réglage correct des paramètres de fonctionnement et leur adaptation aux propriétés thermiques du bâtiment, du système).
- Configuration et réglage des paramètres de fonctionnement de base (programmation de la température ambiante et de l'eau sanitaire).
- Évaluation de l'installation pour détecter les fuites, les bruits génants (par exemple, le bruit d'une mauvaise purge)
- Formation initiale de l'utilisateur sur le principe d'utilisation du système PC
- Notez les paramètres pertinents sur le formulaire de la carte de mise en service de la pompe à chaleur HPM2.Z dans le manuel d'utilisation.
- Enregistrement de la machine par l'entreprise de mise en service après la mise en service initiale dans le système électronique de Kospel sp. z o.o. "Enregistrement de la pompe à chaleur HPM2.Z", au plus tard 30 jours après la mise en service.
Opérations à réaliser lors de l'inspection initiale :
Vérification de l'état du système électrique
- Mesure de la tension d'alimentation de l'unité interne HPMI2 -____ V.
- Contrôle de l'exactitude des câbles électriques installés dans l'unité interne HPMI2 (serrage des câbles électriques).
Évaluation de l'étanchéité du système hydraulique
- Lecture de la pression du fluide de chauffage sur le panneau de commande de l'unité interne HPMI2 - __ bar.
Nettoyage du séparateur de saletés
- Contrôle de la pression dans le vase à diaphragme de l'unité interne HPM12 - __ bar.
- Lecture du débit du circuit de chauffage pendant le fonctionnement -____ l/min, température d'entrée __°C, température de sortie __°C.
Contrôle des vannes de zone.
Nettoyage des filtres.
Contrôle du fonctionnement de la vanne à trois voies.
Contrôle de la pression du réfrigérant de l'unité externe HPM02.
Évaluation de l'état et nettoyage de l'évaporateur.
Contrôle de la perméabilité de l'évacuation des condensats.
Contrôle de l'exactitude des câbles électriques installés dans l'unité externe HPMO2 (serrage des câbles électriques).
Évaluation de l'état technique de l'unité externe.
Niveau de pression sonore pour différentes distances de la machine.
| Niveau de puissance acoustique Lw [dB(A)] | Facteur de directionnalité Q | Distance de la source de bruit r [m] | |||||||||
| 1 2 3 | 4 5 6 8 1 | 0 12 15 | |||||||||
| Niveau de puissance acoustique Lp [dB(A)] | |||||||||||
| HPMO2-8 60 | 2 52 46 42 | 40 38 3 | 6 34 32 | 30 28 | |||||||
| 4 55 49 45 | 43 41 3 | 9 37 35 | 33 32 | ||||||||
| 8 58 52 48 | 46 44 4 | 2 40 38 | 36 35 | ||||||||
| HPMO2-12 63 | 2 55 49 45 | 43 41 3 | 9 37 35 | 33 31 | |||||||
| 4 58 52 48 | 46 44 4 | 2 40 38 | 36 35 | ||||||||
| 8 61 55 51 | 49 47 4 | 5 43 41 | 39 38 | ||||||||
| HPMO2-16/23 64 | 2 56 50 46 | 44 42 4 | 0 38 36 | 34 32 | |||||||
| 4 59 53 49 | 47 45 4 | 3 41 39 | 37 36 | ||||||||
| 8 62 56 52 | 50 48 4 | 6 44 42 | 40 39 | ||||||||
Q=2: pompe à chaleur autonome à l'extérieur du bâtiment.

text_image
du batiment. Q=2 ment.Q=4: pompe à chaleur contre le mur du bâtiment.

Q=8: pompe à chaleur contre le mur du bâtiment dans un coin
Module interne HPMI2

text_image
406,4
text_image
355 30.7 53 159 115 Entrée de câble à l'arrière du boîtier Entrées de câble sur le côté gauche du boîtier Ø 30,5 4 x trous pour chevilles à tête hexagonale 235 717 694 78 78 270 415 723 300 min. 300 m83.
text_image
416 323 1321123690 55 117 190 283 ① ② ③ ④ ⑤ ⑥[1] - sortie vers la pompe à chaleur 1 1/4"
[2] - retour du système cc/ecs 1 1/4"
[3] - alimentation cc 1 1/4"
[4] - sortie de la vanne de sécurité 1/2"
[5] - alimentation ecs 1 1/4"
[6] - entrée de la pompe à chaleur 1 1/4"
Module externe HPM02
Module externe avec 1 ventilateur HPM02-8

Point d'insertion pour le câble d'alimentation et de communication
Module externe avec 1 ventilateur HPM02-12

Point d'insertion pour le câble d'alimentation et de communication

Montage du module externe
Transport
Attention!
Les chocs, les fortes pressions et les contraintes élevées peuvent entraîner des dommages sur les parois extérieures de la machine. Ne surchargez pas les parois supérieure et avant ou les parois latérales.
Attention!
Une forte inclinaison du module externe peut entraîner l'entrée d'huile du compresseur dans le circuit de refroidissement et une défaillance lors du démarrage. Angle d'inclinaison maximal : 45° pendant environ 4 min., sinon 30°
Méthodes de montage:
■ Montage au sol avec entrée de câbles au-dessus du niveau du sol
■ Montage au sol avec entrée de câbles au-dessous du niveau du sol
Montage au sol
■ Monter le module externe en position libre sur une sous-structure fixe d'une hauteur d'au moins 100 mm.
En cas de conditions climatiques difficiles (températures négatives, neige, humidité), il est recommandé de placer la machine sur un socle de 300 mm de haut.
■ Le poids du module externe doit être pris en compte : voir « Caractéristiques techniques ».
Emplacement
■ Ne pas installer avec le côté échappement contre le vent.
■ Réaliser des traversées de murs et des gaines de protection pour les conduits hydrauliques et électriques sans utiliser de raccords et sans changer la direction des conduits.
Impact des conditions météorologiques:
■ Pour le montage dans des zones exposées au vent, faites attention aux charges dues au vent.
Lorsque le module externe est installé sur un toit plat, des charges de vent importantes peuvent apparaître en fonction de la zone de charge du vent et de la hauteur du bâtiment. Si tel est le cas, nous recommandons au concepteur de concevoir la sous-structure en tenant compte des exigences de la norme DIN 1991-1-4.
■ Intégrer le module externe dans le système de protection contre la foudre.
■ Lors de la conception du système de protection contre la pluie ou de l'auvent, faire attention à l'entrée de chaleur (mode chauffage) et à la sortie de chaleur (mode refroidissement) de la machine.
Condensat:
■ Prévoir la libre évacuation des condensats.
Pour permettre l'imprégnation, préparer un support de gravier permanent pour le module externe.
Amortissement des bruits et vibrations transmis par les matériaux entre le bâtiment et le module externe:
■ Effectuer le raccordement hydraulique du module externe à l'aide de raccords flexibles.
■ Poser les câbles de connexion électrique du module interne/externe sans tension.
Lieu de montage
■ Choisir un emplacement avec une bonne circulation d'air afin que l'air refroidi puisse sortir et que l'air chaud puisse entrer.
■ Ne pas installer dans les coins de la pièce, les renfoncements ou entre les murs. Cela peut entraîner une nouvelle aspiration de l'air extrait.
Attention!
La restriction de la libre circulation de l'air peut entraîner le retour de l'air refroidi (chauffé en mode refroidissement) et provoquer des perturbations dans le fonctionnement de la machine, une détérioration de l'efficacité et une augmentation conséquente de la consommation d'électricité.
Si la machine est placée dans une zone exposée à des vents forts, il faut empêcher le vent d'affecter la zone de ventilateurs. Les vents forts peuvent perturber le flux d'air à travers l'évaporateur.
■ Choisir le site d'installation de manière à ce que l'évaporateur ne soit pas obstrué par des feuilles, de la neige, etc.
■ Tenir compte des lois de la physique concernant la propagation et la réflexion du son en choisissant le site d'installation.
Instructions en matière de conception
■ Ne pas monter sous les fenêtres ou à côté des fenêtres des chambres à coucher.
■ Ne pas installer dans des puisards de sous-sol ou des dépressions dans le sol.
■ Garder au moins 3 m des puisards de sous-sol et des fenêtres.
- Maintenir une distance par rapport aux trottoirs, terrasses, caniveaux ou surfaces dotées d'un revêtement de protection d'au moins 3 m. Lorsque la température extérieure est inférieure à 10°C, l'air refroidi soufflé entraîne le risque de givrage.
- Éviter de « court-circuiter » les flux d'air avec des équipements de ventilation. Garder au moins 3 m de la zone d'aspiration de l'équipement de ventilation.
■ Le site d'installation doit être facilement accessible, par exemple pour les travaux de maintenance (voir « Distances minimales au niveau du module externe »).
Distances minimales au niveau du module externe
Module externe avec 1 ventilateur

text_image
≥ 200 B ≥ 100 ≥ 300 ≥ 1000 A
text_image
≥1000 ≥200 ≥200 A BModule externe avec 2 ventilateurs

text_image
≥ 200 B ≥ 100 ≥ 300 ≥ 1000 A
text_image
≥ 200 ≥ 1000 A ≥ 200 BⒶ - Sortie d'air
B - Entrée d'air
Montage au sol
Fondations
Monter les supports pour une installation hors sol sur 2 semelles horizontales. Il est recommandé de construire une fondation en béton comme indiqué sur la figure. Les épaisseurs de couche indiquées sont des valeurs indicatives. Elles doivent être adaptées aux conditions locales. Respecter les règles de la technique de construction.

text_image
300 730 e C P C E
text_image
f g 65 600 65 C P 200200 e© - Semelles de fondation
E - Protection des fondations contre le gel (gravier compacté, par exemple de 0 à 32/56 mm), épaisseur de la couche conformément aux exigences locales et aux règles de construction
P - Support en gravier pour faciliter l'absorption des condensats
| Dimensions [mm] e f g | ||
| HPMO2-8 1200 1030 830 | ||
| HPMO2-12 1300 1175 975 | ||
| HPMO2-16/23 1250 1000 800 |
Montage au sol avec support

text_image
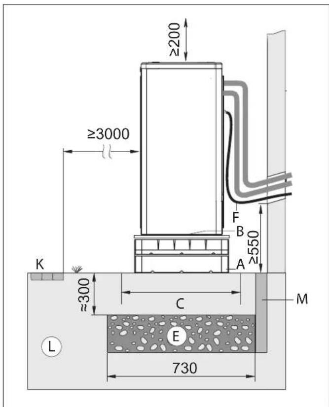
≥200 ≥3000 F B A ≥550 K 300 C M L E 730Ⓐ - Supports de montage au sol
⑧ - Ouvertures dans la plaque inférieure pour assurer le libre écoulement des condensats : Ne pas fermez les ouvertures.
© - Ceintures de fondation
© - Protection contre le gel (gravier compacté, par exemple de de 0 à 32/56 mm), épaisseur de la couche conformément aux exigences locales et aux règles de construction
(F) - Câbles électriques reliant le module interne au module externe et câble électrique d'alimentation du module externe: Poser les câbles sans tension.
K - Trottoir, terrasse
(L) - Terre
(M) - Couche de séparation flexible entre la fondation et le bâtiment

text_image
4x 2. 4x 1. A B C
text_image
4x 2. 4x 1. A B CⒶ - Support de montage au sol
⑧ - Support en gravier pour faciliter l'absorption des condensats
© - Fondations en béton : chapitre « Fondations »
Consigne
Il est recommandé que le condensat s'écoule librement, sans conduite de condensat.
Montage du module interne
Transport
Les chocs, les fortes pressions et les contraintes élevées peuvent entraîner des dommages sur les parois extérieures de la machine. Ne surchargez pas les parois supérieure et avant ou les parois latérales.
Consigne
Si plusieurs pompes à chaleur doivent être installées dans la même pièce, il faut calculer le volume minimal de la pièce pour l'unité ayant la charge de réfrigérant la plus élevée.
Attention!
La fuite de réfrigérant inflammable (R32) peut provoquer un incendie dans les pièces où l'alimentation en air est insuffisante.
■ Maintenir une taille minimale de la pièce.
■ Prévoir des systèmes de ventilation d'alimentation et d'évacuation adéquats.
■ Ne pas utiliser de sources d'inflammation dans le local technique, par exemple des sources de flamme nue, un appareil à gaz allumé, un réchauffeur électrique avec élément chauffant exposé, etc.
Ne pas fumer dans le local technique.
■ Les composants électriques installés à une distance de 1 m des parties conductrices du réfrigérant du système doivent être conformes aux exigences définies pour les atmosphères potentiellement explosives, zone 2.
Distances minimales au niveau du module interne
En combinaison avec le réfrigérant R32 : Respecter impérativement la surface minimale de la pièce ainsi que les distances minimales.

Montage du module interne sur le mur

Module externe : liste des connexions
Module externe avec 1 ventilateur : ouverture de l'espace de raccordement
HPM02-8
HPM02-12
Ⓐ - Espace de raccordement :
■ Câble de bus de communication pour le module interne
■ Connecteur électrique du compresseur

Module externe avec 2 ventilateurs : ouverture de l'espace de raccordement
HPM02-16/23
Ⓐ - Câble de bus de communication pour le module interne
⑧ - Connecteur électrique du compresseur

Raccordement du câble du bus de communication entre les modules interne et externe
Module externe avec 1 ventilateur
HPM02-8; HPM02-12

Module externe avec 2 ventilateurs
HPM02-16/23

PHWC - pompe de circulation d'eau sanitaire
PGC - pompe de circulation de glycol
PHC1 - pompe de circulation CC1 (sans mélangeur)
PHC2 - pompe de circulation de CC2 (avec mélangeur)
PIU - pompe de circulation dans le module interne
Vannes:
VCH - vanne de commutation refroidissement/chauffage / pompe de circulation
VMHC2 - vanne de mélange du circuit de CC2
VDH - vanne de commutation du circuit ECS/CC
Entrées de sondes de température:
TCB - sonde de température du tampon d'eau
THC2 - sonde de température d'alimentation du circuit CC2 (en aval de la vanne de mélange)
THC1 - sonde de température d'alimentation du circuit CH1
TCYL - sonde de température de l'eau dans le ballon ECS
TR - sonde de température ambiante
TO - sonde de température externe
Entrées/sorties de contrôle:
PIU - pompe de circulation dans le module interne
FN1, FN2 - entrées fonctionnelles
HE - sortie de contrôle des résistances
Communication
EU - connecteur pour la communication avec le module externe
SLAVE - connecteur de communication avec le module Internet
Alimentation du régulateur
LR, L, N - alimentation du régulateur de la pompe à chaleur
HPMI2-8 / HPMI2-12 -raccordement à une installation triphasée

text_image
N L3 L2 L1 PE L3 L2 L1 PE HPMI.2 U V W N N L PE HPMO.2 N L PEHPMI2-8 / HPMI2-12 - raccordement à une installation monophasée

HPMI2-16+HPMO2-16 - raccordement à une installation triphasée

text_image
N L3 L2 L' PE L3 L2 L1 PE HPMI.2 U V W N N U V W PE HPMO.2Connecteur électrique - module externe
Connecteur électrique du module externe HPM02-8 / HPM02-12 - 230 V\~

Ⓐ - Espace de raccordement du module externe
(B) - Espace de raccordement dans le module interne 230 V/50 Hz
Connecteur électrique du module externe HPM02-16/23 - 400 V\~

text_image
U V W N A L1 L2 L3 N BUn ordre incorrect des phases peut endommager la machine. Effectuer le raccordement électrique uniquement en respectant l'ordre des phases spécifié (voir les bornes de raccordement), avec un champ tournant dans le sens des aiguilles d'une montre.
| Types Câble | Longueur maximale du câble | Protection maximale | |
| HPM02-16/23 5 x 2 | 5 mm ^2 | 60m 3 x B16A |
Ⓐ - Espace de raccordement du module externe
(B) - Espace de raccordement dans le module interne 400 v/50 Hz
Fermeture de la pompe à chaleur
Module interne : montage du panneau frontal

Le boîtier non étanche peut entraîner des dommages dus à la condensation, des vibrations et peut contribuer au bruit.
■ Fermer la machine de manière étanche au bruit et à la diffusion.
■ Pour les entrées de tuyaux et de conduits, il faut veiller à ce que l'isolation thermique soit installée correctement.
Si les composants du système n'ont pas été mis à la terre, il existe un risque d'électrocution dangereuse et de détérioration des composants en cas d'endommagement du système électrique.
Installer les fils de protection sur les couvercles avant et latéral.
Il est nécessaire de serrer les vis de fixation avant le démarrage.
Sonde de température du tampon de refroidissement WE-019/01 (entrée TCB) - en option, équipement supplémentaire
Le câble de connexion de la sonde doit être aussi court que possible, ne le faites pas passer à proximité des câbles d'alimentation et ne l'enroulez pas autour d'autres câbles. La sonde est nécessaire si la machine est configurée pour fonctionner avec un ventilo-convecteur [MAINTENANCE/ CONFIGURATION -> Configuration -> Refroidissement -> Type : Ventilo-convecteur].
Sonde de température dans le circuit de chauffage de radiateurs WE-019/05 (entrée THC1)
L'emplacement de montage de la sonde est indiqué sur le schéma hydraulique. La sonde est nécessaire si le circuit CC1 est actif [MAINTENANCE / CONFIGURATION -> Configuration -> Circuit CC1 -> circuit : Oui].
Sonde de température dans le circuit de chauffage de surface WE-019/05 (entrée THC2)
L'emplacement de montage de la sonde est indiqué sur le schéma hydraulique.
La sonde est nécessaire si le circuit CC2 est actif [MAINTENANCE / CONFIGURATION -> Configuration -> Circuit CC2 -> circuit : Oui].
Sonde de température du ballon ECS WE-019/01 (entrée TCYL)
Sonde de température de l'eau dans le ballon ECS, placez-la dans la prise du ballon.
Sonde de température ambiante WE-033 (entrée TR)
La sonde de température ambiante doit être installée dans une pièce représentative du bâtiment, loin des radiateurs, des fenêtres, des portes et des passages.
À une hauteur minimale de 150 cm. Le câble de la sonde doit être aussi court que possible, ne le faites pas passer à proximité des câbles d'alimentation et ne l'enroulez pas autour d'autres câbles.
Sonde de température extérieure WE-027 (entrée TO)
La sonde doit être montée dans un endroit ombragé sur l'élévation nord ou nord-ouest du bâtiment, loin des fenêtres et des aérateurs. Le câble de la sonde doit être aussi court que possible, ne le faites pas passer à proximité des câbles d'alimentation et ne l'enroulez pas autour d'autres câbles.
Entrée de fonction 1 (entrée FN1)
Si l'entrée est ouverte, le chauffage central de la machine est bloqué. L'entrée est active en mode hiver.
Entrée de fonction 2 (entrée FN2)
Forçage externe de la demande de refroidissement. L'entrée est active en mode été. Si le circuit est court-circuité, la machine démarre en mode refroidissement selon les paramètres définis. Afin de protéger l'installation sanitaire contre la condensation, il est possible de brancher sur le circuit le capteur/interrupteur d'humidité HP.HS.24 (option).
Raccordement au système hydraulique
La pompe à chaleur HPM2 peut fonctionner dans le système hydraulique en circuit fermé (la pression minimale du fluide de chauffage est de 0,6 bar).
Le système hydraulique doit être effectué conformément aux normes en vigueur. Les tuyaux reliant la pompe à chaleur au module externe doivent avoir un diamètre interne permettant d'assurer un débit suffisant du fluide de chauffage (tableau des caractéristiques techniques). Pour éviter la transmission de vibrations au système hydraulique, il faut utiliser des tuyaux flexibles pour raccorder la pompe à chaleur. Les tuyaux et les raccords du fluide de chauffage doivent être isolés thermiquement. En cas de températures négatives de l'air extérieur, la machine ne doit pas être éteinte. Cela permettra de protéger le condenseur du module externe contre les dommages. En cas de risque de coupure de courant, le circuit de chauffage de la pompe à chaleur doit être séparé du module hydraulique par un échangeur supplémentaire et le circuit de chauffage de la pompe à chaleur doit être rempli d'antigel. Une condition de garantie est l'installation d'un séparateur de solides à l'entrée de la machine. Le système hydraulique doit être réalisé de manière à ce que le module interne HPMI2 puisse fonctionner dans le circuit de chauffage sans le module externe HPMO2 (selon les schémas d'installation ci-dessous). En cas de défaillance du module externe HPMO2, cela permet de garantir le fonctionnement du système de chauffage.

flowchart
graph TD
A["HPMO2"] --> B["TO"]
B --> C["KO"]
C --> D["HPMI2"]
D --> E["PIU"]
E --> F["SWVPC"]
F --> G["THC1"]
F --> H["PHC2"]
H --> I["OP"]
H --> J["OG"]
H --> K["THC2"]
F --> L["PHWC"]
L --> M["SWVPC"]
M --> N["THC1"]
M --> O["PHC2"]
M --> P["VMHC2"]
M --> Q["ZB"]
Q --> R["NW cwu"]
Q --> S["ZA EA"]
M --> T["SZ"]
T --> U["NW co"]
T --> V["ZN"]
W["TR"] --> X["SWVPC"]
Y["HP.HS.24"] --> Z["SWVPC"]
AA["SWVPC"] --> AB["THC1"]
AC["THC1"] --> AD["PHC2"]
AE["THC2"] --> AF["PHC1"]
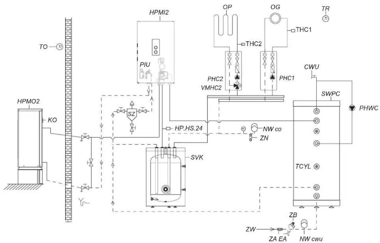
Exemple de système de pompe à chaleur avec un circuit de chauffage/refroidissement de surface, un circuit de radiateurs et un échangeur d'eau chaude sanitaire avec un tampon cc d'eau de chauffage/refroidissement

flowchart
graph TD
A["HPMO2"] --> B["KO"]
B --> C["HPMI2"]
C --> D["PIU"]
D --> E["SZ"]
E --> F["HP.HS.24"]
F --> G["SVK"]
G --> H["SWPC"]
H --> I["THC1"]
I --> J["OP"]
I --> K["OG"]
J --> L["THC2"]
K --> M["THC1"]
L --> N["PHC2 VMHC2"]
M --> O["PHC1"]
N --> P["CWU"]
O --> Q["SWPC"]
Q --> R["PHWC"]
S["ZW"] --> T["ZA EA"]
T --> U["NW cwu"]
V["ZB"] --> W["NW cwu"]
X["NW co"] --> Y["ZN"]
Exemple de schéma de système de pompe à chaleur avec circuit de chauffage/refroidissement de surface, un circuit de radiateurs, un tampon cc d'eau de chauffage/refroidissement et un ballon d'eau chaude sanitaire.

flowchart
graph TD
A["HPMO2"] --> B["KO"]
B --> C["TO"]
C --> D["PIU"]
D --> E["HPMI2"]
E --> F["FC"]
F --> G["OP"]
G --> H["OG"]
H --> I["THC1"]
I --> J["TR"]
D --> K["PHC2 VMHC2"]
K --> L["PHC1"]
L --> M["CWU"]
M --> N["SWPC"]
N --> O["PHWC"]
P["SZ"] --> Q["HP.HS.24"]
R["SWK"] --> S["NW co"]
T["SWK"] --> U["ZN"]
V["ZB"] --> W["ZW"]
X["WZ"] --> Y["ZA EA"]
Z["NW cwu"] --> AA["NW cwu"]
Exemple de schéma de système de pompe à chaleur avec un circuit de chauffage de surface, un circuit de radiateurs, un tampon chauffant, un ballon d'eau chaude sanitaire et un circuit de refroidissement avec ventilo-convecteur.
HPM02 - pompe à chaleur
HPMI2 - module hydraulique
KO - raccord de purge
SZ - séparateur de solides
TO - sonde de température externe
PHWC - pompe de circulation d'eau sanitaire
PGC - pompe de circulation de glycol
PHC1 - pompe de circulation CC1 (sans mélangeur)
PHC2 - pompe de circulation CC2 (avec mélangeur)
PIU - pompe de circulation dans le module interne
OG - chauffage à radiateur
TR - sonde de température ambiante
OP - chauffage de surface
THC1 - sonde de température du fluide dans le circuit de chauffage de radiateurs
THC2 - sonde de température du fluide dans le circuit de chauffage de surface
VMHC2 - vanne de mélange du circuit de CC2
SWVPC - échangeur d'eau chaude sanitaire avec tampon de chauffage cc.
SVK - ballon tampon d'eau de chauffage/refroidissement
TCYL - sonde de température du ballon (WE-019/01)
PHWC - pompe de circulation d'eau chaude sanitaire
HP.HS.24 - interrupteur d'humidité
CWU - eau chaude sanitaire
ZW - entrée d'eau froide
ZA EA - vanne anti contamination
ZB - vanne de sécurité
NWcwu - vase d'expansion à diaphragme pour l'ecs
NWco - vase d'expansion à diaphragme pour le chauffage central
ZN - vanne de décharge
TCB - sonde de température du tampon (en option pour le refroidissement par ventilo-convecteur)
FC - ventilo-convecteur

text_image
KOSPEL 9:37 Mar 04.02.2020 Err .ay 5,1° 24,2° ① ② ③1 - écran
2 - bouton de navigation pour la visualisation et les paramètres
3 - bouton de sélection du mode de fonctionnement
Utiliser le bouton de sélection du mode [3] pour régler l'un des modes :
- hiver

- été

- veille ⏻.
Tourner le bouton de navigation [2] (à gauche ou à droite), avec le mode hiver ou été actif, pour changer les écrans de fonction sur l'écran [1].
- principal: informe sur les paramètres de base de la pompe à chaleur (voir le tableau pour plus de détails),
- visualisation des paramètres: permet de visualiser les signaux d'entrée et de sortie de la pompe à chaleur.
- paramètres: permet de personnaliser les paramètres de la pompe à chaleur en fonction des préférences de l'utilisateur,
- maintenance/configuration: permet de configurer le système de chauffage en fonction des conditions du bâtiment (disponible pour l'entreprise d'installation et les centres de maintenance spécialisés en entrant un code d'accès),
- fête / vacances / manuel: permet de changer rapidement d'algorithme de fonctionnement selon les besoins.
Vous pouvez accéder aux différentes fonctions en sélectionnant l'écran de fonction concernée et en appuyant sur le bouton de navigation.
L'apparition d'une erreur ou d'un avertissement sur la pompe à chaleur est indiquée sur l'écran de fonction principal Err ou une liste des erreurs et des avertissements détectés est disponible en appuyant sur le bouton.

text_image
Język / Language English Čeština DeutschAu premier démarrage, sélectionner la langue puis le type d'unité extérieure.

bar
| Type | | :--- | | 8.0 | | 12.0 | | 23.0 |ÉCRAN PRINCIPAL :

text_image
1 2 3 4 5 6 7 8 9:37 Mar 04.02.2020 Err W 5,1° 24,2° 55°1 - signalisation de la prise de chaleur
2 - signalisation de la mise en œuvre du programme de chauffage
3 - signalisation de la mise en marche de la résistance
4 - signalisation du fonctionnement du compresseur
5 - signalisation de la température ambiante mise en œuvre dans la pièce
6 - température ambiante
7 - température extérieure
8 - température du ballon
Signalisation du programme de travail en cours:
| selon un programme journalier /hebdomadaire prédéfini | |
| Désinfection du ballon | |
| Dégivrage | |
| FÊTE - maintien d'une température confortable dans la pièce et le ballon | |
| VACANCES - maintien d'une température économique ou hors-gel dans la pièce et le ballon | |
| Mise en œuvre du programme de protection contre le gel | |
| MANUEL - maintien d'une température de consigne dans la pièce |
Signalisation de la température ambiante mise en œuvre dans la pièce:
| Signalisation de la prise de chaleur > CC | |
| signalisation de la prise de chaleur > ECS | |
| Signalisation du fonctionnement du refroidissement |
Autres symboles
| Err | Signalisation d'une erreur |
| Signalisation d'un avertissement | |
| Signalisation de la mise en marche de la résistance | |
| Signalisation de la mise en marche du compresseur Le symbole clignotant indique le mode bivalent |
PARAMÈTRES:
Adaptation des paramètres de la machine aux préférences de l'utilisateur.

text_image
9:37 Wen 04.02.2020 Paramètres• Température ambiante
- Économique ⚡, Confort - ⚡, Confort ⚡, Confort+ ⚡:: définir les valeurs de température ambiante disponibles dans les programmes,
- Fête, Vacances : sélection de températures à mettre en œuvre dans les programmes.
- Refroidissement : réglage de la température ambiante en mode refroidissement (disponible avec le refroidissement de surface actif).
- Température du ballon : (disponible si le ballon ECS est actif).
- Économique 📁, Confort 📍 définir les valeurs de température de l'eau chaude disponibles dans les programmes.
- Prog.du chauf..cent.

text_image
1 2 3 4 Prog. du chauf ..cent. Noi 1 6:00 - 9:15 2 15:20 - 22:151 - numéro d'intervalles de temps (max. 5)
2 - heure de début de la température sélectionnée
3 - heure de fin de la température sélectionnée
4 - sélection de la température:
- N° 1...N° 8 > Configuration de 8 programmes journaliers, dans chaque programme journalier il y a 5 intervalles réglables disponibles, pour lesquels une des températures de la pièce peut être attribuée (★, ☺, ☺, ☺), pendant le reste du temps, la température économique sera mise en œuvre (○)
/La procédure de réglage des programmes journaliers est décrite dans la rubrique Programme journalier/. - Hebdomadaire : affectation pour chaque jour de la semaine d'un des programmes journaliers prédéfinis.
- Prog.ballon d'ECS (disponible si le ballon ECS est actif)

text_image
1 2 3 4 Prog.ballon d'ECS No1 1 6:20 - 8:00 2 18:30 - 23:001 - numéro d'intervalles de temps (max. en 5)
2 - heure de début de la température sélectionnée
3 - heure de fin de la température sélectionnée
4 - sélection de la température : ✿,
- N° 1... N° 8 > Configuration de 8 programmes journaliers, dans chaque programme journalier il y a 5 intervalles réglables disponibles, pour lesquels une des températures du ballon peut être attribuée (
La procédure de réglage des programmes journaliers est décrite dans la rubrique Programme journalier.
Veuillez noter que pendant des intervalles de temps indéfinis, la température économique sera mise en œuvre ( ).
• Prog.circulation (disponible uniquement lorsque la circulation est active dans l'installation ECS):

text_image
Prog.circulation No1 1 6:00 - 8:00 2 13:30 - 23:001 - numéro d'intervalles de temps (max. en 5)
2 - heure de démarrage de la pompe de circulation
3 - heure d'arrêt de la pompe de circulation
- N° 1... N° 8 > Configuration de 8 programmes journaliers, dans chaque programme journalier il y a 5 intervalles réglables disponibles, dans lesquels la pompe de circulation fonctionne.
/La procédure de réglage des programmes journaliers est décrite dans la rubrique Programme journalier/.
- Hebdomadaire : affectation pour chaque jour de la semaine d'un des programmes journaliers prédéfinis.
- Désinfection (disponible si le ballon ECS est actif) :
- Jour de la semaine : jour de la semaine pour la désinfection en mode automatique
- Heure de démarrage : heure de désinfection pour le fonctionnement automatique
- Temps de fonctionnement : durée de la désinfection (calculée à partir du moment où la température de désinfection est atteinte)
- Fonctionnement automatique
Oui - démarrage automatique de la désinfection à un moment donné (jour de la semaine, heure de démarrage),
Non - désinfection automatique désactivée. La désinfection est effectuée à la demande de l'utilisateur - Circulation: la désinfection peut être réglée pour l'ensemble du système ou seulement pour le ballon,
- Démarrer maintenant : démarrage manuel de la désinfection (indépendamment du jour de la semaine et de l'heure fixés).
- Prog. refroidissement (disponible uniquement avec le refroidissement de surface actif):

text_image
Prog. refroidissement No1 1 6:00 - 8:00 2 19:30 - 23:001 - numéro d'intervalles de temps (max. en 5)
2 - heure de démarrage de la fonction de refroidissement
3 - heure de fin de la fonction de refroidissement
- N° 1... N° 8 > Configuration de 8 programmes journaliers, dans chaque programme journalier il y a 5 intervalles réglables disponibles, dans lesquels la fonction de refroidissement sera actif.
/La procédure de réglage des programmes journaliers est décrite dans la rubrique Programme journalier/.
- Hebdomadaire : affectation pour chaque jour de la semaine d'un des programmes journaliers prédéfinis.
- Date/heure :
- réglage de l'heure actuelle du système (année, mois, jour du mois, heure et minute).
- Changement d'heure automatique :
Oui - commutation automatique de l'heure du système de l'été à l'hiver et vice versa,
Non - changement automatique désactivée.
Remarque : si le module Internet est connecté à la machine, le paramètre doit être réglé sur NON.
- Interface :
- Luminosité MIN: réglage de la luminosité de l'écran au repos
- Luminosité MAX: réglage de la luminosité de l'écran en état de fonctionnement.
- Son:
Oui - la signalisation acoustique du fonctionnement du bouton est activée,
Non - la signalisation acoustique du fonctionnement du bouton est désactivée. -
Sensibilité du bouton: 1 - élevée / 4 - faible.
-
Langue :
- Choix de la langue du menu.
- Système :
- Programme MSPC: indique la version du programme du régulateur du module interne.
- Programme PW: indique la version du logiciel du panneau.
- Réinitialisation: redémarrage de la pompe à chaleur.
- Paramètres d'usine: retour aux paramètres d'usine.
CONFIGURATION/SERVICE
9:37 Wen 04.02.2020

Adaptation de la pompe à chaleur au système de chauffage du bâtiment:
*Les modifications du menu de configuration sont possibles après avoir saisi le code d'accès. Lorsque vous êtes demandé d'entrer un code d'accès, utilisez le bouton de navigation pour définir le code requis en le tournant vers la gauche, puis confirmez en appuyant sur le bouton. Si vous souhaitez quitter l'écran demandant un code d'accès, maintenez le bouton de navigation enfoncé ou attendez au repos jusqu'à ce que vous reveniez automatiquement à l'écran principal).
Code : 987
- Chauffage :
- Type de réglage :
Selon la courbe - la température dans le système est calculée sur la base de la température extérieure et du point de consigne de la température ambiante résultant du programme.
Paramètres fixes - la température d'alimentation du système est égale à la température d'alimentation MAN, réglée individuellement pour les circuits CC1 et CC2.
- Échangeur de glycol :
Oui - il y a un échangeur supplémentaire dans le système,
Non - il n'y a pas d'échangeur dans le système.
- Protection du bâtiment :
Oui - si la température dans le bâtiment descend en dessous de 7°C en mode veille et que la température extérieure est inférieure à 2°C, le chauffage se met en marche, Non-protectiondésactivée.
- Heure d'activation de la résistance : ce paramètre définit le temps après lequel la pompe à chaleur sera assistée par une source de chaleur supplémentaire (résistance) si elle n'atteint pas les paramètres fixés. Le temps est calculé à partir du moment où la température du point bivalent est atteinte [Configuration -> Pompe à chaleur -> Point bivalent]. Si la température extérieure est supérieure à la température du point bivalent, la source de chaleur supplémentaire ne sera pas mise en marche.
- Temp. ext. désactivée : température extérieure à laquelle le chauffage du circuit CC sera arrêté, indépendamment du réglage de la température ambiante.
- Étalonnage TO : étalonnage de la valeur d'affichage de la température extérieure.
Le paramètre est ajouté ou soustrait de la valeur mesurée, en fonction du signe.
- Circuit chauff. CH1:
- Numéro de la courbe de chauffe : sélection de la courbe de chauffe (voir section Courbe de chauffe). Remarque : ce paramètre est présent lors du réglage en fonction de la courbe de chauffe [Configuration > Chauffage > Type de réglage] : selon la courbe],
- Décalage de la courbe de chauffe : décalage de la courbe de chauffe (voir section Courbe de chauffe). Remarque : ce paramètre est présent lors du réglage en fonction de la courbe de chauffe [Configuration > Chauffage > Type de réglage] : selon la courbe],
- Temp. d'alimentation MAN : température d'alimentation du système en cas de fonctionnement avec des paramètres fixes (réglage manuel du fluide de chauffage) [Configuration > Chauffage > Type de réglage : Paramètres fixes],
- Température d'alimentation MAX : température d'alimentation maximale du circuit de chauffage. ATTENTION : Le réglage de températures trop élevées et ne correspondant pas aux paramètres du bâtiment, au type de chauffage utilisé et au degré d'isolation du bâtiment peut entraîner, entre autres, des coûts de fonctionnement élevés.
- circuit : Oui - activation du circuit CC1, Non - désactivation du circuit.
Veuillez noter que le circuit CC1 est conçu pour le raccordement d'un chauffage par radiateur.
- Circuit chauff. CH2
- Numéro de la courbe de chauffe : sélection de la courbe de chauffe (voir section Courbe de chauffe).
Remarque : ce paramètre est présent lors du réglage en fonction de la courbe de chauffe [Configuration > Chauffage > Type de réglage] : selon la courbe], - Décalage de la courbe de chauffe : décalage de la courbe de chauffe (voir section Courbe de chauffe). Remarque : ce paramètre est présent lors du réglage en fonction de la courbe de chauffe [Configuration > Chauffage > Type de réglage] : selon la courbe],
- Temp. d'alimentation MAN : température d'alimentation du système en cas de fonctionnement avec des paramètres fixes (réglage manuel du fluide de chauffage) [Configuration > Chauffage > Type de réglage : Paramètres fixes],
- Température d'alimentation MAX : température d'alimentation maximale du circuit de chauffage. ATTENTION : Le réglage de températures trop élevées et ne correspondant pas aux paramètres du bâtiment, au type de chauffage utilisé et au degré d'isolation du bâtiment peut entraîner, entre autres, des coûts de fonctionnement élevés.
- Temps de la vanne : temps nécessaire à la vanne pour commuter de 90°. Plage de réglage de 60 à 480 secondes, valeur d'usine 120 secondes. Lors de la configuration, vérifiez la valeur définie avec la valeur de l'actionneur de vanne utilisé,
- Dynamique de contrôle : la vitesse de réponse de la commande de la vanne pour obtenir un paramètre approprié dans le circuit CC2. Valeur par défaut - moyenne, si la température du milieu de circulation du CC2 atteint trop lentement la valeur fixée, il faut augmenter la dynamique. S'il y a un dépassement de la température du fluide, la dynamique doit être réduite.
- circuit : Oui - activation du circuit CC2, Non - désactivation du circuit.
• Refroidissement:
- Type :
Arrêt : fonction de refroidissement inactive,
Ventilo-convecteur,
De surface.
- Temp. du fluide : température du réfrigérant,
- Hystérésis : hystérésis pour le réfrigérant.
- ballon :
- Temps sans résistance : ce paramètre définit le temps après lequel la pompe à chaleur sera assistée par une source de chaleur supplémentaire (résistance) si elle n'atteint pas la température de consigne de l'eau dans le ballon. Le temps est calculé à partir du moment où la température du point bivalent est atteinte [Configuration -> Pompe à chaleur -> Point bivalent]. Si la température extérieure est supérieure à la température du point bivalent, la source de chaleur supplémentaire ne sera pas mise en marche.
- Protection contre le gel :
Oui - activation de la protection contre le gel du ballon en mode veille, Non - la fonction est inactive.
- ballon :
Oui - activation du circuit du ballon ECS, Non - ballon inactif.
- Pompe à chaleur :
- Point bivalent : la température extérieure limite jusqu'à laquelle la pompe à chaleur fonctionne de manière autonome. En dessous de ce point, la source de chaleur supplémentaire (résistance) est activée,
- Température d'arrêt : température extérieure limite à laquelle la pompe à chaleur s'arrête. Si le chauffage est nécessaire pour le chauffage central ou l'eau chaude sanitaire, la résistance sera la seule source de chaleur.
- Type [kW] : type d'unité extérieure installée.
• Température ambiante :
- Contrôle TR : contrôle de la température ambiante.
Oui - le chauffage s'arrête lorsque la température ambiante réglée, lue par la sonde de température ambiante, est atteinte Non - le contrôle de la température ambiante est désactivé. Le relevé de la température ambiante n'a aucune incidence sur le chauffage CC.
- Hystérésis TR : hystérésis de la température ambiante lorsque le contrôle de la pièce est activé
- Étalonnage TR : étalonnage de la valeur d'affichage de la température ambiante. Le paramètre est ajouté ou soustrait de la valeur mesurée, en fonction du signe.
- Circulation :
Oui - le système de contrôle de la pompe de circulation ECS est activé, Non - e système de contrôle de la pompe de circulation ECS est désactivé.
- Pompes :
- Protection des pompes : temps d'activation bref des pompes de circulation lors d'un arrêt prolongé (protection contre les blocages),
- Purge :
Arrêt - la purge est désactivée,
CC1 - activation de la purge du circuit CC1,
CC2 - activation de la purge du circuit CC2,
Pendant la procédure de purge (10 min), la pompe du module hydraulique alterne entre la vitesse maximale et minimale et les pompes des circuits correspondants sont mises en marche. Cela concentre les bulles d'air, ce qui facilite leur élimination du système.
- Communication :
- N° de machine : numéro
FÊTE/VACANCES/MANUEL:

text_image
9:37 Ven 04.02.2020 Fête/Vacances/HanuelChangement rapide de l'algorithme de l'eau chaude selon les besoins.
- Fête : réglage de la durée du mode (de 1 à 24 heures ou jusqu'à annulation).
- Vacances : définition de la durée du mode (de 1 à 60 jours ou jusqu'à annulation).
- Manuel : réglage de la température ambiante effectué par le système de contrôle - jusqu'à annulation.
* si l'un des modes ci-dessus est activé, il est possible de le désactiver après avoir entré dans "Fête / Vacances / Manuel".
* le symbole du mode activé est indiqué sur l'écran de fonction principal.
PROGRAMME JOURNALIER:

text_image
1 2 3 4 5 6 Prog.du chauf..cent. Noi 1 6:00 - 9:15 2 15:20 - 22:15 Fin1 - intervalle de temps coché
2 - numéro d'intervalles de temps (max. en 5)
3 - heure de début de la température sélectionnée
4 - heure de fin de la température sélectionnée
5 - sélection de la température (pour le chauffage central et le ballon)
6 - commande (active lors de l'édition de l'élément) :
☑ valider
effacer
+ ajouter
Pour le circuit du chauffage central et du ballon, l'heure de début (3) et l'heure de fin (4) du maintien de la température sélectionnée (5) dans la pièce (cc) ou de l'eau chaude (ballon) sont spécifiées dans le programme journalier. En dehors des intervalles de temps fixés, la pièce ou le ballon sera maintenu à une température économique. Pour le circuit de circulation, les heures de début et de fin de la pompe de circulation sont définies dans le programme.
Si vous souhaitez modifier le programme journalier, utilisez le bouton de navigation pour cocher la période à modifier et sélectionnez-la en appuyant sur le bouton. Le champ à modifier clignote, utilisez le bouton de navigation pour régler la nouvelle valeur (heure et minute séparément) et confirmez en appuyant sur le bouton, en passant en même temps à la modification du champ suivant, qui commence à clignoter, etc. Le dernier champ de l'élément de la période du programme modifiée est la commande. Pour confirmer les modifications, utilisez le bouton pour sélectionner Confirmer et appuyez sur le bouton pour terminer la modification.
Pour supprimer un élément de la période du programme, modifiez l'élément sélectionné, appuyez sur le bouton pour accéder au champ de commande, sélectionnez la commande Supprimer ☒ avec le bouton et confirmez en appuyant sur le bouton.

text_image
Pro9.du chauf .cent. No3 1 0:00 - 23:59 Pro3.du chauf .cent. No1 1 6:00 - 9:15 2 15:20 - 22:15 FinPour ajouter un nouvel intervalle du programme, sélectionnez un élément d'une période antérieure à celle prévue, appuyez sur le bouton pour atteindre le champ de commande, sélectionnez Ajouter avec le bouton, puis appuyez sur le bouton pour ajouter un nouvel intervalle que vous pouvez modifier en fonction de vos besoins (voir ci-dessus). L'enregistrement de l'ensemble du programme journalier dans la mémoire du régulateur s'effectue en quittant le programme journalier par la commande "Enregistrer et quitter".
Protection contre le gel
En mode veille et en mode été, si la température ambiante descend en dessous de 7°C, le chauffage du circuit de chauffage central sera activé. Un capteur TR est nécessaire pour activer la fonction.
Courbe de chauffe
Le régulateur de la pompe à chaleur a pour mission de maintenir la température du système de chauffage central en fonction de la température extérieure. Lorsque la température extérieure du bâtiment est basse, la demande de chaleur est plus élevée, alors que lorsqu'elle est élevée à l'extérieur, il n'est pas nécessaire de maintenir une température élevée dans le système. La relation entre la température extérieure et la température du système de chauffage central peut être représentée sous la forme d'un graphique, appelé la courbe de chauffe. La figure montre une famille de courbes de chauffe pour la consigne de température ambiante de 22°C. En fonction des caractéristiques du bâtiment, de la zone climatique et du type de système de chauffage, choisissez une courbe adaptée.

Si la courbe doit être décalée, modifiez le paramètre [décalage de la courbe]. La figure illustre la courbe n° 8 avec un décalage de -10°C et 10°C.

line
| x | n=8, p=10 | n=8, p=0 | n=8, p=-10 | | ------- | --------- | -------- | ---------- | | -20 | 35 | 25 | 20 | | 100 | 60 | 55 | 45 |Conseils pour le réglage de la "courbe de chauffe"
| Déroulement du chauffage Mesures concernant la "courbe de chauffe" | |
| Pendant les saisons froides, il fait trop froid à l'intérieur. | Réglez la "pente" sur la valeur supérieure suivante. |
| Pendant les saisons froides, il fait trop chaud à l'intérieur. | Réglez la "pente" sur la valeur inférieure suivante. |
| Pendant les saisons de transition et les saisons froides, il fait trop froid à l'intérieur. | Réglez la "pente" sur une valeur supérieure. |
| Pendant les saisons de transition et les saisons froides, il fait trop chaud à l'intérieur. | Réglez la "pente" sur une valeur inférieure. |
| Pendant les saisons de transition, il fait trop froid à l'intérieur, mais il fait suffisamment chaud pendant les saisons froides. | Réglez la "pente" sur la valeur inférieure suivante et le "niveau" sur une valeur supérieure. |
| Pendant les saisons de transition, il fait trop chaud à l'intérieur mais il fait suffisamment chaud pendant les saisons froides. | Réglez la "pente" sur la valeur supérieure suivante et le "niveau" sur une valeur inférieure. |
La température de la pièce est trop basse
| Cause Dépannage | |
| La pompe à chaleur est arrêtée. | Allumer l'interrupteur d'alimentation.Allumer l'interrupteur principal (si installé, à l'extérieur de la chaufferie).Allumer le fusible dans le tableau électrique (fusible de la maison). |
| Les réglages du régulateur de la pompe à chaleur ont été modifiés ou sont incorrects. | Le chauffage/refroidissement des pièces doit être activé. Vérifier et, si nécessaire, ajuster les réglages suivants:Programme de travailCourbe de chauffeTempérature de la pièceHeureProgramme horaire de chauffage/refroidissement des pièces.Mettre en marche le chauffage électrique d'appoint pour le chauffage des pièces si nécessaire : |
| Chauffage de l'eau dans l'échangeur ECS en cours | Attendez jusqu'à ce que l'eau de l'échangeur ECS se réchauffe.Si nécessaire, réduisez l'apport d'eau chaude ou rétablissez temporairement la température normale de l'eau chaude. |
| L'écran affiche "Avertissement" ou "Défaut". | Lire le type de message. Acquitter le message.Si nécessaire, contacter un centre de service agréé |
La température des pièces est trop élevée.
| Cause Dépannage | |
| Les réglages du régulateur de la pompe à chaleur ont été modifiés ou sont incorrects. | Le chauffage/refroidissement des pièces doit être activé. Vérifier et, si nécessaire, ajuster les réglages suivants:■ Programme de travail■ Température de la pièce■ Courbe de chauffe/Température de refroidissement.■ Heure■ Programme horaire de chauffage/refroidissement des pièces.■ Activez le "mode de refroidissement actif" si nécessaire. |
| L'écran affiche"Avertissement" ou "Défaut". | ■ Lire le type de message. Acquitter le message.■ Si nécessaire, contacter un centre de service agréé. |
Absence d'eau chaude sanitaire
| Cause Dépannage | |
| La pompe à chaleur est arrêtée. | Allumer l'interrupteur d'alimentation principal.Allumer l'interrupteur principal (si installé, à l'extérieur de la chaufferie).Allumer le fusible dans le tableau électrique (fusible de la maison). |
| Les réglages du régulateur de la pompe à chaleur ont été modifiés ou sont incorrects. | Le chauffage de l'eau chaude sanitaire doit être activé. Vérifier et, si nécessaire, ajuster les réglages suivants:Programme de travailTempérature de l'eau chaude sanitaireProgramme de temps pour le chauffage de l'eau sanitaire.HeureFaites fonctionner le chauffage électrique d'appoint, si nécessaire, pour chauffer l'eau chaude sanitaire. |
| L'écran affiche"Avertissement" ou "Défaut". | Lire le type de message.Si nécessaire, contacter un centre de service agréé. |
Température de l'eau chaude sanitaire trop élevée
| Cause Dépannage | |
| Les réglages du régulateur de la pompe à chaleur ont été modifiés ou sont incorrects. | Vérifiez les températures de consigne de l'eau chaude et corrigez-les si nécessaire. |
Err „Avertissement“.
| Cause Dépannage | |
| Avertissement concernant un événement spécial, l'état de fonctionnement de la pompe à chaleur ou du système de chauffage | Si nécessaire, contacter un centre de service agréé. |
„Défaut.“
| Cause Dépannage | |
| Défaut de la pompe à chaleur, du système de chauffage | Si nécessaire, contacter un centre de service agréé. |
Nettoyage
Attention
Les nettoyants disponibles dans le commerce et les nettoyants spéciaux pour les échangeurs de chaleur (évaporateurs) peuvent endommager la pompe à chaleur.
■ Nettoyez les surfaces de la machine uniquement avec un chiffon humide.
■ Si nécessaire, nettoyez les lamelles de l'échangeur de chaleur (évaporateur) avec un balai à poils longs.
Module de commande du régulateur de la pompe à chaleur
La surface de l'unité de commande peut être nettoyée avec un chiffon en microfibre.
Inspection technique et maintenance du système de chauffage
Une maintenance régulière garantit un fonctionnement sans problème, économe en énergie et respectueux de l'environnement en mode chauffage/refroidissement.
À cette fin, il est préférable de conclure un contrat avec une entreprise spécialisée pour l'inspection et la maintenance.
Câbles de connexion endommagés
Si les câbles de connexion de la machine ou des accessoires externes sont endommagés, ils doivent être remplacés par des câbles de connexion spécifiques. N'utilisez que les câbles recommandés par le fabricant. Faites appel à une entreprise spécialisée.
Réfrigérant
La machine contient des gaz à effet de serre fluorés (réfrigérant) figurant sur la liste du protocole de Kyoto. Le type de réfrigérant avec lequel la machine fonctionne est indiqué sur la plaque signalétique.
Potentiel de gaz à effet de serre GWP Global Warming Potential) du réfrigérant est donné comme un multiple du GWP du dioxyde de carbone (CO₂). Le GWP du dioxyde de carbone CO₂ est de 1.
| Réfrigérant Potentiel de réchauffement global GWP | |
| R32 675 | ^*1/677^*2 |
*1 Selon le quatrième rapport d'évaluation adopté par le Groupe d'experts intergouvernemental sur l'évolution du climat (GIEC)
*2 Selon le cinquième rapport d'évaluation adopté par le Groupe d'experts intergouvernemental sur l'évolution du climat (GIEC)
Liste de contrôle de l'entretien
Pour les systèmes avec des réfrigérants inflammables
- Toute personne effectuant des travaux sur le système de refroidissement est tenue de fournir une preuve de qualification délivrée par un organisme accrédité autorisé à la certification dans le secteur. La confirmation de la qualification est un certificat de compétence dans le cadre de la manipulation sûre des réfrigérants de manière applicable dans l'industrie.
- Les travaux de maintenance doivent toujours être effectués conformément aux exigences du fabricant. Si l'aide d'autres personnes est requise pendant les travaux de maintenance et de réparation, une personne formée en termes de manipulation en toute sécurité des réfrigérants inflammables est nécessaire pour superviser le travail effectué à tout moment.
- Afin de minimiser le risque d'incendie, il est nécessaire d'effectuer des contrôles de sécurité avant de travailler sur les équipements qui utilisent des réfrigérants inflammables. Avant de travailler sur le circuit de refroidissement, prenez les mesures suivantes :
| Opération Exécuté Consigne | |||
| 1 | Générales - lieu de travail■ Informez les personnes mentionnées ci-dessous des travaux à effectuer :- Ensemble du personnel de maintenance- Toutes les personnes qui se trouvent à proximité du système■ Isolez l'environnement de la pompe à chaleur.■ Vérifiez qu'il n'y a pas de matériaux inflammables ou de sources d'inflammation autour de la pompe à chaleur.Retirez tous les matériaux inflammables et les sources d'inflammation. | ||
| 2 | Contrôle de la présence de réfrigérant■ Pour identifier à temps une atmosphère inflammable : Avant, pendant et après les travaux, vérifiez l'absence de fuites de réfrigérant dans les environs à l'aide d'un détecteur protégé contre l'inflammation et conçu pour le R32. Le détecteur de réfrigérant ne doit pas provoquer d'étincelles et doit être correctement scellé. | ||
| 3 | ExtincteurUn extincteur à CO_2 ou à poudre doit être disponible dans les cas décrits ci-dessous :■ Remplissage du système avec du réfrigérant.■ Réalisation des travaux de soudure ou de brasage. | ||
| 4 | Sources d'inflammation■ Lors de toute intervention sur le circuit de refroidissement contenant ou ayant contenu du réfrigérant, les sources d'inflammation susceptibles d'enflammer le réfrigérant ne doivent pas être utilisées. Toutes les sources d'inflammation possibles, y compris les cigarettes, doivent être éloignées de la zone où doivent être effectués les travaux d'installation, de réparation, de démontage ou d'élimination qui risquent de provoquer une fuite de réfrigérant.■ Avant le démarrage des travaux, assurez-vous qu'il n'y a pas de matériaux inflammables ou de sources d'inflammation autour de la pompe à chaleur. Retirez tous les matériaux inflammables et les sources d'inflammation.■ Affichage de panneaux d'interdiction de fumer. | ||
| 5 | Ventilation du lieu de travail■ Effectuez les réparations à l'air libre ou ventilez bien la zone de travail avant de travailler sur le système de refroidissement ou d'effectuer des travaux de soudure ou de brasage.■ La ventilation doit être activée à tout moment. La ventilation a pour but de diluer le réfrigérant en cas de fuite et de l'évacuer à l'extérieur si possible. | ||
| 6 | Contrôle du système de refroidissement■ Les composants électriques énumérés doivent être adaptés à l'application et conformes aux spécifications données par le fabricant. Remplacez les composants défectueux uniquement par des pièces de rechange originales.■ Les composants doivent être remplacés selon les recommandations de Kospel. Si nécessaire, contactez le service technique de Kospel.Effectuez les contrôles suivants:■ Vérifier le fonctionnement de la ventilation. Les trous de ventilation ne peuvent pas être bouchés ou couverts.■ Si un système à découplage hydraulique est utilisé, vérifiez la présence de réfrigérant dans le circuit secondaire.■ Les inscriptions et les symboles doivent être clairement visibles et lisibles. Remplacez les inscriptions ou les symboles illisibles.■ Les conduites de réfrigérant ou les composants doivent être montés de manière à ne pas entrer en contact avec des substances corrosives.Exception : les conduites de réfrigérant sont faites en matériau résistant à la corrosion ou protégées de manière fiable contre la corrosion. | ||
| 7 | Contrôle des composants électriques■ Lors des travaux de maintenance et de réparation des pièces électriques, des contrôles de sécurité doivent être effectués : voir ci-dessous.■ En cas de défaut critique pour la sécurité, ne raccordez pas le système tant que le défaut n'a pas été éliminé. S'il n'est pas possible de remédier immédiatement au défaut, il faut trouver une solution provisoire appropriée pour permettre au système de fonctionner si possible. Prévenez l'utilisateur du système.Effectuez les contrôles de sécurité suivants :■ Décharge des condensateurs : veillez à ce qu'aucune étincelle ne soit produite pendant le processus de décharge.■ Lors du remplissage ou de la vidange du réfrigérant, ainsi que lors du rinçage du circuit de refroidissement, ne placez pas de pièces électriques ou de fils sous tension à proximité de l'appareil.■ Vérifiez la connexion de la mise à la terre. | ||
| 8 | Réparations de boîtiers étanches■ Lorsque vous travaillez sur des composants étanches, la machine doit être mise hors tension avant de retirer le couvercle étanche.■ Pour avertir d'une situation potentiellement dangereuse, un détecteur de réfrigérant fonctionnant en permanence doit être placé aux endroits critiques.■ Il faut faire particulièrement attention à ne pas modifier le boîtier de manière à affaiblir son effet protecteur lors de travaux sur des pièces électriques. Il s'agit notamment de l'endommagement des câbles, de la création d'un trop grand nombre de connecteurs sur une borne de connexion, de la création de connecteurs qui ne répondent pas aux exigences du fabricant, de l'endommagement des joints et de l'installation incorrecte des passe-câbles.■ Assurez-vous que la machine est correctement installée.■ Assurez-vous que les joints sont bien en place. Il faut donc vérifier que les joints protègent de manière fiable contre la pénétration d'une atmosphère inflammable. Remplacez les câbles défectueux.! AttentionLe silicone utilisé comme agent d'étanchéité peut affecter les performances des dispositifs de détection des fuites. N'utilisez pas de silicone comme agent d'étanchéité.■ Les pièces de rechange doivent être conformes aux directives du fabricant.■ Travaux sur des composants adaptés aux atmosphères inflammables : ces composants n'ont pas besoin d'être mis hors tension. | ||
| 9 | Réparations de pièces qui fonctionnent dans une atmosphère inflammable:■ À moins qu'il ne soit établi que les valeurs de tension et de courant admissibles ne seront pas dépassées, les charges capacitives ou inductives ne doivent pas être connectées à la machine.■ Seuls les composants qui répondent aux exigences de fonctionnement dans une atmosphère inflammable peuvent être mis sous tension à une atmosphère inflammable.■ N'utilisez que des pièces de rechange originales ou des pièces approuvées par la société Kospel. En cas de fuite, toutes les autres pièces peuvent enflammer le réfrigérant. | ||
| 10 | Câbles■ Vérifiez que le câblage n'est pas soumis à l'usure, à la corrosion, à l'étirement, aux vibrations ou à des conditions environnementales défavorables et qu'il ne se trouve pas à proximité d'arêtes vives.■ Lors de l'inspection, tenez également compte des effets du vieillissement et de l'impact des vibrations continues sur les compresseurs et les ventilateurs. | ||
| 11 | Détecteurs de réfrigérant■ N'utilisez en aucun cas des sources d'inflammation pour détecter le réfrigérant et ses fuites.■ N'utilisez pas de détecteurs qui utilisent une flamme pour détecter les fuites. | ||
| 12 | Détection de fuitesLes méthodes décrites ci-dessous conviennent à la détection de fuites dans les systèmes remplis de réfrigérant inflammable :Détection des fuites à l'aide de détecteurs électroniques de réfrigérant :■ Les détecteurs de fuites électroniques peuvent ne pas être suffisamment sensibles ou doivent être étalonnés pour une plage de détection spécifique. Étalonnez le détecteur dans un environnement sans réfrigérant.■ Le détecteur de réfrigérant doit être adapté à la détection du R32.■ Le détecteur de réfrigérant ne doit pas contenir de sources d'inflammation potentielles.■ Étalonnez le détecteur de réfrigérant pour le réfrigérant utilisé. Fixez un seuil de déclenchement < 3 g/a, ce qui convient au R32. Détection de fuites avec des fluides de détection de fuites :■ Les fluides de détection des fuites conviennent à la plupart des réfrigérants.! AttentionLes fluides de détection des fuites contenant du chlore peuvent réagir avec le réfrigérant.En conséquence, de la rouille peut se former.N'utilisez pas de liquides de détection de fuites qui contiennent du chlore.Procédure en cas de fuites dans le circuit de refroidissement :■ Éteignez immédiatement tout feu à proximité de la pompe à chaleur.■ Ne soudez pas de fuites sur le circuit de refroidissement. | ||
| 13 | Extraction et évacuation du réfrigérantEffectuez les étapes décrites dans la section "Extraction du réfrigérant".Effectuez les étapes décrites dans la section "Génération de vide dans les conduites de réfrigérant et l'unité intérieure". | ||
| 14 | Remplissage de réfrigérantSuivez les étapes décrites dans la section "Remplissage des conduites de réfrigérant et de l'unité intérieure". | ||
| 15 | Mise hors serviceSuivez les étapes décrites dans la section "Mise hors service et élimination". | ||
| 16 | Désignation (inscriptions sur la pompe à chaleur)Une plaque portant la date et la signature ainsi que les informations suivantes doit être apposée à un endroit bien visible sur la pompe à chaleur qui a été mise hors service :■ Réfrigérant aux propriétés inflammables.■ Le système ne fonctionne pas.■ Le réfrigérant a été retiré. | ||
| 17 | Récupération de réfrigérant et d'huile de compresseur■ Récupération de réfrigérant : voir la section "Récupération de réfrigérant".■ Récupération d'huile de compresseur : voir la section "Élimination du compresseur et de l'huile de compresseur". | ||

[1] - Réservoir à vessie
[2] - Connexion électrique
[3] - Régulateur
[4] - Purgeur d'air
[5] - Pompe de circulation
[6] - Vanne de sécurité
[7] - Panneau de commande
[8] - Purgeur d'air automatique
[9] - Unité de chauffage
[10] - Vanne à trois voies
Attention!
Le fait de toucher des composants conducteurs peut entraîner des blessures dangereuses par électrocution. Certains composants des cartes d'installation sont sous tension même lorsque la tension d'alimentation est coupée.
■ Lorsque vous travaillez sur le module externe, mettez le système hors tension, par exemple avec un fusible séparé ou l'interrupteur principal. Assurez-vous que la tension a été déconnectée et qu'elle est protégée contre toute activation.
■ Attendez au moins 4 minutes pour que la tension des condensateurs chargés baisse avant de commencer à travailler.
Module externe avec 1 ventilateur : HPMO2-8, HPMO2-12

[1] - presse-étoupes
[2] - self de ligne
[3] - économiseur (échangeur de chaleur à plaques)
[4] - capteur de débit
[5] - raccord de sortie
[6] - raccord d'entrée
[7] - réservoir de liquide
[8] - couvercle du boîtier arrière
[9] - valve d'inversion
[10] - filtre
[11] - filtre
[12] - vanne de retour
[13] - vanne de service
[14] - vanne de service
[15] - pressostat haute pression
[16] - pressostat basse pression
[17] - vanne d'expansion électronique
[18] - vanne d'expansion électronique
[19] - poignée
[20] - couvercle du boîtier droit
[21] - support de boîtier
[22] - condenseur (échangeur de chaleur à plaques)
[23] - support du condenseur
[24] - compresseur
[25] - vibro-isolateur
[26] - plaque de montage du compresseur
[27] - base du boîtier
[28] - capot du compresseur 1
[29] - capot du compresseur 3
[30] - capot du compresseur 2
[31] - plaque de montage avec buse
[32] - capot de ventilateur
[33] - panneau frontal
[34] - moteur du ventilateur
[35] - rotor du ventilateur
[37] - support de ventilateur
[38] - capot latéral évaporateur
[39] - capot d'angle évaporateur
[40] - capot arrière évaporateur
[41] - échangeur à ailettes
[42] - cadre de montage supérieur
[43] - couvercle supérieur
[44] - système électronique
[45] - couvercle du système électronique

[1] - couvercle du boîtier droit
[2] - support du condenseur
[3] - poignée
[4] - support de boîtier
[5] - condenseur (échangeur de chaleur à plaques)
[6] - économiseur (échangeur de chaleur à plaques)
[7] - support de l'économiseur
[8] - capot du compresseur
[9] - compresseur
[10] - capot du compresseur
[11] - capot du compresseur
[12] - support de vannes
[13] - vanne de retour
[14] - vanne de service
[15] - vanne d'expansion électronique
[16] - vanne d'expansion électronique
[17] - vanne de service
[18] - pressostat haute pression
[19] - pressostat basse pression
[20] - filtre
[21] - filtre
[22] - valve d'inversion
[23] - cloison centrale
[24] - base du boîtier
[25] - panneau frontal
[26] - capot de ventilateur
[27] - plaque de montage avec buse
[28] - rotor du ventilateur
[29] - moteur du ventilateur
[30] - support de ventilateurs
[31] - cadre de montage supérieur
[32] - couvercle supérieur
[33] - échangeur à ailettes
[34] - système électronique
[35] - couvercle du système électronique
[36] - self de ligne
[37] - raccord d'entrée
[38] - capteur de débit
[39] - raccord de sortie
[40] - couvercle du boîtier arrière
[41] - presse-étoupes
Connexion au module interne
Les sondes de température sont connectés à la carte d'installation basse tension.
| Sonde de température Élément de mesure | |
| ■ Sonde de température extérieure WE-027■ Sonde de température du ballon tampon WE-019/01■ Sonde de température de l'eau dans le ballon d'eau chaude sanitaire, partie supérieure WE-019/01■ Sonde de température de l'eau dans l'alimentation du système WE-019/05■ Sonde de température de la pièce WE-033 | NTC 10 kΩ |
Contrôle des fusibles
■ Le fusible FI est situé sur la carte principale de l'unité interne.
Type de fusible :
- T 2,0 A H, 250 V\~
-
Perte de puissance maximale < 2,5 W
-
Coupez la tension d'alimentation.
- Ouvrez l'espace de connexion.
- Véri ez le fusible, remplacez-le si nécessaire.
Attention!
Des fusibles incorrects ou mal installés peuvent entraîner un risque accru d'incendie.
■ Installez les fusibles sans forcer. Disposez les fusibles correctement.
■ N'utilisez que des fusibles du même type et ayant les mêmes caractéristiques.

text_image
F1 FUSE 5X20Attention!
Le retrait des fusibles ne met pas hors tension le circuit de charge. Le fait de toucher des composants conducteurs peut entraîner des blessures dangereuses par électrocution. Lorsque vous travaillez sur la machine, il est également nécessaire de déconnecter le circuit de charge.
Les produits peuvent être recyclés.
Les composants et les consommables ne doivent pas être jetés dans les déchets municipaux.
Pour mettre le système hors service, débranchez l'alimentation électrique et laissez refroidir les composants.
Tous les composants doivent être éliminés de manière experte.
Les consommables (par exemple, les agents de chauffage) peuvent être éliminés avec les déchets municipaux.
Extraction de réfrigérant
La pompe à chaleur ne peut être mise hors service que par un professionnel qui connaît les équipements d'élimination des réfrigérants. Nous recommandons la récupération du réfrigérant. À cette fin, des échantillons d'huile et de réfrigérant doivent être prélevés avant l'arrêt de la pompe à chaleur.
Avant de commencer les travaux, vérifiez le système conformément à la "liste de contrôle de l'entretien".
Considérez les questions suivantes :
■ Seul un équipement adapté à l'extraction du R32 peut être utilisé.
Vérifiez l'état de l'équipement d'extraction, incluez également la confirmation de la maintenance.
Tous les composants électriques de l'équipement d'extraction doivent être adaptés à une utilisation dans une atmosphère inflammable.
N'utilisez que des cylindres adaptés au stockage du réfrigérant R32, c'est-à-dire des cylindres spéciaux recyclables. Les cylindres susmentionnés doivent être marqués en conséquence.
Les cylindres de réfrigérant doivent être équipés d'une soupape de sécurité et de vannes d'arrêt fixes.
■ Assurez-vous que le nombre correct de cylindres est disponible.
■ Refroidissez les cylindres de réfrigérant vidés.
■ Ne mélangez pas différents réfrigérants dans le même cylindre.
■ Préparez des moyens appropriés pour le transport des cylindres de réfrigérant (si nécessaire).
■ Vérifiez la disponibilité des équipements de protection individuelle et comment les utiliser correctement.
■ Assurez-vous que les installations d'élimination et les cylindres de réfrigérant répondent aux exigences applicables.
■ Préparez une balance étalonnée pour déterminer la quantité de réfrigérant extraite.
-
Vérifiez l'état de la pompe à chaleur. Vérifiez que les délais de maintenance ont été respectés.
-
Mettez l'installation hors tension.
-
Assurez-vous que les exigences de sécurité pour les interventions sur le circuit de refroidissement sont respectées.
-
Placez le cylindre de réfrigérant sur la balance.
-
Raccordez le cylindre de réfrigérant au dispositif d'extraction. Raccordez l'unité d'extraction au circuit de refroidissement à l'aide d'un tuyau de collecte.
-
Videz le réfrigérant de toutes les parties du circuit de refroidissement.
Consigne
■ Le processus d'extraction doit être supervisé à tout moment par un membre du personnel qualifié.
■ Ne pas remplir excessivement le cylindre de réfrigérant, max. 80 % de volume autorisé.
■ Ne pas dépasser la pression de service admissible du cylindre.
-
Fermez les vannes d'arrêt une fois que tout le réfrigérant a été extrait.
-
Arrêtez l'unité d'extraction.
-
Débranchez le cylindre du circuit de refroidissement. Envoyez le cylindre de réfrigérant à une installation d'élimination.
-
Nettoyez et vérifiez le réfrigérant récupéré. Ne mélangez pas le réfrigérant avec d'autres réfrigérants.
-
Placez une étiquette portant la date et la signature ainsi que les informations suivantes sur la pompe à chaleur, à un endroit bien visible :
■ Réfrigérant aux propriétés inflammables.
■ Le système ne fonctionne pas.
■ Le réfrigérant a été retiré.
Élimination du compresseur et de l'huile de compresseur
-
Avant de vidanger l'huile, dépressurisez le compresseur jusqu'à un vide approprié afin qu'il n'y ait pas de réfrigérant inflammable dans le compresseur.
-
Vidangez soigneusement l'huile du compresseur. Cette opération peut être accélérée par le chauffage électrique d'appoint si nécessaire.
-
Éliminez l'huile dans un endroit approprié.
-
Renvoyez le compresseur au fabricant.
| UNITÉ EXTERNE HPM02-8 HPM02-12 HPM02-16/23 | ||||
| Puissance de chauffage A+2/W35 kW kW 7,1 11,3 20,5 | ||||
| Puissance absorbée A+2/W35 kW kW 1,78 2,87 5,11 | ||||
| Facteur de performance A+2/W35 - 4,01 3,94 4,02 | ||||
| Puissance de chauffage A+7/W35 kW 2,3 - 8,2 3,8 - 12,5 7,0 - 23,0 | ||||
| Puissance absorbée A+7/W35 kW 0,5 - 1,84 0,8 - 2,95 1,47 - 5,9 | ||||
| Facteur de performance A+7/W35 | - | 4,6 - 4,46 | 4,75 - 4,24 | 4,76 - 3,89 |
| Puissance de chauffage A-7/W35 | kW 5,8 | 9,2 | 17,1 | |
| Puissance absorbée A-7/W35 | kW 1,6 | 6 2,73 4,93 | ||
| Facteur de performance A-7/W35 - 3,49 3,37 3,47 | ||||
| Performance de refroidissement A35/W7 | kW | 1.56 - 6.0 | 2,2 - 10,0 | 5,3 - 15,0 |
| Puissance absorbée A35/W7 | kW | 0.63 - 2.36 | 1,1 - 3,8 | 2,03 - 6,59 |
| Facteur de performance EER A35/W7 | - | 2.48 - 2.54 | 2,0 - 2,63 | 2,61 - 2,28 |
Installation électrique
| Alimentation électrique | 230V 1N AC, 50Hz | 230V 1N AC, 50Hz | 400V 3N AC, 50Hz | |
| Degré de protection | IP X4 | IP X4 | IP X4 | |
| Consommation d'énergie maximale | kW 2,9 | 4,95 8,3 | ||
| Courant de service maximal | A | 13 | 21,5 | 15 |
| Section des câbles d'alimentation* | mm^2 | 3x2,5 | 3x2,5 | 5x2,5 |
| *Câble d'alimentation recommandé pour l'unité externe | H07BQ-F 3x2.5 mm^2 450/750V pour applications extérieures | H07BQ-F 3x2.5 mm^2 450/750V pour applications extérieures | H07BQ-F 5x2.5 mm^2 450/750V pour applications extérieures |
Diamètre extérieur maximal du câble D 18mm
| Système de chauffage | ||||
| Connecteur hydraulique | G1 (filetage femelle) | G1 (filetage femelle) | G1 (filetage femelle) | |
| Débit nominal | m^3/h | 1,0 | 1,7 | 2,9 |
| Débit minimal | m^3/h | 0,6 | 0,7 0,85 | |
| Perte de pression interne | kPa | 10 | 20 | 45 |
| Température maximale du fluide de chauffage | °C | 65 | 65 | 65 |
Air et bruit
| Puissance maximale du ventilateur DC W 85 | 170 2x75 | |||
| Débit d'air maximal | m^3/h | 3000 | 4500 | 2x2500 |
| Température minimale/maximale de l'air | °C | -25/43 | -25/43 | -25/43 |
| Niveau de pression acoustique maximal à 1 m de distance | dB(A) | 52 | 55 | 56 |
| Niveau de puissance acoustique maximal | dB(A) | 60 | 63 | 64 |
| Réfrigérant | ||||
| Type de réfrigérant | R32 | R32 | R32 | |
| Compresseur | Rotatif avec double piston | Rotatif avec double piston | Rotatif avec double piston |
Pression maximale de fonctionnement du réfrigérant
| Côté haute pression MPa 4,4 4,4 4,4 | ||||
| Côté basse pression MPa 2,1 2,1 2,1 | ||||
| Quantité de réfrigérant kg 1,1 1,8 2,0 | ||||
| GWP du réfrigérant AR4 (selon le quatrième rapport d'évaluation du GIEC) | tCO2/kg | 0,675 0,675 0,675 | ||
| Équivalent CO2 | tCO2 | 0,743 1,215 1,350 | ||
| Dimensions (hauteur x largeur x épaisseur) mm | 795 x 116 | 5 x 450 928 x 1280 x 500 | 1329 x 1240 x 540 | |
| Poids kg 90 132 | 160 | |||
| UNITÉ INTERNE | HPMI2-8 | HPMI2-12 | HPMI2-16 |
Installation électrique
| Alimentation électrique | 230V~ /400V 3N AC, 50Hz | 230V~ /400V 3N AC, 50Hz | 400V 3N AC, 50Hz | |
| Degré de protection | IP 22 | IP 22 | IP 22 | |
| Puissance maximale de l'appareil de chauffage électrique | kW | 6(2x3) | 6(2x3) | 9(3x3) |
Section transversale du câble d'alimentation
| pour le système 1F | mm^2 | min 3x6; max 3x10 | min 3x6; max 3x10 | - |
| pour le système 3F | mm^2 | min 5x2,5; max 5x10 | min 5x2,5; max 5x10 | min 5x2,5; max 5x10 |
Courant nominal du disjoncteur de surintensité
| pour le système 1F | A | 40 | 50 | - |
| pour le système 3F | A | 16 | 25 | 32 |
| Câble de communication de la pompe à chaleur | mm^2 | min.2x0,34; max 2x1,5 | min.2x0,34; max 2x1,5 | min.2x0,34; max 2x1,5 |
| Système de chauffage | ||||
| Connecteur hydraulique | G1 14 (filetage mâle) | G1 14 (filetage mâle) | G1 14 (filetage mâle) | |
| Pression de service maximale/minimale | bar | 3/0,5 | 3/0,5 | 3/0,5 |
Température maximale du fluide de chauffage
| fonctionnement avec la pompe à chaleur | °C | 60 | 60 | 60 |
| désinfection de l'ECS | °C | 70 | 70 | 70 |
| Vase d'expansion | l | 12 | 12 | 12 |
| Pression initiale dans le vase d'expansion | bar | 1 | 1 | 1 |
| Débit nominal | m3/h | 1,0 1,7 2,9 | ||
| Débit minimal | m3/h | 0,6 0,7 | 0,85 | |
| Perte de pression interne | kPa | 2 | 5 | 15 |
| Dimensions (hauteur x largeur x épaisseur) | mm | 709 x 416 x 319 | 709 x 416 x 319 | 709 x 416 x 319 |
| Poids kg 29 29 | 29 | |||
| Diamètre intérieur recommandé des conduites du système hydraulique | mm | DN25 | DN32 | DN40 |
Exigences relatives à la taille d'un local technique avec le module interne
| Volume minimal de la pièce | m^3 | 3,7 6,0 6,7 | ||
| Surface minimale de la pièce (bord inférieur du module au niveau de l'angle min. 1,2m) | m^2 | - | - | 8,5 |
| A N | Nom ou marque du fournisseur KOSPEL.Sp z o.o. | ||||
| B | Identifiant du modèle du fournisseur | HPMO2-8 | HPMO2-12 | HPMO2-16/23 | |
| C | Classe d'efficacité énergétique saisonnière du chauffage des pièces pour le modèle, dans des conditions de climat tempéré (*) | A++ A++ A++ | |||
| D | Puissance thermique nominale, y compris la puissance thermique nominale de tout réchauffeur d'appoint dans des conditions de climat tempéré | kW 5 | 9 14 | ||
| E | Efficacité énergétique saisonnière du chauffage des pièces dans des conditions de climat tempéré | % 13 | 5 128 135 | ||
| F | Consommation annuelle d'énergie dans des conditions de climat tempéré kWh 3224 | 5456 86 | 3 | ||
| G | Niveau de puissance acoustique L WA, dans la pièce | dB(A) | 35 | 35 | 35 |
| H | Précautions particulières à prendre lors de l'installation, du montage ou de l'entretien du réchauffeur de pièce | Avant l'installation ou l'entretien, lisez le manuel d'utilisation et suivez les instructions qu'il contient. | |||
| I | Non applicable | ||||
| J | Puissance thermique nominale, y compris la puissance thermique nominale de tout réchauffeur d'appoint dans des conditions de climat froid | kW 4 | 8 13 | ||
| Puissance thermique nominale, y compris la puissance thermique nominale de tout réchauffeur d'appoint dans des conditions de climat froid | kW 7 | 11 | 16 | ||
| K | Efficacité énergétique saisonnière du chauffage des pièces dans des conditions de climat froid | % 12 | 2 127 126 | ||
| Efficacité énergétique saisonnière du chauffage des pièces dans des conditions de climat chaud | % 17 | 2 165 173 | |||
| L | Consommation annuelle d'énergie dans des conditions de climat froid | kWh 3 | 191 6072 9962 | ||
| Consommation annuelle d'énergie dans des conditions de climat chaud | kWh 2 | 163 3565 4937 | |||
| M | Niveau de puissance acoustique LWA, à l'extérieur | dB(A) | 60 | 63 | 64 |
(*) application à température moyenne
Classe de performance énergétique du régulateur de température
Les données fournies correspondent aux exigences du règlement européen 811/2013.
| Critère | Classe de performance énergétique du régulateur de température | Contribution à la performance énergétique du chauffage des pièces |
| • Thermostat d'ambiance pour la mise en marche/arrêt du générateur de chaleur | 1 1 % | |
| • Régulateur météo• Générateur de chaleur modulé | 2 2 % | |
| • Régulateur météo• Générateur de chaleur non modulé | 3 1.5 % | |
| • Thermostat d'ambiance avec caractéristiques TPI (Time-Proportional-Integral)• Générateur de chaleur non modulé | 4 2 % | |
| • Thermostat d'ambiance modulé• Générateur de chaleur modulé | 5 3 % | |
| • Commande météo du régulateur• Générateur de chaleur modulé• Sonde de température ambiante en combinaison avec la régulation de la température ambiante | 6 4 % | |
| • Commande météo du régulateur• Générateur de chaleur non modulé• Sonde de température ambiante en combinaison avec la régulation de la température ambiante | 7 3.5 % | |
| • Régulateur de température pour une seule pièce avec au moins 3 sondes de température• Générateur de chaleur modulé | 8 5 % |
Carte de mise en service de la pompe à chaleur HPM2.Z KOSPEL Sp. z o.o.
| Date de mise en service | |||
| Adresse de l'installation | |||
| Dane instalatora | Cachet | Certificat n° | |
| Données de l'équipement | N° de l'unité externe N | ° de l'unité interne No du module C.MI2 | |
| Données des dispositifs auxiliaires | Type d'échangeur de chaleur à plaques Type d'échangeur ECS. Type de tampon de chauffage central. | ||
| Système de chauffage* Chauffage au sol Radiateurs Système mixte | |||
| Système de chauffage rempli* Eau potable | Eau traitée + inhibiteur de corrosion | Solution de propylène glycol | |
Contrôles extérieurs\*
Unité externe :
| Installée sans restriction d'air OUI NON | ||
| Sur un support OUI NON | ||
| Isolateurs de vibrations installés OUI NON | ||
| Drainage des condensats (drainage au niveau inférieur au point de congélation) effectué | OUI NON | |
| Évacuation des condensats vers la gouttière - tuyau collecteur, isolé, de préférence avec un câble chauffant | OUI NON | |
| Connexion hydraulique réalisée avec un tuyau flexible OUI NON | ||
| Câbles d'alimentation et de communication connectés OUI NON | ||
| Sonde de température extérieure placée sur le mur (selon les instructions) | OUI NON |
Contrôles intérieurs*
| Sonde de température intérieur situé dans une pièce représentative | OUI | NON |
| Module Internet C.MI2 connecté et configuré (selon les instructions) | OUI NON | |
| Un filtre de purge est installé à l'entrée de la pompe | OUI NON | |
| Vannes de décharge et de dérivation installées, tuyaux en pente douce (pour laisser sortir l'eau de l'unité externe si nécessaire) | OUI NON | |
| Pont à l'entrée FN1 installé - désactivation du verrouillage du fonctionnement de l'unité | OUI NON | |
| Entrez les valeurs de pression et de débit du circuit de chauffage après la mise en service | Pression (bar) Débit (l/min) |
* Rayer la mention inutile

Cet équipement est marqué du symbole de collecte séparée dont le modèle est défini dans la norme européenne EN 50419. Le marquage signifie également que l'équipement a été mis sur le marché après le 13 août 2005.

Le ménage joue un rôle important en contribuant à la réutilisation et à la récupération, y compris le recyclage des déchets d'équipements électriques et électroniques. Une manipulation appropriée des équipements usagés a un effet positif sur la protection de l'environnement naturel et permet la récupération des matières premières secondaires.
Tous les matériaux utilisés dans l'emballage de nos appareils sont recyclables, ce qui signifie qu'ils peuvent à nouveau être recyclés.
Le produit usagé ne doit pas être traité comme un déchet municipal. La machine démontée doit être apportée à un point de collecte des équipements électriques et électroniques pour être recyclée. L'élimination correcte du produit usagé permet d'éviter les impacts environnementaux négatifs qui pourraient se produire en cas de mauvaise gestion des déchets. Pour des informations plus détaillées sur la manière de recycler ce produit, veuillez contacter votre municipalité, le service de gestion des déchets ou le magasin où vous avez acheté ce produit.
Notice Facile