MODE D'EMPLOI BQ1Q4T090 SAMSUNG
Manuel d'utilisation du four encastrable
un monde de possibilités
Merci d'avoir choses ce produit Samsung.
Afin de bénéficier du meilleur du service après-vente, enregistrez votre(AP)appeil sur le site suivant:
www.samsung.com/global/register
utilisation de ce manuel
Merci d'avoir besoin un four encascrable SAMSUNG.
Ce manuel d'utilisation content des informations importantes en matière de sécurité et vous fournir des instructions vous aidant à faire fonctionner l'appareil et à assurer son entretien.
Veuillez lui très attentivement ce manuel d'utilisation avant d'utiliser votre four et conservez-le précieusement en vue d'une consultation ultérieure.
Ce manuel d'utilisation comporte les symboles suivants :
| A | B | C |
| Avertissement ou Attention | Important | Remarque |
consignes de sécurité
L'installation de ce four doit être effectuee uniquement par un electricien qualifie. Le technicien est chargedu branchement de l'appareil sur la pris d'alimentation conformement aux conseils de securite en vigueur.
SECURITE ÉLECTRIQUE
Si le four a eté endommagé pendant le transport, ne le branchez pas.
- Ce four doit être relié à la prise d'alimentation secteur uniquement par un électricien qualifié.
- En cas de défaut ou de dommage constaté sur l'appareil, ne tentez pas de le faire fonctionner.
- Toute réparation doit être effectue une uniquement par un technicien qualifié. Une réparation inadéquate présente un risque réel pour vous et pour les autres. Si vous four nécessite une réparation, contactez un service après-vente SAMSUNG ou votre revendeur.
- Si le cordon d'alimentation est défectueux, il doit être remplace par un composant ou un cable spécial disponible chez votre fabricant ou un réparateur/agréé.
- Ne laissez aucun fil ni aucun cable électrique entrer en contact avec le four.
- Le four doit être relié à une prise d'alimentation secteur au moyen d'un disjoncteur ou d'un fusible homologué. N'utilise jamais d'adaptateur multiprise ou de rallonge.
- La plaque signalétique est située sur le côté droit de la porte.
-
Il convient demettre l'appareil hors tension lorsque celui-ci est en cours de réparation ou de nettoyage.
-
Soyez prudent lorsque vous branchez des apparêils électriques sur une prise située à proximité du four.
- Cet apparéil n'est pas conscience pour être utilisé par des personnes (y compris les enfants) inexpérimentées ou dont les capacités physiques, sensorielles ou mentales sont réduites, sauf si celles-ci sont sous la surveillance ou ont reçu les instructions d'utilisation appropriées de la personne responsable de leur sécurité.

Avertissement
- les parties accessibles peuvent devenir très chaudes pendant l'utilisation. Les enfants en bas âge doivent être tenus à l'écart du four afin d'eviter toute brûlle.
- Pour éviter tout risque de chocoléctrique, mettez l'appareil hors tension avant de procédér au remplacement de la lampe. Pendant le fonctionnement du four, les surfaces internes deviennent très chaudes.
SECURITE PENDANT LE FONCTIONNEMENT DE L'APPAREIL
- Ce four est réservé à la cuisson d'aliments dans le cadre d'un usage domestique uniquement.
- Pendant le fonctionnement du four, la chaleur qui se dégage des surfaces internes peut provoquer de graves brûlures en cas de contact avec celles-ci. Ne touchez jamais les éléments chauffants ni les surfaces internes du four avant qu'ils n'aient eu le temps de refroidir.
- Ne stockez jamais de matériaux inflammables dans le four.
- Les surfaces du four deviennent chaudes lorsque l'appareil fonctionne à une température élevé de façon prolongée.
- Pendant la cuisson, soyez prudent en ouvrant la porte du four car l'air chaud et la vapeur s'en échappent rapidement.
- Lorsque vous cuisine des plats à base d'alcool, la température élevée peut entrainer une évaporation de ce dernier ; en cas de contact avec une partie chaude du four, la vapeur risque de s'enflammer.
- Pour votre sécurité, ne nettoyez jamais l'appareil à l'aide d'un nettoyeur haute pression (eau ou vapeur).
Lorsque you utilisez l'appareil, veillez a ce que les enfants ne s'en approchent pas.
- Pour la cuisson d'aliments surgelés (ex.: pizzas), il convient d'utiliser la grille métallique. En effet, si vous utilisez la plaque à pâtisserie, les variations de température risquent de la déformer.
- Ne versez pas d'eau dans le fond du four lorsque celui-ci est encore chaud. La surface émaillée risquerait d'être endommagée.
La portedu four doit etre fermée pendant la cuisson des aliments.
- Soyez prudent lorsqu'vous ouvrez la porte avant la fin du programme de nettoyage vapeur: l'eau située dans le fond du four est extrémement chaude.
-
Ne recouvre pas le fond du four de papier aluminium et n'y déposez aucune plaque à pâtisserie ni aucun moule. Le papier aluminium empêche la chaleur de passer ; par conséquent, les surfaces émailées risquent d'être endommagées et vos alimentés peuvent de ne pas cuire convenablement.
-
Le jus des fruits peut laisser des traces indélébiles sur les surfaces émaillées du four. Pour obtenir des gâteaux très moelleux, utilisez la l'échefrite.
- Ne posez pas d'ustensiles sur la porte du four lorsque celle-ci est ouverte.
- Pour une utilisation en toute sécurité, les jeunes enfants et les personnes handicapées souhaitant utiliser l'appareil doivent être aidés d'un adulte responsable.
- Les jeunes enfants ne doivent pas utiliser l'appareil sans la surveillance d'un adulte.
- Avant de lancer un programme d'auto-nettoyage par pyrolyse, nettoyez les projections les plus importantes. En outre, aucun ustensile ne doit rester dans le four pendant ce temps.
- Maintenez les enfants à distance pendant le programme d'auto-nettoyage, car les surfaces deviennent extrémement chaudes.
consignes de traitement des déchets
Élimination du matériel d'emballage
- Le matériel utilisé pour emballer cet apparéil est recyclable.
- Jetez le matériel d'emballage dans les conteneurs municipaux prévus à cet effet.
Mise au rebut de vos apparèils usages
Avertissement: Avant de vous débarrasser de vos apparèils usagés, voirlez à les mettre totalément hors service afin d'éviter tout danger.
Pour cela, débranchez l'appareil de l'alimentation secteur et retirez la prise mâle. En jetsant vos apparèils usages de façon appropriée, vous contribuez à la protection de l'environnement.
L'appareil ne doit pas etre jetec avec les ordures menagères.
- Pour connaître les dates de ramassage et les sites de traitement des ordures menagères, renseignez-vous auprès du service de voirie de votre municipalité ou auprès de votre mairie.
6 Consignes de sécurité pour l'installateur
6 Installation dans un élément bas
7 Raccordement à la prise d'alimentation secteur
8 Installation dans un élément haut
9 Four
10 Commandes du four
10 Fonctions speciales
11 Accessoires
13 Utilisation des accessoires
14 Dispositif d'arrêt de sécurité
14 Ventilateur
15 Réglage de l'horloge
16Premier nettoyage
17 Réglage du mode Séparateur
22 Réglage de la température du four
23 Mise hors tension du four
23 Heure de fin de cuisson
25 Temps de cuisson
27 Demarrage de la cuisson a retardement
29 Minuterie
29 Pour allumer et eteindre la lampe du four
30 Sécurité enfants
30 Arret du signal sonore
31 Fonctions du four
39 Essais de plats
40 Programmes de cuisson automatique unique
44 Auto-nettoyage
45 Nettoyage vapeur
48 Nettoyage de la porte du four
51 Remplacement de la lampe
53 Questions fréquentes et dépannage
54 Codes d'erreur et de sécurité
55 Caracteristiques technique

Important
- L'installation de ce four doit être prise en charge uniquement par un électricien qualifié.
- Le four doit être installé conformément aux instructions fournies. Une fois l'installation effectuee, retirez le film protecteur en vinyle de la porte. Retirez également le ruban de protection situé sur les parois internes du four.
CONSIGNES DE SECURITE POUR L'INSTALLATEUR
- L'installation doit garantir une protection contre toute exposition à des composants sous tension.
- Les éléments dans lesquels l'appareil est encastré doivent être conformes à la norme DIN 68930 en matière de stabilité.
INSTALLATION DANS UN ÉLÉMENT BAS
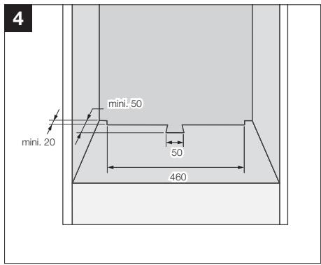
- Respectez les dégagements de sécurité minimum exigés.
Assurez-vous que le four est maintainu correctement en le fixant de part et d'autre a l'aide de vis.





5
Branchement du four sur l'alimentation secteur (H05VV-F, H05RR-F, Mini. 1,5 m, 1,5 ~ 2,5 mm²)
Les branchements électriques doivent être effectuels conformément aux instructions figurant sur la plaque de branchement fixée à l'arrière de l'appareil et par un électromécanien qui doit veiller à ce que le branchement de l'appareil soit conforme aux consignes d'installation et à la réglementation locale en vigueur.
Dans les cas où l'appareil n'est pas relié à l'alimentation secteur par une prise et afin de répondre aux exigences en matière de sécurité, il convient d'insérer un disjoncteur omnipolaire (avec une ouverture d'au moins 3 mm entre ses contacts) sur le côté du branchement prévu pour l'alimentation.

Remarque
- Lorsque l'appareil est mis sous tension, les dispositifs électroniques du four sont initiaisés et l'éclairage est neutralisé pendant quelques secondes. Le cable électrique (H05 RR-F ou H05 VV-F, 1,5 m mini., 1,5 à 2,5 mm²) doit être suffisamment long pour pouvoir être branché sur le four depuis l'avant de l'élement où il est encastré.
- Ouvrez le cache arrêté du four situé en bas de l'appareil (à l'aide d'un tournevis plat) et dévissez complètement la vis et le serre-câble du branchement avant d'insérer les fils électriques dans les bornes correspondantes.
Le cable de masse doit être relié à la borne (½) du four.
Dans le cas où le four est relié à l'alimentation secteur par une prise, celle-ci doit rester accessible une fois le four installé.
Nous rejetons toute responsabilité en cas d'accident d'à une mise à la terre inexistante ou défaillante.

6

INSTALLATION DANS UN ÉLÉMENT HAUT
- Respectez les dégagements de sécurité minimum exigés.
- Pourmettrele fouren place,il convient de le glisser a partir du bon angle d'alignement.






pièces et caractéristiques
FOUR


Remarque
- Les différences niveaux sont numerotés en partant du bas.
- Les niveaux 4 et 5 seront essentiellement à la fonction Gril.
- Reportez-vous aux guides fournis dans ce manuel pour déterminer les niveaux de cuisson adaptés à vos plats.

- Bouton de fonctionnement
- Bouton inférieur du mode de cuisson double
- Bouton de fonction
- Bouton de commande du temps de cuisson
- Bouton de commande de l'heure de fin de cuisson
-
Bouton de commande de l'alarme
-
Bouton de commande de l'horloge
- Bouton de température
- Bouton de commande de l'éclairage
- Bouton de sélection
- Bouton supérieur du mode de cuisson double
- Écran d'affichage
- Verrouillage

Remarque
Le bouton de fonctionnement et le bouton de commande de la durée / température sont des boutons contextuels. Appuyez dessus pour les faire tourner.
FONCTIONS SPECIALES
Le four est équipé des fonctions spéciales suivantes :
- Modes Séparateur : lorsque la plaque séparatrice est insérée, il est possible d'effectuer une cuisson indépendante dans deux compartments séparés du four. Cette fonction permet d'améliorer le rendement énergétique et de faciliter l'utilisation.
- Nettoyage vapeur : la fonction d'auto-nettoyage du four fait appel à la puissance de la vapeur pour détacher laGRAisse et les salissures des parois internes du four en toute sécurité.
Les accessoires suivants sont fournis avec le four :

1 Une grille métallique pour les plats, les mouses à gâteaux et les plaques à rotir et à grillade.

3 Une plaque à pâtisserie pour les gâteaux et les biscuits.

5 Une plaque séparatrice pour les modes Supérieur, Inférieur et Double. Placez-la au niveau 3. Un commutateur situé sur la paroi arrêté du compartment de cuisson détecte la plaque. Insérez la plaque jusqu'au fond.

2 Une grille métallique (en option) pour le rôtissage.

4 Une lèchefrite pour rôtir la viande ou récapuérier le jus ou laGRAISSÉ de cuisson.

6 Le tournebroche (en option) se compose d'une broche, de 2 fourchons, d'une poignée amovible et d'un support qui s'insere au troisième niveau en partant du bas. Pour utiliser la rôtissoire, insérez la broche dans le trou situation dans la paroi arrête de l'intérieur du four. Placez la l'échefrite au niveau 1 lorsque vous utiliserez la broche.

7 Broche de rôtissoire et brochette (en option)
UTILISATION :
- Placez la l'échefrite (sans la grille) au niveau 1 pour recueillir le jus de cuisson ou sur la partie inférieure du four si le morceau de viande à rôtir est trop volumineux.
- Faites glisser l'une des fourches sur le tournebroche. Placez le morceau de viande à rôtrir sur le tournebroche.
- Vous pouvez placer des pommes de terre et des légumes précuits sur les bords de la l'échéfte àfin qu'ils rôtissent en même temps que la viande.
- Placez le support sur le niveau central et dirigeez la partie en « V » vers l'avant du four.
- Vissez la poignée sur l'extrémité arrondie de la broche afin de faciliter l'insertion de la broche.
- Placez la broche sur le support, extrémité pointue dirigée vers l'arrière, et poussez délicatement jusqu'à ce que la pointe de la broche penètre dans le mécanisme de rotation situé à l'arrière du four. L'extrémité arrondie de la broche doit reposer sur la partie en « V » du support (la broche est dotée de deux oreilles devant être situées le plus pres possible de la porte afin d'éviter que la broche ne puisse avancer. Ces oreilles seront également à fixer la poignée).
- Dévissez la poignée avant de lancer la cuisson. Une fois la cuisson terminée, revissez la poignée afin de retarder la broche plus facilement du support.
! Avertissement
Toutes les pieces et tous les accessoires inadaptés à l'auto-nettoyage pas pyrolyse devont être reliés avant le lancement du programme.
La plaque à pâtisserie, la lèchefrite et la grille métallique doivent être correctement insérées dans les rainures laterales. Lorsque vous retirez les alimentés du four, prenez garde à ne pas vous brûler car les surfaces et les ustensiles peuvent être très chauds.
Example
Niveau 1:Lelchefrite
Niveau 4: Plaque à pâtisserie


Remarque
Lorsque vous utilise la lèchefrite ou la plaque à pâtisserie pour récapérer les égouttures des alimentés en cours de cuisson, assurez-vous que ces ustensiles sont correctement positionnés dans les rainures latérales. Evitez que ces accessoires n'entrent en contact avec le fond du four ; ils risqueraient d'endommager la protection en émail. Un intervalle d'au moins 2 cm doit être préserve entre les ustensiles placés au niveau 1 et le fond du four.
UTILISATION DES ACCESSOIRES
Plaque séparatrice, grille métallique, plaque à pâtisserie et lèchefrite
Positionnement de la plaque séparatrice
Insérez la plaque séparatrice au niveau 3 du four.
Positionnement de la grille métallique
Insérez la grille métallique au niveau souhaïte.
Positionnement de la plaque à pâtisserie ou de la l'échérite
Insérez la plaque à pâtisserie et/ou la l'échefrite au niveau souhaité.


Avertissement
Voudevezinsere la plaque séparatrice pour lancer la cuisson en mode Inférieur, Supérieur ou Double.
- Si aucune durée de cuisson n'a été enregistrée, le four s'eteint automatiquement une fois que les temps indiqués ci-dessous se sont écoulés.
Durées nécessaires pour déclencher l'arrêt de sécurité selon les différents régages de température :
inférieure à 105^
16 heures
de 105^ à 240^
8 heures
de 245^ a 300^
4 heures
- Le circuit électric de ce four est équipé d'un système d'arrêt thermique. Si le four chauffe à des températures anormalement élevées, le système met les éléments chauffants hors tension pendant une certaine durée.
VENTILATEUR
Durant la cuisson, il est normal que le ventilateur libre de l'air chaud par la façon du four.
- Le ventilateur continue de fonctionner même après l'arrêt du four. Il s'estint lorsque la température interne de l'élement est redescendue à 60^ ou au bout de 22 minutes.
RéGLAGE DE L'HORLOGE
Lors de la première mise sous tension, utilisez l'appareil après avoir reglé l'heure.


1 Appuyez sur le bouton de l'horloge. Les indications « ⊕ » et « 12: » clignotent.


2 Tournez le bouton de commande de la durée / température pour régler l'heure actuelle.
Example: pour régler 1h 30.
Attendez une dizaine de secondes. L'horloge arrête de clignoter et l'heure définie s'affiche.


3 Appuyez sur le bouton de l'horloge. Les indications « ① » et « :00 » clignotent.


4 Tournez le bouton de commande de la durée / température pour régler les minutes correspondant à l'heure actuelle. « ① » clignotent.


5 Appuyez sur le bouton de l'horloge lorsque vous avez fini de regler l'houre ou patientez une dizaine de secondes. « ⊙ » disparaît et le chiffre « 30 » s'arrêté de clignoter. L'houre actuelle s'affiche. L'appareil peut désormais être utilisé.
Nettoyez soigneusement le four avant de l'utiliser pour la première fois.

Important
N'utilisez pas d'ustensiles coupants ou de produits abrasifs. Vous risqueriez d'endommager la surface du four. Pour les jours équipés de parois émailées, utilisez des produits de nettoyage spéciaux (disponibles dans le commerce).
Pour nettoyer le four :
- Ouvrez la porte. Le lumière du four s'allume.
- Nettoyez tous les accessoires du four (lèchefrite, plaque, etc.) ainsi que les rainures latérales à l'eau chaude ou au liquide de nettoyage et essuyez-les à l'aide d'un chiffon doux et propre.
- Nettoyez l'intérieur du four de la même façon.
- Nettoyez la façade de l'appareil avec un chiffon humide.
Vérifié que l'horloge est réglée correctement. Retirez les accessoires et faites fonctionner le four par convection sur 200^ pendant 1 heures avant de l'utiliser. Il est normal qu'une odeur caractéristique se dégage lors de cette opération préliminaire ; toute fois, assurez-vous de bien aérer votre cuisine pendant ce temps.
RéGLAGE DU MODE SÉPARATEUR
Pour utiliser les modes Supérieur, Double et Inférieur, insérez la plaque séparatrice en réglant le bouton de fonctionnement sur « OFF » (DÉSACTIVÉ). Pour utiliser le mode Unique, retirez la plaque séparatrice en position « OFF » (DESACTIVE). Puis, tournez le bouton de fonctionnement pour sélectionner le mode de votrechioix. Pour plus d'informations, reportez-vous au tableau ci-dessous.

1 Tournez le bouton de fonctionnement pour selectionner le compartment du four souhaité.

2 Sélectionnéz le compartment souhaité. Puis appuyez sur le bouton fonction.

3 Tournez le bouton de commande de la durée / température pour sélectionner la fonction du four souhaiée. Si aucun réglage supplémentaire n'est effectué dans les 3 secondes, le four se lance automatiquement dans le mode et la fonction sélectionnés.
| Mode Séparateur | Symbole | Fonctions du four | Insertion de la plaque séparatrice | Informations sur l'utilisation de l'appareil |
| Désactifé | Off | | | |
| Mode Supérieur | | 1. Cuisson par convection2. Chaleur par le haut + Convection3. Grand gril | Oui | Ce mode permet une économie d'énergie et de temps pour la cuisson de petites quantités d'aliments. |
| Mode Double | | Fonction de comportements supérieur et inférieur | Oui | Vous permet de faire cuire simultanément deux plats à deux températures différentes |
| Mode Inférieur | | 1. Cuisson par convection2. Chaleur par le bas + Convection | Oui | Ce mode permet une économie d'énergie et de temps pour la cuisson de petites quantités d'aliments. |
| Mode Unique | | 1. Cuisson par convection2. Chaleur par le haut + Convection3. Cuisson traditionnelle4. Grand gril5. Petit gril6. Chaleur par le bas + Convection | Non | |
| Mode de cuisson automatique | Auto | | Non | |
| Mode Nettoyage vapeur | | | Non | |
| Mode Auto-nettoyage | | 1. P12. P23. p 3 | Non | |
Mode Supérieur
Seul l'objet chauffant supérieur fonctionne. La plaque séparatrice doit être insérée.

Cuisson par convection

Chaleur par le haut + Convection

Grand gril
Mode Inférieur
Seul l'objet chauffant inférieur fonctionne. La plaque séparatrice doit être insérée.

Cuisson par convection

Chaleur par le bas ^+ Convection
Mode Double
Les modes Supérieur et Inférieur fonctionnent simultanément. Il est possible de définir quel mode doit être activé en premier. En mode Double, lorsque la cuisson de l'un des plats est terminée et que vous souhaitez modifier la durée ou la température de cuisson de l'autre compartment, tournez le bouton de fonctionnement pour selectionner le mode (Supérieur ou Inférieur) que vous souhaitez continuer à utiliser. La plaque séparatrice doit être insérée.
Mode Double 1 :
Le mode Supérieur se lance en premier. Si vous appuyez sur le bouton fonction ou si 15 secondes s'écoulient après le réglage du mode Supérieur sans qu'aucun autre réglage ne soit effectué, le four démarre en mode Inférieur.

Cuisson par convection

Chaleur par le haut + Convection

Grand gril
Mode Double 2 :
Lorsque le mode Supérieur démarre, si vous appuyez sur le bouton fonction ou si 15 secondes s'écoulient sans qu'aucun autre réglage ne soit effectué, le four se met en mode Inférieur. Les modes Supérieur et Inférieur fonctionnent simultanément.

Cuisson par convection

Chaleur par le bas + Convection

Cuisson par convection

Chaleur par le haut + Convection

Cuisson traditionnelle

Grand gril

Petit grill

Chaleur par le bas + Convection
En modes Unique, Supérieur et Inférieur

1 Appuyez sur le bouton Température.

2 Tournez la molette de commande du temps / de la températe pour augmenter ou baisser la températe par tranches de 5^
| Mode Unique
(Petit et grand grils) | 40 °C à 250 °C
(40 °C à 300 °C) |
| Mode Supérieur | 40 °C à 250 °C |
| Mode Inférieur | 40 °C à 250 °C |

Remarque
- La température peut être modifiée en cours de cuisson.
- Une fois le mode du four régle, les éléments chauffants supérieur et inférieur chauffent et s'arrêtent par intervalles au cours de la cuisson, permettant ainsi de réguler et de maintainir la température du four.
En mode Double


1 Sélectionnez le compartment souhaité et appuyez sur le bouton de température - une fois en mode Supérieur et deux fois en mode Inférieur.

2 Tournez la molette de commande du temps / de la températe pour augmenter ou baisser la températe par tranches de 5^ .
| Mode Supérieur
(Grand grill) | 170 °C - 250 °C
(200 °C - 250 °C) |
| Mode Inférieur | 170 °C - 250 °C |

Remarque
La température peut être modifiée en cours de cuisson.

Pourmettrele four hors tension,placez leboutondefonctionnement sur la position « Off » (Désactivé).
HEURE DE FIN DE CUISSON
You pouez regler l'heure de fin de cuisson pendant la cuisson.
En modes Unique, Supérieur et Inférieur

1 Appuyez sur le bouton de commande de l'heure de fin de cuisson.
Exemple : l'horloge indique 12h 00.


2 Tournez le bouton de commande de la durée / température pour régler l'heure de fin de cuisson souhaïée.


3 Appuyez sur le bouton de commande de l'heure de fin de cuisson. Le four se met en route en prerant en compte l'heure de fin de cuisson selectionnée, sauf si vous appuyez sur le bouton de commande de l'heure de fin de cuisson dans les 5 secondes.
Remarque
Pendant la cuisson, vous pouvez régler la dernière heures de fin de cuisson sélectionnée à l'aide du bouton de commande de la durée / température pour obtenir de更好地 résultats.
En mode Double
Les heures de fin de cuisson des modes Supérieur et Inférieur peuvent être seLECTIONnées à l'aide du bouton d'heure de fin de cuisson et du bouton de commande de la durée / température.

1 Sélectionnez le compartment souhaïte.


2 Appuyez deux fois sur le bouton d'heure de fin de cuisson (mode Inférieur).
Exemple : l'horloge indique 12h 00.

3 Tournez le bouton de commande de la durée / température pour régler l'heure de fin de cuisson souhaïée.



4 Appuyez sur le bouton de réglage de l'heure de fin de cuisson. Le four se met en route ennant en compte l'heure de fin de cuisson sélectionné, sauf si vous appuyez sur le bouton de réglage de l'heure de fin de cuisson dans les 5 secondes.
Remarque
Pendant la cuisson, vous pouvez régler le dernier temps de cuisson sélectionné à l'aide du bouton de commande de la durée / température pour obtenir de更好地 résultats.
Vou puevez régler le temps de cuisson pendant la cuisson.
En modes Unique, Supérieur et Inférieur

1 Appuyez sur le bouton de réglage du temps de cuisson.



2 Tournez le bouton de commande de la durée/tempsature pour régler la durée de cuisson souhaïée.

3 Appuyez sur le bouton de réglage du temps de cuisson.
Le four se met en route en prénant en compte le temps de cuisson sélectionné, sauf si vous appuyez sur le bouton de réglage du temps de cuisson dans les 5 secondes.
Remarque
Pendant la cuisson, vous pouvez régler le dernier temps de cuisson sélectionné à l'aide du bouton de commande de la durée / température pour obtenir de更好地 résultats.
En mode Double
Les temps de cuisson des modes Supérieur et Inférieur peuvent être sélectionnés à l'aide du bouton de réglage du temps de cuisson et du bouton de commande de la durée / température.

1 Sélectionnez le compartment souhaïte.


2 Appuyez deux fois sur le bouton de réglage du temps de cuisson (mode Inférieur).

3 Tournez le bouton de commande de la durée / température pour régler la durée de cuisson souhaïée.



4 Appuyez sur le bouton de réglage du temps de cuisson.
Le four se met en route ennant en compte le temps de cisson selectionné, sauf si vous appuyez sur le bouton de réglage du temps de cisson dans les 5 secondes.

Remarque
Pendant la cuisson, vous pouvez régler le dernier temps de cuisson sélectionné à l'aide du bouton de commande de la durée / température pour obtenir de更好地 résultats.
Cas 1 : le temps de cuisson est réglé en premier
Si l'heure de fin de cuisson est regléée après le temps de cuisson, le temps de cuisson et l'heure de fin de cuisson sont calculés et, le cas échéant, le four établit un démarrage différé de la cuisson.

1 Appuyez sur le bouton de commande de l'heure de fin de cuisson.
Exemple : l'horloge affiche 3:00 et le temps de cuisson souhaité est de 5 heures.

2 Tournez le bouton de commande de la durée / température pour régler l'heure de fin de cuisson.
Exemple : vous souhaitez que la cuisson dure 5 heures et se termine lorsque l'horloge affiche 8:30.


3 Appuyez sur le bouton de commande de l'heure de fin de cuisson. Le symbole « » indiquant que la cuisson est prete à démarrer s'affiche jusqu'àu lancement réel de la cuisson.
Cas 2 : l'heure de fin de cuisson est réglée en premier
Si le temps de cuisson est régé après l'heure de fin de cuisson, le temps de cuisson et l'heure de fin de cuisson sont calculés et, le cas échéant, le four établit un démarrage différé de la cuisson.




1 Appuyez sur le bouton de réglage du temps de cuisson.
Exemple : l'horloge affiche 3:00 et l'heure de fin de cuisson souhaitee est 5:00.
2 Tournez le bouton de commande de la durée / température pour régler l'heure de fin de cuisson.
Exemple : vous souhaitez que la cuisson dure 1h 30 et se termine lorsque l'horloge affiche 5:00.


3 Appuyez sur le bouton de réglage du temps de cuisson. Le symbole « indiquant que la cuisson est prête à démarrer s'affiche jusqu'au lancement réel de la cuisson.

1 Appuyez une fois sur le bouton de la minuterie. “ ” clignote.

2 Tournez le bouton de commande de la durée / température pour régler les temps souhaïte.
Example: 5 minutes.

3 Appuyez sur le bouton de la minuterie pour enclencher la minuterie. Une fois que le temps regle est ecoulé, un signal sonore retentit.
Remarque
Maintenez enforcé le bouton de la minuterie pendant 2 secondes pour annuler la minuterie.
POUR ALLUMER ET ÉTEINDRE LA LAMPE DU FOUR

1 Appuyez sur le bouton de la lampe.
La lampe s'allume et s'eteint dans l'ordre indiqué, quel que soit le fonctionnement.
La lampe s'eteint automatiquement au bout de 2 minutes.

1 Appuyez sur le bouton de la sécurité enfants pendant 3 secondes. ( ) apparait dans le champ d'affichage.

2 Appuyez sur le bouton de la sécurité enfants et maintenez-le a nouveau enforcé pendant 3 secondes pour déverrouiller le système de sécurité.

Remarque
Une fois verrouillés, tous les boutons, hormis le bouton de fonctionnement et le bouton de déverrouillage, cessent de fonctionner. Le verrouillage est toujours possible, que le four soit ou non en cours d'utilisation.
ARRÉT DU SIGNAL SONORE

Pour eteindre le signal sonore, appuyez simultanement sur le bouton de l'horloge et sur le bouton de commande de I'heure de fin de cuisson pendant 3 secondes.



Pour rallumer le signal sonore, appuyez à nouveau simultanément sur le bouton de l'horloge et sur le bouton de réglage de l'heure de fin de cuisson pendant 3 secondes.
Les caractéristiques de ce four complrennent les fonctions suivantes :
Modes du four
Le tableau suivant indique les différences modes et réglages du four.
Reportez-vous aux tableaux du guide de cuisson figurant aux pages suivantes pour utiliser ces modes.
| Mode | Description |
| Cuisson traditionnelle
Les alimentés sont cuits à l'aide des éléments chauffants supérieur et inférieur. Ce réglage est adapté à la cuisson et au rôtissage de vos alimentés. |
| Chaleur par le haut + Convection
Nous vous recommendons ce mode pour faire rôtir vos viandes. L'élement chauffant supérieur fonctionne et les ventilateurs font circuler l'air chaud provenant de l'élement chauffant supérieur et de celui situé sur la paroi du fond. |
| Cuisson par convection
Les alimentés sont chauffés au moyen de l'air chaud provenant de l'élement chauffant situé sur la paroi du fond et diffusé à l'aide de deux ventilateurs. Ce réglage assure un réchauffage uniforme des alimentés et constitue le mode de cuisson idéal pour les plats préparés surgelés ainsi que pour les gâteaux et les viennoiseries. Ce mode peut être utilisé pour la cuisson sur deux niveaux. |
| Grand gril
Les alimentés sont cuits à l'aide des éléments chauffants supérieur. Nous vous recommendons ce mode pour faire griller des bîtecks et des saucisses ainsi que des toasts au fromage. |
| Petit gril
Ce mode est idéal pour faire griller de petites quantités d'aliments (ex.: baguettes, fromage ou fillets de poisson).
Placez les alimentés au centre de la grille métallique, car seul le plus petit élément chauffant situé au centre fonctionne. |
| Chaleur par le bas + Convection
L'élement chauffant inférieur et l'élement chauffant situé sur la paroi du fond générent de l'air chaud que les ventilateurs font circérer à l'intérieur du four. Ce mode est idéal pour la cuisson des quiches, des pizzas, des tartes au fromage ou du pain. |
Température recommandée : 200 °C
La fonction Cuisson traditionnelle est ideale pour faire cuire et rotir des alimentés sur une seule grille. Les éléments chauffants supérieur et inférieur fonctionnement simultanément afin de maintainir une température homogène à l'intérieur du four. Nous vous recommendons de préchauffer le four en mode de cuisson traditionnelle.
| Type d'aliment | Niveau de la grille | Accessoire | Temp. (°C) | Temps (min) |
| Lasagnes surgelées (500 à 1000 g) | 3 | Grille métallique | 180-200 | 40-50 |
| Poisson entier (ex.: dorade) (300 à 1000 g) 3 à 4 entailles de chaque côté ARROSEZ D'UN FILET D'HUILIE | 3 | Grille métallique + l'échéfte | 240 | 15-20 |
| Filets de poisson (500 à 1000 g) 3 à 4 entailles de chaque côté ARROSEZ D'UN FILET D'HUILIE | 3 | Plaque à pâtisserie | 200 | 13-20 |
| Côtelettes surgelées - farce de viande hachée et jambon, fromage ou championons (350 à 1000 g) ARROSEZ D'UN FILET D'HUILIE | 3 | Plaque à pâtisserie | 200 | 25-35 |
| Croquettes de carottes, betteraves ou pommes de terre surgelées (350 à 1000 g) ARROSEZ D'UN FILET D'HUILIE | 3 | Plaque à pâtisserie | 200 | 20-30 |
| Côtelettes de porc (non désossées) (500 à 1000 g) AJOUTEZ HUILIE, SEL ET POIVRE | 3 / 2 | Grille métallique / l'échéfte | 200 | 40-50 |
| Pommes de terre au four (coupées en deux) (500 à 1000 g) | 3 | Plaque à pâtisserie | 180-200 | 30-45 |
| Paupiettes de viande surgelées farcies aux championons (500 à 1000 g) ARROSEZ D'UN FILET D'HUILIE | 3 | Plaque à pâtisserie | 180-200 | 40-50 |
| Biscuit de Savoie (250 à 500 g) | 2 | Grille métallique | 160-180 | 20-30 |
| Gâteau marbré (500 à 1000 g) | 2 | Grille métallique | 170-190 | 40-50 |
| Gâteau à base de levure avec garniture sablée aux fruits (1000 à 1500 g) | 2 | Plaque à pâtisserie | 160-180 | 25-35 |
| Muffins (500 à 800 g) | 2 | Grille métallique | 190-200 | 25-30 |
Température recommandée : 190 °C
L'élément chauffant supérieur fonctionne et le ventilateur fait circuler l'air chaud en permanence.
Nous vous recommendons de préchauffer le four en mode Chaleur par le haut + Convection.
| Type d'aliment | Niveau de la grille | Accessoire | Temp. (°C) | Temps (min) |
| Piège de porc non désossée (1000 g) BADIGEONNEZ LA VIANDE D'HUILLE ET ASSAISONNEZ | 3 | Grille métallique + l'échérite | 180-200 | 50-65 |
| Épaule de porc en papillotte (1000 à 1500 g) FAITES MARINER | 2 | Plaque à pâtisserie | 180-230 | 80-120 |
| Poulet entier (800 à 1300 g) BADIGEONNEZ LA VIANDE D'HUILLE ET ASSAISONNEZ | 2 | Grille métallique + l'échérite | 190-200 | 45-65 |
| Steaks de viande ou de poisson (400 à 800 g) AJOUTEZ HUILLE, SEL ET POIVRE | 3 | Grille métallique + l'échérite | 180-200 | 15-35 |
| Morceaux de poulet (500 à 1000 g) BADIGEONNEZ LA VIANDE D'HUILLE ET ASSAISONNEZ | 4 | Grille métallique + l'échérite | 200-220 | 25-35 |
| Poisson grillé (500 à 1000 g) - Utilisez un plat allant au four BADIGEONNEZ LA VIANDE D'HUILLE | 2 | Grille métallique | 180-200 | 30-40 |
| Bœuf grillé (800 à 1200 g) BADIGEONNEZ LA VIANDE D'HUILLE ET ASSAISONNEZ | 2 | Grille métallique + l'échérite Ajoutez 1 tasse d'eau | 200-220 | 45-60 |
| Magret de canard (300 à 500 g) | 4 | Grille métallique + l'échérite Ajoutez 1 tasse d'eau | 180-200 | 25-35 |
3. Cuisson par convection
Température recommandaee : 170 °C
Cette fonction est utile pour la cuisson d'aliments sur trois niveaux ; elle convient également pour le rôtissage. La cuisson s'effectue à partir de l'élement chauffant situé sur la paroi arrière et la chaleur est distribuée dans toute la cavité du four au moyen du ventilateur.
Nous vous recommendons de préchauffer le four en mode Convection.
| Type d'aliment | Niveau de la grille | Accessoire | Temp. (°C) | Temps (min) |
| Carre d'agneau (350 à 700 g) BADIGEONNEZ LA VIANDE D'HUILLE ET ASSAISONNEZ | 3 | Grille métallique + lechefrite | 190-200 | 40-50 |
| Bananes au four (3 à 5 bananes): incisez la banane pelée dans la longueur, ajoutez 10 à 15 g de chocolat et 5 à 10 g de noiséttes dans la fente pratiquée, saupoudrez le tout de sucre et enveloppez les bananes dans de l'aluminium. | 3 | Grille métallique | 220-240 | 15-25 |
| Pommes au four (5 à 8 pommes de 150 à 200 g chacune) Otez les trognons et fourrez les fruits de raisins secs et de confiture. Utilisez un plat allant au four. | 3 | Grille métallique | 200-220 | 15-25 |
| Croquettes de viande hachée (300 à 600 g) ARROSEZ D'UN FILET D'HUILLE | 3 | Plaque à pâtisserie | 190-200 | 18-25 |
| Boulettes de viande hachée à la russe (500 à 1000 g) BADIGEONNEZ LA VIANDE D'HUILLE | 3 | Plaque à pâtisserie | 180-200 | 50-65 |
| Croquettes surgelées (500 à 1000 g) | 2 | Plaque à pâtisserie | 180-200 | 25-35 |
| Frites au four surgelées (300 à 700 g) | 2 | Plaque à pâtisserie | 180-200 | 20-30 |
| Pizza surgelée (300 à 1000 g) | 2 | Grille métallique | 200-220 | 15-25 |
| Gâteau aux pommes et aux amandes (500 à 1000 g) | 2 | Grille métallique | 170-190 | 35-45 |
| Croissants frais (200 à 400 g) (pâté toute prête) | 3 | Plaque à pâtisserie | 180-200 | 15-25 |
4. Grand grill
Température recommendée : 240 °C
La fonction Grand grill permet de faire griller une grande quantité d'aliments plats (ex. : steaks, escalopes panées ou poissons). Elle convient également aux tranches de pain. Ce mode nécessite l'utilisation de l'élement chauffant supérieur et de la grille.
Nous vous recommendons de préchauffer le four en mode Grand grill.
| Type d'aliment | Niveau de la grille | Accessoire | Temp. (°C) | Temps (min) |
| Saucisses (fines) 5 à 10 unités | 4 | Grille métallique + lèchefrite | 220 | 5 à 8 returner 5 à 8 |
| Saucisses (fines) 8 à 12 unités | 4 | Grille métallique + lèchefrite | 220 | 4 à 6 returner 4 à 6 |
| Toasts 5 à 10 unités | 5 | Grille métallique | 240 | 1 à 2 returner 1 à 2 |
| Toasts au fromage 4 à 6 unités | 4 | Grille métallique + plaque à pâtisserie | 200 | 4-8 |
| Crêpes farcies à la rouge (200 à 500 g) | 3 | Plaque à pâtisserie | 200 | 20-30 |
| Biftecks (400 à 800 g) | 4 | Grille métallique + lèchefrite | 240 | 8 à 10 returner 5 à 7 |
5. Petit grill
Température recommandée : 240 °C
Ce mode est recommendé pour faire griller des alimentes plats en petite quantité (ex.: steaks, escalopes panées, poissons ou tranches de pain grillées) placés au centre de la plaque. Ce mode ne sollicite que l'élement supérieur.
Nous vous recommendons de préchauffer le four en mode Petit gril.
Placez les aliments au centre de l'accessoire.
| Type d'aliment | Niveau de la grille | Accessoire | Temp. (°C) | Temps (min) |
| Camembert surgelé (2 à 4 morceaux de 75 g chacun) PLACEZ DANS LE FOUR A FROID (avant préchauffage) | 3 | Grille métallique | 200 | 10-12 |
| Baguettes garnies surgelées (tomate mozzarella ou jambon fromage) | 3 | Grille métallique + plaque à pâtisserie | 200 | 15-20 |
| Bâtonnets de poisson surgelés (300 à 700 g) PLACEZ DANS LE FOUR A FROID (avant préchauffage) ARROSEZ D'UN FILET D'HUILLE | 3 | Grille métallique + plaque à pâtisserie | 200 | 15-25 |
| Sandwiches de poisson surgelés (300 à 600 g) PLACEZ DANS LE FOUR A FROID, ARROSEZ D'UN FILET D'HUILLE | 3 | Plaque à pâtisserie | 180-200 | 20-35 |
| Pizza surgelée (300 à 500 g) PLACEZ DANS LE FOUR A FROID (avant préchauffage) | 3 | Grille métallique + plaque à pâtisserie | 180-200 | 23-30 |
6. Chaleur par le bas + Convection
Température recommandée : 190 °C
Le mode Chaleur par le bas + Convection convient pour les mets dont la base doit être croustillante et le dessus moelleux (ex.: pizzas, quiches lorraine, tartes aux fruits à l'allemande et tartes au fromage).
Nous vous recommendons de préchauffer le four en mode Chaleur par le bas + Convection.
| Type d'aliment | Niveau de la grille | Accessoire | Temp. (°C) | Temps (min) |
| Soufflé aux pommes surgelé (350 à 700 g) | 3 | Grille métallique | 180-200 | 15-20 |
| Petits feuilletés fourrés surgelés (300 à 600 g) BADIGEONNEZ LA SURFACE DE JAUNE D'CEUF ET PLACEZ DANS LE FOUR FROID (avant préchauffage) | 3 | Plaque à pâtisserie | 180-200 | 20-25 |
| Boulettes de vande en sauce (250 à 500 g) - Utilisez un plat allant au four | 3 | Grille métallique | 180-200 | 25-35 |
| Biscuits feuilletés (500 à 1000 g) BADIGEONNEZ LA SURFACE DE JAUNE D'CEUF | 3 | Plaque à pâtisserie | 180 | 15-23 |
| Cannelloni en sauce (250 à 500 g) utilisez un plat allant au four | 3 | Grille métallique | 180 | 22-30 |
| Soufflés fourrés (600 à 1000 g) BADIGEONNEZ LA SURFACE DE JAUNE D'CEUF | 3 | Plaque à pâtisserie | 180-200 | 20-30 |
| Pizza maison (500 à 1000 g) | 2 | Plaque à pâtisserie | 200-220 | 15-25 |
| Pain maison (700 à 900 g) | 2 | Grille métallique | 170-180 | 45-55 |
Le mode Double vous permet de cuire deux plats différents dans le four. Cette fonction vous permet de faire cuire des alimentents dans le haut et dans le bas du four en utilisant des températures, des modes et des temps de cuisson différents. Par exemple, vous pouvez simultanément faire griller des biftecks et cuire un gratin. La plaque séparatrice vous permet de préparer un gratin dans le bas du four et de faire cuire des steaks dans la partie supérieure.
Veillez à toujours insérer la plaque séparatrice dans le niveau 3 avant de démarrer la cuisson.
Suggestion 1: cuisson à différentes températures.
| Partie du four | Type d'aliment | Niveau de la grille | Mode de cuisson | Temp. (°C) | Accessoire | Temps (min) |
| SUPERIEURE | Pizza surgelée (300 à 400 g) | 4 | Cuisson par convection | 200-220 | Grille métallique | 15-25 |
| INFERIEURE | Gâteau marbré (500 à 700 g) | 1 | Cuisson par convection | 160-180 | Plaque à pâtisserie | 50-60 |

Remarque: placez les alimentes dans le four froid.
Suggestion 2: cuisson avec différents modes.
| Partie du four | Type d'aliment | Niveau de la grille | Mode de cuisson | Temp. (°C) | Accessoire | Temps (min) |
| SUPERIEURE | Morceaux de poulet (400 à 600 g) | 4 | Chaleur par le haut + Convection | 200-220 | Grille métallique + l'échefrite | 25-35 |
| INFERIEURE | Gratin de pommes de terre (500 à 1000 g) | 1 | Cuisson par convection | 160-180 | Grille métallique | 30-40 |

Remarque: placez les alimentes dans le four froid.
Conformément à la norme EN 60350
1. Faire cuire de la pâte crue
Les types de cuisson recommendés sont valables four préchauffé.
| Type d'aliment | Plats et remarques | Niveau de la grille | Mode de cuisson | Temp. (°C) | Temps de cuisson (min) |
| Gâteaux de petite talie | Plaque à pâtisserie | 3 | Cuisson traditionnelle | 160-180 | 15-25 |
| L'échefrite + plaque à pâtisserie | 1+4 | Cuisson par convection | 150-170 | 20-30 |
| Généoise | Moule à gâteau (à revêtement noir, ø 26 cm) posé sur la grille métallique | 2 | Cuisson traditionnelle | 160-180 | 20-30 |
| Tarte aux pommes | Grille métallique + plaque à pâtisserie + 2 moulés à gâteau à fond amovible (revêtement noir, ø 20 cm) | 1+3 | Cuisson par convection | 170-190 | 80-100 |
| Grille métallique + 2 moulés à gâteau à fond amovible (revêtement noir, ø 20 cm) | 1 place diagonale | Cuisson traditionnelle | 170-190 | 70-80 |
2. Faire griller
Faites préchauffer le four pendant 5 minutes en utilisant la fonction Large Grill (Grand grill).
Réglez le four sur la température maximale (300^)
| Type d'aliment | Plats et remarques | Niveau de la grille | Mode de cuisson | Temp. (°C) | Temps de cuisson (min) |
| Toasts de pain blanc | Grille métallique | 5 | Grand gril | 300 | 1er 1-2 2ème 1-1½ |
| Hamburgers | Grille métallique + lèchefrite (pour récapérier les égouttures) | 4 | Grand gril | 300 | 1er 7-10 2ème 6-9 |
cuisson automatique
En mode de cuisson automatique, vous pouvez selectionner jusqu'à 25 programmes de cuisson automatique, pour la cuisson traditionnelle, le rotissage et la confection de gâteaux. Pour les modes Supérieur, Inférieur et Double, insérez la plaque séparatrice.

1 Placez le bouton de fonctionnement sur le mode cuisson automatique.


2 Appuyez sur le bouton fonction.

3 Reglez la durée de cuisson souhaitee à I'aide du bouton de commande de la durée /température. (1~25)

4 Sélectionnez le poids souhaïte à l'aide du bouton de commande de la durée /température.
PROGRAMMES DE CUISSON AUTOMATIQUE UNIQUE
Le tableau ci-dessous répertorie les 25 programmes automatiques permettant de cuire traditionnellement, de rôtir et de confectionner des gâteaux.
Ces programmes peuvent être utilisés dans le compartment unique du four. Retirez toujours la plaque séparatrice.
Veillez à respecter les quantités, les poids et les consignes associés à chaque mode de cuisson.
Les modes et les temps de cuisson ont ete pre-programmés pour plus de facilité.
Reportez-vous à ces consignes pour connaître le mode de cuisson adapté à chaque type d'aliment. Insérez toujours les aliments dans le four à froid.
| Non | Type d'aliment | Poids/kg | Accessoire | Niveau de la grille | Consignes |
| 1 | Pizza surgélée | 0,3-0,6 | Grille métallique | 2 | Placez la pizza surgelée au centre de la grille métallique. |
| 0,7-1,0 |
| 2 | Frites au four surgelées | 0,3 à 0,5 (fines) | Plaque à pâtisserie | 2 | RépartissezUniformément les frites sur la plaque à pâtisserie. Utilisez le premier réglage pour les frites fines et le second pour les frites plus épaisSES. |
| 0,6 à 0,8 (épaisses) |
| 3 | Croquettes surgelées au four | 0,3-0,5
0,6-0,8 | Plaque à pâtisserie | 2 | Disposez les croquettes de pommes de terre surgelées sur la plaque à pâtisserie. |
| 4 | Lasagnes maison | 0,3-0,5
0,8-1,0 | Grille métallique | 3 | Préparez des lasagnes fraîches ou utilisez des lasagnes prêtes à cuire et placez-les dans un plat adapté allant au four.
Placez le plat au centre du four. |
| 5 | Bifteck | 0,3-0,6
0,6-0,8 | Lèchefrite avec grille métallique | 4 | Placez les biftecks marinés côte à côte sur la grille métallique.
Retournez dés que le signal sonore retentit. Le premier réglage est adapté à la cuisson des biftecks fins, le second à celle des biftecks plus épais. |
| 6 | Rôti de bœuf | 0,6-0,8
0,9-1,1 | Lèchefrite avec grille métallique | 2 | Placez le rôti de bœuf mariné sur la grille métallique.
Retournez dés que le signal sonore retentit. |
| 7 | Rôti de porc | 0,6-0,8
0,9-1,1 | Lèchefrite avec grille métallique | 2 | Placez le rôti de porc mariné sur la grille métallique. Retournez dés que le signal sonore retentit. |
| 8 | Côtelettes d'agneau | 0,3-0,4
0,5-0,6 | Lèchefrite avec grille métallique | 4 | Côtelettes d'agneau marinées Placez les côtelettes d'agneau sur la grille métallique.
Retournez dés que le signal sonore retentit. Le premier réglage est adapté aux côtelettes fines, le second aux côtelettes plus épaisces. |
| 9 | Morceaux de poulet | 0,5-0,7
1,0-1,2 | Lèchefrite avec grille métallique | 4 | Badigeonnez les morceaux de poulet d'huile et d'épices.
Placez les morceaux de poulet côte à côte sur la grille métallique. |
| 10 | Poulet entier | 1,0-1,1
1,2-1,3 | Lèchefrite avec grille métallique | 2 | Badigeonnez le poulet entier d'huile et saupoudrez d'épices.
Placez le poulet sur la grille métallique. Retournez dés que le signal sonore retentit. |
| 11 | Magret de canard | 0,3-0,5
0,6-0,8 | Lèchefrite avec grille métallique | 4 | Préparez le magret de canard, placez-le sur la grille métallique, côte gras vers le haut. Le premier réglage correspond à un magret de canard de taillie normale; le deuxième, à deux magrets de canard de belle taillie. |
| 12 | Roulé de dinde | 0,6-0,8 0,9-1,1 | L'échefrite avec grille métallique | 4 | Placez le roulé de dinde sur la grille métallique. Retournez dés que le signal sonore retentit. |
| 13 | Poisson à l'étuvette | 0,5-0,7 0,8-1,0 | Grille métallique | 2 | Rincez et nettoyez les poissons (ex.: truite, perché ou bar entiers). Disposez-les tête-bêche dans un plat en verre ovale allant au four. Ajoutez 2 à 3 cuillères à soupe de jus de citron. Couvrez. |
| 14 | Poisson grillé | 0,5-0,7 0,8-1,0 | L'échefrite avec grille métallique | 4 | DisPOSEz les poissons tête-bêche sur la grille métallique. Le premier réglage est adapté à la cuisson de 2 poissons, le second à la cuisson de 4 poissons. Ce programme est adapté à la cuisson de poissons entiers (truite, sandre ou dorange). |
| 15 | Steaks de saumon | 0,3-0,4 0,7-0,8 | L'échefrite avec grille métallique | 4 | Placez les steaks de saumon sur la grille métallique. Retournez dés que le signal sonore retentit. |
| 16 | Pommes de terre au four | 0,4-0,5 0,8-1,0 | Plaque à pâtisserie | 2 | Rincez les pommes de terre et coupez-les en deux. Badigeonnez-les d'huile d'olive, de fines herbes et d'epices. Répartissez les tranches uniformément sur la plaque. Le premier réglage correspond à de petites pommes de terres (de 100 g chacune), le second réglage à de grandes pommes de terre au four (200 g chacune). |
| 17 | Légumes grillés | 0,4-0,5 0,8-1,0 | L'échefrite | 4 | Placez les légumes (rondelles de courgettes, morceaux de poivrons, rondelles d'aubergines, championons et tomates cerises) dans la l'échefrite. Badigeonnez d'un mélange d'huile d'olive, d'herbes et d'epices. |
| 18 | Gratin de légumes | 0,4-0,6 0,8-1,0 | Grille métallique | 2 | Préparez le gratin de légumes dans un plat rond allant au four. Placez le plat au centre du four. |
| 19 | Gâteau marbré | 0,5-0,6 0,7-0,8 0,9-1,0 | Grille métallique | 2 | Versez la pâte dans un moule à gâteau Bundt beurré. |
| 20 | Pâté pour
flan aux fruits | 0,3-0,4
(grande)
0,2 à 0,3
(tartelettes) | Grille
metallique | 2 | Versez la pâté dans un moule à gâteau beurré. Le premier réglage est adapté à la cuisson d'un flan aux fruits ; le second, à la cuisson de 5 à 6 petites tartelettes. |
| 21 | Biscuit de Savoie | 0,4 à 0,5
(taille moyenne)
0,2 à 0,3 (petit) | Grille
metallique | 2 | Placez la pâté dans un moule à gâteau rond en métal à revêtement noir. Le premier réglage convient à un moule à gâteau de 26 cm de diamètre et le second réglage à un moule de 18 cm de diamètre. |
| 22 | Muffins | 0,5-0,6
0,7-0,8 | Grille
metallique | 2 | Versez la pâté dans un moule à pâtisserie métallique noir pour 12 muffins. Le premier réglage est adaptable à la cuisson de petits muffins, le second à la cuisson de grands muffins. |
| 23 | Pain | 0,7 à 0,8
(blanc)
0,8 à 0,9
(farine complête) | Grille
metallique | 2 | Préparez la pâté en suivant les instructions du fabricant et versez-la dans un moule à gâteau métallique rectangulaire à revêtement noir (25 cm de long). Le premier réglage est adaptable à la cuisson du pain blanc (0,7 à 0,8 kg) ; le second (0,8 à 0,9 kg); à la cuisson du pain complet. |
| 24 | Pizza maison | 1,0-1,2
1,3-1,5 | Plaque à
pâtisserie | 2 | Placez la pizza sur la plaque. Les plages de poids incluent la garniture (sauce, légumes, jambon, fromage). Le réglage 1 (1,0 à 1,2 kg) convient aux pizzas fines et le réglage 2 (1,3 à 1,5 kg) convient aux pizzas avec beaucoup de garniture. |
| 25 | Fermentation de la pâté
levée | 0,3-0,5
0,6-0,8 | Grille
metallique | 2 | Le premier réglage est recommandé pour faire lever les pâtes à pizza à base de levure. Le second réglage est ajusté aux pâtes levées pour gâteau ou pain. Placez-la dans un grand plat circulaire résistant à la chaleur et recouvre celui-ci de film étirable. |
AUTO-NETTOYAGE
Ce mode permet de nettoyer automatiquement le four.
Ce mode permet de brûler les dépôts deGRAISSÉ accumulés dans le four de manière à pouvoir les retirer plus facilement une fois le four refroidi.
Durant l'auto-nettoyage (auto-nettoyage par pyrolyse), la porte du four se verrouille automatiquement.
| Verrouillage de la porte (♀) | Lorsque la température du four atteint 300 °C, la porte severrouille automatiquement pour des raisons de sécurité. |
| Déverrouillage | Lorsque la température du four redescend en dessous de 260 °C, la porte se déverrouille automatiquement. |
! Avertissement
- Le four devient très chaud au cours de cette opération.
- Tenez les enfants à distancependant toute la durée du processus.
Attention : Tous les accessoires doivent etre retirés du four avant de procéder à l'auto-nettoyage.
Retirez le plus gros de la saleté à la main.
Les résidus d'aliment, degraisse et de jus de viande inflammbles risqueraient de provoquer un incendie dans le four pendant la phase de nettoyage automatique.

1 Placez le bouton de fonctionnement sur le mode Nettoyage automatique.



2 Positionné le bouton de commande de la durée/tempsature sur le niveau 1, 2 ou 3 en fonction de l'état de saleté du four. Si aucun réglage supplémentaire n'est effectué dans les 5 secondes, le four lance automatiquement le programme sélectionné.
| Niveau | Durée |
| P1 (Bas) | environ 120 minutes |
| P2 (Moyen) | environ 150 minutes |
| P3 (Elevé) | environ 180 minutes |
3 Une fois le four refroidi, essuyez la porte et les bords du four à l'aide d'un chiffon humide.
1 Retirez tous les accessoires du four.
2 Versez environ 400 ml d'eau (3/4 de pinte) dans le fond du four vide. Utilisez uniquement de l'eau claire normale et non de l'eau distilled.
3 Fermez la porte du four.
Attention
Le système de nettoyage vapeur ne peut être activé que lorsque le four est à température ambiente. Si le nettoyage ne fonctionne pas, laissez le four se refroidir complètement.


4 Placez le bouton de fonctionnement sur le mode Nettoyage vapeur.


5Après un certain temps, le système de chauffage arrêté de fonctionner et le voyant correspondant reste allumé.

6 Une fois l'opération terminée, l'affichage clignote et un signal sonore retentit.
7 Positionné le bouton de fonctionnement sur « Off » (Désactivé) pourmettre un terme à l'opération et procédéur au nettoyage de l'intérieur du four.


Astuces
- Soyez prudent lorsque vous ouvrez la porte avant la fin du programme de nettoyage vapeur : l'eau située dans le fond du four est extrémement chaude.
- Ne laissez jamais d'eau, même en très petite quantité, stagner dans le four pendant une durée prolongée (ex. : toute une nuit).
- Ouvrez la porte du four et épongez l'eau restante.
- Pour nettoyer l'intérieur du four, utilisez une éponge, unerosseSouple ou un tampon à récurer en nylon imbibé(e) de nettoyant. Les traces de salissure incrustées peuvent être retirees à I'aide d'une éponge à récurer en nylon.
- Les dépôts de tartre peuvent être retirés à l'aide d'un chiffon imbibé de vinaigre.
- Nettoyez à l'eau claire et essuyez à l'aide d'un chiffon doux (n'oubliez pas la partie située sous le joint de la porte du four).
- Si le four est très sale, répêze l'opération une fois que le four est froid.
- En cas de taches de graisse importantes (ex. : après avoir fait rôtir ou griller des aliments), il est recommendé de frottier les traces de salissure incrustées à l'aide d'un nettoyant avant d'activer la fonction de nettoyage du four.
- Une fois le nettoyage terminé, laissez la porte du four entrebaillée (à 15^ ) pour permettre à la surface émaillee interne de sécher complètement.
Séchage rapide
- Laissez la porte entrouverte à environ 30^ .
- Positionnez le bouton de fonctionnement sur le mode Unique.
- Appuyez sur le bouton fonction.
- Positionné le bouton de commande de la durée / température sur Convection.
- Reglez le temps de cuisson sur 5 minutes et la température sur 50^ .
- Eteignez le four une fois cette durée écouée.

Avertissement
N'utilisez pas de vaporisateur ou de nettoyant haute pression pour nettoyer le four.
Parois externes du four
- Pour le nettoyage des parois internes et externes du four, utilisez un chiffon et un nettoyant doux ou de l'eau chaude savonneuse.
- Essuyez-les à l'aide d'un morceau de papier absorbant ou d'un chiffon sec.
- N'utilisez jamais d'éponges à récurer ni de nettoyants corrosifs ou abrasifs.
Surfaces du four en acier inoxydable
- N'utilise pas de laine de verre, d'éponges à récurer ou de produits abrasifs.
Ils risqueraient d'endommager le revêtement.
Surfaces du four en aluminium
- Essuyez délicatement la plaque à l'aide d'un chiffon doux ou d'un tissu en microfibre imbibé d'un lave-vitre non agressif.

Avertissement
Assurez-vous que le four est froid avant de le nettoyer.
Intérieur du four
- Ne nettoyez pas le joint de la porte à la main.
- N'utilise pas d'éponges à récurer réchés ou d'éponges de nettoyage.
- Afin de ne pas endommager les surfaces émailées, utilisez des nettoyants pour four disponibles dans le commerce.
- Pour 0ter la saleté incrustée, utilisez un nettoyant spécial four.
Accessoires
Nettoyez tous les ustensiles et accessoires après chaque utilisation du four et essuyez-les à l'aide d'un torchon.
Pour un nettoyage facile, faites-les trempezpendant une trentaine de minutes dans de I'eau chaude savonneuse.
Dans le cadre d'une utilisation normale, il n'est pas nécessaire de-retirer la porte. Si toute fois le retrait est nécessaire, pour le nettoyage par exemple, suivez les instructions suivantes. la porte du four est lourde.
Retrait de la porte
- Faites basculer en arrêté les fixations des deux charnières pour les ouvrir.

- Saisissez la porte du four de chaque côte au milieu.
- Faites pivoter la porte d'environ 70^ jusqu'à ce que les charnières sortent entièrement de leur logement.

Fixation de la porte
- Avec les fixations toujours ouvertes, alignez les charnières de la porte sur leur logement.

- Faites pivoter la porte vers la ligne horizontally, puis reference les fixations.


Vitre de la porte du four
La porte du four est équipée de trois vitres juxtaposées les une au-dessus des autres. Les vitres interieure et centrale peuvent être retirees pour être nettoyées.

Avertissement
- Chaque fais que vous souhaitez-retirer la porte du four, ouvrez d'abord les fixations.
- N'utilise pas de nettoyants fortement abrasifs ou de grattoirs métalliques pour nettoyer la porte du four. Ils risqueraient d'en rayer la surface et de fragiliser le verre.
- Une fois la porte montée, le retrait de certaines pieces (ex. : vitre) pourrait provoquer des blessures.

Attention
Le verre risquerait de se briser si vous exercez dessus une pression excessive, notamment au niveau des bords de la vitre avant.
Démontage de la porte
- Retirez les deux vis situées sur les côts gauche et droit de la porte.
- Otez le supporte porte.


- Retirez la vente interieure n^1 de la porte.

- Retirez la vitre interieure n^2 et les supports à ressort de la porte.

- Retirez la yourselves n°3 de la porte.



Remarque
Nettoyez les vitres avec de l'eau chaude additionné de liquide vaisselle et essuyez-les à l'aide d'un chiffon doux et propre.
Montage de la porte
- Nettoyez la vitre et les éléments intérieurs à l'aide d'eau chaude savonneuse.

Remarque
N'utilisez pas de détergents ou de tampons à récurer. Utilisez une éponge imbibée d'un nettoyant liquide ou d'eau chaude savonneuse.
- Montez la vitre n°3.
- Fixez les deux supports à ressort sur la partie supérieure de la vitre n^2 et remettez celle-ci en place.
- Montez la vente n°1 et le support sur la porte.

Remarque
Lors de la pose de la vitre interieure n^1 veillez a diriger la face imprimee vers le bas.
- Serrez les deux vis des deux côtés de la porte.

REEMPLACEMENT DE LA LAMPE

Important
Risque de chocolélectrique!
Avant de remplacer l'ampoule du four,procédez comme suit :
- éteignez le four ;
- débranchez le four de la prise murale ;
- protégez l'ampoule électrique et son cache en verre en plaçant un linge dans la partie inférieure du four.

Remarque
Les ampoules sont disponibles auprès du service après-vente SAMSUNG.
Remplacement de l'ampoule arrêté et nettoyage du cache en verre
- Retirez le cache en le tournant dans le sens inverse des aiguilles d'une montre.
- Retirez les bagues métalliques et nettoyez le cache en verre.
- Au besoin, remplacez l'ampoule halogène par une ampoule pour four de 25 W et 230 V résistante à une température de 300 °C.


Astuce
Utilisez toujours un chiffon lorsque vous manipuez l'ampoule halogène afin d'éviter de laisser des traces de doigts sur l'ampoule.
- Placez les bagues métalliques sur le cache en verre.
- Remettez le cache en place.

QUESTIONS FREQUENTES ET DÉPANNAGE
Que faire si le four nechauffe pas?
Vérifiez si l'une des solutions suivantes permet de résoudre le problème :
Le four n'est peut-être pas allumé. Allumez le four.
- L'horloge n'est peut-être pas régée. Réglez l'horloge (reportez-vous à la section « Réglage de l'horloge »).
- Vérifiez que les réglages adéquats ont bien été effectués.
- Il se peut qu'un fusible de votre habitation ait sauté ou qu'un disjoncteur ait lâché. Remplacez le ou les fusibles concernés ou remettez le disjoncteur en marche. Si ce problème se produit frequentlyment, contactez un électricien/agréé.
Que faire lorsque le four ne chauffe pas, même après le réglage des fonctionnalités du four et de la température?
Le problème peut provenir des branchements électriques internes. Contactez le service après-vente le plus proche.
Que faire lorsqu'un code d'erreur s'affiche et que le four nechauffe pas?
Le branchement du circuit électrique interne est défectieux. Contactez le service après-vente le plus proche.
Que faire si l'heure clignote?
Une coupure de courant s'est produit. Réglez l'horloge (reportez-vous à la section « Réglage de l'horloge »).
Que faire si la lumière du four ne s'allume pas?
La lumière du four est défectueuse. Remplacez l'ampoule du four (reportez-vous à la section « Remplacement de la lampe »).
Que faire lorsque le ventilateur fonctionne sans avoir eté régle au préalable ?
Après utilise, le ventilateur fonctionne jusqu'à refroidissement total du four. Contactez le service après-vente le plus proche si le ventilateur continue de fonctionner après le refroidissement complet du four.
| Codes d'erreur et de sécurité | Fonctions générales | Solution |
| E-2*1) | ERREUR CAPTEUR TEMP | Contactez le service après-venture SAMSUNG le plus proche. |
| S-01 | DISPOSITION D'ARRÊT DE SéCURITÉLe four continue de fonctionner à la température définie pendant une période prolongée. | Éteignez le four et retirez-en les alimentents. Laissez le four refroidir avant de l'utiliser à nouveau. |
| - SE -E-0*1) | Une défaillance du four peut en réduire les performances et représententer un danger pour l'utilisateur. Ne tentez pas de vous en servir. | Contactez le service après-venture Samsung le plus proche. |
| -dE- | SEPARATION MANQUANTELa plaque séparatrice n'est pas utilisée correctement. Reportez-vous à la section « Réglage du mode Séparateur » (page 17). | Insérez la plaque séparatrice pour les modes Supérieur, Double et Inférieur. Retirez la plaque pour le mode Unique. |
caracteristiques techniques
CHARACTERISTIQUES TECHNIQUES
| Alimentation | 230 V ~ 50 Hz |
| Volume (utilisable) | 65 litres |
| Puisance de sortie | 3650 W MAXI. |
| Poids | |
| Net | 48 kg env. |
| A l'expédition | 53 kg env. |
| Dimensions (l x H x P) | |
| Exterrieures | 595 x 595 x 566 mm |
| Dimensions intérieures du four | 440 x 365 x 405 mm |
Français

Lesbons gestes de mise au rebut de ce produit
(Déchets d'équipements électriques
etlectroniques)
(Applicable dans les pays de l'Union Européenne et dans d'autres pays européens pritiquant le tri sélectif)
Ce symbole sur le produit, ses accessories ou sa documentation indicate que ni ne produit, ni ses accessories Electroniques usages (charger, casque audio, cable USB, etc.) ne peuvent être jêtes avec les autres déchets mençagers. La mise au rebut inconnue de des déchets représentant des risques environnementaux et de santé publique, veillezse séparer vos produits et accessories usages des autres déchets, Vous favorisez ainsi le recyclage de la matière qui les compose dans le cadre d'un développement durable.
Les particuliers sont invitees à contacter le magain sayer avant le vendant le produit ou à se confirment à l'informateur, et à l'informateur contaminer les procédures et les points de collecte de ces produits en vue de leur recyclage.
Les entreprises et professionnels sont invite à contacter leurs fournisseurs et à consultez les clients. Les clients ne doivent s'agir dans l'acceptation des accessories ne peuvent être jêts avec les autres déchets professionnelles et commerciaux.
SAMSUNG
ELECTRONICS
Samsung Service Consommateurs
66 rue des Vanesses
BP 50116 - Villepinte
95950 ROISSYCEDex
France
Pour toute information ou tout renseignement complémentaire sur nos produits, notre service consommateurs est à votre disposition au :
01 48 63 00 00
coût d'un appel non surtaxé
Vous pouvez également vous connecter à notre site Internet :
www.samsung.com