A12-F4TF - Cuisinière FRATELLI ONOFRI - Notice d'utilisation et mode d'emploi gratuit
Retrouvez gratuitement la notice de l'appareil A12-F4TF FRATELLI ONOFRI au format PDF.
| Type d'appareil | Cuisinière |
| Alimentation | Gaz ou électrique |
| Nombre de foyers | 4 |
| Four | Oui |
| Type de four | Non précisé |
| Programmateur | Oui |
| Commandes | Manuelles |
| Matériau de la surface | Non précisé |
| Sécurité | Contrôle gaz et sécurité thermique |
| Dimensions | Non précisées |
| Poids | Non précisé |
| Installation | Par technicien qualifié |
| Entretien | Nettoyage régulier recommandé |
| Accessoires inclus | Non précisé |
| Garantie | Non précisée |
FOIRE AUX QUESTIONS - A12-F4TF FRATELLI ONOFRI
Questions des utilisateurs sur A12-F4TF FRATELLI ONOFRI
0 question sur cet appareil. Repondez a celles que vous connaissez ou posez la votre.
Poser une nouvelle question sur cet appareil
Téléchargez la notice de votre Cuisinière au format PDF gratuitement ! Retrouvez votre notice A12-F4TF - FRATELLI ONOFRI et reprennez votre appareil électronique en main. Sur cette page sont publiés tous les documents nécessaires à l'utilisation de votre appareil A12-F4TF de la marque FRATELLI ONOFRI.
MODE D'EMPLOI A12-F4TF FRATELLI ONOFRI
Nous vous remercions d'avoir choisi notre produit, désormais cuisiner va devenir un véritable plaisir grâce à votre nouvelle cuisinière.
Nous vous conseillons de lire attentivement toutes les instructions contenues dans ce manuel, elles vous guideront pour une utilisation adaptée et sûre de votre cuisineire. Ces instructions permettent également de connaître tous les composants de la cuisineire.
Vous trouvezé également des conseils concernant l'utilisation des récipients, des ustensiles, des positions des commandes et les programmations des commandes.
Il est important d'effectuer correctement les opérations de nettoyage indiquées dans ce manuel afin de préserver la cuisinière dans des conditions optimales.
Les paragraphes sont présentés de manière à découvrir progressivement toutes les fonctionnalités de la cuisine, les textes sont facilement compréhensibles, agrémentés d'images détaillées et de pictogrammes d'utilisation courante.
Une lecture approfondie de ce manuel vous donnera les réponses aux questions que vous vous posez sur la bonne utilisation de votre nouvelle cuisine.

INSTRUCTIONS POUR L'INSTALLATEUR: elles s'adressent à un technicien qualifié. Ce dernier devra vérifier l'installation du gaz, effectuer l'installation, la mise en service et le branchement de l'appareil.

INSTRUCTIONS POUR L'UTILISATEUR: elles fournissent les conseils d'utilisation, la description des commandes et les opérations de nettoyage et de maintenance de l'appareil.
- Avertissement pour la sécurité et l'utilisation 5
- Informations générales 6
3.1 Avertissement général 7 3.2 Branchement électrique 8 3.3 Puissance du plan vitrocéramique 10 3.4 Puissance du grill à roche volcanique 10 3.5 Ventilation des locaux dans lesquels sont installés les appareils à gaz 10 3.6 Branchement au gaz 11 3.7 Réglages du gaz 13 3.8 Branchement au gaz butane-propane 13
- Opérations finales 14
4.1 Fixation du plan top rabaisse 14 4.2 Emplacement et mise à niveau de la cuisine 14
5. Description des commandes 15
5.1 Le panneau frontal 15
- Utilisation du plan de cuisson 20
6.1 Allumage des brûleurs 20 6.2 Extinction des brûleurs 20
- Utilisation de la friteuse 21
7.1 Avant de mettre la friteuse en fonction 21 7.2 Comment faire 21 7.3 Temps indicatifs de friture 22 7.4 Extinction 22
- Utilisation du fry top / gril à bifteck 23
8.1 Avant de mettre en fonction le fry-top / grill à bifteck 23 8.2 Allumage 23 8.3 Tableau d'utilisation du régulateur d'énergie 23 8.4 Extinction 23
- Utilisation du grill à roche volcanique 24
9.1 Avant de mettre le grill en fonction 24 9.2 Mise en marche 24 9.3 Tableau d'utilisation du régulateur d'énergie 25 9.4 Extinction 25
- Utilisation du plan vitrocéramique 26
10.1 Avertissements généraux 26 10.2 Allumage 26 10.3 Extinction 26
- Utilisation du four électrique 27
11.1 Avertissements généraux 27 11.2Premier allumage du four 27 11.3 Cuissons traditionnelles 27 11.4 Cuisson à convection 27 11.5 Cuisson au grill ventilé 27 11.6 Cuisson au grill + tournebroche 27 11.7 Cuisson au tournebroche 28 11.8 Décongélation 28 11.9 Extinction du four 28 11.10 Tiroir et logement de rangement 28
12. Utilisation du four auxiliaire à convection naturelle 29
12.1Premier allumage du four auxiliaire 29 12.2 Cuisson au grill (four auxiliaire) 29 12.3 Cuisson au tournebroche (four auxiliaire) 29 12.4 Extinction du four auxiliaire 29
13.1 Conseils pour l'utilisation correcte des brûleurs de plan 30 13.2 Conseils pour l'utilisation correcte de la friteuse 30 13.3 Conseils pour l'utilisation correcte du fry-top / grill à bifteck 30 13.4 Conseils pour l'utilisation correcte du gril à roche volcanique 30 13.5 Conseils pour l'utilisation correcte du plan vitrocéramique 31 13.6 Conseils pour une utilisation du four 31
14.1 Nettoyage de la surface en acier inox 34 14.2 Nettoyage des surfaces émailées 34 14.3 Nettoyage des boutons et du panneau de commandes 34 14.4 Nettoyage des grilles et des brûleurs 34 14.5 Nettoyage des bougies et thermocouples 35 14.6 Nettoyage de la friteuse 35 14.7 Nettoyage du fry-top / grill à bifteck 35 14.8 Nettoyage du grill a roche volcanique 36 14.9 Nettoyage du plan vitrocéramique 36 14.10 Nettoyage du four 37 14.11 Changement de la lampe d'éclairage four 37
15. Maintenance exceptionnelle 38
15.1 Démontage de la porte du four 38 15.2 Nettoyage du ventilateur du four 38
Classes des appareils
Les appareils de cuisson décrits dans ce manuel d'utilisation appartiennent aux classes d'installations suivantes:
- Classe 1: appareil de cuisson non encastrable;

- Classe 2 - sous classe 1: appareil de cuisson encastrable entre deux meubles composé d'une unité unique mais pouvant également être installé de manière à ce que les parois latérales soient accessibles.

1. Avertissement pour la sécurité et l'utilisation

CE MANUEL FAIT PARTIE INTEGRANTE DE L'APPAREIL. IL EST NECESSAIRE DE LE CONSERVER INTEGRALEMENT ET DE LE GARDER A PORTEE DE MAIN DURANT Toute LA DUREE DE VIE DE LA CUISINIÈRE. NOUS VOUS CONSEILLONS DE LIRE ATTENTIVEMENT TOUTES LES INSTRUCTIONS CONTENUES DANS CE MANUEL AVANT D'UTILISER LA CUISINIÈRE. CONSERVER EGALEMENT LA SERIE DE BUSES FOURNIE. L'INSTALLATION DEVRA ETRE EFFECTUE PAR DU PERSONNEL QUALIFIE ET DANS LE RESPECT DES NORMES EN VIGueur. CET APPAREIL EST PREVU POUR UN EMPLOYOI DE TYPE DOMESTIQUE, IL EST CONFORME AUX DIRECTIVES CEE ACTUELLEMENT EN VIGueur. L'APPAREIL EST CONSTRUIT POUR EFFECTUER LES FONCTIONS SUIVANTES: CUIRE ET RECHAUFFER DES ALIMENTS, IL N'EST ADAPTE A AUCUNE AUTRE UTILISATION. LE CONSTRUCTEUR DECLINE Toute RESPONSABILITE POUR DES UTILISATIONS DIFFERENTES DE CELLES INDIQUEES.

NE PAS LAISER LES RESTES D'EMBALLAGE SANS SURVEILLANCE DANS LE CADRE DE VOTRE FOYER. SEPARER LES DIFFERENTS MATERIALS PROVENANT DE L'EMBALLAGE ET DEPOSER LES DANS LE CENTRE DE TRI LE PLUS PROCHE DE CHEZ VOUS.

LE BRANCHEMENT TERRE DOIT ETRE EFFECTUE SELON LES MODALITES PREVUES PAR LES NORMES DE SECURITE DE L'INSTALLATION ELECTRIQUE.

LA FICHE A RELIER AU CABLE D'ALIMENTATION ET LA PRESE DEVRONT ETRE DU MEME TYPE ET CONFORMES AUX NORMES EN VIGUEUR. APRES L'INSTALLATION DE L'APPAREIL S'ASSURER QUE LA FICHE DE PRESE DE COURANT SOIT ACCESSIBLE POUR L'INSPECTION PERIODIQUE. NE JAMAIS DEBRANCHER LA PRESE EN TIRANT LE CABLE.

SI LES ROBINETS DE GAZ RESISTENT A LA MANCEUVRE DE ROTATION DES BOUTONS, IL EST NECESSAIRE DE LES GRAISSER EN UTILISANT UN PRODUIT ADAPTE AUX HAUTES TEMPERATURES. POUR CETTE OPERATION IL EST NECESSAIRE DE FAIRE APPEL AU SERVICE ASSISTANCE.

JUSTE APRES L'INSTALLATION EFFECTUER UN TEST DE BRANCHEMENT DE L'APPAREIL EN SUIVANT LES INSTRUCTIONS DECRITES PLUS LOIN. SI L'APPAREIL NE FONCTIONNE PAS LE DEBRANCHER DU RESEAU ELECTRIQUE ET APPELER LE CENTRE D'ASSISTANCE TECHNIQUE LE PLUS PROCHE. NE PAS TENTER DE LE REPARER SOI-MEME.

A LA FIN DE CHAQUE UTILISATION DU PLAN, TOUJOURS VERIFIER QUE LES BOUTONS DE COMMANDE SONT EN POSITION "ZERO" (ETEINT).

NE JAMAIS METTRE D'OBJECTS INFLAMMABLES DANS LE FOUR: SI LE FOUR EST ALLUME CELA PEUT PROVOQUER UN INCENDIE. EN CAS D'INCENDIE: FERMER LE ROBINET GENERAL D'ALIMENTATION GAZ ET COUPER LE COURANT ELECTRIQUE. NE PAS JETER D'EAU SUR DE L'HUILE EN FEU OU EN TRAIN DE FRIRE. NE PAS ENTREPOSER DE PRODUITS INFLAMMABLES OU DE Bouteilles AEROSOLS PRES DE L'APPAREIL ET NE PAS VAPORISER A PROXIMATE DES BRULEURS ALLUMES. NE PAS PORTER DE VETEMENTS AMPLES OU DES ACCESSOIRENS NON ADHERENTS QUAND LES BRULEURS SONT ALLUMES. SI LES TISSUS PRENNENT FEU, CELA PEUT PROVOQUER DE GRAVES BRULURES.

NE PAS POSER SUR LE PLAN DE CUISSON DES POELES QUI N'ONT PAS UN FOND PARFAITEMENT LISSE ET REGULIER.

NE PAS UTILISER DES RECIPIENTS GRIL POUVANT DEPASSER LE PERIMETRE EXTERNE DU PLAN DE CUISSON.

LA PLAQUE SIGNALETIQUE PORTANT LES CARACTERISTIQUES TECHNIQUES, LE NUMERO DE SERIE ET LE MARQUAGE SE TROUVE A L'ARRIERE DE L'APPAREIL. LA PLAQUE NE DOIT JAMAIS ETRE DEPLACEE.

L'APPAREIL EST PREVU POUR ETRE UTILISE PAR DES ADULTES. NE JAMAIS LAISSER DES ENFANTS S'APPROCHER OU JOUER AVEC L'APPAREIL. EVITER DE LAISNER SUR L'APPAREIL DES OBJECTS POUVANT ATTIRER L'ATTENTION DES ENFANTS. TENIR LES ENFANTS ELOIGNES DE L'APPAREIL. NE JAMAIS OUBLIER QUE CERTAIN PARTIES DE L'APPAREIL AINSI QUE LES POELES UTILISEES DEVIENNENT TRES CHAUDES ET DANGEREUSES LORS DU FONCTIONNEMENT MAIS AUSSI APRES DURANT TOUT LE TEMPS DE REFROIDISSEMENT. FAIRE ATTENTION AUX MANCHES DES POELES: LES DISPOSER DE MANIÈRE A CE QUE LES ENFANTS NE PUISSENT PAS LES ATTRAPER.

S'APPUER OU S'ASSEOIR SUR LA PORTE DU FOUR OUVERTE, DES TIROIRS OU DU COMPARTIMENT RANGEMENT PEUT FAIRE BASCULER L'APPAREIL ET ETRE DANGEREUX POUR LES PERSONNES. LES TIROIRS ONT UNE PORTEE DYNAMIQUE DE 25 KG.

L'APPEAR MIS HORS SERVICE DEVRA ETRE DEPOSE DANS UN CENTRE DE TRI DES DECHETS.

Le constructeur décline toute responsabilité concernant des eventuels dommages sur des personnes ou des choses, causés par le non-respect des instructions décrites ci-dessus ou dérivants d'une utilisation inappropriée d'une partie de l'appareil ou de l'utilisation de pièces de rechange non originales.
2. Informations générales
Ce produit répond aux exigences des directives communautaires:
73/23/CEE relative à la "Basse tension". 89/336/CEE relative à la "Perturbation électromagnétique". 90/396/CEE relative aux "Appareils à gaz". 89/109/CEE relative aux "Matériaux en contact avec les aliments".
Ces directives sont également conformes à la Directive Machine 98/37/CE.
Cet appareil, avant de quitter l'usine, a été vérifié et mis au point par du personnel expert et spécialisé afin de garantir les résultats de fonctionnement. Toutes réparations ou mise au point ultérieures devra être effectuée avec le maximum de soin et d'attention. Nous vous recommandons de vous adresser au Concessionnaire qui vous a vendu l'appareil ou à notre Centre d'Assistance le plus proche en spécifiant le type de problème et le modèle de l'appareil.
3. Installation
DIMENSIONS DU PLAN TOP RABAISSE DIMENSIONS DES PLANS TOP



DIMENSIONS DES CUISINIÈRES






3.1 Avertissement général
Les installations suivantes devront être effectuées par un technicien installateur qualifié. Le technicien installateur est responsable de la bonne mise en marche selon les normes de sécurité en vigueur. Avant d'utiliser l'appareil, enlever les protections en plastique sur le panneau de commandes, sur les parties en acier, inox etc.
Le constructeur décline toute responsabilité concernant des dommages sur des personnes, des animaux ou des choses provoqués par le non-respect des normes indiquées ci-dessus (cf. chapitre "1. Avertissement pour la sécurité et l'utilisation").
Les données techniques sont indiquées sur la plaque située à l'arrière de l'appareil. Les conditions de réglage sont reportées sur une étiquette sur l'emballage de l'appareil.
Ne pas utiliser la poignée de la porte du four pour le déplacer, y compris pour retirer l'appareil de l'emballage.
3.2 Branchement électrique

Vérifier que le voltage et la capacité de la ligne d'alimentation correspondent aux caractéristiques indiquées sur la plaque située à l'arrière de l'appareil.
La plaque ne doit jamais être déplacée.

La fiche à l'extrémité du câble d'alimentation ainsi que la prise murale doivent être du même type et conformes aux normes sur les implantations électriques en vigueur. Vérifier que la ligne d'alimentation est pourvue d'une prise de terre. Après l'installation de l'appareil, la fiche de prise de courant doit être accessible pour l'inspection périodique.

Prévoir sur la ligne d'alimentation de l'appareil un dispositif d'interruption omnipolaire avec une distance d'ouverture des contacts égale ou supérieure à 3 mm placé de manière accessible et proche de l'appareil.

Éviter l'utilisation de réducteurs, adaptateurs ou dérivateurs.
Avant d'effectuer le branchement électrique, vérifier l'efficacité de la prise de terre.
Vérifier que la valve de limitation et l'installation domestique sont en mesure de supporter la charge électrique de l'appareil.
Le câble de terre jaune/vert ne doit pas subir d'interruption.
Le câble électrique ne doit pas être en contact avec des parties ayant des températures supérieures à 50^ en plus de la température ambiante.
3.2.1 Section des câbles d'alimentation électrique
Selon le type d'alimentation, utiliser un câble répondant aux caractéristiques conformes au tableau suivant.
Fonctionnement à 400V3N~ (modèles branchés selon le SCHEMA "A") : utiliser un cable pentapolaire de type H05RR-F/H05RN-F (cable de 5 × 2.5 mm^2).
Fonctionnement à 230V3~ (modèles branchés selon le SCHEMA "C" mais commutes par l'installateur selon le SCHEMA "B") : utiliser un cable tétrapolaire de type H05RR-F/H05RN-F (cable de 4 x 4 mm²).
Fonctionnement à 230V1N~ (modèles branchés selon le SCHEMA "C"): jusqu'à 2,9 kW utiliser un cable tripolaire de type H05RR-F/H05RN-F (cable de 3 x 1,5 mm²); au-delà de 2,9 kW jusqu'à 5,4 kW utiliser un cable tripolaire de type H05RR-F/H05RN-F (cable de 3 x 2.5 mm²).
L'extrémité à relier à l'appareil devra avoir le fil de terre (jaune/vert) plus long d'au moins 20mm.



3.2.2 Type d'alimentation
Il est possible d'obtenir différents branchements en fonction du voltage en déplaçant simplement les petits câbles sur la boîte à bornes comme indiqué dans les schémas suivants. Selon le modèle, se reporter au tableau "BRANCHEMENT À LA BOÎTE À BORNES".
SCHEMA BRANCHEMENT A LA BOITE À BORNES
| “A” | MODELE | PUISSANCE KW | ALIMENTATION |
| 400V3N~L1 1L2 2L3 3N E 1/2 | PLAN TOP 4 / 6 / 8 BRULEURS | 0,006 | |
| PLAN TOP 4 / 6 BRULEURS + B / T / C | 2,4 | ||
| PLAN TOP 4 / 6 BRULEURS + F | 2,2 | ||
| PLAN TOP 4 / 6 BRULEURS + G | 2,5 | SCHEMA “C” | |
| PLAN TOP 4 BRULEURS + B / T + C | 4,8 | ||
| PLAN TOP 4 BRULEURS + B / T + F | 4,6 | ||
| PLAN TOP 4 BRULEURS + B / T + G | 4,9 | ||
| PLAN TOP VITROCERAMIQUE (4 RESISTANCES) | 7,6 | SCHEMA “A” | |
| PLAN TOP VITROCERAMIQUE (5 RESISTANCES) | 9,8 | ||
| CUISINIÈRE 4 BRULEURS (1 FOUR) | 2,2 | ||
| CUISINIÈRE 6 / 8 BRULEURS (1 FOUR) | 2,9 | ||
| CUISINIÈRE 4 / 6 BRULEURS (1 FOUR) + B / T / C | 5,3 | SCHEMA “C” | |
| CUISINIÈRE 4 / 6 BRULEURS (1 FOUR) + F | 5,1 | ||
| CUISINIÈRE 4 / 6 BRULEURS (1 FOUR) + G | 5,4 | ||
| CUISINIÈRE 4 BRULEURS (1 FOUR) + B / T + C | 7,7 | ||
| CUISINIÈRE 4 BRULEURS (1 FOUR) + B / T + F | 7,5 | ||
| CUISINIÈRE 4 BRULEURS (1 FOUR) + B / T + G | 7,8 | SCHEMA “A” | |
| CUISINIÈRE PLAN VITROCERAMIQUE (1 FOUR) (4 RESISTANCES) | 9,8 | ||
| CUISINIÈRE PLAN VITROCERAMIQUE (1 FOUR) (5 RESISTANCES) | 12,7 | ||
| CUISINIÈRE 6 BRULEURS (2 FOURS) | 3,9 | SCHEMA “C” | |
| CUISINIÈRE 8 BRULEURS (2 FOURS) | 4,6 | ||
| CUISINIÈRE 4 BRULEURS (2 FOURS) + B / T / C | 6,3 | ||
| CUISINIÈRE 4 BRULEURS (2 FOURS) + F | 6,1 | ||
| CUISINIÈRE 4 BRULEURS (2 FOURS) + G | 6,4 | ||
| CUISINIÈRE 6 BRULEURS (2 FOURS) + B / T / C | 7,0 | ||
| CUISINIÈRE 6 BRULEURS (2 FOURS) + F | 6,8 | SCHEMA “A” | |
| CUISINIÈRE 6 BRULEURS (2 FOURS) + G | 7,1 | ||
| CUISINIÈRE 4 BRULEURS (2 FOURS) + B / T + C | 9,4 | ||
| CUISINIÈRE 4 BRULEURS (2 FOURS) + B / T + F | 9,2 | ||
| CUISINIÈRE 4 BRULEURS (2 FOURS) + B / T + G | 9,5 | ||
| CUISINIÈRE PLAN VITROCERAMIQUE (2 FOURS) (5 RESISTANCES) | 13,7 | ||
| B = GRIL À BIFTECK | |||
| T = FRY-TOP | |||
| C = PLAQUE VITROCERAMIQUE | |||
| F = FRITEUSE | |||
| G = GRIL |

3.2.3 Changement du câble électrique
Pour le changement du câble électrique il est nécessaire d'accéder à la boîte à bornes. Elle est située à l'arrière de l'appareil, en haut à gauche, comme indiqué sur le dessin.
Pour changer le câble, suivre les indications :
ouvrir la boîte à bornes; - dévisser la vis A qui bloque le câble; - desserrer les contacts à vis et changer le câble avec une longueur égale et correspondant aux caractéristiques décrites dans le tableau au paragraphe "3.2.1 Section des câbles d'alimentation électrique"; - le conducteur de terre "jaune-vert" doit être relié à la borne et doit être 20mm plus long que les conducteurs de ligne; - le conducteur neutre "bleu" doit être relié à la borne qui porte la lecture N: le conducteur de ligne doit être relié à la borne qui porte la lecture L.

3.3 Puissance du plan vitrocéramique
Le plan vitrocéramique possède différentes puissances d'absorption en fonction du type d'élément chauffant utilisé. Le dessin indique la valeur de ces puissances.
Dans les cas prévus, la première valeur numérique se réfère à la puissance totale, alors que la valeur qui suit le symbole "I" se réfère au diamètre interne, à l'exception d'un élément chauffant central pour lequel la valeur qui suit le symbole "I" se réfère au diamètre antérieur.


3.4 Puissance du grill à roche volcanique
Le grill à roche volcanique a une absorption de 2500W. L'installation de cet appareil doit prendre en compte la distribution de cette puissance dans des conditions de parfaite sécurité.
3.5 Ventilation des locaux dans lesquels sont installés les appareils à gaz
Cet appareil n'est pas relié à un dispositif de vidange des produits de la combustion, il doit donc être installé et branché conformément aux normes d'installation en vigueur. Il est particulièrement important de prendre en considération les normes applicables en matière d'aération du lieu d'installation.
Cet appareil doit être installé dans un local bien ventilé, selon les normes en vigueur, afin de permettre grâce aux ouvertures sur les parois externes, une bonne ventilation pouvant assurer de manière permanente et suffisante l'émission de l'air nécessaire à une bonne combustion et l'évacuation de l'air vicié.

Si seul cet appareil à gaz est installé dans le local, il faudra prévoir une hotte afin d'assurer l'évacuation naturelle et directe de l'air vicié, à l'aide d'un conduit vertical d'une longueur d'au moins deux fois le diamètre et une section minimum d'au moins 100cm²
L'émission d'air frais étant indispensable, il est nécessaire de prévoir une ouverture d'au moins 100cm² communiquant directement vers l'extérieur, située proche du niveau du sol, de manière à ce que rien ne puisse l'obstruer du côté externe ou interne de la paroi, et pour ne pas gêner la combustion des brûleurs et l'évacuation de l'air vicié. Respecter une différence de hauteur par rapport à l'ouverture de sortie d'au moins 180cm.


La quantité d'air nécessaire à la combustion ne doit pas être inférieure à 2m³/h par kW de puissance (voir puissance totale en kW indiquée sur la plaque des caractéristiques de l'appareil).

Dans tous les autres cas, c'est-à-dire lorsque d'autres appareils à gaz sont présents dans le local, ou s'il n'est pas possible d'obtenir une ventilation naturelle directe, il est nécessaire de réaliser une ventilation naturelle indirecte ou une ventilation forcée : pour ce type d'intervention, s'adresser à un technicien qualifié qui effectuera l'installation et la réalisation de l'installation de ventilation dans le respect des précautions continues dans les normes en vigueur.
Le positionnement des ouvertures devra être effectué de manière à éviter la formation de courants d'air insupportables pour les occupants. Pour la vidange des produits de la combustion, il est interdit de se servir des conduits des fumées déjà utilisées par d'autres appareils.

3.6 Branchement au gaz
Il est recommandé de contrôler que l'appareil est adapté au type de gaz distribué. Le branchement au tuyau du gaz doit être effectué dans les règles de l'art, conformément aux normes en vigueur qui prescrivent l'installation d'un robinet de sécurité situé à l'extrémité du tuyau. Le tuyau de branchement au gaz 1/2 " filtré est situé à l'arrière de l'appareil à droite.

Pour le gaz butane et propane, il est nécessaire de prévoir un réducteur de pression conforme aux normes en vigueur. Les joints d'étanchéité devront être conformes aux normes en vigueur. Lorsque les opérations de branchement au gaz sont terminées, contrôlez l'étanchéité des raccords avec une solution d'eau et de savon.
Il est possible d'effectuer le branchement gaz des manières suivantes:
- avec un tube rigide en fer ou cuivre;
- avec un tube flexible en acier inoxydable à paroi continue (sans interruption) avec attache mécanique conformes aux normes en vigueur (longueur maximum du tube étendu 2000 mm); le tube est directement relié au coude de la rampe; par l'insertion d'un tube flexible en caoutchouc conforme aux normes en vigueur; ce tube est directement raccordé sur l'embout P relatif au gaz utilisé et bloqué avec un collier F conformes aux normes en vigueur. Dans ce cas, contrôler la date limite d'utilisation du tube estampillée et le changer avant la date.
GAZ BUTANE-PROPANE



En utilisant les tubes flexibles en caoutchouc d'une longueur max. 1500 mm :
- éviter tout étranglement ou écrasement du tube;
- ils ne doivent pas être soumis à des efforts de traction ou de torsion;
- éviter les contacts avec des objets tranchants, arêtes vives, etc... ne pas les mettre en contact avec des parties qui peuvent atteindre des températures supérieures à 70°C
- faire en sorte qu'ils puissent être inspectés sur tout le parcours.

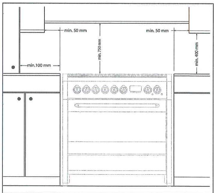
Le revêtement du meuble doit être constitué d'un matériel résistant à la chaleur (minimum 90°C). Si l'appareil est installé près d'un meuble, respecter les espaces minimum comme indiqués suivant le diagramme suivant.


3.7 Réglages du gaz
Si l'appareil de cuisson n'est pas adapté au type d'alimentation disponible, il est nécessaire de changer les injecteurs, régler le débit minimum et changer l'embout.
Pour changer les injecteurs du plan de cuisson, effectuer les opérations suivantes :
enlever les grilles; enlever les bruleurs et les couronnes (Fig. A); - extraire l'injecteur (Fig. B) et le changer avec un injecteur adapté au nouveau type de gaz (voir "TABLEAU GENERAL INJECTEURS"); - si l'appareil est pourvu de pieces d'adaptation, replacer l'étiquette indiquant le type de gaz (située derrière l'appareil) par la nouvelle étiquette fournie avec les injecteurs de rechange; - remonter le tout en effectuant les opérations dans le sens inverse du démontage en faisant attention de bien être en place la couronne sur le brûleur.

3.7.1 Débit minimum des robinets du plan avec valve
- Allumer le brûleur et tourner le levier de commande sur la position de début minimum; à enlever la poignée;
- Avec un tournevis, régler la vis interne Z jusqu'à obtenir une flamme minimum correcte;
- Remonter la poignée.

3.7.2 Débit minimum des robinets du plan sans valve
- Allumer le brûleur et tourner le levier de commande sur la position de début minimum 6 ; enlever la poignée ;
- Insérer un petit tournevis dans la tige du robinet et régler la vis interne Z jusqu'à obtenir une flamme minimum correcte;
- Remonter la poignée.

- Dévisser la vis Z de réglage pour augmenter le début ou au contraire la visser pour le diminuer. Le réglage est correct quand la flamme minimum mesure environ 3 ou 4 mm. Pour le gaz butane/propane, la vis de réglage doit être visser à fond.
- Quand on passe d'un coup du début maximum au début minimum et vice versa, vérifier que la flamme ne s'éteint pas.
TABLEAU GENERAL INJECTEURS
| TYPE DE GAZ | mbar | BUSE N. | BRULEURS POSITION TYPE | PUISSANCE Watt | CONSOMMATION | |
| MAX. | MIN. | MAX. | ||||
| NATUREL G20/G25 | 20/25 | 115 | RAPIDE | 3000 | 750 | 286 l/h |
| 97 | SEMI-RAPIDE | 1750 | 480 | 167 l/h | ||
| 72 | AUXILIAIRE | 1000 | 330 | 95 l/h | ||
| 128 | TRIPLE COURONNE | 3300 | 1300 | 314 l/h | ||
| 94 | PLAT A POISSON | 1900 | 750 | 181 l/h | ||
| BUTANE G30 | 28/30 | 85 | RAPIDE | 3000 | 750 | 219 g/h |
| 65 | SEMI-RAPIDE | 1750 | 480 | 128 g/h | ||
| 50 | AUXILIAIRE | 1000 | 330 | 73 g/h | ||
| PROPANE G31 | 37 | 93 | TRIPLE COURONNE | 3300 | 1300 | 241 g/h |
| 68 | PLAT A POISSON | 1900 | 750 | 138 g/h | ||
3.8 Branchement au gaz butane-propane
Utiliser un régulateur de pression et réaliser le branchement sur la bouteille en respectant les indications établies par les normes en vigueur.



4.1 Fixation du plan top rabaisse
À la fin des opérations de branchement au gaz et à l’électricité, fixer le plan top rabaisse au meuble de soutien avec les étriers A et les quatre vis B.

Vérifier que les tuyaux de gaz et les câbles électriques ne sont pas écrasés et que le passage n'est pas obstrué.

4.2 Emplacement et mise à niveau de la cuisine

Après avoir procédé au branchement électrique et gaz, élever la cuisinière grâce aux quatre pieds réglables.

Pendant les opérations de positionnement, dans le cas où il faut trainer l'appareil, il est recommandé de bien visser les pieds et de procéder à leur réglage lorsque on a définitivement positionné l'appareil.
5.1 Le panneau frontal
Toutes les commandes du plan et du four sont réunies sur le panneau frontal.




Description bouton des bruleurs du PLAN
L'allumage de la flamme se fait en appuyant et en tournant en même temps le bouton dans le sens contraire des aiguilles d'une montre sur le symbole flamme minimum .
Pour régler la puissance de la flamme, tourner le bouton sur la zone entre le maximum et le minimum. Pour éteindre le brûleur, remettre le bouton en position.

EMPLACEMENT DES BRULEURS – Description des symboles

ARRIEREGAUCHE

ARRIÈRE DROIT

ARRIERE CENTRAL GAUCHE

ARrière CENTRAL DROIT

AVANT CENTRAL

ARRIÈRE CENTRAL

AVANT CENTRAL GAUCHE

AVANT CENTRAL DROITE

AVANT GAUCHE

AVANT DROIT
Description des boutons de la friteuse
Le bouton du thermostat qui commande la température de l'élément chauffant est réglable à 200°C. Il existe deux témoins : le témoin rouge qui signale le fonctionnement de la friteuse ; et le témoin orange qui s'allume durant la phase de chauffe. Lorsque la température demandée est atteinte, le témoin orange s'éteint. Si durant la friture la température de l'huile baisse, la chauffe se remet automatiquement en route et le témoin orange s'allume jusqu'à ce que soit atteinte la température indiquée par le thermostat.

Description bouton du fry-top / GRIL à bifteck et GRIL
FRY-TOP/GRIL À BIFTECK: est doté d'une chauffe différentiée. Il est possible d'utiliser toute la superficie de cuisson ou uniquement une des deux moitiés avant ou arrière. Les boutons des régleurs d'énergie commandent de manière singulière la température des deux éléments chauffants. Un témoin rouge indique la mise en marche de la chauffe.

GRIL: deux voyants lumineux fournissant les informations fondamentales sur le fonctionnement de l'appareil. L'allumage du voyant orange indique que l'appareil est sous tension électrique (allumé), le voyant rouge s'allume quand l'élément réchauffant est en phase de chauffage.
DISPOSITION DES ELEMENTS CHAUFFANTS - Description des symboles

ARRIÈRE

AVANT
Afin de faciliter le contrôle du temps de friture, l'appareil est doté d'un minuteur avec une sonnerie. Pour charger la sonnerie, tourner à fond le bouton dans le sens des aiguilles d'une montre. Le temps désiré peut être programmé jusqu'à 60 minutes. Une sonnerie prévient que le temps programmé est écoulé. Les minuteurs n'ont aucune influence sur le chauffage de la friteuse et du grill.

Description boutonsdu PLAN vitroceramique
En plus des boutons normaux de contrôle du réglage d'énergie, le plan vitrocéramique est doté d'un bouton pour la chauffe différente : les positions de 1 à 11 commandent la chauffe de l'objet interne. En plaçant le bouton sur le symbole © on met en fonction la chauffe de l'objet externe.


DISPOSITION DES ELEMENTS RAYONNANTS - Description des symboles

ARRIÈRE GAUCHE

ARRIÈRE DROIT

AVANT GAUCHE

AVANT DROIT

CENTRAL
Description bouton du FOUR electrique
Le four électrique est commandé par deux boutons : bouton de sélection fonction et bouton thermostat. Ils permettent de choisir le type de chauffe le plus adapté aux exigences de cuisson, en inscrivant de manière appropriée les éléments chauffants et en réglant la température sur la valeur désirée (de 50°C à MAX).


La position V du bouton thermostat met en marche le ventilateur centrifuge du four.
Sous le bouton du four, deux témoins sont présents : le témoin rouge indique la mise en marche du four ; le témoin orange indique que la température demandée est atteinte. Lorsque le témoin orange s'allume et s'éteint, c'est qu'il est en train d'intervenir automatiquement pour maintenir à l'intérieur du four la température programmée par le thermostat.
Le four est muni d'une lampe d'éclairage interne. Durant le fonctionnement, la lampe est toujours allumée. Si l'on souhaite l'utiliser lorsque le four est éteint pour les opérations de nettoyage, tournez le bouton de sélection fonction sur le symbole
Descriptions des symboles du bouton de selection fonction

ALLUMAGE DE LA
Lampe interne du four

ELEMENTS CHAUFFANTS
SUPERIEURS ET INFERIEURS

ELEMENT CHAUFFANT
SUPERIEUR

ELEMENT CHAUFFANT
INFERIEUR

ELEMENTS GRIL

ELEMENTS GRIL-VENTILATEUR
ELEMENTS CHAUFFANTS SUPERIEURS ET INFERIEURS - VENTILATEUR

ELEMENT CHAUFFANT-CONVECTION

DECONGELATION
Description bouton du FOUR electrique auxiliaire
Certaines modèles de cuisine sont dotés d'un four électrique auxiliaire à convection naturelle, commandé par un seul bouton. Il permet de choisir le type de chauffe le mieux adapté aux différentes exigences de cuissons, en insérant de manière appropriée les éléments chauffants et en réglant la température sur la valeur désirée (de 60 à MAX). Sur le même bouton il est aussi possible de programmer les fonctions décrites dans le tableau.

Sous le bouton du four auxiliaire il existe une lampe témoin orange qui indique que la température programée à été atteinte. Lorsque le témoin orange s'allume et s'éteint c'est qu'il est en train d'intervenir automatiquement pour maintenir à l'intérieur du four la température programmée par le thermostat.
Le four auxiliaire est muni d'une lampe d'éclairage interne. Durant le fonctionnement, la lampe est toujours allumée. Si l'on souhaite l'utiliser lorsque le four est éteint pour les opérations de nettoyage, tourner le bouton de sélection fonction sur le symbole
Description des symboles du bouton du FOUR electrique auxiliaire

ALLUMAGE DE LA
Lampe interne du four
60+MAX
ELEMENT CHAUFFANT
INFERIEUR ET SUPERIEUR

ELEMENT CHAUFFANT
INFERIEUR

ELEMENT CHAUFFANT
SUPERIEUR

ELEMENT GRIL + TOURNE BROCHE
L'afficheur de fin de cuisson et le bouton de commande du four principal n'influencent pas sur le fonctionnement du four auxiliaire.

Description afficheur de fin de cuisson du FOUR electrique
L'afficheur de fin de cuisson contrôle électroniquement le fonctionnement du four. La programmation de l'afficheur permet de programmer l'allumage ou l'extinction du four en choisissant les horaires désirés.


BOUTON MINUTEUR BOUTON DUREE CUISSON BOUTON FIN DE CUISSON BOUTON FONCTIONNEMENT MANUEL BOUTON DIMINUTION VALEUR + BOUTON AUGMENTATION VALEUR
Reglage de l'heure
Lors de la première utilisation du four ou après une coupure de courant électrique, l'afficheur clignote et indique 0:00.
En appuyant sur la touche, on arrête le clignotement. En appuyant pendant 5 secondes sur les touches de variations valeurs - ou +, on ajoute ou retire une minute à chaque pression. Appuyer sur une des deux touches de variation valeur jusqu'à ce que l'heure soit correctement réglée.

Avant chaque programmation de l'afficheur de fin de cuisson, sélectionner la fonction et la température désirée.
Cuisson semi-automatique
Cette programmation permet l'extinction automatique du four en fin de cuisson.
Appuyer sur la touche l'afficheur s'allume et indique le chiffre 0:00; garder appuyé et presser en même temps les touches de variations valeur - ou + pour programmer la durée de la cuisson.
En relâchant la touche se met en route le compteur de la durée de cuisson programmée et sur l'afficheur apparait l'heure courante en même temps que les symboles AUTO et
CuissoN Automatique
Ce réglage permet l'allumage et l'extinction automatique du four.
En appuyant sur la touche l'afficheur s'allume et indique 0:00; laisser appuyé et presser en même temps les touches de variations valeur - ou + pour programmer la durée de cuisson.
En appuyant sur la touche apparait sur l'afficheur la somme de l'heure courante plus la durée de la cuisson. Laisser appuyé et presser en même temps sur les touches de variations valeur - ou + pour régler l'heure de fin de cuisson.
En relâchant le bouton © le compteur se met en route et sur l'afficheur apparait l'heure courante avec les symboles AUTO et ®

Après la programmation, pour vérifier le temps de cuisson restant, appuyer sur la touche ; pour voir l'heure de fin de cuisson, appuyer sur la touche
Fin de cuisson
À la fin de la cuisson, le four s'éteint automatiquement et une sonnerie intermittente se déclenche. À la fin de la sonnerie, l'afficheur se remet sur l'heure courante avec le symbole qui signale le retard aux conditions d'utilisation normales du four.
Reglage du volume sonnerie
Le volume de la sonnerie peut être réglé (3 degrés de volumes différents) pendant qu'elle fonctionne en appuyant sur la touche.
Desactivation de la sonnerie
La sonnerie cesse automatiquement de fonctionner au bout de sept minutes. Il est possible de la désactiver manuellement en appuyant sur la touche

Après avoir appuyé sur la touche, le four se remet en marche : pour l’éteindre, tourner le bouton de sélection fonctions et le bouton thermostat sur la position "0".
Il est possible de désactiver la sonnerie en appuyant sur n'importe quels boutons fonction. Le four s’éteindra quel que soit la fonction ou la température programmée. Apparaît alors le symbole clignotant AUTO. Pour interrompre le clignotement du symbole AUTO appuyer sur , tourner le sélecteur fonctions et le thermostat sur la position "0".
Minuteurs
L'afficheur de fin de cuisson peut être utilisé comme minuteur.

L'utilisation comme minuteur n'interrompt pas le fonctionnement du four à la fin du temps programmé.
En appuyant sur la touche l'afficheur indique le chiffre 0:00 ; le garder appuyé et presser en même temps les touches de variation valeur - ou +. En relâchant la touche le compteur programme se met en marche et sur l'afficheur apparaisent les symboles et

Après la programmation du minuteur, l'afficheur revient sur l'heure courante. Pour vérifier le temps restant, appuyer sur la touche

La programmation de valeurs incohérentes est impossible (ex. un écart entre une fin de cuisson et une durée plus longue ne sera pas accepté par l'afficheur de fin de cuisson).
Effacement des donnees enregistres
Avec le programme enregistré, garder appuyée la touche de fonction "effacer" et chercher en même temps la valeur 0:00 avec les touches de variation valeurs - ou +. L'effacement de la durée sera interprétable par l'afficheur comme fin de cuisson.
Modification des donnees enregistrees
Les données enregistrées pour la cuisson peuvent être modifiées à n'importe quel moment en maintenant appuyée la touche de la fonction et en appuyant en même temps sur les touches de variation valeur - ou +.
6. Utilisation du plan de cuisson

Vérifier que les couronnes, les chapeaux et les grilles sont montés de manière correcte.

Durant le fonctionnement normal, l'appareil chauffe beaucoup. Il est nécessaire d'adopter les précautions nécessaires. Ne pas laisser les enfants s'approcher. Surveiller le plan de cuisson pendant la durée du fonctionnement.

6.1 Allumage des brûleurs
Tous les boutons des brûleurs du plan comportent les symboles suivants :
robinet fermé
flamme maximum
flamme minimum
La position de flamme minimum se trouve à la fin de la rotation dans le sens contraire des aiguilles d'une montre du bouton. Toutes les positions intermédiaires sont choisies entre la flamme maximum et minimum, jamais entre le maximum et la fermeture.
6.1.1 Allumage électrique (one-touch)
Les brûleurs du plan sont dotés d'un système d'allumage "one-touch". Pour allumer l'un des brûleurs, appuyer sur le bouton correspondant au brûleur choisi et tourner le bouton dans le sens contraire des aiguilles d'une montre jusqu'à la position minimum. En maintenant appuyé le bouton, on active le système d'allumage automatique du brûleur, maintenant appuyer le bouton pendant environ 10 secondes, de manière à permettre l'ouverture de la valve de sécurité. En cas de panne d'électricité, le brûleur pourra être allumé avec une allumette (voir paragraphe "6.1.2 Allumage manuel").

Si le brûleur s'éteint accidentellement, le thermocouple de sécurité se déclenche et bloque la sortie de gaz même si le robinet est ouvert.

Appareils non dotés de valve de sécurité : il n'est pas nécessaire de garder le bouton appuyé (le brûleur sera immédiatement opérationnel). Attention ! En cas d'extinction fortuite de la flamme, le gaz continuera à sortir du brûleur.
Le dispositif de nuit ne doit pas être actionné pendant plus de 15s. Si à l'issue de ces 15s le brûleur ne s'est pas rallumé, cesser d'agir sur le dispositif, ouvrir la porte de l'enceinte et/ou attendre au moins une minute avant toute nouvelle tentative d'allumage du brûleur. Dans le cas d'une extinction accidentelle des flammes du brûleur, fermer la manette de commande du brûleur et ne pas essayer de rallumer le brûleur pendant au moins une minute.
6.1.2 Allumage manuel
Pour allumer l'un des brûleurs, approcher une allumette allumée du brûleur, appuyer sur le bouton correspondant au brûleur choisi et le tourner dans le sens inverse de celui des aiguilles d'une montre jusqu'à la position de minimum. Relacher le bouton.
6.2 Extinction des brûleurs
Au terme de la cuisson, ramener le bouton en position •
7. Utilisation de la friteuse


Pendant le fonctionnement, la surface de la friteuse se réchauffera considérablement. Ne pas permettre aux enfants de s'approcher. Surveiller la friteuse pendant toute la durée de fonctionnement. L'huile et la graisse pourraient s'enflammer.
7.1 Avant de mettre la friteuse en fonction
Lors de la première utilisation, la friteuse pourrait dégager une odeur acre ou une odeur de brûlé causée par les résidus huileux de fabrication. Cela pourrait conférer une odeur et un goût désagréables aux fritures. Pour éliminer cet inconvénient, il faudra nettoyer au préalable la cuve, le panier et l'élément chauffant.
Procéder de la façon suivante:
laver le panier en le plongeant dans de l'eau chaude additionnée de produit à vaisselle;
- verser de l'eau chaude dans la cuve de la friteuse et ajouter du produit à vaisselle pour les surfaces en acier inox;
laver soigneusement la cuve et l'élément chauffant;
- soulever vers le haut l'élément chauffant, le rincer et l'essuyer;
- bloquer l'élement chauffant en déplaçant vers la gauche le système de blocage S de la façon indiquée dans la figure;
sortir la cuve de friture, éliminer l'eau savonneuse en rinçant la cuve à l'eau courante:
- essuyer la cuve et la remettre en place dans sa position de fonctionnement d'origine;
- débloquer le système de blocage S et rabaisser l'objet chauffant dans la cuve.

7.2 Comment fire
Procéder de la façon suivante:
- verser dans la cuve de la friteuse 3 litres d'huile. Il est possible de frire aussi avec de la graisse: dans ce cas, il faut découvert en menus morceaux environ 3.5kg de graisse à friture.
- Insérer l'élément chauffant (pour les modalités, voir ci-dessous). Si on utilise de la graisse, la laisser se liquéfier lentement dans la cuve de la friteuse.
Pour éviter toute surchauffe anormale : tant que l'objet chauffant n'est pas complètement recouvert de graisse fondue, il est conseillé d'activer et de désactiver de façon répétée l'objet chauffant en agissant sur le bouton du thermostat.
Il est conseillé de réchauffer l'huile et la graisse à une température maximale de 190°C. Cette température ne doit pas être dépassée car sinon l'huile ou la graisse surchaufferaient, ce qui aurait pour effet d'en altérer la constance.

L'élément chauffant ne doit jamais être actionné sans que dans la cuve de friture soit présente de l'huile ou de la graisse dans la quantité et ayant les caractéristiques décrites ci-dessus.

Procéder de la façon suivante:
au moyen du bouton thermostat, régler la température souhaitée. La friteuse entre en fonction et le voyant rouge et orange s'allume: - attendre l'extinction du voyant orange: cela signifie que le liquide de friture a atteint la température réglée. - placer les aliments à frire dans le panier et le plonger très lentement dans la cuve de friture:
- contrôle de temps en temps la friture des aliments en soulevant régulièrement le panier. Quand les aliments sont croquants au point souhaité, sortir complètement le panier du liquide de friture et agiter légèrement pour que le liquide restant sorte plus rapidement ; accrocher le panier à la résistance de la friteuse (de la façon indiquée dans la figure) et laisser égoutter.


Au terme de chaque utilisation de la friteuse, contrôlez le niveau du liquide de friture.
Le contrôle de la quantité du liquide de friture doit être effectué en sortant le panier et en s'assurant que le niveau est compris entre les deux repères minimum et maximum estampillés sur la paroi de la cuve de friture.

L'eau contenue dans les aliments descend au fond de la cuve de friture, dans la zone dite froide. De cette façon, il est pratiquement exclu que le liquide de friture puisse déborder de la cuve. Les particules d'aliment qui sortent du panier pendant la friture descendent elles aussi dans la zone froide.
7.2.1 Intervention du limiteur de température
La friteuse est dotée d'un dispositif limiteur de température situé dans la cuve. Si la température du liquide de friture dépasse la valeur réglée, ce dispositif désactive le réchauffement (les deux voyants s'éteignent). Pour réactiver le réchauffement de la friteuse, il faut réarmer manuellement le limiteur.
Procéder de la façon suivante:
- attendre le refroidissement du liquide de friture;
- soulever l'élément chauffant et sortir la cuve de friture de la friteuse;
- appuyer sur le bouton rouge situé sur le fond du logement de la cuve, dont la position est indiquée dans la figure;
- Réintroduire la cuve de friture de la friteuse dans sa position de fonctionnement et rabaisser l'élément chauffant.
- À ce point, il est possible de réactiver le réchauffement de la friteuse (voyant rouge et orange allumés).


Si, après avoir appliqué les instructions exposées ci-dessus, l'appareil s'est arrêté à l'improviste, couper l'alimentation électrique sur l'interrupteur général mural et appeler le service après-vente.
7.3 Temps individuels de friture
Les temps de friture indiqués dans le tableau sont approximatifs et varient selon les conditions des aliments et le goût personnel.
| ALIMENTS | TEMPS DE FRETURE | RECHAUFFEMENT |
| Poulet (1100 gr.) | 20 min. | 190°C |
| (tourner au bout de 10 min.) | ||
| Frites (500 gr. surgelées) | 6 min. | 190°C |
| Frites (500 gr. surgelées) | bis 2 min. | 190°C |
| Escalopes panées (370 gr.) | 5 min. | 170°C |
| Oignons en tranches (env. 500 gr.) | 5 min. | 190°C |
7.4 Extinction
Au terme de la friture, ramener le bouton thermostat en position "0".
8. Utilisation du fry top / grill à bifteck

Pendant le fonctionnement, l'appareil chauffe considérablement. Il faut par conséquent adopter les précautions nécessaires. Ne pas laisser les enfants s'approcher. Surveiller le fry-top/grill à bifteck pendant tout le temps de fonctionnement.
Selon le modèle, l'appareil est doté de fry-top à plaque lisse, ou bien d'un grill à bifteck à plaque striée.
FRY-TOP
GRILÀ BIFTECK
8.1 Avant de mettre en fonction le fry-top / grill à bifteck
Lors de la première utilisation, la plaque du fry-top/grill à bifteck pourrait dégager une odeur acre ou une odeur de brûlé causée par les résidus huileux de fabrication, ce qui pourrait conférer une odeur et un goût désagréables aux aliments. Pour éliminer cet inconvénient, il convient de nettoyer au préalable la plaque de la façon décrite au paragraphe "14.7 Nettoyage du fry-top / grill à bifteck".
8.2 Allumage
Le fry-top/grill à bîteck est doté d'un réchauffement différencié. Il est possible en effet d'utiliser la surface tout entière de la plaque, ou bien seulement l'une des deux moitiés avant ou arrière.
Placer le bouton de commande de l'élément chauffant sur la position souhaitée. Le voyant rouge, qui indique le fonctionnement, s'allumera. Placer les aliments sur la plaque et cuire selon le goût personnel.
8.3 Tableau d'utilisation du régulateur d'énergie
Le tableau suivant offre seulement des valeurs indicatives, puisque, selon l'épaisseur et le genre d'aliment, ainsi que le goût personnel, il faut un degré de chaleur supérieur ou inférieur.

1-4 Maintien de la chaleur sur la plaque 5-7 Pour cuissons délicates 8-9 Pour griller
10-11 Pour griller de la viande plus épaisse
11 Pour réchauffement rapide et nettoyage
8.4 Extinction
Au terme de la cuisson, ramener le bouton en position •
9. Utilisation du grill à roche volcanique

Durant le fonctionnement normal, l'appareil chauffe beaucoup, il est donc nécessaire d'être prudent. Ne jamais laisser d'enfants s'approcher. Surveiller le grill durant toute sa durée de fonctionnement.
9.1 Avant de mettre le grill en fonction
Lors de la première utilisation, le grill peut dégager une odeur acre ou une odeur de brûlé due à d’éventuels résidus d’huiles de fabrication susceptibles de donner un goût désagréable à la cuisson. Pour éviter cela, nettoyer tous les composants avant l’utilisation (voir paragraphe "14.8 Nettoyage du grill à roche volcanique").
9.2 Mise en marche
Procéder de la manière suivante:
- Manipuler le gril en fonte avec précaution (il est sensible aux chocs) :
- soulever vers le haut l'élément chauffant et le fermer en déplaçant vers la gauche le système de blocage S comme indiqué sur le schéma:
- remplir le bac de protection avec la roche volcanique en prenant soin de la disposer de manière régulière sur toute la surface afin qu'elle ne dépasse pas des bords.


Il est également possible d'utiliser de l'eau pour remplir le bac de protection (2 litres maximum). Il est conseillé d'utiliser de l'eau pour cuire des viandes très grasses (saucisses, lard etc.), le jus de graisse se dissolve immédiatement dans l'eau évitant ainsi la formation de fumée et simplifiant les opérations de nettoyage décrites au paragraphe 14.8.
Ne jamais utiliser l'élément chauffant sans avoir préalablement rempli le bac de roche volcanique ou d'eau dans les quantités et caractéristiques décrites ci-dessus.
- Ouvrir le système de blocage S et rabaisser l'élément chauffant:
- Replacer la grille en fonte sur l'élément chauffant comme indiqué sur le schéma
La grille en fonte garantit une belle répartition de la chaleur.
L'appareil est prêt pour l'allumage.


Avant l'utilisation, préchauffer la grille en fonte pendant 5 ou 10 minutes en tournant le bouton du régulateur d'énergie sur la position maximum (11). Le voyant rouge s'allume pour indiquer que l'appareil fonctionne.
- Tourner le bouton du régulateur d'énergie sur la position désirée (voir paragraphe "9.3 Tableau d'utilisation du régulateur d'énergie") ; placer les aliments sur la grille en fonte et cuire selon son goût.

L'appareil peut également être utilisé comme un "brûleur ouvert", idéal pour la cuisson à feu doux. Utiliser uniquement des poèles multifonctions de dimensions compatibles avec la surface de cuisson de la grille en fonte. Ce type d'utilisation est idéal pour la cuisson d'étouffée de bœuf, blanquettes, lapin à la bière, langue de bœuf.
Procéder de la manière suivante:
- Préchauffer la grille en fonte en tournant le bouton du régulateur d'énergie sur la position maximum (11) pendant quelques instants;
- remettre le bouton du régulateur sur la puissance minimum (1);
- placer la poèle multifonctions avec les aliments à cuire sur la grille en fonte;
- mettre le couvercle sur la poèle de manière à conserver l'humidité ou l'enlever pour réduire l'humidité.
9.3 Tableau d'utilisation du régulateur d'énergie
Le tableau suivant offre seulement des valeurs indicatives, puisque, selon l'épaisseur et le genre d'aliment, ainsi que le goût personnel, il faut un degré de chaleur supérieur ou inférieur.

1-4 Maintien de la chaleur sur la grille en fonte
5-7 Pour cuissons délicates
8-9 Pour griller
10-11 Pour griller de la viande plus épaisse
11 Pour réchauffement rapide et nettoyage
9.4 Extinction
Au terme de la cuisson, ramener le bouton en position •
10. Utilisation du plan vitrocéramique

Pendant le fonctionnement normal, l'appareil se réchauffe considérablement. Il faut par conséquent adopter toutes les précautions nécessaires. Ne laisser pas les enfants s'approcher. Surveiller le plan vitrocéramique pendant tout le temps de fonctionnement.
10.1 Avertissements généraux
Lors de la première utilisation du plan vitrocéramique, elle pourrait dégager une odeur acre ou une odeur de brûlé, causée par les résidus huileux de fabrication. Cette odeur disparaîtra complètement après un fonctionnement répété.
Le plan vitrocéramique est doté de zones de cuisson de diamètres et de puissances différentes (voir paragraphe "3.3 Puissance du plan vitrocéramique"). Leur position est clairement indiquée par des cercles et la chaleur est délimitée à l'intérieur des diamètres tracés sur le verre.

10.2 Allumage
Placer la casserole ou la poèle contenant les aliments à cuire sur l'élément chauffant choisi. Tourner le bouton du régulateur d'énergie sur la position souhaitée. Au bout de quelques instants, s'allumera le voyant de chaleur latente relatif à l'élément chauffant choisi.
Si le plan vitrocéramique est utilisé pour porter de l'eau à ébullition, une fois le but atteint, il faut tourner le bouton du régulateur d'énergie sur une position de température plus BASSE, afin d'éviter que le liquide présent dans la casserole puisse déborder et salir le plan.

Certains boutons sont dotés d'une position de réchauffement supplémentaire (plaque à double élément chauffant). Pour activer cette dernière, tourner le bouton du régulateur d'énergie dans la position ©.
10.3 Extinction
Au terme de la cuisson, ramener le bouton dans la position
Sur le plan vitrocéramique est présent un voyant de chaleur latente qui produit à une échelle réduite la position des diamètres de réchauffement. Ce voyant signale visuellement la chaleur résiduelle encore présente dans la zone du plan utilisée.


Ne procéder à aucune opération de nettoyage et ne pas toucher la surface tant que la touche de chaleur latente n'est pas complètement éteinte.
11. Utilisation du four électrique

Quand le four ou le grill sont en fonction, les parois externes et la porte du four peuvent devenir très chaudes : il convient de tenir les enfants à l'écart de l'appareil. Ne pas permettre aux enfants de s'asseoir sur la porte du four ou de jouer avec elle. Ne pas utiliser la porte comme appui.

11.1 Avertissements généraux
Éviter de cuire les aliments sur la base du four.
Lors de la première utilisation du four, après une coupure de courant, l'afficheur clignote régulièrement avec l'indication 0:00. Pour le réglage, se reporter au paragraphe "REGLAGE DE L'HEURE" page 18.
Ne pas tenter de démonter la porte du four sans avoir consulté avec attention les instructions correspondantes (lire le paragraphe "15.1 Démontage de la porte du four") : il existe le danger de se blesser les mains avec les charnières de la porte du four.

11.2 Premier allumage du four
Lors du premier allumage, le four pourrait dégager de la fumée et une odeur acre causées par les résidus huileux de fabrication, ce qui pourrait conférer une odeur et un goût désagréables aux aliments. Avant d'introduire les aliments à cuire, réchauffer le four à la température maximale pendant une durée de 30-40 minutes porte fermée et attendre que la fumée et les odeurs cessent.

Pour éviter la vapeur éventuellement présente dans le four puisse créer une gêne, procéder de la façon suivante : tourner le bouton de sélection des fonctions sur la position "0", ou bien sur la fonction ouvrir la porte en deux temps : la maintenir semi-ouverte (environ 5 cm) pendant 4-5 secondes, puis l'ouvrir complètement. Si des interventions sur les alimentés devaient être nécessaires, laisser la porte ouverte le moins de temps possible pour éviter que la température à l'intérieur du four ne s'abaisse au point de compromettre la cuisson.

11.3 Cuissons traditionnelles
Tourner le bouton du sélecteur de fonctions sur la position et le bouton du thermostat au niveau de la valeur de température souhaitée. Pour un réchauffement différent dans la partie supérieure ou inférieure des aliments : amener le sélecteur de fonctions sur la position (chaud dessus) ou bien (chaud dessous). Pour un réchauffement plus uniforme dans chaque partie du four : tourner le bouton du sélecteur de fonctions sur la position

Après avoir préchauffé le four et avoir introduit les alimentés à cuire, on remarquera une fuite d'air entre la partie supérieure de la porte et la partie inférieure du four. Si cela ne se vérifie pas, éteindre l'appareil et contacter le service après-vente.
11.4 Cuisson à convection
Tourner le bouton du sélecteur de fonctions sur la position ; tourner le bouton du thermostat au niveau de la valeur de température souhaitée.
11.5 Cuisson au grill ventilé
Tourner le bouton du sélecteur de fonctions sur la position ; tourner le bouton du thermostat au niveau de la valeur de température maximale (MAX).
11.6 Cuisson au grill + tournebroche
Tourner le bouton du sélecteur de fonctions sur la position ; tourner le bouton du thermostat au niveau de la valeur de température maximale (MAX). Pendant le fonctionnement du grill, on a le fonctionnement simultané du tournebroche, ce qui permet la cuisson à la broche.
11.7 Cuisson au tournebroche
Procéder comme suit :
- mesure en place les supports A du tournebroche dans les orifices B présents sur les côtés du léchefrite, en veillant à ce que le support portant la tige C se trouve sur le côté gauche du léchefrite : visser la poignée D sur la tige du tournebroche ; enfiler sur la tige du tournebroche les viandes à cuire en les bloquant avec les fourches réglables prévues à cet effet ;
- introduire la tige tournebroche dans l'orifice E présent sur le support gauche; enlever la poignée D de la tige du tournebroche et placer le l'échafaud sur le premier rail en partant du bas;
- Avant de fermer la porte du four, s'assurer que la tige C est insérée de façon correcte dans l'orifice F (pendant l'opération d'insertion, tourner légèrement dans le sens des aiguilles d'une montre et dans le sens inverse la tige du tournebroche):
- mesure en fonction du tournebroche en tournant le bouton du sélecteur de fonctions sur la position.
Outre les fourches régulibles, le tournebroche est doté de 3 disques G qui, fixés de la façon voulue sur la tige H, permettent de loger un maximum de 8 brochettes I. Pour sortir les brochettes du disque, il suffit de faire tourner de l'éclat L, qui constitue la prise des brochettes.


11.8 Décongélation
Tourner le bouton du selector sur la position, tourner le bouton du thermostat sur la position "0" : cela a pour effet d'activer le ventilateur qui, en remuant l'air à l'intérieur du four, favorise la décongélation des aliments surgelés.
11.9 Extinction du four
L'extinction se fait en ramenant le bouton du thermostat en position "0".

Défaut du thermostat : en cas de défaut du thermostat, le four surchauffe jusqu'à l'intervention du dispositif de sécurité qui désactive le four. Dès que la température descend au-dessous du seuil d'intervention du dispositif de sécurité, le four se remet en fonction normalement.
11.10 Tiroir et logement de rangement
Les cuisinières sont dotées d'un tiroir de rangement situé dans la partie inférieure, sous le four. Sur certains modèles est présent aussi un logement latéral accessible en ouvrant la porte correspondante. Ne ranger dans le tiroir et logement de rangement que les ustensiles métalliques de la cuisine.



Ne pas ranger à l'intérieur du tiroir et du logement latéral de matériaux inflammables tels que chiffons, papier ou autres.
12. Utilisation du four auxiliaire à convection naturelle

Quand le four auxiliaire ou le grill sont en fonction, les parois externes et la porte du four peuvent devenir très chaudes ; il convient de tenir les enfants à l'écart de l'appareil. Ne pas permettre aux enfants de s'asseoir sur la porte du four ou de jouer avec elle. Ne pas utiliser la porte comme appui.

L'afficheur de fin de cuisson et les boutons de commande du four principal n'influent en aucune façon sur le fonctionnement du four auxiliaire.

Le four auxiliaire à convection naturelle est doté de:
- un élément chauffant placé sur le plan inférieur du four (en bas);
- un élément chauffant place sur le plan supérieur du four (en haut) + grill.


12.1 Premier allumage du four auxiliaire
Lors du premier allumage, le four auxiliaire pourrait dégager de la fumée et une odeur acre causées par les résidus huileux de fabrication, ce qui pourrait conférer une odeur et un goût désagréables aux aliments. Avant d'introduire les aliments à cuire, réchauffer le four auxiliaire à la température maximale pendant une durée de 30-40 minutes porte fermée et attendre que la fumée et les odeurs cessent.
Pour activer le réchauffement du four auxiliaire, il faut sélectionner la température (de 60 à MAX) ou la fonction souhaitée en tournant le bouton du thermostat.
12.2 Cuisson au grill (four auxiliaire)
Tourner le bouton du thermostat sur la position et laisser préchauffer le four auxiliaire pendant environ 5 minutes. Pour assurer le bon fonctionnement, placer la grille de support plats sur le troisième rail en partant du bas. Il est possible de toute façon de varier la position de la grille de support plats selon le goût personnel et les exigences de cuisson. Avant de mettre au four, il faut préchauffer pendant 5 minutes. Un système de refroidissement empêchera les boutons de commande de surchauffer.
12.3 Cuisson au tournebroche (four auxiliaire)
Tourner le bouton du thermostat sur la position et laisser préchauffer le four auxiliaire pendant environ 5 minutes. Entre-temps, procéder comme suit:
enfiler les aliments sur la tige du tournebroche A en veillant à l'immobiliser entre les deux fourches B, en l'équilibrant de façon à éviter des efforts inutiles sur le réducteur; - placer la poulie C de la tige du tournebroche sur le support D après avoir introduit son extrémité opposée dans l'orifice E, jusqu'à obtenir le blocage avec le réducteur F et la rotation consécutive de la tige; - verser un peu d'eau dans le lèchefrite et le placer sous la tige du tournebroche; surveiller de temps en temps la cuisson en vérifiant la rotation de la tige du tournebroche; au terme de la cuisson, désactiver le réchauffement du four auxiliaire en ramenant le bouton du thermostat en position "0"; sortir la tige du tournebroche du four auxiliaire en utilisant le bouton G et en se servant d'un gant de protection.

12.4 Extinction du four auxiliaire
L'extinction se fait en ramenant le bouton du thermostat en position "0".
Défaut du thermostat : en cas de défaut du thermostat, le four surchauffe jusqu'à l'intervention du dispositif de sécurité qui désactive le four. Dès que la température descend au-dessous du seuil d'intervention du dispositif de sécurité, le four se remet en fonction normalement.

13.1 Conseils pour l'utilisation correcte des brûleurs de plan

Le diamètre du fond des récipients de cuisson devra être approprié au diamètre du brûleur utilisé (voir tableau ci-contre). La flamme du brûleur ne doit jamais sortir du diamètre du récipient. Utiliser des récipients à fond plat. Cuiser en utilisant si possible des casseroles dotées de couvercle, cela permet d'utiliser des puissances plus faibles. Pour réduire les temps de cuisson, cuire les légumes, les pommes de terre etc. avec peu d'eau.
| Brûleur | Diamètre réciplient (en cm) |
| Rapide | de 24 à 26 |
| Semi-rapide | de 16 à 22 |
| Auxiliaire | de 8 à 14 |
| Triple couronne | de 24 à 26 |
| Plat à poisson | de 16 à 35 |
13.2 Conseils pour l'utilisation correcte de la friteuse
Ne pas ajouter de sel ou d'épices aux aliments pendant que le panier est encore sur la cuve de friture : cela aurait pour effet d'alimenter l'huile ou la graisse et de compromettre le goût des fritures suivantes. En cas de grandes quantités d'aliments, il est conseillé de sortir régulièrement le panier de la cuve de friture à des intervalles de 1-2 minutes, de telle sorte que le liquide de friture puisse revenir plus rapidement à la température réglée. Les aliments à frire devront toujours être couverts par le liquide de friture. Si cela n'a pas été possible, il faudra les tourner à mi-cuisson (le poulet par exemple). Au terme de chaque cuisson, éliminer du liquide de friture les résidus d'aliments éventuels. Si, malgré le réglage correct de la température, les aliments ne sont pas croquants et que le liquide de friture est foncé, il convient de le changer complètement, en suivant scrupuleusement les instructions du paragraphe "14.6.1 Vidange du liquide de friture".

En vue d'empêcher de dangereuses combustions du liquide de friture, ne pas mettre en fonction les deux ouverts situés à proximité de la friteuse.
13.3 Conseils pour l'utilisation correcte du fry-top / gril à bifteck
La plaque du fry-top est lisse, tandis que celle du grill à bifteck est striée et permet d'obtenir le dessin typique conjointement au goût délicieux de barbecue.
Les aliments préparés sur la plaque du fry-top/grill à bifteck ont un goût particulier qu’il conviendrait de ne pas ALTERER par l’usage excessif d’épices. Plusieurs modes de préparation sont possibles. Par exemple, il est possible de préparer simultanément des aliments différents, tels que la viande et le poisson. Avant de préparer la viande, il est conseillé de la traiter avec de l’huile aromatisée et de la faire mariner pendant quelques heures. Petite suggestion : la viande doit toujours être salée après la cuisson, de telle sorte que le jus ne sorte pas avant le moment voulu.
13.4 Conseils pour l'utilisation correcte du grill à roche volcanique
La cuisson des aliments sur la grille en fonte provoque d'importantes émanations de fumée. On peut constater durant la cuisson, la formation de petites flammes, comme durant les cuissons au barbecue (pour la solution à ce problème voir paragraphe 9.2). Avant de mettre le poisson sur la grille il est conseillé de l'enduire d'huile ou de beurre fondu afin d'éviter qu'il attache sur la surface de la grille.

L'appareil peut également être utilisé comme un "brûleur ouvert", idéal pour la cuisson à feu doux. Utiliser uniquement des poêles multifonctions de dimensions compatibles avec la surface de cuisson de la grille en fonte. Ce type d'utilisation est idéal pour la cuisson d'étouffée de bœuf, blanquettes, lapin à la bière, langue de bœuf (voir instructions au paragraphe 9.2).

13.5 Conseils pour l'utilisation correcte du plan vitrocéramique
Pour obtenir un bon rendement et une consommation d'énergie appropriée, il est indispensable de n'utiliser que des éléments adaptés à la cuisson électrique. Le diamètre du fond des éléments doit être égal au diamètre du cercle tracé sur la zone de cuisson. Si ce n'est pas le cas, il y a gâchis d'énergie.
Le fond des récipients doit être très lisse et parfaitement plat. Par ailleurs, il doit être propre et sec, tout comme le verre du plan de cuisson.
Ne pas utiliser de casseroles en fonte ou à fond rugueux, car elles pourraient rayer la surface de cuisson.
Pour utiliser le plan de cuisson vitrocéramique comme table de travail, il est nécessaire de bien le nettoyer avant d'insérer les éléments chauffants.
Attention à ne pas poser les poêles sur des résidus abrasifs, cela peut rayer le verre. Cependant, même un verre rayé ne compromet pas la cuisson.
L'épaisseur idéale pour le fond de poêle est:
2-3 mm en acier émaillé; 4-6 mm en acier inox avec fond sandwich.
Avant de cuisiner les aliments qui contiennent beaucoup de sucre (confiture), appliquer sur la surface de cuisson un produit de protection pour éviter d'abîmer la surface en cas de fuite du récipient de cuisson.
13.6 Conseils pour une bonne utilisation du four

Le four permet d'optimiser les cuissons. Il est possible d'effectuer des cuissons traditionnelles, en convection et au grill.
Tous les types de cuisson doivent être effectués avec la porte du four complètement fermée.
13.6.1 Cuisson traditionnelle
Pour ce type de cuisson, la chaleur arrive du haut et du bas, il est donc préférible d'utiliser les plaques centrales. Si la cuisson nécessite une chaleur plus importante du haut ou du bas, utiliser les plaques inférieures ou supérieures. La cuisson traditionnelle est conseillée pour tous les aliments qui requièrent des températures de cuisson élevées ou des longs temps de braisage. Ce système est aussi conseillé lorsque l'on utilise pour la cuisson des récipients en terre cuite, porcelaine etc.
13.6.2 Cuisson à convection
Avec ce type de cuisson, la chaleur est transmise aux aliments par l'air préchauffé et tournant grâce à un ventilateur situé sur la paroi arrière du four. La chaleur atteint rapidement et uniformément toutes les parties du four, permettant ainsi de cuire différents aliments sur plusieurs étages. L'élimination de l'humidité de l'air et l'ambiance plus sèche empêchent la transmission et le mélange des odeurs et des saveurs.
La possibilité de cuire sur plusieurs étages, permet de réaliser en même temps plusieurs plats différents. Il est possible de cuire des gâteaux et des pizzas dans trois plats différents. Le four peut cependant être utilisé pour une cuisson sur un seul étage. Pour une meilleure cuisson utiliser les plaques basses.
La cuisson à convection est particulièrement recommandée pour la décongélation des aliments surgelés, pour stérifier les conserves, les fruits en sirop maison et enfin pour faire sécher des champignons ou des fruits.
13.6.3 Cuisson au grill
La chaleur est transmise par le haut. Presque toutes les viandes peuvent être cuites au grill, exceptées des viandes maigres de gibier et les boulettes. Les viandes et les poissons cuits au grill seront légèrement recouverts d'huile et disposés sur le grill ; celui-ci doit être placé sur les plaques les plus proches ou les plus éloignées de l'élément grill, selon l'épaisseur de la viande afin d'éviter qu'elle ne soit brûlée en surface et pas assez cuite à l'intérieur.
Conseillé pour: viandes peu épaisses, toast.

Verser 1 ou 2 verres d'eau dans la rainure du lechefrite pour éviter la formation de fumée provoquée par les gouttes de graisse.
Pour la cuisson au grill, le l'écha frites doit toujours être placé sur la 1ère plaque du bas.
13.6.4 Cuisson au grill ventilé
Il se fait par le fonctionnement combiné du grill et du ventilateur.
Ce type de cuisson permet à la chaleur de pénétrer progressivement à l'intérieur des aliments bien que la surface soit exposée à l'action directe du grill.
Conseillé pour : viandes épaisses, volailles.
13.6.5 Cuisson de la viande et du poisson
La viande à cuire au four doit peser au moins 1 kg. Les viandes rouges tendres qui doivent être cuisinées saignantes (roast-beef, fillet etc.) ou qui doivent être bien cuites à l'extérieur tout en conservant leur saveur intérieure requièrent une cuisson à haute température pendant peu de temps (200 - 250^). Les viandes blanches, les volailles et le poisson requièrent une cuisson à basse température (150 - 175^).
Les ingrédients de la sauce doivent être immédiatement disposés dans le plat si le temps de cuisson est court. Sinon, il est conseillé de les ajouter dans la dernière demi-heure. Les viandes peuvent être disposées sur un plat adapté à la cuisson au four ou directement sur le grill sous lequel on place le lèche-frites servant à recueillir le jus. La cuisson peut être contrôlée en écrasant la viande avec une cuillère ; si elle ne cède pas, c'est qu'elle est cuite à point.
À la fin de la cuisson, il est conseillé d'attendre au moins 15 minutes avant de couper la viande de manière à ce que le jus ne sorte pas. Les assiettes avant d'être servies peuvent être maintenues au four à température minimale.
13.6.6 Cuisson des gâteaux
Les pâtes battues doivent se détacher difficilement de la cuillère, car une pâte trop fluide nécessiterait un temps de cuisson inutilement long. Les gâteaux nécessitent une température moyenne (comprise entre 150 - 200°C) et requièrent un préchauffage (10 minutes environ). La porte ne doit pas être ouverte avant au moins 3/4 d'heure de cuisson.
13.6.7 Tableau de cuisson conseillée
Les temps de cuisson varient selon la nature, l'homogénéité et le volume des aliments. Il est conseillé de surveiller les premières cuissons pour voir si en réalisant les mêmes plats dans les mêmes conditions on obtient les mêmes résultats. A titre indicatif vous trouvez ci-dessous trois tableaux (I, II et III).
TABLEAU TEMPS DE CUISSON À CONVECTION ET TRADITIONNELLE (I)
| TYPE DE CUISSON | QUANTITE KG. | POSITION CONDUITE DU BAS | TEMPERATURE °C | TEMPS EN MINUTES | ||
| CONVECTION | TRADITIONNEL | CONVECTION | TRADITIONNEL | |||
| GATEAUX | ||||||
| AVEC PATE BATTUE, EN MOULE | 1 | 1-3 | 2 | 175 | 200 | 60 |
| AVEC PATE BATTUE SUR LECHE FRITES | 1 | 1-3 | 2 | 175 | 200 | 50 |
| PATE BRISEE FOND DE TARTE | 0.5 | 1-3 | 3 | 175 | 200 | 30 |
| PATE BRISEE GARNITURE HUMIDE | 1.5 | 1-3 | 2 | 175 | 200 | 70 |
| PATE BRISEE GARNITURE SECHE | 1 | 1-3 | 2 | 175 | 200 | 45 |
| AVEC PATE 0 LEVURE NATURELLE | 1 | 1-3 | 1 | 175 | 200 | 50 |
| PETITS GATEAUX | 0.5 | 1-3 | 3 | 160 | 175 | 30 |
| VIANDES | ||||||
| VEAU | 1 | 2 | 2 | 180 | 200 | 60 |
| BCEUF | 1 | 2 | 2 | 180 | 200 | 70 |
| ROAST-BEEF A L'ANGLAISE | 1 | 2 | 2 | 220 | 220 | 50 |
| PORC | 1 | 2 | 2 | 180 | 200 | 70 |
| POULET | 1-1.5 | 2 | 2 | 200 | 200 | 70 |
| ESTOUFFADES | ||||||
| BCEUF BRAISE | 1 | 1 | 2 | 175 | 200 | 120 |
| VEAU BRAISE | 1 | 1 | 2 | 175 | 200 | 110 |
| POISSONS | ||||||
| FILETS, STEAKS, MORUE, MERLAN, SOLE | 1 | 1-3 | 2 | 180 | 180 | 30 |
| MAQUEREAU, TURBOT, SAUMON | 1 | 1-3 | 2 | 180 | 180 | 45 |
| HUITRES | 1 | 1-3 | 2 | 180 | 180 | 20 |
| PLATS EN MOULE | ||||||
| PATES EN MOULE | 2 | 1-3 | 2 | 185 | 200 | 60 |
| LEGUMES EN MOULE | 2 | 1-3 | 2 | 185 | 200 | 50 |
| SOUFFLÉS SUCRES ET SALES | 0.75 | 1-3 | 2 | 180 | 200 | 50 |
| PIZZA ET CALZONE | 0.5 | 1-3 | 2 | 200 | 220 | 30 |
Les temps se réfèrent à la cuisson sur un seul étage, pour plusieurs étages augmenter les temps de 5-10 minutes. - Les temps de cuisson s'entendent avec un préchauffage de 15 minutes environ. L'indication des plaques dans le cas de cuisson sur plusieurs étages est l'indication préférentielle. Pour les rois de bœuf, veau, porc et dinde, avec os ou enroulés, augmenter les temps de 20 minutes.
TABLEAU TEMPS DE CUISSON AU GRIL ET GRIL VENTILE (II)
| TYPE DE CUISSON | QUANTITE KG. | POSITION CONDUITE DU BAS | TEMPERATURE ℃ | TEMPS EN MINUTES |
| POULET | 1-1.5 | 3 | MAX | 30 PAR COTE |
| TOAST | 0.5 | 4 | MAX | 5 PAR COTE |
| SAUCISSES | 0.5 | 4 | MAX | 10 PAR COTE |
| COTES | 0.5 | 4 | MAX | 8 PAR COTE |
| POISSONS | 0.5 | 4 | MAX | 8 PAR COTE |
Le lèche-frites doit être placé sur la première plaque du bas.
TABLEAU TEMPS DE DECONGELATION (III)
| TYPE D'ALIMENTS | QUANTITE KG. | POSITION CONDUITE DU BAS | TEMPS EN MINUTES |
| PLATS PREPARES | 1 | 2 | 45 |
| VIANDES | 0.5 | 2 | 50 |
| VIANDES | 0.75 | 2 | 70 |
| VIANDES | 1 | 2 | 110 |
La décongélation à température ambiante a l'avantage de ne pas modifier le goût et l'aspect de la viande.
14. Nettoyage et maintenance

Avant chaque intervention couper l'alimentation électrique de l'appareil et fermer le robinet de l'installation gaz.

Eviter de nettoyer les surfaces de l'appareil lorsqu'elles sont encore chaudes. Pour le lavage de l'appareil, ne pas utiliser de jet à pression ou de vapeur.

14.1 Nettoyage de la surface en acier inox
Pour nettoyer et conserver les surfaces en acier inox et pour enlever les tâches persistantes, utiliser toujours des produits spécifiques sans abrasifs ou substances acides à base de chlor. Le vinaigre chaud est efficace.

Verser le produit sur un chiffon humide et le passer sur la surface. Rincer soigneusement et sécher avec un chiffon doux ou une peau de daim.

Eviter l'utilisation d'éponges métalliques et d'objets coupants qui pourraient endommager les surfaces. Utiliser des éponges qui ne raient pas et éventuellement des ustensiles en bois ou en plastique.
14.2 Nettoyage des surfaces émaillées
Nettoyer avec une éponge non abrasive humidifiée d'eau et de savon. Les tâches de gras peuvent être éliminées facilement avec un produit spécifique vendu dans le commerce pour le nettoyage de l'émail. Rincer soigneusement et sécher avec un chiffon doux ou une peau de daim. Eviter les produits contenant des substances abrasives, pailléttes, laine de verre ou acides qui pourraient endommager la surface. Eviter de laisser sur l'émail des substances acides ou alcalines (jus de citron, vinaigre, sel etc.).
14.3 Nettoyage des boutons et du panneau de commandes
Nettoyer les boutons et le panneau de commandes avec un chiffon humide.
14.4 Nettoyage des grilles et des brûleurs
Pour procéder au nettoyage des grilles et des brûleurs du plan de cuisson, les enlever de leur emplacement en les faisant glisser vers le haut (voir le dessin) et les laisser tremper une dizaine de minutes dans de l'eau chaude mélangée à un détergent non abrasif. Rincer et sécher avec soin. Contrôler que les ouvertures des brûleurs ne sont pas obstruées.
Remonter correctement les brûleurs en vérifiant l'uniformité des flammes.
Il est conseillé d'effectuer cette opération 1 fois par an et chaque fois que nécessaire.

14.5 Nettoyage des bougies et thermocouples
Pour un bon fonctionnement, les bougies d'allumage et les thermocouples doivent toujours être propres. Contrôler régulièrement et, si nécessaire, les nettoyer avec un chiffon humide. Certains résidus secs peuvent être enlevés avec une tige en bois ou une aiguille, en faisant bien attention de ne pas endommager la partie isolante en céramique.


14.6.1 Vidange du liquide de friture
Avant d'effectuer cette opération, laisser refroidir complètement le liquide de friture.
Procéder de la manière suivante:
- soulever vers le haut l'élément chauffant en le laissant goutter sur le bac et l'essuyer avec du papier absorbant;
- fermer l'élément chauffant en déplaçant vers la gauche le système de blocage S comme indiqué sur le dessin; enlever le bac de friture;
- verser le liquide de friture dans un récipient adapté et l'éliminer selon les normes en vigueur en matière de décharge des huiles usagées. Le bac en acier inox de la friteuse doit être nettoyé avec un produit spécifique sans substances abrasives ou acides à base de chlore. Le vinaigre chaud est efficace;
- rincer et sécher soigneusement le bac et le panier;
- nettoyer l'élément chauffant de la friteuse avec une éponge douce non abrasive et du détergent puis rincer soigneusement;
- Remettre le bac de la friteuse dans son emplacement, débloquer le système de blocage S et rabaisser l'élément chauffant dans le bac.

14.7 Nettoyage du fry-top / gril à bifteck
Certains dépôts de graisse présents sur la plaque du fry-top/gril à bifteck pourront être plus facilement éliminés lorsque la plaque est encore chaude. Si nécessaire, la laisser refroidir et la mettre à tremper quelques minutes. Nettoyer avec de l'eau salée, essuyer avec un chiffon, ou avec de l'essuie-tout.
Après chaque utilisation, nettoyer aussi le plan en vitrocéramique V qui soutient la plaque du frytop/gril à bifteck. Les éventuels résidus de viandes ou de graisse peuvent être éliminés en procédant de la manière suivante:
- extraire de son emplacement la plaque du frytop/gril à bifteck;
- Mesurez le bouton sur la position 11;
- après 20-30 minutes, même les résidus les plus résistants pourront être facilement éliminés du plan vitrocéramique avec une spatule de bois;
- désactiver le réchauffement, laisser refroidir et nettoyer le plan vitrocéramique V avec des produits spécifiques;
- sécher parfaitement et remettre la plaque du fry-top/gril à bifteck dans son emplacement.

14.8 Nettoyage du gril à roche volcanique

À la fin de la cuisson, la grille en fonte et les autres composants restent chauds pendant un certain temps. Avant de procéder au nettoyage, vérifier que les éléments sont froids.
Procéder de la manière suivante:
- laver la grille en fonte en l'immergeant dans l'eau chaude avec du produit à vaisselle. Ne pas utiliser de détergents abrasifs ou corrosifs (ex. produits en poudre et éponges métalliques). La rincer et la sécher avec soin.

Durant les opérations de nettoyage, il est nécessaire de manipuler la grille avec beaucoup de précaution. Le matériel dont elle est composée et son épaisseur la rendent fragiles aux chocs.

Les dépôts de graisse peuvent s'enlever plus facilement en réchauffant la grille pendant 5 ou 10 minutes (bouton sur la position 11). La laisser refroidir, l'enlever, la rincer et bien l'essuyer avec un chiffon propre.
- Soulever vers le haut l'élément chauffant et le nettoyer avec un chiffon humide ; fermer l'élément chauffant en déplaçant vers la gauche le système de blocage S comme indiqué sur le schéma. Enlever le bac de protection. Remettre la roche volcanique dans son conteneur. Enlever l'eau contenant les dépôts de graisse.


La roche volcanique contenue dans le bac de protection, ne s'use pas et n'a donc pas besoin d'être changée. Enlever régulièrement les dépôts de graisse sur la surface des pierres en les mettant au four à haute température. On peut obtenir le même résultat en mettant le bouton de réglage de chaleur sur la position (11) pendant 5 à 10 minutes. On trouve sur le marché des roches volcaniques de rechange si besoin.
Le bac de protection en acier inox doit être nettoyé avec un produit spécial qui ne contient pas de composants abrasifs ou de substances acides à base de chlore, ou avec un peu de vinaigre chaud (il est possible de le laver à la machine à laver la vaisselle). Rincer-le et essuyer-le soigneusement; - remettre le bac de protection à sa place, décrocher le système de blocage S et rebaisser l'élément chauffant sur le bac.
14.9 Nettoyage du plan vitrocéramique
Le plan vitrocéramique doit être régulièrement nettoyé, si possible après chaque utilisation, sinon lorsque les témoins de chaleur résiduelle sont éteints.
Les éventuelles traces claires causées par l'utilisation de poèles en aluminium peuvent être retirées avec un chiffon humide imbibé de vinaigre.
Si après la cuisson il reste des résidus brûlés, les retirer avec une spatule en bois, rincer à l'eau et sécher avec un chiffon humide.
N'utiliser aucun détergents abrasifs ou corrosifs (ex. produits en poudre, spray pour four, détachants et éponges métalliques).
Les résidus de graissé tombés sur le plan vitrocérément pourront être plus facilement retirés en réchauffant le plan pendant 20-30 minutes (bouton en position 11). Après cela, les retirez avec une spatule en bois. Laissez refroidir le plan, rincez à l'eau et séchez avec un chiffon propre.
Si des feuilles d'aluminium ou de plastique, du sucre ou des aliments contenant du sucre ont fondu sur la surface du plan vitrocérément, enlever-les immédiatement avec une spatule en bois. Cela évitera d'abîmer la surface du plan.



La surface de cuisson du plan en vitrocéramique est très résistante. Il peut toutefois être endommagé par des objets pointus ou durs qui peuvent tomber dessus avec une certaine force. Si la surface du plan vitrocéramique présente des ruptures, des fissures ou des fêlures, ne pas l'utiliser pour éviter tout risque d'électrocution! Contactez immédiatement le centre après-vente.
14.10 Nettoyage du four
Pour une bonne conservation du four, il est nécessaire de le nettoyer régulièrement. L'idéal étant de le faire après chaque utilisation après l'avoir laissé refroidir.
Nettoyer les parties en acier inox et les parties émaillées comme décrit aux paragraphes "14.1 Nettoyage de la surface en acier inox" et "14.2 Nettoyage des surfaces émaillées".
Extraire toutes les parties mobiles et les laver séparément, rincer et sécher soigneusement avec un chiffon propre.
14.10.1 Nettoyage de la porte du four
Il est conseillé de maintenir la porte du four toujours bien propre. Utiliser de l'essuie-tout, en cas de saleté persistante laver avec une éponge humide et du détergent.

Les produits "spray" pour le nettoyage du four ne doivent pas être utilisés pour le nettoyage du ventilateur et des capteurs du thermostat placé à l'intérieur du four.
14.11 Changement de la lampe d'éclairage four
Procéder de la manière suivante:
ouvrir la porte du four; - dévisser dans le sens contraire des aiguilles d'une montre la calotte de protection en verre; dévisser la lampe et la changer avec une nouvelle adaptée aux hautes températures (300^) et avec ces caractéristiques:
Tension: 230 V / 50 Hz
Puissance: 15 W
Fixation: E 14
- Remonter la calotte en verre et remettre le courant électrique. Il est possible de vérifier le fonctionnement de la lampe interne du four même lorsque la porte est fermée en tournant le bouton de sélection de fonctions sur la position.

15. Maintenance exceptionnelle
Le four nécessite périodiquement des petites interventions de maintenance ou des changements de parties sujettes à l'usure. Ci-dessous vous trouvez les instructions spécifiques pour chaque intervention de ce type.

Avant chaque intervention, il est nécessaire de couper l'alimentation électrique de l'appareil et de fermer le robinet de l'installation gaz.
15.1 Démontage de la porte du four
Pour un nettoyage complet de la porte du four, il est conseillé de procéder au démontage comme suit:
ouvrir complètement la porte; - fixer les anneaux A aux logements prévus à cet effet sur les charnières (Fig. A); lever légèrement la porte et la faire coulisser (Fig. B); - poser la porte sur un plan horizontal; - dévisser la vis B en utilisant un tournevis et enlever la languette C (Fig. C); effectuer le nettoyage de la vitre D (Fig. C) et des composants de la porte comme décrit au paragraphe "14.10.1 Nettoyage de la porte du four"; - à la fin procéder au remontage en suivant les indications inverses du démontage.



15.2 Nettoyage du ventilateur du four
Le four ventilé nécessite un nettoyage périodique du ventilateur intérieur. Pour le démonter, procéder comme suit:
- Couper l'alimentation électrique de l'appareil;
- Extraire toutes les parties mobiles à l'intérieur du four;
- Dévisser et enlever les deux écrous A;
- Dévisser les deux pivots E qui fixent le protecteur B du ventilateur D;

En utilisant une pièce de monnaie, dévisser l'écrou C du ventilateur (tourner vers la droite); - Enlever le ventilateur D et le laisser tremper dans de l'eau chaude mélangée à un détergent non abrasif ou corrosif (éviter l'utilisation de produits en poudre ou d'éponges métalliques). Rincer et sécher avec soin; À la fin, procéder au remontage en suivant les indications inverses du démontage.
Notice Facile