L2HM1200E - Cuisinière LACANCHE - Notice d'utilisation et mode d'emploi gratuit
Retrouvez gratuitement la notice de l'appareil L2HM1200E LACANCHE au format PDF.
| Type d'appareil | Hotte aspirante |
| Modèles disponibles | Plusieurs modèles standard |
| Dimensions | Non précisé |
| Matériau | Acier inoxydable ou métal |
| Type d'installation | Murale ou îlot |
| Niveaux de puissance | Plusieurs vitesses |
| Débit d'air | Non précisé |
| Type de filtration | Filtres à graisse et charbon actif |
| Éclairage | Intégré, type LED ou halogène |
| Niveau sonore | Non précisé |
| Commande | Manuelle ou électronique |
| Consommation électrique | Non précisé |
| Couleur | Non précisé |
| Garantie | Standard constructeur |
| Normes | Conforme aux normes européennes |
FOIRE AUX QUESTIONS - L2HM1200E LACANCHE
Téléchargez la notice de votre Cuisinière au format PDF gratuitement ! Retrouvez votre notice L2HM1200E - LACANCHE et reprennez votre appareil électronique en main. Sur cette page sont publiés tous les documents nécessaires à l'utilisation de votre appareil L2HM1200E de la marque LACANCHE.
MODE D'EMPLOI L2HM1200E LACANCHE
GÉNÉRALITÉS 4
FICHES TECHNIQUES, COTES ET DIMENSIONS 6
MANUEL D'INSTALLATION 29
IMPLANTATION 31
INSTALLATION 33
MISE EN PLACE DE LA HOTTE 37
MISE EN PLACE DU/DES GROUPES 41
MISE EN PLACE REHAUSSE HOTTE 43
MONTAGE DES CACHES POUTRES 45
MANUEL D'UTILISATION 47
UTILISATION 48
NETTOYAGE ET ENTRETIEN 49
Note relative à l'élimination des déchets électriques et électroniques 50
Présentation :
Les hôtes Lacanche sont conçues pour s'harmoniser à l'esthétique des fournaux des lignes «Classic» et «Modern» et délivrer une performance optimale.
Conçues également pour le rejet à l'extérieur, au travers d'une gaine d'évacuation, des odeurs et des vapeurs de cuisson.
Elles peuvent etre, en option, configureres pour une utilisation en mode recyclage.
Elles sont réalisées à partir d'un chassin métallique. Les panneaux extérieurs sont en tôle d'acier revétus d'une peinture thermolaquée noire. En option, elles sont aussi proposées avec finition de couleur ou acier inoxydable.
Les poutres de périphérie, frontales et laterales, sont en acier inoxydable.
Le caisson cache-conduit, aussi réalisé en acier inoxydable est régliable en hauteur (de 0 à 240 mm), et permet après installation une liaison homogène jusqu'àu plafond.
En option, celui-ci peut aussi être réalisé sur mesure, pour obtenir une liaison hotte/plafond d'une hauteur supérieure à 240 mm.
A préciser parmi quatre dimensions disponibles (en mm : 250/500,500/750,750/1000).

Motorisation (NOVY uniqement) :
Equipées de blocs d'aspiration NOVY munis de moteurs disposant,ès la première vitesse,d'un rapport débit/pression élevé,les hottes Lacanche sont aussi très silencieuses grâce à leur amortisseur de bruit intégré.
Une ou deux solutions de motorisation sont proposées selon les modèles :
L1HM : Hotte à aspiration directe – Moteur intégré
Disponible pour les modèles avec une largeur de cape comprise entre 900 et 1200 mm, pouvant convenir aux fournaux de 700 à 1100 mm.
Hotte équipée de filtré inox, captein finition inox, moteur intégré, commande électronique, éclairage halogène. Témoin de saturation du filtré à graisses et de la cassette à charbon actif.
L2HM-E : Hotte à aspiration radiale – Moteur intégré ou dissocié
Disponible pour les modèles avec une largeur de cape comprise entre 900 et 2400 mm, pouvant convenir aux fournaux de 700 à 2200 mm.
Hotte, filtré inox, captein finition inox, éclairage LED régiable, moteur intégré dissociable, 3 vitesses et fonction "Power", télécommande.
Dans la configuration dissociée, le moteur s'installe facilement à distance à l'intérieur de l'habitation (combles, cellier, garage...) à l'aide d'un kit de raccordement (Réf.: LKRH) et de gains souples à ressort.
Alimentation :
230 V.
Installation :
L'installation des hottes Lacanche est simplifiée grâce à une bonne accessibilité aux éléments techniques.
Il est nécessaire, avant installation de s'assurer de la solidité de la paroi servant de support.
S'il est facile de percer dans les murs creux (plaques de plâtre, briques, hourdis, etc.), il est en revanche plus délicat d'y fixer les hottes d'aspiration. Pour que celles-ci soient fixées correctement, il convient deCHOISIR un système de fixation adapté aux materiaux creux et de l'installer dans les règles.
FICHE TECHNIQUE, COTES ET DIMENSIONS
L1HM 900 - VUE DE PROFIL

FICHE TECHNIQUE, COTES ET DIMENSIONS
L1HM 900 - VUE DE FACE

FICHE TECHNIQUE, COTES ET DIMENSIONS
L1HM 1100 - VUE DE PROFIL

FICHE TECHNIQUE, COTES ET DIMENSIONS
L1HM 1100 - VUE DE FACE

FICHE TECHNIQUE, COTES ET DIMENSIONS
L1HM 1200 - VUE DE PROFIL

FICHE TECHNIQUE, COTES ET DIMENSIONS
L1HM 1200 - VUE DE FACE

FICHE TECHNIQUE, COTES ET DIMENSIONS
L2HM 900E - VUE DE PROFIL

FICHE TECHNIQUE, COTES ET DIMENSIONS
L2HM 900E - VUE DE FACE

FICHE TECHNIQUE, COTES ET DIMENSIONS
L2HM 1100E - VUE DE PROFIL

FICHE TECHNIQUE, COTES ET DIMENSIONS
L2HM 1100E - VUE DE FACE

FICHE TECHNIQUE, COTES ET DIMENSIONS
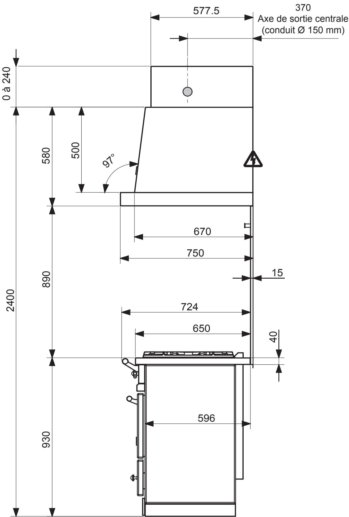
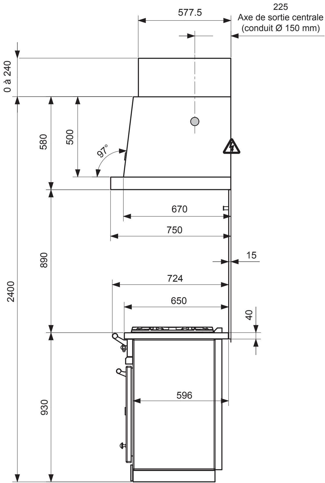
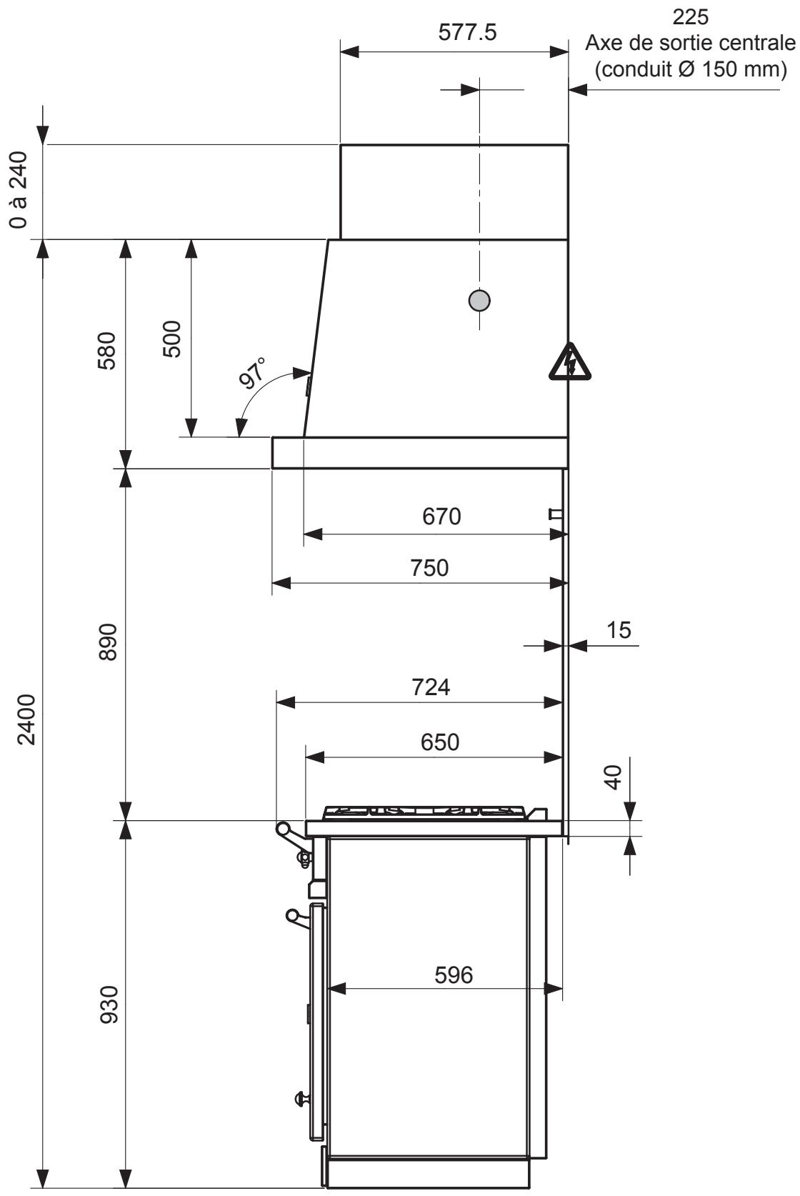
L2HM 1200E - VUE DE PROFIL

FICHE TECHNIQUE, COTES ET DIMENSIONS
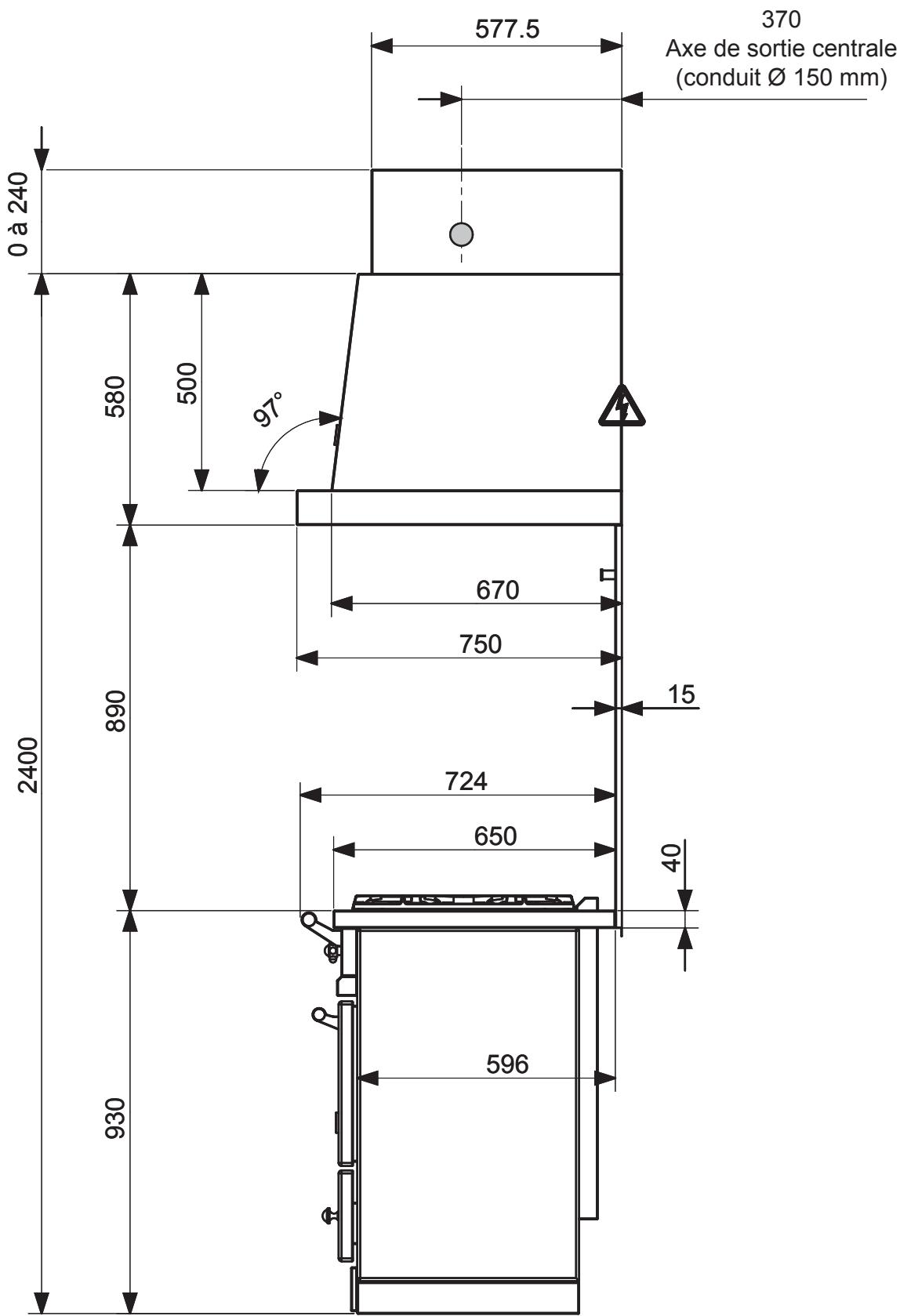
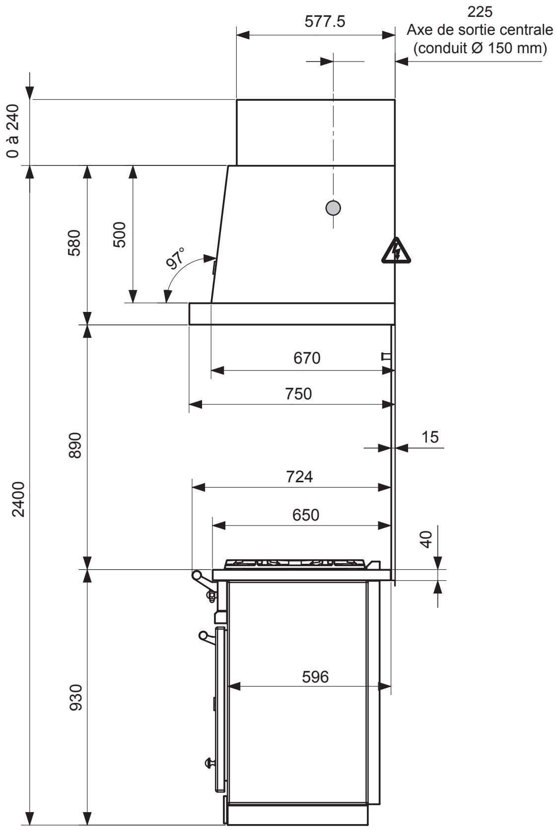
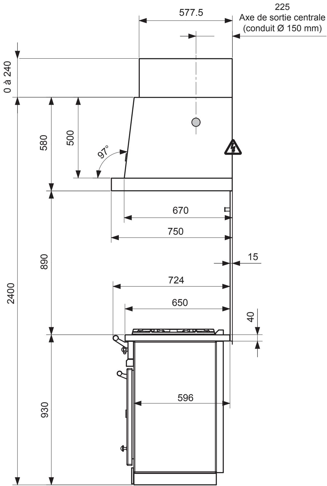
L2HM 1200E - VUE DE FACE

FICHE TECHNIQUE, COTES ET DIMENSIONS
L2HM 1300E - VUE DE PROFIL

FICHE TECHNIQUE, COTES ET DIMENSIONS
L2HM 1300E - VUE DE FACE

FICHE TECHNIQUE, COTES ET DIMENSIONS
L2HM 1600E - VUE DE PROFIL

FICHE TECHNIQUE, COTES ET DIMENSIONS
L2HM 1600E - VUE DE FACE

FICHE TECHNIQUE, COTES ET DIMENSIONS
L2HM 1700E - VUE DE PROFIL

FICHE TECHNIQUE, COTES ET DIMENSIONS
L2HM 1700E - VUE DE FACE

FICHE TECHNIQUE, COTES ET DIMENSIONS
L2HM 2000E - VUE DE PROFIL

FICHE TECHNIQUE, COTES ET DIMENSIONS
L2HM 2000E - VUE DE FACE

FICHE TECHNIQUE, COTES ET DIMENSIONS
L2HM 2400E - VUE DE PROFIL

FICHE TECHNIQUE, COTES ET DIMENSIONS
L2HM 2400E - VUE DE FACE

Hottes
L'installation doit se faire selon les règles de l'art conformément aux instructions contenues dans cette notice et les règlements en vigueur dans le pays d'installation.
Ce manuel sera remis à l'utilisateur après installation.
Avertissements :
L'acquéreur s'engage à installer ou à faire installer son matériel conformément aux règes de l'art, réglementation et normes en vigueur.
Toute intervention ou dépannage sur un apparéil doit être effectués par un intervenant qualifié.
Expédition-colisage :
Emballage bois, bloc turbine en emballage carton sur socle bois.
Déballer, vérifier le bon état de l'appareil. En cas d'avaries, signifier les réserves sur le bordereau de livraison, les confirmer, au plus tard sous 48 heures, par lettuce recommangée avec.accusé de réception auprès du transporteur.
Recommendations :
- Vérifier la hauteur disponible sous plafond.
- Dans le cas d'un groupe intégral et d'une évacuation murale, le coude se trouera obligatoirement au dessus de la hotte
- Le raccordement sur une V.M.C ou un conduit en service n'est pas admis.
- La gaine d'évacuation sera la plus courte et la plus directe possible.
- Par sa puissance, un groupe en service peutmettre le local en depression et la baisse de rendement peutatteindre 50% .Il est indispensable d'assurer le renouvellement de I'air.
- Pour une évacuation murale, prévoir un clapet de façade adapté.
Les hottes LACANCHE doivent être implantées horizontally, à une distance minimum de :
-
65 cm au dessus d'un plan de cuisson électrique.
-
80 cm au dessus d'un plan de cuisson gaz.
Employer un tubage aluminium, désir le chemin d'évacuation le plus court et le plus direct possible : tout rétrécissement, étranglement, chapeau de couverture, grillage est contre-indiqué.

MAUVAIS

MOYEN

BON


Préparation de la hotte :
1 - Retourner la hotte / figure ①

(1)
2 - Dévisser les vis de maintien de la façon avant de la hotte
4 - Retirer la façade avant en la boulevant légèrement et en la tirant vers soi / figure ③.

Montage de la hotte :
1 - Tracer et percer les trous de fixation/ figure 4.
2 - Positionner et fixer les 2 pattes de fixation de hotte (vis type M5).
Attention dans le cas d'habillage arrêté : Monter l'habillage arrêté avant la pose de la hotte.

| L1HM-L2HM 900 | L1HM-L2HM 1100 | L1HM-L2HM 1200 | L2HM 1300 | L2HM 1600 | L2HM 1700 | L2HM 2000 | L2HM 2400 | |
| A | 300 | 500 | 600 | 700 | 1000 | 1100 | 1400 | 1800 |
| B | 620 | 820 | 920 | 1020 | 1320 | 1420 | 1720 | 2120 |
MISE EN PLACE DE LA HOTTE
3 - Accrocher la hotte au profil support de hotte.
4 - Insérer les vis M5 x 35 et HM6 x 30/ figure (5) et (6).
5 - Resserrer légèrement les vis HM6 x 30 afin de plaquer la hotte au mur.
6 - Mettre de niveau en serrant ou desserrant les 2 vis M5 x 35.
7 - Finir de plaquer la hotte au mur en serrant les vis HM6 x 30.

(5)

Mise en place dans la hotte/ figure 7
1 - Enlever les 4 vis de fixation des supports façades et déposer les supports façade.
2 - Préparer etmettre en place le groupe d'aspiration à l'aide de la notice du groupe à incorporer.
⑦

Vérifier la hauteur du plafond et ajuster les supports cache conduit dans les boutonniers reçues à cet effet / figure 8.

| A | 0 à 50 | 50 à 105 | 105 à 160 | 160 à 215 | 215 à 240 |
| N° position | 1 | 2 | 3 | 4 | 5 |
Insérer la réhousse de hotte entre le plafond et les supports cache conduit (fig.9).
Ajuster ensuite, les vérins jusqu'au placage de la réhausse de hotte au plafond/ figure 10.
Attention: Ne pas forcer lors du serrage des vérins.

Remetre en place les supports façade et les fixer.
Remonter la façade de la hotte dans le sens inverse des opérations / Figure ①1
Monter les cache-pôtres (voir figure 12 page suivante)

- Positionner le cache ←, le fixer à l'arrière à l'aide d'une vis inox M5.
- Positionner le ↑, le fixer à l'arrière à l'aide d'une vis inox M5.
- Positionner le cache , le visser sur le support groupe à l'aide de 2 vis inox M5. Ajouter la vis manquante sur les caches et ↑.



MANUEL D'UTILISATION
L'installation doit se faire selon les règles de l'art conformément aux instructions contenues dans cette notice et les règlements en vigueur dans le pays d'installation.
Ce manuel sera remis à l'utilisateur après installation.

Fonctionnement (Dans le cas d'une motorisation NOVY):
Les hottes LACANCHE sont dotées soit d'une turbine ou de 2 turbines de type 600m3 / h qui absorbent les vapeurs au travers de filtres àGRAisse.
Pour un fonctionnement normal, il est conseilé de prendre en considération les notions suivantes :
- placez les casseroles de façon à ce que les butées ne sortent pas du plan inférieur de votre hotte.
- évitez les courants d'air au dessus du plan de cuisson.
- prévoyez une entrée d'air équivalente au début de votre hotte. Si cette condition n'est pas satisfaite, celle ci n'aura pas le rendement attendu.
Mise en service :
Le bandeau de commande de chaque groupe d'aspiration est déterminé par le modele installé.
Se référer au manuel d'utilisation du fabricant pour les fonctions d'utilisation;
ATTENTION!
IL EST FORMELLEMENT INTERDIT DE FLAMBER SOUS LA HOTTE!

Avant tous nettoyages, fermer l'alimentation électrique
ATTENTION
Il est formellement déconseilé de nettoyer cet apparéil à l'aide de produits chlorés.
Lisez attentivement les précautions et recommandations d'utilisation des produits que vous employez pour le nettoyage et entretien de l'appareil. Conformez vous à leurs prescriptions d'utilisation.
Groupe moteur:
Se référer à la notice du fabricant de groupe pour les conseils d'entretien.
Le dégraissage périodique des filtres devra être effectué au moins une fois par mois, plus en cas d'utilisation intensive.
Ne pas utiliser de générateur vapeur pour le nettoyage du groupe moteur !
Façades émailées :
Utilisez une éponge imbibée d'eau savonneuse, ou de produit vitre mais jamais de poudre récurante.
Yououpouzeaussiutiliserde l'alcooàbruleruniquementlorsque l'appareilestfroid.
Parure acier inoxydable :
La parure inox se nettoie avec des produits aérosols vendus en grandes surfaces. Néanmoins désisissez un produit contenant peu de silicone afin d'éviter des traces blanches survenant après le séchage du produit.
Vous pouvez utiliser des produits spécifiques à acier inoxydable (par exemple ZIP INOXYDABLE®, JOHNSON INOXYDABLE®, PPZ INOXYDABLE®), jamais de produits abrasifs.
Logo laiton :
Nettoyer à l'aide d'un chiffon doux imbibé d'un produit spécial laiton (ex : MIROR®). Attention si le produit venait à couler sur l'émail, ne frottez surtout pas (ces produits contiennent des abrasifs) mais rincez à l'eau claire sans froter.
Une autre solution consiste à utiliser un savon solide (Pierre d'argent, Pierre d'argile) que l'on peut appliquer à l'aide d'une éponge mouillée sur les zones à nettoyer.
Cette solution est aussi très efficace pour nettoyer et redonner le brillant aux surfaces en laiton ou chromées.
Note relative à l'élimination des déchets électriques etlectroniques
Décret n° 2005-829 du 20 juillet 2005 relatif à la composition des équipements électriques et électroniques et à l'élimination des déchets issus de ces équipements transposant les directives européennes 2002/95/CE et 2002/96/CE.
Les équipements electriques et electroniques (EEE) et les déchets d'équipements electriques et electroniques (DEEE) sont reglementés sur le plan européen par deux directives dont l'objet est d'une part, de limiter l'utilisation de substances dangereuses dans les EEE et, d'autre part, de favoriser la réutilisation, le recyclage et les autres formes de valorisation des DEEE afin de réduire la quantité de déchets à éliminer.

Chaque équipement électrique etlectronique mis sur le marché après le 13 août 2005 doit être revetu de ce marquage.
Le pictogramme signifie que l'équipment ne peut être jeté avec les autres déchets, qu'il fait l'objet d'une collecte sélective en vue de sa valorisation, réutilisation ou recyclage.
Les utilisateurs d'équipements électriques et électroniques ont l'obligation de ne pas se débarrasser des DEEE avec les déchets municipaux non triés.
- Des systèmes de collectes appropriés sont mis à disposition des utilisateurs.
Pour être en conformité avec la régime mention, la Société Industrielle de Lacanche en tant que producteur d'équipements électrique est adhérente à l'éco-organisme ECO-SYSTEME - FRANCE.
C'est en respectant ces décrets que les utilisateurs d'équipements électriques et électroniques evitant des effets potentiellément néfastes sur l'environnement et la santé humaine. Ils contribuient également à la préparation des ressources naturelles.
Notice Facile