GG 5 - Chaudière AR THERM - Notice d'utilisation et mode d'emploi gratuit
Retrouvez gratuitement la notice de l'appareil GG 5 AR THERM au format PDF.
| Type d'appareil | Chaudière |
| Corps | Fonte |
| Rendement | Haut rendement |
| Modèles | GG 4, GG 5 |
| Alimentation | Non précisé |
| Type de combustible | Non précisé |
| Puissance | Non précisé |
| Type de raccordement | Cheminée et hydraulique |
| Contrôles périodiques | Oui |
| Entretien | Recommandé |
| Schémas électriques | Inclus en annexe |
| Installation | Directive de montage fournie |
| Utilisation | Chauffage |
| Garantie | Non précisé |
| Dimensions | Non précisé |
| Poids | Non précisé |
FOIRE AUX QUESTIONS - GG 5 AR THERM
Questions des utilisateurs sur GG 5 AR THERM
0 question sur cet appareil. Repondez a celles que vous connaissez ou posez la votre.
Poser une nouvelle question sur cet appareil
Téléchargez la notice de votre Chaudière au format PDF gratuitement ! Retrouvez votre notice GG 5 - AR THERM et reprennez votre appareil électronique en main. Sur cette page sont publiés tous les documents nécessaires à l'utilisation de votre appareil GG 5 de la marque AR THERM.
MODE D'EMPLOI GG 5 AR THERM
et CONTROLES PERIODIQUES
7 ENTRETIEN
en annExes SCHEMAS ELECTRIQUES
Le CORPS de la chaudiere
Construit en FONTE, le corps de la chaudière est dimensionné de manière à permettre les autres résultats de combustion et de rendement. L'échange thermique est assuré par des canaux placés au-dessus de la chambre de combustion.
Lajaquette
Construite en tôle épaisse pour une bonne rigidité, elle est esthétique, isolée intérieurement avec des plaques de laine de verre pour réduire les pertes phoniques et thermiques.
La porte FOYERE
Est isolé à l'aide d'un revêtement qui limite les dispersions thermiques vers l'extérieur, le préperçage est prévu pour la fixation d'un brûleur aux normes EUROPEENNE, en cas de besoin, elle peut être re-perçée et taraudée.
Le tableau de BORD.
Description et fonction des équipements
A Interrupteur Général de type bipolaire, il est lumineux sous tension. B Thermostat De Réglage il régule la température de la chaudière
C Reset D Thermomètre chauffage il indique la température du corps de la chaudière
Chapitre 2 recommandations
Le local doit être conforme à la réglementation en vigueur et comporter une ventilation haute, ainsi qu'une ventilation basse de sections suffisantes pour assurer le renouvellement d'air du local et celui nécessaire à la combustion.
La chaudière doit être placée dans une position facilitant son entretien, elle peut être posée sur n'importe quel sol plat et ferme résistant à une charge de 400kg / m².
Un socle n'est pas obligatoire, mais il faut faire attention à une mise à niveau horizontale ou légèrement montante vers le purgeur d'air automatique de la chaudière.
Pour faciliter le nettoyage, les entretiens périodiques et le ramonage de la cheminée, on doit laisser à l'avant (environ un mètre) et à l'arrière (60 cm) de la chaudière, ainsi qu'un intervalle par rapport aux murs ou à de quelconques obstacles.
Un passage de 80 cm de large doit être laissé disponible sur au moins un côté.
De plus, veillez à disposer d'un éclairage suffisamment puissant, ainsi que d'une prise de courant de 20 Ampères avec terre pour l'entretien courant.
Important
Le respect de certaines dispositions et règles techniques conditionne l'application de la garantie CONSTRUCTEUR, il est conseillé que l'installation de nos chaudières soit effectuée que par des personnes compétentes.
Les anciennes installations doivent être bien nettoyées de toutes les boues éventuelles et rincées plusieurs fois si nécessaire, avant le raccordement de toute nouvelle chaudière.
Avant d'installer la chaudière vous devez :
Vérifier que les tuyauteries sont bien dimensionnées et ne doivent pas d’étranglement. Vérifier que les tuyaux de chauffage traversant des locaux non chauffés sont bien isolés thermiquement. Choisir un brûleur parmi les modèles capables de vaincre une légère surpression et adaptable à la puissance de la chaudière. Disposer d’une alimentation électrique indépendante 220 Volts 50Hz (Phase + Neutre et terre). Placer dans la mesure du possible à l’extérieur de la pièce où sera installée la chaudière, un interrupteur pour servir de coupure générale en cas de besoin.
Chaudière et cheminée sont associées avec le brûleur pour garantir un bon fonctionnement économique et sans entraves.
Pour éviter le bistrage, la cheminée doit être étanche, utilisez de préférence une cheminée réfractaire à double paroi ou un conduit spécial isolé en inox intérieur.
La section ne doit pas être inférieure à 4dm² (20~cm× 20~cm) et la hauteur suffisante pour obtenir une dépression à froid comprise entre 1 et 1.5mm CE.
En cas de conduit existant
Pour éviter le refroidissement des fumées, vérifie si le conduit ne comporte pas de prises d'air (tampon de ramonage non étanche, fissures, etc.). S'il est à simple paroi et qu'il passe dans les locaux non chauffés, calorifugez-le. En cas de doute, posez un tubage et prévoyez la récapture des eaux de condensation eventuelles.
Pour le raccordement entre la chaudière et la cheminée, utilisez des tuyaux de fumées de diamètre identique à la buse de sortie de la chaudière. En cas de changement de direction, utilisez de préférence des coudes à au lieu de coudes à. Si le diamètre de la cheminée est plus petit, il faut réduire le tuyau à l'aide d'une réduction cônique pour éviter les angles droits.

Pour plus d'informations, consulter un spécialiste "cheminées" ou notice du fabricant de "tubage".

DEPART Et RETOUR chauffage
Au dos de la chaudière sont disposés 2 manchons : départ (haut) et le retour (bas).
Prévoir deux vannes d'isolement pour permettre la vidange de la chaudière.
Sur les installations à forts diamètres, placer un clapet ANTI-THERMOSIPHON après la pompe.
VANNE Melangeuse (conseiller)
L'installation peut être équipée d'une ou plusieurs VANNES 3 ou 4 voies, pour permettre l'utilisation d'un ou plusieurs circuits chauffage à températures différentes.
Cette vanne peut être automatisée par un régulateur avec sondes départ & extérieure.
Soupape de sécurité et VASE d'expansion
La chaudière doit être équipée d'un vase d'expansion et d'une soupape de sécurité (tarée à 3 bars, diamètre 1/2 "15/21"). Il faut les placer en liaison directe avec le corps de la chaudière.
PURGE d'air
Un purgeur AUTOMATIQUE est à prévoir, sur le départ chauffage de la chaudière.
Apres avoir raccorde la chaudiere
On peut procéder au remplissage du circuit de chauffage après s'être assuré que :
Le ballon d'eau chaude est plein d'eau et équipé d'un groupe de sécurité NF taré à 7 bars.
Le tableau de commande n'est pas sous tension électrique. Tous les robinets de l'installation sont ouverts.
Le remplissage doit se faire progressivement et lentement, jusqu'à une pression de 2,5 bars maxi.
APRES avoir parfaitement rempli et purgé l'installation et la chaudière.
Purger le circulateur en dévissant le bouchon d'inspection. Vérifier aussi que l'arbre moteur n'est pas bloqué par du dépôt calcaire ou des corps étrangers, le faire tourner à l'aide d'un tournevis (voir ci-dessous). Raccorder le câble d'alimentation électrique à la TERRE et au SECTEUR, en respectant la polarité PHASE - NEUTRE. Raccorder impérativement le circulateur chauffage avec le câble d'alimentation électrique du qui sort du tableau pour un bon fonctionnement de la priorité sanitaire. Relier l'éventuel thermostat d'ambiance en utilisant le câble prévu et enlever le pont existant. Alimenter le brûleur en utilisant le câble spécial qui comprend également un conducteur pour relier voyant lumineux du tableau de commande au contact ALARME de défaut de fonctionnement du brûleur. Vérifier la bonne mise à la TERRE du tableau de commande.
PURGE du ou des circulateurs.
Avec les circuits d'eau remplis, il est indispensable de procéder à la purge manuelle avant la mise en marche des circulateurs. On procède de la manière suivante : desserrer le bouchon se trouvant au centre du circulateur (pas à droite) afin de laisser échapper l'air qui se trouve dans le circulateur jusqu'à ce que l'eau commence à sortir de l'orifice. Contrôler la libre rotation du moteur. L'ensemble mobile peut être tourné à la main. L'extrémité de l'arbre présente une fente pouvant recevoir un tournevis. Après contrôle, remonter le bouchon de purge. À la première mise en marche, une faible quantité d'air peut rester dans le circulateur et causer un bruit. Cet air néanmoins est éliminé par un système de purge automatique. Toutefois, si le bruit persiste 24H, il faut refaire une purge du circulateur.
Avant la première mise en service
Qui doit être effectué par une personne qualifiée
Vérifier que :
□ Le foyer de la chaudière est dégagé et la brique réfractaire bien positionnée. La puissance par le brûleur est compatible avec celle de la chaudière. (vérifier la pression de pompe et le gicleur) □ L'alimentation en FUEL de bonne qualité est assurée. □ Les sondes des aquastats et du thermomètre sont bien enfoncées, dans le doigt de gant, mettre ou ajouter l'huile dans celui-ci, pour favoriser le contact. La pression du circuit est voisine de (1.5 bars) (la régler à une pression de 100 grammes par mètre de hauteur d'eau de l'installation plus 300 grammes). L'état du fusible, s'il est déficient, le remplacer par un neuf de 3.15 Ampères. □ Que le thermostat de sécurité n'est pas déclenché, éventuellement le réarmer. Actionner l'interrupteur général et vérifier que le voyant s'allume, dans le cas contraire, vérifier qu'il n'y a pas de mauvais contacts. Régler le thermostat (aquastat) de régulation selon la saison Actionner l'interrupteur été/hiver, sur position HIVER (il n'est lumineux que lorsque la température est atteinte le réglage du thermostat sanitaire du tableau.
Controles periodiques
Vérifier la pression d'eau du circuit, en cas de baisses fréquentes, rechercher les fuites, vérifier le vase d'expansion, les robinets, raccords et vannes. Effectuer la vérification du bon fonctionnement du brûleur et le contrôle de la combustion, la flamme ne doit pas être fumeuse.
Un contrôle et un entretien réguliers de l'ensemble de l'installation de chauffage sont l'assurance d'un fonctionnement sûr, économique, sans problème et écologique.
Nous vous conseillons de confier cette tâche une fois par an à une entreprise spécialisée dans le chauffage, celle-ci contrôle en plus de la chaudière et du brûleur, l'ensemble des éléments de l'installation (radiateurs, robinets, vase d'expansion...)
Les équipements de sécurité de la chaudière et du tableau de commande seront testés, contrôlés et réparés ou remplacés si nécessaire (Thermostat, limiteur de température).
Nettoyage general de la chaudiere
Procéder comme suit :
Couper l'alimentation électrique. Enlever la porte foyer et la trappe de ramonage. Démonter le brûleur et éventuellement le réviser. Enlever les dépôts de suie qui peuvent causer des corrosions Contrôler l'état des appareils électriques et des composants hydrauliques Contrôler les garnitures isolantes et le jointambiante de la porte. Eviter de changer l'eau de l'installation, limitez-vous aux apports de niveau et pression. Vérifier le bon état de tuyaux de raccordement à la cheminée Contrôler l'état de la cheminée.
Effectuer un ramonage une ou deux fois par an.
Traitement de l'eau
Dans une installation de chauffage, la nature de l'eau utilisée est d'une grande importance, car une eau trop calcaire (TH plus de ) favorise les dépôts, ou trop agressive (pH moins de 7) entraîne la corrosion. Si vous êtes dans l'un de ces cas, consultez un spécialiste en traitement d'eau.
Interruptions plus longues
Si la chaudière venait à être arrêtée plus longtemps, il faudrait alors la nettoyer à fond et la protéger contre la corrosion.
Pour cela, le moyen est de démonter les tuyaux de raccordement à la cheminée et de déposer dans la chambre de combustion un sac ou pot de chaux (carbonate de calcium) afin de capter l'humidité qui pourrait apparaître.
La porte foyer de la chaudière doit être laissée ouverte.
S'il y a risque de gel, l'installation doit être vidangée totalement, sinon utiliser un antigel dont il faudra vérifier régulièrement "le poids", c'est-à-dire la concentration pour une bonne protection correspondante à la température EXTERIEURE de votre région.



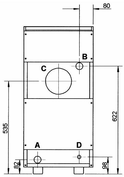
| DIMENSIONS | GG 4 | GG 5 | |
| H | HAUTEUR | 850 | 850 |
| L | LARGEUR | 400 | 400 |
| P | PROFONDEUR | 440 | 520 |
| RACCORDEMENTS | ∅ | |
| A | RETOUR CHAUFFAGE | 1"1/4 |
| B | DEPART CHAUFFAGE | 1"1/4 |
| C | EVACUATION FUMEE | 150 |
| D | VIDANGE CHAUFFAGE | 1/2" |

Terre
N Neutre
L Phase
TA Thermostat d'ambiance (OPTION)
CR Circulateur chauffage
BR Bruleur
NBR Neutre brûleur
LBR Phase brûleur
TM Thermostat anti condensation minimum 55°C
IL Interrupteur général de la chaudière
TSR Thermostat de sécurité à rearmement manuel
TRC Thermostat de réglage chaudière
| MODELES | GG 4 | GG 5 | |
| PUISSANCES Kw rendue a l'eau | maxi | 33,2 | 43 |
| PUISSANCES Kw rendue a l'eau | mini | 20 | 25 |
| PUISSANCES Kcal/h rendue a l'eau | maxi | 28600 | 36980 |
| PUISSANCES FOYER | Kw | 37,3 | 48 |
| PUISSANCES FOYER | Kcal/h | 32070 | 41320 |
| RESISTANCE FOYER | mm CE | 1,2 | 1,5 |
| PERTE DE CHARGE FUMEES | mbar | 0,15 | 0,2 |
| CONTENANCE CORPS | litres | 19 | 21,9 |
| PERTE DE CHARGE COTE EAU | mbar | 5 | 6,2 |
| RACCORDEMENTS | |||
| DEPART RETOUR | chauffage | 1"1/433/42 | 1"1/433/42 |
| DEPART RETOUR | sanitaire | ||
| vidange | 1/2" 15/21 | 1/2" 15/21 | |
| PRESSION CHAUFFAGE | service en bars | 0,5 à 1,5 | 0,5 à 1,5 |
| PRESSION CHAUFFAGE | maxi en bars | 3 | 3 |
| EVACUATION FUMEE | diamètre | 150 | 150 |
| POIDS | Kg | 126 | 145 |
FICHE Signalitique

C E
Notice Facile