VIA 641 X - Piano cottura INDESIT - Manuale utente e istruzioni gratuiti
Trova gratuitamente il manuale del dispositivo VIA 641 X INDESIT in formato PDF.
Scarica le istruzioni per il tuo Piano cottura in formato PDF gratuitamente! Trova il tuo manuale VIA 641 X - INDESIT e riprendi in mano il tuo dispositivo elettronico. In questa pagina sono pubblicati tutti i documenti necessari per l'utilizzo del tuo dispositivo. VIA 641 X del marchio INDESIT.
MANUALE UTENTE VIA 641 X INDESIT
Collegamento elettrico
Descrizione dell'apparecchio, 4
Pannello di controllo
Avvio eutilizzato,5-8
Accensione del piano cottura
Accensione delle zone di cottura
Funzione booster
Spegnimento delle zone di cottura
Programmazione della durata di una cottura
II contaminuti
Blocco dei comandi
Spegnimento del piano cottura
Modalità “demo”
Consigli pratici per l'uso dell'apparecchio
Dispositivi di sicurezza
Consigli pratici per la cottura
Precauzioni e consigli, 9
Sicurezza generale
Smaltimento
Manutenzione e cura, 10
Escludere la corrente elettrica
Pulire l'apparecchio
Smontare il piano
Descrizione tecnica dei modelli, 11
! è importante conservare quello librettto per poterlo consultare in agli giorni. In caso di vendita, di cessione o di trasloco, assicurarsi che resti insieme all'apparecchio per informare il nuovo proprietario sul funzionamento e sui relativi averimenti.
! Leggere attentamente le istruzioni: ci sono importanti informazioni sull'installazione, sull'uso e sulla sicurezza.
Posizionamento
!Gli imballaggi non sono giocattoli per bambini e vanno eliminati secondo le norme per la raccolta differenziata (vedi Precauzioni e consiglio).
! L'installatione va effettuata secondo queste istruzioni e da personale professionalmente qualificato. Una errata installatione cui potro causare danni a persone, animali o cose.
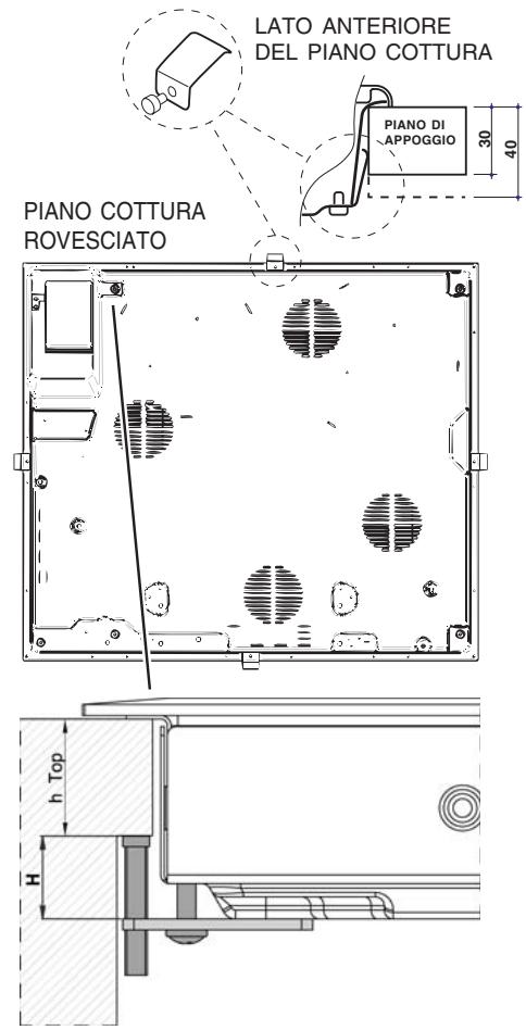
Incasso
Per garantire un buon funzionamento dell'apparecchio è necessario che il mobile abbia le caratteristiche adatte:
- il piano d'appoggio deve essere di materiale resistente al calore, a una temperatura di circa 100^ ;
- se si desidera installare il piano cottura sopra unorno, quellouve essere provvisto di un systemadi raffreddamento a ventilazione forzata;
- evitare di installare il piano cottura sopra una lavastoviglia: all'occurrezza frapporre un elemento di separazione a tenutaagna fra i due appearechi;
- a seconda del piano cottura che si desidera installare (vedi figure), il vano del mobile deve avere le seguenti dimensioni:

Aerazione
Per consentire un'adeguata aerazione e per evitare il surriscaldamento delle superfici attorno all'apparecchio, il piano cottura deve essere posizionato:
- a una distanza minima di 40 mm alla parete retrostante o da qualsiasi altra superficie verticale;
- in modo da Maintainere una distance minima di 20 mm fra il vano per l'incasso e il mobile sottostante.
- I mobili situati a fianco, la cui altezza superi quella del piano di lavoro, debbono essere situati ad almeno 600 mm dal bordo del piano stesso.



Fissaggio
L'installazione dell'apparecchio deve essere effettuata su un piano d'appoggio perfettamente piano.
Le eventuali deformazioni provocate da un errato fissaggio potrebbero alterare le caratteristiche e le prestazioni del piano cottura.
La lunghezza della vite di regolazione dei ganci di fissaggio va impostata prima del loro montaggio, in base allo spessore del piano d'appoggio:
spessore di 30~mm :vite 23 mm
- spessore di 40 mm: vite 13 mm.
Per il fissaggio agire come segue:
- Con le viti corte senza punta, avvitare le 4 molle di centraggio nei fori posti al centro di ogni lato del piano;
-
insere il piano cottura nel vano del mobile, centrarlo ed esercitare una adeguata pressione sull'intero perimetro affinché il piano di cottura aderisca bene al piano d'appoggio.
-
per i piani con profili laterali: dopo aver inserito il piano cottura nel mobile, insereire i 4 ganci di fissaggio (ognuno con il suo perno) sul perimetro inferiore del piano cottura, avvitandoli con le viti lunghe con punta finché il vetro non aderisce al piano d'appoggio.
!È indispensableabile che le viti delle molle di centraggio rimangano accessibili.
! In conformità alle norme di sicurezza, una volta incassato l'apparecchio, non debbono essere possibili eventuali contatti con le parti elettriche.
! Tutte le parti che assicurano la protezione debbono essere fissate in modo tale da non poter essere tolte alla l'aiuto di quale utensile.
Collegamento elettrico
! L'allcantiamento elettrico del piano cottura e quello di un eventuale forno da incasso devono essere realizzativi separatamente, sia per ragioni di sicurezza elettrica sua per facilitare le operazioni di estrazione del forno.
Collegamento monofase
Il piano è dotato di cavo di alimentazione più collegato e predisistosto per il collegamento monofase. Effettuare l'allaccio dei fili in accordo con la tabella e i disegni che seguono:
| Tensione tipo e frequenza rete | Cavo elettrico | Collegamento fili |
| 220-240V 1+N ~ 50 Hz | N L | : giallo/verde; i N: i 2 fili blu insieme i L: marrone insieme al nero |
Altri tipi di collegamento
Se l'impiano elettrico corrisponde a una delle seguenti caratteristiche:
Tensione tipo e frequenza di rete
- 400V - 2+N ~ 50 Hz
220-240V 3 ~ 50 Hz - 400V 3 - N ~ 50 Hz
- 400V - 2+2N ~ 50 Hz
Separare i cavi ed effettuare il collegamento dei fili in accordo con la tabella e i disegni che seguono:
| Tensione tipo e Frequenza rete | Cavo elettrico | Collegamento fili |
| 400V - 2+N ~ 50 Hz | N L1 L2 | ½: giallo/verde; N: i 2 fili blu insieme L1: nero L2: marrone |
| 220-240V 3 ~ 50Hz | ||
| 400V 3-N~ 50Hz | ||
| 400V - 2+2N ~ 50 Hz | N1 N2 L1 L2 | ½: giallo/verde; N1: blu N2: blu L1: nero L2: marrone |
Allaccimento del cavo di alimentazione alla rete
In caso di collegamento diretto alla rete è necessario interporre tra l'apparecchio e la rete un interruptore onnipolare con aperture minima fra i contatti di 3 mm.
! L'installatore è responsable del corretto collegamento elettrico e dell'osservanza delle norme di sicurezza.
Prima di effettuare l'allciamento accertarsi che:
- la presa abbia la messa a terra e sua a norma di legge;
- la presa sia in grado di sostortare il carico massimo di potenza della macchina,indicato nella targhetto caratteristiche posta sull'apparecchio;
- la tensione di alimentazione sia compresa nei valori della targhetto caratteristiche;
- la presa sia compatibile con la spina dell'apparecchio. In caso contrario sostuire la presa o la spina; non usare prolonghe e multiple.
! Ad apparecchio installato, il cavo elettrico e la presa della corrente devono essere facilemente raggiungibili.
! Il cavo non deve subire piegature o compressioni.
! Il cavo delve essere controllato periodicamente e sostituito solo da tecnici autorizzati.
! L'azienda declina ogni responsabilità qualora QUESTe norme non vengano rispectate.
! Non rimuovere o sostuire per nessun motivo il cavo di alimentazione. L'eventuale rimozione o sostuzione fa' decadere la garanzia e il marchio CE. INDESIT non si assume alcuna responsabilita' per incidenti o danni derivanti alla sostuzione/rimozione del cavo di alimentazione originale. E' ammessa solo la sostuzione con un ricambio originale ed effettuata da personale autorizzato INDESIT.
Pannello di controllo
Il pannello di controllo che qui viene descritto è rappresentato a fini esemplificativi: perché non Essere una esatta riproduzione del modello acquistato.

- Tasto AUMENTO POTENZA per accendere la piastra e regolare la potenza (vedi Avvio e utilizzato).
- Tasto DIMINUZIONE POTENZA per regolare la potenza e spegnere la piastra (vedi Avvio e utilizzato).
- Spia ZONA DI COTTURA SELECTIONATA indica che la zona di cottura relativa è stata selezionata e quando sono possibili le varie regolazioni
- Tasto SELECTIONE ZONA DI COTTURA per selezionare la zona di cottura desiderata
- Indicatore POTENZA: segnala visipamente il livello di calore raggiunto.
- Tasto ON/OFF per accendere e spagnere l'apparecchio.
- Spia ON/OFF: segnala se l'apparecchio è acceso o spento.
- Tasto TIMER DI PROGRAMMAZIONE* per regolare la programmazione della durata di una cottura (vedi Avvio e utilizzato).
-
Presente solo in alcuni modelli.
-
Display TIMER DI PROGRAMMAZIONE*: visualità le scelte relative alla programmazione (vedi Avvio e utilizzato).
- Spie ZONA DI COTTURA PROGRAMMATA*: indicano le zone di cottura quando si avvia una programmazione (vedi Avvio e utilizzato).
- Tasto BLOCCO DEI COMANDI per impedire modifiche fortuite alle regolazioni del piano cottura (vedi Avvio e utilizzato).
- Spia COMANDI BLOCCATI: segnala l'avvenuto blocco dei comandi (vedi Avvio e utilizzato).
- Tasto BOOSTER* per accendere la sovr alimentazione - 3000 W - della zona di cottura (vedi Avvio e utilizzato).
- Spia BOOSTER* indica che è attiva la funzione di sovralimentazione booster
- Spia CONTAMINUTI* indica che è attivo il contaminuti
! La colla applicata sulle guarnizioni lascia alcune traccé di grasso sul vetro. Prima di utilizzare l'apparecchio, si raccomanda di eliminarle con un prodotto specifico per la manutenzione non abrasivo. Durante le prime ore di funzionamento è possibile avvertire un odore di gomma, che comunique scomparirà presto.
! Quando il piano cottura viene collegato elettricamente, dopo acuni secondi viene emesso un breve segnale acustico. Soltanto a questo punto è possibile accendere il piano cottura.
Rumori di normale funzionamento del piano cottura:
- Ronzio: è dovuto alla vibrazione degli elementi metallici di cui sono costituiti l'induttore e la pentola e si genera per il Campo elettromagnetico necessario per il riscaldamento;esso augenta all'aumentare del livello di potenza dell'induttore.
- Leggero fischio: si manifesta quando la pentola disposa sulla zona cottura è vuota; il rumore scompare non appena si aggiungono alimenti o acqua.
- Crepitio: è un rumore prodotto dalle vibrazioni del materiale del fondo della pentola quando è attravaszato dalle correnti parasite dovute al Campo elettromagnetico (induzione); perché essere più o meno intenso a secondo del materiale del fondo della pentola e si riduce se le dimensioni della pentola aumento.
- Fischio intenso: si manifesta quando funzionano contemporaneamente i due induttori sulla stessa verticale alla massima potenza e/o su quello più grande è insertita la funzione booster e l'alto è autoregolato. Il rumore si riduce non appena si abbassa il livello di potenza dell'induttore autoregolato; si manifesta in particolare quando il fondo della pentola è costituito da strati di materiale diverso.
- Rumore della ventola: per il corretto funzionamento del piano e per garantire la sicurezza della parte elettronica da possibili surriscaldamenti è necessario l'azionamento di una ventola. La ventola funziona alla massima potenza quando l'induttore grande è al massimo livello di potenza o quando è inserita la funzione booster; in tutti gli altri casi funziona a potenza media a seconda della temperatura rilevata. Inoltre è possibile che la ventola continui a funzionare ancche dopo la disattivazione del piano se la temperature rilevata è alta.
I rumori elencati sono dovuti alla Tecnologia induzione e non segnalano necessariamente difetti di funzionamento.
! La pressione prolongata dei tasti - e + consente l'avanzamento veloce dei livelli di potenza e dei minuti del timer.
- Presente solo in alcuni modelli.
Accensione del piano cottura
L'accensione del piano cottura avviene tenero premuto il tasting © per circa un secondo.
Accensione delle zone di cottura
Ciascuna zona di cottura viene azionata tramite un tasting di selezione e un dispositorio di regolazione della potenza composto da un doppio tasting +.
- PerMETTERinfunzioneuna zona di cottura,premere il relativotastodicomandoeimpostarela potenza desideratatramiteitastie+
Funzione booster*
Per accelerare i tempi di riscaldamento, su alcune zone di cottura è possibile attivare la funzione booster premendo il tasting. Si accende la spia posta sopra al tasting.
Questa funzione sovr alimenta la potenza a 2000W o 3000W a seconda della grandezza della zona di cottura interessata.
Il booster si interrompe automaticamente dopo 4 minuti. Finché il booster di una delle zone di cottura è attivo, la zona di cottura corrispondente anteriore o posterioreavr potenza limitata (es: se è attivo il booster nella piastraposteriore sinistra, si abbassa la potenza della piastranterioriore sinistra). Per ulteriori chirimenti vedere
Descrizione tecnica dei modelli.
Spegnimento delle zone di cottura
Per spagnere una zona di cottura, selezionarla tramite il relativo tasto di selezione e:
- Premere il tasto: la potenza della zona di cottura scende progressivement, fino allo spegnimento.
Programmazione della durata di una cottura
!È possibile programmare contemporaneously tutte le zone di cottura per una durata compresa tra 1 e 99 minuti.
-
Selezionare la zona di cottura tramite il tasto di selezione corrispondente.
-
Regolarne la temperatura.
- Premere il tasto di programamazione
- Impostare la durata di cottura desiderata tramite i tasti

- Confermare premendo il tasting L
Il conta alla rovescia del timer ha inizio immediatamente. La fine della cottura programmata è indicata da un segnale acustico (per la durata di 1 minuto) e la zona di cottura si spegne.
Ripetere la procedura sopra descritta per agli piastra che si intende programmare.
Visualizzazione in caso di programmazione multipla
Quando una o più piastre sono state programmate, il display visualizza il tempo rimanente della piastra che è più vicina al terme del tempo programmato,indicandone la posizione con la spia corrispondente che lampeggia. Lespie delle autres piastre programmate sono accese. Per visualizzare il tempo restante delle autres piastre
programmate, premere ripeturamente il tasting L:
verranno sostrati in sequenza e in senso orario i tempi di tutte le piastre programmate, a partire da quella anteriore sinistra.
Modificare la programmazione
- Premere ripeturamente il tastingfinché non vienemostrato il tempo della piastra che si intende modificare.
- Agire sui tasti - e + per impostare il nuovo tempo.
- Confermare premendo il tasting
Per cancellare una programmazione, agire come sopra. Al
mente.
programmazione si azzera e il display esce alla modalità.
programmazione.
II contaminuti
Il piano di cottura deve essere acceso.
Il contaminuti permette di impostare una durata fine a 99 minuti.
- Premere il tasting di programamazione L. finché la spia contaminuti non si accende.
-
Impostare la durata desiderata tramite i tasti e +
-
Confermare premendo il tasting
Il conta alla rovescia del timer ha inizio immediatamente. A tempo scaduto viene emesso un segnale acustico (per la durata di 1 minuto).
Blocco dei comandi
Quando il piano cottura è in funzione, è possibile bloccare i comandi per evitare il rischio di modifiche fortuite alle regolazioni (bambini, operazioni di pulizia, ecc.). Premendo
il tasto i comandi si bloccano
e la spia che si trova sopra al tasting si accende.
Per tornare ad agire sulle regolazioni (es. interrompere la cottura) è necessario sbloccare i comandi: premere il
tastoo per quale istante, la spia si spegne e i comandi si sbloccano.
Spegnimento del piano cottura
Premendo il tasting ① l'apparecchio si spegne. Se i comandi dell'apparecchio sono stati bloccati, continueranno ad essere bloccatianche dopo aver riacceso il piano di cottura.Per poter riaccendere il piano è necessario prima sbloccare i comandi.
Modalità “demo”
È possibile impostare una modalità dimostrativa nella quale il pannello comandi funzioni normalmente (includi i comandi relativi alla programmazione), ma gli elementi riscaldanti non si accendono. Per attivare la modalità "demo" occorre che il piano sia acceso e tutte le piastre siano spente:
- Premere e tenere premuti contemporaneamente i tasti + e - per 6 secondi. Allo scadere dei 6 secondi la spia ON/OFF e la spia BLOCCO COMANDI lampeggiano per un secondo. Rilasciare i tasti + e - e premere
il tasto L
- il display visualizza la scritta DE e MO e il piano si spegne;
- alla successiva riaccensione il piano si troverà in modalità "demo".
Per uscire da esta modalità seguire la procedura sopra descritta. Il display visualizza la scritta DE e OF e il piano si spegne. Alla successiva riaccensione funzionera
normalmente.
Consigli pratici per l'uso dell'apparecchio
! Adoperare recipienti di cottura il cui materiale di fabbricazione siaCompatible con il principio dell'induzione (materiale ferromagnetico). Si raccomanda l'uso di pentole in: ghisa, acciaio smaltato o inox speciale per induzione. Per sincerarsi della compatibilità di unrecipient è sufficiente fare una prova con una calamita.


Inoltre, per ottener le migliorari prestazioni dal piano di cottura:
- Adoperare pentole con fondo piatto e di elevato spessore, per essere certi che aderiscano perfettamente alla zona riscaldante.


- Adoperare pentole di diametro sufficiente a coprir completamente la zona riscaldante, in modo da garantire lo sfruttamento di tutto il calore disponibile.



- Accertarsi che il fondo delle pentole sia sempre perfettamente asciutto e pulito, per garantire la corretta aderenza e una lunga durata, sua alle zone di cottura che alle pentole stesse.
- Evitare di utilizzato le stesse pentole utilizzate sui bruciatori a gas: la concentrazione di calore sui bruciatori a gas più deformare il fondo della pentola, che perde aderenza.
Dispositivi di sicurezza
Rilevamento dei recipienti
Ciascuna zona di cottura è provvista di un dispositorio di rilevamento della pentola. La piastra emette calore unicamente in presenza di una pentola di dimensioni
adequate alla zona di cottura stessa. Il display indicatore di potenza lampeggiante cui includere:
- una pentola incompatible
- una pentola di diametro insufficiente
- il sollevamento della pentola
Surriscaldamento
In caso di surriscaldamento dei componenti elettronici, il piano cattura si spegne automaticamente e sul display appare seguito da un numero lampeggiante. Questo messaggio scompare e il piano torna utilizzabile non appena la temperatura è scesa a un livello accettabile.
Interruttore di sicurezza
L'apparecchio è dotato di un interrottore di sicurezza che spagne le zone di cottura automaticamente quando viene raggiunto un tempo limite di utilizzo a un dato livello di potenza. Durante l'interruzione di sicurezza, il display indica "0".
Esempio: la piatra posteriore destra è impostata su 5, perché la piatra anteriore sinistra su 2. La posteriore destra si spegnerà dopo 5 ore di funzionamento, la anteriore sinistra dopo 8 ore.
| Livello di potenza | Tempo limite di funzionamento in ore |
| 1 | 9 |
| 2 | 8 |
| 3 | 7 |
| 4 | 6 |
| 5 | 5 |
| 6 | 4 |
| 7 | 3 |
| 8 | 2 |
| 9 | 1 |
Segnale acustico
Alcune anomalie, quali:
- un oggetto (pentola, posata, ecc.) posto per altri 10 secondi sull'area dei comandi,
- un versamento sull'area dei comandi,
- una pressione esercitata a lungo su un tasting, possono provocare l'émissione di un segnale acustico. Rimuovere la causa del malfunzionamento per interrompere il segnale acustico. Se la causa dell'anomalia non viene rimossa, il segnale acustico persistsiste e il piano si spegne.
Consigli pratici per la cottura
| Cottura a fuco vivissimo | 89 | Cottura a Pressione Pentola a pressione Grigliata | Frittura Ebollizione |
| Cottura a fuco vivo | 80 | Crèpe | Cottura a fuco vivo e doratura (Arrosti, Bistecche, Scaloppine, Filetti di pesce, Uova al tegamino) |
| Cottura a fuco medio | 77 | Addensamento rapido (Sughi liquidi) Acqua boliente (Pasta, Riso, Verdure) Latte | |
| 68 | Addensamento lento (Sughi consistenti) | ||
| 59 | Cottura a bagnomaria | Cottura Pentola a pressione dopo il sibilo | |
| Cottura a fuco lento | 46 | Cottura a fuco lento (Stufati) | Riscaldamento delle pietanze |
| Cottura a fuco lentissimo | 31 | Salsa al ciocolato | Mantenimento al caldo |
! L'apparecchio è stato progettato e costruito in conformità alle norme internazionali di sicurezza. Queste avventenze sono fornite per ragioni di sicurezza e devono essere lette attendamente.

Questa appearecchiatura è conforme alle seguenti Direttive Comunitarie:
- 2006/95/CEE del 12/12/06 (Bassa Tensione) e successive modificazioni
- 89/336/CEE del 03/05/89 (Compatibilità Elettromagnetica) e successive modificazioni
- 93/68/CEE del 22/07/93 e successive modificazioni.
Sicurezza generale
! Controllare che la presa d'ariatramite la griglia del ventilatore non sia mai ostruita. Il piano da incasso, infatti, necessita di una corretta aerazione per il raffreddamento dei componenti elettronici.
!È sconsigliata l'installazione di un piano cottura a induzione sopra un frigorifero sottotavolo (calore) o sopra una lavatrice (vibrazioni). Lo spazio necessario per la ventilazione degli elementi elettronici sarebbe infatti insufficiente.
- L'apparecchio è stato concepito per un uso di tipo non professionale all'interno dell'abitazione.
- L'apparecchio non va installato all'aperto, nemmeno se lo spazio è riparato, perché è molto pericoloso lasciarlo esesto a pioggia e temporali.
- Non toccare la macchina a piedi nudi o con le mani o i piedi bagnati o umidi.
- L'apparecchio deve essere usato per cuocere alimenti, solo da persona adulte e secondo le istruzioni riportate in questo libretto. Non utilizzato il piano come superficie di appoggio, né come tagliere.
- Il piano in vetroceramica è resistenteagli urti meccanici,uttavia più incrinarsi (o eventualmente frantumarsi) se colpito con un oggetto appuntito, quale un utensile. In questysi casa, scollegare immediatamente l'apparecchio dallarete di alimentazione e rivolgersi all'Assistenza.
- Evitare che il cavo di alimentazione di altri elettrodomestici entri in contatto con parti calde del piano cottura.
- Non dimenticare che la temperatura delle zone di cottura rimane piuttosto elevata per almeno trenta minuti dopo lo spegnimento. Il calore residuo è segnalatoanche da un indicatore (vedi Avvio e utilizzato).
- Tenere a debita distanza dal piano cottura qualsiagi oggetto che potrebbe fondere, ad esempio oggetti in plastica, in alluminio o prodotti con un elevato contentuto di zucchero. Fare particolare attenzione a imballaggi e pellicole in plastica o alluminio: se dimenticati sulle superfici ancora calde o tiepide possono causare un grave danno al piano.
- Avverenza per i portatori di pacemaker o altri dispositivi medici impiantabili attivi:
- Assicurarsi che i manici delle pentole siano sempre rivolti versuso l'interno del piano cottura per evitare che vengano urtati accidentally.
Non staccare la spina dalla presa della corrente tirando il cavo, bensi afferrando la spina. - Non fare pulizia o manutenzione perché aver prima staccato la spina alla rete elettrica.
- Non è previsto che l'apparecchio venga utilizzato da persone (bambini compresi) con ridotte capacità fisiche, sensoriali o mentali, da persona inesperte o che non abbiano familiarità con il prodotto, a meno che non vengano sorvegliate da una persona responsabile della loro sicurezza o non abbiano ricevuto istruzioni preliminari sull'uso dell'apparecchio.
Il piano cottura è conforme a tutte le normative vigenti in materia di interferenze elettromagnetiche.
Questo prodotto è pertanto perfettamente rispondente a tutti i requisiti di legge (direttive 89/336/CEE). É stato progettato in modo da non creare inferenze ad altre apparecchiature elettriche utilizzate, a condizione che sono siano conformi alle suddette normative.
Il piano cottura a induzione genera campi elettromagnetic a breve portata.
Per evitare anni rischio di interferenze tra il piano di cottura e il pacemaker, quest'ultimo dovrà essere realizzato in conformità alle normative vigenti.
A tale riguardo, possiamo garantire unicamente la conformità del nostro prodotto. Per informazioni sulla conformità o eventuali problemi di incompatibilità, si prega di rivolgersi al proprio medico curante o alla casa produttrice del pacemaker.
- Evitare che i bambini giochino con l'apparecchio.
Smaltimento

- Smaltimento del materiale di imballaggio: atteneri alle norme locali,osi gli imballaggi potranno essere riutilizzati.
- La direttiva Europea 2002/96/CE sui rifiuti di apparecchiature elettriche ed elettroniche (RAEE), prevede che gli elettrodomestici non debbano essere smaltiti nel normale flusso dei rifiuti solidi urbani. Gli apparecchi dismessi devono essere raccolti separatamente per ottimizzare il tasso di recupero e riciclaggio dei materiali che li compongono ed impedire potenziali danni per la salute e l'ambiente. Il significolo del cestino barrato è riportato su tutti i prodotti per ricordare gli obblighi di raccolta separata.
Per ulteriori informazioni, sulla corretta dismissione degli elettrodomestici, i detentori potranno rivolgersi al servizio pubblico preposto o ai rivenditori.
Escludere la corrente elettrica
Prima di agli operazione isolare l'apparecchio alla rete di alimentazione elettrica.
Pulire l'apparecchio
! Evitare l'uso di detergenti abrasivi o corrosivi, quali i prodotti in bombolette spray per barbecue e fornì, smacchiatori e prodotti antiruggine, i detersivi in polvere e le spugne con superficie abrasiva: possono graffiare irrimediabilmente la superficie.
! Non utilizzato mai pulitori a vapore o ad alta pressione per la pulizia dell'apparecchio.
- Per una manutenzione ordinaria, è sufficiente lavare il piano con una spugna umida, asciugando quindi con una carta assorbente per cucina.
- Se il piano è particolaremente sporco, strofinare con un prodotto specifico per la pulizia delle superfici in vetroceramica, sciacquare e asciugare.
- Per rimuovere gli accumuli di sporco più consistenti servirsi di un apposto raschietto. Intervenire non appena possibile, alla attendere che l'apparecchio si via raffreddato, per evitare l'incrostazione dei residui. Eccellenti risultati si sono ottenere usinga una spugnetta in filo d'acciaio inossidabile - specifica per piani in vetroceramica - imbevuta di acqua e sapone.
- In caso sul piano cottura si fossoro accidentalmente fusi oggetti o materiali quali plastica o zucchero, rimuoverli con il raschietto immediatamente, finché la superficie è ancora calda.
- Una volta pulito, il piano può essere trattato con un prodotto specifico per la manutenzione e la protezione: la pellicola invisibile lasciata da quello prodotto protegge la superficie in caso di scolamenti durante la cottura. Si raccomanda di eseguire queste operazioni con l'apparecchio tiepido o freddo.
- Ricordarsi sempre di risciacquare con acqua pulita e asciugare accuratamente il piano: i residui di prodotti potrebbero infatti incrostarsi durante la successiva cottura.
Telaio in acciaio inox (solo nei modelli con cornice)
L'acciaio inossidabile più macchiarsi per effetto di un'acqua molto calcarea lasciata per un periodo di tempo prolongato aicontatto dello stesso oppure a causa di prodotti per la pulizia contenti fosforo. Si consiglia di sciacquare abbondamente e asciugare con cura dopo la pulizia del piano. In caso di versamenti d'acqua, intervenire rapidamente asciugando con cura.
! Alcuni piani cottura hanno una cornice in alluminio somigliante all'acciaio inox. Non utilizzato prodotti per la pulizia e lo sgrassaggio non idonei per l'alluminio.
Smontare il piano
Nel caso si renda necessario smontare il piano cottura:
- togliere le viti che fissano le molle di centraggio sui lati;
- allentare le viti dei ganci di fissaggio sugli angoli;
- estrarre il piano cottura dal vano del mobile.
! Raccomandiamo di evitare di accedere ai meccanismi interni per tentare una riparazione. In caso di guasto, contattare l'Assistenza.
Ilsystema a induzione è il procedimento di cottura più rapido che esista. A differenza delle piastre tradizionali, non è la zona di cottura che si riscalda: il calore viene generato direttamente all'interno della pentola, la quale dovrà possedere necessariamente un fondo in materiale ferromagnetic.
| Piani cottura | VIA 640 C | VIC 641 X VIC 641 B |
| Zone di cottura | Potenza (in W) | Potenza (in W) |
| Posteriore sx | I 1400 | I 1400 |
| Posteriore dx | I 2200 | I 2200 – B 3000* |
| Anteriore sx | I 2200 | I 2200 |
| Anteriore dx | I 1400 | I 1400 – 600 se Post. Dx* |
| Potenza totale | 7200 | 7200 |
Legenda:
I = zona di cottura a induzione semplice
B = booster: la zona di cottura può essere sovr alimentata a 3000 W
* = la potenza massima è limitata finché è attivo il booster nella zona di cottura posteriore relativa (vedi Avvio e utilizzato).

Italiano, 1

Français,12

English,23

Deutsch, 34

Espanol, 45
VIA 640 C
VIC 641 B
VIC 641 X
Sommaire
Installation, 13-14
Positionnement
ManualeFacile