HOTPOINT MWHA1221X - Mikrofale

MWHA1221X - Mikrofale HOTPOINT - Bezpłatna instrukcja obsługi

Znajdź bezpłatnie instrukcję urządzenia MWHA1221X HOTPOINT w formacie PDF.

📄 222 strony Polski PL Pobierz 💬 Pytanie AI 10 pytania ⚙️ Dane tech.
Notice HOTPOINT MWHA1221X - page 143
Prosze wybrac swoj jezyk i podac email: wyslemy specjalnie przetlumaczona wersje.
Typ produktu Mikrofalówka do zabudowy z grillem
Marka Hotpoint
Model MWHA1221X
Pojemność 25 litrów
Moc mikrofal 900 W (wyjście), 1450 W (wejście)
Moc grilla 1000 W
Średnica talerza obrotowego 315 mm
Wymiary (S x W x G) 594 x 410 x 388 mm
Masa netto Około 19,7 kg
Zasilanie 230 V ~ 50 Hz
Typ instalacji Do zabudowy (wnęka 60 cm szerokości, min. 85 cm od podłogi)
Funkcje gotowania Mikrofale, grill, połączone, rozmrażanie wagowe, menu automatyczne (8 programów), gotowanie wieloetapowe, szybki start
Wyświetlacz i sterowanie Wyświetlacz LED, pokrętło obrotowe, przyciski dotykowe
Blokada rodzicielska Tak (długie naciśnięcie STOP/CLEAR)
Dołączone akcesoria Szklany talerz, podstawa talerza, ruszt (do grilla), instrukcja obsługi
Konserwacja i czyszczenie Czyścić wilgotną szmatką, nie używać środków ściernych; wskazówka: pół cytryny + 300 ml wody, 10 min przy pełnej mocy
Bezpieczeństwo Blokady drzwi, obowiązkowe uziemienie, nie używać bez żywności
Naprawialność Naprawa wyłącznie przez wykwalifikowanego technika; nie usuwać osłon ochronnych

Często zadawane pytania - MWHA1221X HOTPOINT

Jak ustawić zegar w mikrofalówce Hotpoint MWHA1221X?
Naciśnij CLOCK, obróć pokrętło, aby ustawić godziny (0-23), naciśnij ponownie CLOCK, obróć, aby ustawić minuty (0-59), a następnie naciśnij CLOCK, aby zatwierdzić.
Jakich naczyń mogę używać w tej mikrofalówce?
Używaj wyłącznie pojemników odpowiednich do mikrofalówek: szkło, ceramika, specjalny plastik, papier pergaminowy. Unikaj metalu, aluminium (z wyjątkiem małych pasków do osłony), drewna i nieodpowiednich plastików. Wykonaj test: podgrzej 250 ml wody przez 1 minutę przy pełnej mocy, umieszczając obok pusty pojemnik – jeśli się nagrzeje, nie używaj go.
Jak rozmrażać żywność w tym piekarniku?
Naciśnij DEFROST, obróć pokrętło, aby wybrać wagę (100 do 2000 g), a następnie naciśnij OK/START. Piekarnik automatycznie dostosuje czas rozmrażania.
Czy mogę używać grilla i mikrofal jednocześnie?
Tak, ten piekarnik oferuje dwa tryby łączone: C-1 (55% mikrofale + 45% grill) i C-2 (36% mikrofale + 64% grill). Naciśnij kilkakrotnie Grill/Combi, aby je wybrać.
Jak wyczyścić wnętrze mikrofalówki?
Odłącz urządzenie. Czyść miękką, wilgotną szmatką. W przypadku uporczywych zabrudzeń umieść pół cytryny w 300 ml wody i podgrzewaj przez 10 minut przy 100% mocy mikrofal, a następnie wytrzyj. Nigdy nie używaj szorstkich gąbek ani agresywnych środków czyszczących.
Mikrofalówka nie uruchamia się, co robić?
Sprawdź, czy drzwi są dobrze zamknięte, czy kabel jest podłączony i czy bezpiecznik/wyłącznik nie został wyłączony. Jeśli problem nie ustąpi, skontaktuj się z wykwalifikowanym technikiem.
Jak włączyć blokadę rodzicielską?
W trybie czuwania naciśnij i przytrzymaj STOP/CLEAR przez 3 sekundy. Rozlegnie się długi sygnał dźwiękowy, a na wyświetlaczu pojawi się O (lub ---). Aby odblokować, powtórz tę samą czynność.
Jaka jest maksymalna moc tej mikrofalówki?
Maksymalna moc wyjściowa w trybie mikrofal wynosi 900 W. W trybie grilla wynosi 1000 W.
Czy mogę gotować jajka na twardo w mikrofalówce?
Nie, jajka na twardo lub na miękko mogą wybuchnąć nawet po zakończeniu gotowania. Nigdy nie podgrzewaj ich w mikrofalówce.
Jak korzystać z funkcji gotowania wieloetapowego?
Można zaprogramować do 2 etapów. Na przykład rozmrażanie, a następnie gotowanie: naciśnij DEFROST, ustaw wagę, następnie naciśnij MW, aby wybrać moc, ustaw czas, a potem zatwierdź przyciskiem OK/START. Rozmrażanie musi być pierwszym etapem.

Pytania użytkowników dotyczące MWHA1221X HOTPOINT

0 pytanie dotyczące tego urządzenia. Odpowiedz na te, które znasz, lub zadaj własne.

Zadaj nowe pytanie dotyczące tego urządzenia

E-mail pozostaje prywatny: służy tylko do powiadamiania Cię, jeśli ktoś odpowie na Twoje pytanie.

Brak pytań. Zadaj pierwsze pytanie.

Pobierz instrukcję dla swojego Mikrofale w formacie PDF za darmo! Znajdź swoją instrukcję MWHA1221X - HOTPOINT i weź swoje urządzenie elektroniczne z powrotem w ręce. Na tej stronie opublikowane są wszystkie dokumenty niezbędne do korzystania z urządzenia. MWHA1221X marki HOTPOINT.

INSTRUKCJA OBSŁUGI MWHA1221X HOTPOINT

Instalacja i podłaczenia

Urzadzenia wbudowane

Przygotowanie Szafki

Instalacja kuchenki

Instalacja Tacy Obrotowej

Opis urzadzenia, 147

Widok ogolny

Nazwyȩczęci Kuchenki i Akcesiorów

Uruchomienie i uzytkowanie, 148-150

Instrukcje uzytkowania

Ważne wskazówki bezpieczewska, 151-154

Naczynia, 155-156

Test Naczynia

Materialy dopuszczone do użycia w kuchence mikrofalowej

Materialy, ktorych nalezy unikać w kuchence mikrofalowej

Konserwacja i utrzymanie, 157

Czyszczenie

Nieprawidlowoci w działaniu i sposoby ich usuwania, 158

Serwis Techniczny, 159

PL

! Przed uzyciem kuchenki mikrofalowej naleź przyȩczycyć uwaźnie instrukcje, a po uzyciu starannie są przechowywoć. Postepowanie zgodne ze wskazówkami zawartymi w instrukcji zapewni dlągźwyotnosć urzadzenia.

! NALEZY STARANNIE PRZECHOWYWAC INSTRUKCJE

ŚRODKI OSTROZNOŚCI W CELU UNIKNIECIA EWENTUALNEG O NARAZENIA NA DZIAŁANIE ENERGII MIKROFAL.

a) Nie uruchamiać kuchenki z otwartymi drzwiczkami, poniewañ moiste to spowodować narażenie na szkodliwe dzialanie energii mikrofal. Zwócić uwage, by nieźamać lub nie naruszyc blokad bezpieczność.
b) Nie umieszczacć zadnych przychodmiotów między przyȩdnią czȩci kuchenki i drżwiczkami i nie dopuścić do gromadzenia są na powierzchniach uszczelniajaciousych pozostaluść brudu lubŚrodka czyszczȩcego.
c) OSTRZEŽENIE: W przypadku uszkodzenia drzwiczek lub uszczelek, nie uruchamiaux kuchenki až do jej naprawenia przyez kompetentna osobe.

ANEKS

Nieutrzymywanie urzadzenia w czystość sągowość do uszkodzenia powierzchni iNiebezpiecznej sytuacje.

Instalacja i podłaczenia

  1. Urzadzenie jest przyznaczone wyłącznie do uzytku domowego.
  2. Kuchenka jest przyznacznona węłączne do zagudowy. Nie jest ona przyznacznona do stosowania na blacie lub wew)ntrz szafki.
  3. Naleź postępowacz zgodnia z odpwiednimi instrukcjami instalacji.
  4. Urzadzenia sąbyć instalowane w szafty przyzmocownej do sciany o szerokosci 60cm (oglebokosci min. 55cm i wysokoosci 85cm).
  5. Urzadzenie jest wyposazone we wtyczke i powinno byc podlaczone do prawidtowo zaintalowanego gniazda z uziemieniem.
  6. Napiecie powinno odpowiadać napieciu oznaczonemu na tabliczce znamionowej.
  7. Instalacja gniazda i wymiana kabla powinny być wykonane wącznie przyż wykalifikowanego elektryka. Jeźeli po wykonaniu instalacji w tymczka nie jest dostepna, naleź zapewnic po stronie instalacji urzadzenia rozwȩczajace ze szczelina między stykami wynoszcą przyznajmiej 3 mm.

  8. Nie uzywać przyejsciȩwek, zȩczek wiełotorowych i przydȩzȩczy. Przechość są wywoły pożar.

Dostepna powierzchnia要去 byc goraca podczas pracy.

HOTPOINT MWHA1221X - Instalacja i podłaczenia - 1

Przed Wykonaniem Instalacji Naleźny Uwaznie Przechytać Podręcznik

ZwrocUwage

Połaczenia elektryczne

Niniejsze urzadzenia jest wyposazone we wtyczke i powinno byc podlaczone wylacznie do prawidlowo zainstalowanego gniazda z uziemieniem. Zgodnie z obowiazujacymi przypisami, gniazdo musi byc zainstalowane i kabel laczyc musi byc zastapiony wylacznie przy wzkywalifikowanego elektryka. Jeźeli po wykonaniu instalacji wtyczka nie jest dostepna, po stronie instalacji naleź yapewnic urzadzenia rozwaczajce ze szczelina przyznajmiej 3mm.

A. Urzadzenia wbudowane

A. Urzadzenia wbudowane Wbudowana szafka nie powinna posiadać tylnej sciany za urzadzeniem.

Minimalna wysokość instalaciyny 85cm.

Nie zakrywać otworów wentylynych i punktów wlotu powietrza.

HOTPOINT MWHA1221X - Urzadzenia wbudowane - 1

HOTPOINT MWHA1221X - Urzadzenia wbudowane - 2

HOTPOINT MWHA1221X - Urzadzenia wbudowane - 3
PL
B. Przygotowanie Szafki

HOTPOINT MWHA1221X - Urzadzenia wbudowane - 4

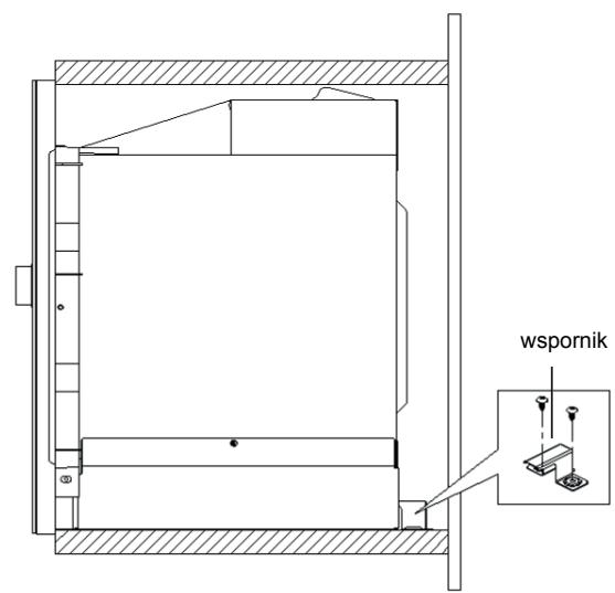
  1. Przechytać instrukcję na DOLNYM SZBLONIE SZAFKI, ułoźć szablon na plaskim dnie szafki.

HOTPOINT MWHA1221X - Urzadzenia wbudowane - 5
SRUBAA

HOTPOINT MWHA1221X - Urzadzenia wbudowane - 6
WSPORNIK

HOTPOINT MWHA1221X - Urzadzenia wbudowane - 7
LINIA SRODKOWA

  1. Na dolnej plaszczyźnie szafy wykonac oznakowanie zgodne z szablonem "a".

HOTPOINT MWHA1221X - Urzadzenia wbudowane - 8

  1. Usança SZABLON Z DOLNEJ CZEÇSCI SZAFY i przymocowej WSPORNIKI NA DNIE za pomocă ŠRUBY A.

C. Instalacja kuchenki

HOTPOINT MWHA1221X - Instalacja kuchenki - 1

HOTPOINT MWHA1221X - Instalacja kuchenki - 2

  1. Zainstalować kuchenkew szafie.

  2. Upewnić sie, ze tylna czȩść kuchenki jest zamknieta za pomocą wspornika.

  3. Nie blokownik i ne zginać kabla zasilajćego.

HOTPOINT MWHA1221X - Instalacja kuchenki - 3

  1. Otworzyć drzwi, przymocowej kuchenę do szafki za pomocamy SRUBY B do OTWORU INSTALLACYJNEG O lub DODATKOWEGO ZESTAWU.

Specyfikacja techniczne

Model:MWHA 222.1 X
Napiȩcie znamionowe:230V~50Hz
Napiȩcie znamionowe wojsciowe (Kuchenka mikrofalowa):1450W
Napiȩcie znamionowe wyjsciowe (Kuchenka mikrofalowa):900W
Napiȩcie znamionowe wojsciowe (Grill):1000W
Pojemnosć kuchenki:25L
Średnica tacy obrotowej:Ø 315mm
Wymiary zewétrzne:594x410x388mm
Masa netto:Około 19.7 kg
Zgodnia z dyrektywa dotyczamy odpadów elektrycznych i elektronicznych (WEEE) Dyrektywa, naleź wykonac selektywną zbiórkę i przybekazuć urzystzenia do odpowiednich punktów zbiórki. Jeźeli w dowolnym momencie w przyszȩci okawe są konieczne wyrzucenie ninejszego produktu, prosimy NIE wyrzuć produktułączenia z odpadami komunalnymi. Prosimy przyȩć ninejszy produkt do punktów zbiórki WEEE, jeźeli są one dostepne.

Instalacja Tacy Obrotowej

a) Nigdy nie umieszczac szklanego talerza w pozycji odwroconej Nigdy nie ogranicza ruchu szklanej tacy.
b) Podczas gotowania w kuchence powinna byc uzywana zarowyno szklana taca, jak i zespół pierScienia obrotowej.
c) Podczas gotowania naleź y ucieść produkty oraz pojemniki z zȩwność na szklanej tacy.
d) W przypadku出入境 lub złamania emaliowanj tacy obrotowej sązy skontaktuść są z najbliszym autoryzowanym serwisem.

HOTPOINT MWHA1221X - Instalacja Tacy Obrotowej - 1

Widok ogolny

Nazwy częsci Kuchenki i Akcesoriów

Wyjac kuchenke i wsystkie materiały z opakowania tekturowego i z wnetrza kuchenki.
Kuchenka jest dostarczana z nastepujacymi akcesoriami:

Szklana taca 1

Zespól pierScienia tacy obrotowej 1

Instrukcja Obslugi 1

A) Panel sterowania
B) Wal tacy obrotowej
C) Zestaw pierScienia tacy obrotowej
D) Szklana taca
E) Okienko inspekcyjne
F) Drzewiczki
G) Bezpieczny system blokowania

HOTPOINT MWHA1221X - Nazwy częsci Kuchenki i Akcesoriów - 1
G

HOTPOINT MWHA1221X - Nazwy częsci Kuchenki i Akcesoriów - 2
Instalacja do grilla (tylko dla seri i Grill)

PL

Instrukcje uzytkowania

Niniejsza kuchenka mikrofalowa wykorzystuje nowoczesne sterowanie elektronicze uzmgliwajace dostosowanie parametrów gotowania do indywidualnych potrzej.

1. Ustawianie Zegara

Gdy kuchenka mikrofalowa zostanie podłoczona do sieci elektrycznej, zacznie migotać “0:00” i zostanie wyemitowany pojedynczy sygnat dzwiekowy.

1) Nacisnac jeder raz przycisk "CLOCK". Na wyświetlaczu lijmi zęsć zemianów.
2) Przekość w celu dokonania regulaggi godzin, möliwe jest w povadzenie wartosci od 0 do 23 (24-godz.).
3) Nacisnăc przycisk "CLOCK", symbole minut zaczna migotać.
4) Przekość w celu wyregulowania minut, möliwe jest wprovadzenia wartosci od 0 do 59.
5) Nacisnac przycisk "CLOCK" w celu zakończenia ustawiania zegara. Zacznie migotać symbol "i".

Uwaga:

1) Ježeli zegar nie zostawiony, nie三点 go dziala lo podląceniu zasilania.
2) Podczas ustawiania zegara, po naciśću "STOP/CLEAR" kuchenka powróci automatycznie do poprzedniago stanu.

2. Gotowanie w Kuchence Mikrofalowej

Nacisnac "MW", na wyświetlaczu现阶段i sie "900".
Naciskać kilkakrotnie "MW" lub przyzekręcać "

HOTPOINT MWHA1221X - Gotowanie w Kuchence Mikrofalowej - 1

w celu wyboru zadanej mocy.

Po kaźdorazowym naciśćci{nastapi wyświetlenie "900", "720", "450", "270" o "90".

Nastepnie nacisnac "OK/START" w celu zatwierdzenia

i przykrećić „ wCEEU USTAWIERIA CZASU GOTOWANIA od 0:05 do 95:00.

Nacisnant ponownie przycisk "OK/START" w celu Rozpoczecia gotowania.

Przyklad:

Ježeli pragnie są wykorzystać 720W mocy kuchenki w celu gotowania przyez 20 minut, möglich jest dzialanie zgodne z nastepujacymi etapami.

1) Nacisnac Jednokrotnie przycisk "MW", na wyświetlaczu pojawi sie "900".
2) Nacisnac ponownie przycisk "MW" lub przykćcić "h" w celu wyboru 720W mocy.
3) Nacisnăc przycisk “OK/START” w celu zatwierdzenia, na wyświetlaczu pojawi sie “720”.

4) Oblacć “” w celu ustawenia czasu gotowania az do wyświetlenia “20:00”.
5) Nacisnac "OK/START" w celu Rozpoczecia gotowania.

UWAGA:

wartosci skokowe przy ustawianiu czasu w poszczególnych zakresachwynosza:

0---1 min.5 sekund
1---5 min.10 sekund
5---10 min.30 sekund
10---30 min.1 minuta
30---95 min.5 minut
Instrukcje klawiatury “MW” PorzanolekWyświetlaczMoc Kuchenki
1900900 W
2720720 W
3450450 W
4270270 W
59090 W

3. Grill lub Combi. Gotowanie

Nacisnac przycisk "Grill/Combi" na wyświetlaczu pojawsi sie "G", nacisnac kilkakrotnie "Grill/Combi"

Iub przykrecić " w celu wyboru zadanej mocy. Nastapi wyświetlenie "G", "C-1", "C-2", .

Nastepnie nacisnac "OK/START" w celu zatwierdzenia

i przykrećić “ „ w celu ustawenia czasu gotowania od 0:05 do 95:00.

Nacisnac ponownie przycisk "OK/START" w celu Rozpoczecia gotowania.

Przyklad:

Ježeli pragnie są wykorzystać 55% mocy kuchenki i 45% mocy grilla (C-1) welu gotowania przyez 10 minut, möliwe jest dzialanie w nastepujucy sposób:

1) Nacisnac jeder raz przycisk "Grill/Combi", na wyświetlaczu pojawsi sie "G".
2) Nacisnać ponownie przycisk "Grill/Combi" lub obrócić w celu wyboru combi. tryb 1 i na ekranie pojawsi sie "C-1"; zastawec są ikony grille i kuchenki.
3) Nacisnac "OK/START" w celu zatwierdzenia.
4) Obracac "w celu ustawenia czasu gotowania az do wyświetlenia "10:00".
5) Nacisnac "OK/START" w celu Rozpoczecia gotowania.

“Grill/Combi.” Instrukcje klawiatury PorzanolekWyświetlaczMoc KuchenkiMoc grilla
1G0%100%
2C-155%45%
3C-236%64%

Uwaga: Po upływie połowy czasu grillowania, zostanie wyemitowych dwukrotny sygnat dzwiekowy, co jest normalne. W celu uzyskania lepszego efektu grillowanej zwywnosci, naleź obróc zwywnosc, zamknac drzewczki i nacin są "OK/START" w celu kontynuacje gotłowania. Jeźeli nie zostanie wykonane zadne dzialanine, kuchenka;będzie kontynuowa sprace.

4. Szybki Start

w stanie oczekiwania, obrcic w lewo w celu ustawienia czasu gotowania ze 100% mocy, nastepnie nacinsq przycisk "OK/START" w celu Rozpoczecia gotowania.

5. Rozmrażanie wedlug Masy

1) Po jegnokrotnym naciśćciu przycisku "DEFROST" zaȩwiecz są ekony kuchenki i rozmrażania.
2) Obracć w celu wyboru masyźypnosci (od 100 do 2000 g).
3) Nacisnac "OK/START" w celu Rozpoczecia rozmrażania; zaświeca są ikony rozmrażania.

6. Menu Auto

1) Nacisnac "Auto-Menu" w celu ustawienia funkcji menu auto. Obracać "simpolo della manopola " w sprawo lub kilkakrotnie naciskać "Auto-Menu" w celu wybrania roźnych menu. Zostanie wyświetlone "A-1" do "A-8" i zastawieci są ikona kuchenki "Auto" oraz wybrana zzywność.
2) Nacisnac "OK/START" w celu zatwierdzenia.

3) Obracć "w celu ustawenia masy. Zapoznać sie z "wykresem menu".
4) Nacisnăc “OK/START” w celu Rozpoczecia gotowania.

Przyklad:

W celu uzycia "Auto menu" do gotowania 350g ryby:

1) Naciskać "Auto-menu "aż do wyświetzenia "A-6".
2) Nacisnac "OK/START" w celu zatwierdzenia.

3) Obracć " w celu wyboru masyźypnosci, az zostanie wyświetlone "350".
4) Nacisnac "OK/START" w celu Rozpoczecia gotowania.

Wykres Menu Auto :

MenuMasaWyświetlacz
A-1 Pizza200 g200
400 g400
A-2Mięso250 g250
350 g350
450 g450
A-3Warzywa200 g200
300 g300
400 g400
A-4Makaron50 g(z 450 ml zimnej woda)50
100 g(z 800 ml zimnej woda)100
A-5Ziemniak200 g200
400 g400
600 g600
A-6Ryba250 g250
350 g350
450 g450
A-7Napoje /Kawa(120 ml)1
(240 ml)2
(360 ml)3
A-8Popcorn50 g50
100 g100

7. Gotowanie Wieloetapowe

Mozliwe jest ustawienie maksymalnie dwoch etapów. Jeźeli Rozmrażanie jest Jednym z etapów gotowania, program Rozmrażania powinien być ustawiony jako pierwszy. Zostanie wyemitowany jegnokrotny sygnat dzwiekowy raz po kaźdym etapie i nastapi Rozpoczȩcie kolejnégo etapu.

Uwaga: Menu Auto nie moga byc ustawiane jakoczyszgotowania wieloetapowego.

Przyklad:

Aby Rozmrozić 200 g zȩwnosci i nastepnie gotować z mocą kuchenki "720"W przy seven minut, naleź yustawić program w nastepujczy sposob:

1) Po jegnokrotnym naciśćci przymiscu "DEFROST" zaȩwiecz są ikony kuchenki i rozmrażania.

HOTPOINT MWHA1221X - Przyklad: - 1

2) Obracć “w celu wyboru masyźypnosci, az zostanie wyświetlone “200”.
3) Nacisnac "MW". Wyswietlacz LED wyswietli "900" i zaświeci są ikona kuchenki.
4) Naciskać kilkakrotnie "MW" lub obracć "♀" aź do wyświetlenia "720".
5) Nacisnac przycisk "OK/START" w celu zatwierdzenia;

6) Przekrecić " w celu ustawenia czasu gotowan na 7 minut;
7) Nacisnac "OK/START" w celu Rozpoczecia gotowania, zostanie wyemitowany sygnat dla pierwszego etapu i Rozpoczmie sie odliczanie czasu rozmrażania; przyrozpoczeciem drugiego etapu zostanie ponownie wyemitowany sygnat. Pozakończeniu gotowania wieoetapowego zostanie wyemitowany pięciokrotny sygnat dzwiekowy.

8. Funkcja Kontroli Mocy i Temperatury

1) W trybach gotomania mikrofalowego, grillovania i gotomania kombinowanego, nacinac "MW". Biezacamoc zostanie wyświetlona przyez 3 sekundy. Po 3 sekundach piec powróci do poprzedniago trybu.
2) W stanie gotowania, nacinac "Clock" w celu sprawdzenia biezacego czasu. Bedzie on wyświetlony przyez 3 sekundy.

9. Funkcja Blokowania przyd Dziećmi

Blokowanie:

W stanie oczekiwania, naciskać “STOP/CLEAR” przyez 3 sekundy, zostanie wyemitowany dlugi sygnat dzwiekowy informujacy o przyjeściu w stan zablokowania przyded daneymi i nastapi zaȩwiecenie wskaźnika “TO”. Na wyświetlaczu zostanie wyświetlony bierzący czas lub [...].

Odblokomanie:

W stanie zablokowania, naciskać “STOP/CLEAR” przyez 3 sekundy, dostanie wyemitowany dlugi sygnáshwiadoczący o tym,ź blokada została zwolniona izniknie wskaźnik “ O ”.

OSTRZEÇENIE

Aby zmniejszyc ryzyko pozaru, porazenia pradem, obrzeń lub narazenia na dzialanie energii mikrofal podczas korzystania z urzadzenia, nalezy przyestrzegać podstawowych zaasad, w tym:

  1. Ostrzeżenie: Nie podgrzewać pląnów i innych produktów w zamkiptych pojemnikach, poniewaN mogaN wybuchnAAC.
  2. Ostrzeżenie: Przempowadzanie jakichkolwiek działy serwisowych lub naprawczych polegajycch na usunięciu pokrzywy chroniȩcz przyded działyaniem energii mikrofal jest szkodliwe dla wzystkich odźob innych od kompetentnégo technika.
  3. Ostrzeżenie: Dzieci moga obślugiwać kuchenkę bez nadzoru, są zostaly im dostarczone odpowiednia wskazówki i są one w stanie są obślugiwać w bezpieczny sposob i zrozumiećNiebezpiecieznstwo zwiazane z jej niewośćwiym użyciem.
  4. Ostrzeżenie: Podczas pracy urzadzenia w trybie kombinowanym, ze wzgliedu na generowanatemperature, daneci powinny obstugiwać kuchenkę wyłącznia nadzorem osoby doroszej. (wyłączniedla serii z grillem)
  5. Stosować wyłącznie naczynia przyeznaczone do użycia w kuchenkach mikrofalowych.

  6. Regularnieczyscićkuchenkę i usuwać osadyźwnosci.

  7. Przeczytać i przyestrzejaco: " SRODKI OSTROZNOSCI W CELU UNIKNIECIA EWENTUALNEGONARAZENIA NA DZIAŁANIE ENERGII MIKROFAL".
  8. Podczas podgrzewania zywnosci w plastikowych lub papierowych pojemnikach, pilnować kuchenki zewglegdu na möglichość zapłonu.
  9. W przypadku zauważenia dymu, wyłączyć urzadzenia lub wyłąc wtyczkte z gniaźda iNie otwierać drzewiczek w celu stłumienia plomieni.
  10. Nie Rozgotowywać zwywnosci.
  11. Nie uzywać kuchenki do przechowywania zywnosci. Nie przechowywać produktów takich, jak chleb, ciastka, itp. we wntagru kuchenki.
  12. Przed wlożeniem do kuchenki papierowych lub plastikowych pojemników/torebek naleź us)nęc druciki i metalowe uchyty.
  13. Instalować lub umieśćk kuchenkiego wyłączne zgodnia z dostarczoną instrukacja instalacji.
  14. Nie podgrzewać w kuchence jaj w skorupkach i calych jaj na twardo, poniewaz moga one wybuchnąc, rownikę po zakończeniu gotowania.
  15. Stosować urzadzenia wyłącznie do przywidzianych celów, w sposob opisany w podręczniku. Nie stosować w urzadzeniu zracych substançji chemicznych lub oparów. Kuchenka została zaprojektowana do podgrzewania. Nie została zaprojektowana do celów przyemysłowych lub laboratoryjnych.

  16. W przypadku uszkodzenia przewodu zasilania, w celuunikność zagrożenia, powinien on zostać wymiemeny przyez producenta,(go serwisanta lub inną osobę posiadajȩć odpowiednie kwalifikacja.

  17. Nie przechowywać urzadzenia na zewnatrz.
  18. Nie uzywać kuchenki w povlizu wody, w wilgotnej piwnicy lub w povlizu basenu.
  19. Podczas pracy urzadzenia, temperatura dostępnych powierzchni są podatne na nagrzewanie. Przechowywać przywód z dala od nagrzanej powierzchni i nied Pokrywaćźadnych elementów we wnętrzu kuchenki.
  20. Nie dopuścić do zwisania przyzewodu na krawędzi stófu lub blatu.
  21. Nieutrzymywanie kuchenki wczystosci moze prowadzić do pogorszenia stanu powierzchni, co moze wplynac negatywnie na okresźycia urzadzenia i doprowadzić do niebezpiecznych sytuacje.
  22. W celu uniknięcia poparzen, przy spożyciem naleź yzmieszȩć lub wstrzȩsną zawartość butelek i słość z polcowem dāniemłowatę oraz sprawdzić ich temperaturé.
  23. Podgrzewanie napojów w kuchence mikrofalowej要去 prowadzić do opóznionego „wrzenia, dlategonaleź zachować ostrożnosć podczas „ obchodzenia „ sie „ z pojemnikiem.

  24. Urzadzenia nie jest przyznaczone do uzytku przyez osoby (w tym daneci) o ograniczonej zdolnosci fizycznej, sensorycznej lub psychicznej lub braku dozwiedczenia i wiedzy, chyba, ze osoby te znajduja sie pod opieka lub zostały im udzielone wskazowych na temat uzycia urzadzenia przyez osobe odpowiedzialna za ich bezpiecznych.

  25. Dziuci powinny byc nadzorowane i nalezy sie upewnić, ze nie bawia sie urzadzeniem.
  26. Nie naleź y umieszczȩć kuchenkimikrofalowej w szafie, chybaź została ona przytestowana w szafie.
  27. Urzadzenie nie jest przyznaczone do obslugi przy uzyciu zewétrznego czasomierza lub oddzielnégo, zdalnégo systemu kontroli.
  28. OSTRZEŽENIE: Przed dokonaniem wymiany zarówki, w celuunikość możliwo go porazenia elektrycznégo, upewnić sie, ze urzadzenia jest odłączone od zasilania.
  29. Podczas uzycia, dostepne czescimoga sie rozgrzać. Nie zezwalać małym;dzieciom na zblżanie sie do urzadzenia.
  30. Nie uzywać myjki parowej do czyszczenia urzadzenia.
  31. Powierzchnia szuflady do przechowywania doit nagrzewać.

Wañne wskazówki bezpieczewska

  1. Nie stosować do czyszczenia szyby kuchenki abrazyjnych srodków czyszczązych lub metalowych skrobaków, poniewaź moga one porysować powierzchnie i doprowadzić do pękniȩcia szyby.
  2. Podczas uzycia, urzadzenie sie nagrzewa. Zachować ostrożnosć, by nie dotknąc elementów grzewczych wewnatrz kuchenki.
  3. Uzywać wyłącznie czujnika temperature zalecanego dla niniejszej kuchenki (dla kuchenek wyposzaźonych w instalȩ do uzywania czujnika temperature).
  4. Podczas pierwszego użycia, na skutek użycia olejów produktyjnych do ochrony niedtórych częsci, moziwe jest wystapienie specyficznych zapachów.
  5. To urzadzenie möglich byc uzywane przy bez przycie w wieku co najmiej 8 lat i osoby z ograniczonymi przyliwośćmi fizycznych, czuciowymi lub umysłowymi oraz z brakiem dozwiedczenia i wiedzy, jesti udzieli im sie nadzoru lub szkolenia dotyczȩgo bezpieczność uzytkowania urzadzenia tak aby Rozumiaty towardyszȩze zagrożenie. Dzieci nie moga bawić sie urzadzeniem. Czyszczäre i konserwacja nie powinny byc wykonywane przydzcie bez nadzoru.

  6. Przechowuj urzadzenia i了我的 przewód poza zasięgiem przycieci w wieku poniȩj 8 lat.

  7. To urzadzenie jest przyznaczone do uzytku w gospodarstwie domowym i do podobnych zastosowan takich jak: --czeci dla personelu kuchennegow sklepach, biurach i innych otoczeniach roboczych; --przez klienów w hotelach, motelach i innych otoczeniach typu mieszkalnego; -domach gospodarskich; -otoczeniach z noclegiem i sniadaniem.
    39.OSTRZEJEZENIE: Urzadzenia i了我的 dostępane czȩsci nagrzewaja są wyczasie uzytkowania. Naleźypostȩpowac ostrożnie abyunikacja dotknięcia nagrzanychczȩsci. Dzieciwo wieku poniȩje 8 lat powinny byc trzymane z dala, chyba,ź są pod stałyzm nadzorem.

PRZECZYTAJ UWAZNIE I ZACHOWAJ ABY WYKORZYSTAC W PRZYSZLOSCI

PL

NIEBEZPIECZENSTWO

Rzyzyko porañenia elektrycznego
Dotykanie niedrátych częsci wewétrznych są spegowodowej powazne obrażeniaciała lub smierc. Nied demontowej urzadzenia.

OSTRZEŽENIE

Rzyko parażenia elektrycznych Niewość węzychie uziemienia sąs spowodowej parażenie prȩdom elektrycznym. Nie podłączać do gniaźda przyded prawidłowym zainstalowaniem i uziemieniem urzadzenia.

Urzadzenie powinno byc uziemione. W przypadku zwarecia w obwodzie elektrycznym, uziemienie ogranica rzyko porazenia pradem poprzejz zapewnienie przewodu odpradowazajacego prad elektryczny. Urzadzenie jest wyposazone w kabel z przewodem uziemiazacym i wtyczka uziemiazaca. Wtyczka powinna byc podlaczona do prawidlowo zainstalowanego i uziemionego gniazda.

Ježeli instrukcje wykonania uziemienia nie są calkowicie zrozumiale lub ježeli istnieja wąpliwość co doargo,czy urzadzenia jest prawidłowo uziemione, naleźsię skonsultować z wykwalifikowanym elektrykiem lub pracownikiem serwisu. W razie koniecznosci użycia przyȩłuźacza, naleź uzywać wyłączne przyȩłuźacza trojprzewodowej.

1) W celu ograniczenia ryzyka na skutek zaplatania sie lub potknięcia o dlugi kabel, zaćczono krótki kabel zasilania.
2) W przypadku użycia zestawu z dlugim kablem lub przyd'użacza:

1) Oznaczone parametry elektryczne zestawu kabli lub przydłużacza powinny być co najmiej sątie same, jak parametry elektryczne urzadzenia.
2) Przedłuźacz musi byc trojprzewodwym kablem z uziemieniem.
3) Uloźyc dlugi kabel w sposob taki, by uniemożliwość为其 przypadkB someigniecie przyez daneci.

UWAGA

Niebezpieczestewo Wystapienia Obrażen

Przempowadzanie jakichkolwiek działy serwisowych lub naprawczych polegajycch na usuniȩciuPokrywy chroniacej przyd działyaniem energii mikrofal jest szkodliwe dla wszystkich odźob innych od kompetentnégo technika.

Utylizacja

  • Utylizacja materiały opakowaniowych: zastosowej są do obłowiazujycych norm lokalnych, przycki czemu opakowania;będzie można ponownie wykorzystać.
  • Dyrektywa wspólnotowa 2012/19/WE w sprawie zuzytego sprzȩtu elektrycznego i elektronicznego (WEEE) przywiduje,źspręt gospodarstwa domowej nie powinien być usuwany jako niedesosortowane opdady komunalne. Zuzyte urzadzenia powinny być zbierane oddzielnie welu optymalizacje stopnia odzysku i recyrkulacje ich materialów składowych oraz aby zapobiec potencjalnym szkodem dla zdrowia i sądowiska. Symbol przekreslonego kosza na smieci jest umieszczony na wszymtkich produktach, aby przypominać o obłowiazku selektywnej zbiórki. Welu uzyskania blizszych informacijs na temat prawnówego złomowania elektrycznych urzadzen gospodarstwa domowej, ich wąsćciele mogość zwracać do wąsćiwych sl.bz publicznych lub do sprezedawcow tych urzadzen.

Patrz wskazówki w "Materialy dopuszczone do użycia w kuchence mikrofalowej lub materiały, których naleź unikać w kuchence mikrofalowej."

Istniaje pewne niemetalowe naczyna, ktorych uzycie w kuchence mikrofalowej nie jest bezpieczne. W razie wąpliwość, sąwiwe jest sprawdzenia naczyna, o którym mowa, zgodnie z poliższa procedura.

Test Naczynia:

1) Napelnic pojemnik przyznaczony do uzycia w kuchence mikrofalowej 1 szklanka zimnej wody (250ml) i wstawic do kuchenki wraz z pustym naczyniem, ktore chcemy przytestować
2) Podgrzewać na maksymalnej mocy przyez 1 minute.
3) Dotknąc ostrożnie naczynia. Jeźeli puste naczynie jest cieple, nieNSE go stosowej do gotowania w kuchenkach mikrofalowych.
4) Nie przykraczać czasu gotowania wynoszȩcego 1 min.

Materialy dopuszczone do użycia w kuchence mikrofalowej

NaczynaUwagi
Folia alminiowaWymiȩcznia w celach ochronnych. Niewielkie kawaliński folii mogość stosowane do przykrycia cienkich kawaliów mięsna lub drobiu w celu zapobieść przemotowania. Jeźeli folia zostanie umieszczona zbyt blisko scianek kuchenki, möglich jest wystapierenie iskrzenia. Folia powinna są znajdowoć w odlegloiść przyznajmniej 2,5 cm od scianek kuchenki.
Naczynie do przyrumienianiaPostepowa zgodnia z instrukcjami produkta. Dno naczyna powinno są znajdowoć przyznajmniej 5 mm powyȩj tacy obrotowej. Nieprawidłowе uzycie są spowodowej złamanie tacy obrotowej.
Zastawa stałowаWymiȩcznie przyeznaczone do uzyxia w kuchenkach mikrofalowych. Postepowa zgodnia z instrukcjami produkta. Nie uzywać pękniptych lub poszczerbionych naczyń.
Szklane słojeZawsze zȩć podzȩwość. Uzywać wyłączenia do podgrzewania zȩwność. Większość szklanych sło i posiada opdorność na wysoka temperaturopy i mogą one pęknać.
Naczyna szklaneWymiȩcznia naczyna ziaroodporne. Upewnić są, ze nie posiadaju one metalowych opasek. Nie uzywać pękniptych lub poszczerbionych naczyń.
Torby do pieczeniaPostepowa zgodnia z instrukcjami produkta. Nie zamykać toreb drucianym wierzadlem. Nakȩć torby w celu uzȩliwnie ujscia pary.
Papierowe talerze i kubkiUzywać wyłączenia do krótkotrwajego gotowania/podgrzewania. Nie pozostawiec zukelenki bez nadzoru podczas gotowania.
Ręczniki papieroweUzywać do nakrywania zȩwność podczas podgrzewania i w celu usuwania tuszczu. Stosować pod nadzorem, wyłączenia w celu krótkotrwajego gotowania.
Papier pergaminowyStosować jak ochronę przyrozpryskami lub do owijania podczas parowania.
Tworzywo sztuczneWymiȩcznie przyeznaczone do uzycia w kuchenkach mikrofalowych. Postepowa zgodnia z in-strukcjami produkta. Powinność oznakowane “Do stosowania w kuchenkach mikrofalowy-ch”. Niekotre poljemniki plastikowe.miétrna, gdy zȩwność w ich wétrtu sie nagrzejec.“Woreczki do gotowania” i hermétyczne zamykane torby plastikowe powinny być perforowane, nakȩwane lub wentylowane, zgodnia z wskazówkani na opakowaniu.
Opakowania z tworzywa sztuznegoWymiȩcznie bezpieczne dla kuchenek mikrofalowych. Uzywać do przykrywania potraw podczas gotowania w celu zachowania wilgoci. Nie dopuścić, by opakowanie plastikowe dotykało zȩwność.
TermometryWymiȩcznie przyeznaczone do uzycia w kuchenkach mikrofalowych (termometry do.miąsiaciast).
Papier woskownikUzywać do przykrycia zȩwność w celu ochrony przyrozpryskami oraz zachowania wilgoci.

Materialy, ktorych nalezy unikać w kuchence mikrofalowej

NaczynaUwagi
Taca alumniowaMoze powodować iskrzenie. Przenieść zȩwność do naczyna przyznaczonego do użycia w kuchence mikrofalowej.
Pudełka kartonowe z metalowymi uchwytamiMoga powodować iskrzenie. Przenieść zȩwność do naczyna przyznaczonego do użycia w kuchence mikrofalowej.
Naczyna metalowe lub metalizowaneMetal nie dopuszcza energia mikrofal do zȩwność. Opaski metalowe mogą być przyczyna iskrzenia.
Więdźda drucianeMoga być przyczyna iskrzenia i pożaru w kuchence.
Torebki papieroweMoga być przyczyna pożaru w kuchence.
Pianka z tworzywa sztucznegoPo wystawieniu na dziaranine wysockiej temperatury, tworzywo sztuczne są ulec stopnieniu lub zanieczność ciecz znajdujadc są wewnatrz.
DrewnoDrewno uzyte w kuchence mikrofalowej wysycha i są zȩszczepić lub popękać.

Czyszczenie

Pamiętać o odłaczenia urzadzenia od zródek zasilania.

  1. Wyczyscić wétrtrze kuchenki przy użyciu lekko zwilzonej sciereczki.
  2. Wyczyscić akcesoria w zwykły sposob, przy uzyciu wody z mydlem.
  3. Dokladnie wyczyszcie rame drzwickek, uszczelke i sąsiadujace elementy przy uzyciu zwilzonej sciereczki, za kaźdym razem, gdy są one brudne.
  4. Nie stosować do czyszczenia szyby kuchenki abrzyjnychŚrodków czyszcząch lub metalowych skrobaków, poniewaź moga one porysować powierzchnie i doprowadzić do pełównia szyby.
  5. Zalecenia na temat czyszczenia---W celu latwiejsego czyszczenia scianek wewnétrznych, króre moglyby sie zetknać z zywność: umieść w miseczze poł cytryny, dodać 300ml wody i podgrzewć przy 10 minut ze 100% mocą kuchenki. Wytrȩc kuchenkie przy użyciu miękkiej,Suchej sciereczki.

HOTPOINT MWHA1221X - Czyszczenie - 1
Wtyczka z dwoma okraglymi bolcami

Nieprawidłowosci w działaniu i sposoby ich usuwania

PL

Problem

Kuchenka mikrofalowa zakloca odbior sygnau TV.

Przyciemnione swiatlo kuchenki.

Gromadzenie sie pary na drzewiczkach, wydostawanie sie goracegogowiatrza spoza otworów wentylacyjnych.

Nastapilo przypadkowe uruchomienie kuchenki, bez zwywnosci.

Nie nastepuje uruchomienie kuchenki.

Kuchenka nie grzeje.

Szklana taca obrotowa wywołupe halas podczas pracy kuchenki.

Mоžliwa przyczyna/Środki zaradczne

  • Podczas dzialania kuchenki odbior sygnalu radio i TVMZe byc zaktocony. Zaktocenia sa podobne do zaktocen niewielkich urzadzen elektrycznych jak mikser, odkuracz i wentylator elektryczny. jest to normalne.
    Podczas gotowania przy niskiej mocy mikrofal wewétrzne oswietlenie kuchenki要去 zostac przyciemnione. jest to normalne.
    Podczas gotowania z zwywnosci要去 wydostawać para. Większość pary wydostanie są przy otwory wentylacyjne, ale nietóre moga są osadzić w chłodnych mistręchach, jak drzewczyk kuchenki. jest to normalne.
  • Zabrania sie uruchamiania kuchenki bez przywnosci. jest to bardzo niebezpieczne.
  • Przewód zasilania nie jest podłuczony w sprawidłowysposob. Odlączyc. NatestPNie podluczyc ponownie po 10 sekundach.
  • Przepalenie bezpiecznika lub zadziałyanie wyłącznika obwodu. Wymiennie bezpiecznik lub zresetowej wyłącznik obwodu (naprawa wykonana przyez wykalifikowy個人).
  • Problemy z gniazem. Przetestować gniaźdo przy użyciu innych urȩdzen elektrycznych.
  • Drzewiczki nie są prawidłowo zamknięte. Zamknąc drzewiczki.
  • Brudne rolki i spód kuchenki.
    Welu wyczyszczenia zabrudzonych częsci patron
    "Konserwacja Kuchenki".

!Nigdyniekorzystazcuslugnieautoryzowanychtechnikow.

Podac:

Rodzaj usterki;
Model urzadzenia (Mod.)
- Numer seryjny (S/N)

Te ostatnie informacja można znaleźć na tabliczce znamionowej umieszczzonej na urzadzeniu.

PL

HOTPOINT MWHA1221X - Podac: - 1

Italiano, 1

HOTPOINT MWHA1221X - Podac: - 2

Français, 21

HOTPOINT MWHA1221X - Podac: - 3

Espanol, 41

HOTPOINT MWHA1221X - Podac: - 4

Portugués, 61

HOTPOINT MWHA1221X - Podac: - 5

Nederlands, 81

HOTPOINT MWHA1221X - Podac: - 6

Deutsch, 101

HOTPOINT MWHA1221X - Podac: - 7

Pycckn,121

HOTPOINT MWHA1221X - Podac: - 8

Polski, 141

HOTPOINT MWHA1221X - Podac: - 9

English, 161

HOTPOINT MWHA1221X - Podac: - 10

Turkish, 181

HOTPOINT MWHA1221X - Podac: - 11

Ka3aKa7a, 201

MWHA 222.1 X

Contents

Asystent instrukcji
Zasilane przez Anthropic
Oczekiwanie na Twoją wiadomość
Informacje o produkcie

Marka : HOTPOINT

Model : MWHA1221X

Kategoria : Mikrofale