Fein WSG20230 - Kulmahiomakone

WSG20230 - Kulmahiomakone Fein - Ilmainen käyttöohje ja opas

Löydä laitteen käyttöohje ilmaiseksi WSG20230 Fein PDF-muodossa.

📄 195 sivua Suomi FI 💬 AI-kysymys 8 kysymyksiä ⚙️ Tekn. tied.
Notice Fein WSG20230 - page 75
Laiteen tyyppi Kulmahiomakone
Merkki Fein
Malli WSG20230
Moottorin teho 2000 wattia
Levyn halkaisija 230 mm
Tyhjäkäyntinopeus 6500 rpm
Paino 5.5 kg
Suositeltu käyttö Erilaisten materiaalien, kuten metallin ja kiven, leikkaamiseen ja hiontaan
Turvatoimet Suojaavien lasien ja käsineiden käyttö suositeltavaa
Huolto Puhdista säännöllisesti tuuletusritilät ja tarkista levyn kunto
Takuu Tutustu valmistajan takuuehtoihin

Usein kysytyt kysymykset - WSG20230 Fein

Kuinka voin vaihtaa Fein WSG20230 -hiomakoneen levyn?
Irrota laite ensin pistorasiasta ennen levyn vaihtamista. Paina akselin lukitusnappia ja käytä mukana toimitettua avainta kiristysmutterin löysäämiseen. Vaihda levy ja kiristä mutteri tiukasti ennen kuin vapautat lukitusnapin.
Miksi hiomakone ei käynnisty?
Tarkista, että laite on kytketty oikein ja että pistorasia toimii. Varmista myös, että turvalukitusnappi ei ole päällä. Jos ongelma jatkuu, ota yhteyttä pätevään teknikkoon.
Lopettaako hiomakone automaattisesti ylikuumenemisen sattuessa?
Kyllä, Fein WSG20230 on varustettu ylikuumenemissuojalla, joka pysäyttää laitteen automaattisesti vaurioiden välttämiseksi. Anna sen jäähtyä ennen uudelleenkäynnistystä.
Mikä on suurin levyhalkaisija, jota voin käyttää tämän hiomakoneen kanssa?
Fein WSG20230 -hiomakoneen kanssa yhteensopivan levyn suurin halkaisija on 230 mm.
Kuinka puhdistan ja huollan kulmahiomakonettani?
Irrota laite pistorasiasta jokaisen käytön jälkeen ja puhdista se kuivalla liinalla pölyn ja roskien poistamiseksi. Tarkista säännöllisesti virtajohdon kunto ja vaihda se, jos se on vahingoittunut.
Voinko käyttää Fein WSG20230 -hiomakonetta metallin leikkaamiseen?
Kyllä, voit käyttää tätä hiomakonetta metallin leikkaamiseen, kunhan käytät oikeaa metallille tarkoitettua hiomalaikkaa. Varmista, että noudatat kaikkia asianmukaisia turvatoimenpiteitä.
Mikä on Fein WSG20230 -hiomakoneen teho?
Fein WSG20230 -hiomakoneen teho on 2000 wattia, mikä tekee siitä sopivan vaativiin töihin.
Kuinka voin vähentää tärinää hiomakonetta käytettäessä?
Varmista, että levy on asennettu oikein ja on hyvässä kunnossa. Käytä tarkoitettuja kahvoja ja pidä tiukasti kiinni. Jos tärinä jatkuu, tarkista levy kulumisen tai vaurioiden varalta.

Käyttäjien kysymyksiä aiheesta WSG20230 Fein

0 kysymys tästä laitteesta. Vastaa tuntemiisi tai esitä omasi.

Esitä uusi kysymys tästä laitteesta

L'email reste privé : il sert seulement à vous prévenir si quelqu'un répond à votre question.

Ei vielä kysymyksiä. Esitä ensimmäinen.

Lataa ohjeet laitteellesi Kulmahiomakone PDF-muodossa ilmaiseksi! Löydä käyttöohjeesi WSG20230 - Fein ja ota elektroninen laitteesi takaisin hallintaan. Tällä sivulla julkaistaan kaikki laitteidesi käyttöön tarvittavat asiakirjat. WSG20230 merkiltä Fein.

KÄYTTÖOHJE WSG20230 Fein

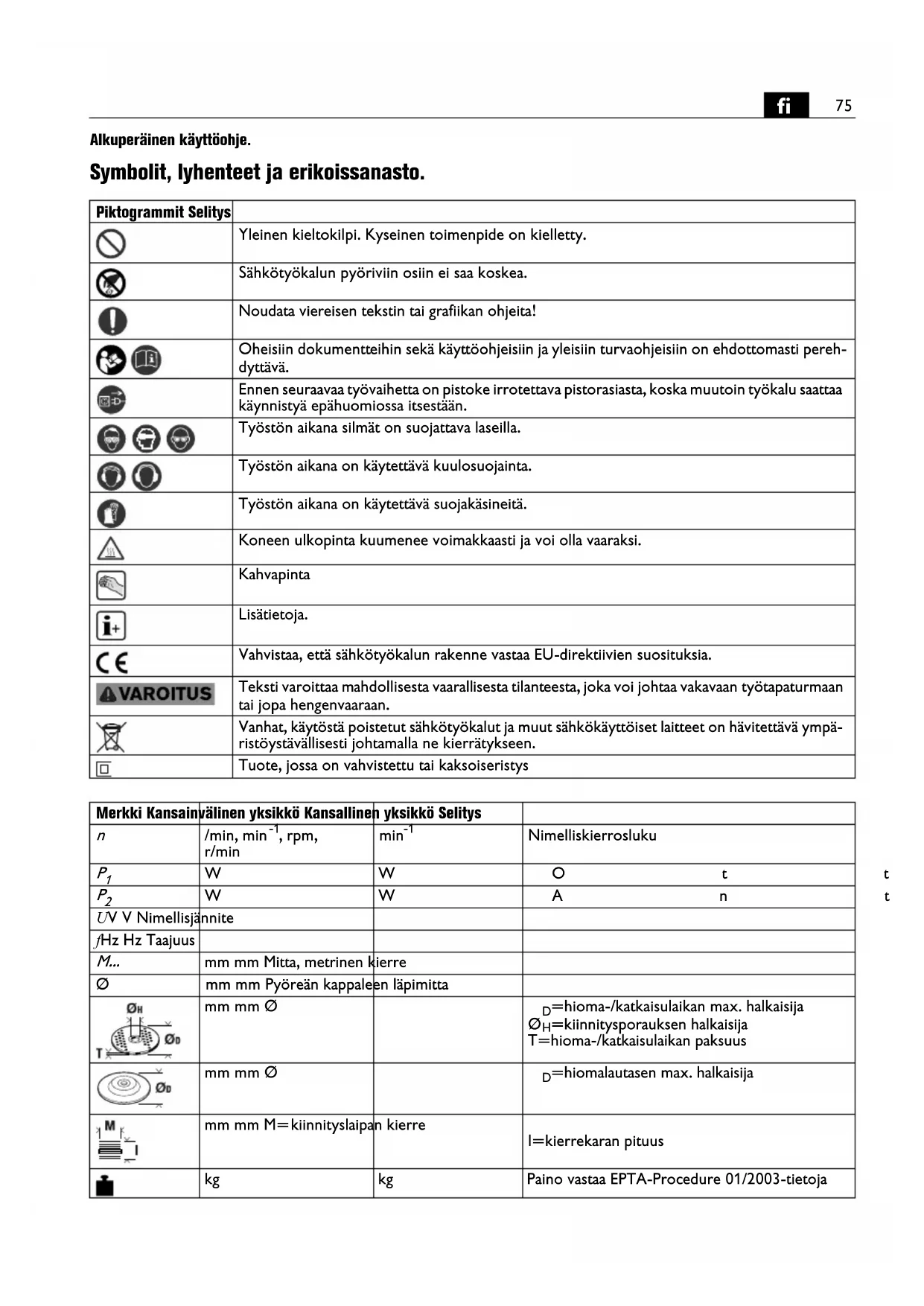
Alkuperäinen käyttöohje. Symbolit, lyhenteet ja erikoissanasto. Piktogrammit Selitys Yleinen kieltokilpi. Kyseinen toimenpide on kielletty. Sähkötyökalun pyöriviin osiin ei saa koskea. Noudata viereisen tekstin tai grafiikan ohjeita! Oheisiin dokumentteihin sekä käyttöohjeisiin ja yleisiin turvaohjeisiin on ehdottomasti pereh- dyttävä. Ennen seuraavaa työvaihetta on pistoke irrotettava pistorasiasta, koska muutoin työkalu saattaa käynnistyä epähuomiossa itsestään. Työstön aikana silmät on suojattava laseilla. Työstön aikana on käytettävä kuulosuojainta. Työstön aikana on käytettävä suojakäsineitä. Koneen ulkopinta kuumenee voimakkaasti ja voi olla vaaraksi. Kahvapinta Lisätietoja. Vahvistaa, että sähkötyökalun rakenne vastaa EU-direktiivien suosituksia. Teksti varoittaa mahdollisesta vaarallisesta tilanteesta, joka voi johtaa vakavaan työtapaturmaan tai jopa hengenvaaraan. Vanhat, käytöstä poistetut sähkötyökalut ja muut sähkökäyttöiset laitteet on hävitettävä ympä- ristöystävällisesti johtamalla ne kierrätykseen. Tuote, jossa on vahvistettu tai kaksoiseristys Merkki Kansainvälinen yksikkö Kansallinen yksikkö Selitys

WWAntoteho U V V Nimellisjännite f Hz Hz Taajuus M... mm mm Mitta, metrinen kierre Ø mm mm Pyöreän kappaleen läpimitta mm mm Ø

=hioma-/katkaisulaikan max. halkaisija

=kiinnitysporauksen halkaisija T=hioma-/katkaisulaikan paksuus mm mm Ø

Työturvallisuus. Lue kaikki turvallisuus- ja muut ohjeet. Turvallisuusohjeiden laimin- lyönti saattaa johtaa sähköiskuun, tulipaloon ja/tai vaka- vaan loukkaantumiseen. Säilytä kaikki turvallisuus- ja muut ohjeet tulevaisuutta varten. Sähkötyökalun saa ottaa käyttöön vasta sitten, kun ensin on perehdytty käyttöohjeeseen sekä oheisiin yleisiin turvaohjeisiin (julkaisunumero 3 41 30 054 06 1) niin, että niissä annetut ohjeet tulevat ymmärretyiksi. Säilytä kyseiset dokumentit vastaisuuden varalta ja anna ne mukaan, mikäli laite luovutetaan toisen käyttöön tai myydään eteenpäin. Niiden ohella on noudatettava voimassa olevia lakisäätei- siä työturvallisuusmääräyksiä. Sähkötyökalun käyttökohteet: kulmahiomakone käsivaraiseen kuiva- ja karkeahiontaan sekä metallin ja kiven katkaisuun säältä suojatuissa tiloissa FEIN:in hyväkysymiä vaihtotyökaluja käyttäen. Tämä sähkötyökalu soveltuu myös käytettäväksi yhdessä teholtaan riittävän vaihtovirtageneraattorin kanssa, joka vastaa standardia ISO 8528, rakenneluokka G2. Ko. stan- dardin vaatimuksia ei täytetä, mikäli nk. särökerroin on yli 10 %. Epäselvissä tapauksissa on hyvä ottaa selvää käyte- tyn generaattorin ominaisuuksista. Yleispäteviä turvaohjeita hiontaan, hiekkapaperilla tai teräsharjalla tapahtuvaan hiontaan, kiillotuk- seen ja katkaisuun Tätä sähkötyökalua voidaan käyttää hiontaan sekä hiek- kapaperilla tai teräsharjalla tapahtuvaan hiontaan ja katkaisuun. Noudata kaikkia koneen mukana toimitettuja turva- ja työstöohjeita sekä kuvituksessa ja teknisissä tiedoissa annettuja ohjeita. Mikäli seuraavia ohjeita lai- minlyödään, siitä voi seurata sähköisku, tulipalo ja/tai vakava tapaturma. Tämä sähkötyökalu ei sovellu kiillotukseen. Jos sähkö- työkalua käytetään muuhun kuin sille suunniteltuun tar- koitukseen, se voi olla vaaraksi ja aiheuttaa tapaturman. Lisälaitteita, joita valmistaja ei ole suunnittellut tai suo- sitellut nimenomaan tähän sähkötyökaluun, ei saa käyt- tää. Vaikka muuntyyppinen lisälaite sopisikin sähkötyökaluun, se ei välttämättä ole turvallinen käyttää. Vaihtotyökalun sallitun kierrosluvun tulee olla vähintään yhtä suuri kuin sähkökoneelle ilmoitettu suurin kierros- luku. Vaihtotyökalu, joka pyörii sallittua suuremmalla nopeudella, voi rikkoutua ja sinkoutua irti koneesta. Vaihtotyökalun ulkohalkaisijan ja paksuuden tulee vas- tata sähkötyökalun mittatietoja. Väärin mitoitettuja vaih- totyökaluja ei voida hallita eikä niille ole riittävää suojaa. Kierreliitoksella varustettujen vaihtotyökalujen on oltava täsmälleen koneen karan kierteeseen sopivia. Laipan välityksellä asennettavien vaihtotyökalujen kiinnitysau- kon halkaisijan on sovittava tarkalleen laipan halkaisi- jaan. Mikäli vaihtotyökalun kiinnitys koneeseen ei ole tarkka ja pitävä, työkalu pyörii epätasaisesti ja tärisee voi- makkaasti, jolloin koneen hallinnan voi menettää. Vaurioituneita vaihtotyökaluja ei saa käyttää. Tarkista ennen jokaista käyttökertaa, ettei vaihtotyökalu, esim. hiomalaikka, ole lohjennut, haljennut tai pahasti kulunut, teräsharjassa ei saa näkyiä irrallisia tai katkenneita lan- koja. Jos sähkökone tai vaihtotyökalu pääsee putoamaan, on varmistuttava, että se siitä huolimatta on kunnossa, muussa tapauksessa tilalle on vaihdettava ehjä vaihto- työkalu. Kun vaihtotyökalun kunto on tarkastettu ja se on kiinnitetty sähkökoneeseen, katso että sekä itse että muut lähellä olevat pysyvät riittävän kaukana sähköko- neesta ja anna sitten koneen käydä minuutti täydellä kierrosluvulla. Tässä ajassa vaurioituneet vaihtotyökalut menevät yleensä rikki. Muista henkilökohtaiset suojavarusteet. Käytä työstöti- lanteesta riippuen kasvosuojainta, silmäsuojainta tai suojalaseja. Jos mahdollista, käytä pölysuojainta, kuulo- suojainta, suojakäsineitä tai erikoisvaatetusta, joka antaa suojan ilmaan sinkoilevilta hioma- ja materiaali- hiukkasilta. Varsinkin silmät on suojattava eri työstöta- voilla ilmaan sinkoilevilta hiukkasilta. Pöly- ja hengityssuojainten täytyy pystyä suodattamaan työstössä syntyvä pöly. Pitkäaikainen altistuminen melulle saattaa heikentää kuuloa. Katso, että muut pysyvät turvallisella etäisyydellä työ- kohteesta. Kaikkien työkohteessa olevien on käytettävä henkilökohtaisia suojavarusteita. Työkappaleesta tai rik- koutuneesta vaihtotyökalusta irtoavia osia voi sinkoutua kauemmaskin ja vahingoittaa muita varsinaisen työkoh- teen ulkopuolella olevia.

pCpeak dB dB Äänen painetason huippuarvo K... Epävarmuustekijä m/s

Tärinäarvo vastaa standardia EN 60745 (vektori- summa, kolmiulotteinen) h,AG m/s

Keskimääräinen tärinäarvo hiottaessa h,DS m/s

Keskimääräinen tärinäarvo hiottaessa hiomalai- kalla m, s, kg, A, mm, V, W, Hz, N, °C, dB, min, m/s

Kansainväliseen SI-järjestelmään sisältyvät perus- yksiköt ja sen johdannaisyksiköt. Merkki Kansainvälinen yksikkö Kansallinen yksikkö Selitys OBJ_BUCH-0000000033-003.book Page 76 Thursday, February 6, 2014 9:58 AM77

Tartu laitteeseen vain sen eristetyistä pinnoista kun teet työtä kohteessa, jossa vaihtotyökalu saattaa osua raken- teissa piilossa oleviin sähköjohtoihin tai laitteen omaan verkkojohtoon. Jos sähkökoneella osutaan jännitteellisiin johtoihin, koneen metalliosat johtavat sähköä, mikä voi johtaa sähköiskuun. Vedä koneen verkkojohto poispäin pyörivästä vaihtotyö- kalusta. Jos menetät koneen hallinnan, työkalu voi osua verkkojohtoon ja katkaista sen tai johto voi joutua käden tai käsivarren mukana liian lähelle pyörivää vaihtotyöka- lua. Laske kone kädestä vasta sitten, kun vaihtotyökalu on pysähtynyt kokonaan. Vielä pyörivä vaihtotyökalu saattaa törmätä työtasoon, jolloin koneen hallinnan voi menet- tää. Sähkökone ei koskaan saa olla käynnissä, kun sitä siir- rellään ja kannetaan. Pyörivä työkalu voi huomaamatta tulla liian lähelle kehoa ja tarttua esim. vaatteisiin. Puhdista sähkökoneen ilmanvaihtoaukot säännöllisesti. Moottorin puhallin imee pölyä laitekotelon sisään, missä suuri määrä metallipölyä voi aiheuttaa sähköiskun vaaran. Sähkökoneen työkohteen ympärillä ei saa olla palavia aineita. Ne voivat syttyä tuleen kipinöinnin seurauksena. Vaihtotyökaluja, jotka vaativat nestemäisen jäähdytysai- neen käyttöä, ei saa käyttää tässä koneessa. Vesi tai muu nestemäinen jäähdytysaine voi aiheuttaa sähköiskun. Varotoimenpiteet takaiskun varalta Takaisku on äkillinen reaktio, joka syntyy pyörivän vaih- totyökalun, kuten hiomalaikan, hiomalautasen tai teräs- harjan tarttuessa tai juuttuessa kiinni. Sen seurauksena vielä pyörivä vaihtotyökalu voi pysähtyä äkillisesti. Koneen hallinta menetetään kun se sinkoutuu vastakkai- seen suuntaan. Jos esim. työkappaleessa oleva hiomalaikka takertaa tai juuttuu kiinni, hiomalaikka ei pääse enää pyörimään, jol- loin se murtuu tai aiheuttaa takaiskun. Hiomatyökalu voi pyörimissuunnasta riippuen silloin ponnahtaa joko konetta käyttävän suuntaan tai hänestä pois päin ja samalla se voi myös murtua. Takaisku johtuu aina sähkökoneen vääränlaisesta käsitte- lystä ja se voidaan välttää sopivin varotoimenpitein, jotka on selostettu seuraavassa. Pidä sähkökonetta tukevassa otteessa, seiso tukevasti ja pidä käsivarret asennossa, jossa pystyt hallitsemaan takaiskuvoimat. Käytä aina lisäkahvaa, jolloin takaiskun ja käynnistysmomentin aiheuttamat voimat ovat parem- min hallittavissa. Konetta käyttävä pystyy sopivin varo- toimenpitein hallitsemaan takaisku- ja reaktiovoimat. Varo käsiä, ne eivät saa joutua liian lähelle pyörivää hio- malaikkaa. Takaiskun sattuessa laikka voi satuttaa käsiä. Ota huomioon, mihin suuntaan työkalu liikkuu takaiskun sattuessa. Takaisku heittää konetta juuttumiskohdasta käsin hiomatyökalun pyörimissuuntaa vasten. Työskentele erityisen varoen nurkkien, terävien kulmien tms. kohdalla, ja katso ettei vaihtotyökalu pääse ponnah- tamaan irti työkappaleesta tai juuttumaan kiinni. Pyöri- vällä vaihtotyökalulla on taipumus juuttua kiinni nurkkiin tai teräviin reunoihin. Se johtaa hallinnan menettämiseen tai takaiskuun. Koneeseen ei saa asentaa ketju- tai pyöräsahanteriä. Tämäntyyppiset vaihtotyökalut eivät sovellu tähän sähkö- työkaluun. Erityiset varo-ohjeet hiontaan ja katkaisuun Sähkötyökalussa saa käyttää ainoastaan koneeseen hyväksyttyjä hiomatyökaluja ja niihin sopivia laikan suo- juksia. Hiomatyökalua, joka ei sovellu ko. koneeseen, ei voi suojata kunnolla ja se ei ole turvallinen käyttää. Hiomalaikat upotetulla keskiöllä on kiinnitettävä niin, että niiden hiomapinta ei ulotu laikansuojan reunan yli. Väärin kiinnitetty hiomalaikka, jonka hiomapintaa laikan- suojus ei peitä, ei ole suojattu asianmukaisella tavalla. Laikan suojus on kiinnitettävä pitävästi sähkökoneeseen ja säädettävä mahdollisimman tehokkaan työturvallisuu- den saavuttamiseksi niin, että vain pieni osa hiomalai- kasta jää avoimeksi koneen käyttäjään päin. Laikan suojus suojaa käyttäjää sinkoilevilta kappaleilta ja toimii laikan kosketussuojana sekä estää kipinöiden pääsyn esim. käyttäjän vaatetukseen. Eri hiomatyökaluja saa käyttää ainoastaan niille suositel- tuun käyttötarkoitukseen, esim. katkaisulaikkaa ei pidä käyttää hiontaan. Koska materiaali leikataan katkaisuun tarkoitetuilla laikoilla laikan ulkokehällä, muu pinta ei kes- tä hiottaessa syntyviä sivuttaisvoimia, vaan laikka murtuu. Käytä aina virheetöntä, oikean kokoista ja muotoista kiinnityslaippaa valitsemallesi hiomalaikalle. Sopivat lai- pat tukevat hiomalaikkaa ja vähentävät näin hiomalaikan murtumisriskiä. Katkaisulaikkojen laipat saattavat poiketa muitten hiomalaikkojen laipoista. Suuremman kokoluokan sähkötyökaluun kuuluvia kulu- neita hiomalaikkoja ei saa käyttää. Suuren kokoluokan sähkökoneen hiomalaikat eivät sovellu pienikokoisem- pien sähkökoneiden kierrosluvuille, ja ne voivat murtua. Muita katkaisuun liittyviä erityisvaro-ohjeita Varo, ettei katkaisulaikka pääse juuttumaan. Älä myös- kään paina liikaa tai yritä leikata liian syvään. Katkaisu- laikan ylikuormitus saattaa johtaa laikan vääntymiseen tai sen juuttumiseen, jolloin kone iskee takaisin ja laikka saat- taa murtua. Katso, ettet seiso suoraan leikkuulinjalla tai välittömästi pyörivän katkaisulaikan takana. Jos johdat katkaisulaik- kaa suoraan kehosta pois päin, se saattaa ponnahtaa suo- raan kehoon päin, jos laikka juuttuu kiinni ja kone iskee takaisin. Jos katkaisulaikka juuttuu kiinni tai kun keskeytät työn, pysäytä sähkötyökalu ja pidä sitä liikuttamatta paikal- laan, kunnes laikka on pysähtynyt. Älä koskaan yritä nos- taa vielä pyörivää katkaisulaikkaa irti, se saattaa aiheuttaa takaiskun. Selvitä, miksi laikka juuttui kiinni ja korjaa tilanne. Sähkötyökalua ei pidä käynnistää uudelleen, kun laikka on kiinni työkappaleessa. Anna katkaisulaikan ensin saa- vuttaa täysi kierroslukunsa, ennen kuin varovasti jatkat leikkausta. Muussa tapauksessa laikka saattaa juuttua kiinni, ponnahtaa irti työkappaleesta tai aiheuttaa takais- kun. OBJ_BUCH-0000000033-003.book Page 77 Thursday, February 6, 2014 9:58 AM78

Tue levyt tai suurikokoiset työkappaleet hyvin katkaisu- laikan juuttumisen aiheuttaman takaiskuvaaran mini- moimiseksi. Suuret työkappaleet voivat taipua oman painonsa seurauksena. Työkappaletta tulee tukea molem- milta puolilta, sekä katkaisuleikkauksen vierestä että reu- noilta. Noudata erityistä varovaisuutta, kun leikkuukohde on seinässä kiinni oleva levy tai muu kohde, joka ei ole kokonaan näkyvillä. Katkaisulaikka voi osua kaasu- tai vesiputkiin, sähköjohtoihin tai muihin kohteisiin. Erityiset varo-ohjeet hiomapaperilla hiontaan Ylisuuria hiomapyöröjä ei pidä käyttää, vaan valmistajan suosituksia hiomapyöröjen koosta on noudatettava. Hio- malautasen ulkopuolelle ulottuvat hiomapaperit voivat osua käteen, revetä tai tarttua kiinni työkappaleeseen, irrota hiomalautasesta ja aiheuttaa takaiskun. Erityiset varo-ohjeet karkeahiontaan teräsharjalla Ota huomioon, että teräsharjasta irtoaa lankoja myös normaalikäytössä. Varo ylikuormittamasta lankoja paina- malla teräsharjaa liian suurella voimalla työkappaletta vasten. Irti sinkoilevat langanpätkät voivat helposti tun- keutua ohuen vaatteen tai ihon läpi. Jos työ vaatii hiomasuojuksen käyttämistä, on tärkeää, että teräsharja ei kosketa hiomasuojusta. Lautas- ja kup- piharjojen halkaisijat voivat laajeta puristuspaineen ja kes- kipakovoiman johdosta. Lisäturvaohjeita Mikäli hiomatarvikkeen mukana toimitetaan joustava aluskappale, sitä on ehdottomasti käytettävä. On varmistettava, että työkalut on kiinnitetty valmistajan ohjeita noudattaen. Paikallaan olevien työkalujen on voi- tava pyöriä vapaasti. Väärin kiinnitetyt työkalut voivat irrota työstön aikana ja singota pois paikaltaan. Käsittele hiomatarvikkeita huolellisesti ja varastoi ne val- mistajan antamia ohjeita noudattaen. Vioittuneessa hio- matarvikkeessa voi olla halkemia, jolloin se halkeaa kappaleiksi työstön aikana. Kierrekiinnitteisiä työkaluja käytettäessä on katsottava, että työkalun kierreosa on riittävän pitkä koneen karalle. Työkalun kierteen on sovittava tarkalleen koneen karan kierteeseen. Väärin kiinnitetty työkalu saattaa irrotta kes- ken työstön ja aiheuttaa tapaturman. Varo rakenteissa olevia sähköjohtoja ja kaasu- ja vesi- putkia. Tarkasta ennen töiden aloittamista työkohde esim. metallinilmaisimella. Koneessa suositellaan käytettäväksi kiinteää pölynpois- toa. Ilmanvaihtoaukot on puhdistettava paineilmalla säännöllisin välein ja kone on tarvittaessa kytkettävä vikavirtasuojakytkimeen. Vaativissa käyttöolosuhteissa voi metallia työstettäessä koneen sisään kertyä sähköä johtavaa metallipölyä. Se voi olla haitaksi sähkötyökalun suojaeristykselle. Sähkötyökaluun ei saa kiinnittää kilpiä tms. poraamalla tai niittaamalla. Jos koneen eristystä vioitetaan, seurauk- sena voi olla sähköiskun vaara. Suositamme tarrakiinnit- teisiä kilpiä. Käytä koneessa aina lisäkahvaa. Lisäkahvan ansiosta koneesta saa varmemman otteen. Tarkasta liitäntäjohdon ja pistokkeen kunto, ennen kuin otat koneen käyttöön. Suositus: Käytä sähkökoneen kanssa aina vikavirtasuoja- kytkintä (PRCD-K), jonka nimellistoimintavirta on 30 mA tai sitä pienempi. Käsiin ja käsivarsiin kohdistuva tärinä Tässä ohjeessa ilmoitettu tärinätaso on mitattu standardin EN 60745 mukaista mittausmenetelmää noudattaen ja sitä voidaan soveltaa verrattaessa sähkötyökalujen arvoja keskenään. Arvoa voidaan soveltaa myös arvioitaessa alustavasti värinästä aiheutuvaa kuormitusta. Ilmoitettu tärinätaso vastaa sähkötyökalun pääasiallisia käyttösovelluksia. Mikäli sähkötyökalua käytetään muihin tarkoituksiin tai siinä käytetään muita lisätarvikkeita tai mikäli työkalun huolto on puutteellinen, tärinätaso saat- taa poiketa tässä ilmoitetusta. Siinä tapauksessa tärinätaso voi nousta selvästi koko työkohteessa. Tärinätason tarkan arvioinnin kannalta on tärkeää ottaa huomioon myös ne ajat, jolloin sähkötyökalu on kytketty pois päältä sekä ajat, jolloin työkalu on käynnissä, mutta sillä ei työstetä materiaalia. Siinä tapauksessa tärinätaso voi nousta selvästi koko työkohteessa. Jotta koneen käyttäjä välttyisi tärinän aiheuttamilta hai- toilta, on hyvä sopia ylimääräisistä turvajärjestelyistä, esim. laatia ohjeet sähkökoneen ja sen työkalujen huol- losta, työvaiheiden organisoinnista ja työturvallisuudesta. Terveydelle vaarallisten pölyjen käsittely Työvaiheissa, joissa työkalulla lastutaan materiaalia, voi syntyä vaarallista pölyä. Tietyntyyppisen pölyn koskettaminen tai hengittäminen voi aiheuttaa allergisia reaktioita ja/tai hengitysteiden sai- rauksia, syöpää tai hedelmällisyyteen vaikuttavia vauri- oita. Tällaista pölyä voi erittyä esim. asbestista ja asbestipitoisista materiaaleista, lyijypitoisista maaleista, metallista, eräistä puulaaduista, mineraaleista, kivipitoi- sista materiaaleista erittyvistä silikaateista, maalinpoistoai- neista, puunsuoja-aineista sekä eliöntorjunta-aineista. Riskin suuruus pölyjä hengitettäessä riippuu niiden mää- rästä. Suositamme käyttämään tarkoitukseen sopivaa poistoimuria sekä henkilökohtaista suojavarustusta ja huolehtimaan työpaikan riittävästä tuuletuksesta. Asbesti- pitoisen materiaalin työstö on paras jättää ammattihenki- lökunnan hoidettavaksi. Puupöly ja kevytmetallipöly sekä hionnassa syntyvä pöly yhdessä kemiallisten aineiden kanssa voivat epäsuotuisis- sa olosuhteissa syttyä itsestään palamaan tai aiheuttaa räjähdyksen. Kipinöintiä pölysäiliön läheisyydessä on väl- tettävä, samoin sähkötyökalun ja hiottavan esineen yli- kuumenemista. Pölysäiliö on hyvä tyhjentää ajoissa. Materiaalin valmistajan työstöohjeita on noudatettava, samoin kuin maakohtaisesti voimassa olevia, kyseisten materiaalien työstöön liittyviä määräyksiä. OBJ_BUCH-0000000033-003.book Page 78 Thursday, February 6, 2014 9:58 AM79

Työstöohjeita. Koneessa on automaattinen käynnistyksenesto, jonka estää sähkömoottorin käynnistymisen silloin, jos virta katkeaa välillä esim. jos pistoke on vedetty irti. WSG20/WSG25: Lukitusnuppia saa painaa vain silloin, kun moottori on sammutettu (ks. sivu 5). WSB20/WSB25: Kierrä laikkamutteri kiinni aina vain lukitusvivun ollessa vapautettuna. Kierrä laikkamutteria käsin kunnes se rak- sahtaa paikalleen. Käännä lukitusvipu sitten takaisin siten, että se lukkiutuu paikalleen (ks. sivu 6). Huomio: Elektroninen jarru EBS alkaa koneen pysähtymis- vaiheessa jarruttaa pienellä viiveellä ja pysäyttää hioma- työkalun parin sekunnin sisällä. Jos taas virta katkeaa työstön aikana tai jos pistoke kytke- tään irti, hiomatyökalua ei jarruteta, vaan sen vauhti pysähtyy itsestään. Kunnossapito, huolto. Epäedullisissa käyttöolosuhteissa voi koneen sisään kertyä suuri määrä sähköä johtavaa metallipölyä. Se voi olla haitaksi sähkötyökalun suojaeristykselle. Työkalu on hyvä puhdistaa sisäpuolelta tarpeeksi usein puhaltamalla ilmanvaihtoaukkojen kautta sisään kuivaa ja öljytöntä paineilmaa. Lisäksi koneen liitän- nässä voi käyttää vikavirtasuojakytkintä (FI). WSB20/WSB25: Kierrä laikkamutteri paikalleen konee- seen käsin, niin se ei likaannu eikä pääse vioittumaan. Jos sähkötyökalun liitäntäjohto on vioittunut, sen saa vaihtaa ainoastaan uuteen laitekohtaiseen liitäntäjohtoon, jonka voi tilata FEIN-palvelusta. Tähän sähkötyökaluun kuuluvan varaosaluettelon voi hakea internet-osoitteesta www.fein.com. Seuraavat osat voi tarvittaessa vaihtaa itse: Vaihtotyökalut, lisäkahva, kiinnityslaippa, laikansuoja Takuu. Tuotteeseen pätee takuu, joka vaaditaan sen tuonti- maassa. Sen ohella pätee FEINin takuuehdoissa määrittä- mä valmistajakohtainen takuu. Kaikki tässä käyttöohjeessa mainitut tai kuvissa esitetyt lisätarvikkeet eivät välttämättä kuulu sähkötyökalun toi- mitussisältöön. EU-vastaavuus. Tmi. FEIN vakuuttaa ja vastaa yksin siitä, että tämä tuote on käyttöohjeen viimeisellä sivulla mainittujen määräys- ten ja standardien mukainen. Teknisen dokumentaation laatinut: C. & E. FEIN GmbH, C-DB_IA, D-73529 Schwäbisch Gmünd Ympäristönsuojelu, jätehuolto. Pakkausmateriaalit, käytöstä poistetut sähkötyökalut sekä lisävarusteet on johdettava kierrätykseen. Lisätarvikevalikoima (ks. sivut 12 – 13). Käytä ainoastaan alkuperäisiä FEIN-tarvikkeita. Tarvikkei- den tulee soveltua kyseiseen konetyyppiin. A Rouhintalaikka, lamellihiomalaikka (käytä vain laikansuojan ollessa paikallaan) B Teräslankaharja (käytä vain laikansuojan ollessa paikallaan) C Tukilaikka fiiberilaikoille, fiiberilaikat (tukilaikan saa kiinnittää vain toimitukseen kuuluvilla osilla, käytä vain käsisuojan tai laikansuojan ollessa paikallaan) D Tukilautanen tarrakiinnitteisille hiomapapereille ja huoville (käytä vain käsisuojan ollessa paikallaan) E Teräslankakuppiharja, lamellihiomapyöröt (käytä vain käsisuojan ollessa paikallaan) F Katkaisulaikka (käytä vain kun laikansuoja on paikallaan) OBJ_BUCH-0000000033-003.book Page 79 Thursday, February 6, 2014 9:58 AM80

Käyttöohje-avustaja
Powered by Anthropic
Odotetaan viestiäsi
Tuotetiedot

Merkki : Fein

Malli : WSG20230

Kategoria : Kulmahiomakone