BSS 21 - Geschirrspüler MIELE - Kostenlose Bedienungsanleitung
Finden Sie kostenlos die Bedienungsanleitung des Geräts BSS 21 MIELE als PDF.
Benutzerfragen zu BSS 21 MIELE
0 Frage zu diesem Gerät. Beantworten Sie die, die Sie kennen, oder stellen Sie Ihre eigene.
Eine neue Frage zu diesem Gerät stellen
Laden Sie die Anleitung für Ihr Geschirrspüler kostenlos im PDF-Format! Finden Sie Ihr Handbuch BSS 21 - MIELE und nehmen Sie Ihr elektronisches Gerät wieder in die Hand. Auf dieser Seite sind alle Dokumente veröffentlicht, die für die Verwendung Ihres Geräts notwendig sind. BSS 21 von der Marke MIELE.
BEDIENUNGSANLEITUNG BSS 21 MIELE
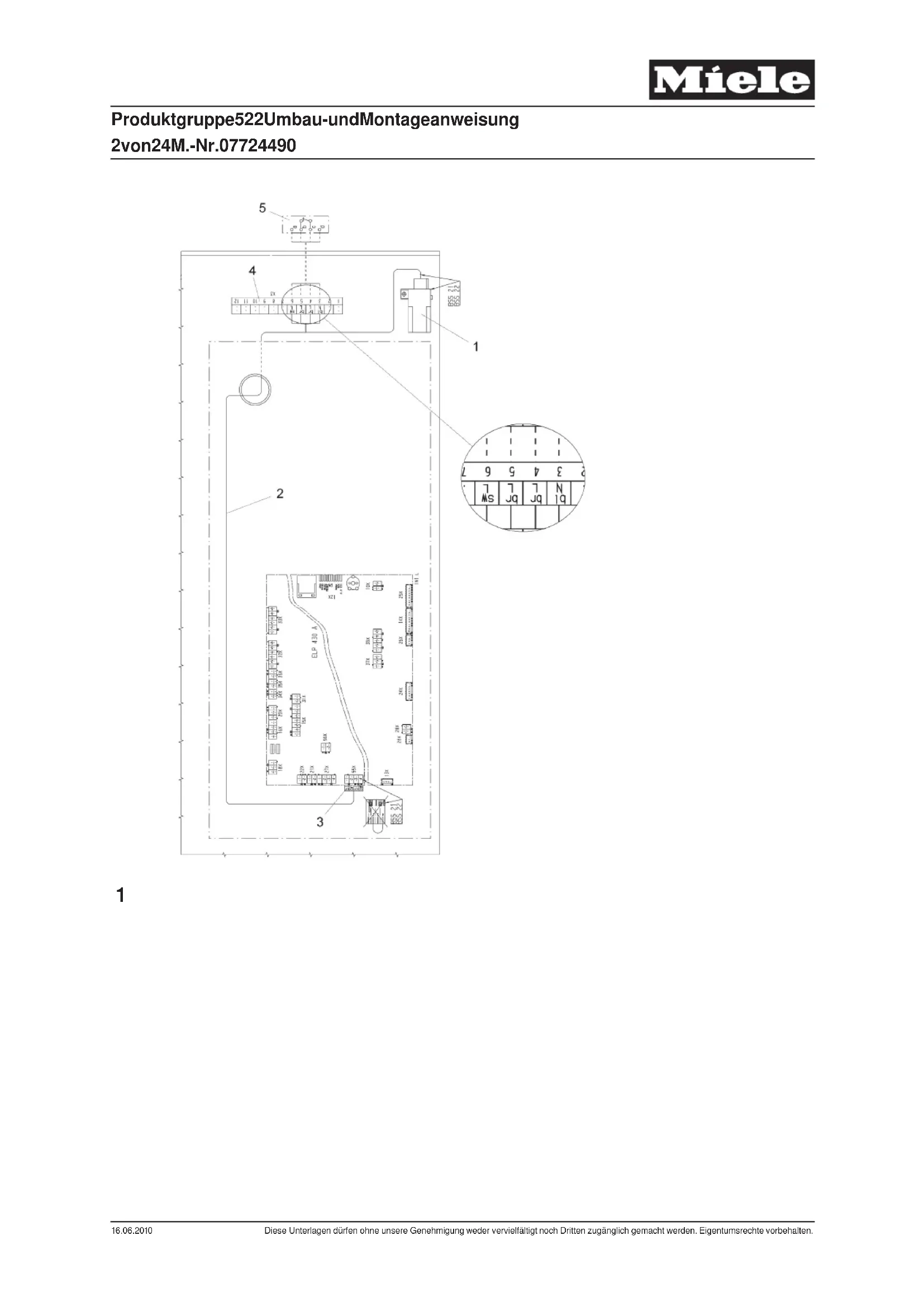
Produktgruppe522Umbau-undMontageanweisung
1von24M.-Nr.07724490
PT8257,PT8337,PT8407,PT8507,PT8807
| de | MontageanweisungModulBSS21/22Spitzenlastabschaltung | en | Fittinginstructions-ModuleBSS21/22-Peak-loadcut-out | fr | NoticedemontagedumoduleBSS21/22délestage |
| ni | Montage-instructiemoduulBSS21/22uitschakelingbijpiekbelasting | da | MonteringsanvisningmodulBSS21/22spidsbelastningsafbrydelse | no | MonteringsveiledningformodulBSS21/22tiltoppbelastningsmodulforoppvarming |
| sv | MonteringsanvisningmodulBSS21/22effekttoppsbrytare | it | Istruzionedimontaggio moduloBSS21/22disinserzionecarico massimodipunta | es | InstruccionesdemontajedelmóduloBSS21/22Desconexiónporcargadepico |
| el | ΟδηγίατοποθέτησημονάδαςBSS21/22διακοπήςλόγωφορτίουαιχμής | am | InstallationInstructions-BSS21/22(PeakLoad Cut-Out)Module |
Produktgruppe522Umbau-undMontageanweisung
2von24M.-Nr.07724490

AnzahlM.-Nr.Benennung
107738660 Umbausatz BSS21 Spitzenlastabschaltung PT8257, PT8337, PT8507
oder
107738680 Umbausatz BSS22 Spitzenlastabschaltung PT8407, PT8807
Hinweis
Diese Umbauarbeiten dürfen grundsätzlich nur von einer Elektrofachkraft (fachliche Ausbildung, Fachkenntnisse und Facherfahrungen, zeitnaheberufliche Tätigkeit) unter Berücksichtigungdergültigen Sicherheitsbestimmungen durchgeführt werden.
Für die Instandsetzung, Änderung, Prüfung und Wartung elektrischer Geräte sind die entsprechenden gesetzlichen Grundlagen, Unfallverhütungsvorschriften, die gültigen Normen, dieder Sicherheitdienen, sowie die am Aufstellungsort gültigen Vorschriftender Energieversorgungsunternehmenzubeachten.
Gefahr!
AuchbeiausgeschaltetemGerätkannNetzspannunganBauteilenanliegen!
Deshalbist, bevorWartungs-, Instandsetzungs- und Umbauarbeitenam Gerätdurchgeführt werden, einesichere Netztrennung von allenaktiven, spannungsführenden Leitungensowieanschließendeine Messung der Spannungsfreiheiterforderlich!
GrundsätzlichmusseineallgemeineSichtprüfungdurchgeführt werden.
EinnichtfachgerechterUmbaukannzueinerGefährdungführen(Brand, elektrischer Schlagusw.).
Gefahr!
Die SchutzleiterfunktionkanndurcheinenfehlerhaftenGehäusezusammenbauaußerKraftgesetztwerden.
Die Schutzleiterfunktionist bei Montageder Gehäuseteilewiederherzustellen.
Elektrische Sicherheitsprüfungdurchführen.
Hinweis
DerMontagesatzM.-Nr.07738660fürPT8257,PT8337,PT8507enthält:
DerMontagesatzM.-Nr.07738680fürPT8407,PT8807enthält:
•1Kabelbaum55X-X3
•1 RelaisK1/81
•1 Linsenschraube4x10
•1 Verbindungsdrahtbraun AWG20x90
•1Kabelhalter200x4,8
•1KabelverschraubungM20x1,5
•1SechskantmutterM20x1,5
• Diese Montageanweisung "Montageanweisung Modul BSS 21/22 Spitzenlastabschaltung", M.-Nr. 07724490
ListederAbbildungen:
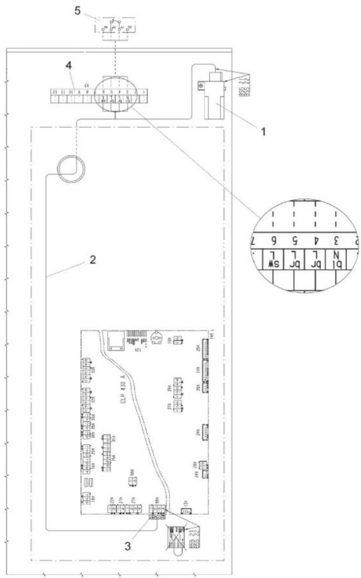
—Abb.1, Montage Relaisund Kabelverschraubung
—Die Maschinevom Elektronetzrennenundgegen Wiedereinschaltensichern.
-Gerätedeckelabbauen.
—AbdeckblechElektroanschlussanderRückseitederMaschineabbauen.
| blbrgngegrorrsrtswviws | |||||||||
| blaubraungrüngelbgraudrangerosarotschwarz | violett | weiß | |||||||
Tabelle1: Kabelfarben
Achtung!
Last- und Steuerstrom Kabelbäume sind getrennt voneinander zu verlegen, um Störsignale in den Steuerleitungen zu vermeiden(Elektromagnetische Verträglichkeit).
Achtung!
Überschüssige Kabellängen gegenläufig verlegen, um Antennenwirkung bei Leitungen zu vermeiden.
- Das Relais K1/81 (Abb. 1, Pos. 1) auf der Verstärkung über dem Heizkanal mit 1 x Linsenschraube 4x10 in das vorhandene Lochfestschrauben.
– An dem Anschluss ELP 430-A – 55X (Abb. 1, Pos. 3) den vorhandenen Stecker entfernen. - Kabelbaum 55X-X3 (Abb. 1, Pos. 2) auf dem Geräteträger durch die Kabeldurchführung zur Klemmleiste X3 (Abb. 1, Pos.4) verlegen.
- Kabelbaum 55X-X3 an das montierte Relais K1/81 anschließen und in die Steckwanne ELP 430-A – 55X stecken.
- Kabelbaum 55X-X3 an der Klemmleiste X3 (Abb. 1, Pos. 4) anschließen. Schaltplan, Kabelfarbe und Bedruckung "5" am braunen Kabel beachten, siehe Abb. 1, Pos. 4.
- Kabelbaum 55X-X3 mit Kabelhalter 200x4,8 am Kabelbaum im Bereich der Netzanschlussklemme befestigen.
– Das vorgestanzte Loch für die externe Spitzenlastabschaltung in der Verbindungsleiste (Geräterückwand) öffnen.
– Die Kabelverschraubung M20x1,5 für die externe Spitzenlastabschaltung an der Verbindungsleiste (Geräterückwand) festschrauben.
– Externe Spitzenlastabschaltung (Abb. 1, Pos. 5) nach den Angaben des Herstellers der Spitzenlastabschaltung an der Klemmleiste X3 (Abb. 1, Pos. 4) anschließen.
Achtung!
Wird keine externe Spitzenlastabschaltung an der Klemmleiste X3 angeschlossen, ist mit dem Verbindungsdraht braun eineBrückezwischenPin4undPin5herzustellen.
-Probelaufdurchführen.
—AbdeckblechElektroanschlussanderRückseitederMaschineanbauen.
-Gerätedeckelanbauen.
–Elektrische Sicherheitsprüfungdurchführen.
—Die Maschineam Elektronetzanschließen.
Hinweis
DieFreigabefürSpitzenlastindenProgrammenüberprüfen.
de
Produktgruppe522Umbau-undMontageanweisung
5von24M.-Nr.07724490
en
Partsrequired
QuantityMat.no.Designation
107738660ConversionkitBSS21-Peak-loadcut-out-PT8257,PT8337,PT8507
or
107738680ConversionkitBSS22-Peak-loadcut-out-PT8407,PT8807
Note
Produktgruppe522Umbau-undMontageanweisung
7von24M.-Nr.07724490
fr
Piècesnécessaires
NombreMat.-Nr.Désignation
107738660Jeud'adaptationBSS21délestagePT8257,PT8337,PT8507
ou
107738680Jeud'adaptationBSS22délestagePT8407,PT8807
Remarque
Produktgruppe522Umbau-undMontageanweisung
9von24M.-Nr.07724490
ni
Benodigdeonderdelen
Produktgruppe522Umbau-undMontageanweisung
11von24
M.-Nr.07724490
da
Nødvendigedele
AntalM.-Nr.Betegnelse
107738660
MonteringssætM.-Nr.07738660fürPT8257,PT8337,PT8507indeholder:
MonteringssætM.-Nr.07738680fürPT8407,PT8807indeholder:
Produktgruppe522Umbau-undMontageanweisung
13von24M.-Nr.07724490
no
Nødvendigedeler
AntallM.-nr.Betegnelse
| 107738660 | OmbygningssettBSS21tiltoppbelastningsmodulforoppvarmingPT8257,PT8337,PT8507 |
| eller | |
| 107738680 | OmbygningssettBSS22tiltoppbelastningsmodulforoppvarmingPT8407,PT8807 |
NB!
Produktgruppe522Umbau-undMontageanweisung
15von24M.-Nr.07724490
sv
Erforderligadelar
AntalM-nrBenämning
107738660
Produktgruppe522Umbau-undMontageanweisung
17von24M.-Nr.07724490
it
Pezzinecessari
Produktgruppe522Umbau-undMontageanweisung
19von24M.-Nr.07724490
es
Piezasnecesarias
Produktgruppe522Umbau-undMontageanweisung
21von24M.-Nr.07724490
el
Produktgruppe522Umbau-undMontageanweisung
23von 24
M.-Nr. 07724490
am
Partsrequired
QuantityMat.no.Designation
107738660BSS21peakloadcut-outconversionkitforPT8257,PT8337,PT8507
or
107738680BSS22peakloadcut-outconversionkitforPT8407,PT8807
EinfachAnleitung