HYDROMOTRIX CF - Chaudière à condensation FRISQUET - Notice d'utilisation et mode d'emploi gratuit
Retrouvez gratuitement la notice de l'appareil HYDROMOTRIX CF FRISQUET au format PDF.
| Intitulé | Description |
|---|---|
| Type de produit | Chaudière à condensation murale |
| Caractéristiques techniques principales | Technologie à condensation, rendement élevé, fonctionnement au gaz naturel ou propane |
| Alimentation électrique | 230 V / 50 Hz |
| Dimensions approximatives | Hauteur : 700 mm, Largeur : 400 mm, Profondeur : 300 mm |
| Poids | Environ 40 kg |
| Compatibilités | Compatible avec les systèmes de chauffage central et les installations de production d'eau chaude |
| Tension | 230 V |
| Puissance | De 24 à 30 kW selon le modèle |
| Fonctions principales | Chauffage, production d'eau chaude sanitaire, régulation de la température |
| Entretien et nettoyage | Vérification annuelle par un professionnel, nettoyage des filtres et des échangeurs |
| Pièces détachées et réparabilité | Disponibilité de pièces détachées, facilité d'accès pour les réparations courantes |
| Sécurité | Système de sécurité intégré, protection contre la surchauffe et les fuites de gaz |
| Informations générales | Garantie de 2 ans, conformité aux normes européennes en matière d'efficacité énergétique |
FOIRE AUX QUESTIONS - HYDROMOTRIX CF FRISQUET
Questions des utilisateurs sur HYDROMOTRIX CF FRISQUET
Pour purger un radiateur lorsque vous utilisez une chaudière à condensation FRISQUET HYDROMOTRIX CF, suivez ces étapes simples et sécurisées :
Étapes pour purger un radiateur
- Éteignez la chaudière : Coupez l'alimentation de votre chaudière pour éviter la circulation d'eau chaude et réduire les risques de brûlure.
- Préparez le matériel : Munissez-vous d'une clé de purge adaptée ou d'un tournevis plat selon le type de robinet de purge, ainsi qu'un récipient pour recueillir l'eau qui s'écoulera.
- Localisez la vanne de purge : Elle se trouve généralement en haut du radiateur, sur un côté. C'est une petite vis ou robinet spécifique.
- Placez le récipient : Positionnez-le sous la vanne pour récupérer l'eau et éviter les éclaboussures.
- Ouvrez la vanne : Tournez la vanne dans le sens antihoraire avec la clé ou le tournevis. Vous entendrez un sifflement indiquant que l'air s'échappe.
- Attendez l'écoulement continu : Laissez l'air sortir jusqu'à ce que de l'eau s'écoule régulièrement sans bulles d'air.
- Fermez la vanne : Tournez-la dans le sens horaire pour refermer hermétiquement.
- Vérifiez la pression de la chaudière : Après la purge, contrôlez la pression sur le manomètre de votre chaudière FRISQUET HYDROMOTRIX CF. Si elle est trop basse, il faudra rajouter de l'eau dans le circuit de chauffage selon les indications de votre système.
- Redémarrez la chaudière : Remettez la chaudière en marche et vérifiez que le radiateur chauffe correctement.
Réaliser cette opération régulièrement permet d'améliorer l'efficacité de votre chauffage et d'éviter les bruits ou zones froides dans vos radiateurs.
Sur la chaudière à condensation FRISQUET HYDROMOTRIX CF, l'extinction d'un voyant clignotant, notamment le voyant rouge, indique généralement que le problème signalé précédemment a été résolu. Par exemple, si le voyant clignotant rouge indiquait une anomalie liée à la pression d'eau dans le circuit, son extinction signifie que la pression est revenue à un niveau normal.
Que faire en cas de voyant clignotant éteint ?
- Vérifiez la pression affichée : Assurez-vous que la pression sur le manomètre est stable et se situe généralement autour de 1,5 bar à froid. Une pression trop basse ou trop élevée peut entraîner un dysfonctionnement.
- Surveillez les autres voyants : Si un autre voyant, comme un voyant orange, reste allumé, cela peut indiquer un autre type d'alerte, par exemple une pression trop élevée.
- Entretenez votre installation : Si la pression est trop élevée, vous pouvez purger un radiateur pour faire baisser la pression. Si elle est trop basse, il faudra éventuellement réajuster la pression d'eau dans le circuit.
En résumé, l'extinction du voyant clignotant est un signe positif indiquant que l'alerte précédente a été levée, mais il est important de vérifier l'état global de la chaudière pour assurer un fonctionnement optimal.
Si le manomètre de votre chaudière à condensation FRISQUET HYDROMOTRIX CF n'affiche pas de pression, cela signifie généralement que la pression dans le circuit de chauffage est trop basse ou nulle. Voici les étapes à suivre pour résoudre ce problème :
1. Vérification du manomètre
Assurez-vous que le manomètre est bien fonctionnel et qu'il indique zéro bar. Si l'aiguille ne bouge pas ou semble bloquée, cela peut indiquer un défaut du manomètre lui-même.
2. Remplissage du circuit de chauffage
- Localisez le robinet de remplissage, généralement situé sous la chaudière.
- Ouvrez-le lentement pour laisser entrer de l'eau dans le circuit.
- Surveillez le manomètre et arrêtez le remplissage lorsque la pression atteint environ 1 à 1,5 bar, ce qui est la pression normale de fonctionnement.
3. Recherche de fuites
Après avoir rétabli la pression, inspectez visuellement la chaudière et les radiateurs pour détecter toute fuite d'eau. Une fuite peut entraîner une perte de pression rapide.
4. Redémarrage de la chaudière
Une fois la pression correcte rétablie et aucune fuite détectée, redémarrez la chaudière pour vérifier son bon fonctionnement.
Important : Si la pression retombe rapidement ou si vous n'êtes pas sûr de manipuler ces opérations, il est conseillé de faire appel à un professionnel qualifié pour éviter tout dommage ou risque.
Téléchargez la notice de votre Chaudière à condensation au format PDF gratuitement ! Retrouvez votre notice HYDROMOTRIX CF - FRISQUET et reprennez votre appareil électronique en main. Sur cette page sont publiés tous les documents nécessaires à l'utilisation de votre appareil HYDROMOTRIX CF de la marque FRISQUET.
MODE D'EMPLOI HYDROMOTRIX CF FRISQUET
Contrôle de flamme par ionisation
INSTALLATION
Pages
1 - Elements dimensionnels 4
2 - Mise en place de la barre d'accrochage a) Fixer la barre d'accrochage 4
3-Accrochage de la chaudiere a)Demonter la facade 5 b)Accrocher la chaudiere .5
4 - Demontage de la plaque de transport 5
5 - Raccordement des fumées 5
6 - Raccordement des accessoires hydrauliques et gaz 6
7 - Raccordement du circuit electrique 6
MISE EN SERVICE
1 - Avant de mettre en eau 7
2 - Remplissage 7
3 - Vérifier les étanchéités gaz et eau. 7
4 - Annuler le mode "installation" et passer en mode "marche normale". 7
5 - Configuration avec un gallon externe 7
6 - Initialisation de la communication radio 8
7 - Mise en place du satellite 8
8 - Fixation du satellite 8
9-Eauchaude sanitaire. 9
SCHEMA ELECTRIQUE
1 - Schéma de câblage général 9
CHARACTERISTIQUES TECHNIQUES 10
CHANGEMENT DE GAZ 10
PROTECTION CONTRE LE GEL 10
QUELQUES CONSEILS 10
NOMENCLATURE 11
ANOMALIE : AIDE AU DIAGNOSTIC 11
Sortie du conduit de fumée
Le conduit de fumée doit dépasser le faîtage du toit de 0,40 m minimum.
Si une construction ou un obstacle est à moins de 8 , il doit alors dépasser celui-ci d'au moins 0,40 .
Amenée d'air frais à travers une paroi extérieure
Le local contenant une chaudière à gaz à tirage naturel doit être pourvu d'une alimentation en air directe, de section libre minimum :
- 50~cm^2 pour une puissance de 23kW
- 70 cm² pour une puissance comprise entre 25 kW et 35 kW
- 100 cm² pour une puissance comprise entre 35 kW et 50 kW

Attention, il faut déduire la surface de la grille pour que la section libre soit suffisante.
Base du conduit
Elle doit être munie d'un "Té de raccordement" avec réceptacle visible ou d'un "Té de purge" s'il y a un risque de condensation (conduit extérieur).
Environnement
Ne pas placer un apparéil de cuisson sous ou à proximé immediate de la chaudière.




La chaudière doit être installée suivant les règles en vigueur :
- Arrêté du 2 août 1977 et arrêtés modificatifs
-Norme P45-204 (DTU 61.1) - NFC 15.100 Installations électriques basse tension
- DTU 24.1 Raccordement des fumées
- NFC 73.600 Installations électriques mise à la terre
- Recommendations ATG B84
Par application de l'article 25 de l'arrêté du 2 août 1977 modifié et de l'article 1 de l'arrêté modificatif du 5 février 1999 l'installateur est tenu d'établier des certificates de conformité approuvés par les ministres charges de la construction et de la sécurité du gaz :
- de modèles distincts (modèles 1, 2 ou 3) après réalisation d'une installation gaz neuve.
- de « modulo 4 » après remplacement d'une chaudière par un nouvellement dans l'axe et l'emprisedel l'appareilanterieur.

Attention, verifier avant l'installation de l'appareil les dispositions relatives aux conditions d'installation et puissances maximes autorisées.
Règlement de sécurité contre l'incendie et la panique dans les établissements reçvant du public.
Prescriptions generales pour tous les apparciels :
- Articles GZ - Installations aux gaz combustibles et hydrocarbures.
Ensuite suivant l'usage : - Articles GH - Chauffage, ventilation, réfrigération, conditionnement d'air, production de vapeur et d'eau chaude sanitaire.
- Articles GC
- Installations des appareils de cuisson destinés à la restauration .
Prescriptions particulieres pour chaque type d'établissements reçvant du public (hôpitaux, magasins...)
Boue
Il est indispensable d'effectuer un rinçage et un nettoyage de l'installation avant la mise en service de la chaudière sur tout si l'installation est ancienne.
Chauffage par le sol
Toute installation de plancher chauffant doit être protégée par un additif contre la corrosion, la formation de dépôts et la contamination bacteriienne.
Tartre
Si la chaudière est installée dans une région où l'eau est "dure" ou "très dure", protégé le circuit sanitaire des chaudières mixtes des effets néfastes du calcaire : Polyphosphates ou Résines + sel.
Rappel :
-Eau douce
Moins de 12^
-Eau dure
de 13^ à 24^
-Eau très dure
Plus de 25^
-
1^ F = 10 grammes de calcaire par m³ d'eau
-
24^ = 240 grammes de calcaire par ^3 d'eau
1 - Éléments dimensionnels

VUE DE FACE
VUE DE DESSUS

Pour facilitier l'entretien, si possible laisser un dégagement de 20 cm sur le côté gauche de la chaudière.

Respecter le diamètre du conduit de fumée en fonction de la puissance de la chaudière.
| Modèles | A | B | C | D | E | F | G | H | I | J | ∅ | Poids en charge kg | |
| HYDROMOTRIX | 23 KW | 80 | 10 | 105 | 685 | 495 | 790 | 320 | 175 | 235 | 410 | 125 | 82 |
| HYDROMOTRIX | 32 KW | 115 | 30 | 105 | 705 | 550 | 810 | 350 | 200 | 250 | 440 | 139 | 102 |
| HYDROMOTRIX | 45 KW | 60 | 60 | 175 | 690 | 710 | 865 | 360 | 350 | 250 | 490 | 180 | 140 |
| TGP murale | 23 KW | 75 | 75 | 240 | 740 | 550 | 980 | 350 | 200 | 240 | 465 | 125 | 90 |
| TGP murale | 32 KW | 75 | 75 | 240 | 740 | 550 | 980 | 350 | 200 | 255 | 465 | 140 | 110 |
2 - Mise en place de la barre d'accrochage
a) Fixer la barre d'accrochage
- Détérminer sa position en fonction de l'emplacement final de la chaudière et de ses dimensions.
-
Vérifier sa mise à niveau et la sceller avec des fixations de Ø 8 mm.
Leur nature et leur nombre dépendent : -
du matériel du support
- du poids de la chaudière en charge

3 - Accrochage de la chaudière
a) Démonter la façade, pour visualiser la mise en place de la chaudière sur la barre d'accrochage.
- Coucher la chaudière.
- Desserer les 2 vis de quelques tours.
- Soulever la façade et la sorting en la poussant.

b) Accrocher la chaudière
- Engager la traverse supérieure du chassis dans les deux levres de la barre d'accrochage.

4 - Démontage de la plaque de transport

Fixée sur la,chambre de combustion,la plaque de transport doit etre obligatoirement retiree.

- Desserer les 2 vis .
- Tirer la plaque vers le bas et desserrer.
5 - Raccordement des fumées
- Prévoir un " Té de raccordement ou Té de purge".
- Respecter le diamètre du conduit de fumée en fonction de la puissance de la chaudière.

Attention, le dispositif de sécurité DAT ne doit enaucun cas etre mis hors service. La mise en sécurité intempestive du DAT nécessite impereativement une verification specifie du conduit d'évacuation des produits de combustion.

6 - Raccordement des accessoires hydrauliques et gaz
Tous les accessoires (voir schéma ci-dessous) se trouvent dans le carton de la chaudière.
Il est impératif de monter le dispositif de replissage (le disconnecteur + le tube) avant de raccarder la chaudière à l'installation.
Pour les modèles « Chauffage seul », monter le bouchon 8/13 livre avec la chaudière dans le sachet d'accessoires, sur le raccord de la vanne à la place du disconnecteur.

Attention, le diamètre de canalisation gaz doit être calculé spécifique en fonction des caractéristiques et des pertes de charge de l'installation.

Lorsque la chaudière est posée à un niveau inférieur à celui des radiateurs il y a lieu de prévoir un clapet antithermosiphon au départ de la chaudière. Il empêchera la circulation naturelle du fluide par différence de densité.
Accessoires fournis
Vanne Départ
- Vanne Retour
- Robinet Gaz
- RTA
- Régulateur de débit
- Disconnecteur + Robinet de replissage
- Tube de replissage
sauf pour modèles CI

Monter impératifement le régulateur de début dans le logement prévu dans le RTA
| Modèles | A | B | C | X | E | Départ Retour | Gaz | Sanitaire | |
| HYDROMOTRIX | 23 kW | 50 | 60 | 60 | 225 | 60 | M 20x27-3/4" | M 20x27-3/4" | M 15x21-1/2" |
| HYDROMOTRIX | 32 kW | 55 | 65 | 70 | 260 | 60 | M 26x34-1" | M 20x27-3/4" | M 15x21-1/2" |
| HYDROMOTRIX | 45 kW | 55 | 60 | 60 | 345 | 150 | M 26x34-1" | M 20x27-3/4" | M 15x21-1/2" |
| TGP MURALE | 23 kW | 80 | 60 | 60 | 215 | 95 | M 20x27-3/4" | M 20x27-3/4" | M 15x21-1/2" |
| TGP MURALE | 32 kW | 55 | 65 | 70 | 235 | 85 | M 26x34-1" | M 20x27-3/4" | M 15x21-1/2" |
Propane : Ne pasmettre de robinet d'arrêt gaz, raccorder la chaudière directement au détendeur de sécurité 37 mbar.
7 - Raccordement du circuitélectrique
La chaudière doit être raccordée à une prise murale. En regardant la prise murale de face : la phase doit se situer à droite, le neutre à gauche.
Lors du raccordement, il est indispensable de respecter le repérage phase/neutre et d'avoir une mise à la terre efficace.

La chaudière est livrée dans une situation "installation". Elle ne pourra pas fonctionner tant que le circuit de chauffage ne sera pas plein et sous pression.
1 - Avant de mettre en eau
- vérifier à l'aide d'un tournevis et après avoir enlevé le bouchon, la libre rotation du circulator.
2 - Remplissage
Pour dire la valeur de la pression durant le replissage, la prise de la chaudière doit être branchée et l'interrupteur basculé "sous-tension".
Levoyant rouge est allumé.
- Desserrer le bouchon P du purgeur automatique de 2 tours. Un purgeur manuel M situé sur le corps de la soupape permet d'accélérer le dégazage.
- Ouvrir les deux vannes et situées sous la chaudière de part et d'autre du disconnecteur. La pression monte et l'indicateur évolue jusqu'à ce que celui le voyant vert soit allumé.
- Fermer les vannes.
- Purger l'installation.
- Proceder à un appoint d'eau et une nouvelle purgese si nécessaire.
- Rétabir la pression : voyant vert seul allumé.

3 - Vérifier les étanchéités gaz et eau
4 - Annuler le mode "installation" et passer en mode "marche normale"
- Sur le tableau de bord enlever la trappe T A l'aide du doigt destiné à cet usage, basculer le switch 6 vers la gauche.
5 - Configuration avec un gallon externe
- Basculer le switch 1 vers la droite (voir Schéma ci-dessous).
| Standard | Choix configuration | |
| 1 □ | Ballon externe | □ non oui |
| 2 □ | RIF 5000 | |
| 3 □ | ||
| 4 □ | ||
| 5 □ | Satellite radio oui | □ non |
| 6 □ | Mode installation* marche normale * Annule toutes les fonctions de la chaudière sauf la lecture de pression.Durant l'installation de la chaudière et les vérifications d'étanchéité des circuits (eau et gaz), il doit être en "mode installation". Ensuite, basculer (à gauche) pourmettre la chaudière en marche normale. | |
AVERTISSEMENT:
Lors d'une première tentative d'allumage, le voyant rouge de mise en sécurité peut s'allumer à cause d'une purge gaz insuffisante.
Relancer le cycle d'allumage plusieurs fois si nécessaire, en appuyant 2 secondes sur le bouton Si le brûleur s'éteint quelques secondes après son allumage, voir si le raccordement Phase/Neutre est bien respecté (page 6).










En selectionnant la chaudière est en mode de conduite manuelle.
- On peutCHOISIR la température de depart en appuyant sur + ou - et procéder à la verification du bon fonctionnement de l'installation de chauffage.
- Adapter évientuellesment la vitesse du circulator par le bouton intégré à son boîtier (Privilégier les vitesse les plus basses).


A ce stade, si la chaudière est piloée par une régulation RIF 5000, se reporter à la notice spécifique.
6 - Initialisation de la communication radio
- Déployer l'antenne du récepteur radio fixé en haut à gauche sur le chassin de la chaudière (voir nomenclature page 16). L'antenne doit se才知道 impératifement à une distance supérieure de 1 cm de tout objet métallique.
Se placer dans la piece où est posée la chaudiere.
-
Enlever la trappe du satellite radio ① et dégager la languette de protection des piles ②.
-
La molette étant sur "AUTO", appuyer 5 secondes sur la touche le message "CnF" apparait : le satellite est en mode " configuration ", il envoie son identité au récepteur.
Appuyer durant 5 secondes sur du tableau de bord de la chaudiere, le voyant de la commande manuelle clignote indiquant qu'il recoit la transmission radio.
- Relâcher et appuyer 2 secondes sur la touche transmission.

du tableau de bord pour valider la
- Pour passer sur mode "AUTO", appuyer 2 secondes sur la touche du tableau de bord de la chaudière.
Appuyer brievement sur du satellite : l'initialisation est terminée.
7 - Mise en place du satellite
- Vévrier la transmission radio :
Le satellite étant sur "AUTO", appuyer 5 secondes sur , le message "TEST" apparait. Sur le tableau de bord de la chaudière, tous les voyants sont eteints sauf le thermomètre qui defile selon une "chenille": la transmission est efficace. - Placer le satellite dans une piece représentative de la température moyenne de l'habitation.
- Vérifier que la transmission est toujours efficace.
Appuyer brievement sur pour sortir du mode "TEST".
8 - Fixation du satellite
-Fixer une vis dans le mur en laissant depasser la tete.
- Accrocher le satellite sur cette vis par la "boutonneire" (A).
- Tracer,encer et visser dans un des trous du compartmente.

Attention, les radiateurs installés dans la pierce où se trouve le satellite d'ambiance ne doivent pas'être équipés de robinets thermostatiques.



















9 - Eau Chaude Sanitaire
Le RTA est préréglé pour une température de sortie maximale comprise entre 45 et 50^ , point idéal de fonctionnement pour le meilleur rapport comport d'utilisation et économique d'énergie.
Avant de modifier son réglage, vérifier la présence du régulateur de début sinon :
a) Mettre la chaudiere en position "max".
b) Laisser couler l'eau chaude jusqu'à l'allumage du brûleur
c) Avec une clé plateau de 13, modifier le réglage :
- Sens hora, diminue la temperature.
- Sens inverse, augmente la températe.


Ce réglage est très sensible, agir par petite rotation (1/10 de tour) toutes les 20 secondes.
Dotée d'une nouvelle technologie de régulation de température, la cartouche du R.T.A peut être échangée dans le cadre de la maintenance :
a) Isoler ou démonter le R.T.A.
b) Dévisser la douille
c) Sortir l'ancienne cartouche.
d) Nettoyer sans rayer l'intérieur du corps.
e) Remonter la cartouche neue en engageant le doigt (F) dans la rainure.

SCHEMA ELECTRIQUE
1 - Schéma de câblage général

| Type Modèle | HYDROMOTRIX 23 B11BS Murale | HYDROMOTRIX 32 B11BS Murale | HYDROMOTRIX 45 B11BS Murale | TGP 23 B11BS Murale | TGP 32 B11BS Murale | |
| Puisance | kW | 23 | 32 | 45 | 23 | 32 |
| Catégorie | II 2E+3P | II 2E+3P | II 2E+3P | II 2E+3P | II 2E+3P | |
| Débit calorifique | kW | 26,08 | 36,05 | 50,67 | 25,05 | 34,85 |
| Débit gaz Lacq G20 (20 mbar) | m3/h | 2,756 | 3,812 | 5,358 | 2,649 | 3,685 |
| Débit gaz Groningue G25 (25 mbar) | m3/h | 2,929 | 4,052 | 5,695 | 2,816 | 3,917 |
| Débit gaz Propane G31 (37 mbar) | kg/h | 2,020 | 2,798 | 3,933 | 1,944 | 2,705 |
| Débit sanitaire Δt 30K | l/min | 11 | 15 | 19 | 13 | 16 |
| Pression maxi ECS | bar | 10 | 10 | 10 | 10 | 10 |
| Température maxi chauffage | °C | 85 | 85 | 85 | 85 | 85 |
| Alimentation électrique | V | 230 | 230 | 230 | 230 | 230 |
| Capacité Vase | I | 10 | 12 | 16 | 10 | 12 |
| * Installation | I | 120 | 150 | 200 | 120 | 150 |
| Pression maxi chauffage | bar | 3 | 3 | 3 | 3 | 3 |
- Ces chiffres ne sont pas théoriques mais correspondant à la réalité constatée sur les installations.
CHANGEMENT DE GAZ
Les chaudières FRISQUET sont transformables de Gaz Naturel en Propane et de Propane en Gaz Naturel. Une notice spécifique dérivant cette opération est fournie avec le Kit de transformation. Cette opération est simplifiée par l'absence de veilleuse et doit être réalisée par un professionnel. Vous trouvez toutes les indications nécessaires dans les pochettes de transformations gaz disponibles chez votre grossiste habitual.
Attention, vérifier que les indications concernant l'état de réglage mentionnées sur la plaque signalétique ou complémentaire doivent être compatibles avec les conditions d'alimentation locales. Pour les transformations de gaz naturel en propane, le robinet gaz GN doit être supprimé. Raccorder la chaudière directement au détendeur de sécurité 37mbar à l'aide du raccord à braser fournit.
QUELQUES CONSEILS
- Bruits d'air : Purger la chaudière et les radiateurs.
- Bruits d'eau : Régler la vitesse du circulator .
- Coup de bélier : Il est féquent que les robinets sanitaires à fermeture rapide engendrent des coups de bélier.
Ceux-ci peuvent eventuèlement se répercuter dans la chaudière.
Le coup de bélier est généralement lié à une alimentation d'eau d'un diamètre trop faible et une pression trop forté qui entraînant des vitesses élevées génératrices du coup de bélier.
Solutions: - Poser un réducteur de pression régliable à membrane
-
Poser un anti bélier à membrane.
-
Expansion dans le circuit sanitaire : Afin d'éviter toute élevation trop importante de la pression liée à l'expansion dans le circuit sanitaire, il est indispensable de prévoir un groupe de sécurité (ou une soupape) taré à 7 bar si l'alimentation eau froide de la chaudière intègre un clapet antiretour ou un réducteur de pression.
L'écoulement du groupe ou de la soupape doit être raccordé à une mise à l'air libre.
Un vase d'expansion « spécial sanitaire » de faible capacité (0,5 l) peut compléter ce dispositif limitant ainsi l'écoulement d'eau.
- Mitigeurs thermostatiques : Pour éviter tout dysfonctionnement de la distribution d'eau chaude ainsi que d'eventuels entartrages prematurés, il est indispensable d'équiper les mitigeurs de clapets antiretour sur l'eau froide et l'eau chaude.
- Marche en thermosiphon : Lorsque la chaudière est posée à un niveau inférieur à celui des radiateurs il y a lieu de prévoir un clapet antithermosiphon au départ de la chaudière. Il empêchera la circulation naturelle du fluide par différence de densité.
PROTECTION CONTRE LE GEL
- Vidanger totallyment l'installation de chauffage ou la protégger par un antigel chauffage.
-
Vidanger totallyment l'échangeur sanitaire en ouvrant un robinet d'eau chaude et d'eau froide en point bas, et en dévissant le raccord (E) (voir nomenclature page 11).
-
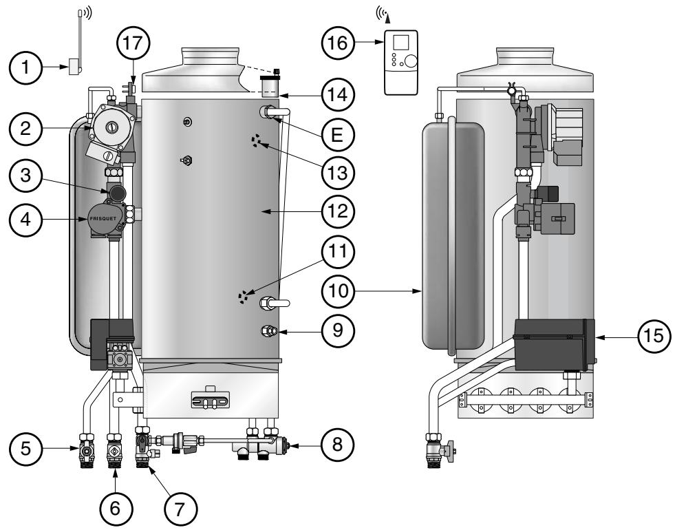
HYDROMOTRIX 23 kW
- 32 kW
- TGP 23 kW
- 32 kW

1 - Récepteur radio
2 - Circulateur
3 - Capterur de pression
4 - Moteur de vanne de régulation
5 - Robinet gaz
6 - Vanne d'isolement retour chauffage
7 - Vanne d'isolement département chauffage
8 - RTA
9 - Vidange chauffage
10 - Vase d'expansion
11 - Raccord Retour deuxième circuit (en option sur HYDROMOTRIX mixte 23 kW)
12 - Corps de chauffe
13 - Raccord Départ deuxième circuit (en option sur HYDROMOTRIX mixte 23 kW)
14 - Purgeur automatique + manuel
15 - Module/ Bloc gaz
16 - Satellite de communication
17-DAT
- place à l'arrière du corps de chauffe

- HYDROMOTRIX 45 kW

| ALLUMÉ ETEINT CLIGNOTE ETAT INDIFFÉRENT | |||||
| stop | stop | stop | stop | AUTO | Défaut de configuration |
| stop | stop | stop | stop | AUTO | Défaut régulation RIF 5000 |
| stop | stop | stop | stop | AUTO | Défaut sonde départ |
| stop | stop | stop | stop | AUTO | Défaut sonde corps de chauffe |
| stop | stop | stop | stop | AUTO | Sonde sanitaire court circuit |
| stop | stop | stop | stop | AUTO | Défaut sonde sanitaire |
| stop | stop | stop | stop | AUTO | Manque d'eau |
| stop | stop | stop | stop | AUTO | Excès pression d'eau |
| stop | stop | stop | stop | AUTO | Défaut capteur de pression |
| stop | stop | stop | stop | AUTO | Défaut vanne régulation |
| stop | stop | stop | stop | AUTO | Pas de réception radio |
| stop | stop | stop | stop | AUTO | Surchauffe |
| stop | stop | stop | stop | AUTO | Evacuation gaz brûlés |
| stop | stop | stop | stop | AUTO | Sécurité brûleur |
| stop | stop | stop | stop | AUTO | Radio non initiaisée |
| stop | stop | stop | stop | AUTO | Mode installation |
| stop | stop | stop | stop | AUTO | ANOMALIE |
| eco max | min | max | 0 bar 3 | ||
GARANTIE
CONDITIONS GENERALES DE GARANTIE
Nos chaudières sont garanties contre tous défauts de fabrication. Elles doivent être mises en oeuvre dans le respect des règes de l'art, la règlementation et les normes en vigueur.
La garantie est de 1 an dans une limite de 18 mois à compter de la date de sortie d'usine.
Notre garantie et notre responsabilité sont limitées à la fourniture gratuite de ou des pieces returnées en usine pour examen et reconnues défectueuses lors'origine.
Aucune indemnité ou dommage interet ne pourra nous etre demande de ce chef.
Sont exclus de la garantie les déteriorations provenant d'une installation ou d'une utilisation anormale ou de phénomènes tels que entartrage, embouage, défaut de pose, foudre, événements météorologiques, actes de malveillance etc...
Les visites et examens que nous pouvons être conduits à effectuer chez l'usager ont le caractère d'une assistance technique et ne peuvent enaucun casetre une reconnaissance,meme implicite,de responsabilité.
L'acheteur non professionnel ou l'utilisateur bénéficia en tout etat de cause de la garantie legale des vices cachés des articles 1641 et suivants du code civil.
CONDITIONS PARTICULIERES D'APPLICATION
Par dérogation aux conditions générales, la garantie Longue Durée est portée à :
- 5 ANS pour le corps de chauffe, brûleur et ballon en acier inoxydable si incorpore à la chaudière.
- 2 ANS pour les autres composants de la chaudière.
Cette extension Garantie Longue Durée est accordée si la vente, l'installation et l'entretien sont faits par un professionnel qualifié dans les domaines concernés.
Cet entretien doit être effectué tous les ans (Art. 31,6 du Règlement Sanitaire Départemental).
OBTENTION DE LA GARANTIE LONGUE DUREE
Notre Garantie Longue Durée doit être remplie obligatoirement par votre installateur.
Sa collaboration est pour vous et pour nous, l'assurance d'une qualite d'installation, le respect des normes et des règles de l'art qui donnent à votre chaudière les conditions de fonctionnement adaptées à un apparéil performant et de haut rendement.
L'enregistrement de la garantie Longue Durée nécessite de compléter entièrement les informations demandées sur le coupon "Carte de garantie à returner".
Si les conditions particulieres de la garantie longue durée sont réunies, celle-ci est automatiquement accordée.
Notice Facile