Secomat 75 - Asciugatrice Krüger - Manuale utente e istruzioni gratuiti
Trova gratuitamente il manuale del dispositivo Secomat 75 Krüger in formato PDF.
Domande frequenti - Secomat 75 Krüger
Domande degli utenti su Secomat 75 Krüger
0 domanda su questo apparecchio. Rispondi a quelle che conosci o fai la tua.
Fai una nuova domanda su questo apparecchio
Scarica le istruzioni per il tuo Asciugatrice in formato PDF gratuitamente! Trova il tuo manuale Secomat 75 - Krüger e riprendi in mano il tuo dispositivo elettronico. In questa pagina sono pubblicati tutti i documenti necessari per l'utilizzo del tuo dispositivo. Secomat 75 del marchio Krüger.
MANUALE UTENTE Secomat 75 Krüger
SECOMAT Asciugabucato
Istruzioni per l'uso

DeutschSeite2
Français Page 19
Italiano Pagina 37
English Page 55
deumidificare
riscaldare
raffrescare
risanare
Impressum
Queste istruzioni per l'uso sono una pubblicazione della ditta
Krüger + Co. SA
Winterhaldenstrasse 11
CH-9113 Degersheim
T0848370370
info@krueger.ch
www.krueger.ch
Tutti i diritti,anche di traduzione,sono riservati. Le riproduzioni di qualsvoglia genere, per es.fotocopie o microfilm,o l'acquisizione in dispositivi elettronici di elaborazione dei dati richiedono il consenso scritto dell'editor. La risampa,anche parziale, è vietata. Queste istruzioni per l'uso corrispondono allo stato della tecnica al momento della stampa. è fattariserva di modifiche tecniche e d'attrezatura.
Kruger ^+ Co. SA
Queste istruzioni per l'uso contengono informazioni importanti sulla messa in esercizio e l'azionamento. Tali disposizioni vanno rispetto scrupolosamente e comunicate ai nuovi utenti in caso di cessione dell'apparecchio a terzi. Le istruzioni vanno conservate per essere consultate anc che in seguito.
Indice
39 impressum
41 Pannello frontale
42 Introduzione
43 Avvertenze di sicurezza
44 Impiego e installmente Impiego dell'apparecchio Descrizione del systema Trasporto Deposito Installazione
45 Montaggio dello stenditoio a cordine
46 Azionamento
Tasti di funzione
Messa in esercizio
Selezione del programma di asciugatura adatto
47 Funzione deumidificazione
ambientale
Esercizio manuale
Riscaldamento ausiliario opzionale
48 Puliizia
Smaltimento
49 controllo guasti
50 Dati tecnici
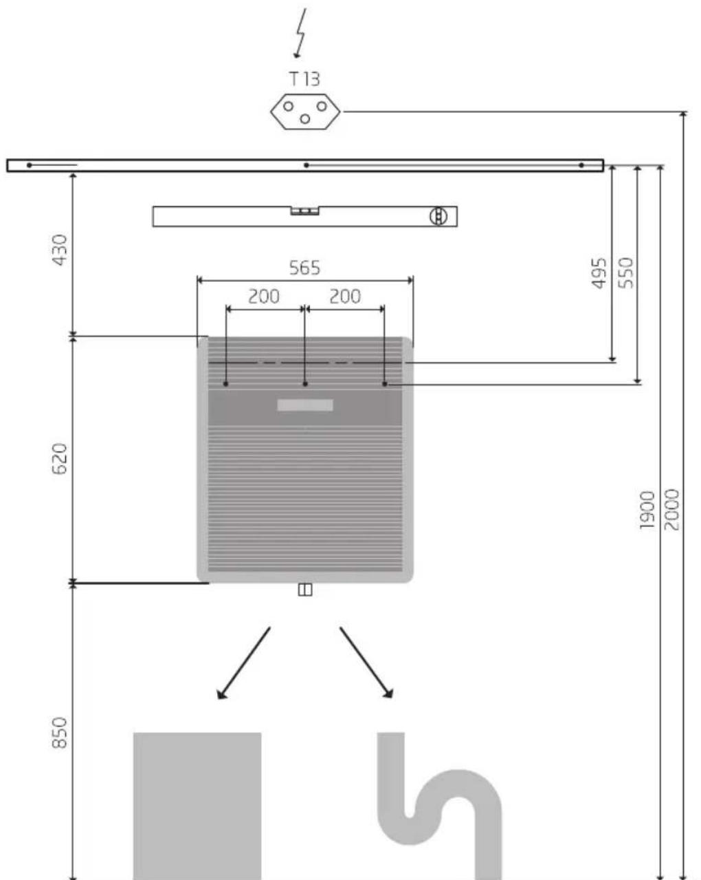
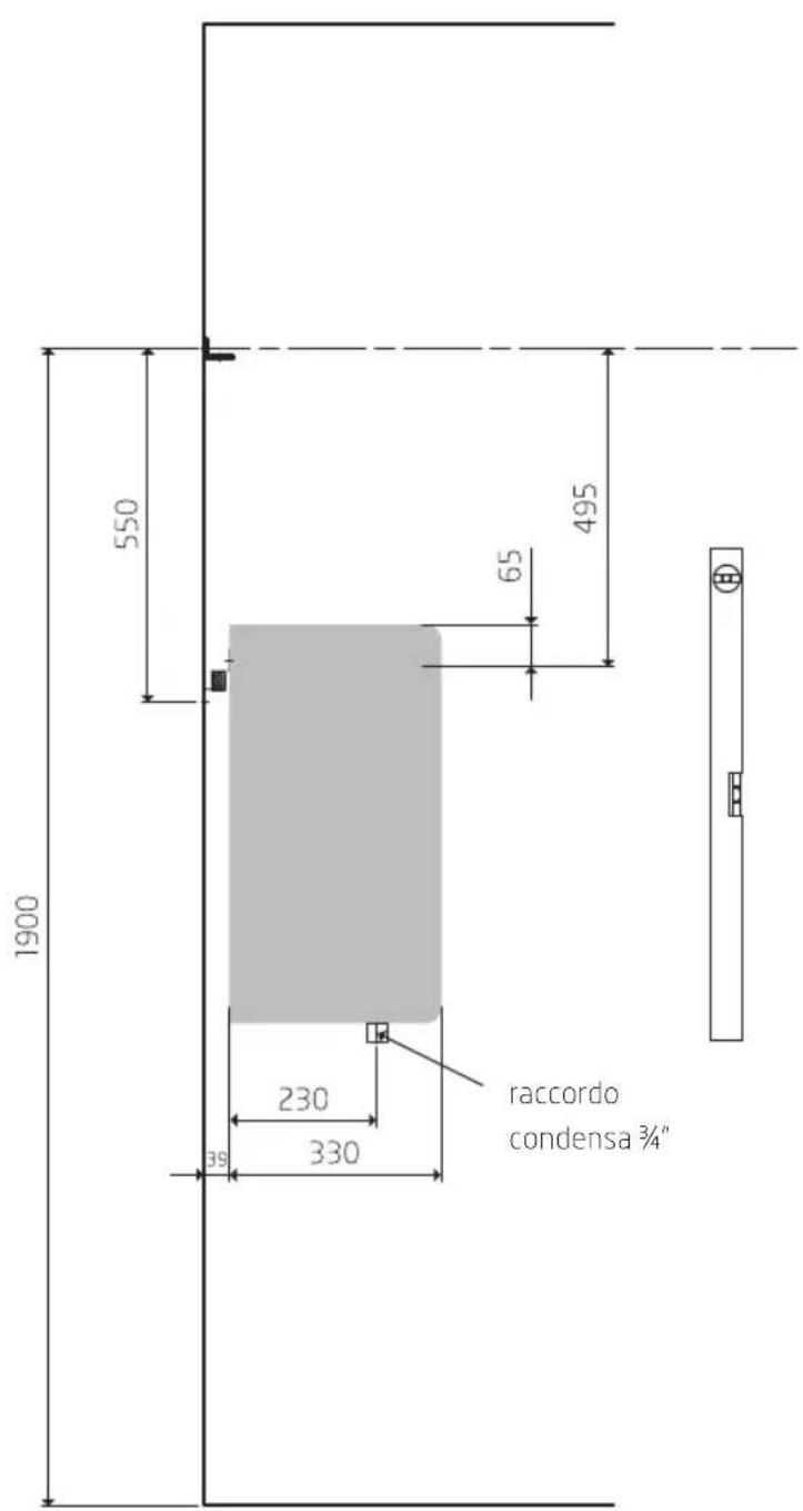
51 Montaggio SECOMAT 75
53 Montaggio SECOMAT 100/150/200
Pannello frontale

Bocchetta d'émissione dell'aria con lamelle
Pannello di lavoro
3 Filtrlo lanugine
4 Griglia di aspirazione
5 Scarico acqua con filetto 12
6 Tasto reset (dietro all'apertura filtro)
Gentile cliente, egregio cliente
Congratulazioni per l'acquisto del nostro prodotto.
Prima della messa in esercizio leggete attendamente tutte le informazioni contenate in queste istruzioni per l'uso e osservate con particolare attenzione le avvertenze di sicurezza. Questo apparecchio è collaudato DCE e adempie i requisiti delle vigenti direttive europee e nazionali. La conformità CE è stata comprovata e le relative dichiarazioni sono depositate presso il fabbricante.
In caso di domande vogliate rivolgervi alla nostra consulenza tecnica:
telefon 0848370370o+41917351585
fax +41 91 735 15 86
giubiasco@krueger.ch
www.krueger.ch
Avverenze di sicurezza
- Questo appearecchio non è un giocattolo e va quando sempre tenuto e utilizzato fuori alla portata dei bambini.
- L'asciugabucato dev'essere installato unicamente seconde le norme nazionali di allacciamento.
- Mai introdurre le dita o oggetti nelle aperture dell'apparecchio. Pericolo d'infortunio!
- Spagnere sempre l'apparecchio quando non è in uso. Evitate il contatto del cavo elettrico con una superficie calda.
- La spina d'alimentazione dev'essere staccata:
in caso di guasto
prima di agli'intervento di pulizia
- La spina non va mai staccata dalla presa tirando il cavo d'alimentazione o con le mani bagnate.
- L'apparecchio non va mai spostato tirando il cavo d'alimentazione.
- Il cavo d'alimentazione non deve rimanere incastrato o passare su spigoli taglienti.
- L'apparecchio non dev'essereMESSO in esercizio (staccare subito la spina) allorquando:
l'apparecchio risulta danneggiato
sussiste il sospetto di un danno in seguito a caduta o altri evento. In quello caso l'apparecchio dev'essere controllato da uno specialista (technico in refrigerazione) e, se del caso, riparato
è danneggiato il cavo d'alimentazione. In tal caso, il cavo d'alimentazione va sostituito dal produttore, dal suo servizio d'assistenza o da un technician qualificato.
- L'apparecchio non deve mai essere usato in acqua. Se venisse a trovarsi in acqua, è necessario staccare la spina o disinserire la valvola prima di accedere alla pozza.
- Non appoggiare oggetti pesanti e non sedersi sull'apparecchio.
- Se l'apparecchio viene utilizzato per altri scopi, azionato in modo errato o riparato in modo approssimativo, non più essere assunta nessuna responsabilità per eventuali danni. In questi casi, decade il diritto alla garanzia.
Impiego e installmente
Impiego dell'apparecchio
Quest'apparecchio è stato concepito appositamente per l'asciugatura del bucato. Con la funzione di deumidificazione ambientale è inoltre possibile Maintainere asciutto il locale.
Descrizione del sistema
Tramite una ventilata, il SECOMAT convoglia al bucato steso una fresca brezza di aria d'asciugatura. I panni cedono l'umidità al flusso d'aria. L'aria umida è aspirata dall'apparecchio e convogliata lungo la superficie raffreddata del gruppo frigorigeno. Il vapore acqueo si condensa ed è addottotramite una bacinella di raccolta a un recipiente o a uno scarico sifonato. Prima di essere reimmessa nel locale, l'aria secca è riportata nella parte calda del gruppo frigorigeno a temperatura d'ambiente e quindi soffiata di nuovo verso il bucato mediante il ventilatore.
Trasporto
L'apparecchio va sempre trasportato in posizione verticale per evitare danni al compressore e danni di trasporto.
Deposito
Se l'apparecchio rimanesse inutilizzato per un periodo prolongato, prima del deposito occorre pulire il recipiente dell'acqua e il mobile. L'apparecchio andrebbe riposto imballato (possibilmente nell'imballaggio originale).
Installazione
- Montate a parete la barra di fissaggio annessa 55 cm除去 lo stenditoio.
- Agganciate l'apparecchio alla barra e assicuratelo contro un involontario distacco mediante le viti a destra e a sinistra.
- L'apparecchio va montato in perfetto livellamento orizzontale e allineamento verticale. Controllate con una livella.
- Mantenete una distanza di sicurezza di 8cm da oggetti inflammabili. Dopo il montaggio, la spina di rete deve rimanere liberamente accessibile.
Temperatura ambiente versione normale: min. +10^ , mass. +30^
Temperatura ambiente con riscaldamento auxiliario: min. +5^ mass. +30^
Se I'acqua e raccolta in un contentatore, è necessario un regolare svuotamento del secchiello.
A dipendenza della temperatura e del tasso di umidità dell'aria, il secchiello può riempirsi da una a due volte il giorno. Il mancato svuotamento del secchiello causa un danno dell'acqua.
Applicazione del tubo flessibile
- Applicare il raccordo (diritto o a gomito) al filetto sulla parte inferiore dell'apparecchio
- Infilare il tubo flessibile sul raccordo
- Addurre il tubo fl essibile alla condotta di scarico (possibilmente sifonata)
Per quanto possibile, si raccomanda lo scarico diretto dell'acqua.
Montaggio dello stenditoio a cordine
Per un risultato di asciugatura ottimale, lo stenditoio va montato come segue:
Sbagliato

I panni stesi trasversalmente rispetto all'asciugatrice ostacolano il flusso d'aria e rallentano l'asciugatura del bucato steso in fondo.
Buono

Qui l'aria pouc circolare e raggiunge anche i panni stesi in fondo.
Ottimale

La disposizione a raggiera delle cordine sviluppata alla Krüger è adatta specialmente per il metodo di asciugatura a condensazione e comporta i tempi di asciugatura più brevi.
Mantenete una distanza minima (0,5 m) tra la bocchetta d'émissione dell'aria e il primo panno steso.
Azionamento
Tasti di funzione
1 Standby con indicazione rossa disfunzioni
P1 Grado di asciugatura leggero del bucato
P2 Grado di asciugatura medio del bucato
P3 Grado di asciugatura elevato del bucato
P4 Funzione deumidificazione ambientale (indicatore LED blu)

Messa in esercizio
- Chiudere le porte e le finestre
- Controllare se il filtro pulito è inserito correttamente
- Premerestandby
- P1 P2 P3 Selezionare il grado di asciugatura mediate i tasti di selezione programmata
Selezione del programma di asciugatura adatto
Il programma più essere selezionato in funzione delle esigenze.
P1 Grado di asciugatura leggero
Breve durata di asciugatura: il bucato mantiene un tasso d'umidità residua per facilitare la stiratura.
P2 Grado di asciugatura medio
Durata di asciugatura media; il bucato è asciutto ma più Ancora presentare una leggera umilità residua.
P3 Grado di asciugatura elevato
Asciugatura prolongata. Il bucato è asciutto pronto per ripore e i panni sono essere subito piegati.
L'umidità dell'aria nel locale stenditoio può variarare a dipendenza della stagione. Nei mesi invernali il basso tenore d'umidità dell'aria può determinare lo spegnimento precoce dell'apparecchio. In questo caso occorre selezionare un grado superiore (P2 o P3). Nei mesi estivi, più umidi, l'apparecchio potrebbe rimanere in esercizio più a lungo del necessario. In quello caso selezionare un grado di asciugatura inferiore (P2 o P1).
L'asciugabucato funzione in modo completamente automatico, vale a dire che fintanto che il tasso d'umidità nel locale supera il grado di asciugatura impostato viene proseguita la deumidificazione. Quando è raggiunto il grado di umidità impostato, la deumidificazione è interrotta. Al rialzo dell'umidità nel locale, l'apparecchio si riaccende automaticamente. Questo processo si ripete fino al raggiungimento del grado di asciugatura desiderato. A questo punto, l'apparecchio si spegne definitivamente. Per una nuova messa in esercizio è necessario riaccendere l'apparecchio manualmente.
Funzione deumidificazione ambientale
P4 Questa funzione può essere attivata o disattivata indipendenteamente nella funzione di asciugatura del bucato mediate il tasto di deumidificazione ambientale. A funzione attivata lampeggia l'indicatore LED blu. Se è Attivata la funzione di mantenimento di un basso tenore di umidità nel locale e viene accesa la funzione di asciugatura del bucato, quest'ultima pre-vale sulla funzione di deumidificazione ambientale. Al termine del programma di asciugatura del bucato si riattiva automaticamente la deumidificazione ambientale. Questa funzione rimane attivata finché viene spenta manually.
Esercizio manuale
Per singoli panni o un piccolo bucato è possible attivare l'esercizio manuale. Tenendo premuto uno dei tre tasti di funzione indicati sotto per 5 secondi l'automatisch è attenuato per un intervallo di tempo definite:
P1 esercizio manuale per 30 minuti
P2 esercizio manuale per 60 minuti
P3 esercizio manuale per 90 minuti
Quando è attenuato l'esercizio manuale, lampeggia la spia LED del corrispondente tasto di funzione. Alla scadenza del tempo l'apparecchio si spegne e l'esercizio manuale è automaticamente disinserito.
Riscaldamento ausiliario opzionale
Se il locale stenditoio è molto freddo è possibile attivare a sostegno della funzione d'asciugatura un riscaldamento ausiliario (dati tecnici vedi pagna 13). Nei modelli H, il riscaldamento ausiliario è giornato in fabbrica; la versione normale può essere postequipaggiata con supplemento di prezzo.
Con una temperatura nel locale inferiore a +14^ il riscaldamento ausillario si accende automaticamente e riscaldaosiuna parte dell'aria d'asciugatura.Quando la temperatura ambiente raggiunge i +16^, I'elemento riscaldante si spegne automaticamente. Il rendimento termico è regolatotramite la portata d'aria.
Pulizia
Pulizia dell'apparecchio:
- Pulire la cassa con un panno umido.
- Estrarre il filtrlo dell'aria verso l'alto (tenere a sinistra e destra).

- Spolverare il filtro con una spazzola e reinserirlo.
In caso di forte insudiciamento è necessaria una pulizia interna dell'apparecchio. Questo intervento di manutenzione va eseguito da uno specialista in refrigerazione. La mancata esecuzione dei necessari lavori di manutenzione può accomportare un guasto all'apparecchio. Gli eventuali difetti risultanti da lavori di manutenzione non eseguiti sono escludi dalle prestazioni di garanzia, segnatamente se non viene pulito il filtrto e l'apparecchio si surriscala. Per una lunga durata e un esercizio impeccabile raccomandiamo la stipulazione di un contratto di manutenzione.
Smaltimento
Il deumidificatore contiene un refrigerante. Quindi, è necessario uno smaltimento speciale. Rivolgetevi al vostro rivenditore o al servizio locale di smaltimento rifiuti.
Controllo guasti
Prima di rivolgervi al servizio guasti verificate i punti seguenti:
Se l'apparecchio non funziona
La spina è insertita correttamente?
Le valvole di casa sono inserte?
Il cavo d'alimentazione è in ordine?
Se l'apparecchio funziona ininterrottamente
Sono chiuse le porte e le finestre?
É possibile che l'umidità provenga da autre fonti?
Etato selezionato il programma d'asciugatura adatto? (vedi pagina 46: selezione del programma d'asciugatura adatto)
Se la deumidificazione è insufficiente
E assicurata la circolazione dell'aria nel locale?
Le aperture di aspirazione e di emissione sono libero?
La temperatura nel locale è troppo alla o troppo bassa (vedi pagina 44)?
Il filtrò è pulito?
É mantenuta la distanza minima (0,5 m) tra bocchetta d'émissione dell'aria e il primo panno steso?
Sono appesi solo singoli panni o un piccolo bucato? (vedi pagina 47: esercizio manuale)
Spia LED rossa lampeggiante
Se lampeggia la spia guasti rossa, l'apparecchio è bloccato. Ogni guasto viene segnalato con un proprio codice d'interrivenza, ossia a dipendenza dell'anomalia varia la frequenza di lampeggio della spia. Verificate e annotate questo codice di disfunzione prima di azionare il tasto reset (vedi pagina 41, n. 6) posto dietro il filtrro. Se non è possibile sbloccare l'apparecchio azionando più volte il tasto reset, vogliate rivolgervi al servizio guasti. Comunicando il codice di disfunzione annotato, il numero dell'articolo e il numero di series che figurano sulla targhetta applicata sul lato frontale sinistro dell'apparecchio potete contribuire a una risoluzione efficiente del problema.
Dati tecnici
Dati tecnici
SECOMAT
75100150200
Modello sensa riscaldamento aesiliario
| Quantità biancheria a norma* | 7.5kg | 10.0kg | 15.0kg | 20.0kg |
| Classe di efficienza energetica | A A A A | |||
| Prestazione di asciugatura a norma* | 1.36 kg/h | 2.98 kg/h | 3.17 kg/h | 3.08 kg/h |
| Durata di asciugatura a norma* | 5h 36 min | 3h 24 min | 4h 36 min | 6h 18 min |
| Livello di pressione acustica a norma* | 64 dB(A) | 71 dB(A) | 69 dB(A) | |
| Misure L × A × P (mm) | 565×620×330 | 655×670×395 | 655×670×395 | |
| Peso | 39kg | 47kg | 47kg | |
| Tensione | 230 V/50 Hz | 230 V/50 Hz | 230 V/50 Hz | |
| Potenza assorbita月以来 riscaldamento ausiliario** | 345 W | 989 W | 989 W | |
| Corrente nominale月以来 riscaldamento ausiliario** | 1.5 A | 4.3 A | 4.3 A | |
| Fusibile (rit.) | 6.0 A | 10.0 A | 10.0 A | |
| Tipo di refrigerante/sono CFC | R134a | R407c | R407c | |
Modello con riscaldamento ausiliario opzionale
| Tensione | 230 V/50 Hz | 230 V/50 Hz | 230 V/50 Hz | 230 V/50 Hz |
| Rendimento termico mass. | 1350 W | 1350 W | 1350 W | |
| Potenza assorbita mass.*** | 1695 W | 2340 W | 2340 W | 2340 W |
| Assorbimento corrente mass. | 7.5 A | 10.3 A | 10.3 A | 10.3 A |
| Fusibile (rit.) | 10.0 A | 13.0 A | 13.0 A | 13.0 A |
| Temperatura di accensione | +14°C | +14°C | +14°C | +14°C |
| Temperatura di spegni-mentation | +16°C | +16°C | +16°C | +16°C |
- Metodo di provadì tecnica energetica per asciugatrici a convenzione d'aria (HTA Scuola universitaria tecnica e d'architectura di Horw/Lucerna)
**a+20℃/60%u.r.
*** varia a seconda della quantita di aria
Montaggio SECOMAT 75


Montaggio
SECOMAT100/150/200


ManualeFacile